Скачать Типовой проект 704-1-54 Альбом II. Рабочие чертежи КМ понтонаДата актуализации: 01.01.2021
|
| Обозначение: | Типовой проект 704-1-54 |
| Обозначение англ: | 704-1-54 |
| Статус: | действует |
| Название рус.: | Альбом II. Рабочие чертежи КМ понтона |
| Дата добавления в базу: | 01.10.2014 |
| Дата актуализации: | 01.01.2021 |
| Дата введения: | 25.12.1969 |
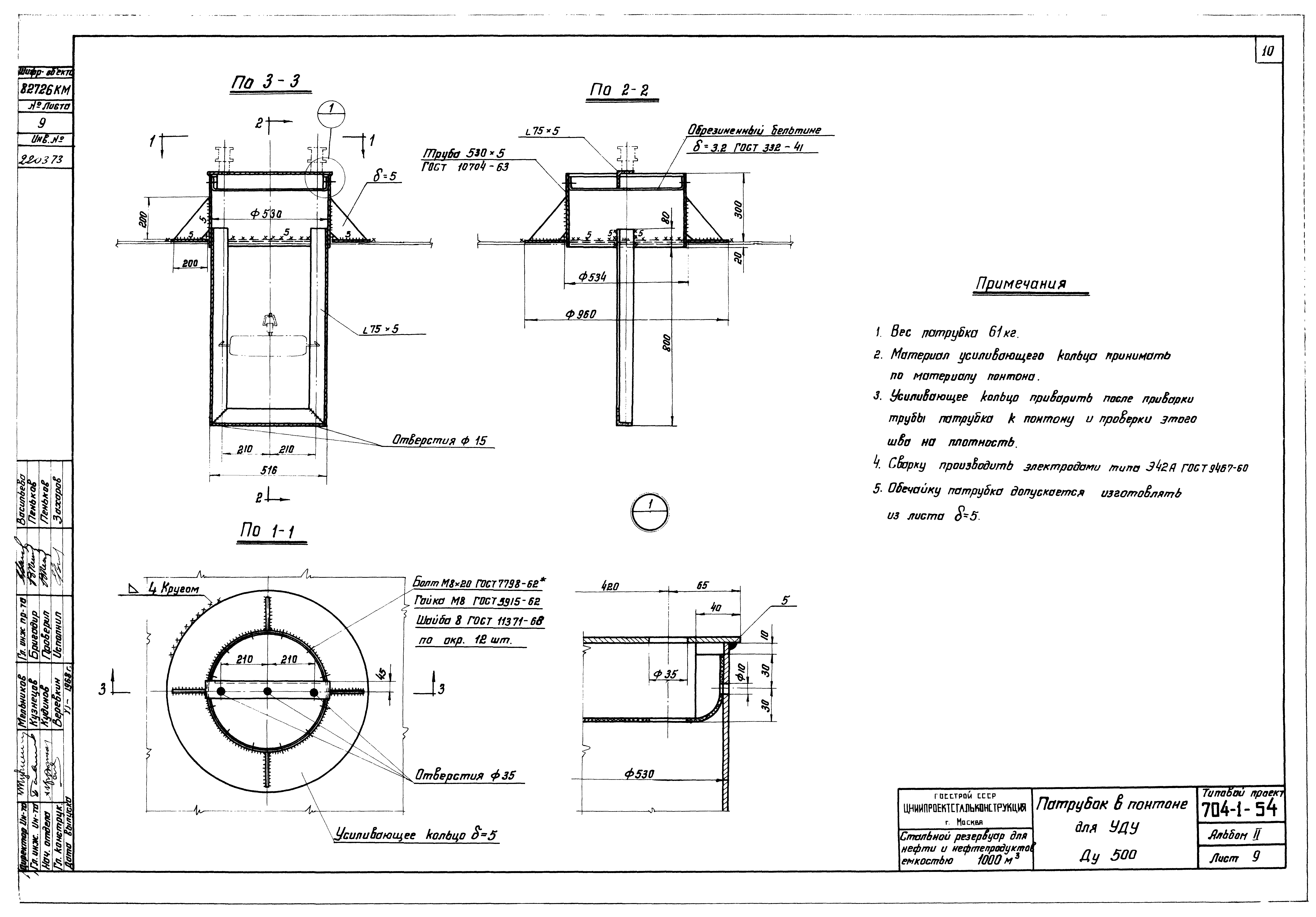
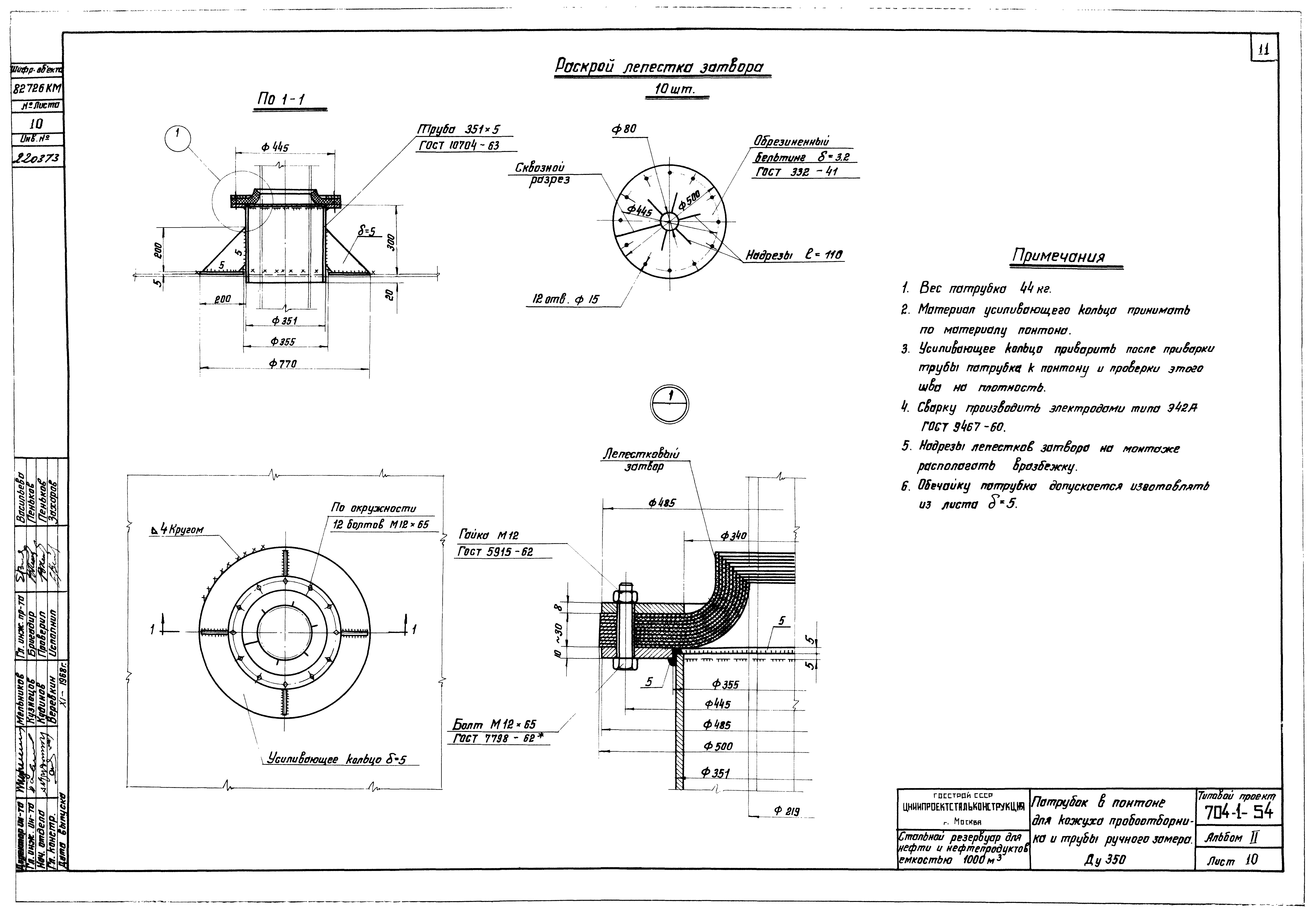
| Оглавление: | Содержание альбома и пояснительная записка Техническая спецификация стали и материалов на понтон Понтон. План и разрез Понтон. Детали Кронштейн Площадка и стремянка у люка-лаза во II поясе стенки Люк пробоотборника в I поясе стенки Dy250 Люк-лаз во II поясе стенки Dy500 Патрубок в понтоне для УДУ, Dy500 Патрубок в понтоне для кожуха пробоотборника и труба ручного замера, Dy350 Патрубок огневых предохранителей Dy200; Dy250 Кожух пробоотборника Dy200 Труба ручного замера Dy200 Петлевой затвор Понтон. Днище |
| Разработан: | ЦНИИпроектстальконструкция |
| Утверждён: | 25.12.1969 ЦНИИпроектстальконструкция (TsNIIprojectstalkonstruktsiya 221) |
















