Скачать Типовой проект Арх. №04565п Железобетонные опоры с подвесными изоляторами для ВЛ 35 кВ с проводами малых сеченийДата актуализации: 01.01.2021
|
| Обозначение: | Типовой проект Арх. №04565п |
| Обозначение англ: | Арх. №04565п |
| Статус: | действует |
| Название рус.: | Железобетонные опоры с подвесными изоляторами для ВЛ 35 кВ с проводами малых сечений |
| Дата добавления в базу: | 01.10.2014 |
| Дата актуализации: | 01.01.2021 |
| Дата введения: | 08.02.1973 |
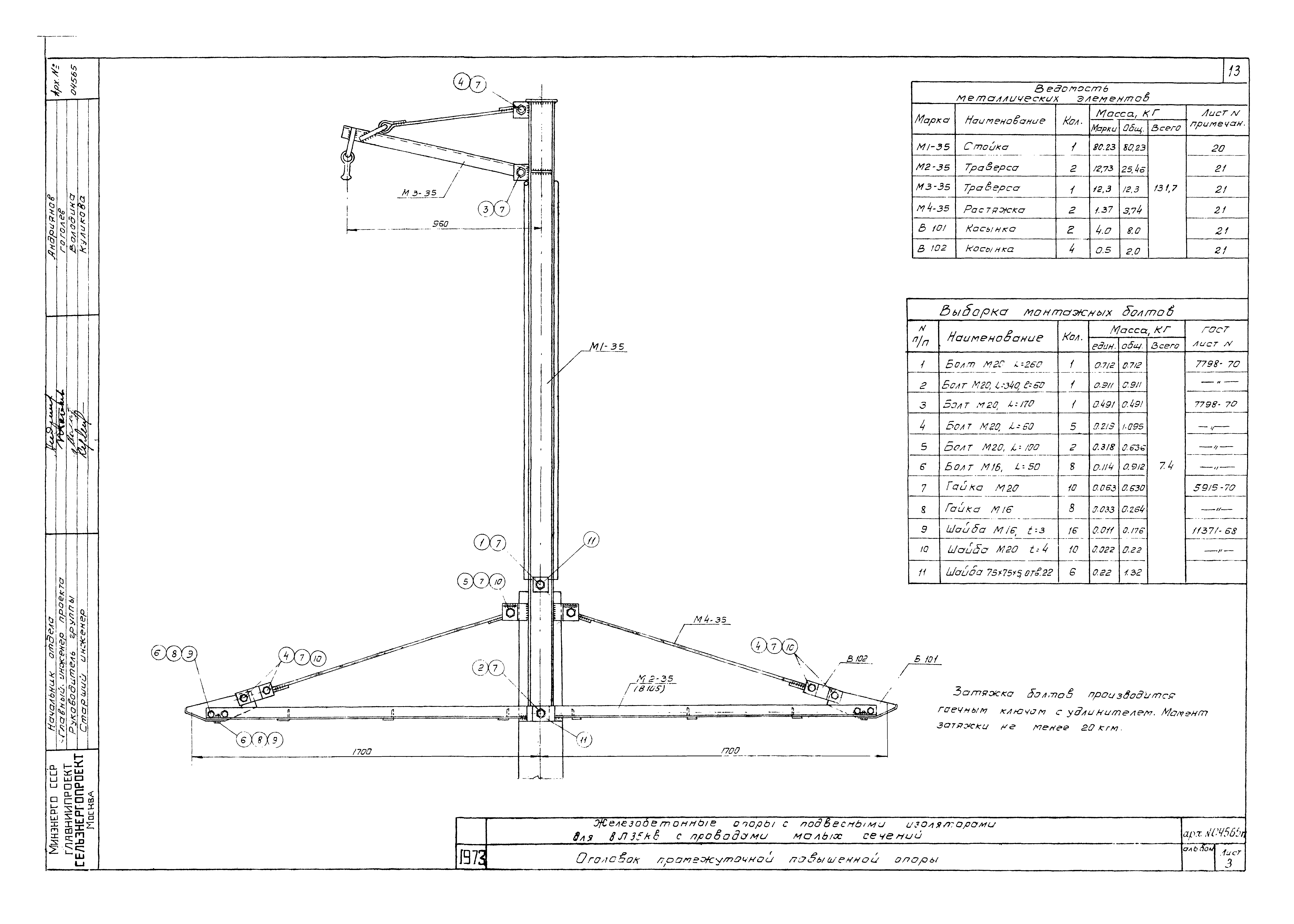
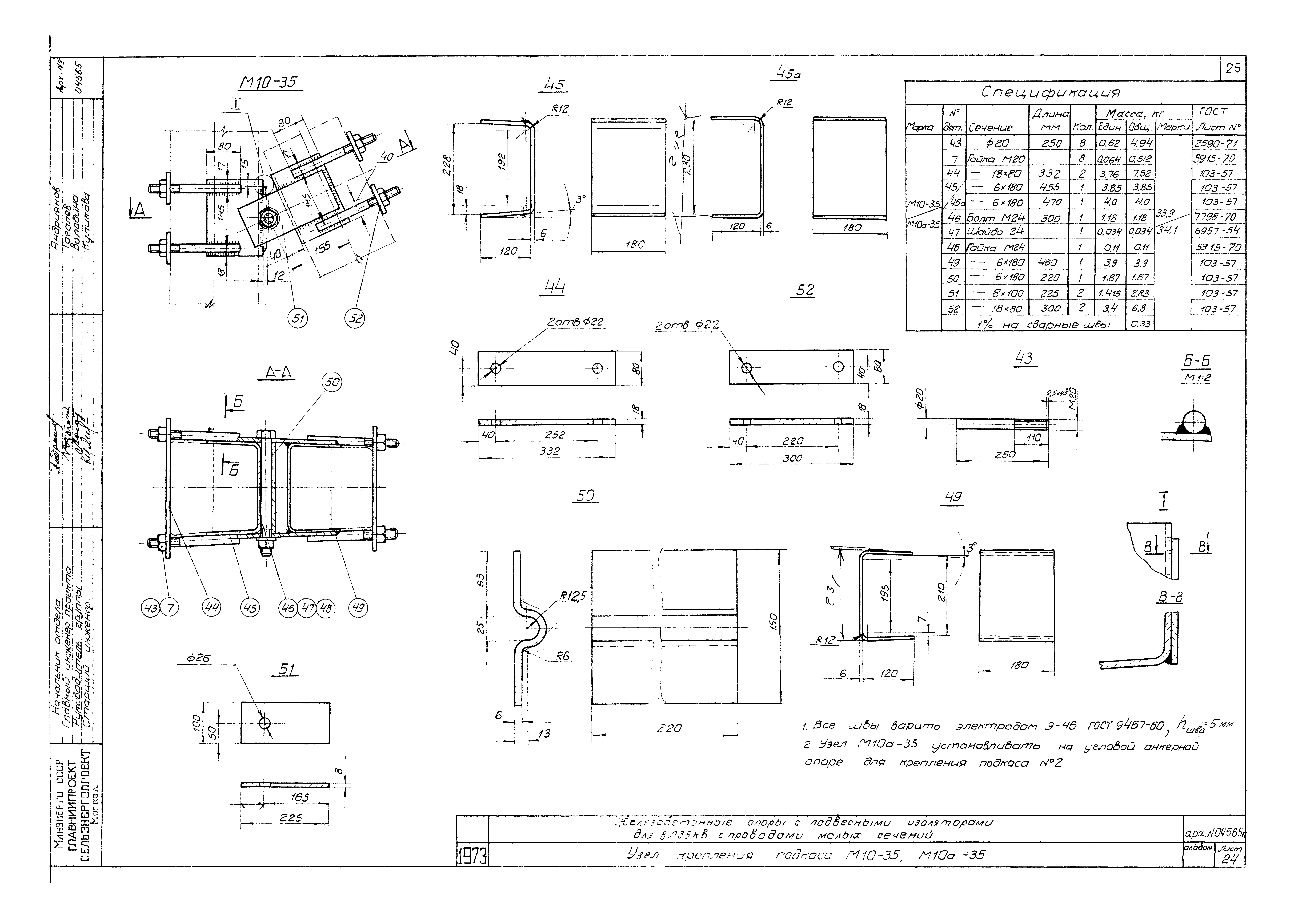
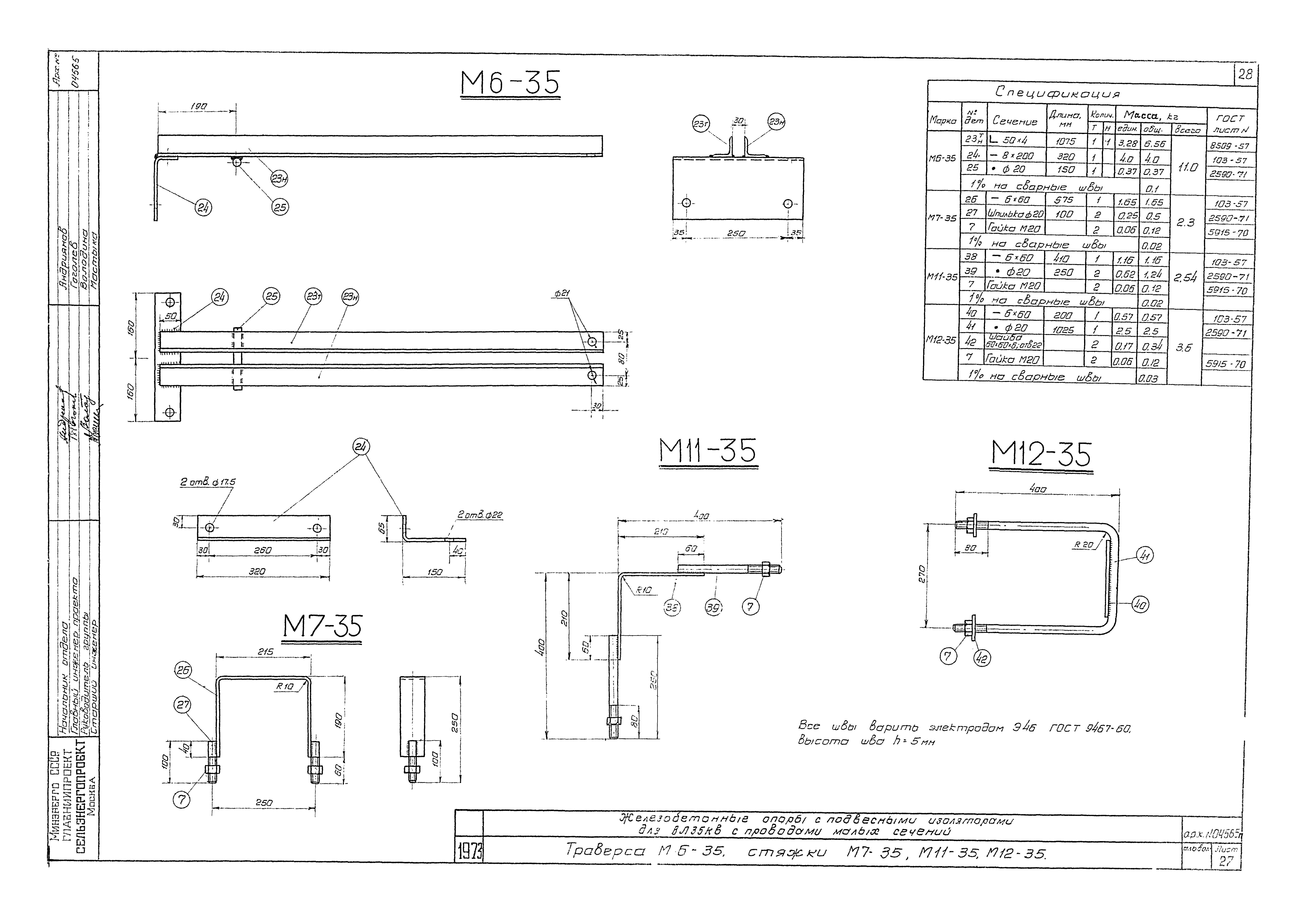
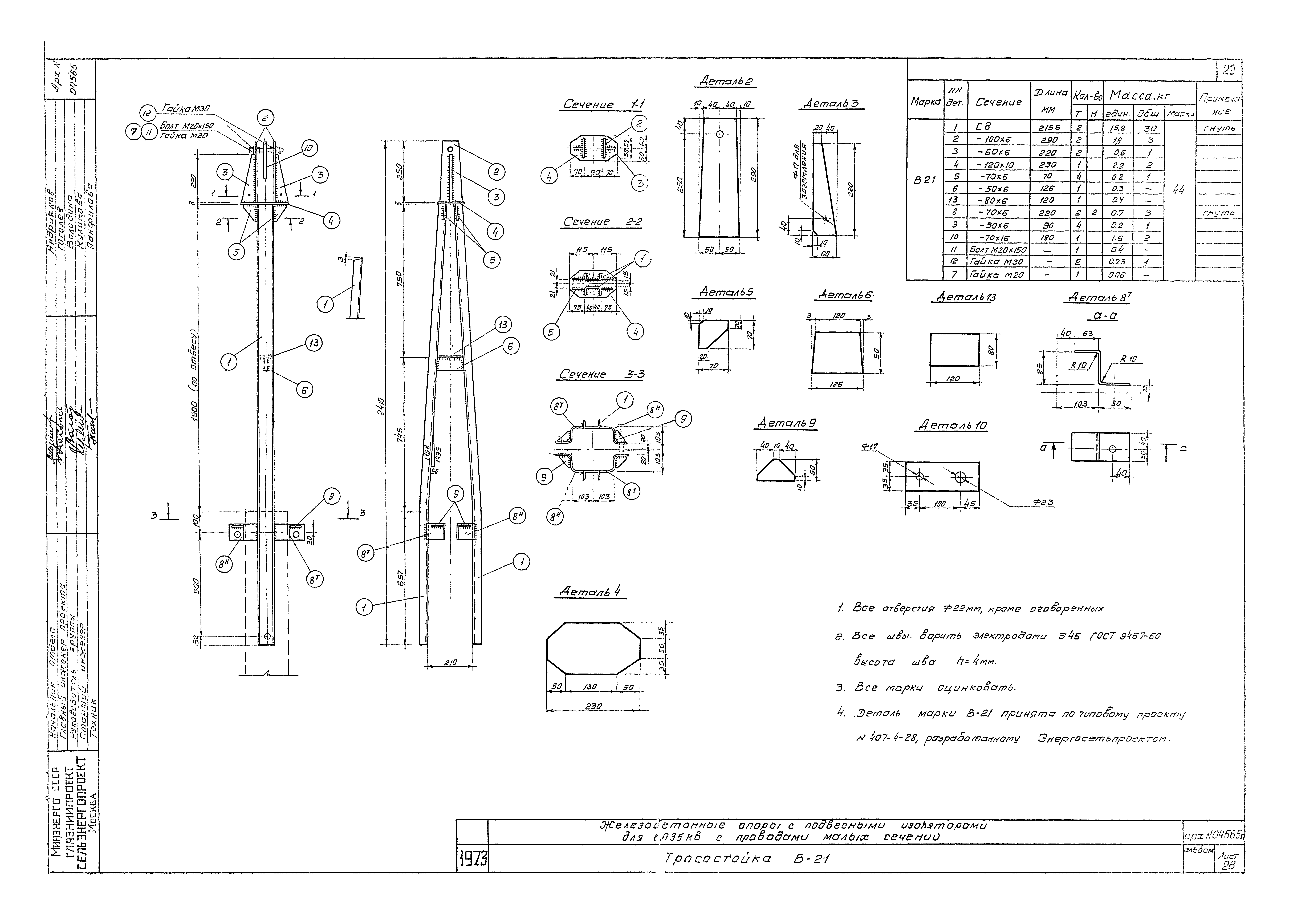
| Оглавление: | Часть I. Пояснительная записка Часть II. Чертежи А. Монтажные схемы опор Б. Металлические детали Протоколы испытаний |
| Разработан: | Сельэнергопроект Минэнерго СССР |
| Утверждён: | 08.02.1973 Минэнерго СССР (USSR Minenergo 30) |
















































