Скачать Типовой проект 416-7-326.90 Альбом 2. Отопление и вентиляция. Внутренние водопровод и канализация. Силовое электрооборудование. Электрическое освещение. Связь и сигнализация. Автоматизация санитарно-технических системДата актуализации: 01.01.2021
|
| Обозначение: | Типовой проект 416-7-326.90 |
| Обозначение англ: | 416-7-326.90 |
| Статус: | не определен законодательством |
| Название рус.: | Альбом 2. Отопление и вентиляция. Внутренние водопровод и канализация. Силовое электрооборудование. Электрическое освещение. Связь и сигнализация. Автоматизация санитарно-технических систем |
| Дата добавления в базу: | 01.10.2014 |
| Дата актуализации: | 01.01.2021 |
| Дата введения: | 24.05.1990 |
| Дата окончания срока действия: | 30.06.2003 |
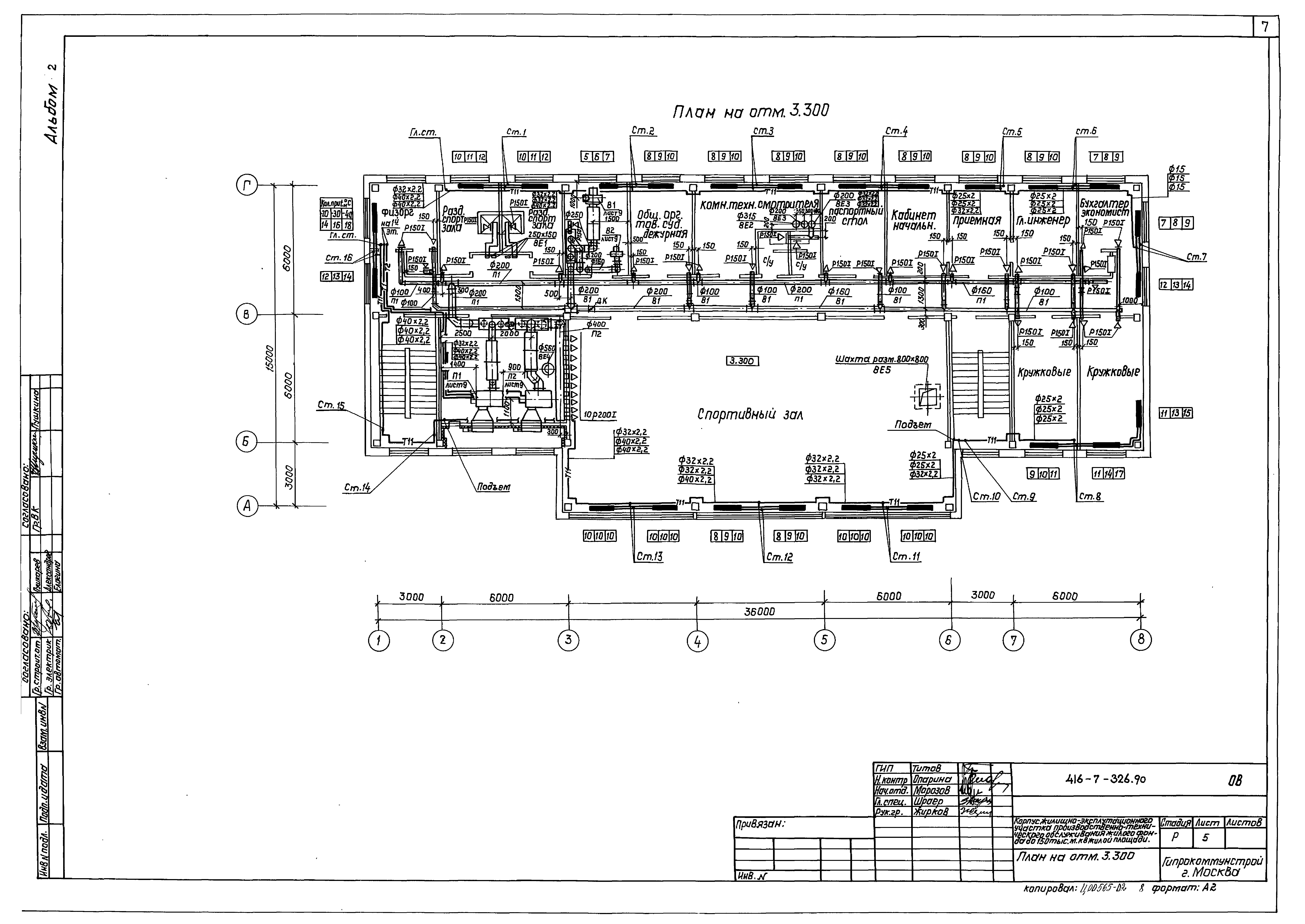
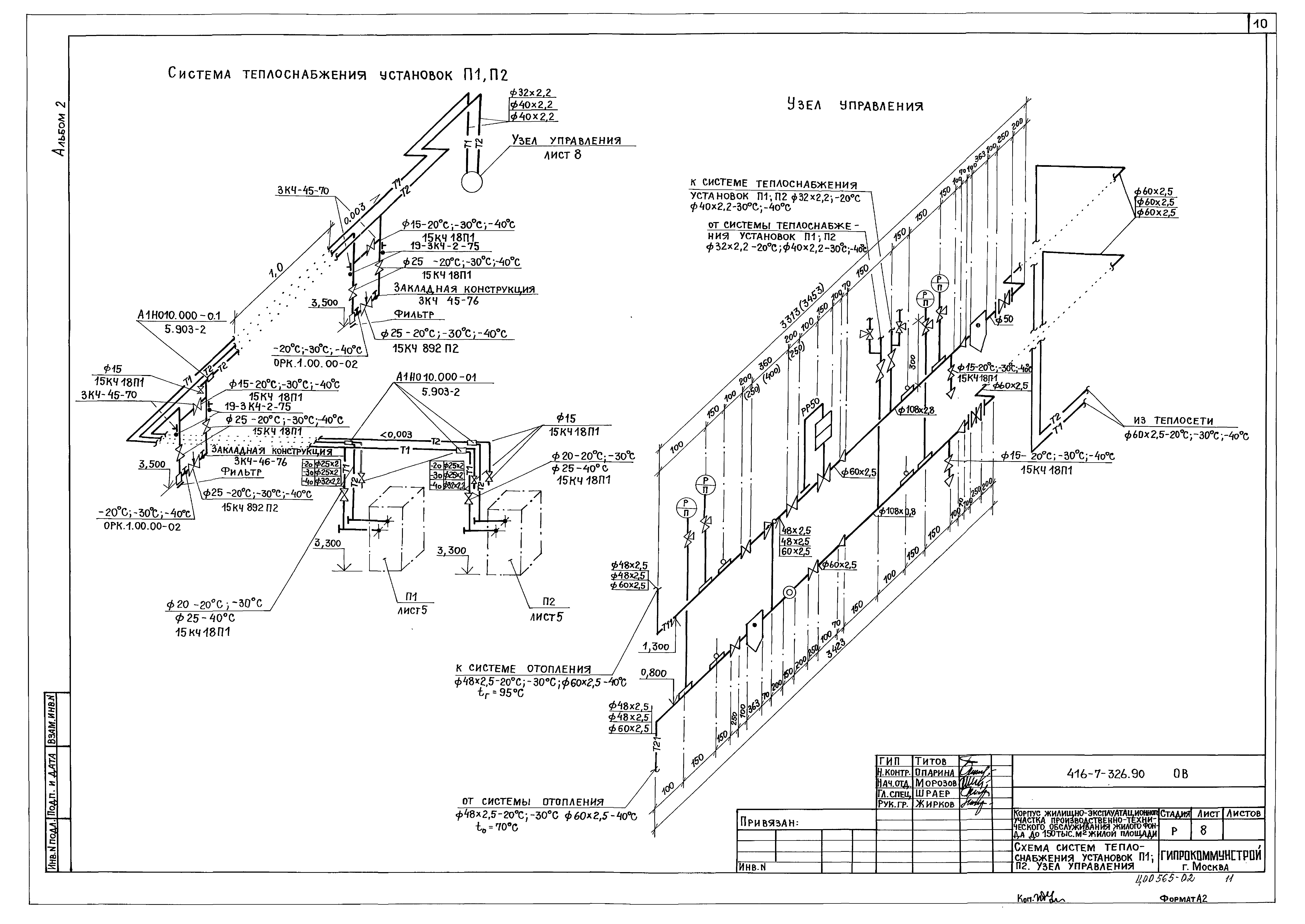
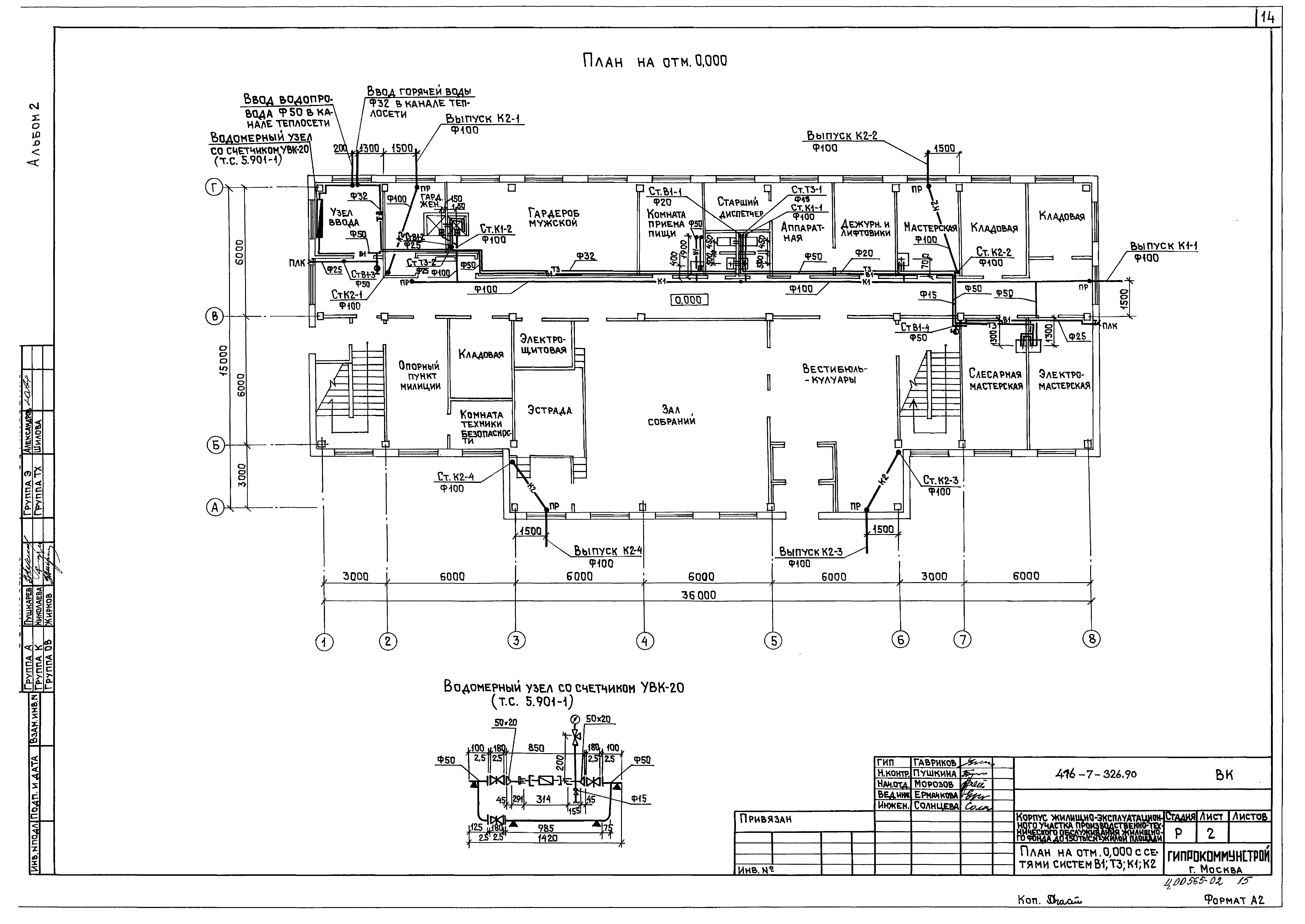
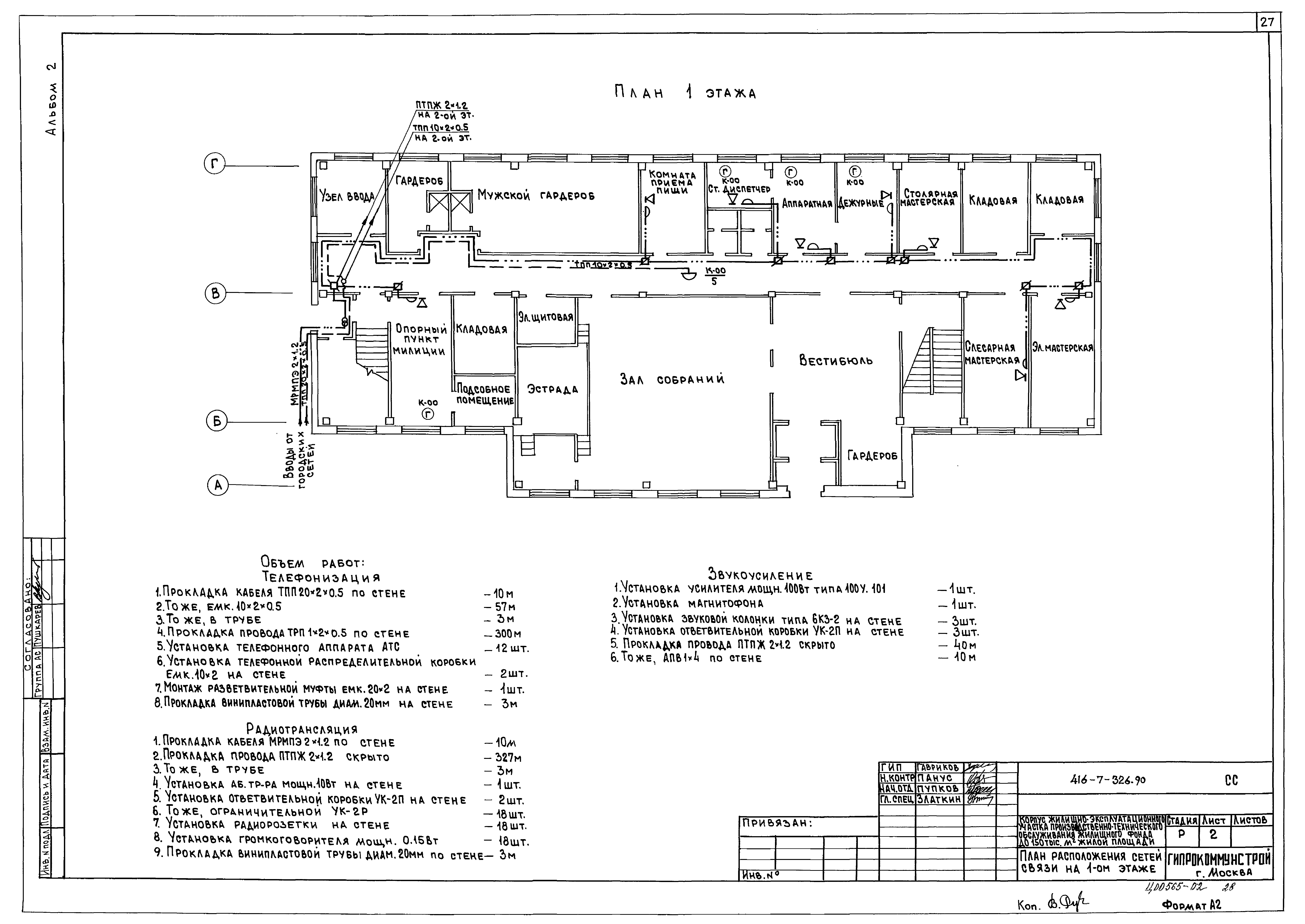
| Оглавление: | Содержание Отопление и вентиляция Общие данные План на отм. 0.000 План на отм. 3.300 Схема системы отопления Схемы систем П1, П2, В1, В2, ВЕ1 - ВЕ5 Схема систем теплоснабжения установок П1, П2. Узел управления Установки систем П1, П2, В1, В2, ВЕ1 Нестандартизированное оборудование Содержание, зонт прямоугольный, переходы к АПР Внутренний водопровод и канализация Общие данные План на отм. 0.000 с сечениями систем В1, Т3, К1, К2 План на отм. 3.300 с сечениями систем В1, Т3, К1, К2 Схемы систем В1, Т3, К1, К2 Силовое электрооборудование Общие данные План расположения 1 этажа. Элемент плана расположения 2 этажа Схема электрическая принципиальная распределительной сети ШР-1 Схема электрическая принципиальная распределительной и питающей сети ШР-2, ВРУ-1 Задание МЭЗ Опросный лист на ВРУ-1-26-66 УХЛ4 Электрическое освещение Общие данные План расположения 1 этажа План расположения 2 этажа Связь и сигнализация Общие данные План расположения сетей связи на 1 этаже План расположения сетей связи на 2 этаже План расположения сети пожарной сигнализации на 1 этаже План расположения сети пожарной сигнализации на 2 этаже Автоматизация санитарно-технических систем Общие данные Приточная система П1(П2). Схема автоматизации Приточная система П1(П2). Схема электрическая принципиальная управления Приточная система П1(П2). Схема электрическая принципиальная регулирования Приточная система П1(П2). Схема соединений внешних проводок Отключение вентсистем при пожаре. Схемы электрическая принципиальная и соединений внешних проводок План расположения Щит автоматизации П1(П2). Эскиз общего вида Щит сигнализации. Эскиз общего вида |
| Разработан: | Гипрокоммунстрой |
| Утверждён: | 24.05.1990 Минжилкомхоз РСФСР (Russian Federation Minzhilkomkhoz 102) |






































