Скачать ГОСТ Р 55401-2013 Материалы рулонные битумно-полимерные для гидроизоляции мостовых сооружений. Метод определения стабильности размеровДата актуализации: 01.01.2021
|
| Обозначение: | ГОСТ Р 55401-2013 |
| Обозначение англ: | GOST R 55401-2013 |
| Статус: | введен впервые |
| Название рус.: | Материалы рулонные битумно-полимерные для гидроизоляции мостовых сооружений. Метод определения стабильности размеров |
| Название англ.: | Reinforced bitumen sheets for waterproofing of bridge decks. Method for determination of dimensional stability |
| Дата добавления в базу: | 01.10.2014 |
| Дата актуализации: | 01.01.2021 |
| Дата введения: | 01.06.2013 |
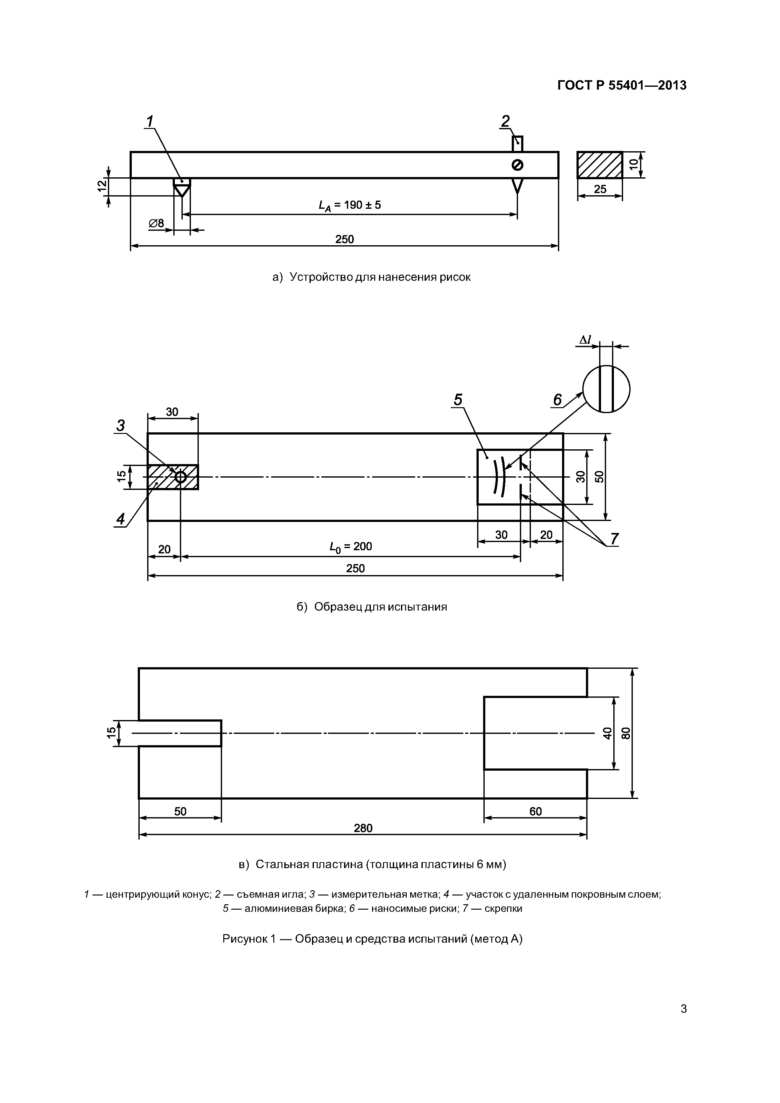
| Область применения: | Стандарт распространяется на рулонные битумно-полимерные материалы, применяемые при гидроизоляции мостовых сооружений, и устанавливает методику измерения стабильности их размеров. |
| Оглавление: | 1 Область применения 2 Нормативные ссылки 3 Термины и определения 4 Требования к средствам измерений, вспомогательным устройствам, материалам 5 Методы измерений 6 Требования безопасности, охраны окружающей среды 7 Требования к условиям измерений 8 Подготовка к выполнению измерений 9 Порядок выполнения измерений 10 Обработка результатов измерений 11 Оформление результатов измерений 12 Контроль точности результатов измерений |
| Разработан: | ООО Инновационный технический центр |
| Утверждён: | 19.03.2013 Федеральное агентство по техническому регулированию и метрологии (18-ст) |
| Издан: | Стандартинформ (2014 г. ) |
| Нормативные ссылки: |
|










