Скачать Типовые проектные решения 407-0-103 Альбом II. ЧертежиДата актуализации: 01.01.2021
|
| Обозначение: | Типовые проектные решения 407-0-103 |
| Обозначение англ: | 407-0-103 |
| Статус: | справочные материалы, мп, тпр |
| Название рус.: | Альбом II. Чертежи |
| Дата добавления в базу: | 01.10.2014 |
| Дата актуализации: | 01.01.2021 |
| Дата окончания срока действия: | 13.08.1971 |
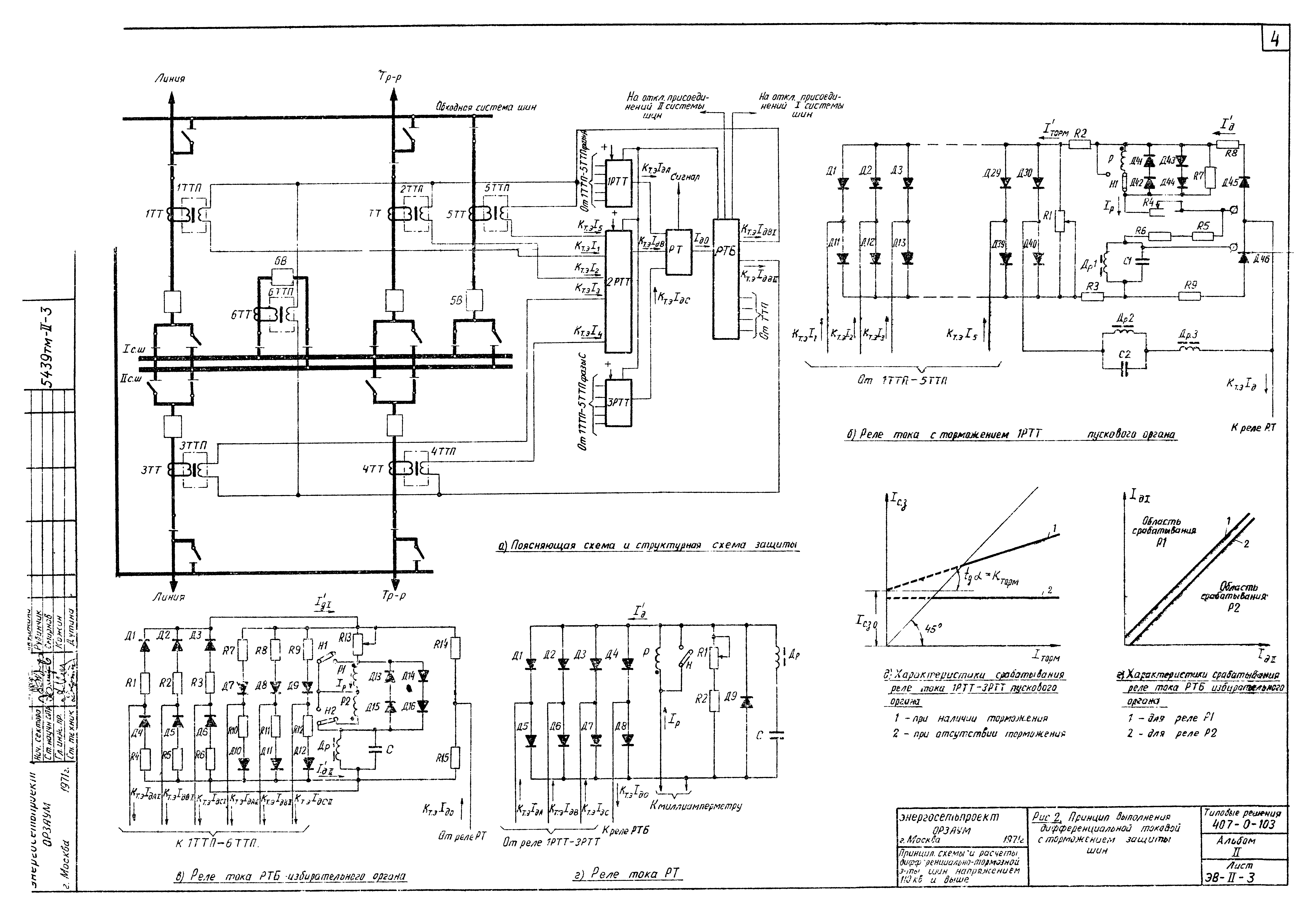
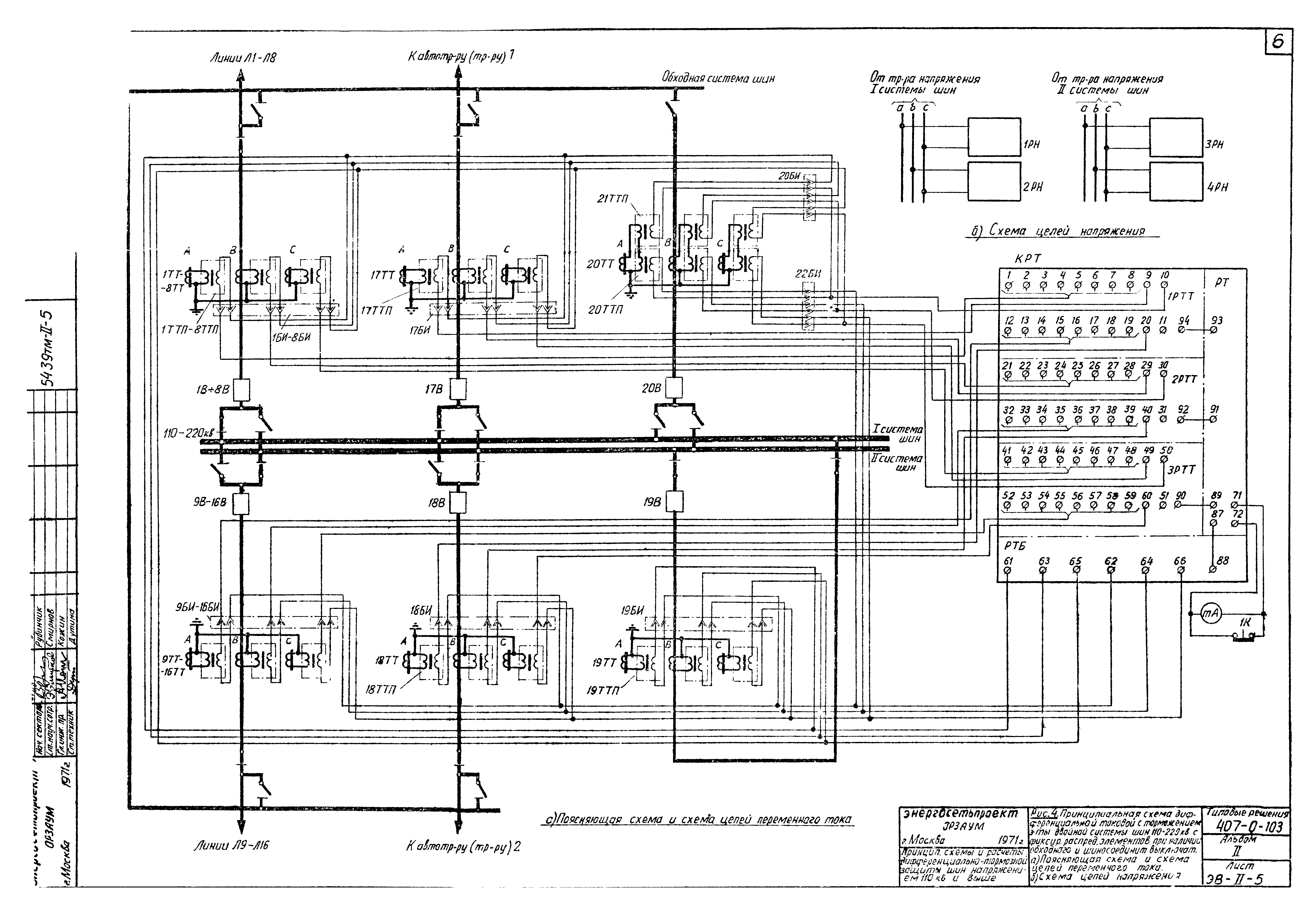
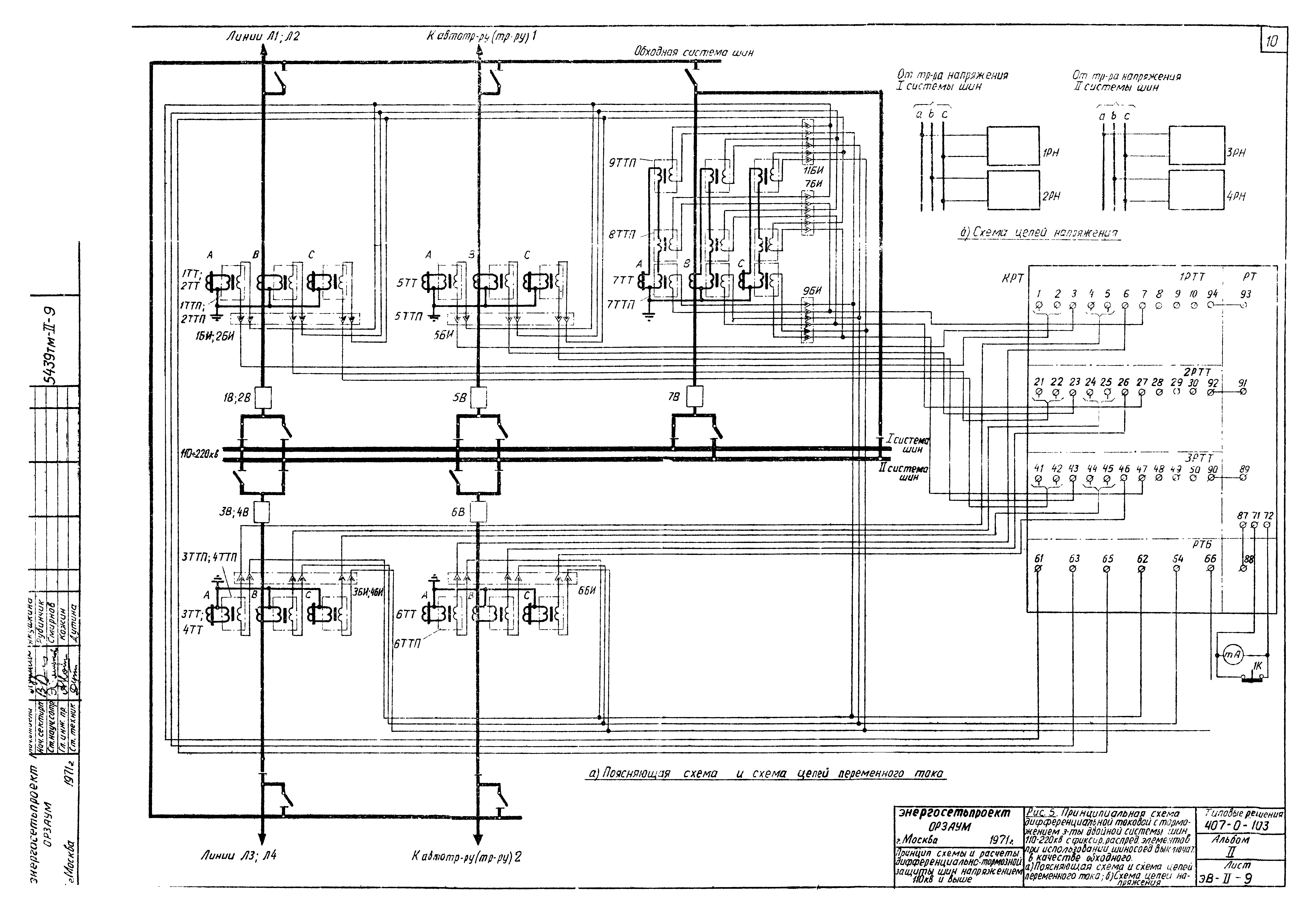
| Оглавление: | Главные схемы электрических соединений шин 110 - 220 кВ Принцип выполнения дифференциальной токовой с торможением защиты шин Схемы комплектов реле КРТ и КРП Принципиальная схема дифференциальной токовой с торможением защиты двойной системы шин 110 - 220 кВ с фиксированным распределением элементов при наличии обходного и шиносоединительного выключателей а) поясняющая схема и схема цепей переменного тока б) схема цепей напряжения в) схема цепей оперативного постоянного тока г) выходные цепи д) цепи повышения чувствительности пускового органа е) схема цепей сигнализации Примечания Перечень элементов Принципиальная схема дифференциальной токовой с торможением защиты двойной системы шин 110 - 220 кВ с фиксированным распределением элементов при использовании шиносоединительного выключателя в качестве обходного а) поясняющая схема и схема цепей переменного тока б) схема цепей напряжения в) схема цепей оперативного постоянного тока и выходные цепи г) схема цепей сигнализации д) цепи повышения чувствительности пускового органа е) варианты схем ж) варианты схем Перечень элементов Примечания К расчету дифференциальной токовой с торможением защиты шин Зависимость отношения расчетного по чувствительности тока короткого замыкания Iкз мин к начальному току срабатывания защиты Iсзо от коэффициента торможения Кторм при коэффициенте чувствительности Кz = 2 |
| Разработан: | Энергосетьпроект Минэнерго СССР |
| Утверждён: | 13.08.1971 Минэнерго СССР (USSR Minenergo 304) |















