Скачать Типовой проект 902-1-171.91 Альбом 5. Подземная часть. Конструкции железобетонные. Конструкции металлические. ИзделияДата актуализации: 01.01.2021
|
| Обозначение: | Типовой проект 902-1-171.91 |
| Обозначение англ: | 902-1-171.91 |
| Статус: | не определен законодательством |
| Название рус.: | Альбом 5. Подземная часть. Конструкции железобетонные. Конструкции металлические. Изделия |
| Дата добавления в базу: | 01.10.2014 |
| Дата актуализации: | 01.01.2021 |
| Дата введения: | 15.05.1991 |
| Дата окончания срока действия: | 30.06.2003 |
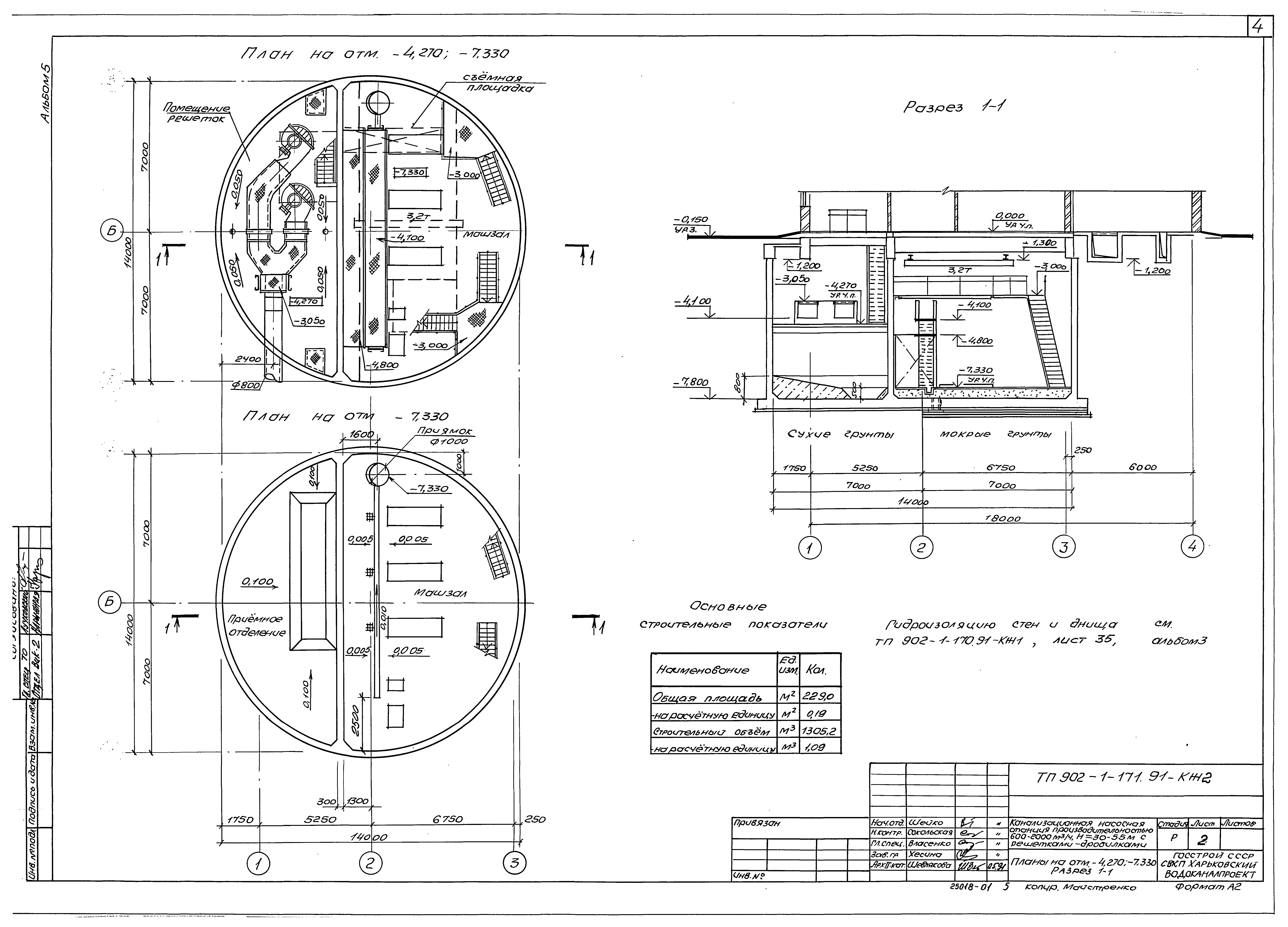
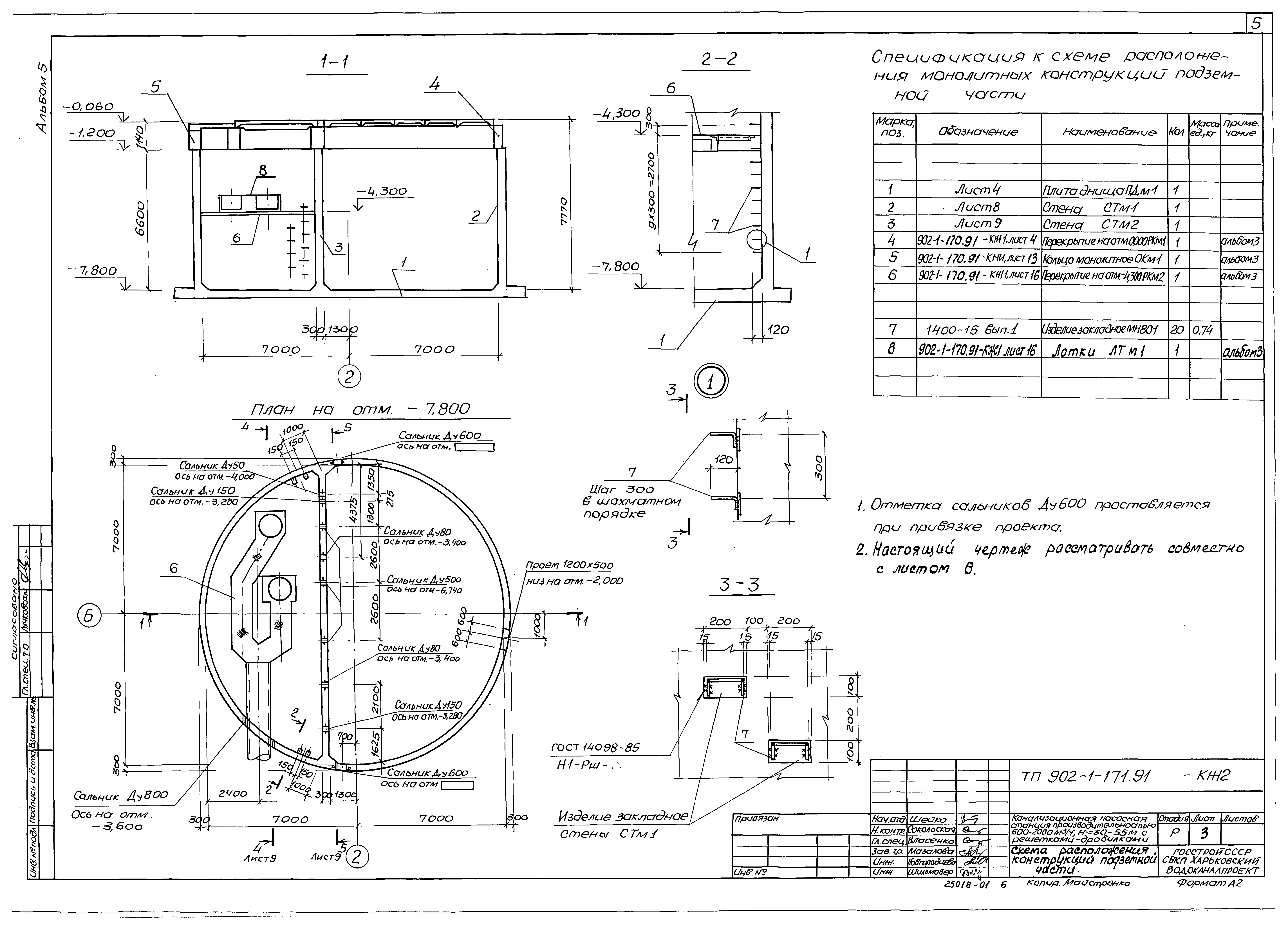
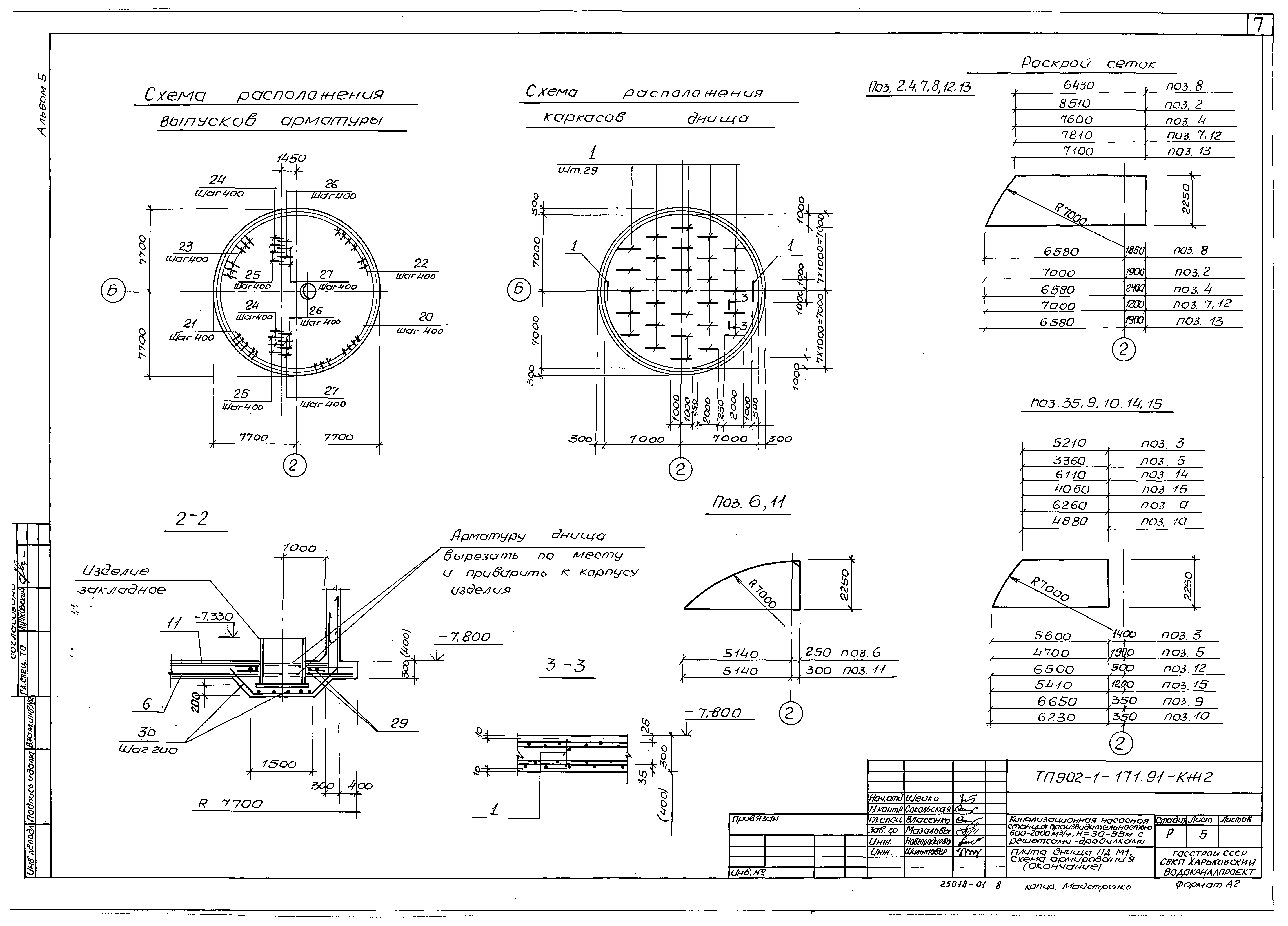
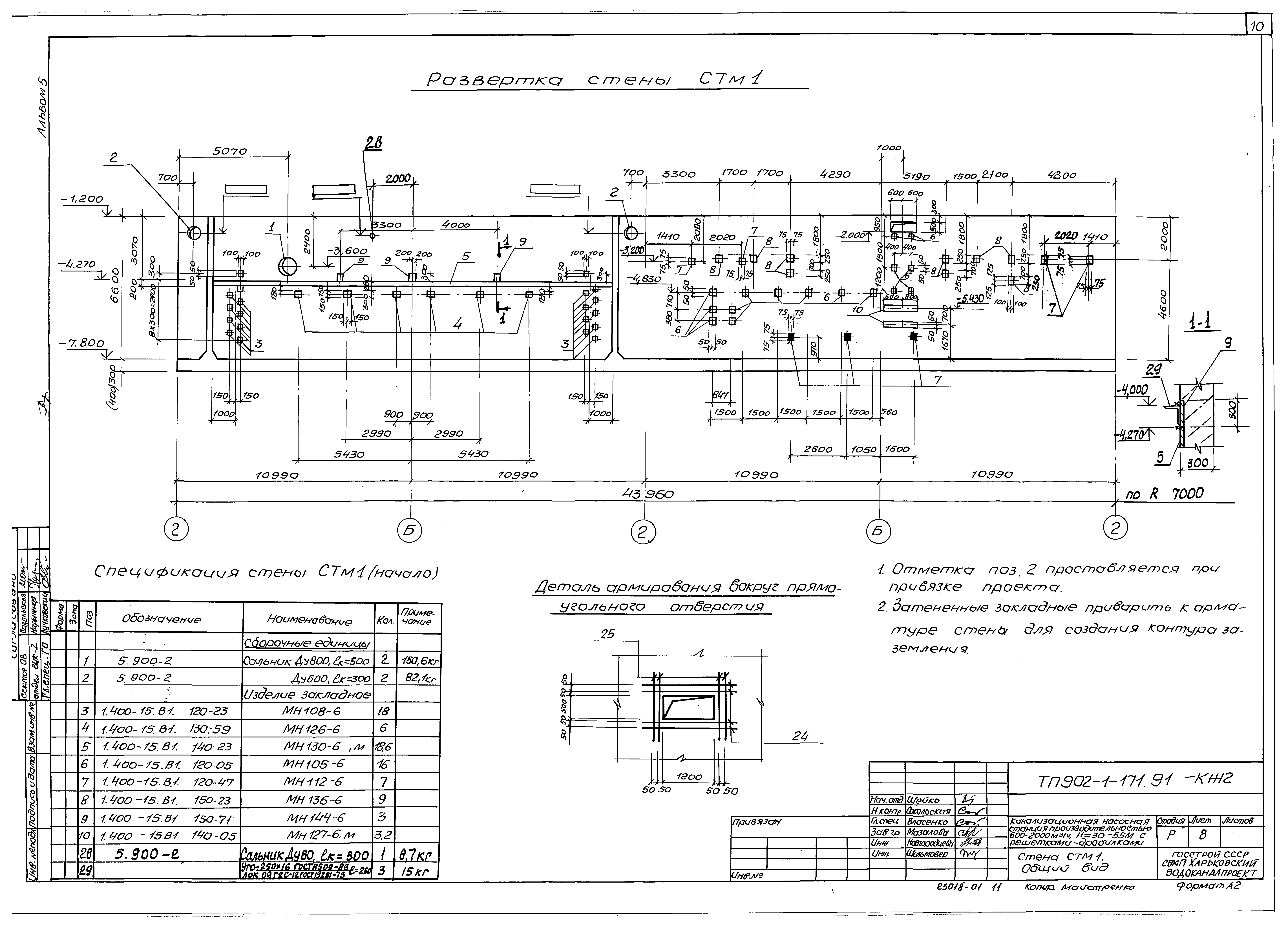
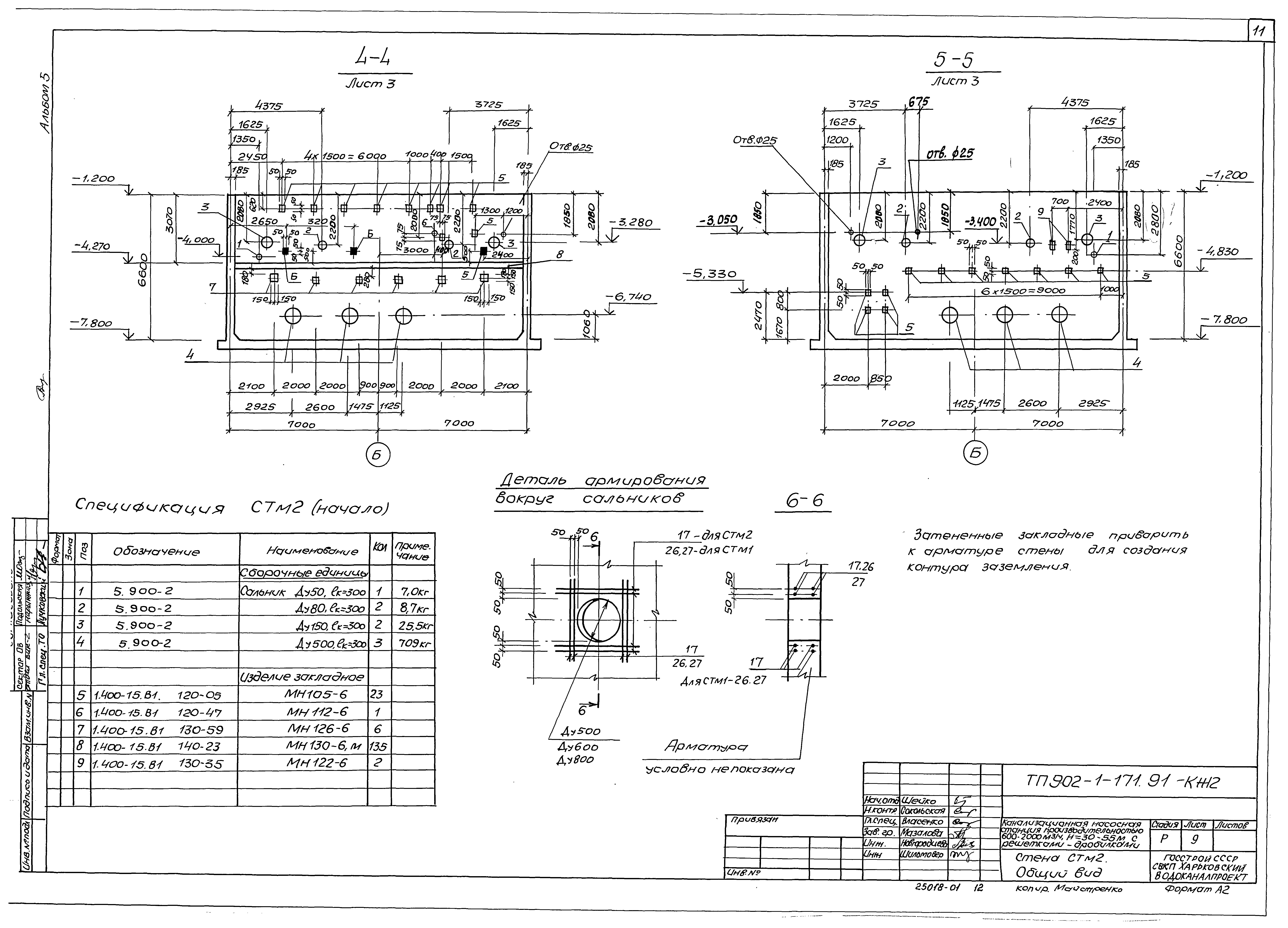
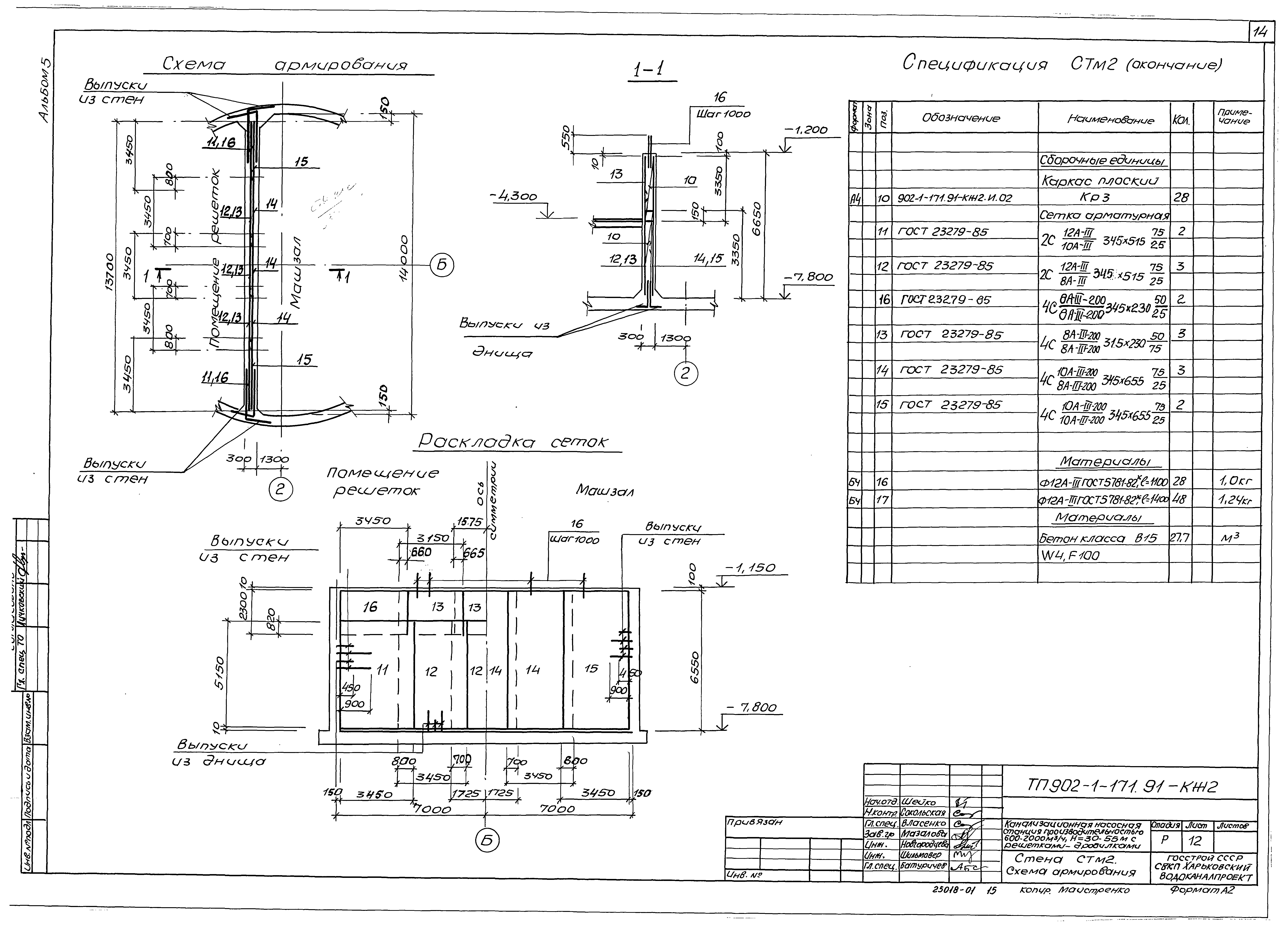
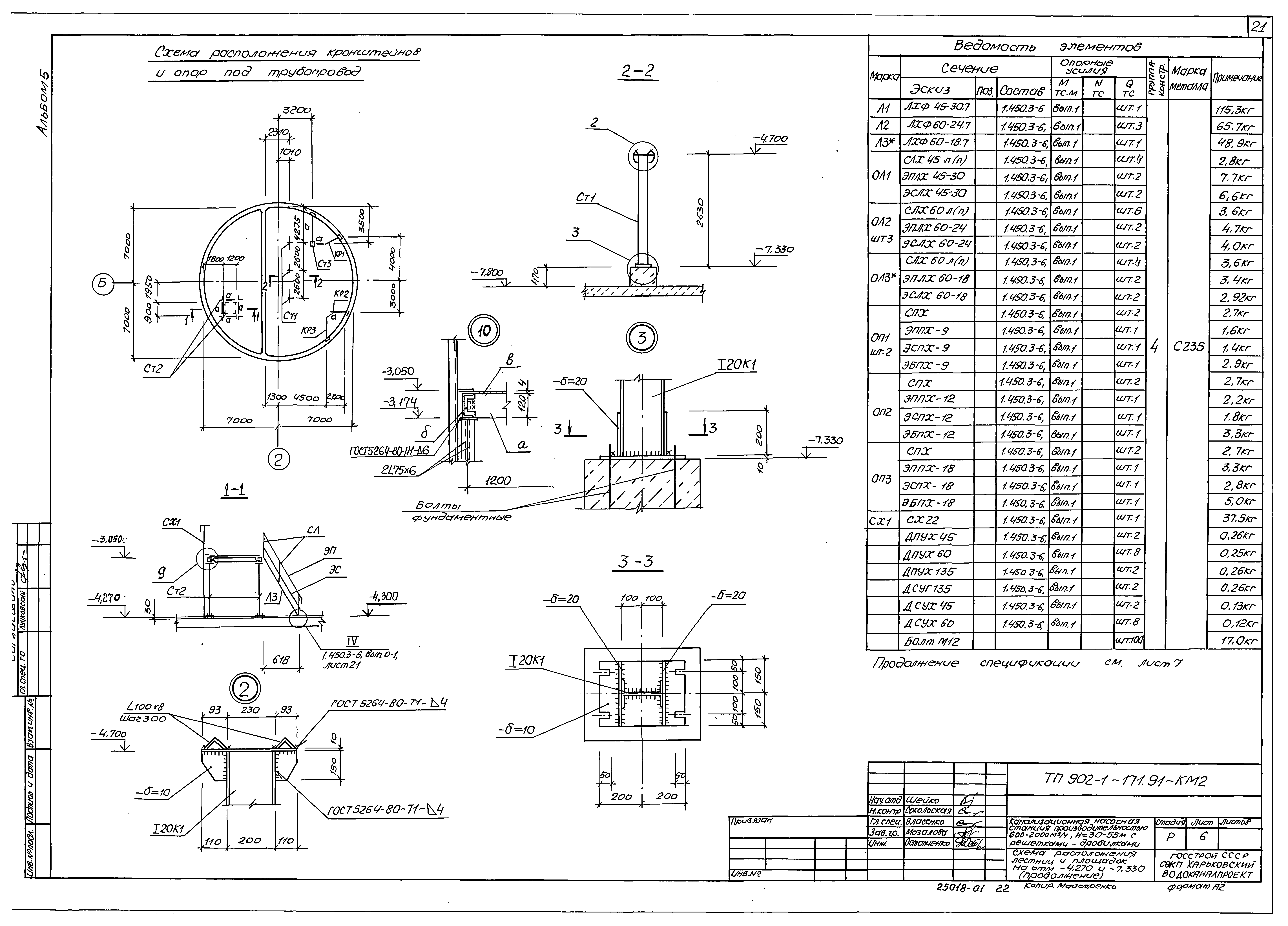
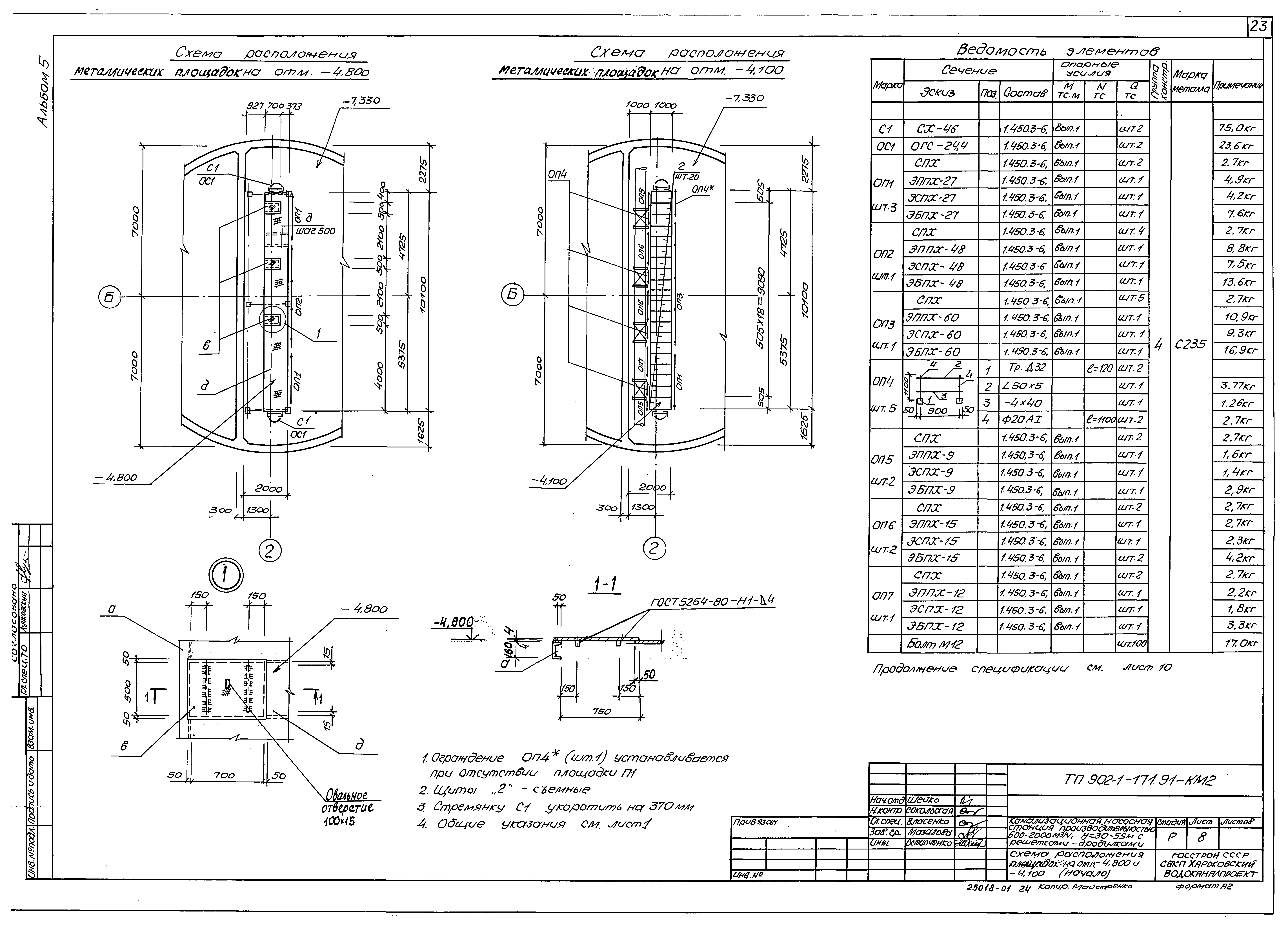
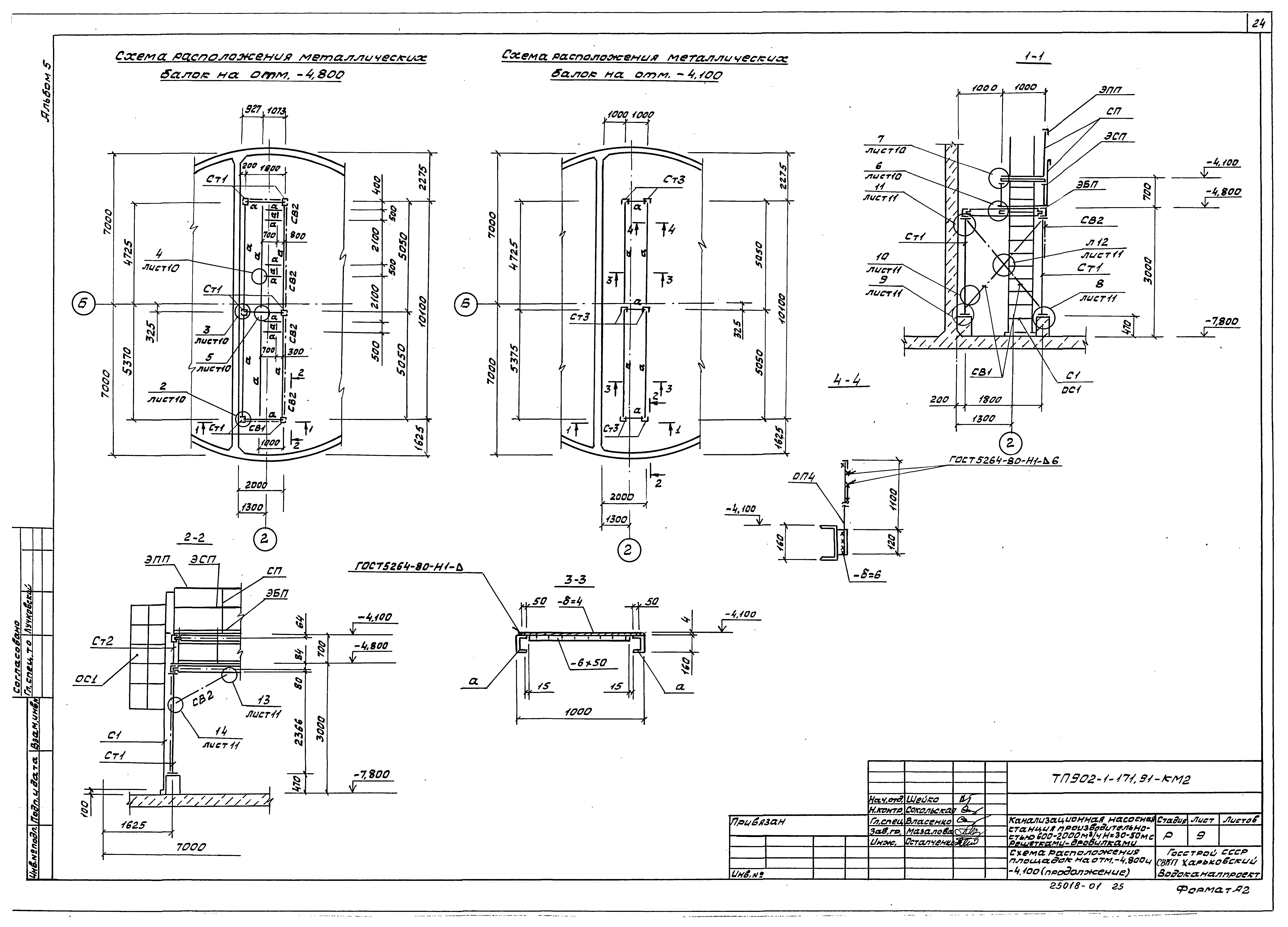
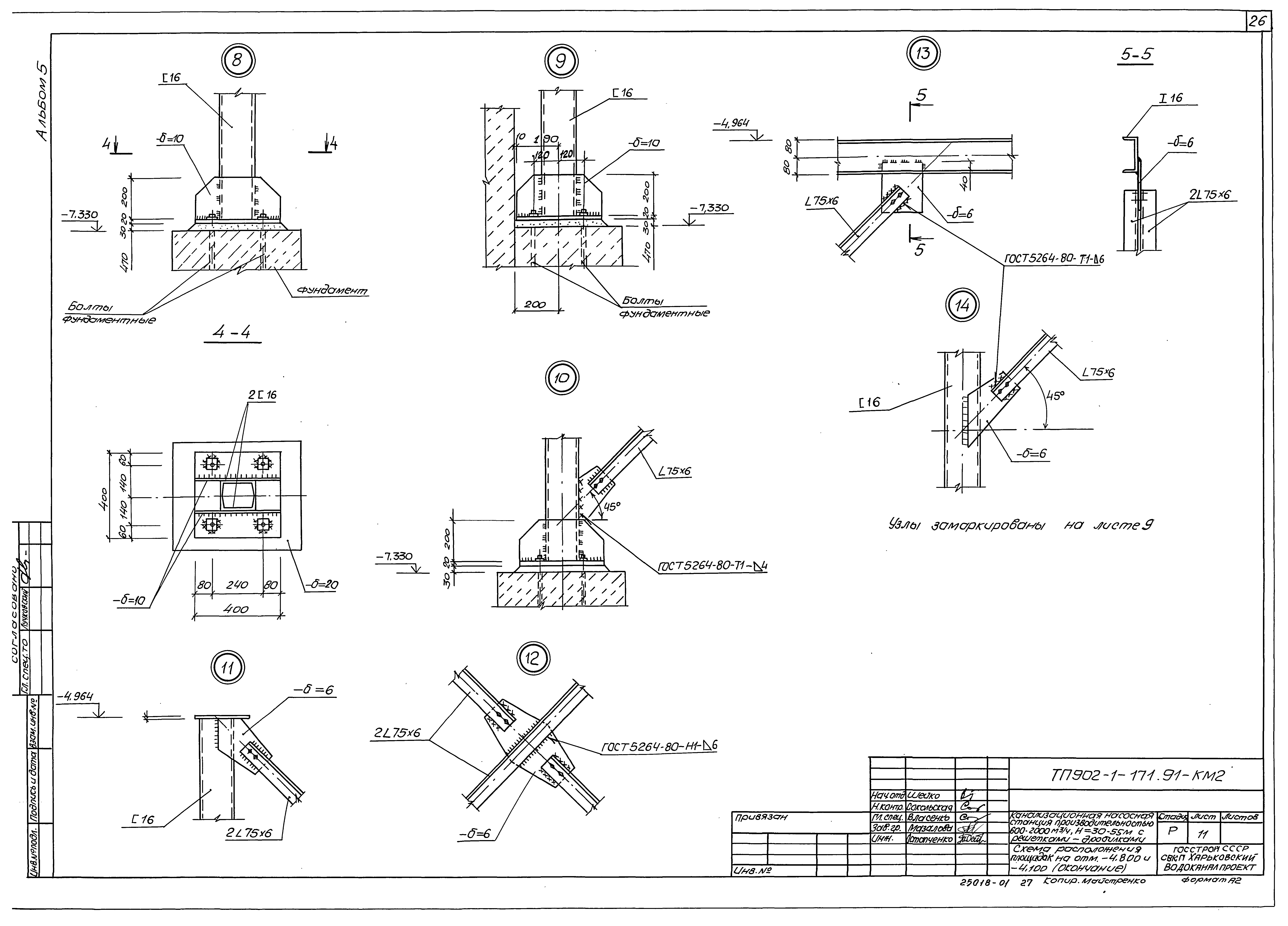
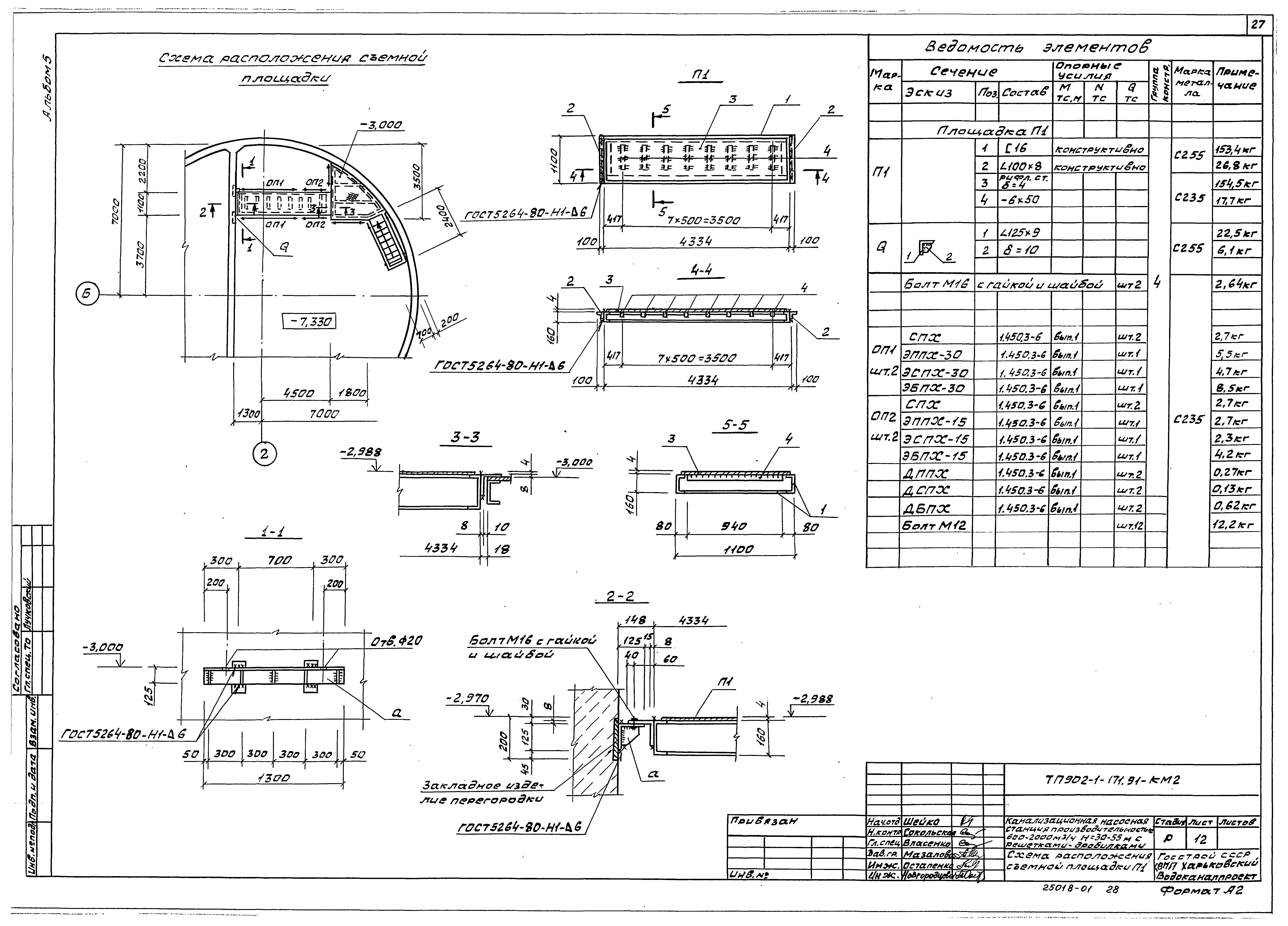
| Оглавление: | Содержание Чертежи основного комплекта марки КЖ2 Общие данные Планы на отм. - 4.270 и - 7.330. Разрез 1-1 Схема расположения конструкций подземной части Плита днища ПДм1. Схема армирования Плита днища ПДм1. Спецификация (сухие грунты) Плита днища ПДм1. Спецификация (мокрые грунты) Стена СТм1. Общий вид Стена СТм2. Общий вид Стена СТм1. Схема армирования Стена СТм2. Схема армирования Стена СТм1 и СТм2. Спецификация Чертежи основного комплекта марки КМ2 Общие данные Схема расположения лестниц и площадок на отм. - 4.270 и - 7.330 Схема расположения площадок на отм. - 4.800 и - 4.100 Схема расположения съемной площадки П1 Чертежи основного комплекта марки КЖ2.И Содержание выпуска Технические требования Каркас КР1, КР2 Каркас КР3 |
| Разработан: | Харьковский Водоканалпроект |
| Утверждён: | 15.05.1991 СоюзводоканалНИИпроект (SoyuzvodokanalNIIproject 9) |
| Заменяет собой: |




























