Скачать Типовой проект 0901-9-10.83 Альбом III. Строительные изделия (из ТП 0901-9-1.83)Дата актуализации: 01.01.2021
|
| Обозначение: | Типовой проект 0901-9-10.83 |
| Обозначение англ: | 0901-9-10.83 |
| Статус: | действует |
| Название рус.: | Альбом III. Строительные изделия (из ТП 0901-9-1.83) |
| Дата добавления в базу: | 01.10.2014 |
| Дата актуализации: | 01.01.2021 |
| Дата введения: | 25.11.1982 |
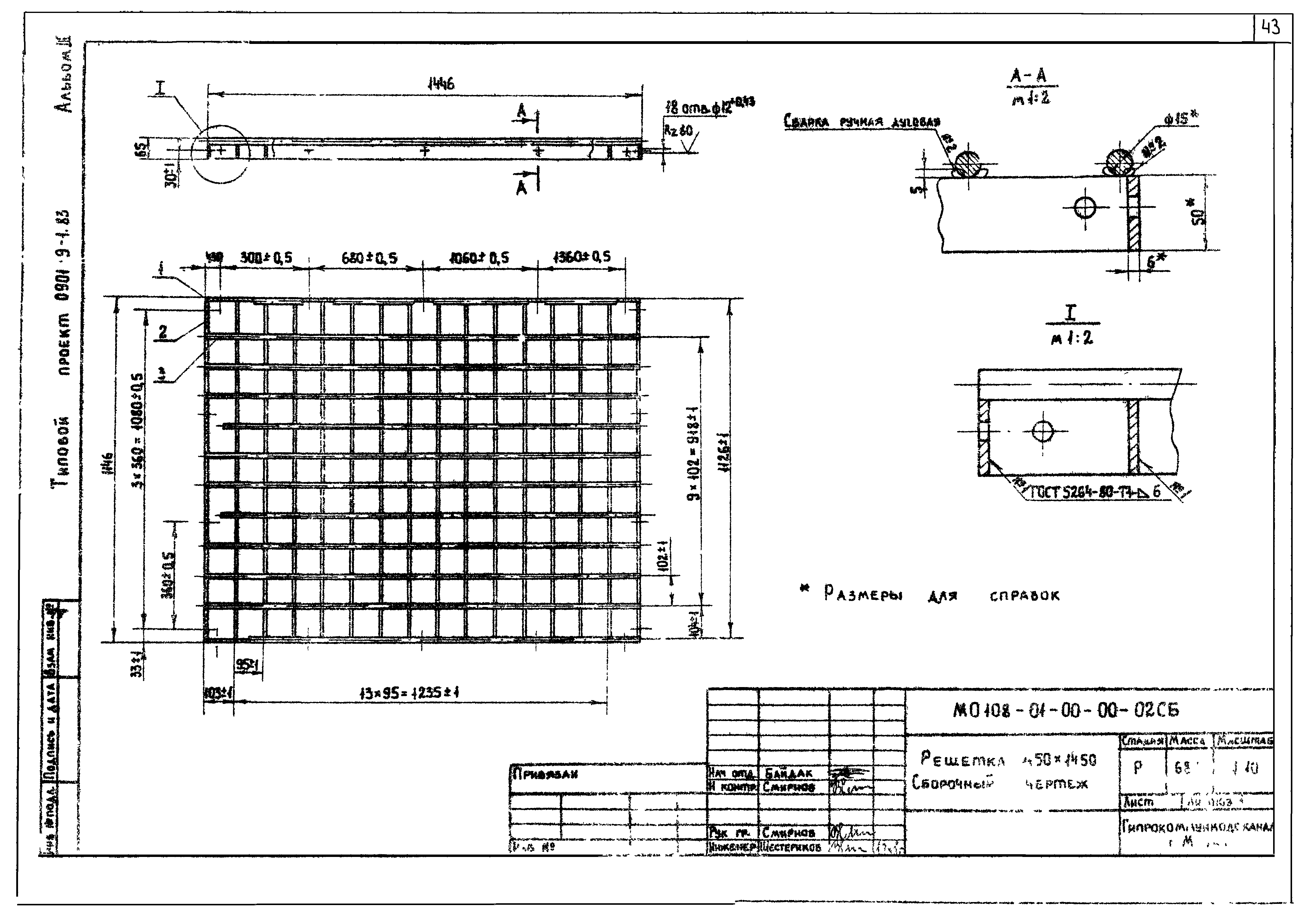
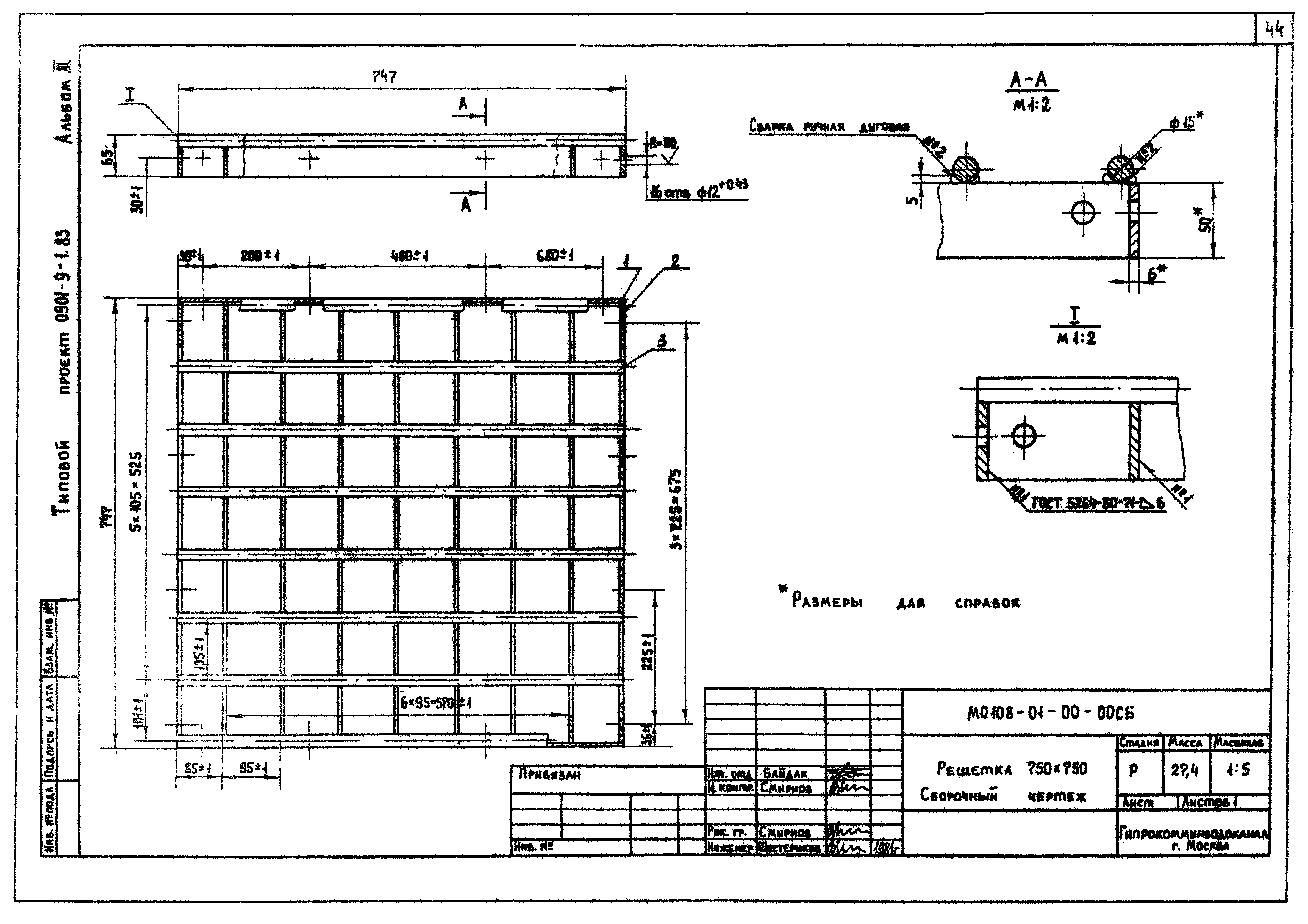
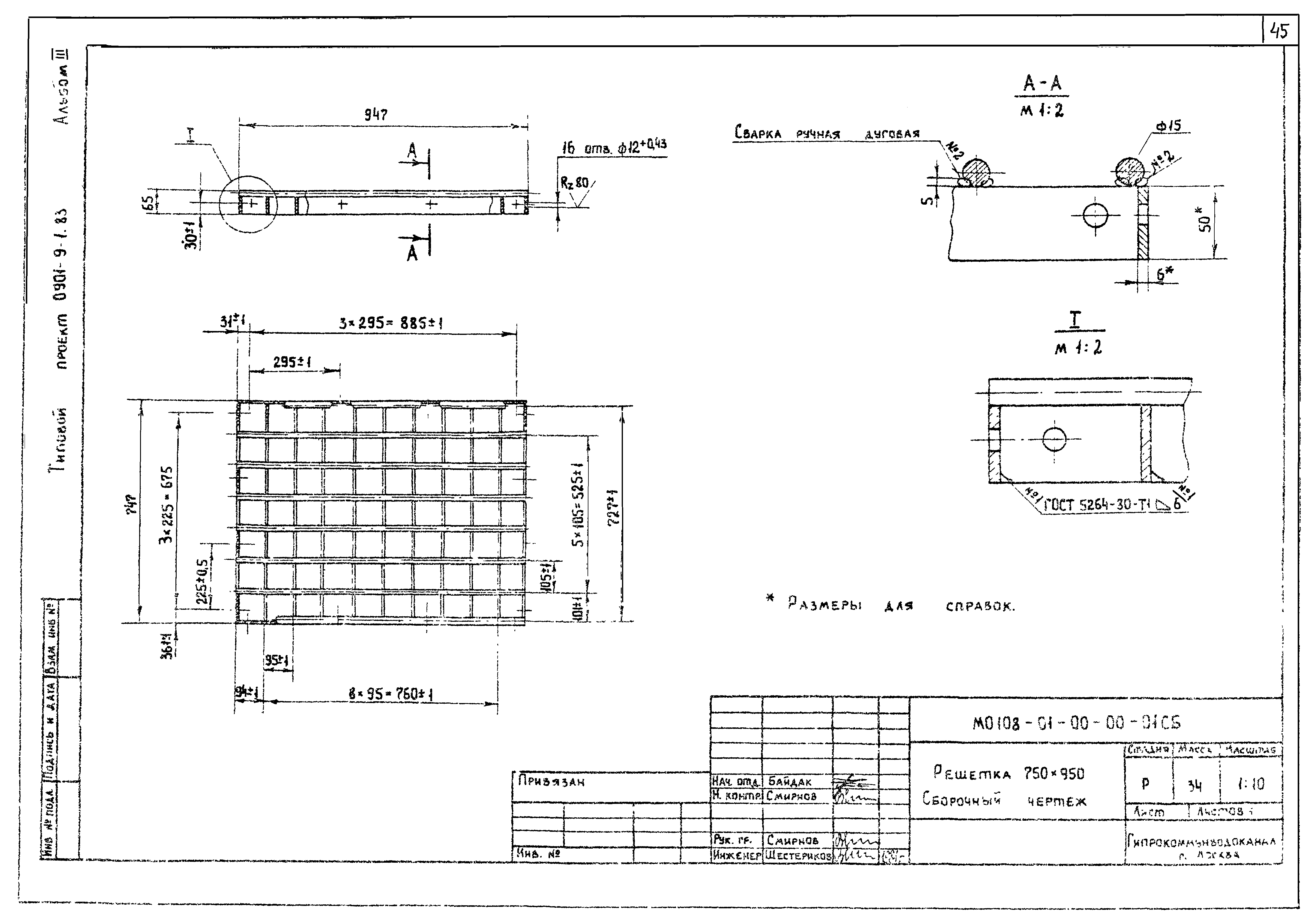
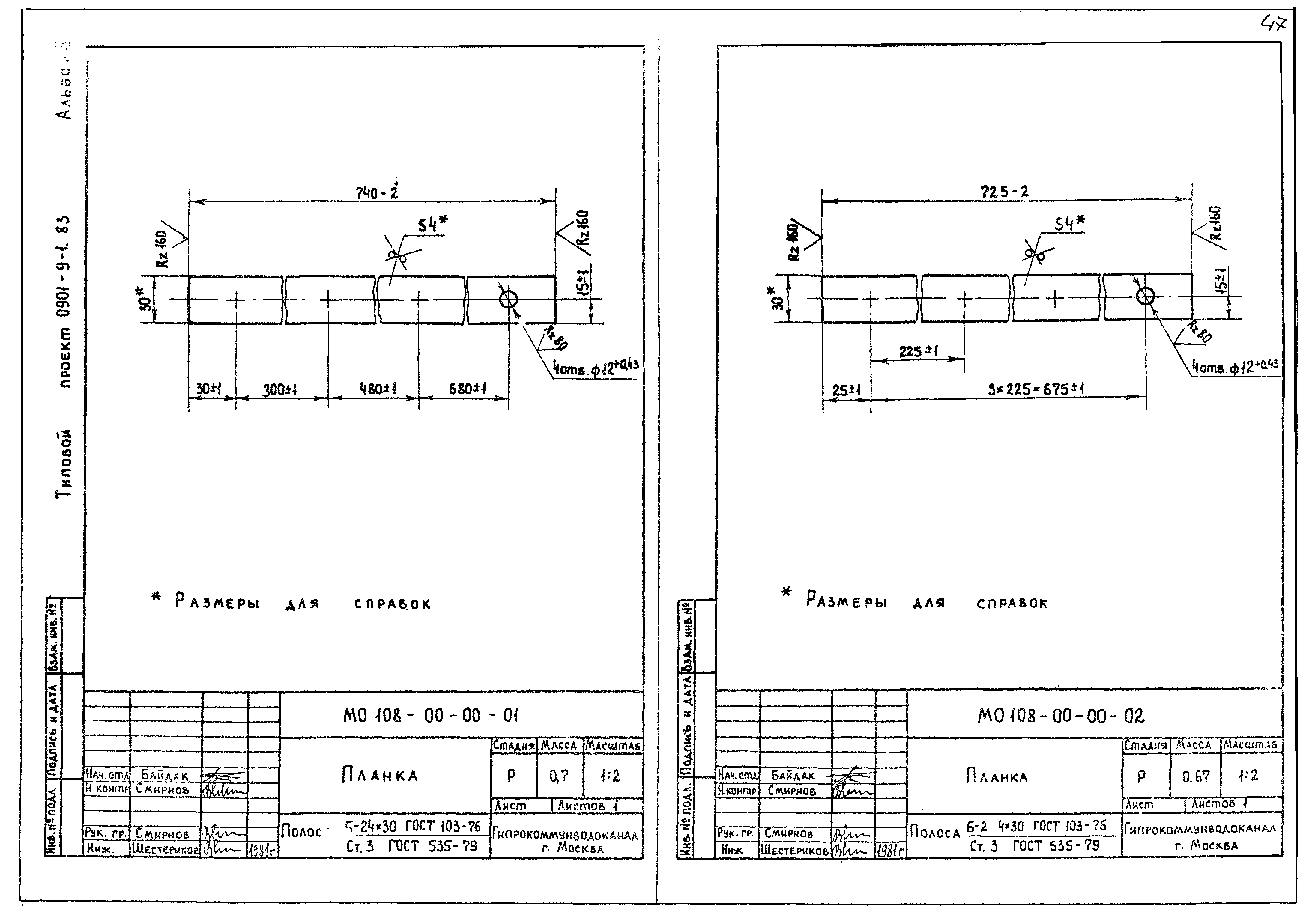
| Оглавление: | Содержание Изделия марки КЖИ 0901-9-1.83 КЖИ 10 Плита ПТО36-11 "А" 0901-9-1.83 КЖИ 20 Плита ПТО36-11 "Б" 0901-9-1.83 КЖИ 30 Плита ПТ36-11 "А" 0901-9-1.83 КЖИ 40 Плита ПТ36-11 "Б" 0901-9-1.83 КЖИ 50 Плита ПТ36-11 "В" 0901-9-1.83 КЖИ 60 Плита ПТ36-11 "Г" 0901-9-1.83 КЖИ 70 Плита ПТ36-11 "Д" 0901-9-1.83 КЖИ 80 Плита ПТ36-11 "Е" 0901-9-1.83 КЖИ 90 Плита ПТ36-11 "Ж" 0901-9-1.83 КЖИ 100 Плита ПТ36Д -12 "А" 0901-9-1.83 КЖИ 110 Плита ПТО42-11 "А" 0901-9-1.83 КЖИ 120 Плита ПТО42 -11 "Б" 0901-9-1.83 КЖИ 130 Плита ПТ42 -11 "А" 0901-9-1.83 КЖИ 140 Плита ПТ42 -11 "Б" 0901-9-1.83 КЖИ 150 Плита ПТ42 -11 "В" 0901-9-1.83 КЖИ 160 Плита ПТ42Д -12 "А" 0901-9-1.83 КЖИ 170 Плита ПТО48-3 "А" 0901-9-1.83 КЖИ 180 Плита ПТО48-3 "Б" 0901-9-1.83 КЖИ 190 Плита ПТ48-3 "А" 0901-9-1.83 КЖИ 200 Плита ПТ48-3 "Б" 0901-9-1.83 КЖИ 210 Изделие закладное МН-2 0901-9-1.83 КЖИ 220 Изделие закладное МН-3 0901-9-1.83 КЖИ 230 Изделие закладное МН-4 0901-9-1.83 КЖИ 240 Изделие закладное МН-5 0901-9-1.83 КЖИ 250 Изделие закладное МН-6 0901-9-1.83 КЖИ 260 Изделие закладное МН-7 0901-9-1.83 КЖИ 270 Изделие закладное МН-8 0901-9-1.83 КЖИ 280 Изделие закладное МН-9 0901-9-1.83 КЖИ 290 Изделие закладное МН-10 0901-9-1.83 КЖИ 300 Изделие закладное МН-11 0901-9-1.83 КЖИ 310 Кольцо стеновое КЦ-2-3"А" 0901-9-1.83 КЖИ 320 Кольцо стеновое КЦ-10-Б"А" 0901-9-1.83 КЖИ 330 Кольцо стеновое КЦ-15-Б"А" 0901-9-1.83 КЖИ 340 Деревянная крышка ДК-1 0901-9-1.83 КЖИ 350 Деревянная крышка ДК-2 0901-9-1.83 КЖИ 360 Деревянная крышка ДК-3 0901-9-1.83 КЖИ 370 Деревянная крышка ДК-4 0901-9-1.83 КЖИ 380 Деревянная крышка ДК-5 0901-9-1.83 КЖИ 390 Деревянная крышка ДК-6 0901-9-1.83 КЖИ 400 Сетка арматурная С-2 0901-9-1.83 КЖИ 410 Решетка Р-1 0901-9-1.83 КЖИ 420 Анкер АI 0901-9-1.83 КЖИ 430 Анкер АII 0901-9-1.83 КЖИ 01 Кольцо 0901-9-1.83 КЖИ 01-01 Кольцо 0901-9-1.83 КЖИ 02 Кольцо 0901-9-1.83 КЖИ 03 Кольцо 0901-9-1.83 КЖИ 03-04 Кольцо 0901-9-1.83 КЖИ 04 Кольцо 0901-9-1.83 КЖИ 10.10 Изделие закладное МН-12 0901-9-1.83 КЖИ 30.20 Изделие закладное МН-13 0901-9-1.83 КЖИ 70.30 Изделие закладное МН-14 0901-9-1.83 КЖИ 100.40 Изделие закладное МН-15 0901-9-1.83 КЖИ 440 Плита ПТО 36-11"В" Изделия марки МО МО 107-00-00-00 Решетка МО 107-00-00-00-СБ Решетка. Сборочный чертеж МО 107-00-00-00-СБ Решетка ф 610. Сборочный чертеж МО 107-01-00-00-СБ Решетка ф 910. Сборочный чертеж МО 107-00-00-01 Хомут МО 107-01-00-00-02 Решетка ф 1410 МО 107-01-00-00-02СБ Решетка ф 1410. Сборочный чертеж МО 108-00-00-00 Решетка МО 108-00-00-00-СБ Решетка. Сборочный чертеж МО 108-01-00-00-02 Решетка 1150*1450 МО 108-01-00-00-02СБ Решетка 1150*1450. Сборочный чертеж МО 108-01-00-00СБ Решетка 750*750. Сборочный чертеж МО 108-01-00-01СБ Решетка 750*950. Сборочный чертеж МО 108-01-00-00-01 Решетка 750*750 МО 108-01-00-00-01 Решетка 750*950 МО 108-00-00-01 Планка МО 108-00-00-00-02 Планка МО 108-00-00-01-01 Планка МО 108-00-00-02-01 Планка МО 108-00-00-01-02 Планка МО 108-00-00-02-02 Планка |
| Разработан: | Гипрокоммунводоканал Минжилкомхоза РСФСР |
| Утверждён: | 02.11.1982 Минжилкомхоз РСФСР (Russian Federation Minzhilkomkhoz 18-ТД) |















































