Скачать Типовой проект 903-1-178 Альбом IV. Архитектурно-строительные решенияДата актуализации: 01.01.2021
|
| Обозначение: | Типовой проект 903-1-178 |
| Обозначение англ: | 903-1-178 |
| Статус: | заменен |
| Название рус.: | Альбом IV. Архитектурно-строительные решения |
| Дата добавления в базу: | 01.10.2014 |
| Дата актуализации: | 01.01.2021 |
| Дата введения: | 09.01.1980 |
| Дата окончания срока действия: | 01.11.1987 |
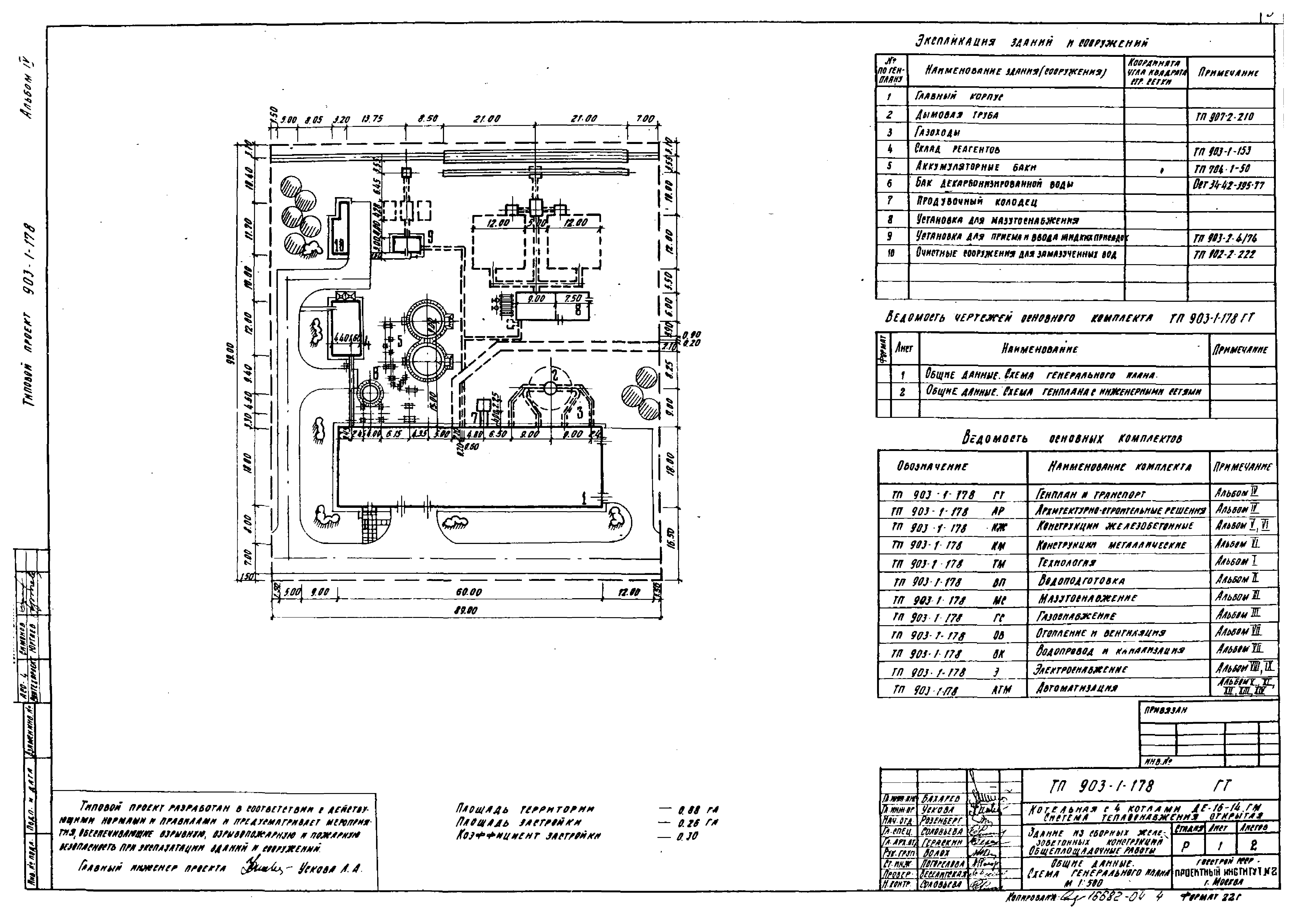
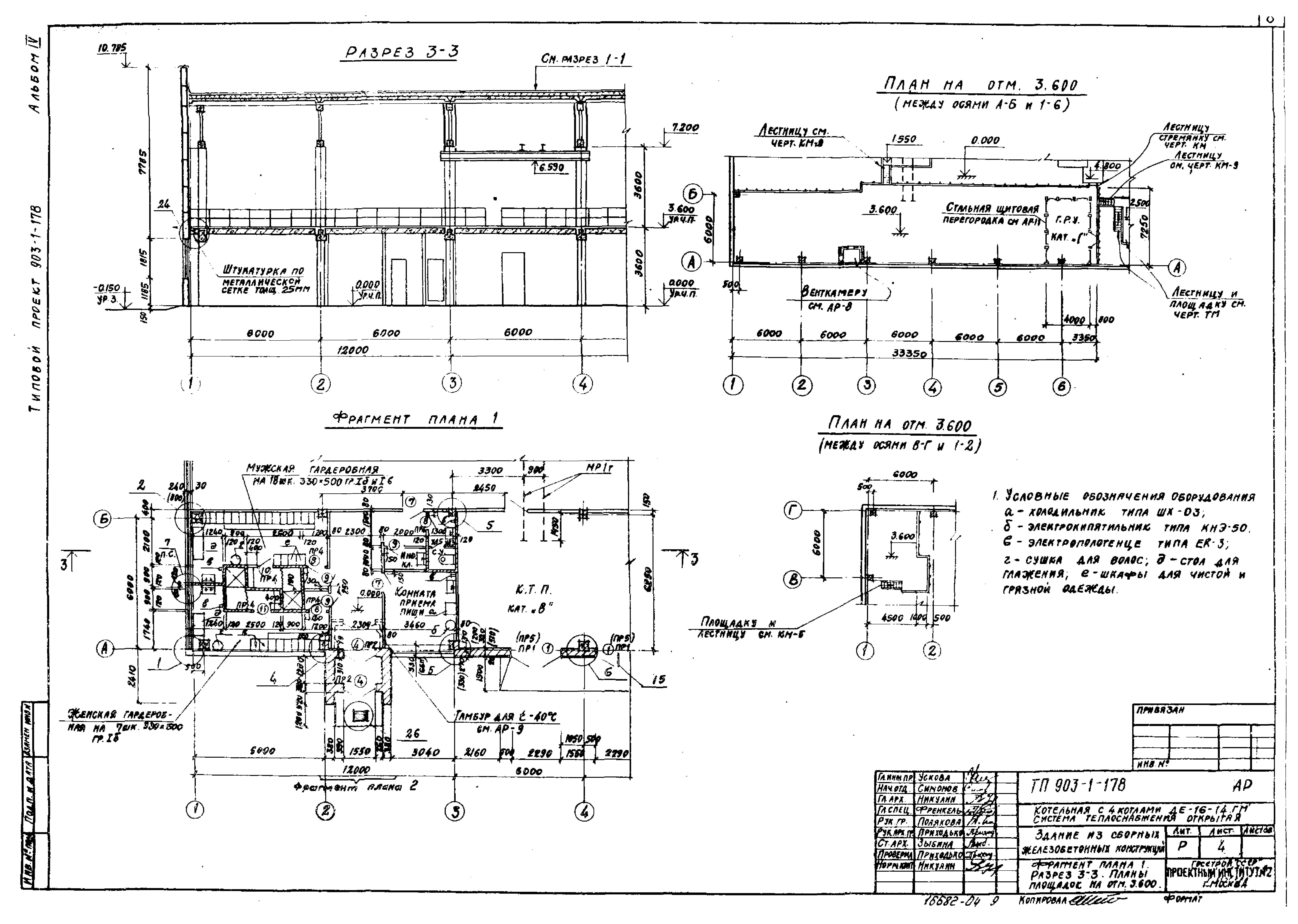
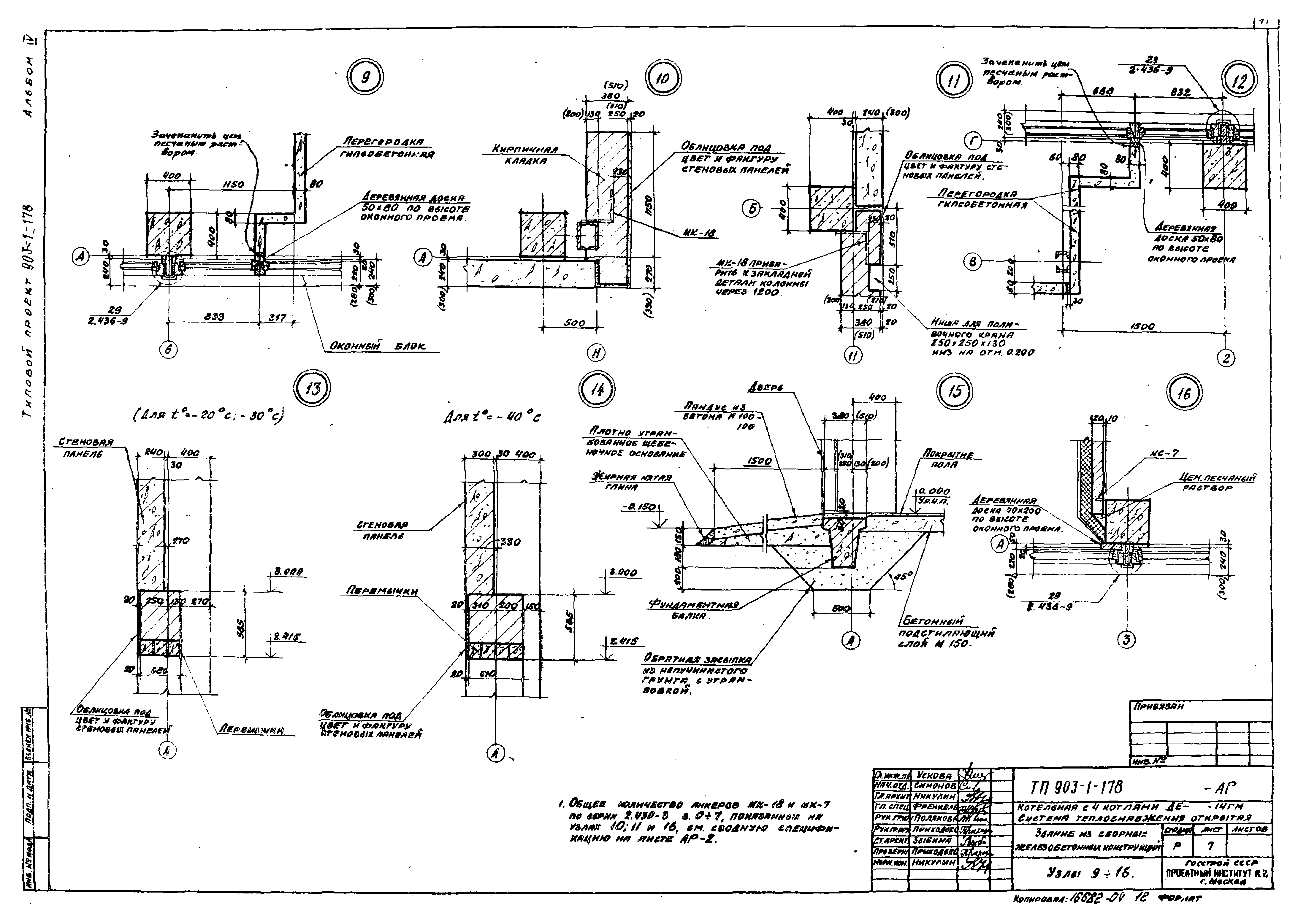
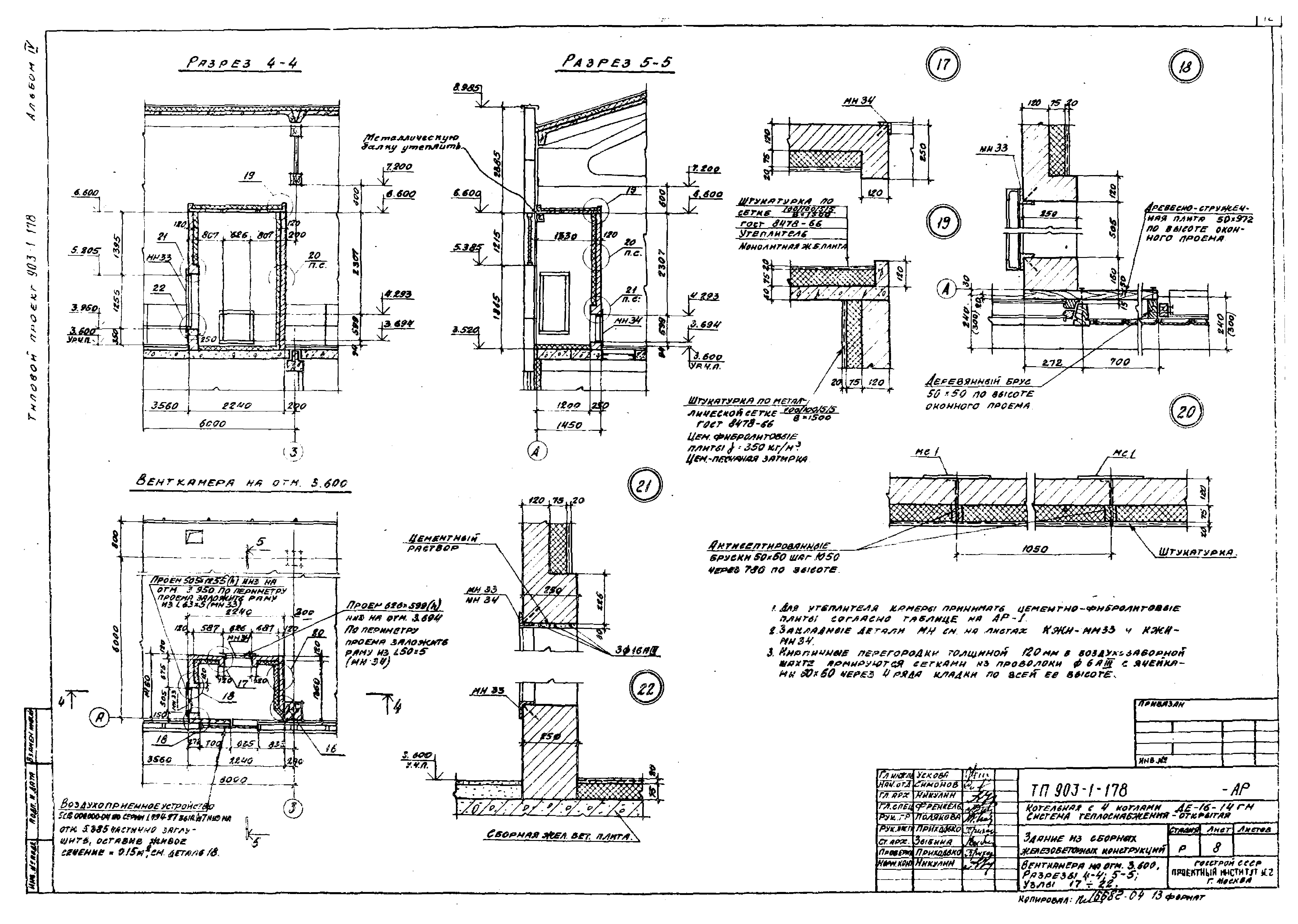
| Оглавление: | Содержание альбома Генеральный план и транспорт Общие данные. Схема генерального плана Общие данные. Схема генплана с инженерными сетями Архитектурно-строительные решения Общие данные План на отм. 0.000. Разрезы 1-1, 2-2 Фрагмент плана 1. Разрез 3-3. Планы площадок на отм. 3.600 Фасады. Схемы заполнения оконных проемов Узлы 1 - 8 Узлы 9 - 16 Венткамера на отм. 3.600. Разрезы 4-4, 5-5. Узлы 17 - 22 Фрагмент плана 2 (для t = минус 40 градусов Цельсия). Разрезы 6-6 и 7-7. Фрагмент фасада 1. Узлы 23 - 26 Маркировочные схемы перегородок с отверстиями в них, в стенах и оконных блоках на отм. 5.500 Маркировочная схема сетчатой перегородки. План кровли, планы и экспликация полов |
| Разработан: | ЦНИИпроектстальконструкция Проектный институт №2 Сантехпроект |
| Утверждён: | 09.01.1980 Сантехниипроект (4) |
| Чем заменён: |














