Скачать Типовой проект 903-1-178 Альбом XVI. Задание заводу-изготовителю на щиты силовые управления, щиты автоматизацииДата актуализации: 01.01.2021
|
| Обозначение: | Типовой проект 903-1-178 |
| Обозначение англ: | 903-1-178 |
| Статус: | заменен |
| Название рус.: | Альбом XVI. Задание заводу-изготовителю на щиты силовые управления, щиты автоматизации |
| Дата добавления в базу: | 01.10.2014 |
| Дата актуализации: | 01.01.2021 |
| Дата введения: | 09.01.1980 |
| Дата окончания срока действия: | 01.11.1987 |
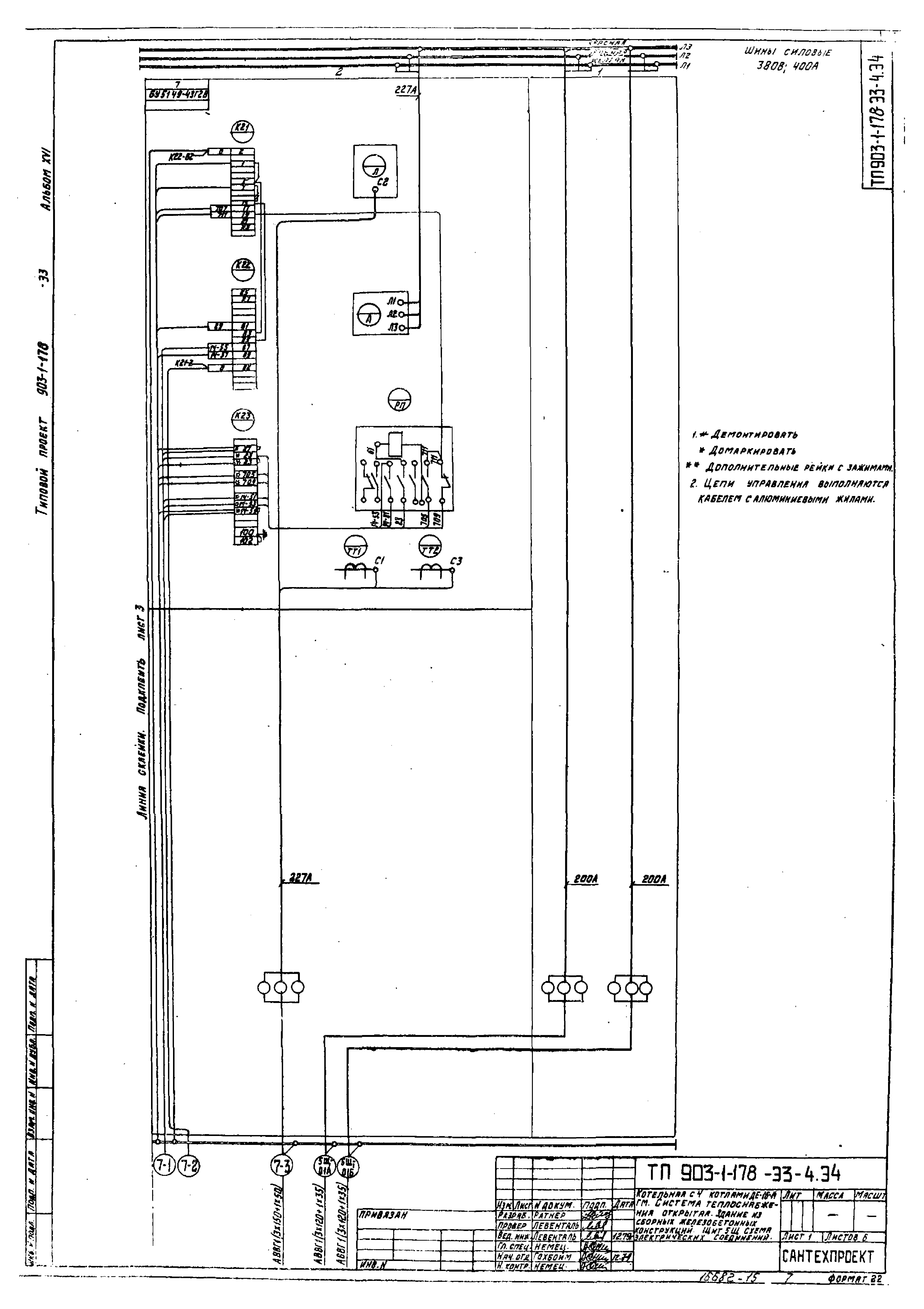
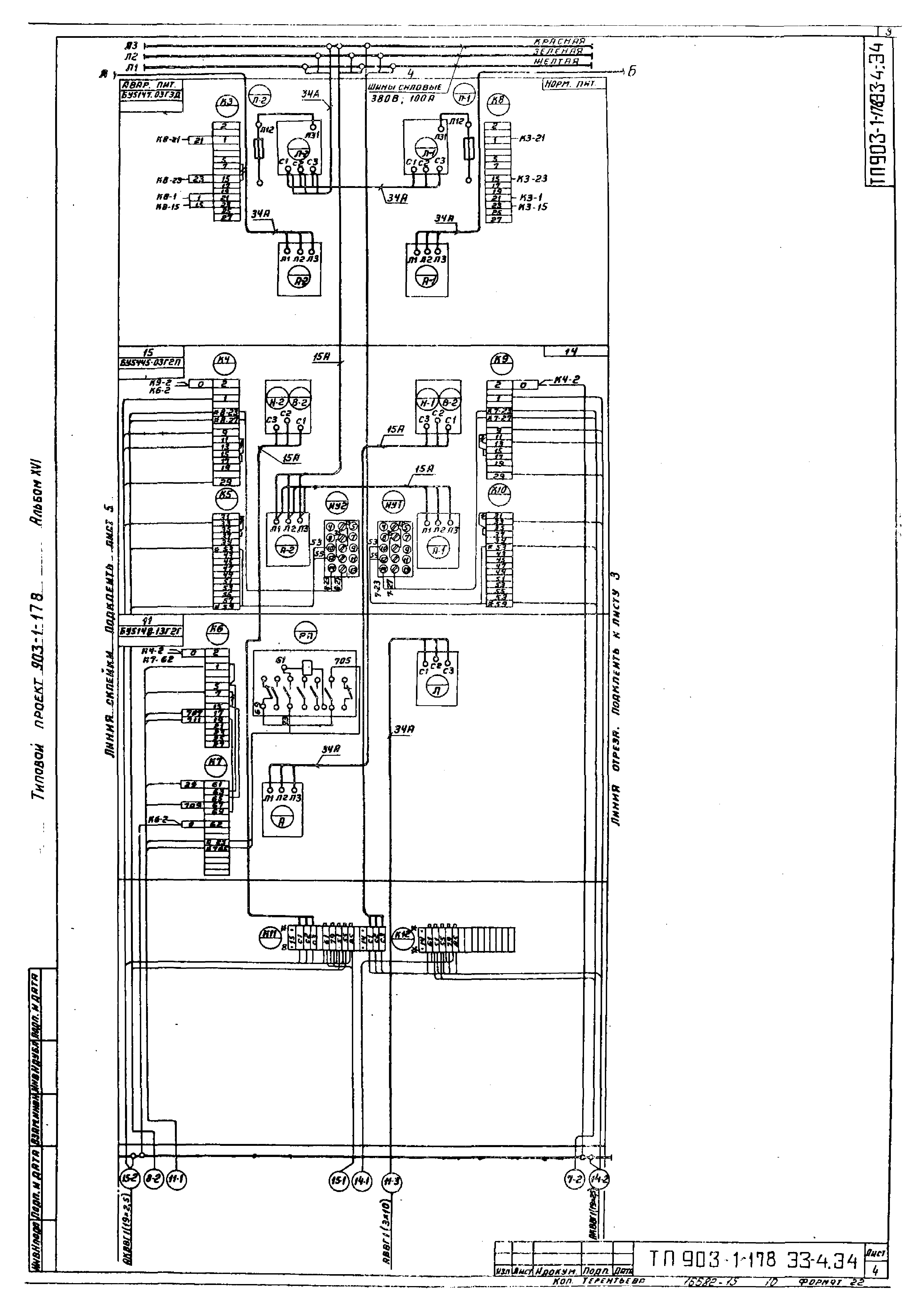
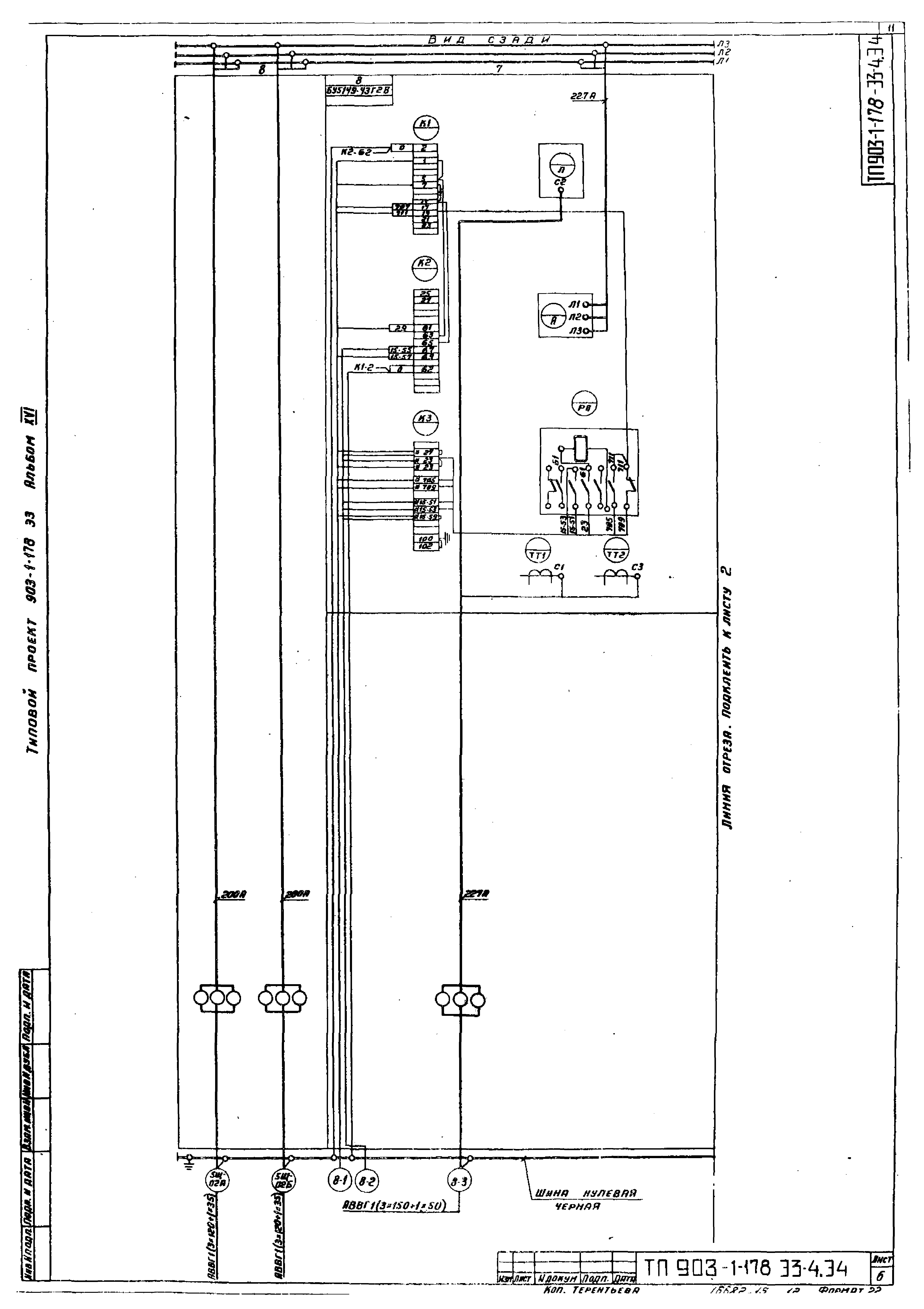
| Оглавление: | Щиты силовые управления. Задание заводу-изготовителю. Общие данные Перечень комплектных устройств Щит 1ПЩ (2ПЩ, 3ПЩ, 4ПЩ). Технические данные аппаратов Щит 1ПЩ (2ПЩ, 3ПЩ, 4ПЩ). Общий вид Щит 1ПЩ (2ПЩ, 3ПЩ, 4ПЩ). Таблица перечня надписей Щит 1ПЩ (2ПЩ, 3ПЩ, 4ПЩ). Схема электрических соединений Щит 5Щ. Технические данные аппаратов Щит 5Щ. Общий вид Щит 5Щ. Таблица перечня надписей Щит 5Щ. Схема электрических соединений Щит 6Щ(7Щ). Технические данные аппаратов Щит 6Щ(7Щ). Общий вид Щит 6Щ(7Щ). Таблица перечня надписей Щит 6Щ(7Щ). Схема электрических соединений |
| Разработан: | ЦНИИпроектстальконструкция Проектный институт №2 Сантехпроект |
| Утверждён: | 09.01.1980 Сантехниипроект (4) |
| Чем заменён: |












