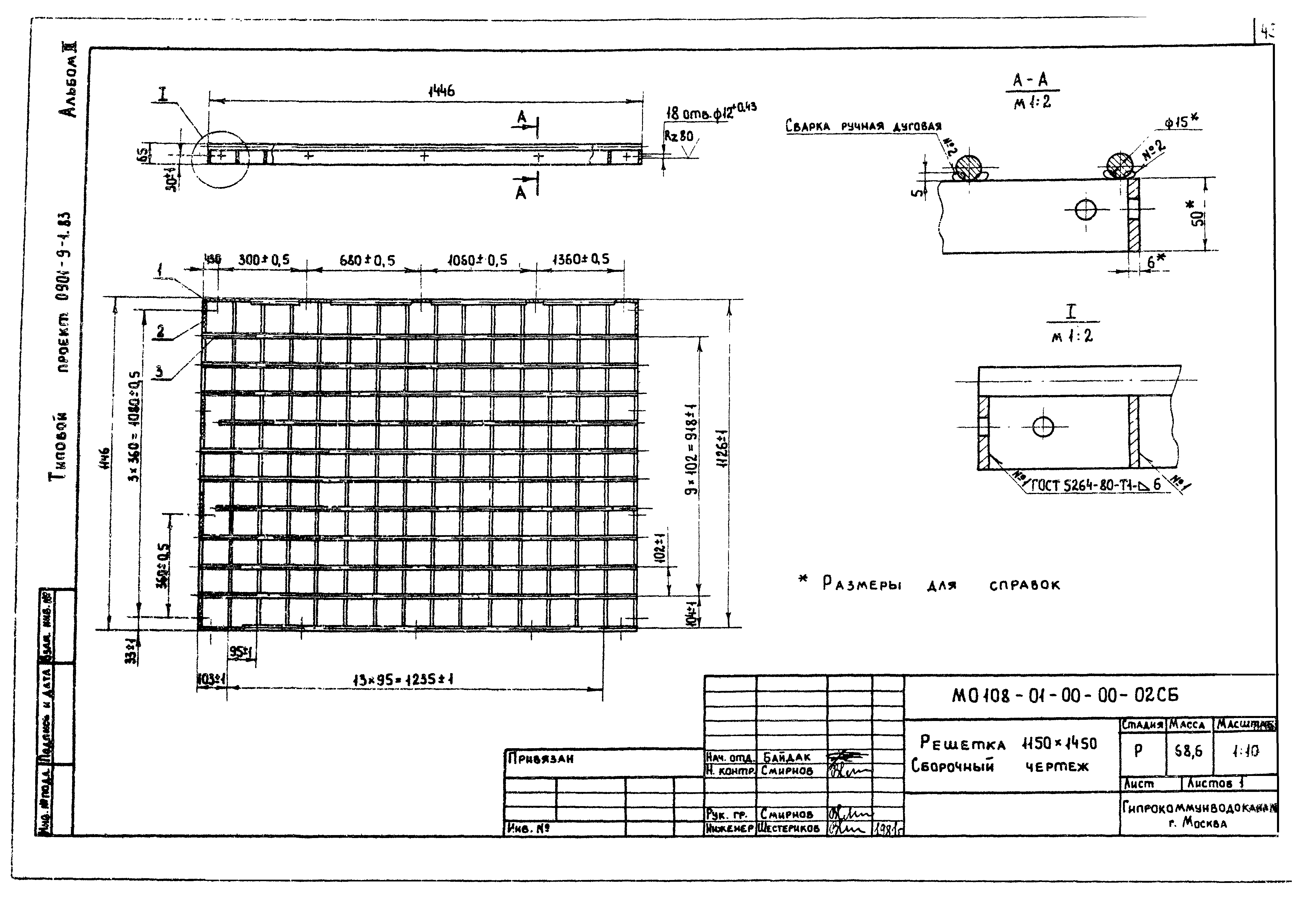
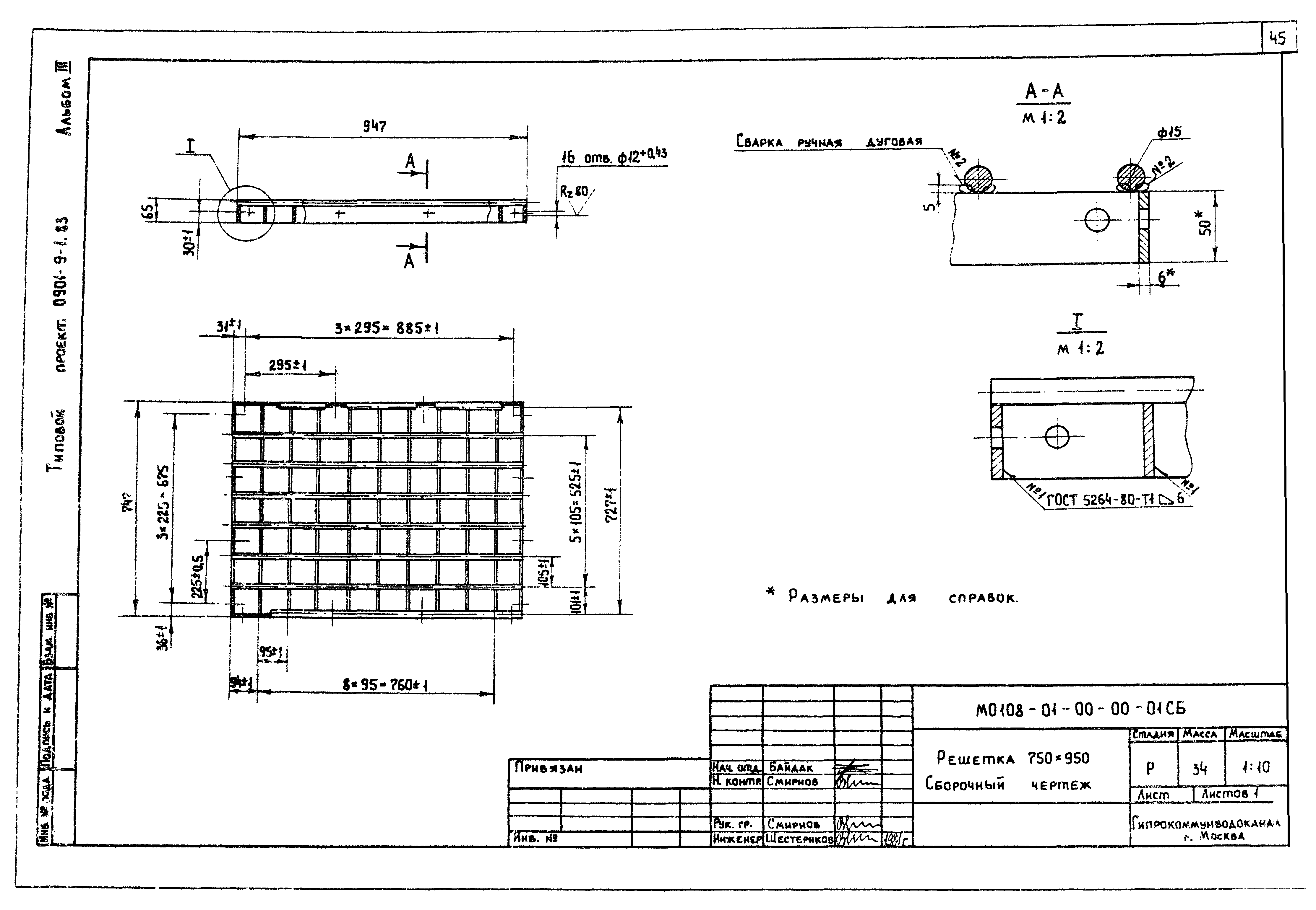
Скачать Типовой проект 0901-9-7.83 Альбом III. Строительные изделия (из ТП 0901-9-1.83)Дата актуализации: 01.01.2021 Типовой проект 0901-9-7.83
Альбом III. Строительные изделия (из ТП 0901-9-1.83)| Обозначение: | Типовой проект 0901-9-7.83 | | Обозначение англ: | 0901-9-7.83 | | Статус: | действует | | Название рус.: | Альбом III. Строительные изделия (из ТП 0901-9-1.83) | | Дата добавления в базу: | 01.10.2014 | | Дата актуализации: | 01.01.2021 | | Дата введения: | 25.11.1982 | | Разработан: | Гипрокоммунводоканал Минжилкомхоза РСФСР
| | Утверждён: | 02.11.1982 Минжилкомхоз РСФСР (Russian Federation Minzhilkomkhoz 18-ТД)
|
                                                
|