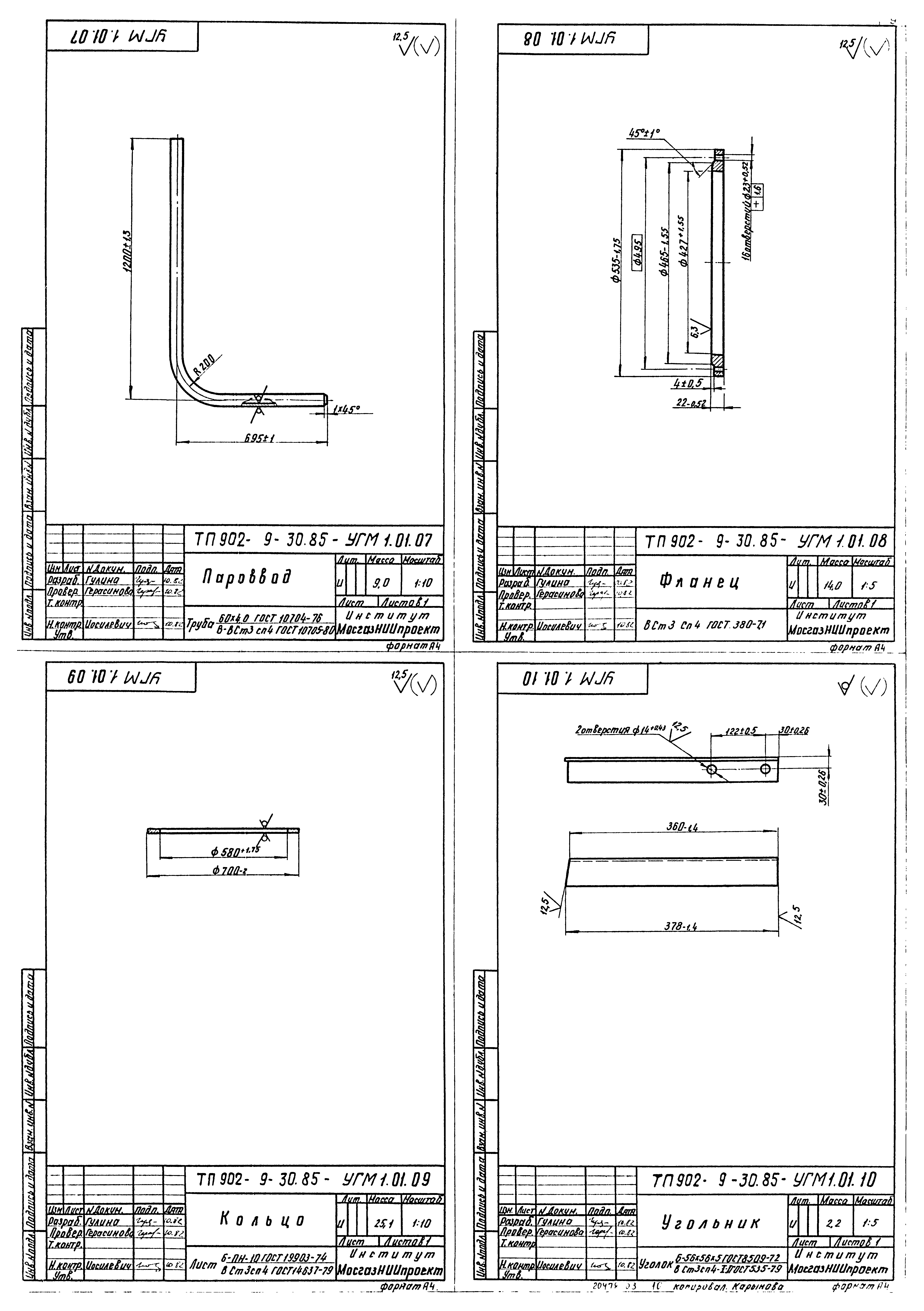
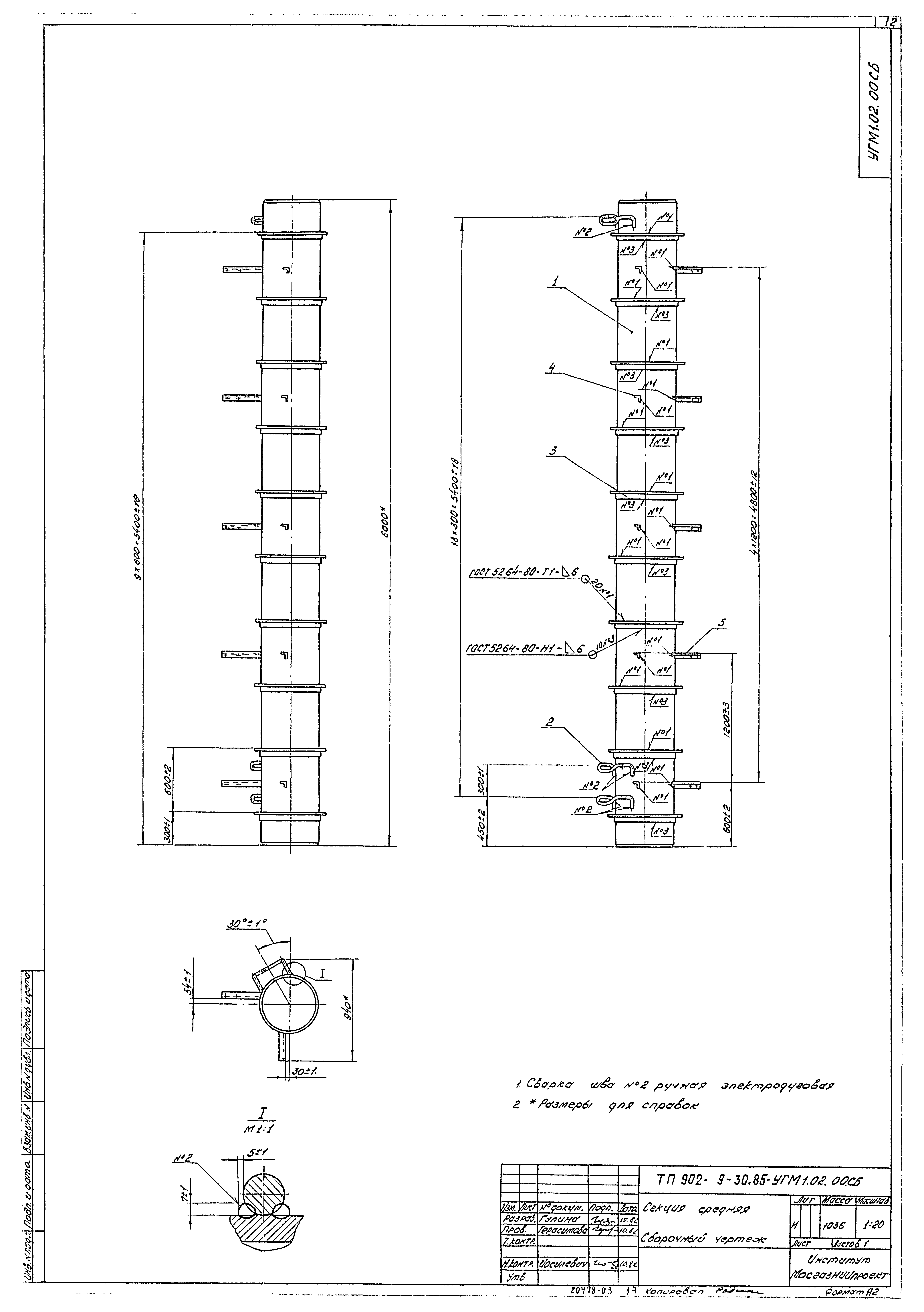
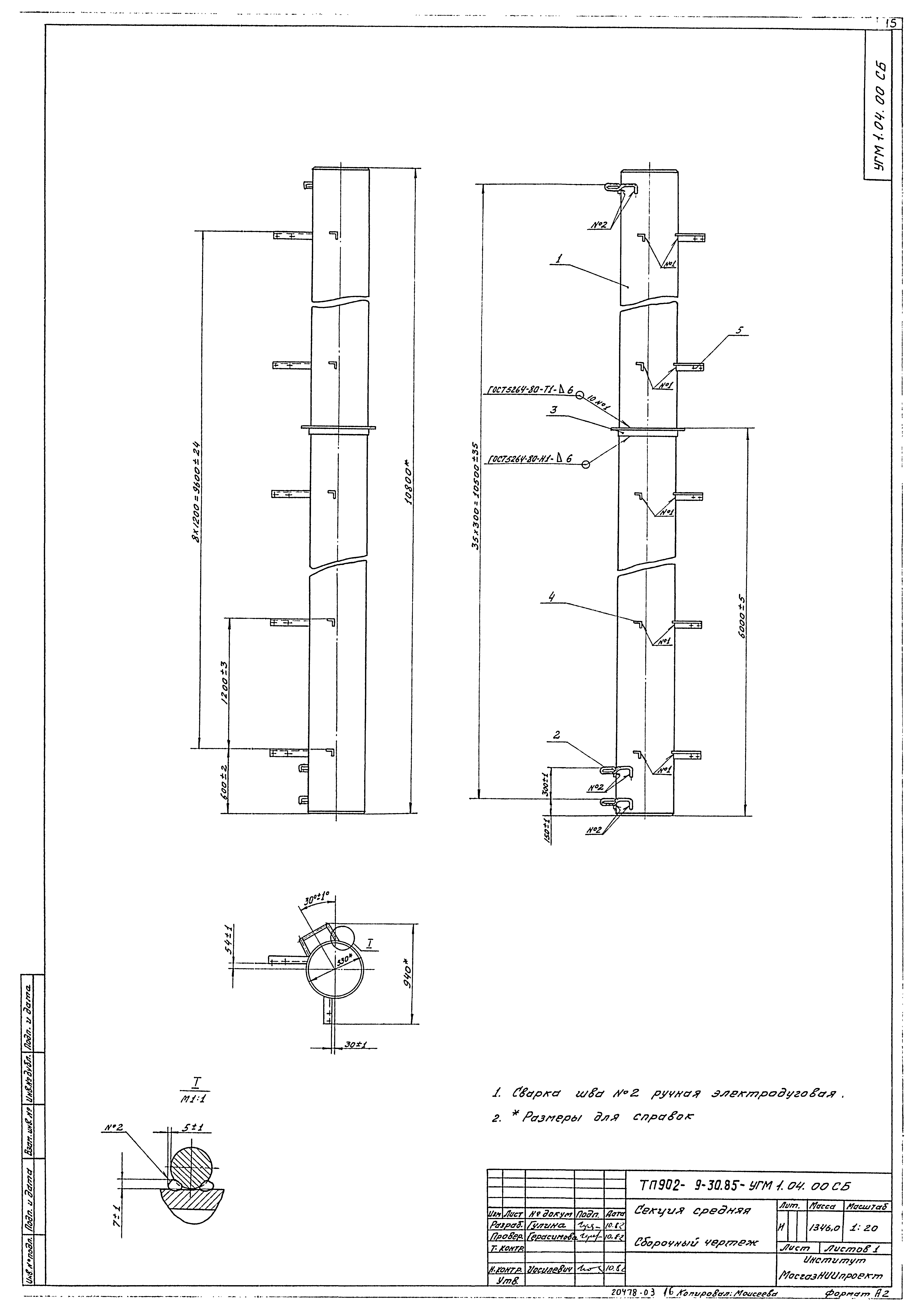
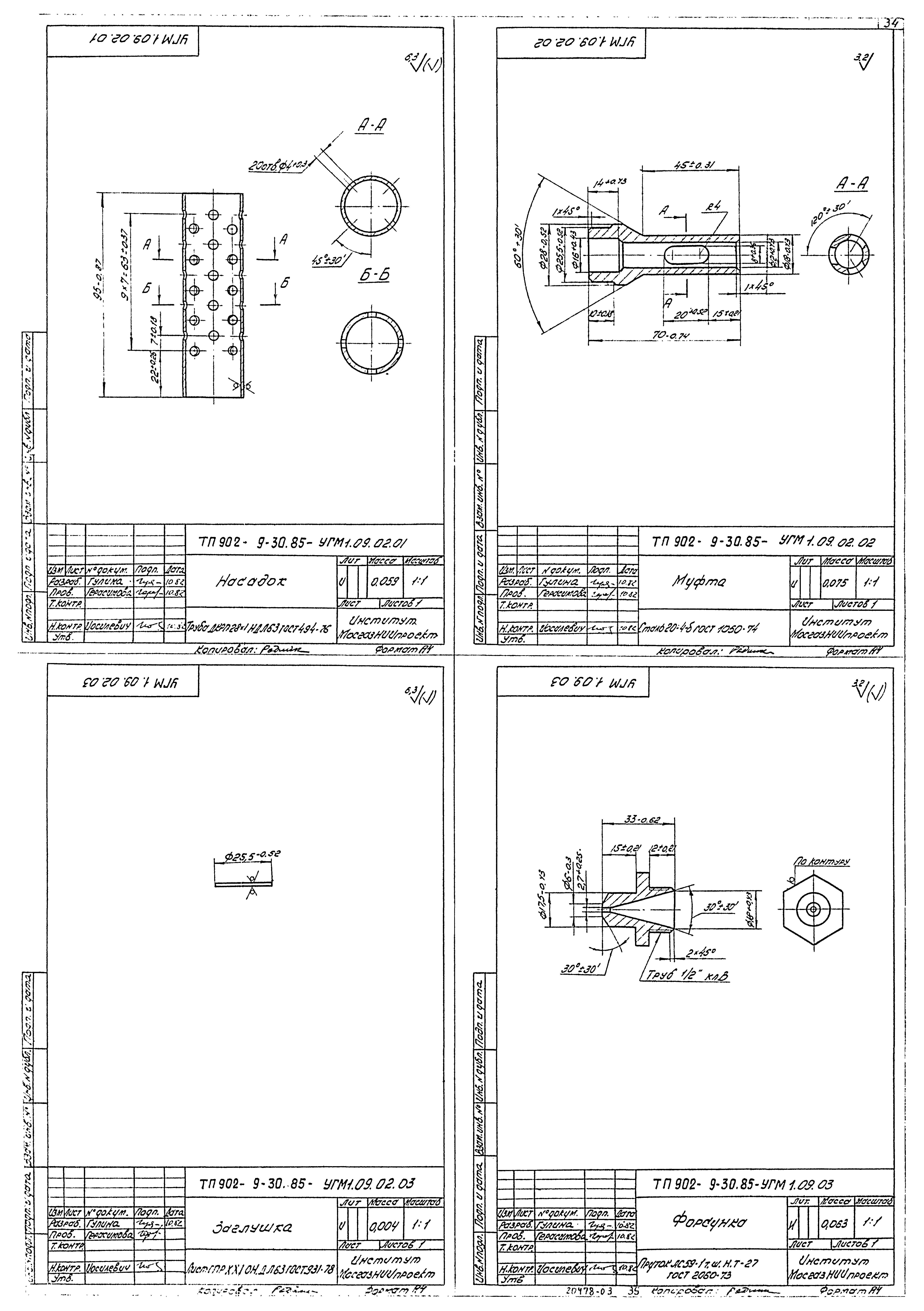
Скачать Типовой проект 902-9-30.85 Альбом 3. Нестандартизированное оборудованиеДата актуализации: 01.01.2021
|
| Обозначение: | Типовой проект 902-9-30.85 |
| Обозначение англ: | 902-9-30.85 |
| Статус: | не определен законодательством |
| Название рус.: | Альбом 3. Нестандартизированное оборудование |
| Дата добавления в базу: | 12.02.2016 |
| Дата актуализации: | 01.01.2021 |
| Дата введения: | 07.05.1985 |
| Дата окончания срока действия: | 30.06.2003 |
| Разработан: | Союзводоканалниипроект |
| Утверждён: | 12.10.1984 Госстрой СССР (ИИ-29) |





















































