Скачать ГОСТ Р ИСО 15370-2014 Суда и морские технологии. Низкорасположенное освещение (НРО) на пассажирских судах. РасположениеДата актуализации: 01.01.2021
|
| Обозначение: | ГОСТ Р ИСО 15370-2014 |
| Обозначение англ: | GOST R ISO 15370-2014 |
| Статус: | введен впервые |
| Название рус.: | Суда и морские технологии. Низкорасположенное освещение (НРО) на пассажирских судах. Расположение |
| Название англ.: | Ships and marine technology. Low-locating lighting (LLL) on passenger ships. Arrangement |
| Дата добавления в базу: | 01.10.2014 |
| Дата актуализации: | 01.01.2021 |
| Дата введения: | 01.09.2014 |
| Область применения: | Стандарт устанавливает требования к установке, проверке и техническому обслуживанию систем световых эвакуационных указателей, согласно Главе II-2, Правило 13.3.2.5.1 Международной конвенции по охране человеческой жизни на море 1974 (СОЛАС-74) с поправками 2000 года, согласно Международному кодексу по системам противопожарной безопасности, принятому Резолюцией ИМО MSC.98(73), а также согласно Резолюции ИМО А.752(18) "Руководство по оценке, испытаниям и применению низкорасположенного освещения на пассажирских судах". |
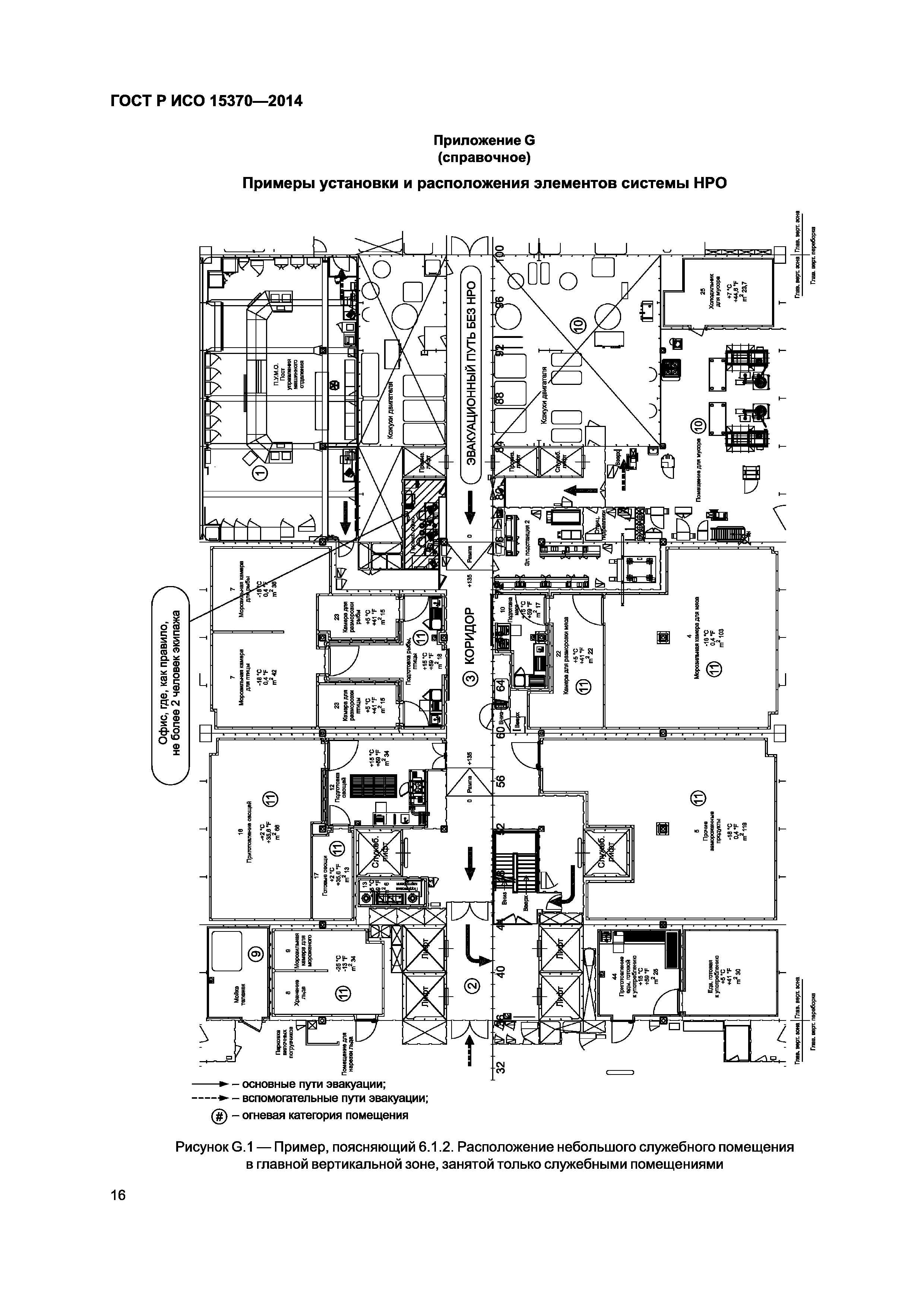
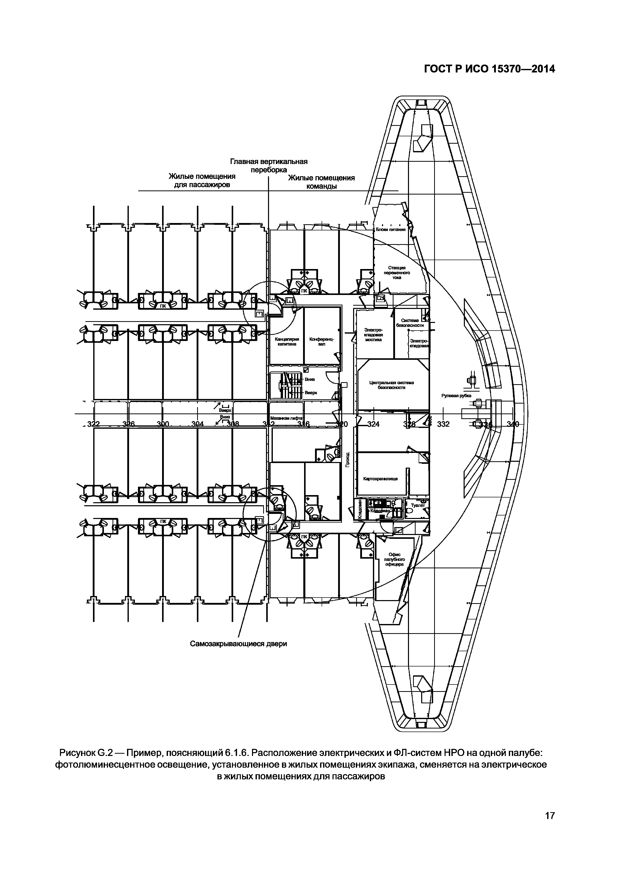
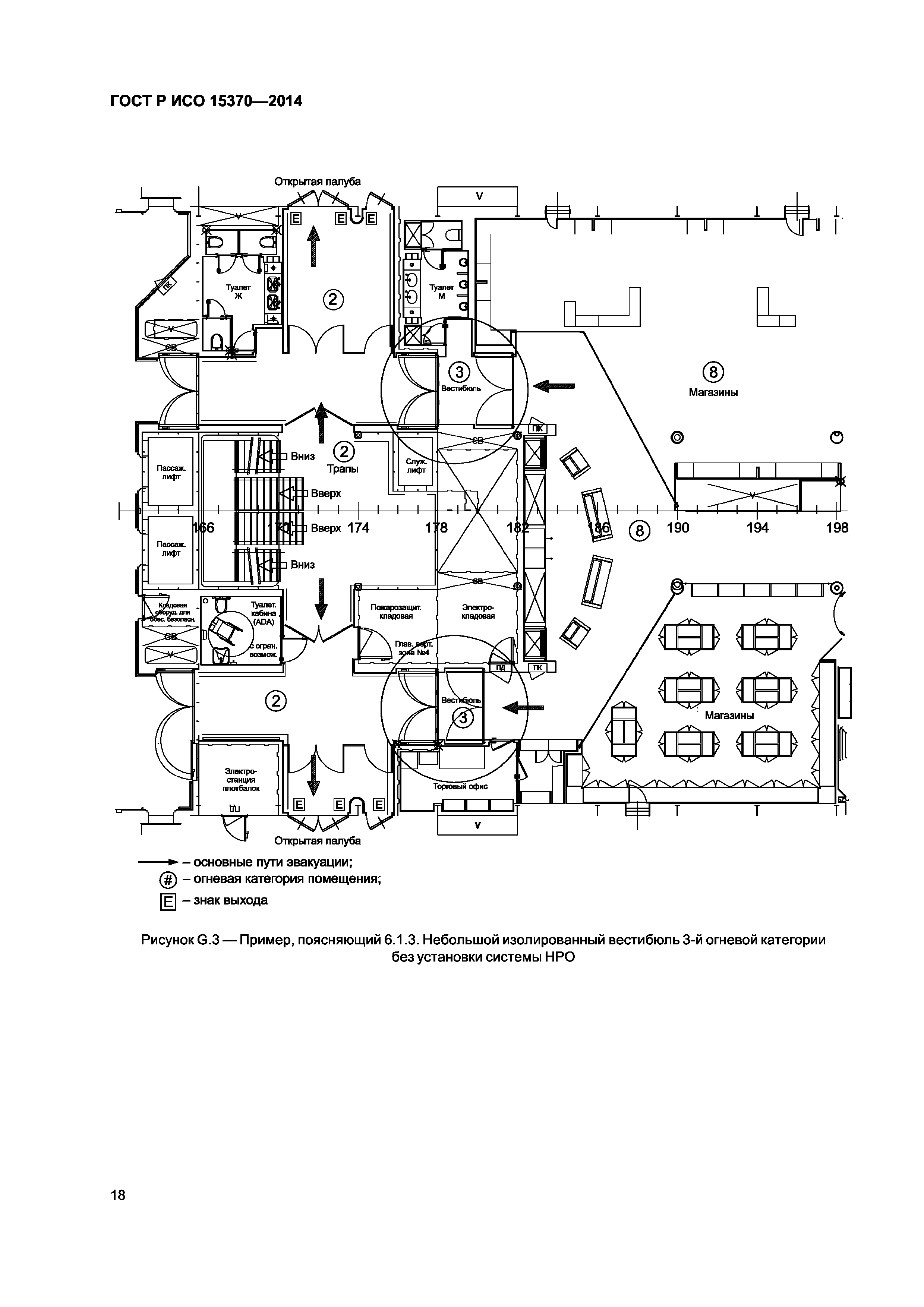
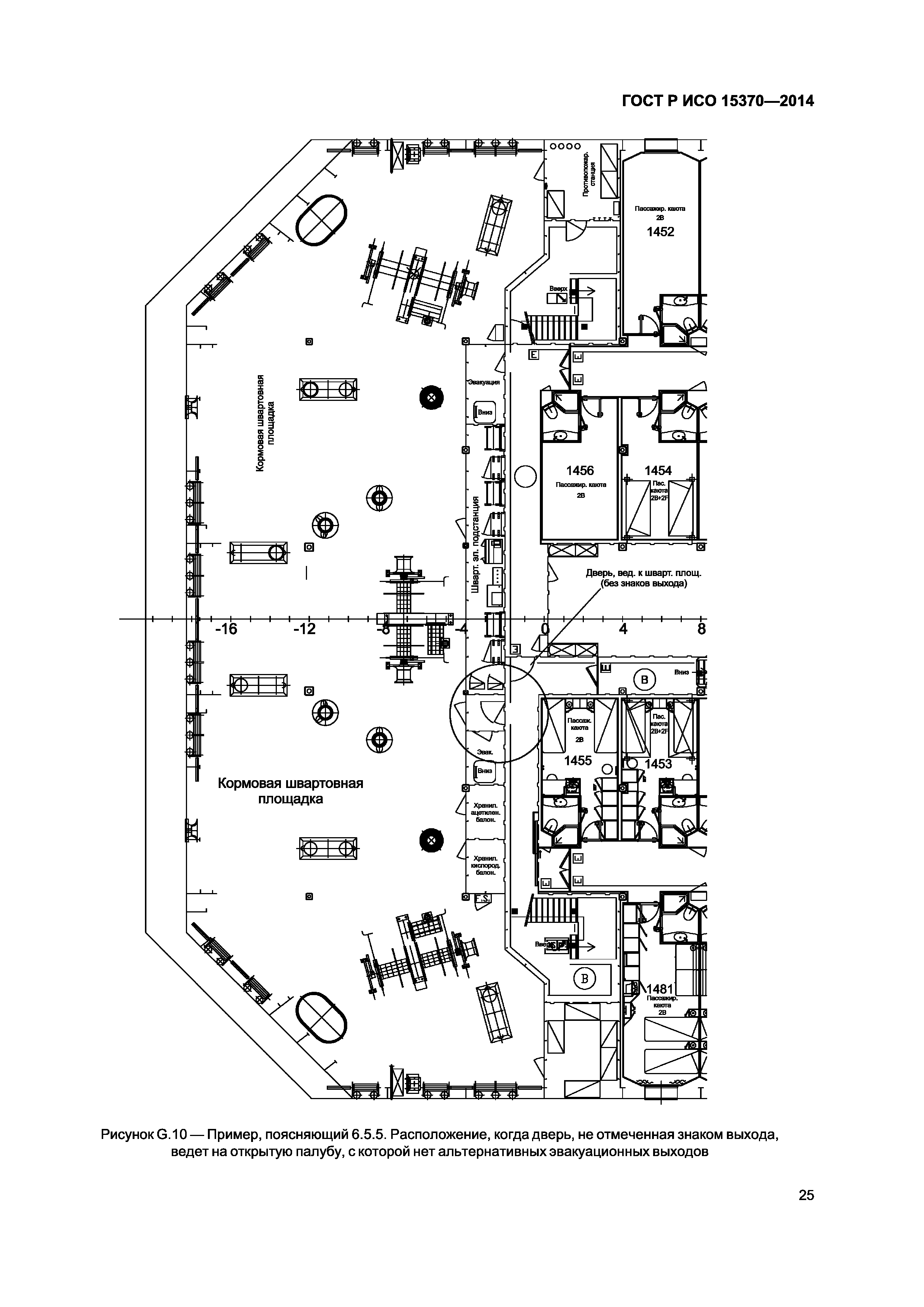
| Оглавление: | 1 Область применения 2 Нормативные ссылки 3 Термины и определения 4 Требования к рабочим характеристикам 4.1 Общие положения 4.2 Фотолюминесцентные системы 4.3 Электрические системы НРО 5 Техническая документация 6 Установка системы на судне 6.1 Общие положения 6.2 Коридоры 6.3 Двери 6.4 Трапы 6.5 Знаки и направляющие указатели 6.6 Информационные плакаты 7 Одобрение установки 8 Техническое обслуживание Приложение А (обязательное) Испытание фотолюминесцентных материалов для НРО Приложение В (обязательное) Освидетельствование установки на борту судна Приложение С (обязательное) Регистрация изменений для фотолюминесцентных материалов . Приложение D (обязательное) Зависимость яркости свечения от ширины полосы Приложение Е (обязательное) Испытания электрических систем НРО Приложение F (обязательное) Схема расположения коридоров и трапов Приложение G (справочное) Примеры установки и расположения элементов системы НРО Приложение ДА (справочное) Сведения о соответствии ссылочных международных стандартов ссылочным национальным стандартам Российской Федерации и действующему в этом качестве межгосударственному стандарту Библиография |
| Разработан: | Научно-исследовательский институт по стандартизации и сертификации Лот ФГУП Крыловский государственный научный центр |
| Утверждён: | 07.02.2014 Федеральное агентство по техническому регулированию и метрологии (19-ст) |
| Издан: | Стандартинформ (2014 г. ) |
| Нормативные ссылки: |
|































