Скачать Типовой проект 902-2-337 Альбом III. ИзделияДата актуализации: 01.01.2021
|
| Обозначение: | Типовой проект 902-2-337 |
| Обозначение англ: | 902-2-337 |
| Статус: | не определен законодательством |
| Название рус.: | Альбом III. Изделия |
| Дата добавления в базу: | 01.10.2014 |
| Дата актуализации: | 01.01.2021 |
| Дата введения: | 13.05.1980 |
| Дата окончания срока действия: | 30.06.2003 |
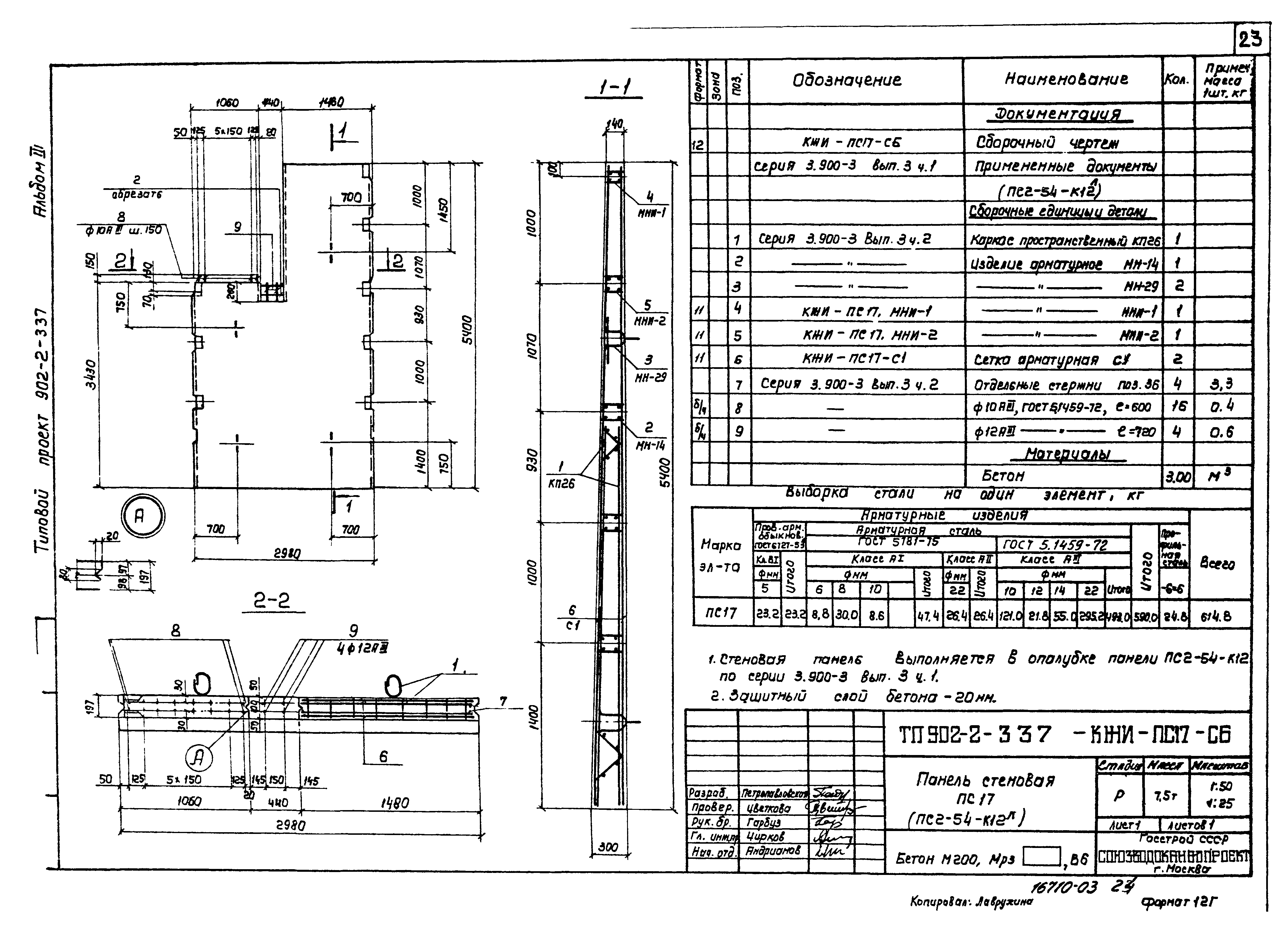
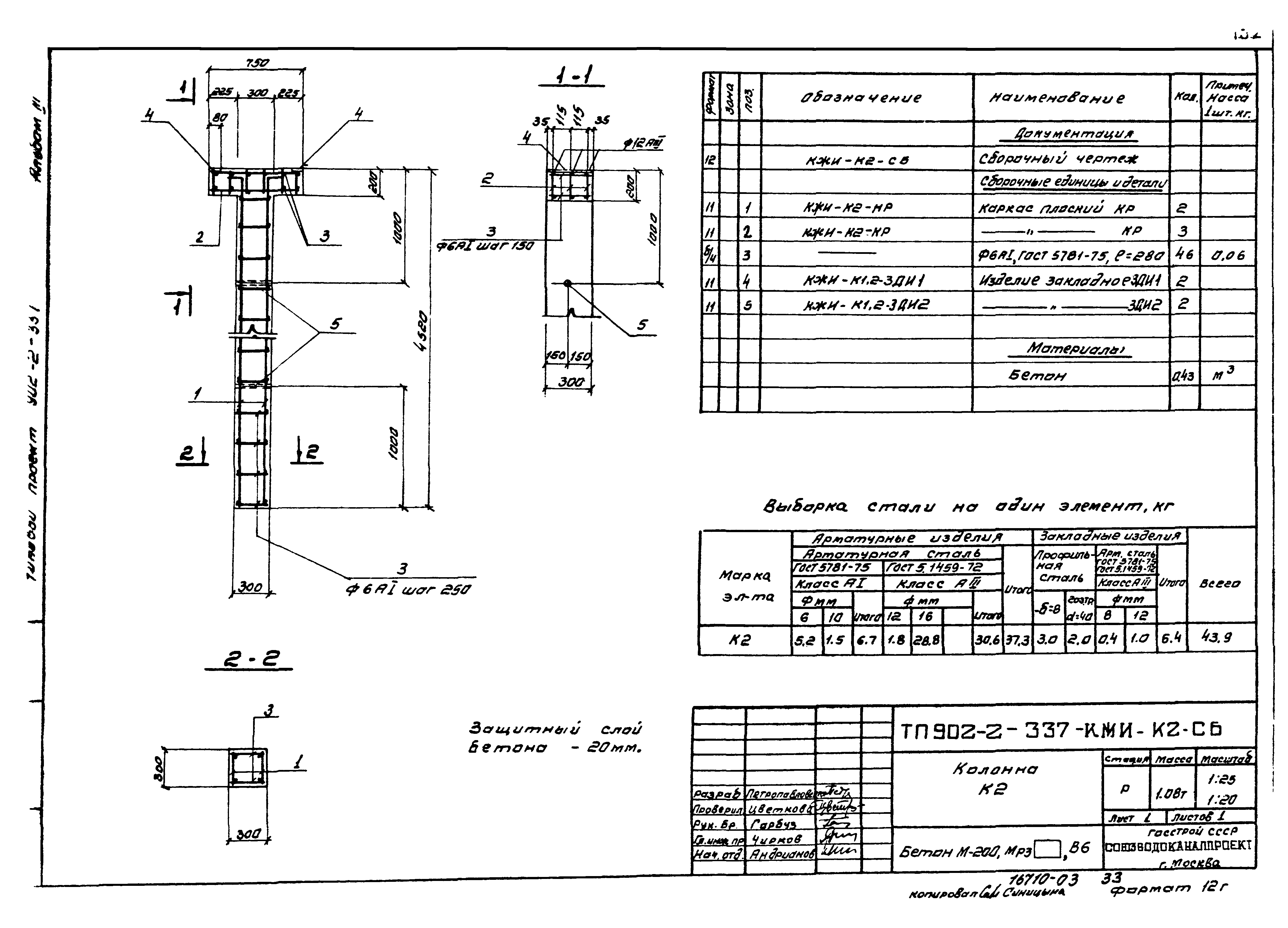
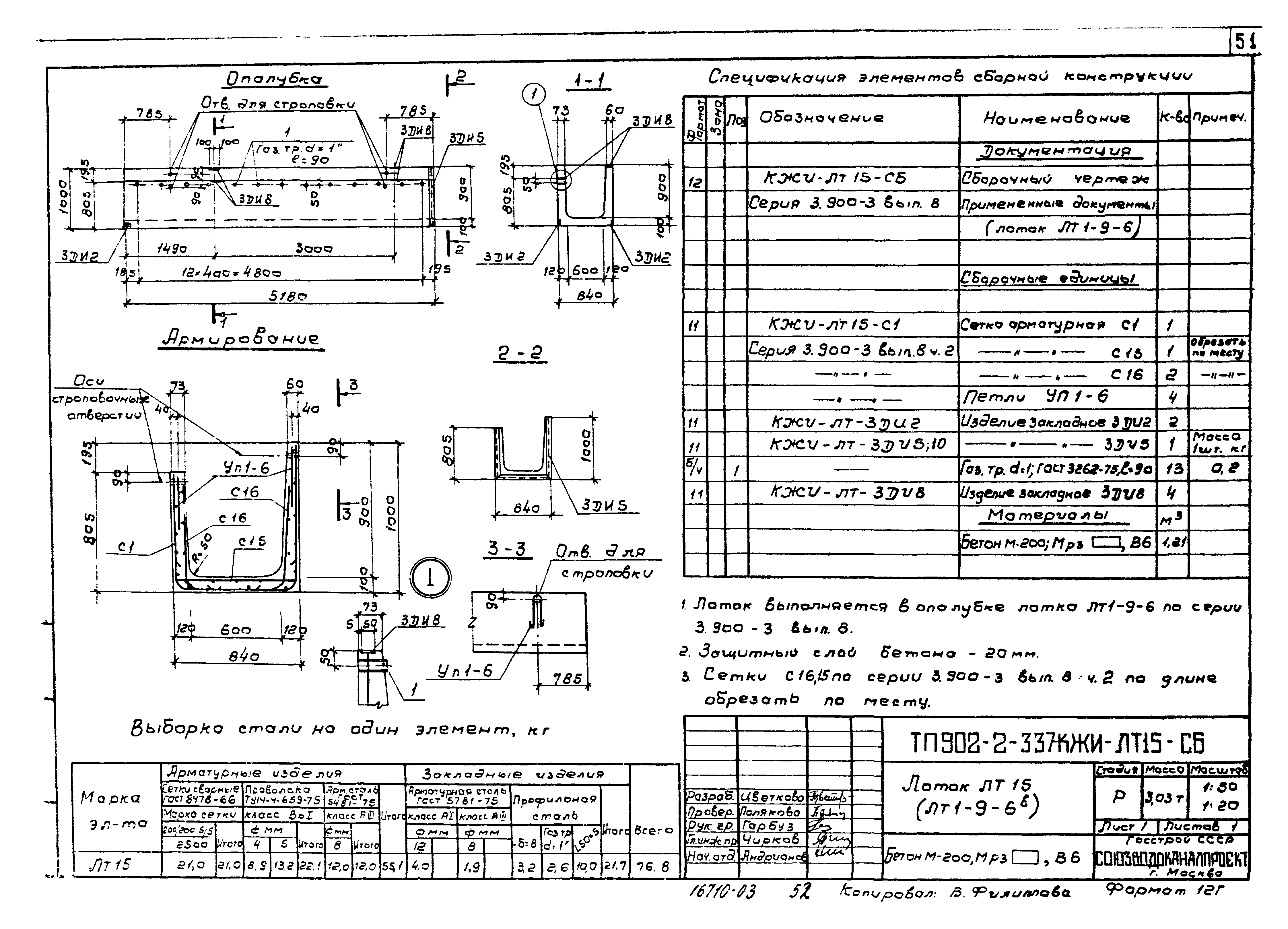
| Оглавление: | КЖИ Содержание альбома Днище КЖИ-С1 Сетка арматурная С1 КЖИ-С2 Сетка арматурная С2 КЖИ-С3 Сетка арматурная С3 КЖИ-С4 Сетка арматурная С4 КЖИ-С5 Сетка арматурная С5 КЖИ-С6 Сетка арматурная С6 КЖИ-С7 Сетка арматурная С7 КЖИ-С8 Сетка арматурная С8 КЖИ-С9 Сетка арматурная С9 КЖИ-С10 Сетка арматурная С10 КЖИ-С11 Сетка арматурная С11 КЖИ-С12 Сетка арматурная С12 КЖИ-КП1, 2 Пространственные каркасы КП1, КП2 КЖИ-ЗДИ1 Изделие закладное ЗДИ1 КЖИ-ЗДИ2 Изделие закладное ЗДИ2 КЖИ-КР1 Каркас плоский КР1 Монолитные участки стен КЖИ-ЗДИ3 Изделие закладное ЗДИ3 КЖИ-ЗДИ4 Изделие закладное ЗДИ4 Панели стеновые КЖИ-ПС1-СБ ПС1 КЖИ-ПС1А-СБ ПС1А КЖИ-ПС2-СБ ПС2 КЖИ-ПС2А-СБ ПС2А КЖИ-ПС3-СБ ПС3 (ПС2-54-К2а) КЖИ-ПС4-СБ ПС4 (ПС2-54-К12а) КЖИ-ПС5, 6-СБ ПС5 (ПС2-54-К12б), ПС6 (ПС2-54-К12в) КЖИ-ПС7-СБ ПС7 (ПС2-54-К2б) КЖИ-ПС8, 9-СБ ПС8 (ПС2-54-К12г), ПС9 (ПС2-54-К12д) КЖИ-ПС10-СБ ПС10 (ПС2-54-К2в) КЖИ-ПС11, 12-СБ ПС11 (ПС2-54-К12е), ПС12 (ПС2-54-К12и) КЖИ-ПС13-СБ ПС13 (ПС2-54-К2д) КЖИ-ПС14, 15-СБ ПС14 (ПС2-54-К12а), ПС15 (ПС2-54-К12м) КЖИ-ПС16-СБ ПС16 (ПС2-54-К2е) КЖИ-ПС17-СБ ПС17 (ПС2-54-К12л) КЖИ-ПС1, 2-С1 Сетка арматурная С1 КЖИ-ПС1А, 2А-С1 Сетка арматурная С1 КЖИ-ПС17-МНИ1, 2-КРИ1 Каркас плоский КРИ1 КЖИ-ПС17-С1 Сетка арматурная С1 КЖИ-ПС17-МНИ1 Изделие арматурное МНИ1 КЖИ-ПС17-МНИ2 Изделие арматурное МНИ2 КЖИ-ПС-ЗДИ1 Изделие закладное ЗДИ1 КЖИ-ПС-ЗДИ2 Изделие закладное ЗДИ2 Фундаменты КЖИ-Ф1-СБ Ф1 КЖИ-Ф1-С1 Сетка арматурная С1 КЖИ-Ф1-С2 Сетка арматурная С2 КЖИ-Ф1-ЗДИ1 Изделие закладное ЗДИ1 Колонны КЖИ-К1-СБ К1 КЖИ-К2-СБ К2 КЖИ-К1-КР1 Каркас плоский КР1 КЖИ-К1-КР1 Каркас плоский КР2 КЖИ-К2-КР1 Каркас плоский КР1 КЖИ-К2-КР1 Каркас плоский КР2 КЖИ-К1, 2-ЗДИ1 Изделие закладное ЗДИ1 КЖИ-К1, 2-ЗДИ2 Изделие закладное ЗДИ2 Балки КЖИ-Б1-СБ Б1 КЖИ-Б1-КР1 Каркас плоский КР1 КЖИ-Б1-ЗДИ1 Изделие закладное ЗДИ1 КЖИ-Б1-ЗДИ2 Изделие закладное ЗДИ2 Плиты КЖИ-П1-СБ П1 КЖИ-П2а-СБ П2а (ПТ15-6а) КЖИ-П1-С1 Сетка арматурная С1 КЖИ-П2а-ЗДИ1 Изделие закладное ЗДИ1 КЖИ-П1-ЗДИ1 Изделие закладное ЗДИ1 КЖИ-П1-ЗДИ2 Изделие закладное ЗДИ2 Лотки КЖИ-ЛТ1-СБ ЛТ1 (ЛТ2-18а) КЖИ-ЛТ8-СБ ЛТ8 (ЛТ2-18к) КЖИ-ЛТ2-СБ ЛТ2 (ЛТ2-18б) КЖИ-ЛТ5-СБ ЛТ5 (ЛТ2-18е) КЖИ-ЛТ3-СБ ЛТ3 (ЛТ2-18в) КЖИ-ЛТ6-СБ ЛТ6 (ЛТ2-18ж) КЖИ-ЛТ4-СБ ЛТ4 (ЛТ2-18г) КЖИ-ЛТ7-СБ ЛТ7 (ЛТ2-18и) КЖИ-ЛТ9-СБ ЛТ9 (ЛТ2-18л) КЖИ-ЛТ10-СБ ЛТ10 (ЛТ2-18м) КЖИ-ЛТ12, 30-СБ ЛТ12 (ЛТ2-18п), ЛТ30 (ЛТ2-18ш) КЖИ-ЛТ13-СБ ЛТ13 (ЛТ1-9-6а) КЖИ-ЛТ14-СБ ЛТ14 (ЛТ1-9-6б) КЖИ-ЛТ15-СБ ЛТ15 (ЛТ1-9-6в) КЖИ-ЛТ16-СБ ЛТ16 (ЛТ1-6-4,5а) КЖИ-ЛТ17-СБ ЛТ17 (ЛТ1-6-4,5б) КЖИ-ЛТ18-СБ ЛТ18 (ЛТ1-6-4,5в) КЖИ-ЛТ19-СБ ЛТ19 (ЛТ2-18р) КЖИ-ЛТ21-СБ ЛТ21 (ЛТ2-18т) КЖИ-ЛТ20-СБ ЛТ20 (ЛТ2-18с) КЖИ-ЛТ22-СБ ЛТ22 (ЛТ2-18ф) КЖИ-ЛТ23-СБ ЛТ23 (ЛТ1-9-6г) КЖИ-ЛТ24-СБ ЛТ24 (ЛТ1-9-6д) КЖИ-ЛТ25-СБ ЛТ25 (ЛТ1-6-4,5г) КЖИ-ЛТ26-СБ ЛТ26 (ЛТ1-6-4,5д) КЖИ-ЛТ27-СБ ЛТ27 (ЛТ1-9-6е) КЖИ-ЛТ28-СБ ЛТ28 (ЛТ1-6-4,5е) КЖИ-ЛТ11, 29-СБ ЛТ11 (ЛТ2-18н), ЛТ29 (ЛТ2-18д) КЖИ-ЛТ10-С1 Сетка арматурная С1 КЖИ-ЛТ10-С2 Сетка арматурная С2 КЖИ-ЛТ13, 14, 27-С1 Сетка арматурная С1 КЖИ-ЛТ15-С1 Сетка арматурная С1 КЖИ-ЛТ16, 17, 28-С1 Сетка арматурная С1 КЖИ-ЛТ26-С1 Сетка арматурная С1 КЖИ-ЛТ24-С1 Сетка арматурная С1 КЖИ-ЛТ23-С1 Сетка арматурная С1 КЖИ-ЛТ25-С1 Сетка арматурная С1 КЖИ-ЛТ18-С1 Сетка арматурная С1 КЖИ-ЛТ11, 12, 29, 30-С1 Сетка арматурная С1 КЖИ-ЛТ11, 12, 29, 30-С2 Сетка арматурная С2 КЖИ-ЛТ-ЗДИ1 Изделие закладное ЗДИ1 КЖИ-ЛТ-ЗДИ2 Изделие закладное ЗДИ2 КЖИ-ЛТ-ЗДИ3 Изделие закладное ЗДИ3 КЖИ-ЛТ-ЗДИ4 Изделие закладное ЗДИ4 КЖИ-ЛТ-ЗДИ5, 10 Изделие закладное ЗДИ5, 10 КЖИ-ЛТ-ЗДИ6, 11 Изделие закладное ЗДИ6, 11 КЖИ-ЛТ-ЗДИ7 Изделие закладное ЗДИ7 КЖИ-ЛТ-ЗДИ8 Изделие закладное ЗДИ8 КЖИ-ЛТ11, 12, 29, 30-С3 Сетка арматурная С3 КЖИ-ЛТ-ЗДИ9 Изделие закладное ЗДИ9 КЖИ-БО1-СБ Балка БО1 КЖИ-БО1-КР1 Каркас плоский КР1 КЖИ-МС1 Фундаменты. Изделие соединительное МС1 КЖИ-ОС1 Лотки. Опорный столик ОС1 КЖИ-ЩП1, ЩП6 Щиты ЩП1, ЩП6 КЖИ-ЩП2 Щит ЩП2 КЖИ-ЩП3, 4, 5 Щиты ЩП3, ЩП4, ЩП5 КЖИ-БМ1, 2 Металлические балки БМ1, БМ2 КЖИ-Ум11-С1 Сетка арматурная С1 |
| Разработан: | Союзводоканалниипроект |
| Утверждён: | 15.02.1980 СоюзводоканалНИИпроект (SoyuzvodokanalNIIproject ) |















































































