Скачать Типовой проект 416-1-152.84 Альбом I. Архитектурно-строительные решенияДата актуализации: 01.01.2021
|
| Обозначение: | Типовой проект 416-1-152.84 |
| Обозначение англ: | 416-1-152.84 |
| Статус: | действует |
| Название рус.: | Альбом I. Архитектурно-строительные решения |
| Дата добавления в базу: | 01.10.2014 |
| Дата актуализации: | 01.01.2021 |
| Дата введения: | 28.03.1984 |
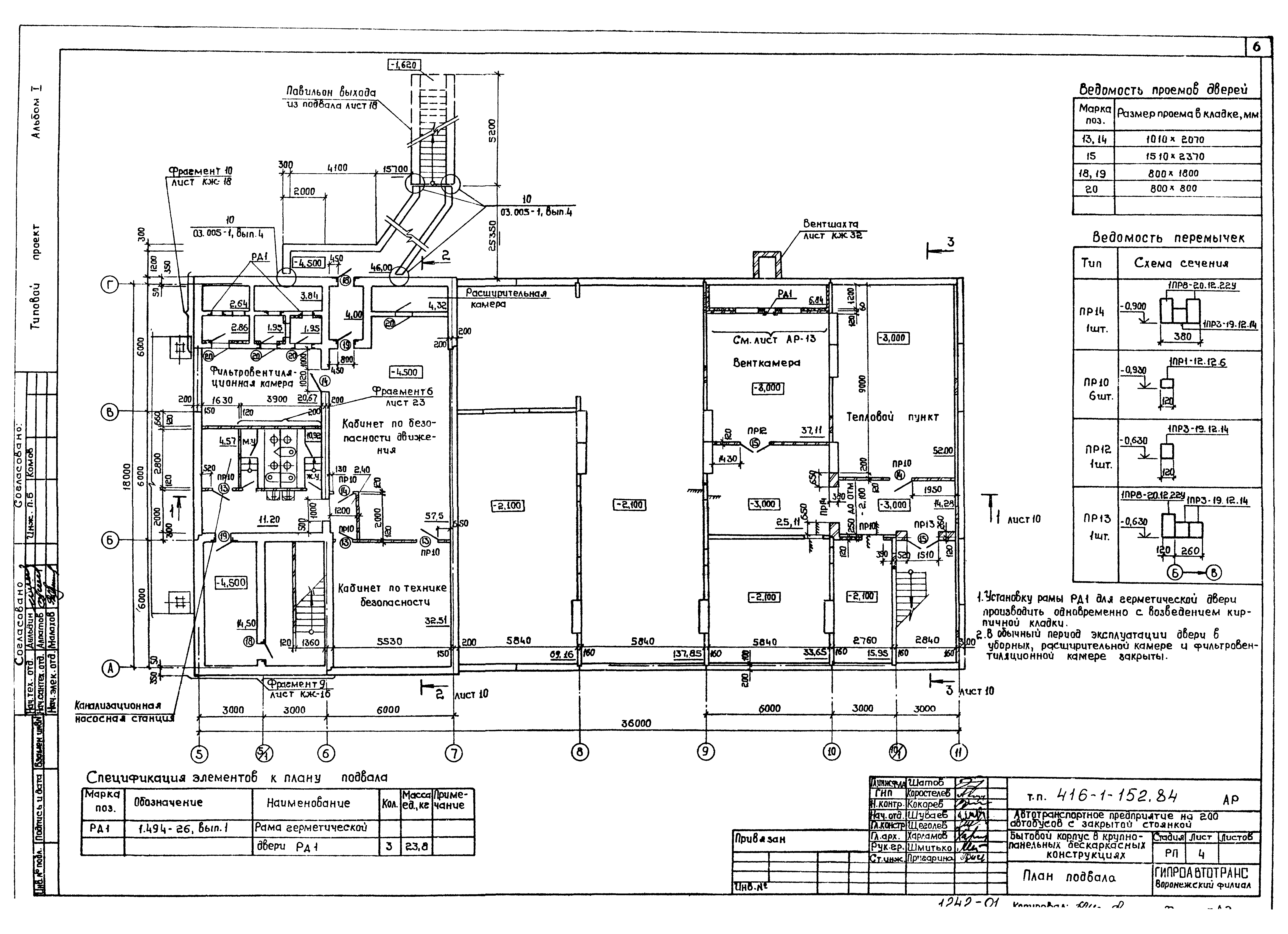
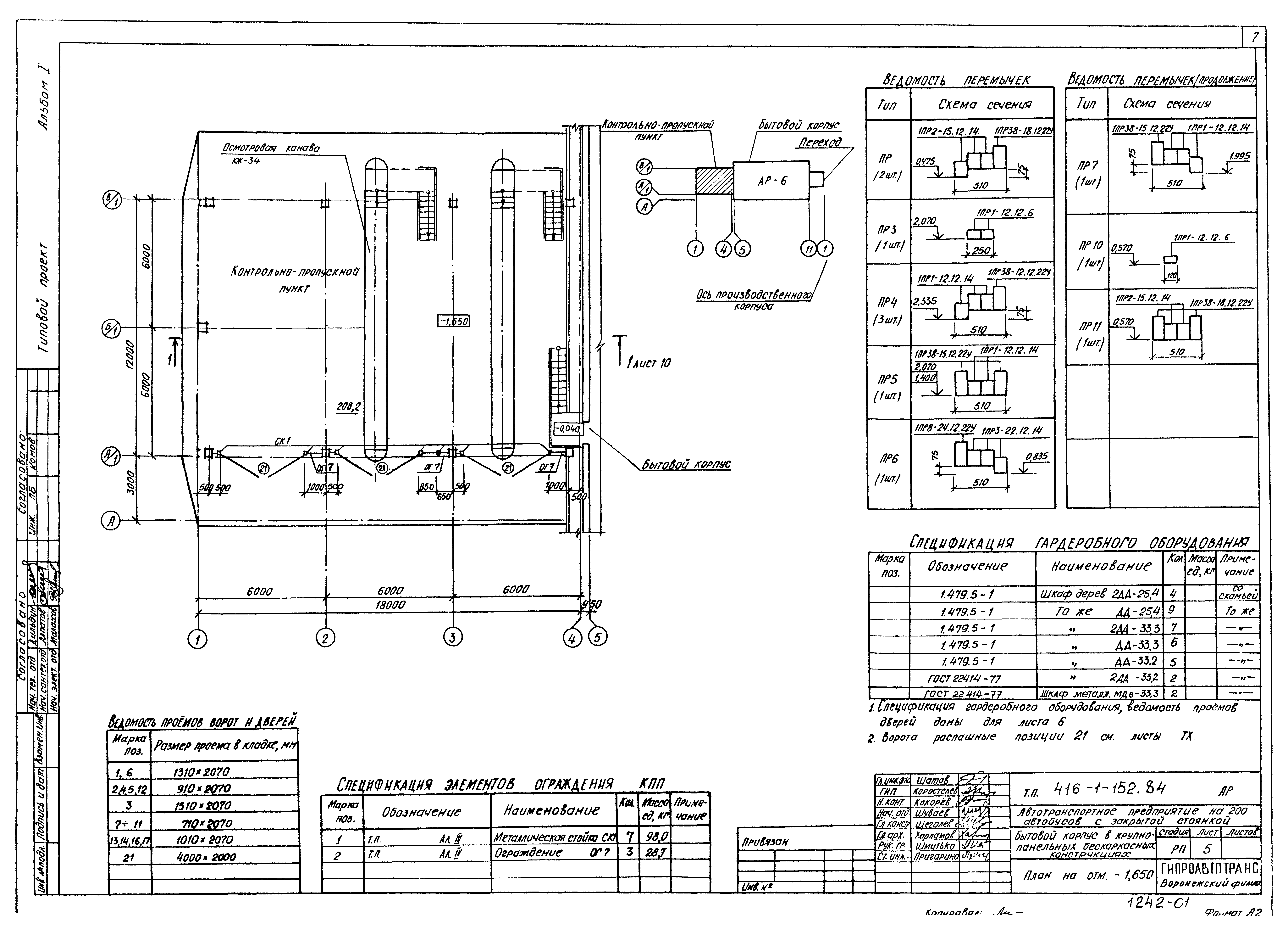
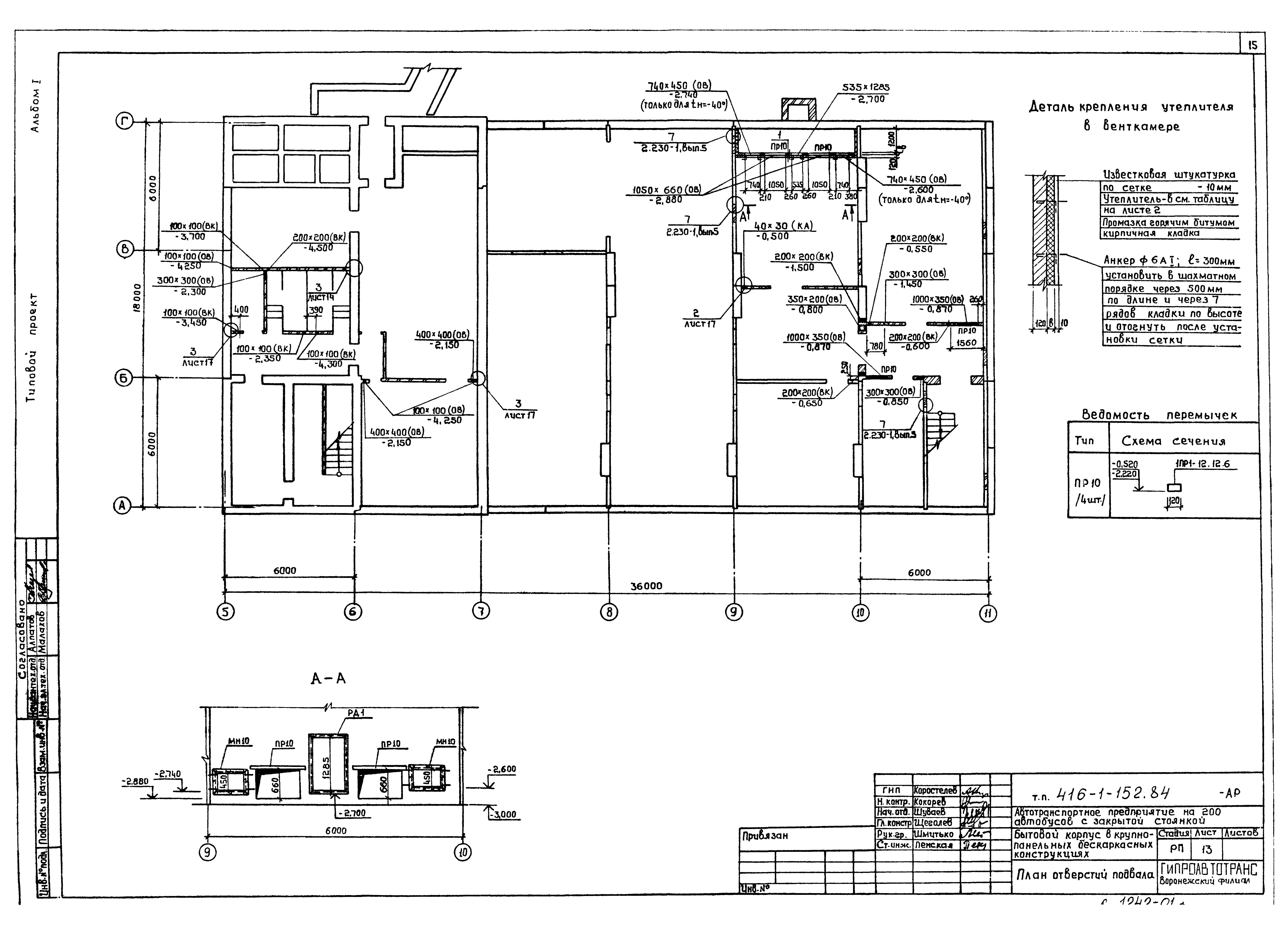
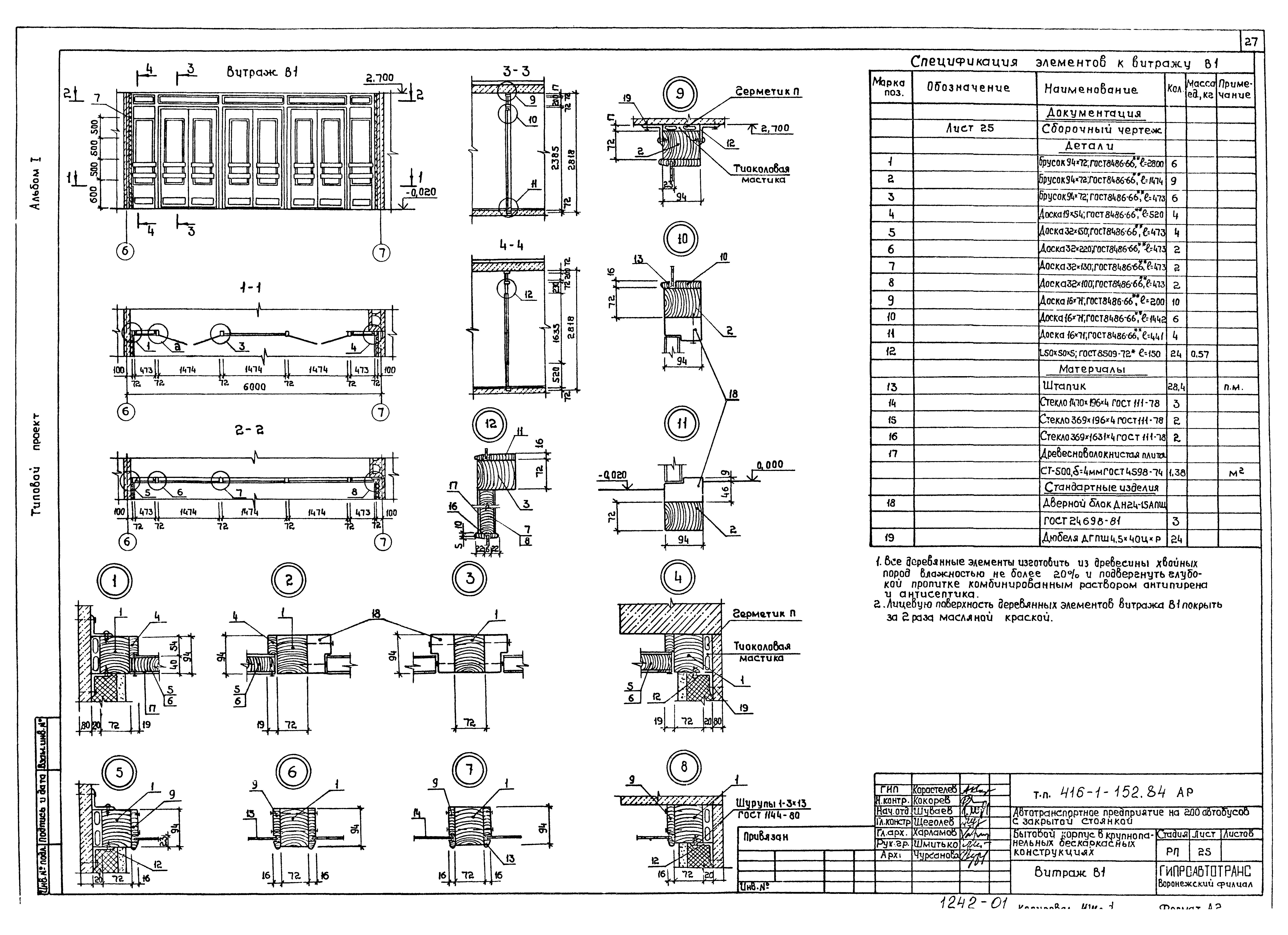
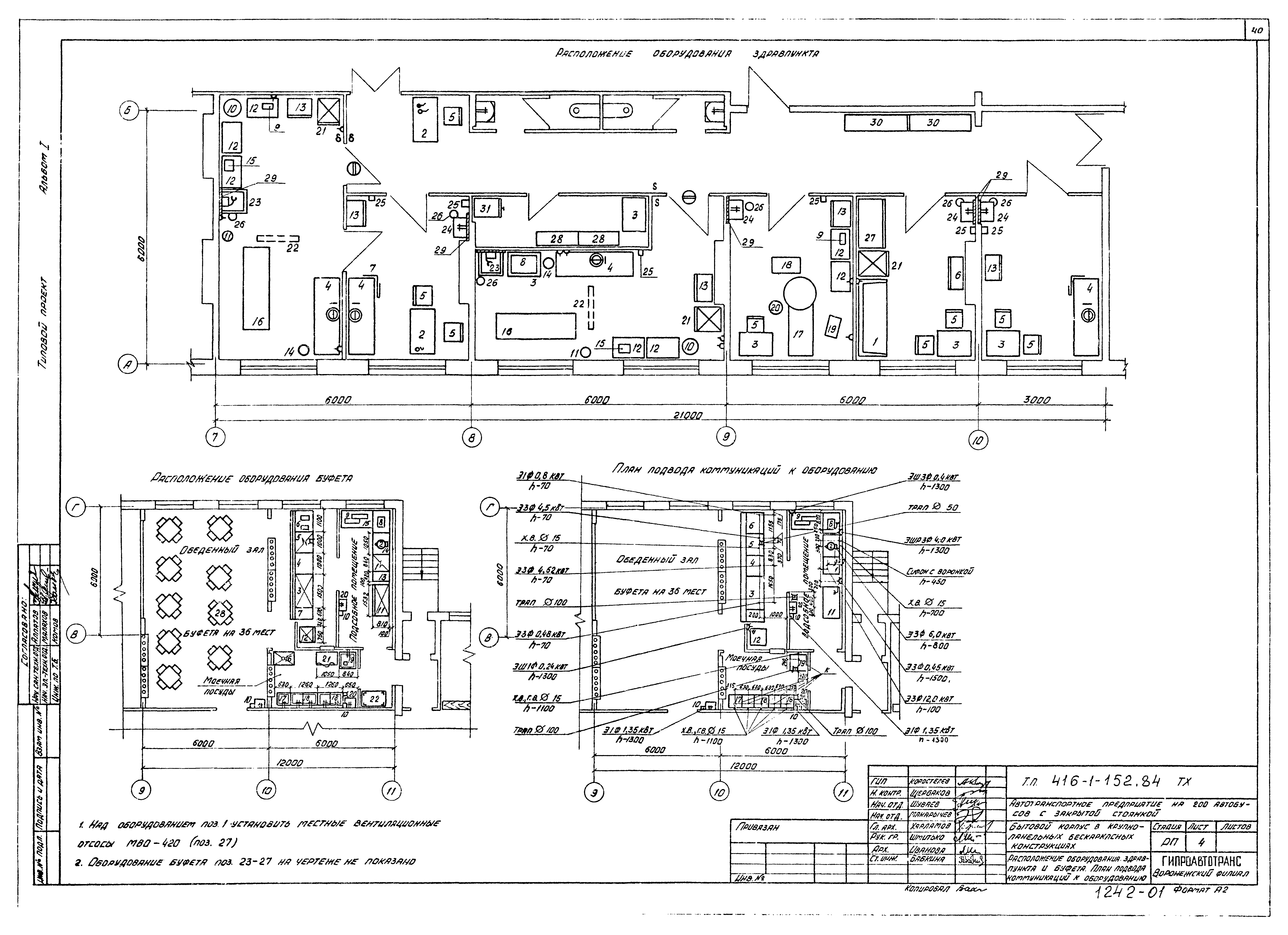
| Оглавление: | Содержание альбома Архитектурные решения Общие данные План подвала План на отм. - 1.650 План на отм. 0.000 План на отм. 3.000 План на отм. 6.000 Спецификация элементов заполнения проемов. Спецификация перемычек Разрезы 1-1 - 3-3 Фасады 1 - 11; 11 - 1 Фасады Г - А; А - Г. Схемы заполнения оконных проемов План отверстий подвала Схема расположения перегородок на отм. 0.000. План отверстий Схема расположения перегородок на отм. 3.000. План отверстий Схема расположения перегородок на отм. 6.000. План отверстий Узлы крепления перегородок Павильон выхода из подвала Фрагменты 1, 2 Фрагменты 3, 4 Фрагмент 5 Фрагменты 1 - 5. Сечения. Узлы Фрагмент 6 Фрагменты 7, 8 Витраж В1 План полов План кровли Спецификация элементов кровли Выход на кровлю Встроенные шкафы Барьер диспетчерской Сцена зала собраний Окна 01, 02, 03 Окна 01, 02, 03. Люк Л1. Узлы Технологические решения Общие данные КПП. Помещение бескондукторного обслуживания Расположение оборудования здравпункта и буфета. План подвода коммуникаций к оборудованию Конструкции железобетонные Общие данные Схема расположения элементов фундаментов Фрагменты 1 - 5. Сечения 1-1 - 5-5 Сечения 6-6 - 17-17 Схема расположения цокольных панелей Развертка внутренних стен подвала Развертка наружных стен подвала. Монолитный участок Ум1 Схема расположения фундаментов подвала. Схема нижних сеток фундаментов подвала Схема расположения верхних сеток фундаментов подвала Схемы расположения элементов сборных железобетонных конструкций подвала и каркасов стен Схема расположения элементов подвала и каркасов стен. Узлы 1 - 6 Схемы расположения арматурных изделий в покрытии подвала Схемы расположения нижних и верхних арматурных изделий в покрытии подвала. Сечения 1-1 - 6-6 Фрагмент 9. Вид 1-1. Сечения 2-2, 3-3 Фрагмент 9. Виды 4-4, 5-5 Фрагмент 10. Виды 6-6, 7-7 Фрагмент 10. Виды 8-8 - 11-11 Монолитные стены подвала СПм1, СПм2 Монолитная стена подвала СПм3 Монолитные стены подвала СПм4, СПм5 Монолитные стены подвала СПм6, СПм11 Монолитные стены подвала СПм7, СПм8 Монолитные стены подвала СПм9, СПм10, СПм12 Монолитные стены подвала СПм13 - СПм15 Спецификация элементов на монолитные стены подвала СПм1 - СПм15 Ведомость расхода стали на элемент, кг. Ведомость деталей Эвакуационный выход из подвала. План, сечение 1-1 Эвакуационный выход из подвала. Сечения 2-2 - 5-5 План подземного хозяйства Осмотровые канавы Схема расположения элементов каркаса КПП Схема расположения стеновых панелей по оси А Схема расположения стеновых панелей по оси Г Схемы расположения стеновых панелей по осям 1, 5, 11 Спецификация к схемам расположения стеновых панелей Схема раскладки фризовых камней Схемы расположения плит перекрытия на отм. 0.000, плит покрытия КПП, перехода Схема расположения плит перекрытия на отм. 3.000 Схема расположения плит перекрытия на отм. 6.000 Схема расположения элементов покрытия Спецификация к схемам расположения элементов покрытий и перекрытий Схемы расположения элементов вентиляционных коробов на кровле Схема расположения внутренних стеновых панелей на отм. 0.000 Схема расположения внутренних стеновых панелей на отм. 3.000 Схема расположения внутренних стеновых панелей на отм. 6.000 Раскладка панелей внутренних стен по осям 5, 6, 7, 5/1 Раскладка панелей внутренних стен по осям 8, 9, 10 Раскладка панелей внутренних стен по осям 10/1, 11, Б, В Схема расположения элементов лестницы Л1 Схема расположения элементов лестницы Л2 Схемы расположения вентблоков по осям 6, 7, Б Схемы расположения вентблоков по осям 8, 9, 10 Узлы 1 - 5 Узлы 6 - 9 Узлы 10 - 20 Показатели результатов применения научно-технических достижений в строительных решениях |
| Разработан: | ЦНИИпромзданий Гипроавтотранс |
| Утверждён: | 28.03.1984 Минавтотранс РСФСР (Russian Federation Minavtotrans 16) |








































































































