Скачать Типовой проект 409-28-40 Альбом III. Часть 1. Строительные конструкции камер типа I. Вариант в монолитном керамзитобетонеДата актуализации: 01.01.2021
|
| Обозначение: | Типовой проект 409-28-40 |
| Обозначение англ: | 409-28-40 |
| Статус: | действует |
| Название рус.: | Альбом III. Часть 1. Строительные конструкции камер типа I. Вариант в монолитном керамзитобетоне |
| Дата добавления в базу: | 01.10.2014 |
| Дата актуализации: | 01.01.2021 |
| Дата введения: | 18.09.1981 |
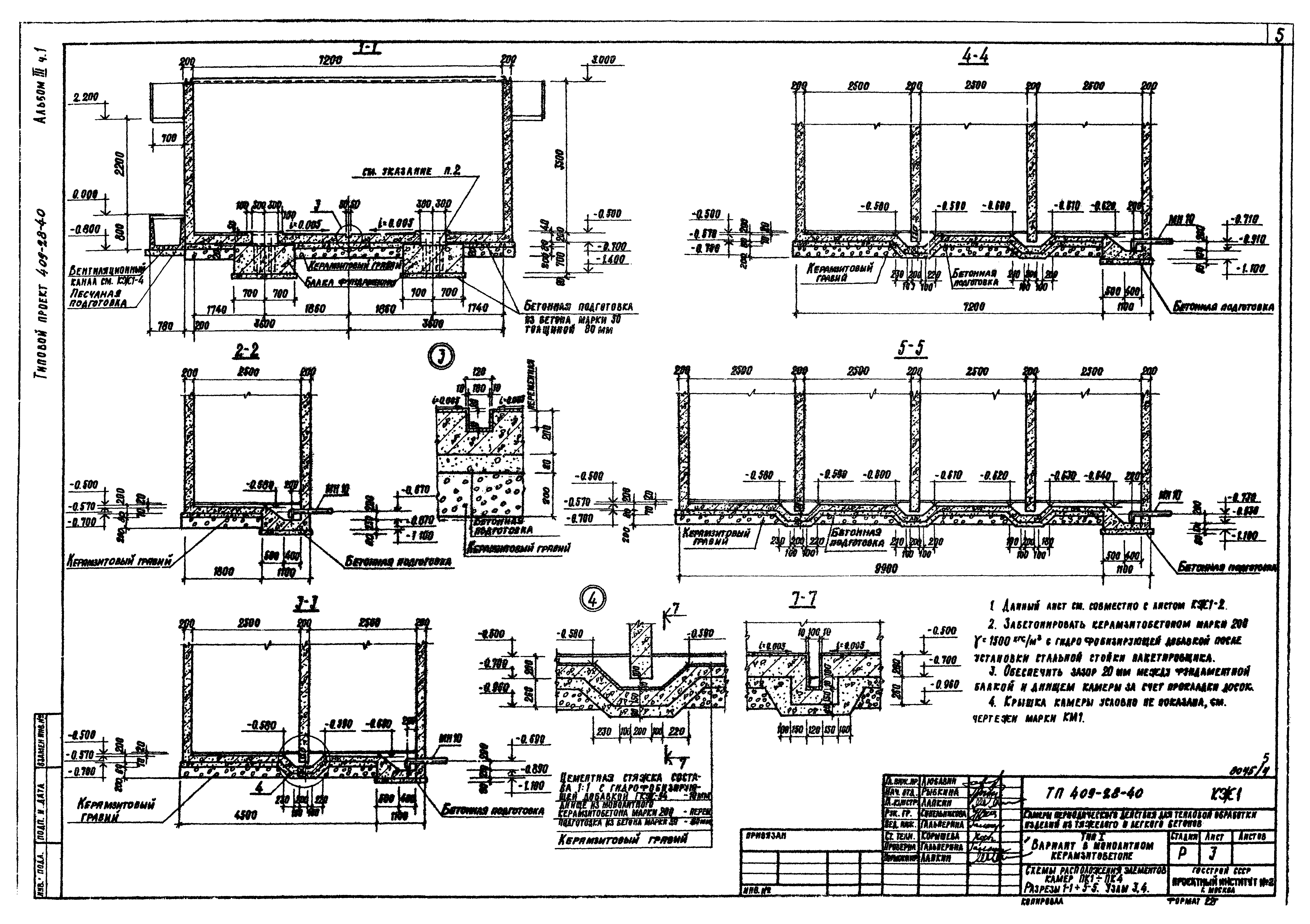
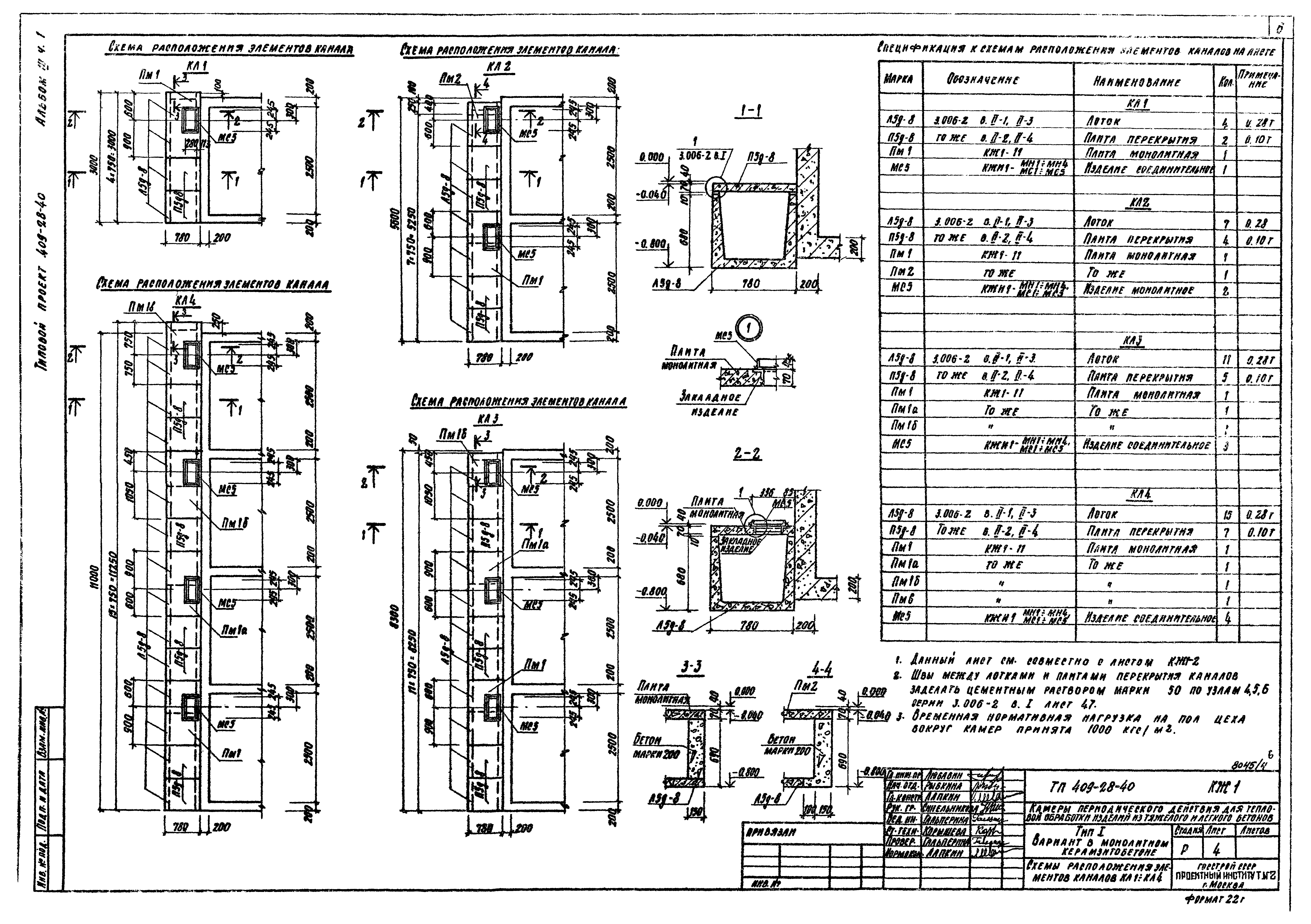
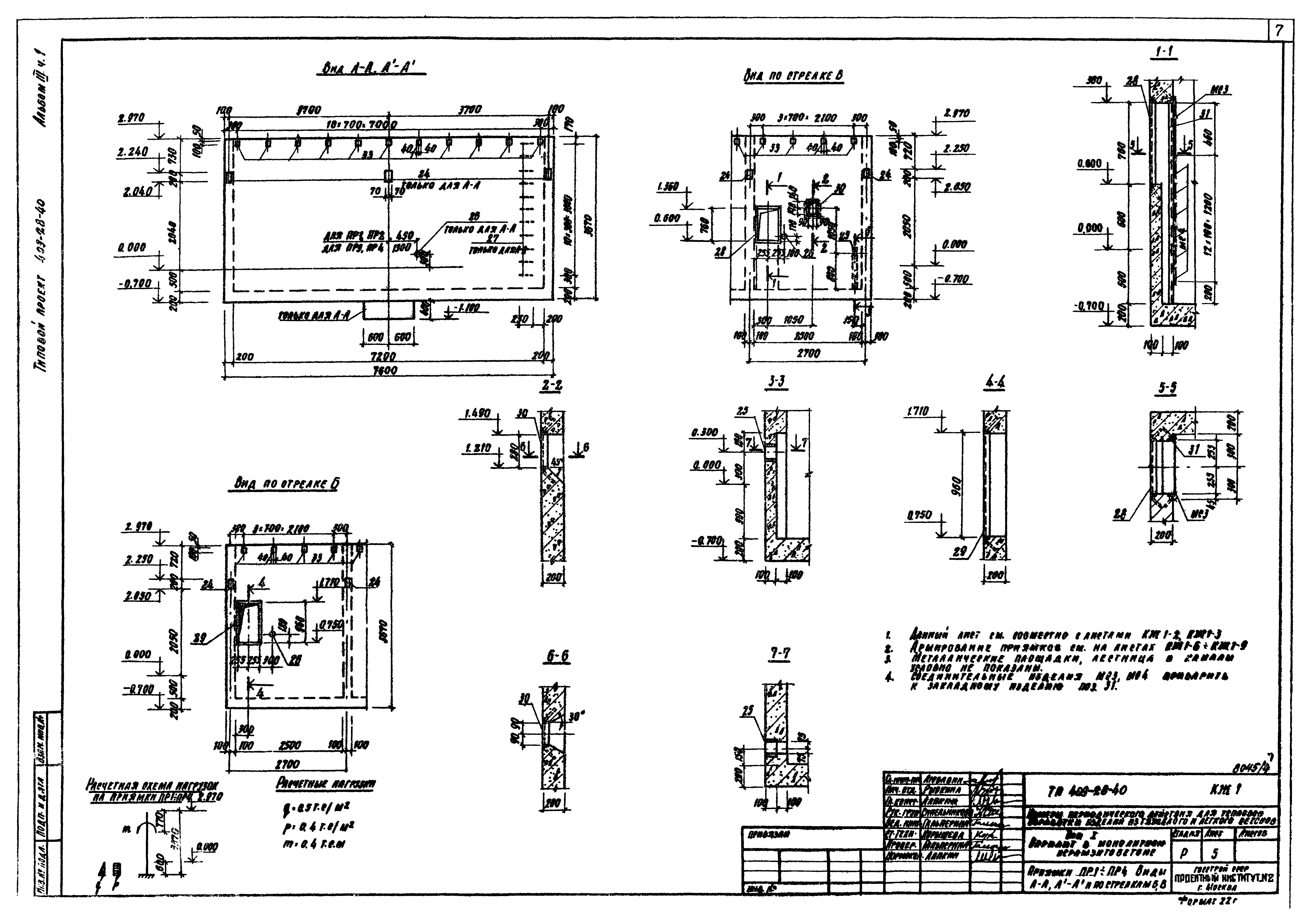
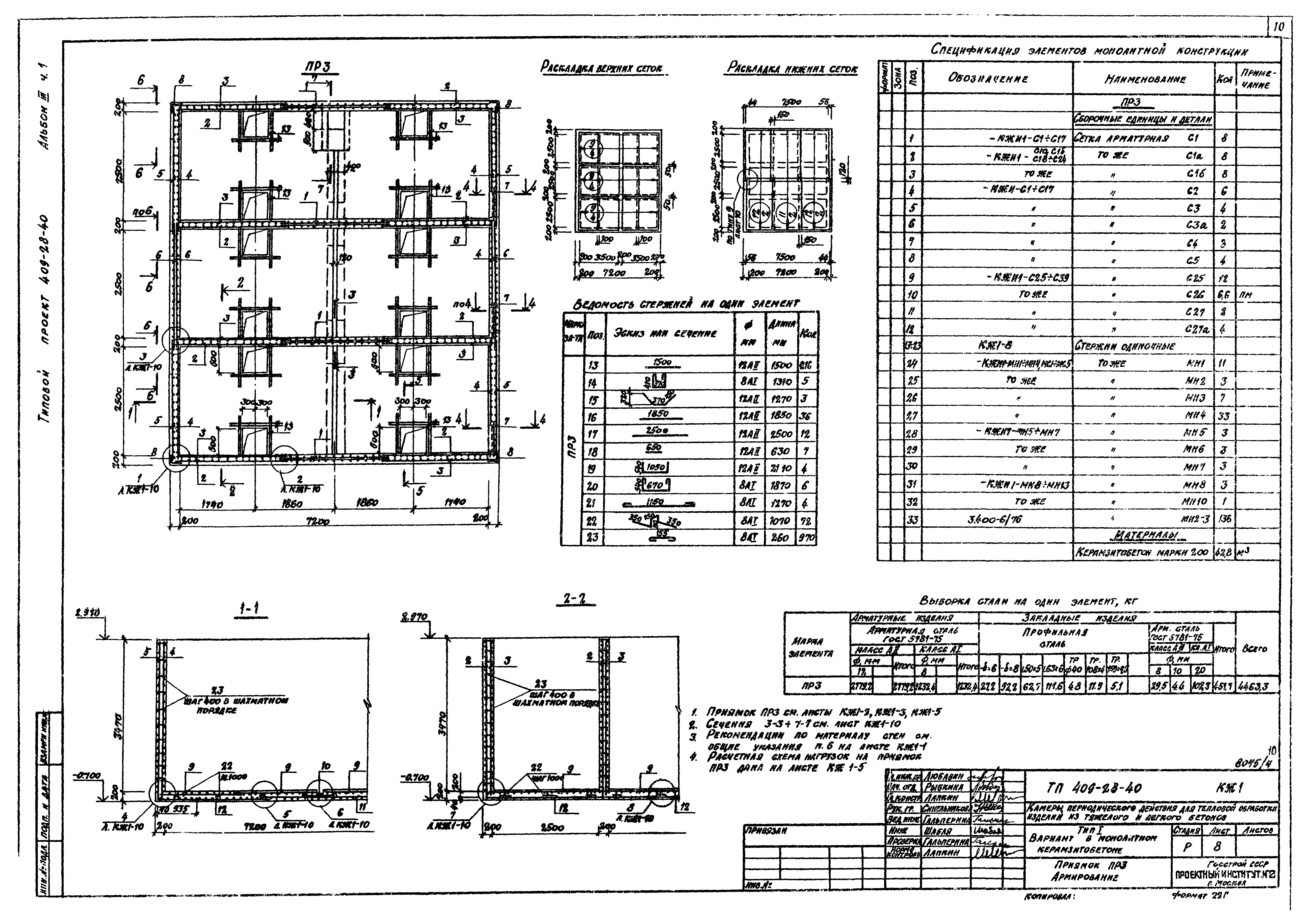
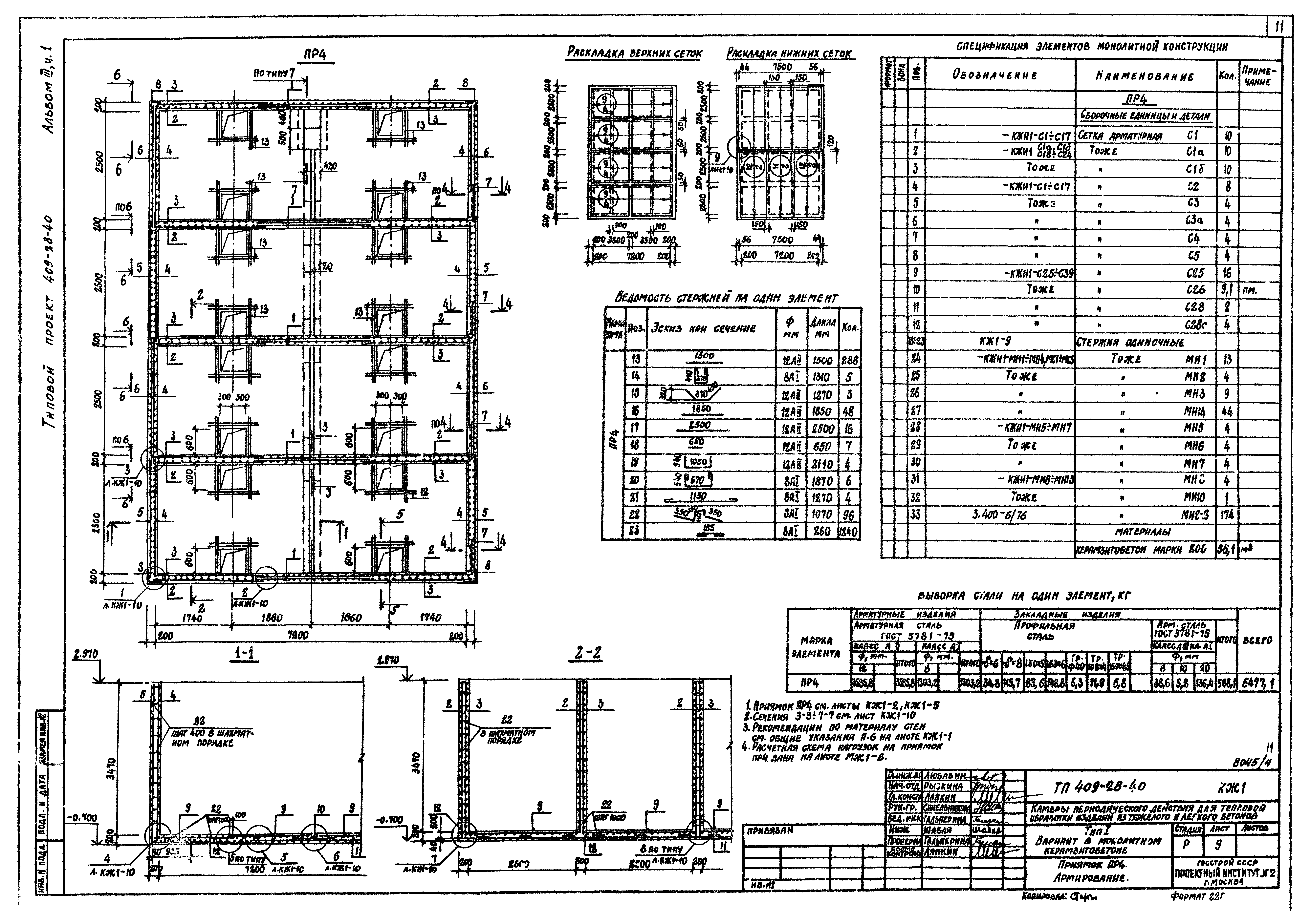
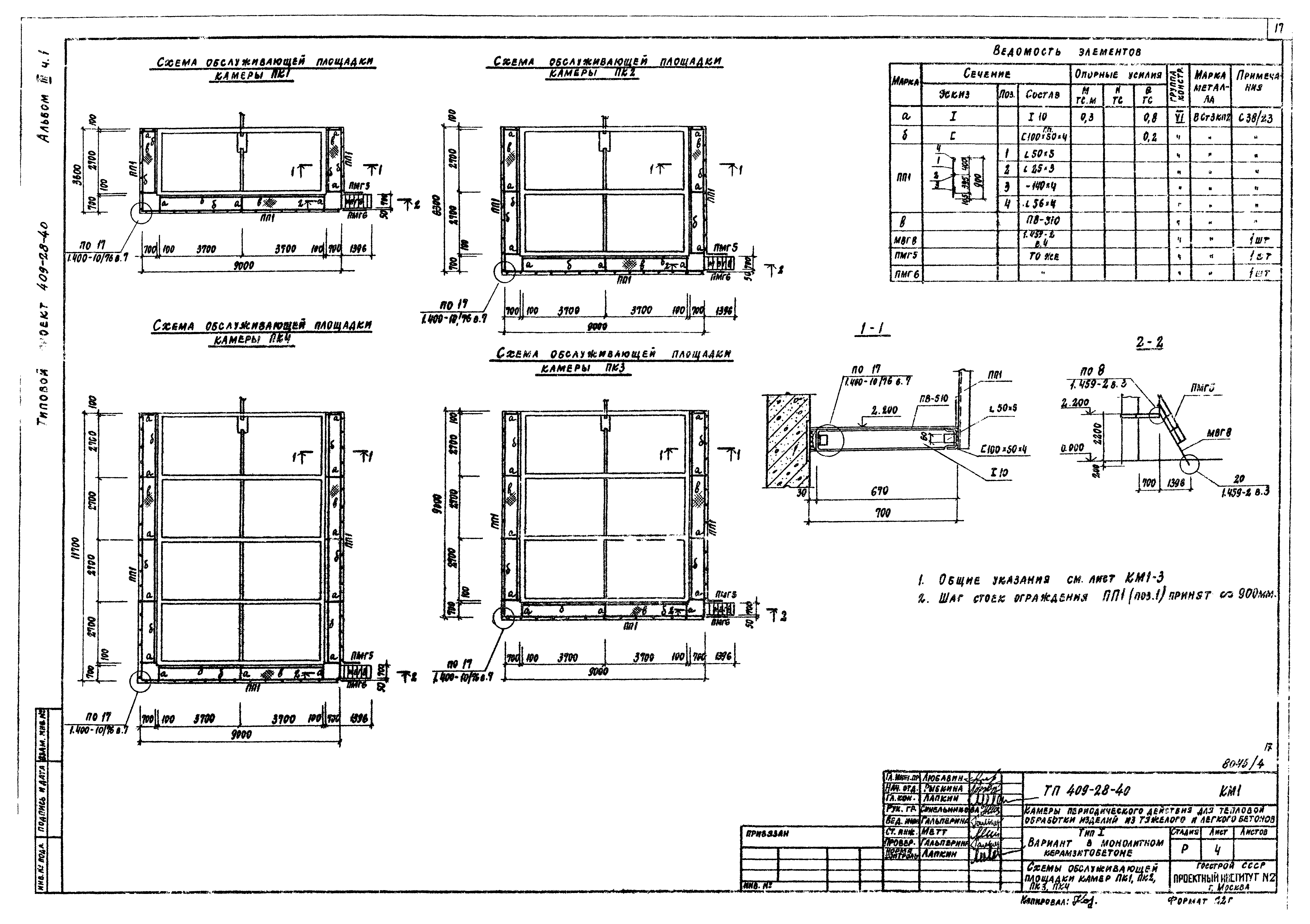
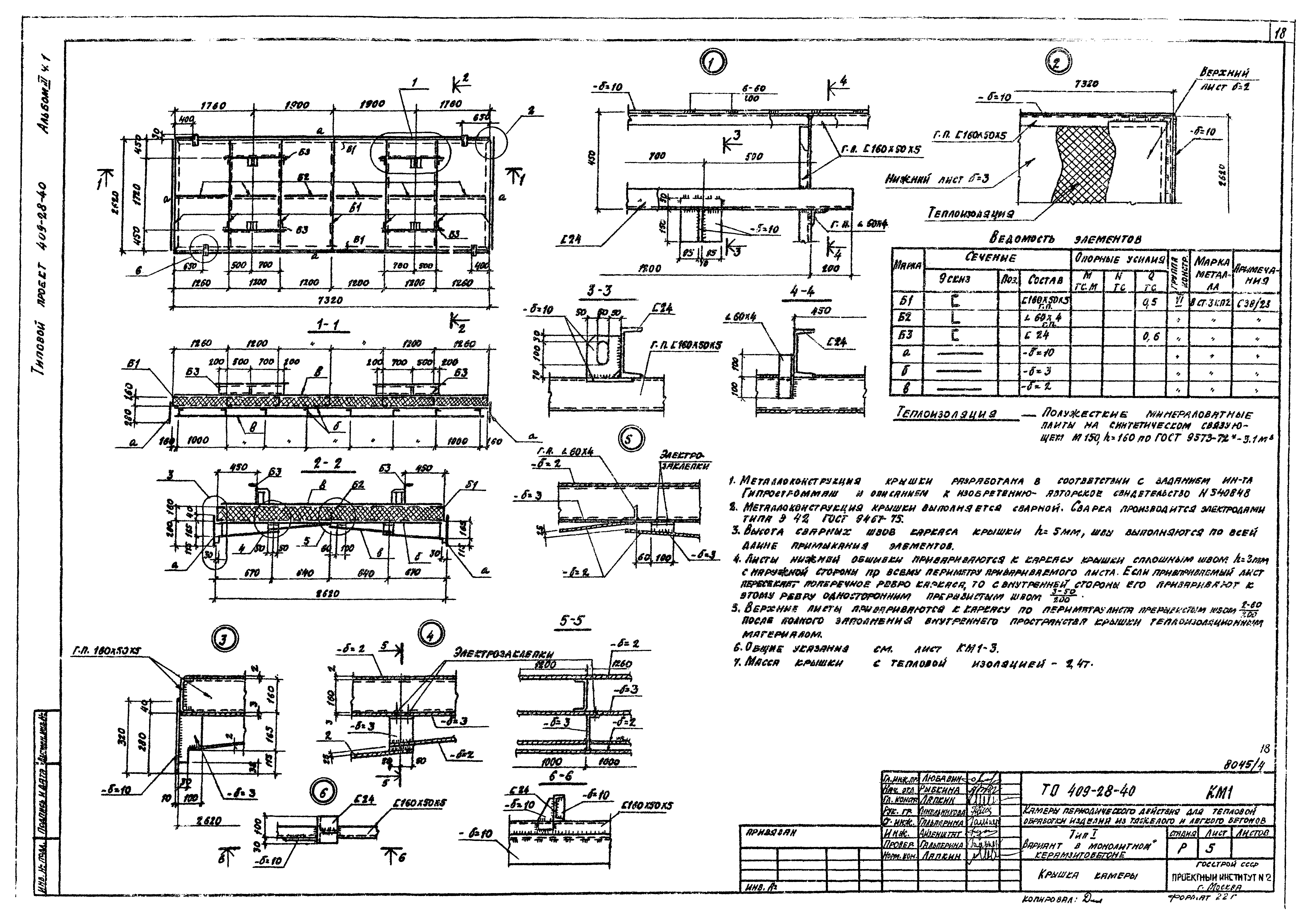
| Оглавление: | Содержание альбома Конструкции железобетонные Общие данные Схемы расположения элементов камер ПК1 - ПК4. Узлы 1, 8 Схемы расположения элементов камер ПК1 - ПК4. Разрезы 1-1 - 5-5. Узлы 3, 4 Схемы расположения элементов каналов КЛ1 - КЛ4 Приямки ПР1 - ПР4. Виды А-А - А`-А` и по стрелкам В, В Приямок ПР1. Армирование Приямок ПР2. Армирование Приямок ПР3. Армирование Приямок ПР4. Армирование Приямки ПР1 - ПР4. Узлы армирования Балки фундаментные монолитные БФМ1 - БФМ4. Плиты монолитные Пм1 - Пм4 Конструкции металлические Общие данные. Техническая спецификация металла на камеры Общие данные. Техническая спецификация металла по площадкам, лестницам и ограждениям Общие данные. Ведомость металлоконструкций по видам профилей Схемы обслуживающей площадки камер ПК1, ПК2, ПК3, ПК4 Крышка камеры Организация строительства Основные положения по организации строительства |
| Разработан: | ВНИИжелезобетон Проектный институт № 2 Госстроя СССР |
| Утверждён: | 06.08.1981 Госстрой СССР (61) |
| Заменяет собой: |
|




















