Скачать Типовой проект 409-28-40 Альбом IV. Часть 2. Строительные конструкции камер типа II. Вариант в сборном керамзитобетонеДата актуализации: 01.01.2021
|
| Обозначение: | Типовой проект 409-28-40 |
| Обозначение англ: | 409-28-40 |
| Статус: | действует |
| Название рус.: | Альбом IV. Часть 2. Строительные конструкции камер типа II. Вариант в сборном керамзитобетоне |
| Дата добавления в базу: | 01.10.2014 |
| Дата актуализации: | 01.01.2021 |
| Дата введения: | 18.09.1981 |
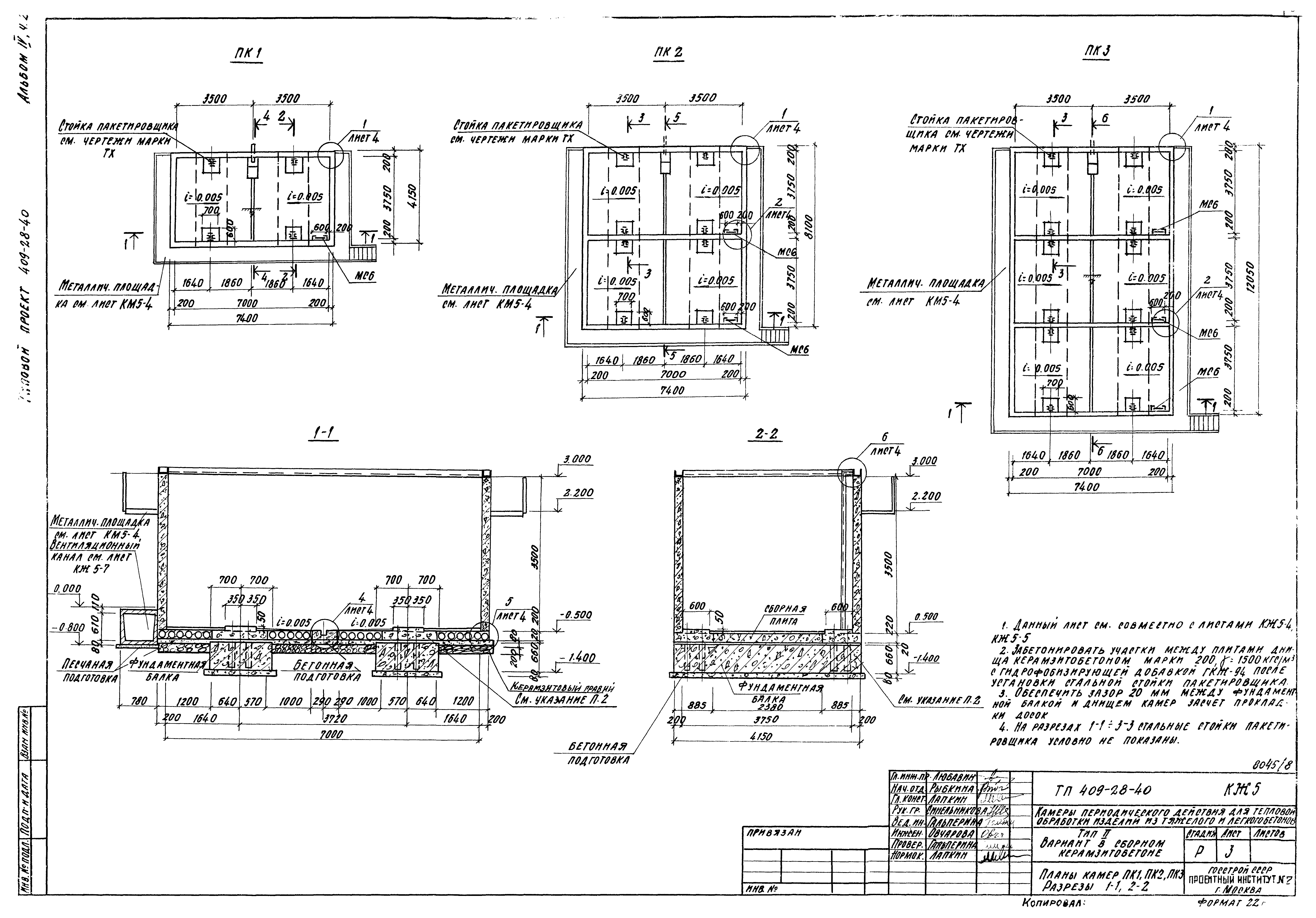
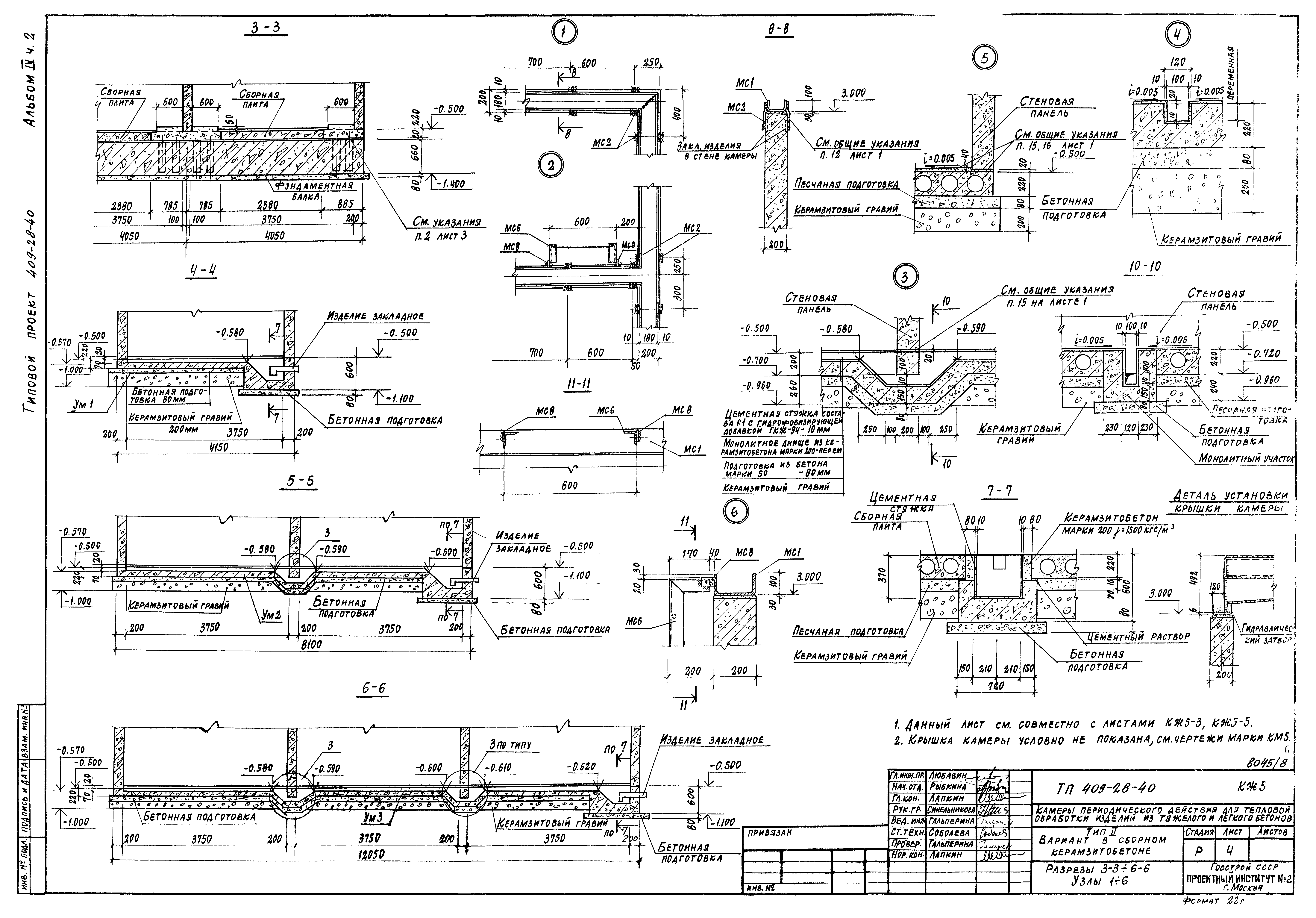
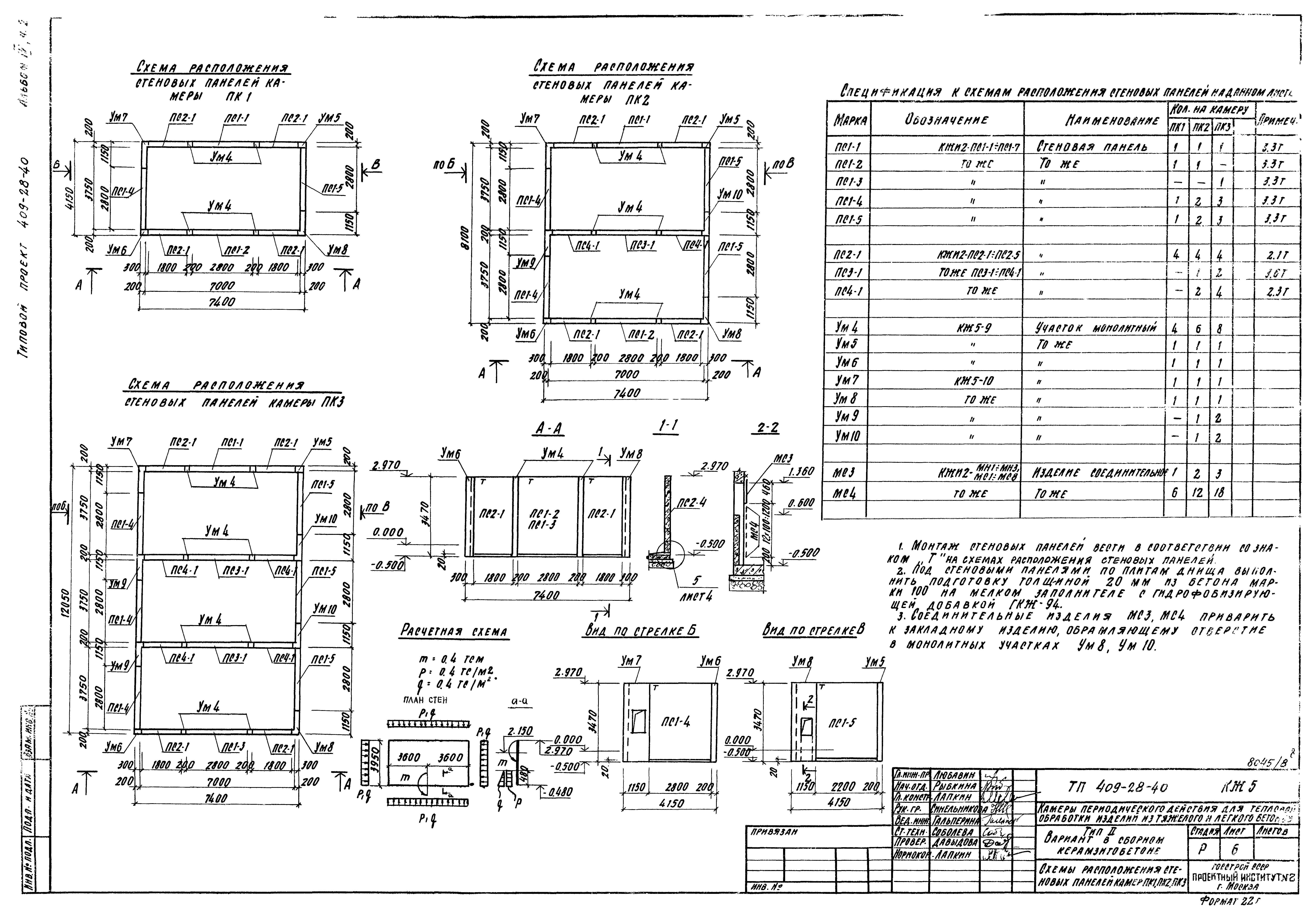
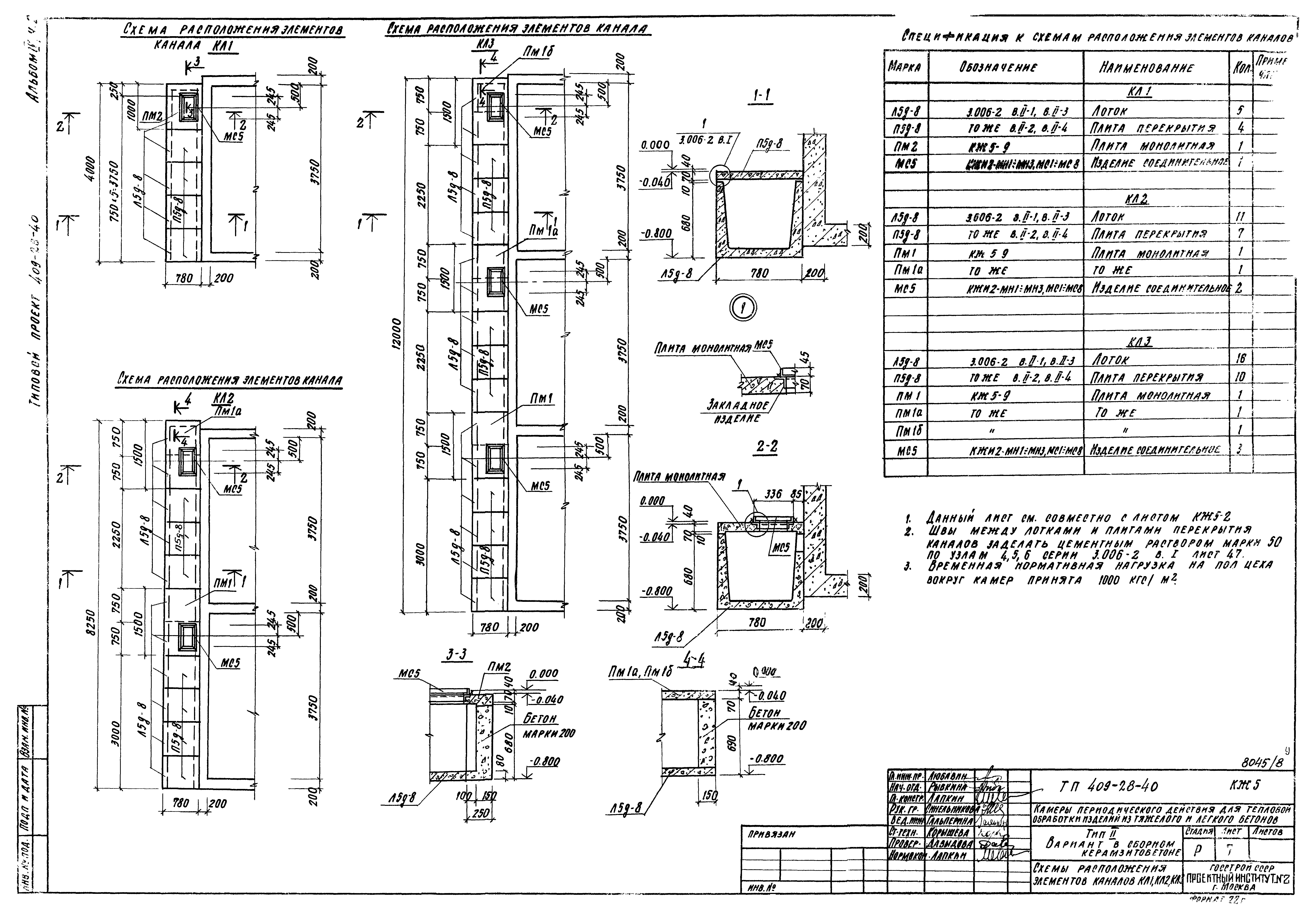
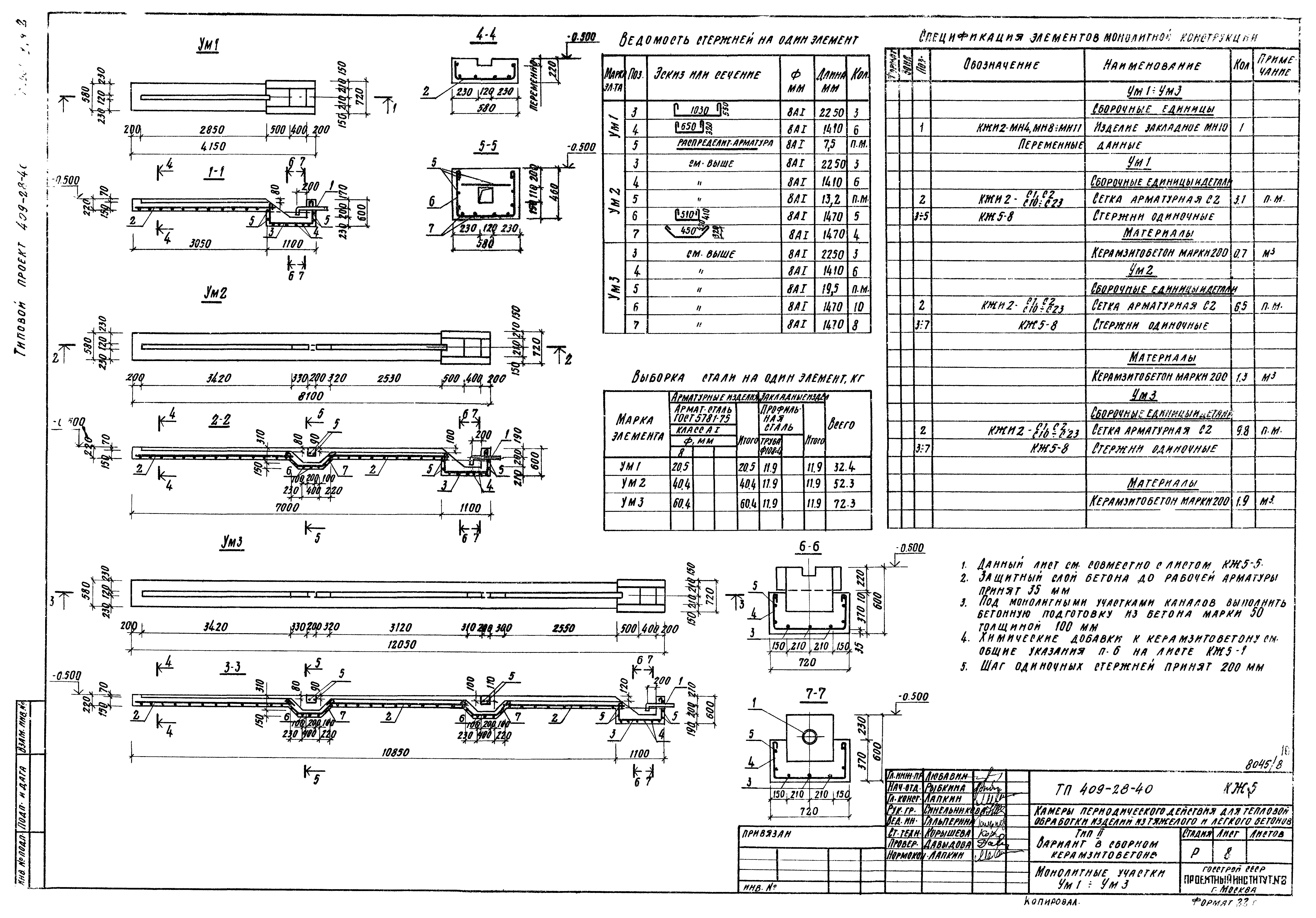
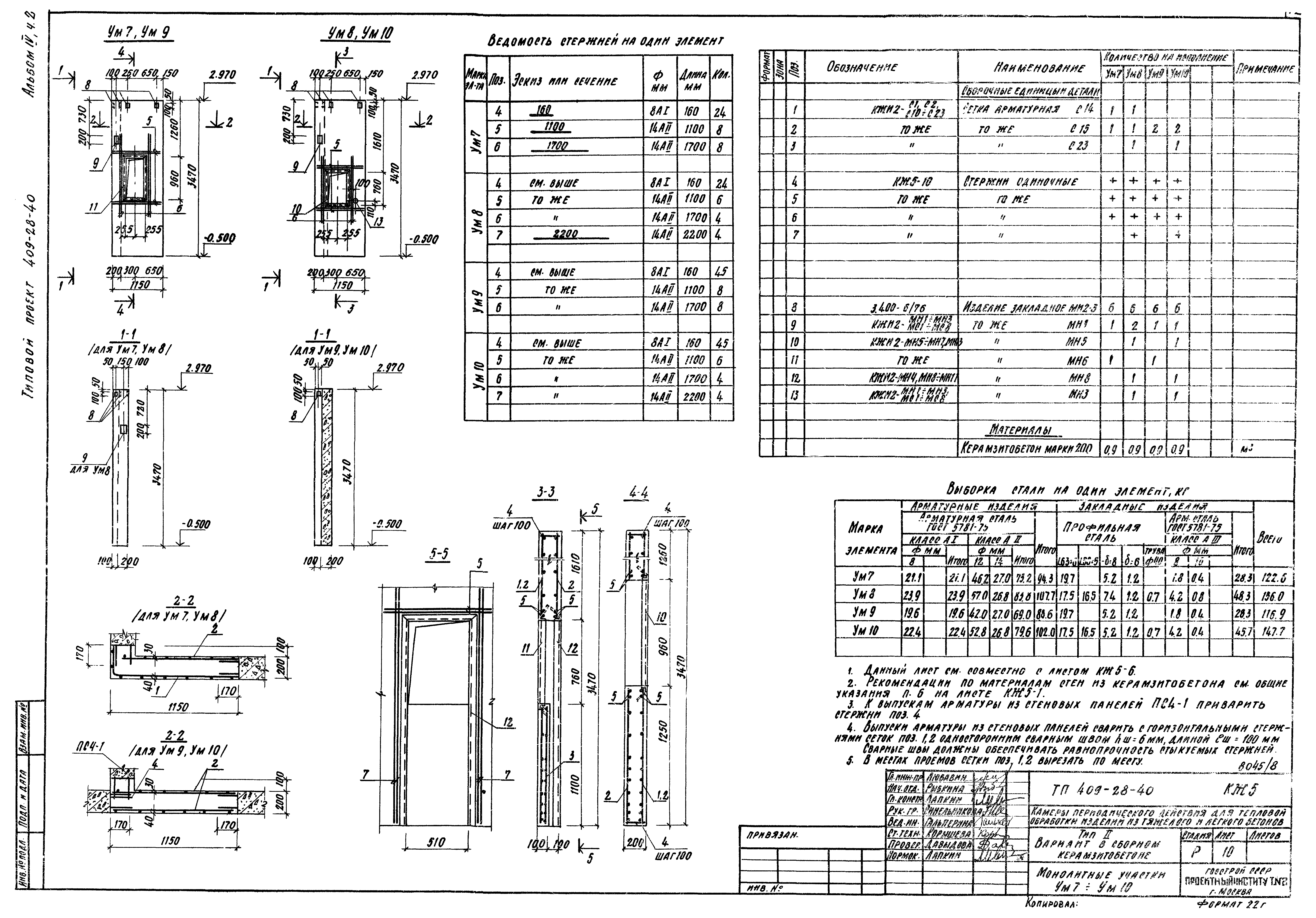
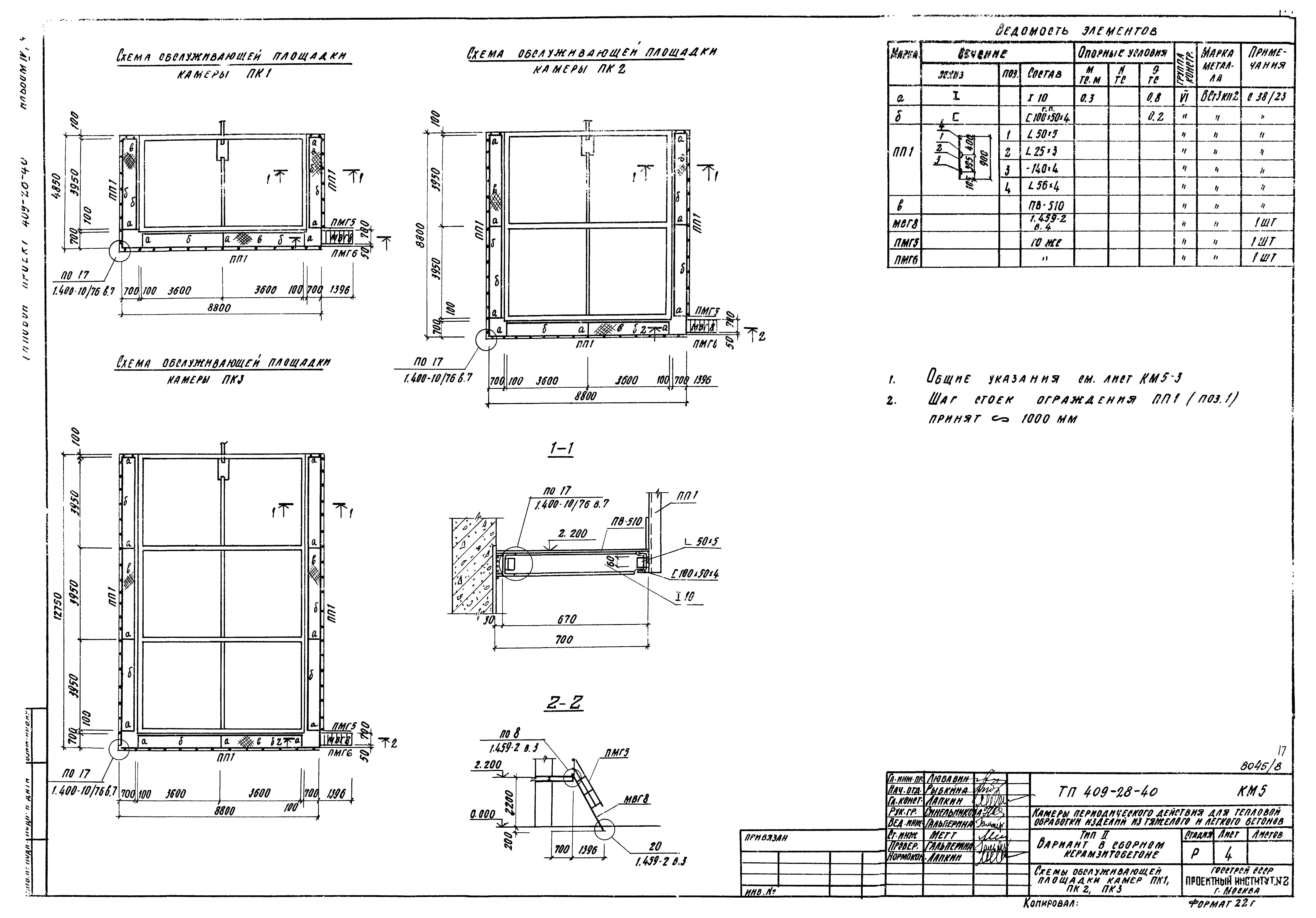
| Оглавление: | Содержание альбома Конструкции железобетонные Общие данные Планы камер ПК1, ПК2, ПК3. Разрезы 1-1, 2-2 Разрезы 3-3 - 6-6. Узлы 1 - 6 Схемы расположения плит днища камер ПК1, ПК2, ПК3 Схемы расположения стеновых панелей камер ПК1, ПК2, ПК3 Схемы расположения элементов каналов КЛ1, КЛ2, КЛ3 Монолитные участки Ум1 - Ум3 Монолитные участки Ум4 - Ум6, Пм1, Пм1а, Пм1б, Пм2 Монолитные участки Ум7 - Ум10 Балки фундаментные монолитные БФм1, БФм2, БФм3 Конструкции металлические Общие данные. Техническая спецификация металла на камеры Общие данные. Техническая спецификация металла по площадкам, лестницам и ограждениям Общие данные. Ведомость металлоконструкций по видам профилей Схемы обслуживающей площадки камер ПК1, ПК2, ПК3 Крышка камеры Организация строительства Основные положения по организации строительства |
| Разработан: | ВНИИжелезобетон Проектный институт № 2 Госстроя СССР |
| Утверждён: | 06.08.1981 Госстрой СССР (61) |
| Заменяет собой: |
|




















