Скачать Типовой проект 409-28-40 Альбом VIII. Часть 3. Строительные изделия камер типов I - V. Вариант в сборном железобетоне с тепловой изоляциейДата актуализации: 01.01.2021
|
| Обозначение: | Типовой проект 409-28-40 |
| Обозначение англ: | 409-28-40 |
| Статус: | действует |
| Название рус.: | Альбом VIII. Часть 3. Строительные изделия камер типов I - V. Вариант в сборном железобетоне с тепловой изоляцией |
| Дата добавления в базу: | 01.10.2014 |
| Дата актуализации: | 01.01.2021 |
| Дата введения: | 18.09.1981 |
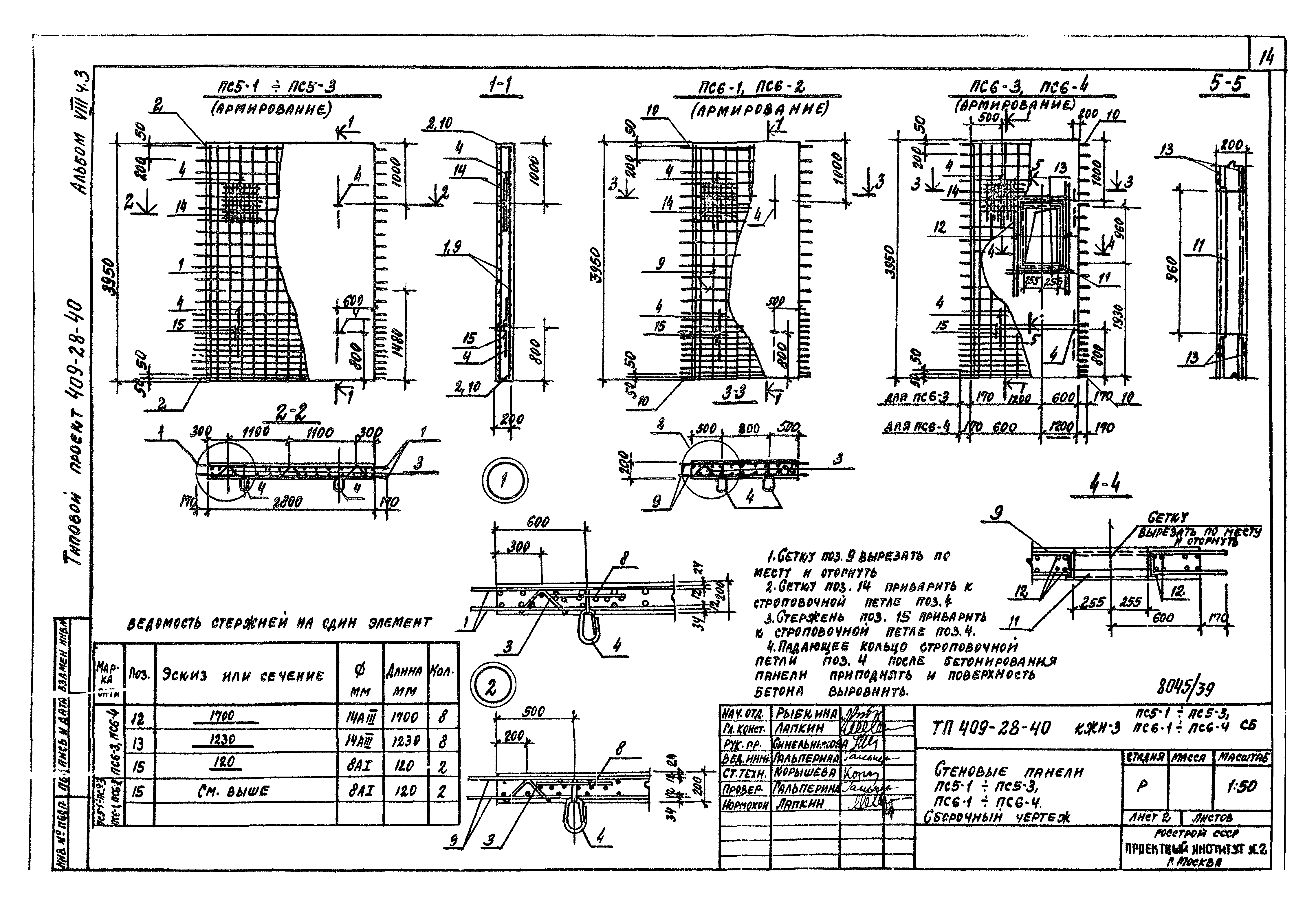
| Оглавление: | Содержание альбома КЖИ3-ПС1-1- ПС1-7 Стеновые панели ПС1-1- ПС1-7 КЖИ3-ПС1-1- ПС1-7СБ Стеновые панели ПС1-1- ПС1-7. Сборочный чертеж КЖИ3-ПС2-1- ПС2-5 Стеновые панели ПС2-1- ПС2-5 КЖИ3-ПС2-1- ПС2-5СБ Стеновые панели ПС2-1- ПС2-5. Сборочный чертеж КЖИ3-ПС3-1, ПС4-1 Стеновые панели ПС3-1, ПС4-1 КЖИ3-ПС3-1, ПС4-1СБ Стеновые панели ПС3-1, ПС4-1. Сборочный чертеж КЖИ3-ПС5-1 - ПС5-3; ПС6-1 - ПС6-4 Стеновые панели ПС5-1 - ПС5-3; ПС6-1 - ПС6-4 КЖИ3-ПС5-1 - ПС5-3; ПС6-1 - ПС6-4СБ Стеновые панели ПС5-1 - ПС5-3; ПС6-1 - ПС6-4. Сборочный чертеж КЖИ3-ПС6-5, ПС6-6 Стеновые панели ПС6-5, ПС6-6 КЖИ3-ПС6-5, ПС6-6СБ Стеновые панели ПС6-5, ПС6-6. Сборочный чертеж КЖИ3-ПС7-1, ПС8-1 Стеновые панели ПС7-1, ПС8-1 КЖИ3-ПС7-1, ПС8-1СБ Стеновые панели ПС7-1, ПС8-1. Сборочный чертеж КЖИ3-С1 - С3; С11 - С24 Сетки арматурные С1 - С3; С11 - С24 КЖИ3-С1 - С3; С11 - С24СБ Сетки арматурные С1 - С3; С11 - С24. Сборочный чертеж КЖИ3-С4 - С6; С31 Сетки арматурные С4 - С6; С31 КЖИ3-С7 - С10 Сетки арматурные С7 - С10 КЖИ3-С25 - С30 Сетки арматурные С25 - С30 КЖИ3-КП1 - КП11 Каркасы пространственные КП1 - КП11 КЖИ3-КП1 - КП11СБ Каркасы пространственные КП1 - КП11. Сборочный чертеж КЖИ3-КР1 - КР12, КР22 Каркасы плоские КР1 - КР12, КР22 КЖИ3-КР1 - КР12, КР22СБ Каркасы плоские КР1 - КР12, КР22. Сборочный чертеж КЖИ3-КП12, КП13 Каркасы пространственные КП12, КП13 КЖИ3-КР13 - КР15, А1 Каркасы плоские КР13 - КР15. Анкер А1 КЖИ3-КР16 - КР21 Каркасы плоские КР16 - КР21 КЖИ3-МН1 - МН4; МН8 - МН11 Изделия закладные МН1 - МН4; МН8 - МН11 КЖИ3-МН5 - МН7; МН12 Изделия закладные МН5 - МН7; МН12 КЖИ3-МС1 - МС8 Изделия соединительные МС1 - МС8 |
| Разработан: | ВНИИжелезобетон Проектный институт № 2 Госстроя СССР |
| Утверждён: | 06.08.1981 Госстрой СССР (61) |
| Заменяет собой: |
|



































