Скачать Типовой проект 901-6-82.86 Альбом III. Строительные узлы (из ТП 901-6-81.86)Дата актуализации: 01.01.2021
|
| Обозначение: | Типовой проект 901-6-82.86 |
| Обозначение англ: | 901-6-82.86 |
| Статус: | отменен |
| Название рус.: | Альбом III. Строительные узлы (из ТП 901-6-81.86) |
| Дата добавления в базу: | 01.10.2014 |
| Дата актуализации: | 01.01.2021 |
| Дата введения: | 22.08.1985 |
| Дата окончания срока действия: | 01.01.1991 |
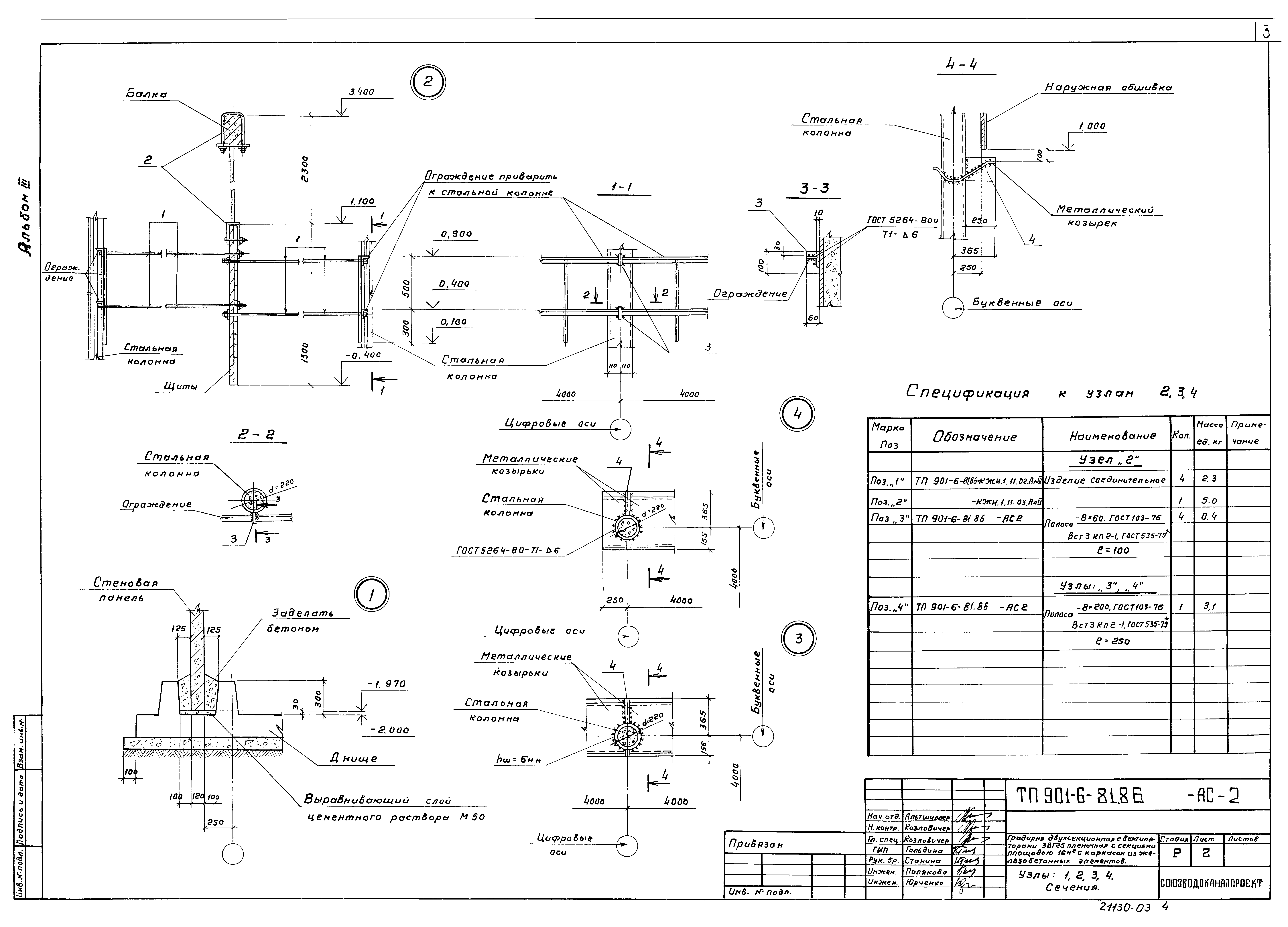
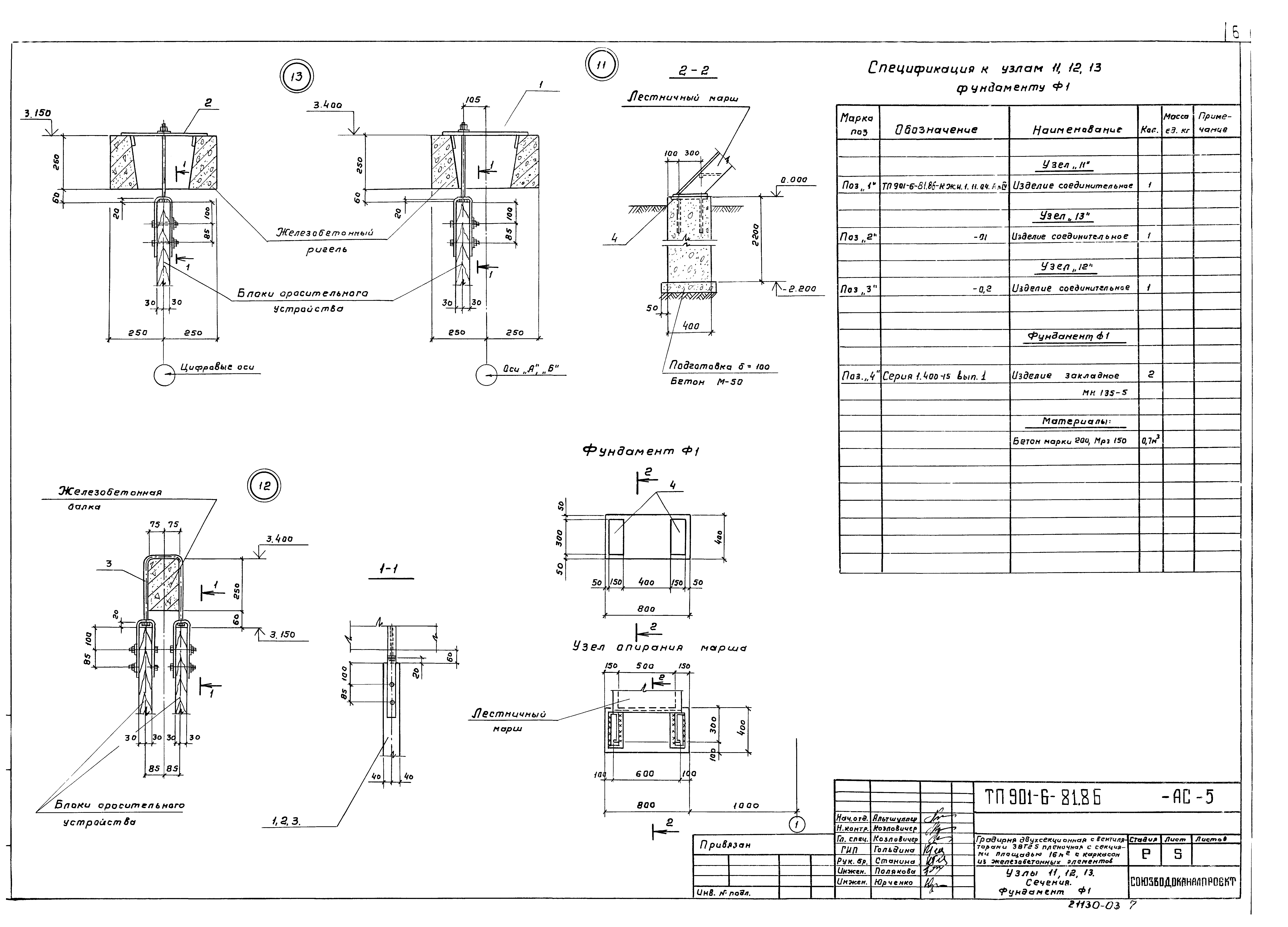
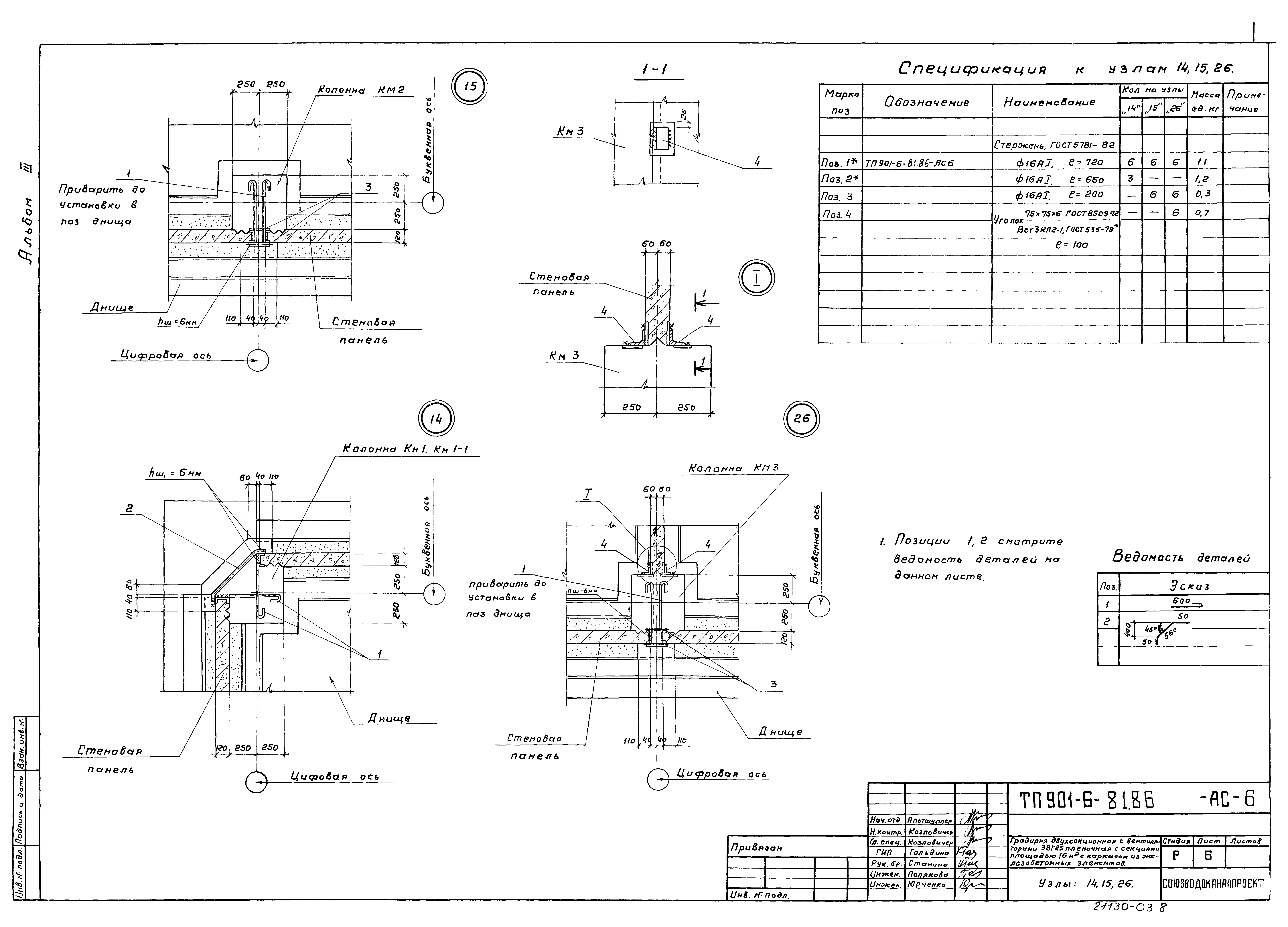
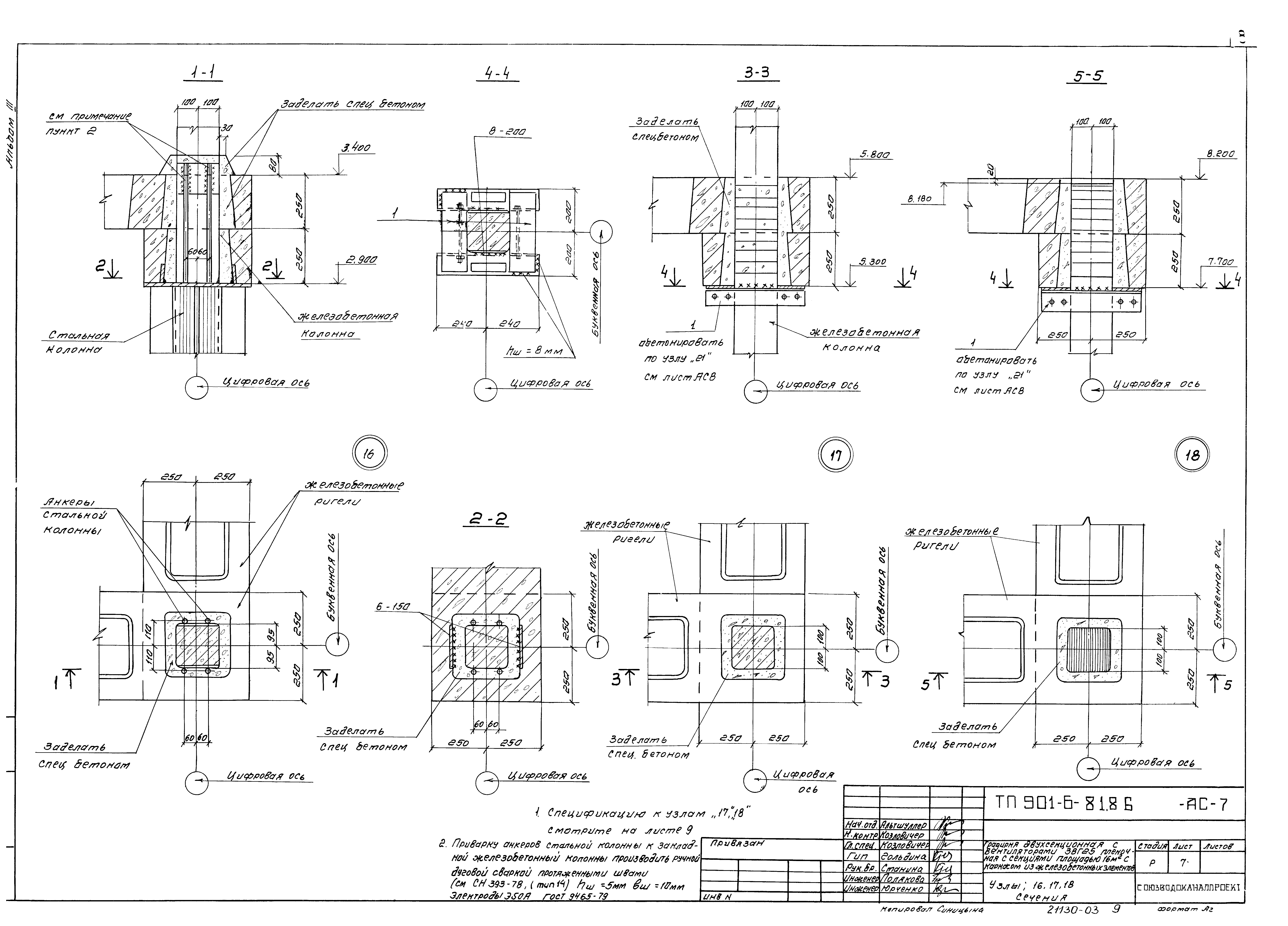
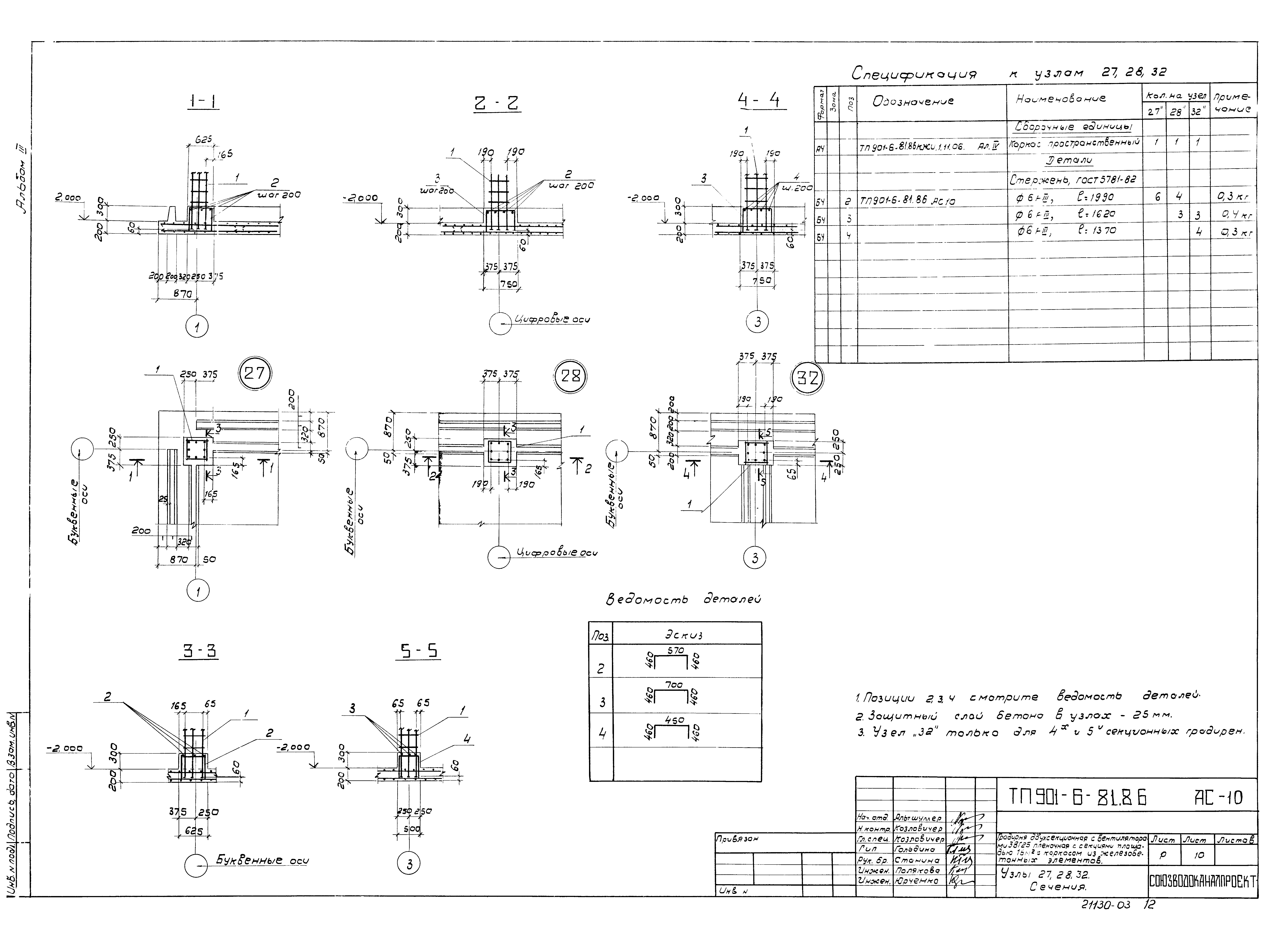
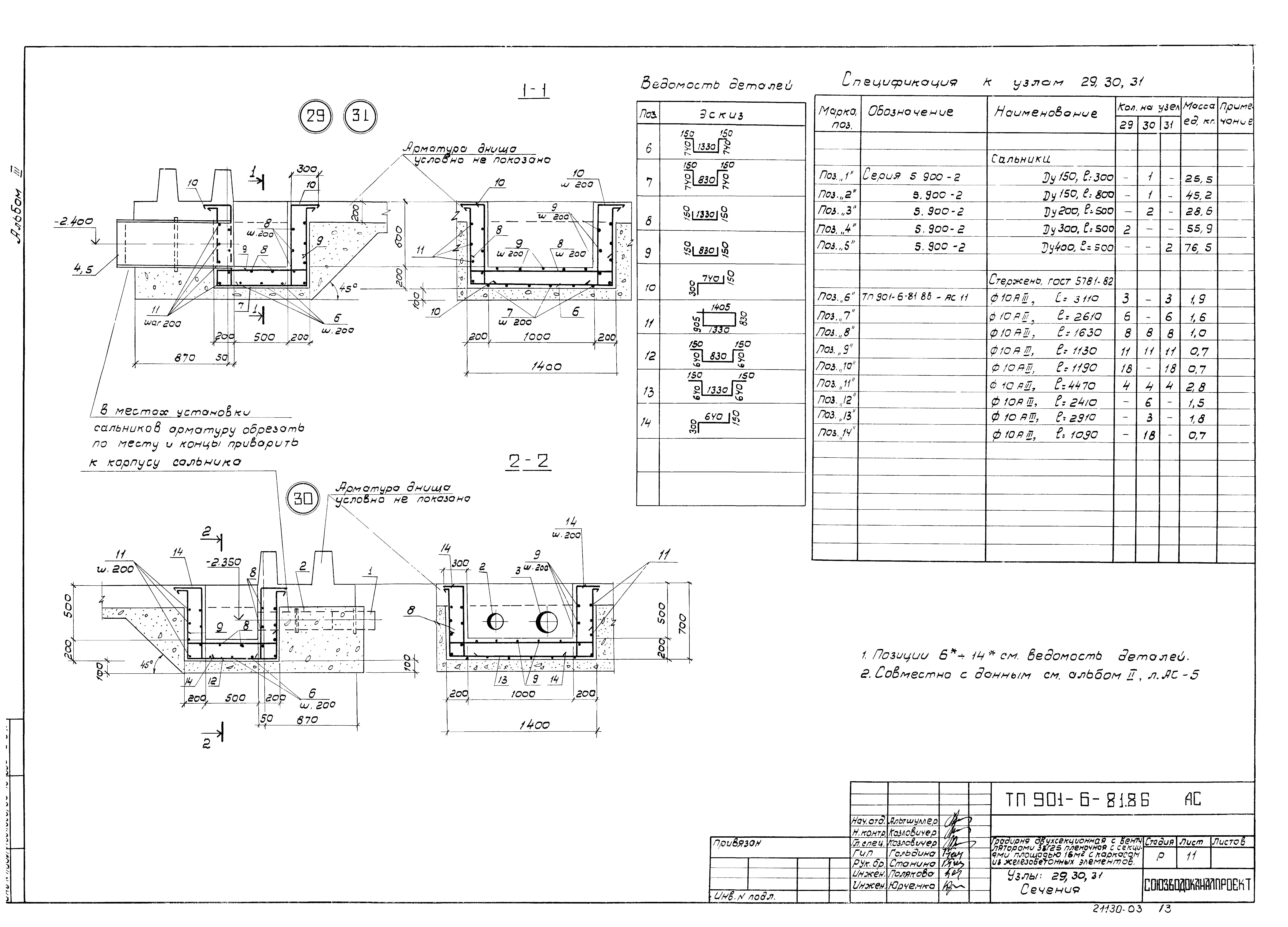
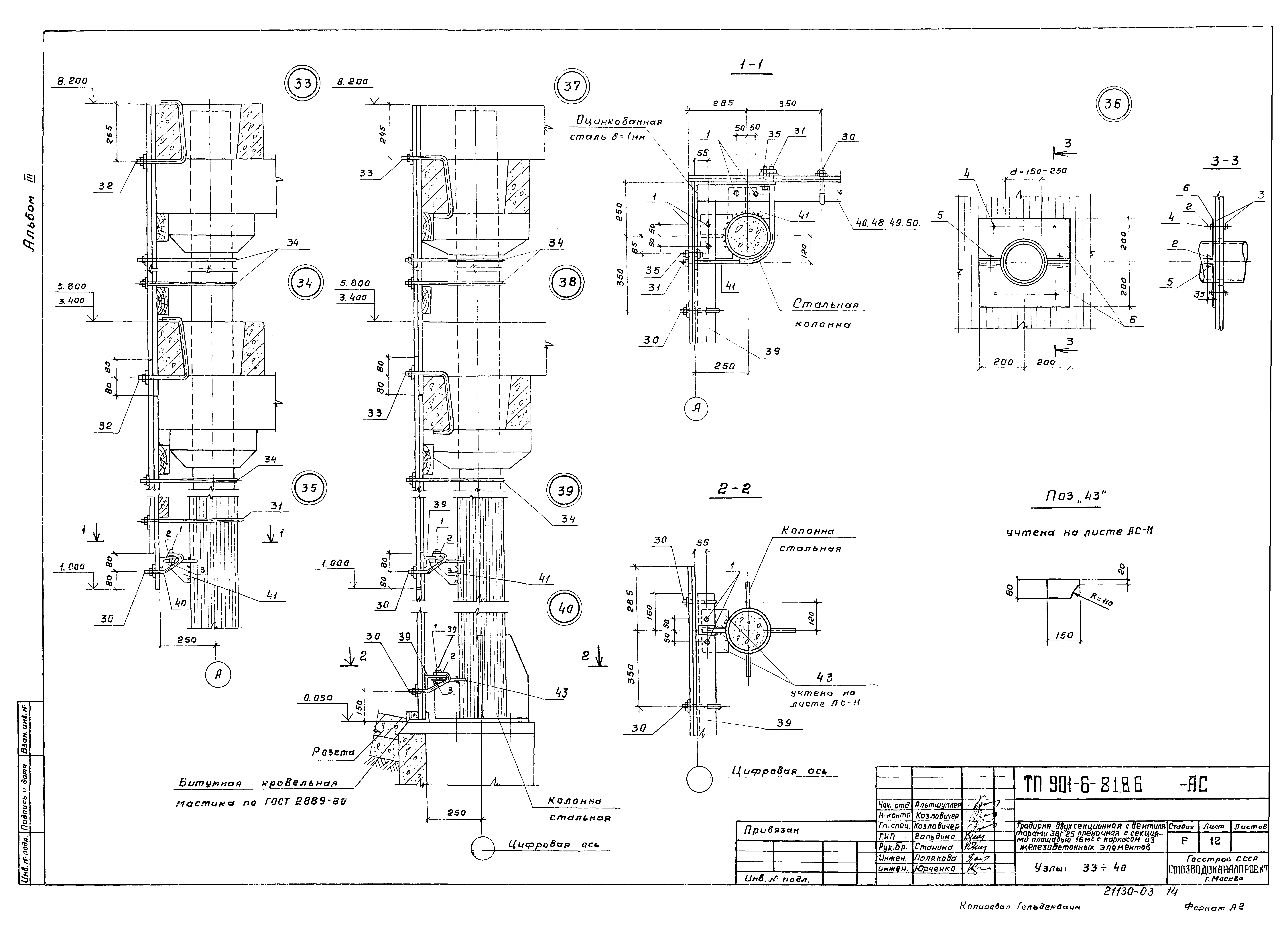
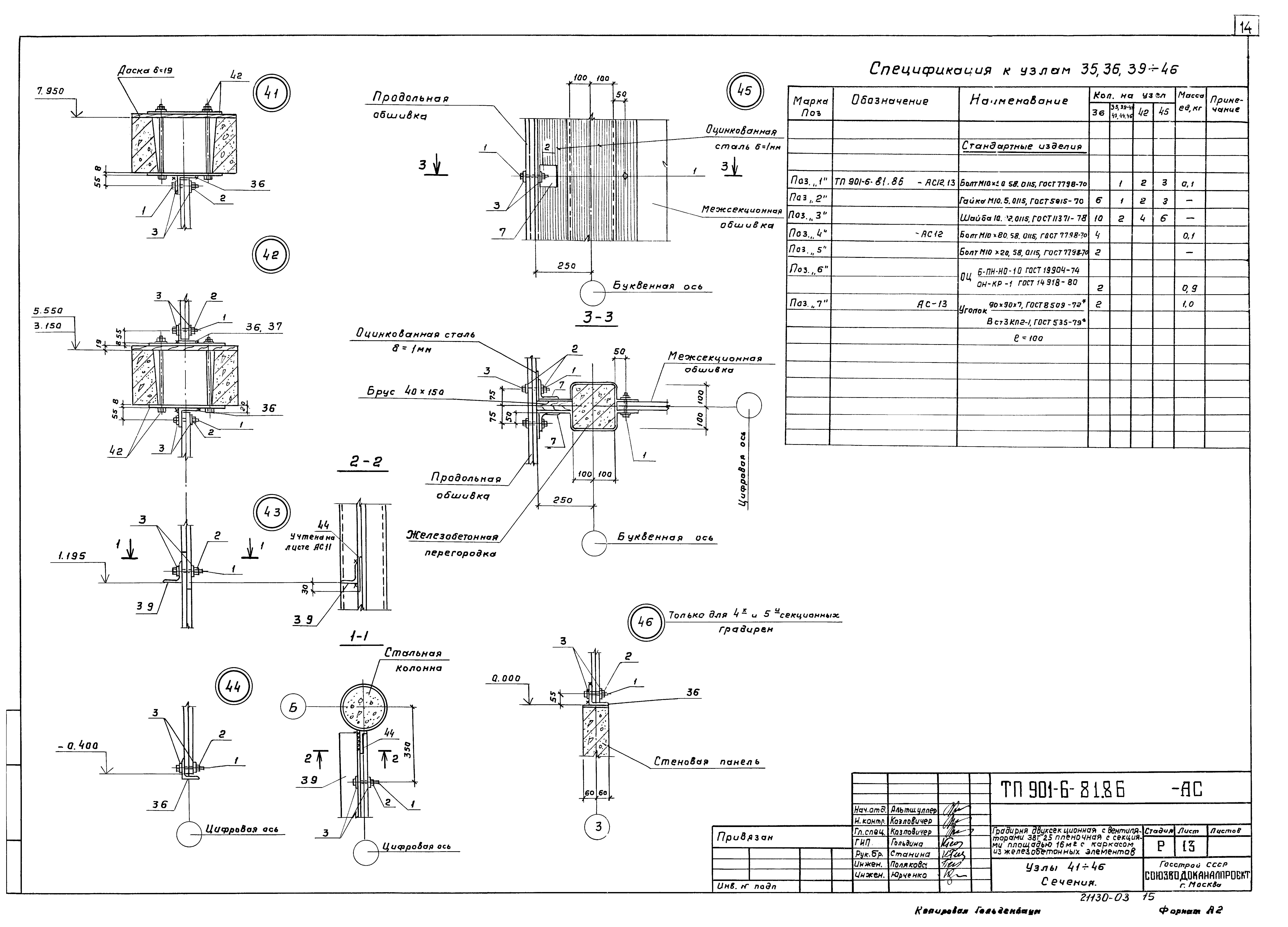
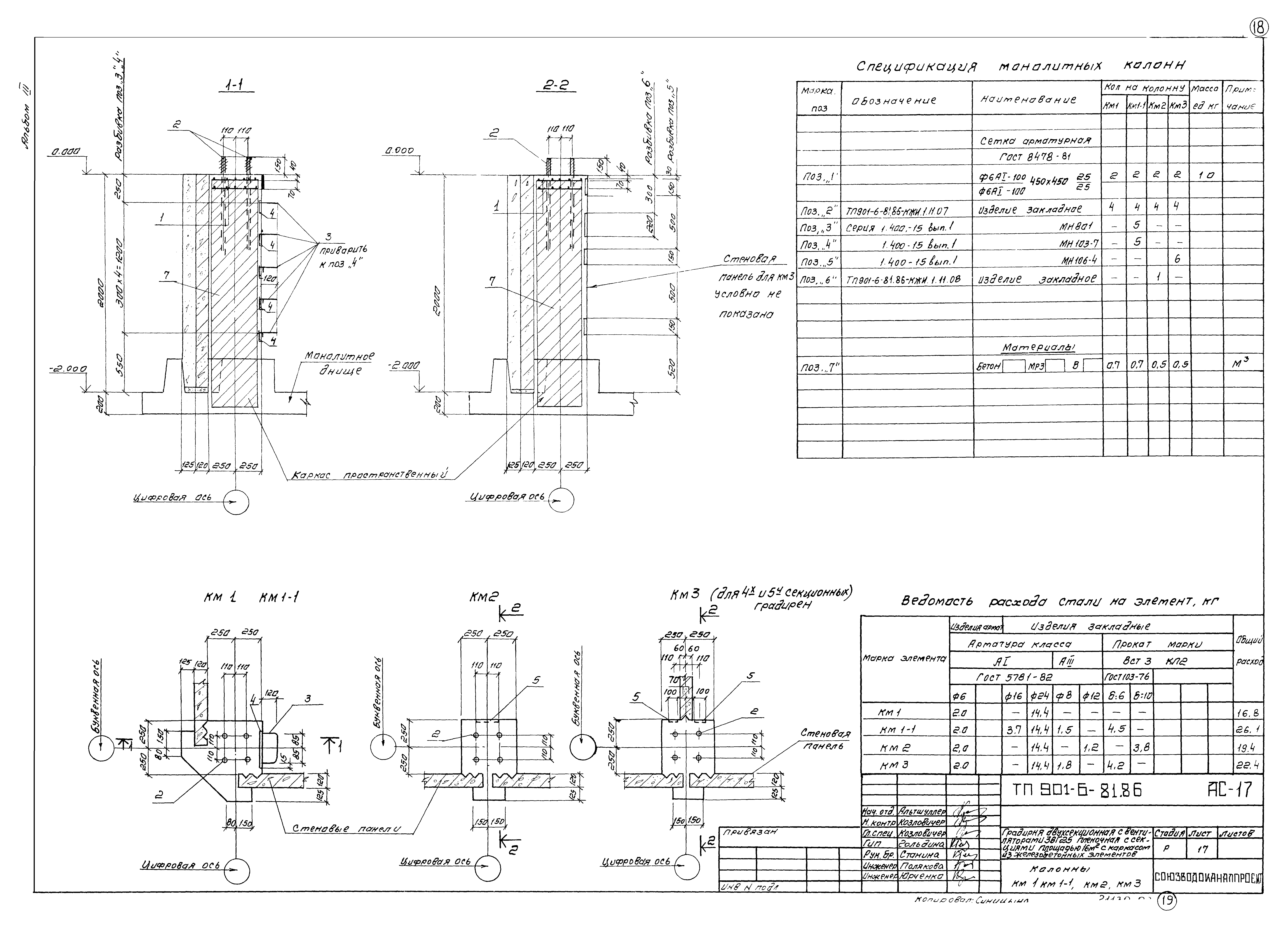
| Оглавление: | Общие данные Узлы 1, 2, 3, 4. Сечения Узлы 5, 6, 7. Сечения Узлы 8, 9, 10. Сечения Узлы 11, 12, 13. Сечения. Фундамент Ф1 Узлы 14, 15, 26. Сечения Узлы 16, 17, 18. Сечения Узлы 19, 20, 21, 22, 23. Сечения Узлы 24, 25. Сечения Узлы 27, 28, 32. Сечения Узлы 29, 30, 31. Сечения Узлы 33 - 40 Узлы 41 - 46. Сечения Элемент "1". План. Сечения. Узлы Элемент "2", "3", "4". План. Сечения. Узлы Элемент "5". План. Сечения Колонны КМ1, КМ1-1, КМ2, КМ3 |
| Разработан: | Союзводоканалпроект |
| Утверждён: | 03.12.1984 Госстрой СССР (37) |
| Заменяет собой: |
|



















