Скачать Типовой проект 244-1-66.86 Альбом II. Архитектурно-строительные решения ниже отм. 0.000 (вариант с хозяйственно-бытовыми помещениями в подвале)Дата актуализации: 01.01.2021
|
| Обозначение: | Типовой проект 244-1-66.86 |
| Обозначение англ: | 244-1-66.86 |
| Статус: | не определен законодательством |
| Название рус.: | Альбом II. Архитектурно-строительные решения ниже отм. 0.000 (вариант с хозяйственно-бытовыми помещениями в подвале) |
| Дата добавления в базу: | 01.10.2014 |
| Дата актуализации: | 01.01.2021 |
| Дата введения: | 08.12.1986 |
| Дата окончания срока действия: | 30.06.2003 |
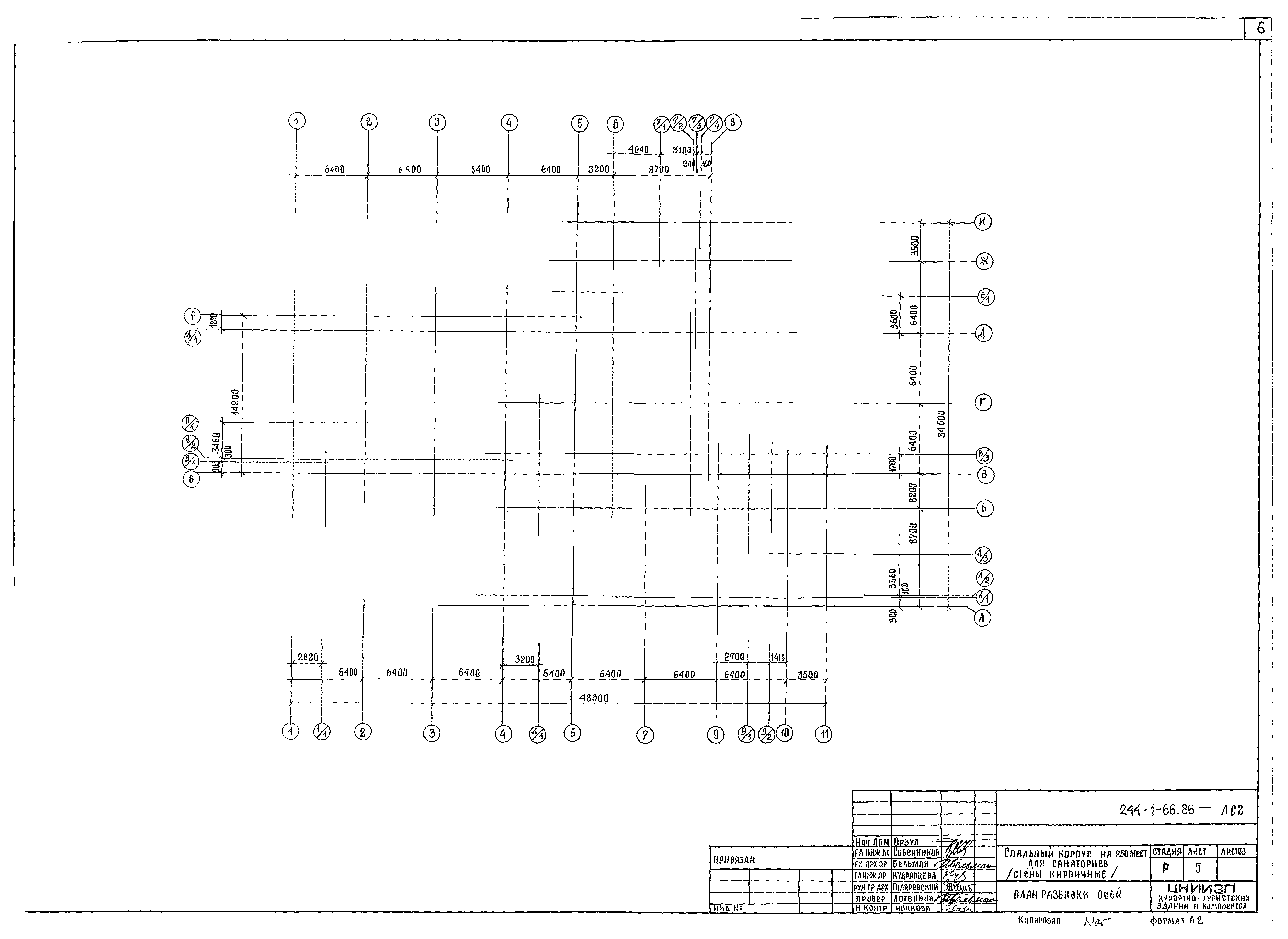
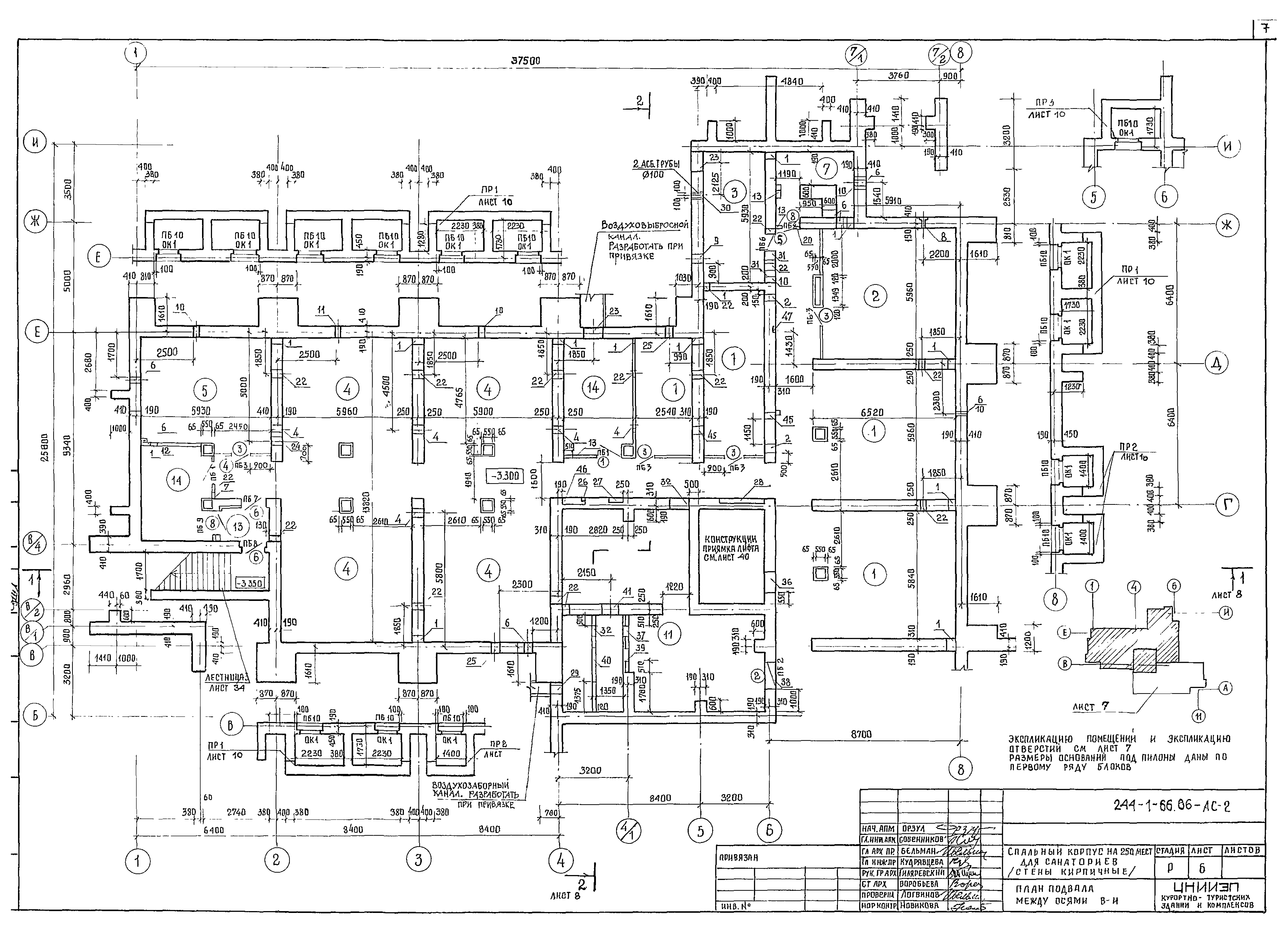
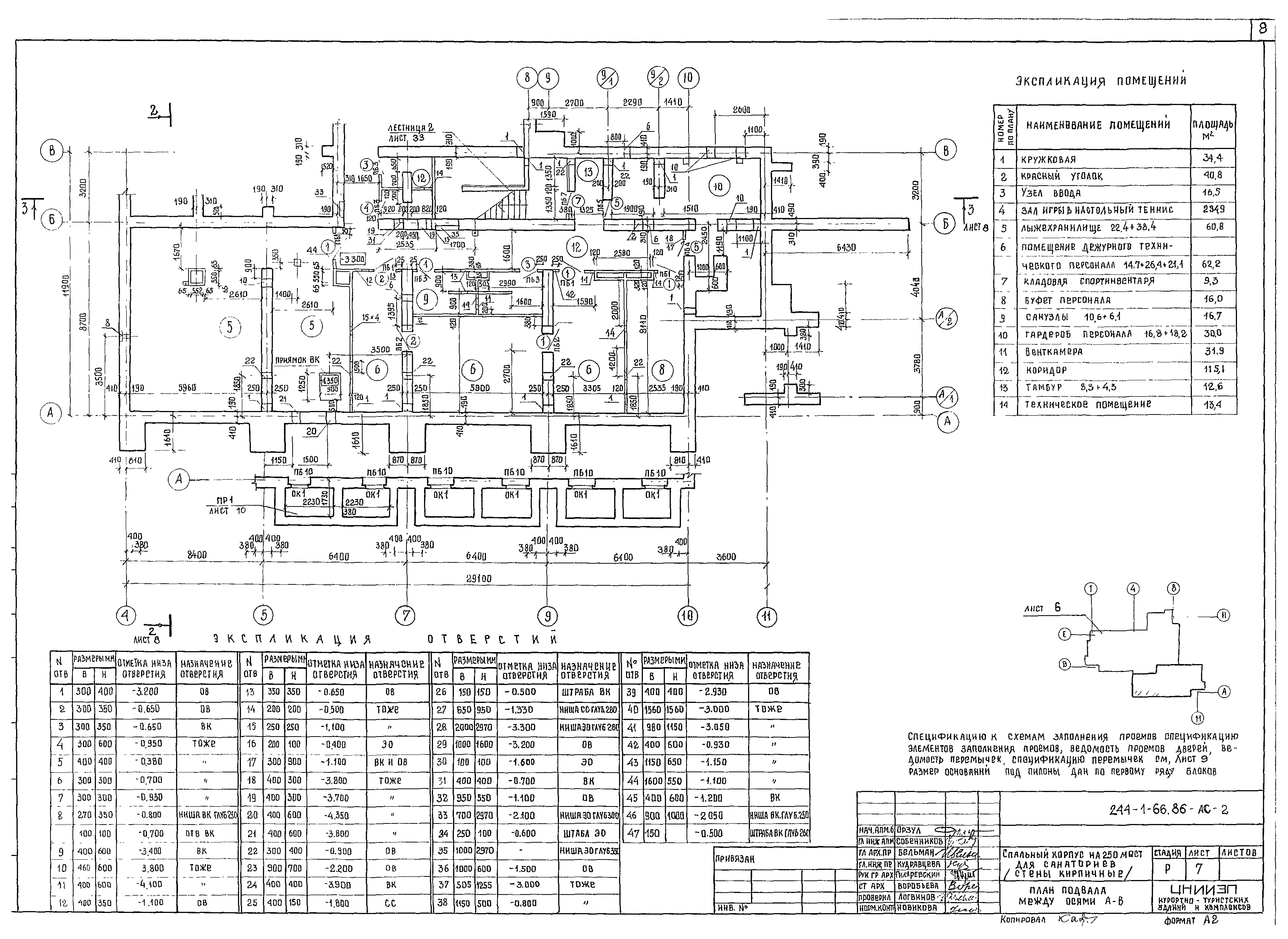
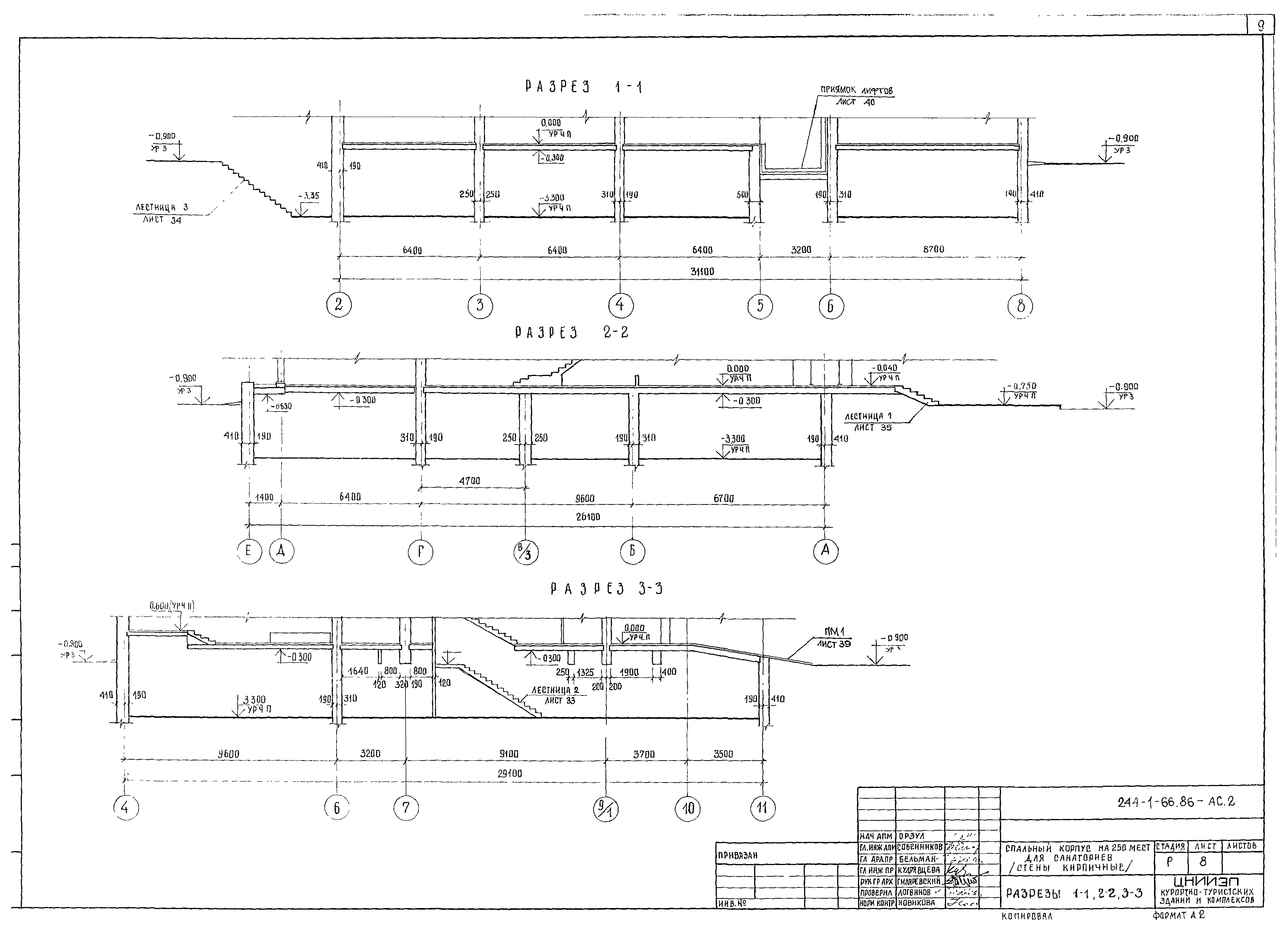
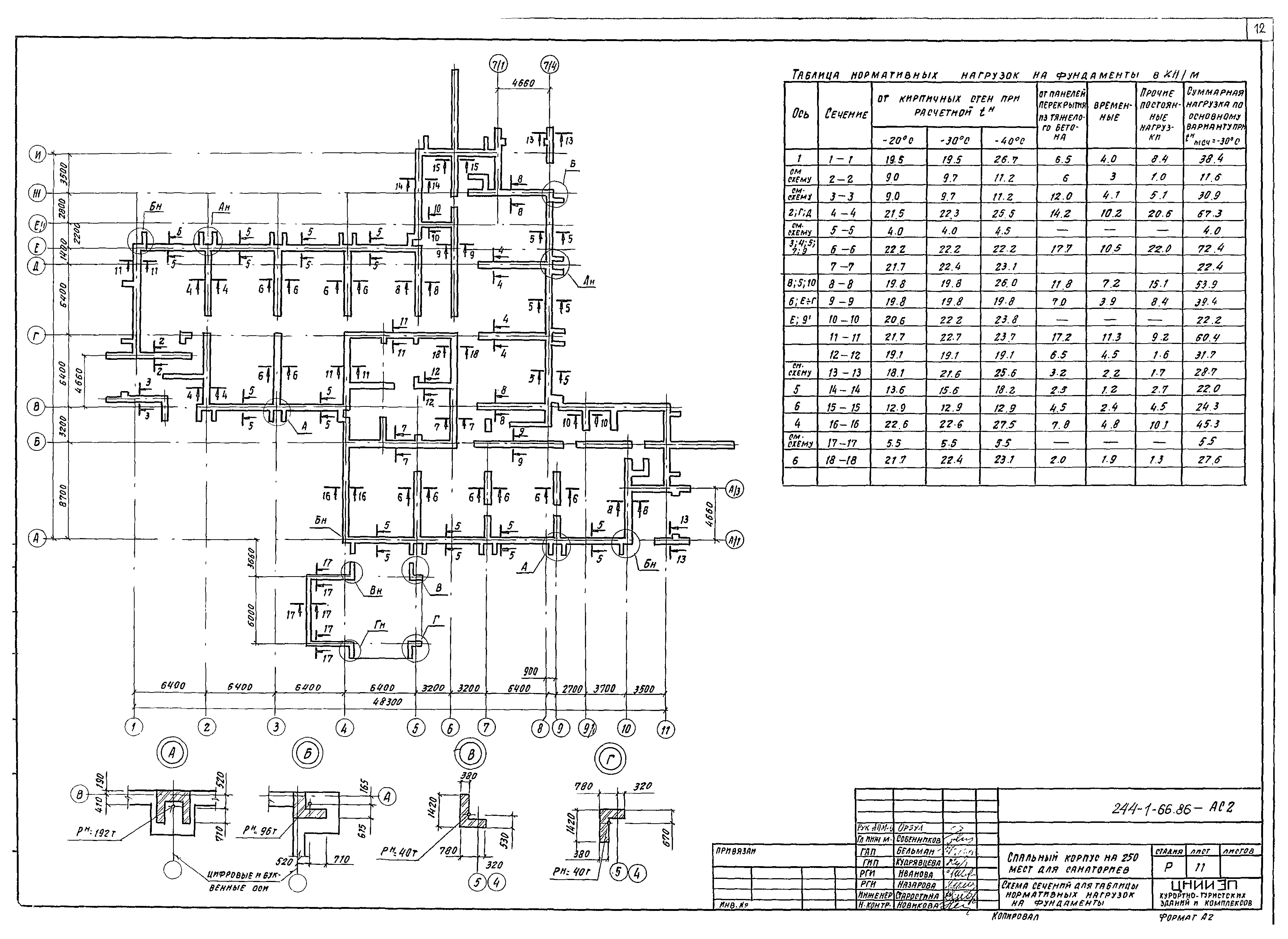
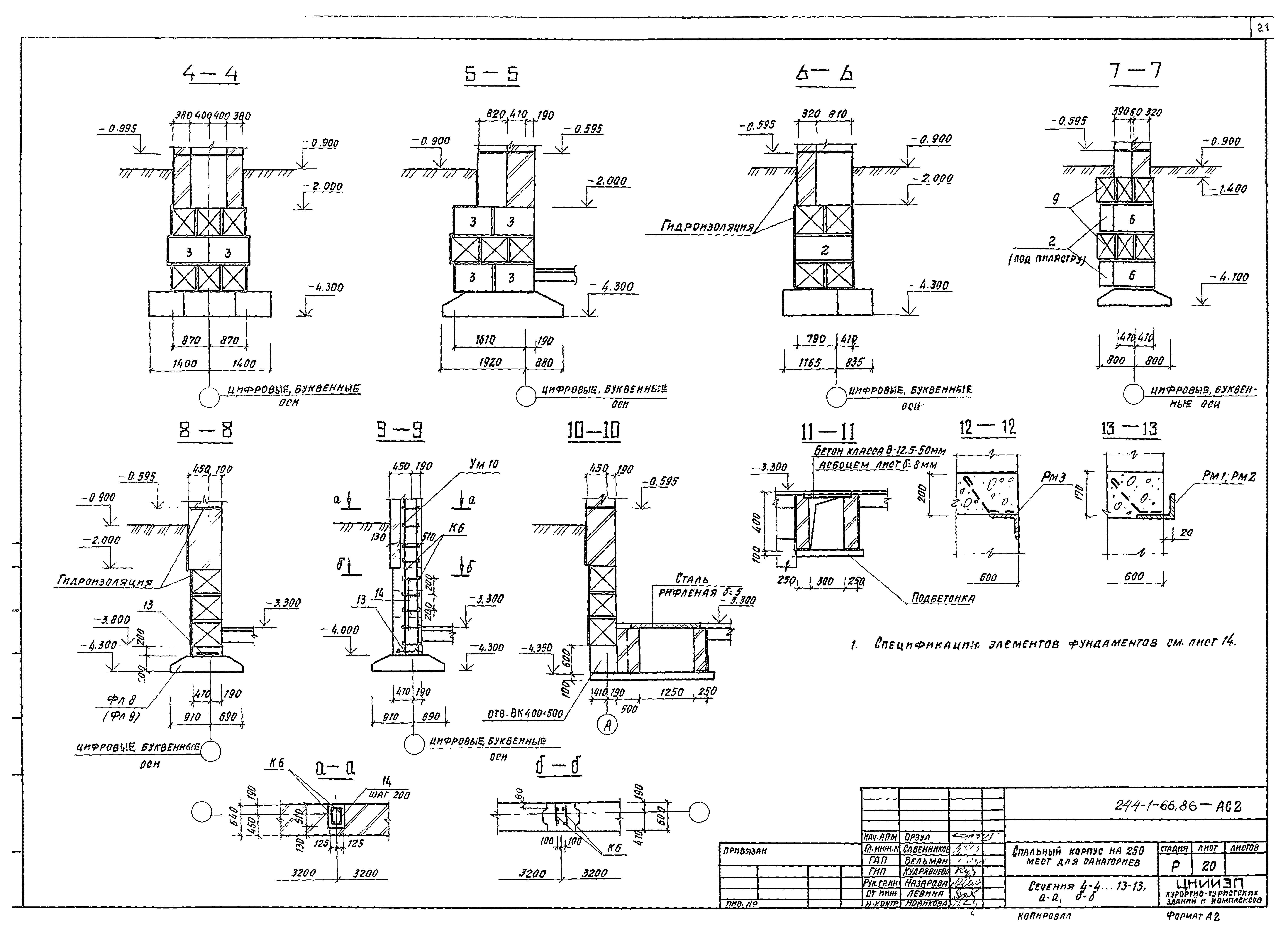
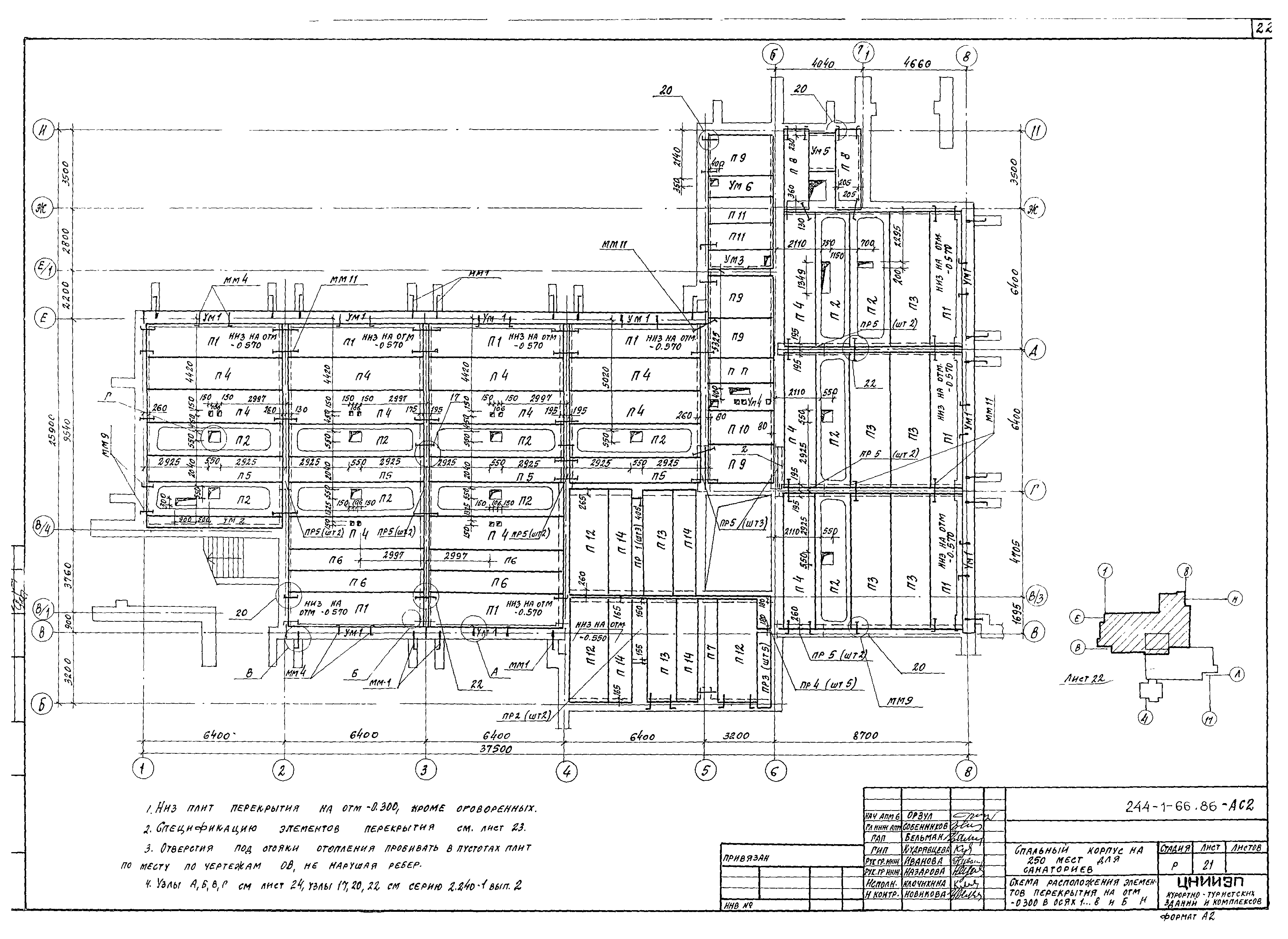
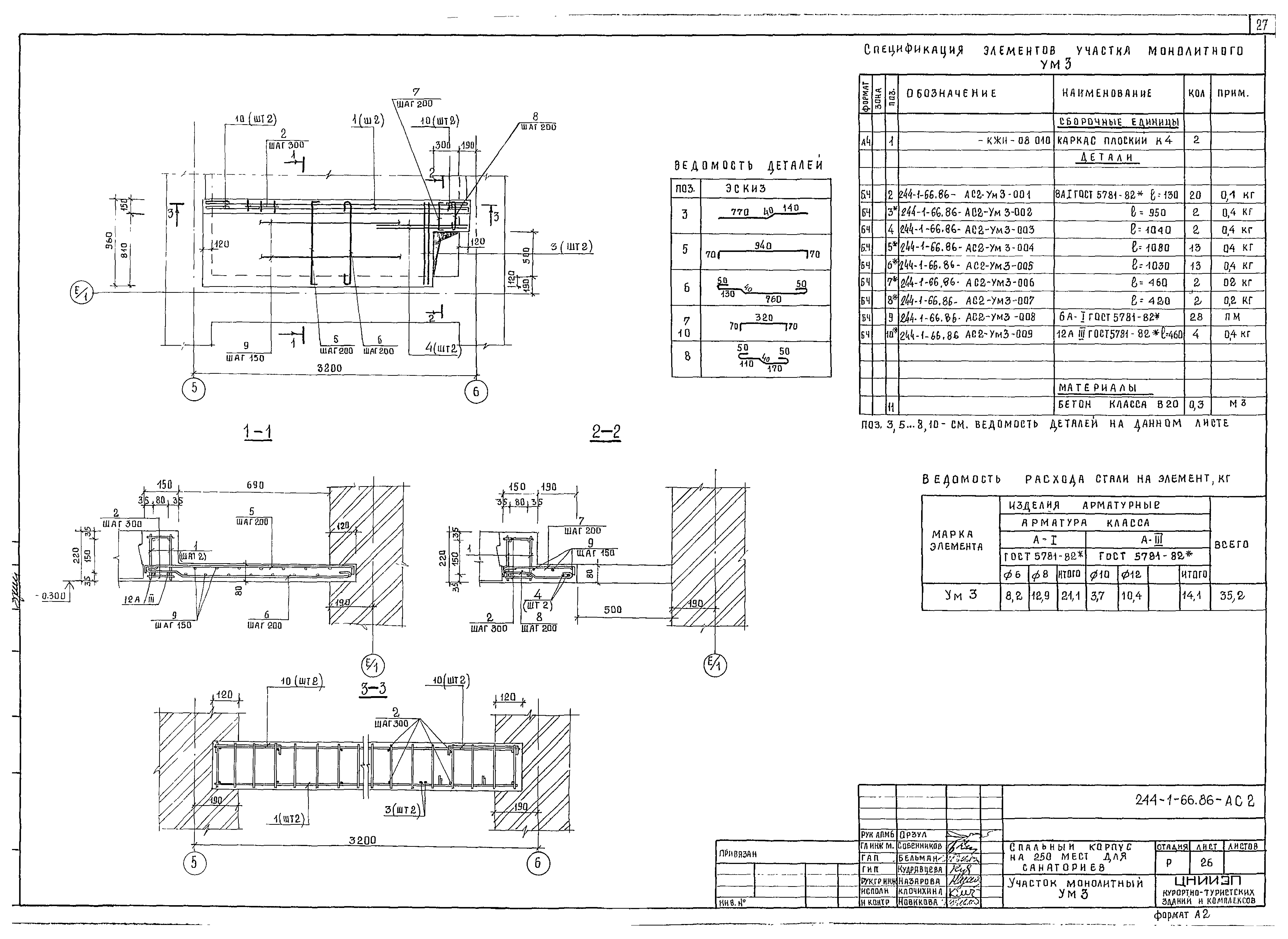
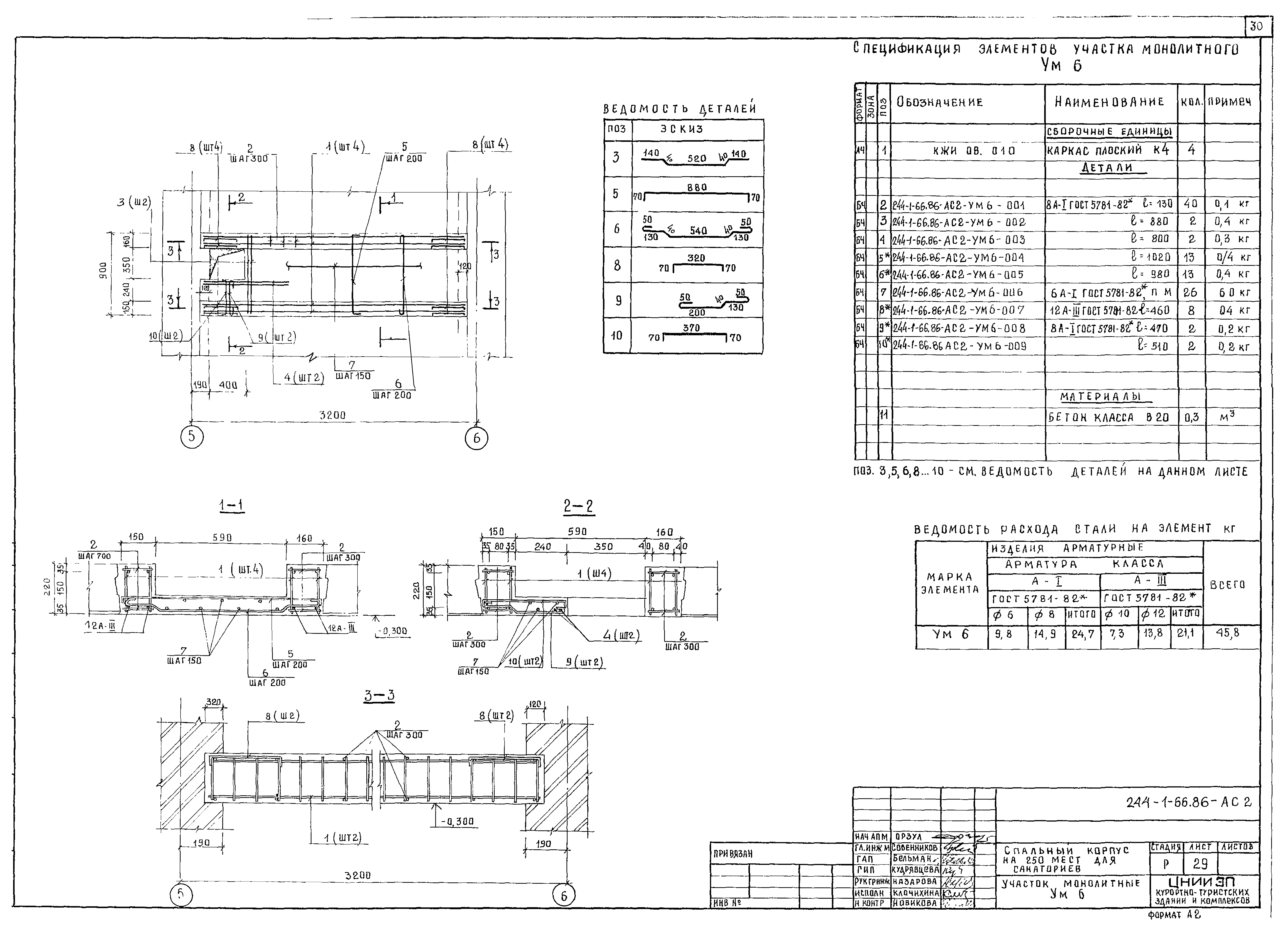
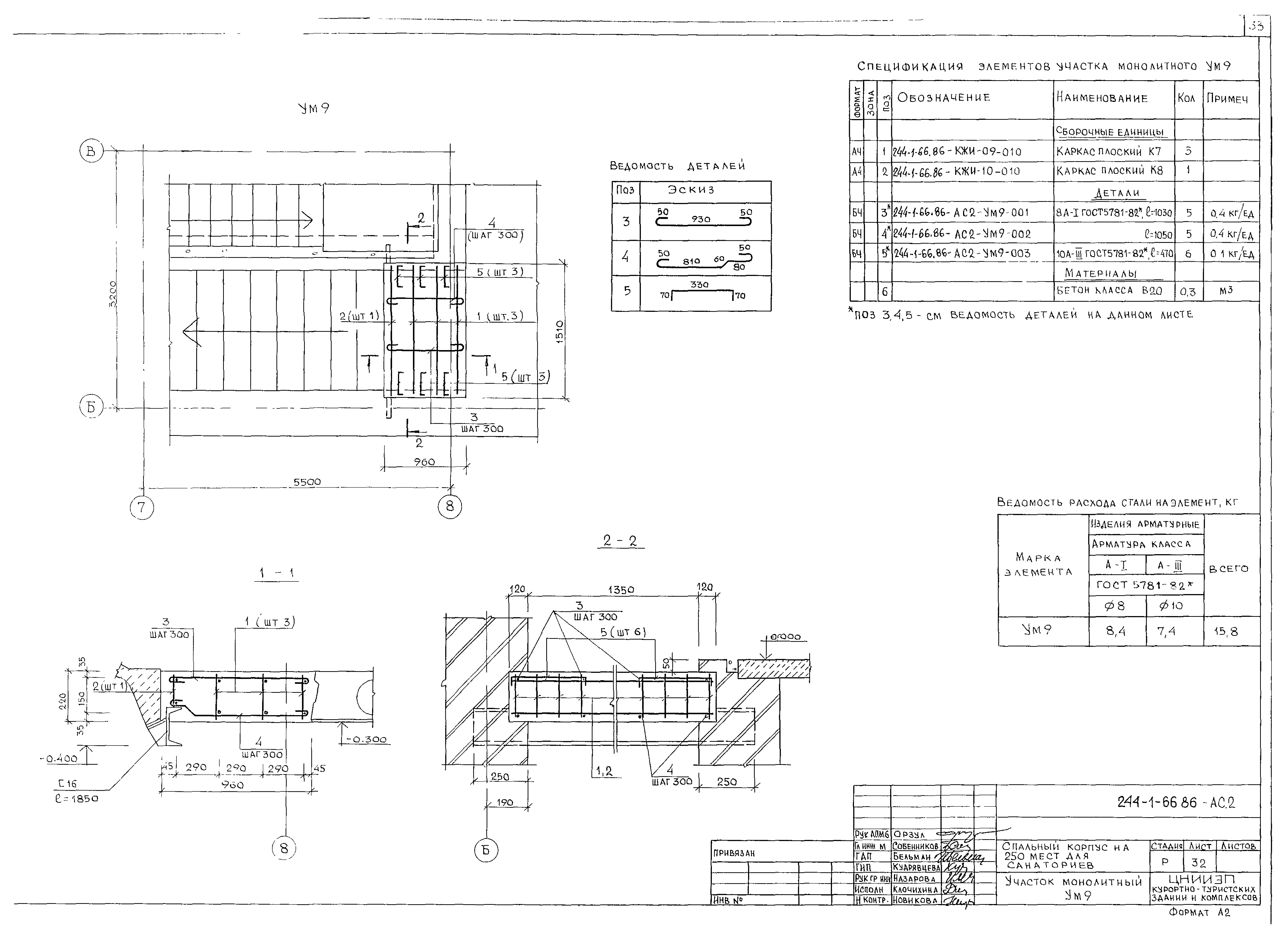
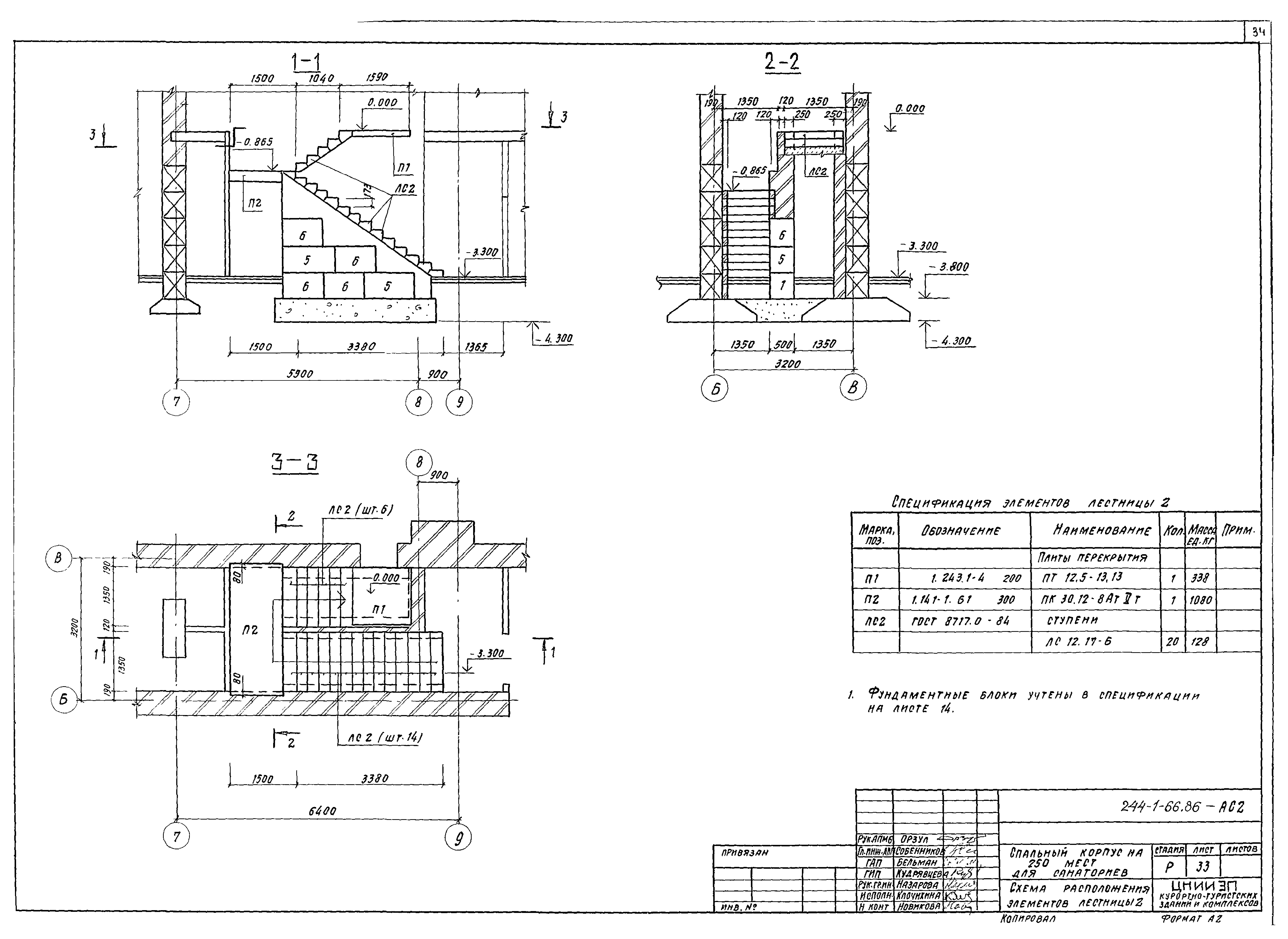
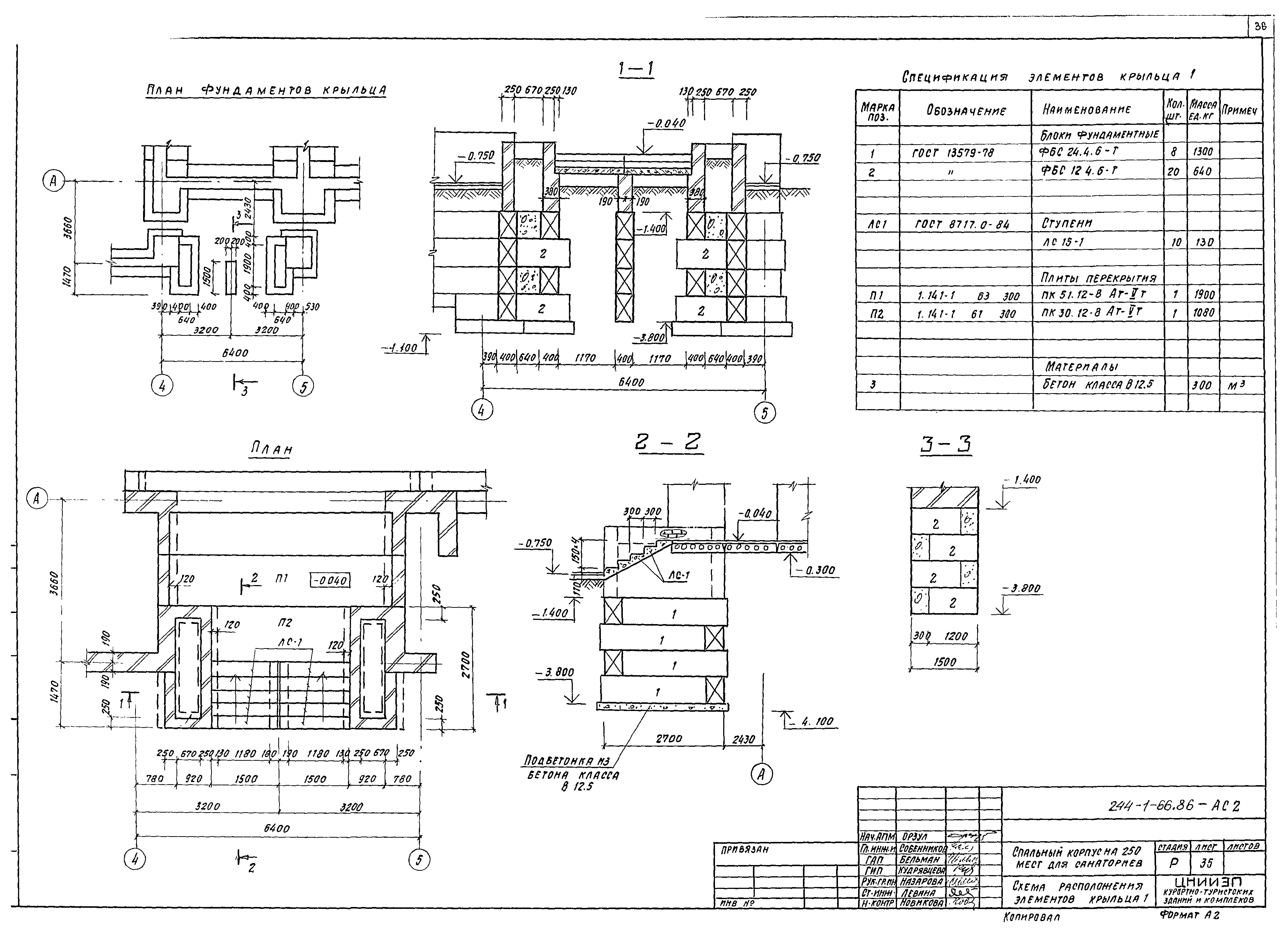
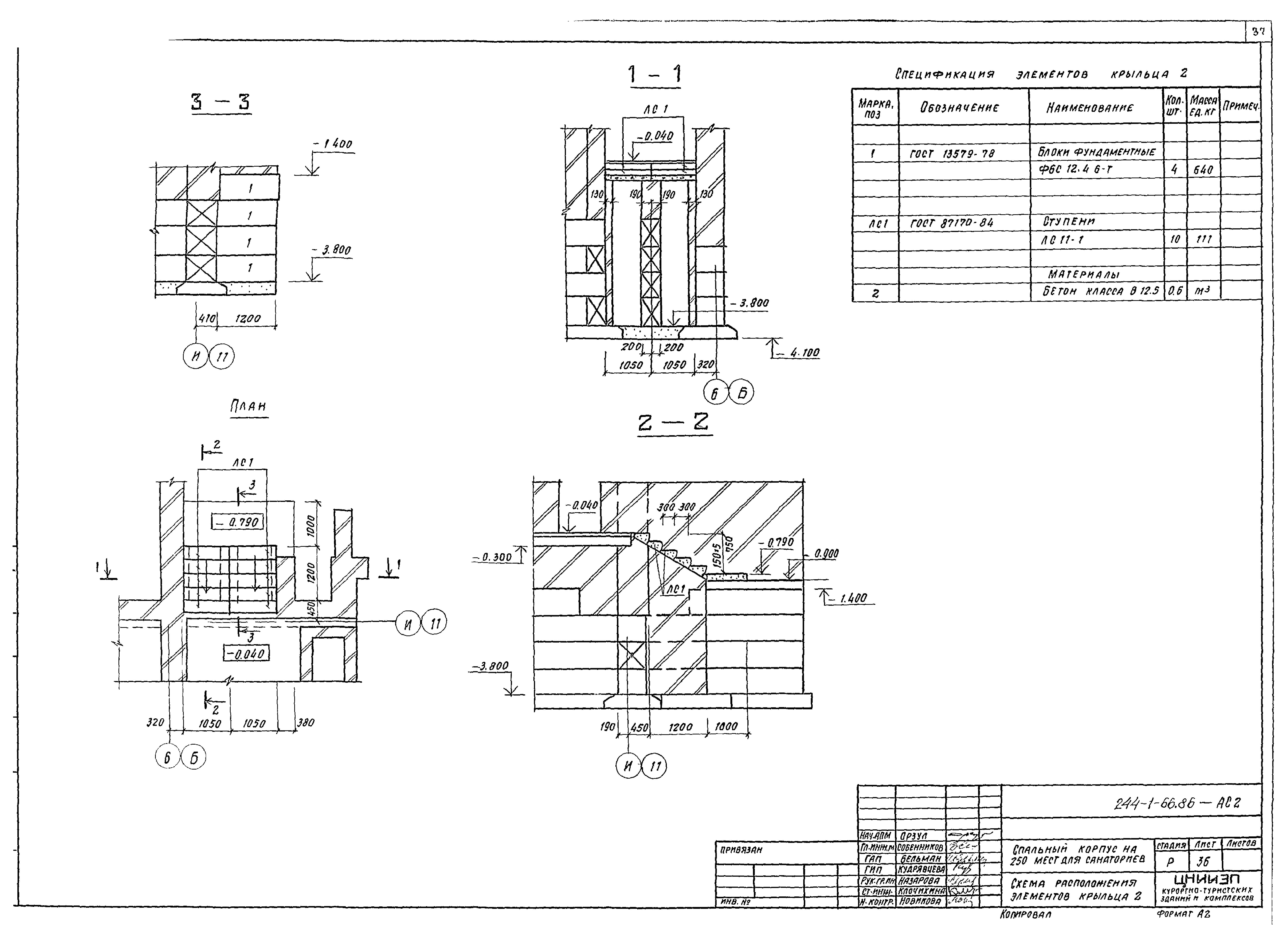
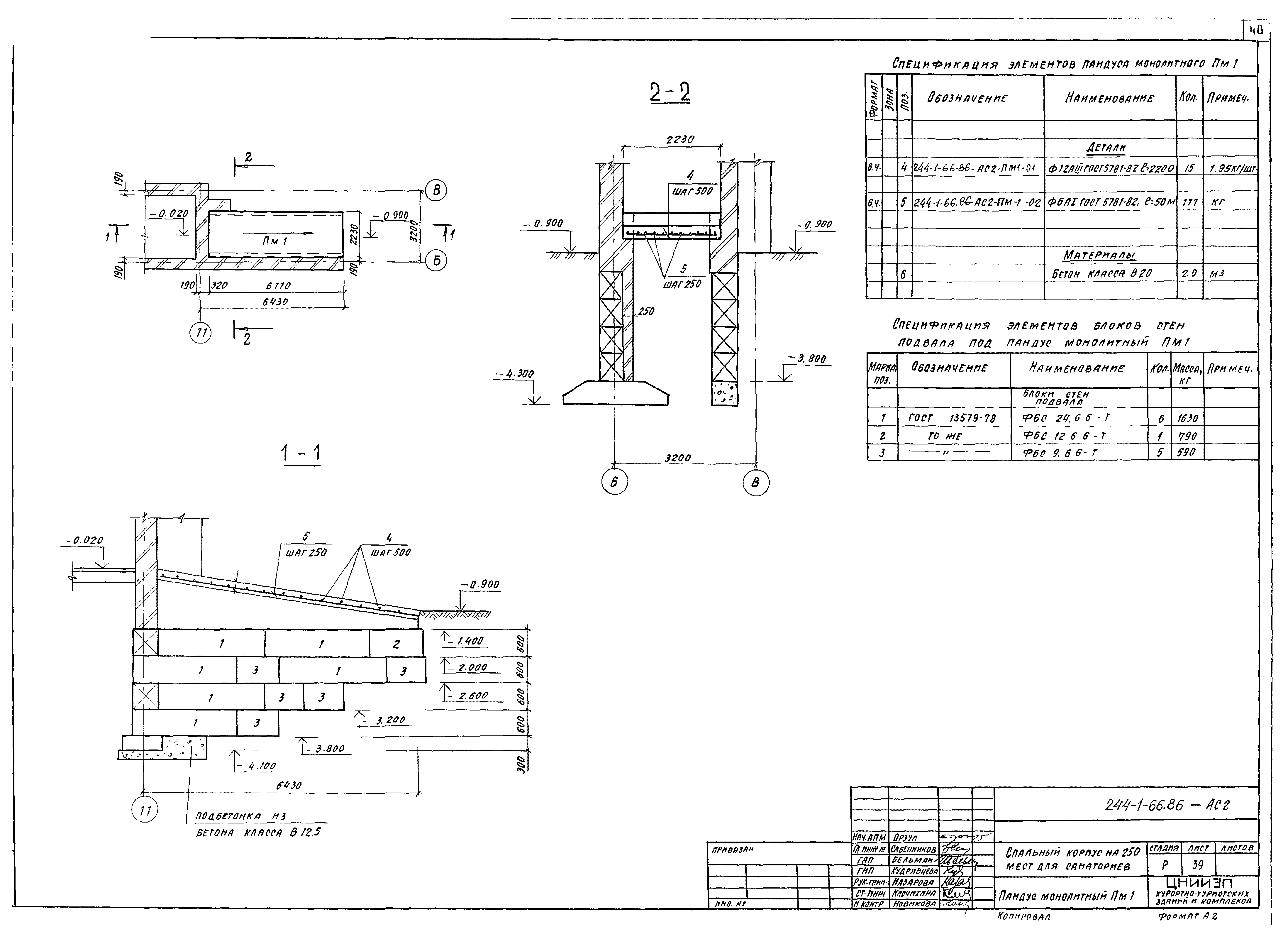
| Оглавление: | Общие данные План разбивки осей План подвала между осями В - К План подвала между осями А - В Разрезы 1-1, 2-2, 3-3 Ведомость и спецификация перемычек, ведомость проемов дверей, схема и спецификация к схеме заполнения оконных проемов, спецификация элементов проемов Приямки ПР1, ПР2, ПР3 Схема сечений для таблицы нормативных нагрузок на фундаменты Схема расположения элементов фундаментов между осями 1 - 8; Б - И Схема расположения элементов фундаментов между осями 4 - 11; А - В Спецификация элементов фундаментов, элементов железобетонных конструкций Развертки стен подвала по осям 1, 2, 3, Е/1, 9/1, 9/2, 7/4, А/1 Развертки стен подвала по осям 6, 7, 8, 9, 10, 11 Развертки стен подвала по осям А, Б, Ж, И, 7/1, А/3 Развертки стен подвала по осям В, Г, Д, Е, 4/1 Развертки стен подвала по осям 5, В/4, В/3, В/1, 1/1, по 1-1, 2-2, 3-3 Сечения 4-4, 13-13, а-а, б-б Схема расположения элементов перекрытия на отм. - 0,300 в осях 1…8 и Б…И Схема расположения элементов перекрытия на отм. - 0,300 в осях 4…11 и А…В Спецификация элементов перекрытия на отм. - 0.300 Узлы А, Б, В, Г Участки монолитные Ум1 и Ум2 Участок монолитный Ум3 Участок монолитный Ум4 Участок монолитный Ум5 Участок монолитный Ум6 Участок монолитный Ум7 Участок монолитный Ум8 Участок монолитный Ум9 Схема расположения лестницы 2 Схема расположения лестницы 3 Схема расположения крыльца 1 Схема расположения крыльца 2 Схема расположения крыльца 3 Схема расположения крыльца 4 Пандус монолитный ПМ1 Приямок лифтов, фундаменты, монолитная плита УМ11 |
| Разработан: | ЦНИИЭП курортно-туристских зданий и комплексов Госгражданстроя |
| Утверждён: | 03.10.1984 Госгражданстрой (Gosgrazhdanstroy 280) |









































