Скачать Типовой проект 244-1-66.86 Альбом III. Часть 1. Архитектурно-строительные решения выше отм. 0.000. Лечебная технологияДата актуализации: 01.01.2021
|
| Обозначение: | Типовой проект 244-1-66.86 |
| Обозначение англ: | 244-1-66.86 |
| Статус: | не определен законодательством |
| Название рус.: | Альбом III. Часть 1. Архитектурно-строительные решения выше отм. 0.000. Лечебная технология |
| Дата добавления в базу: | 01.10.2014 |
| Дата актуализации: | 01.01.2021 |
| Дата введения: | 08.12.1986 |
| Дата окончания срока действия: | 30.06.2003 |
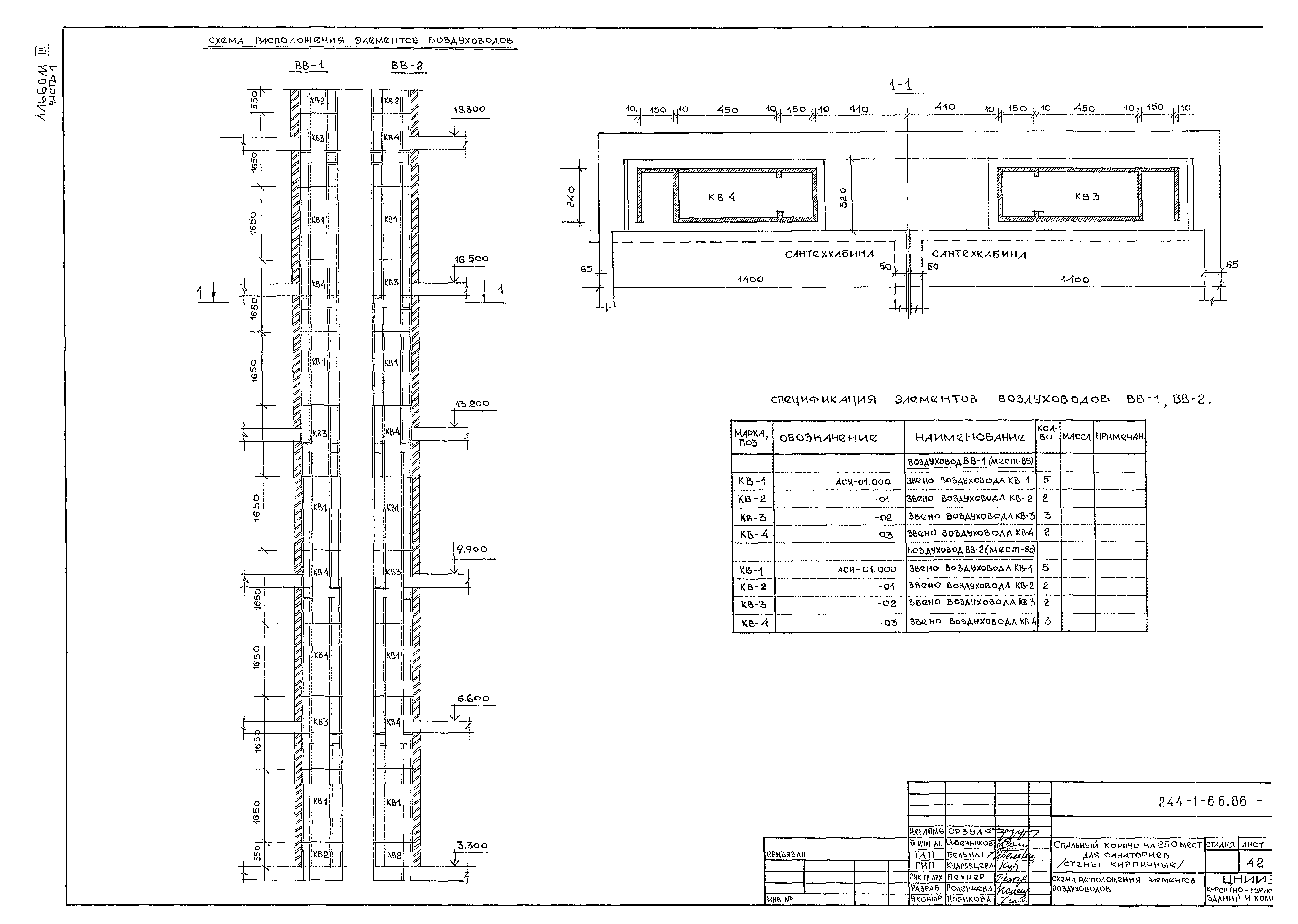
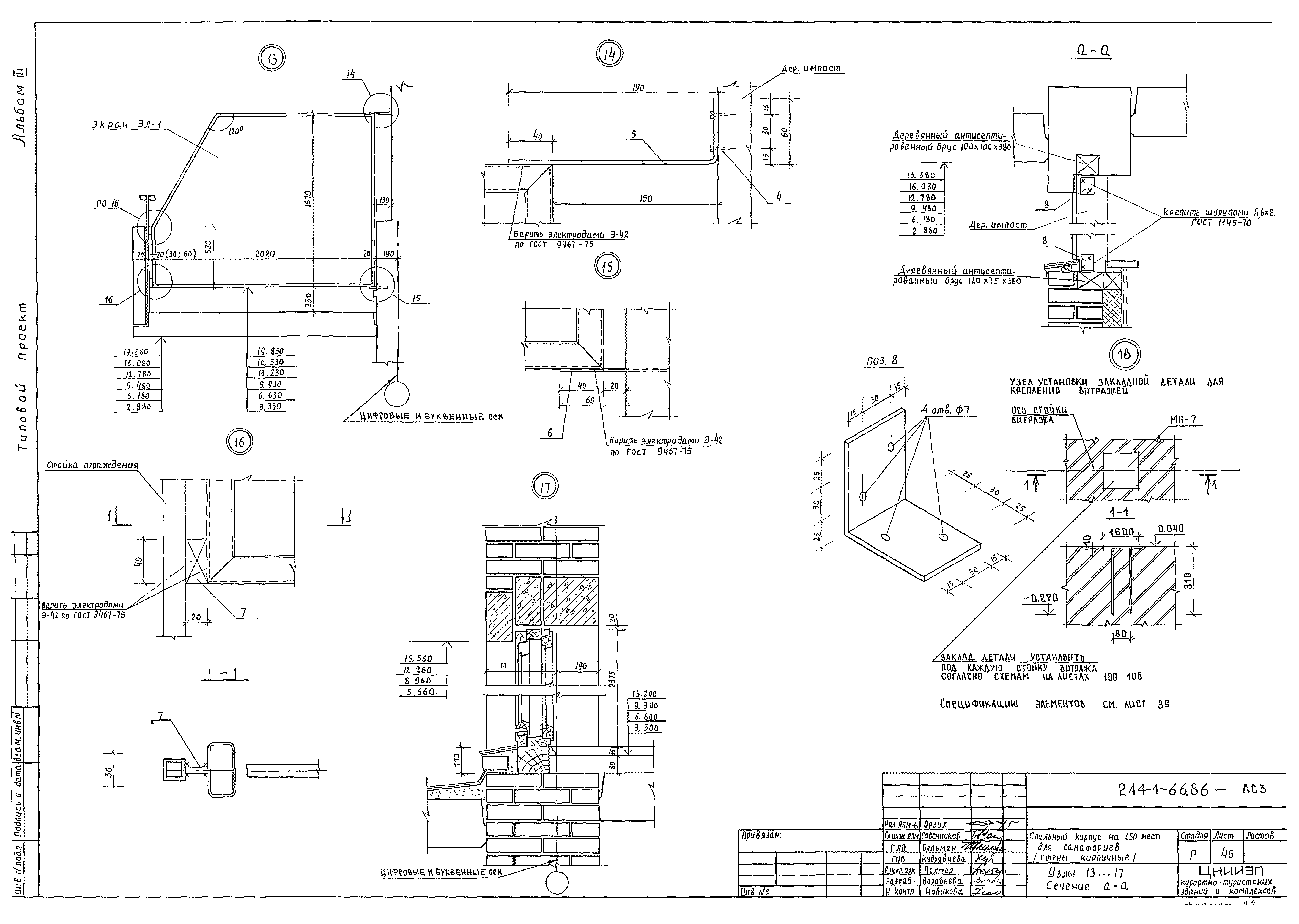
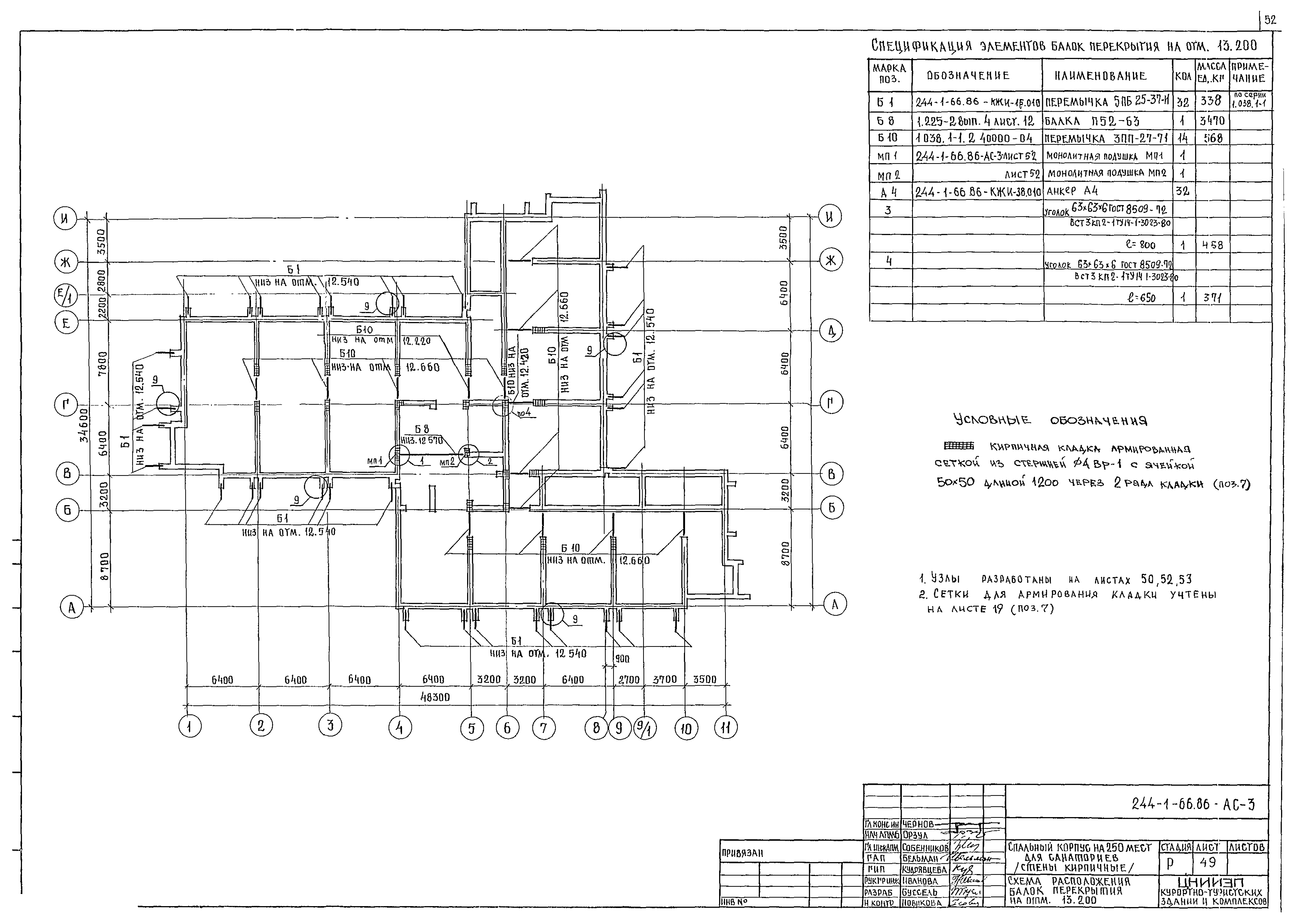
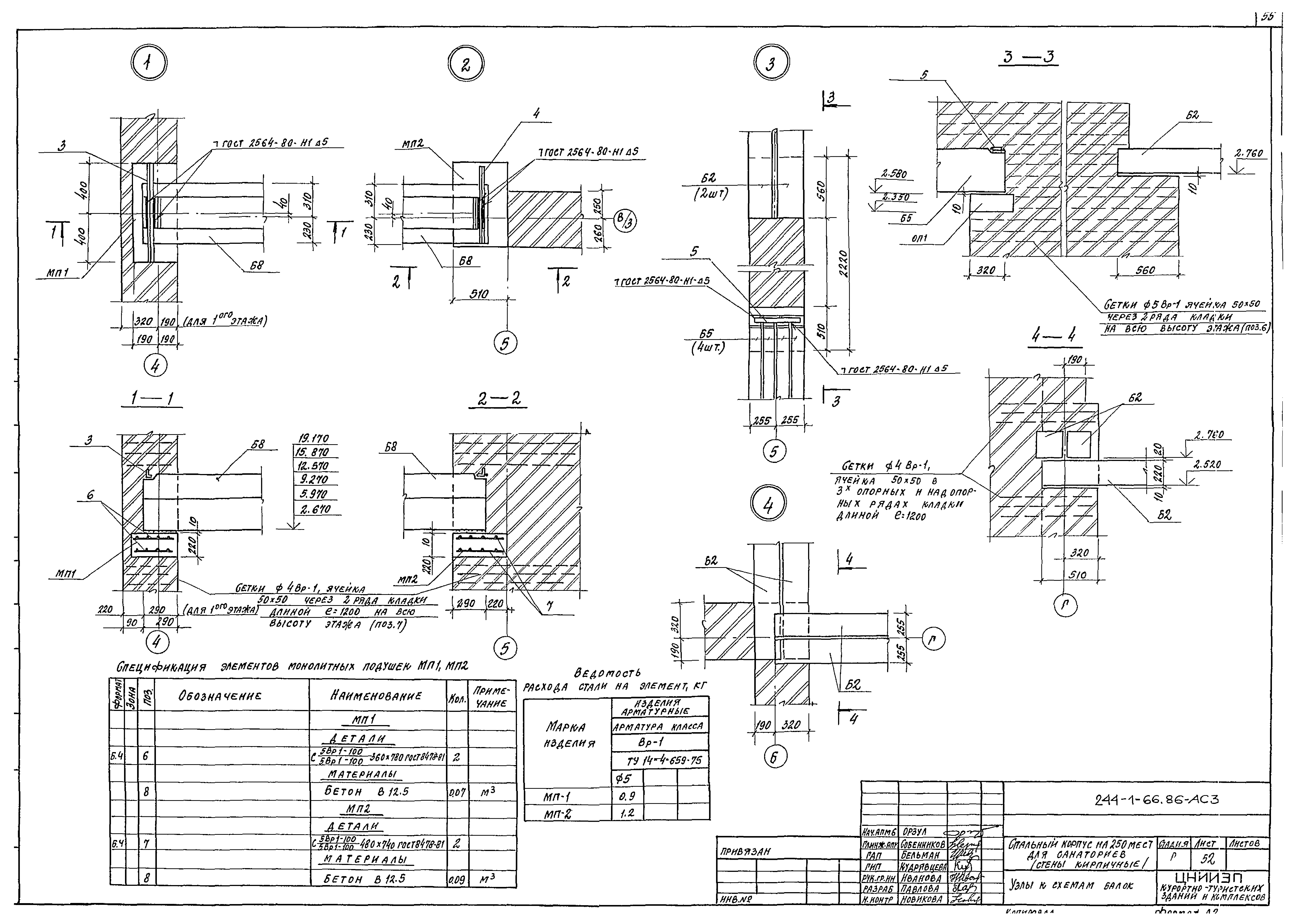
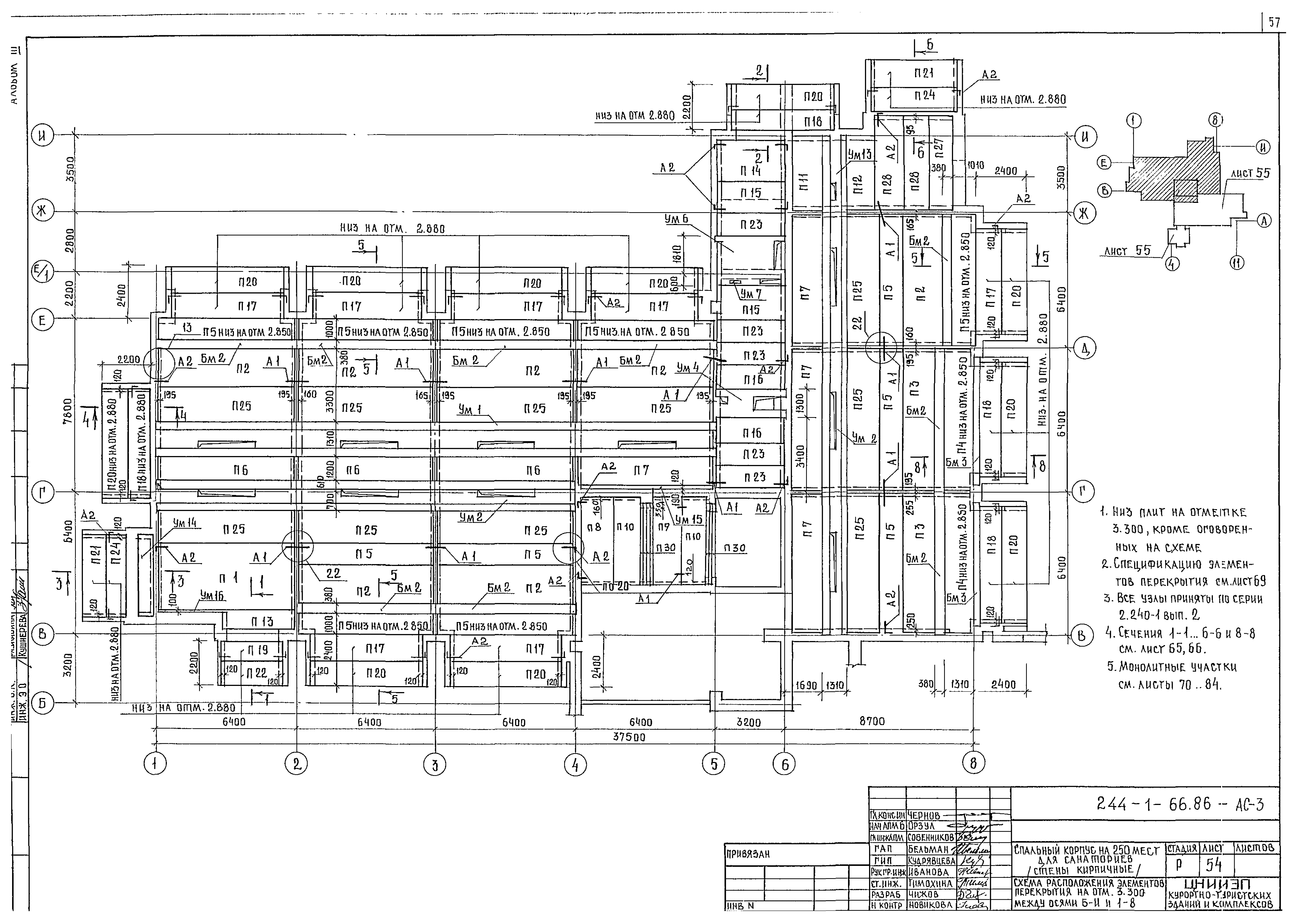
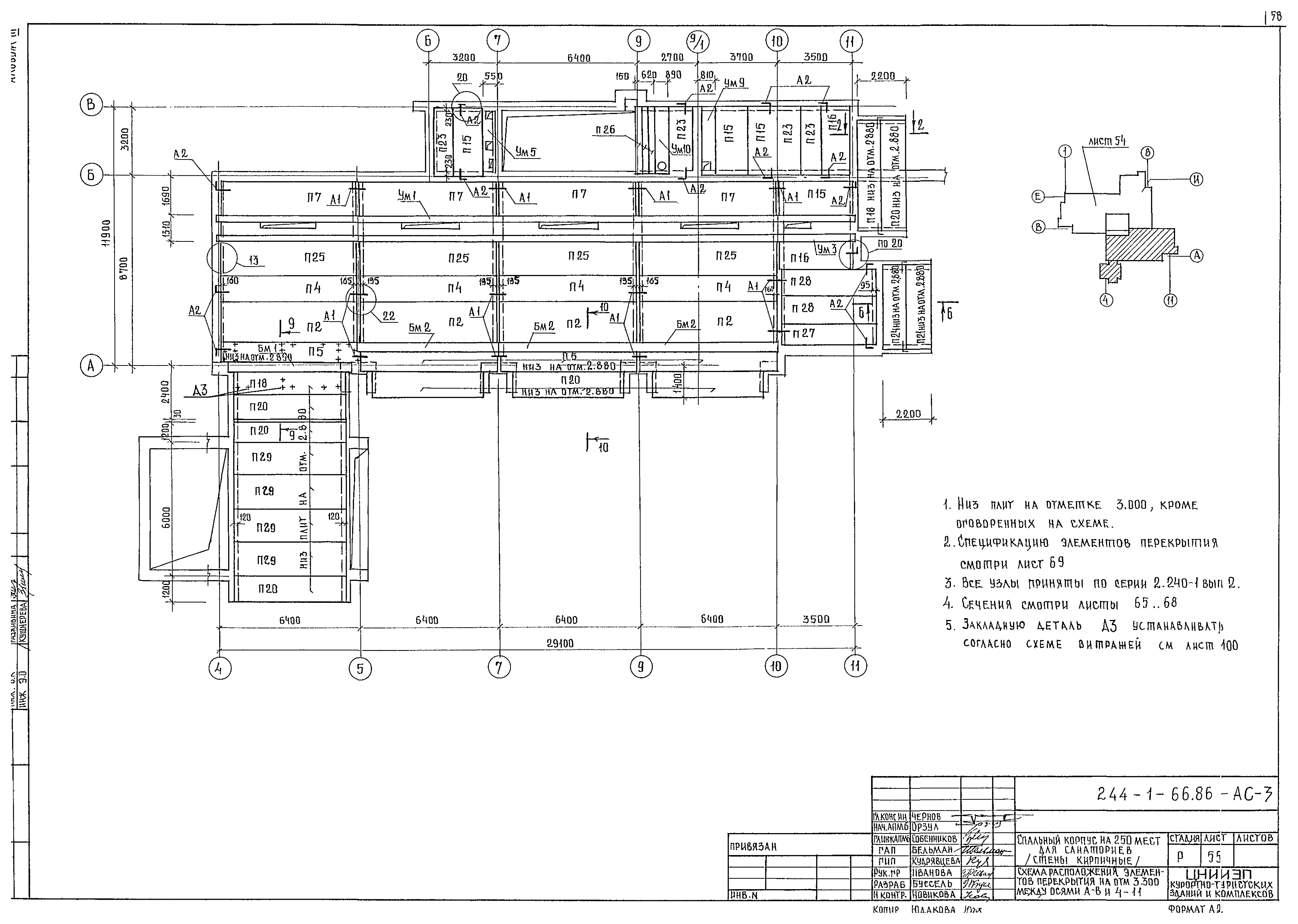
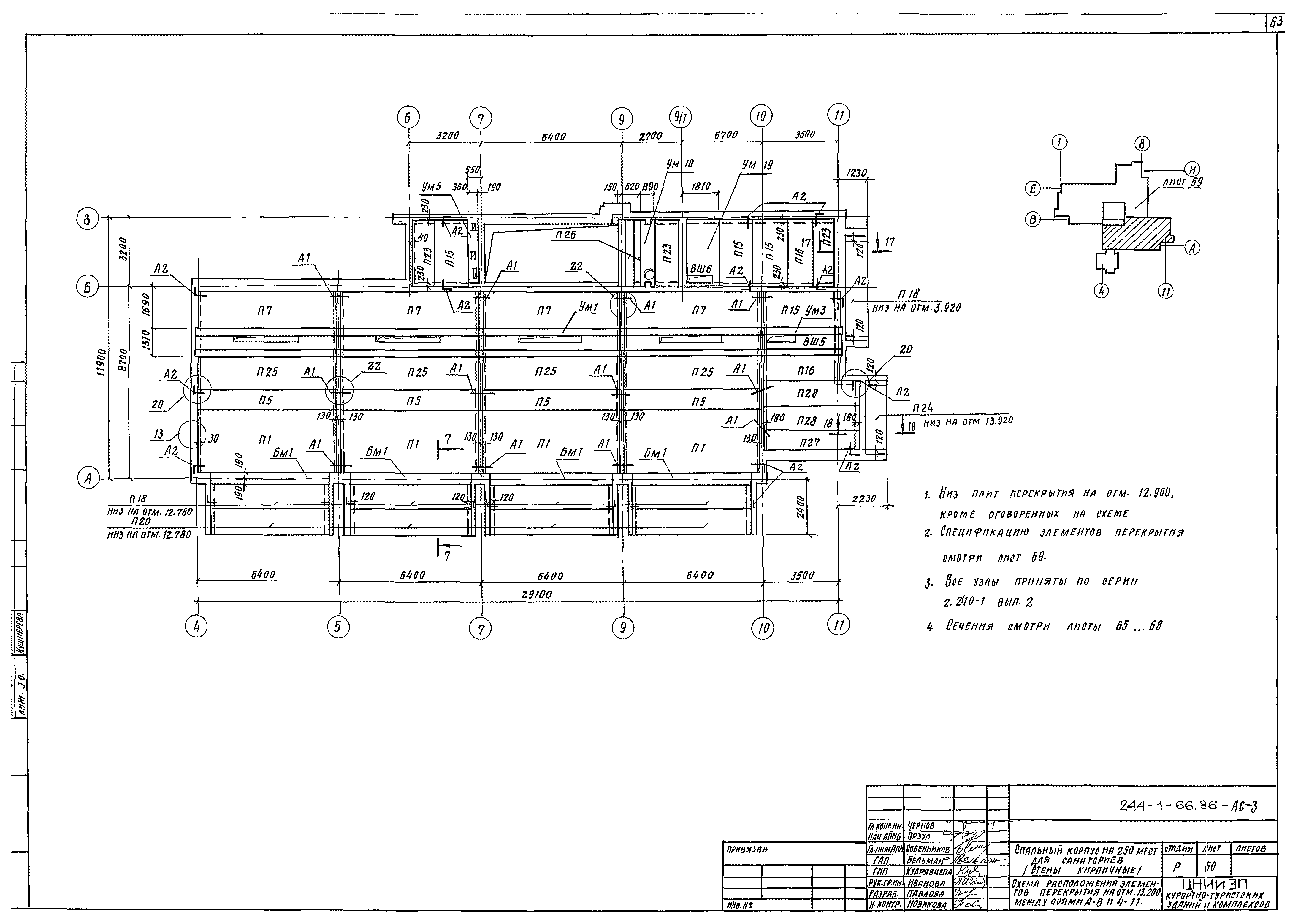
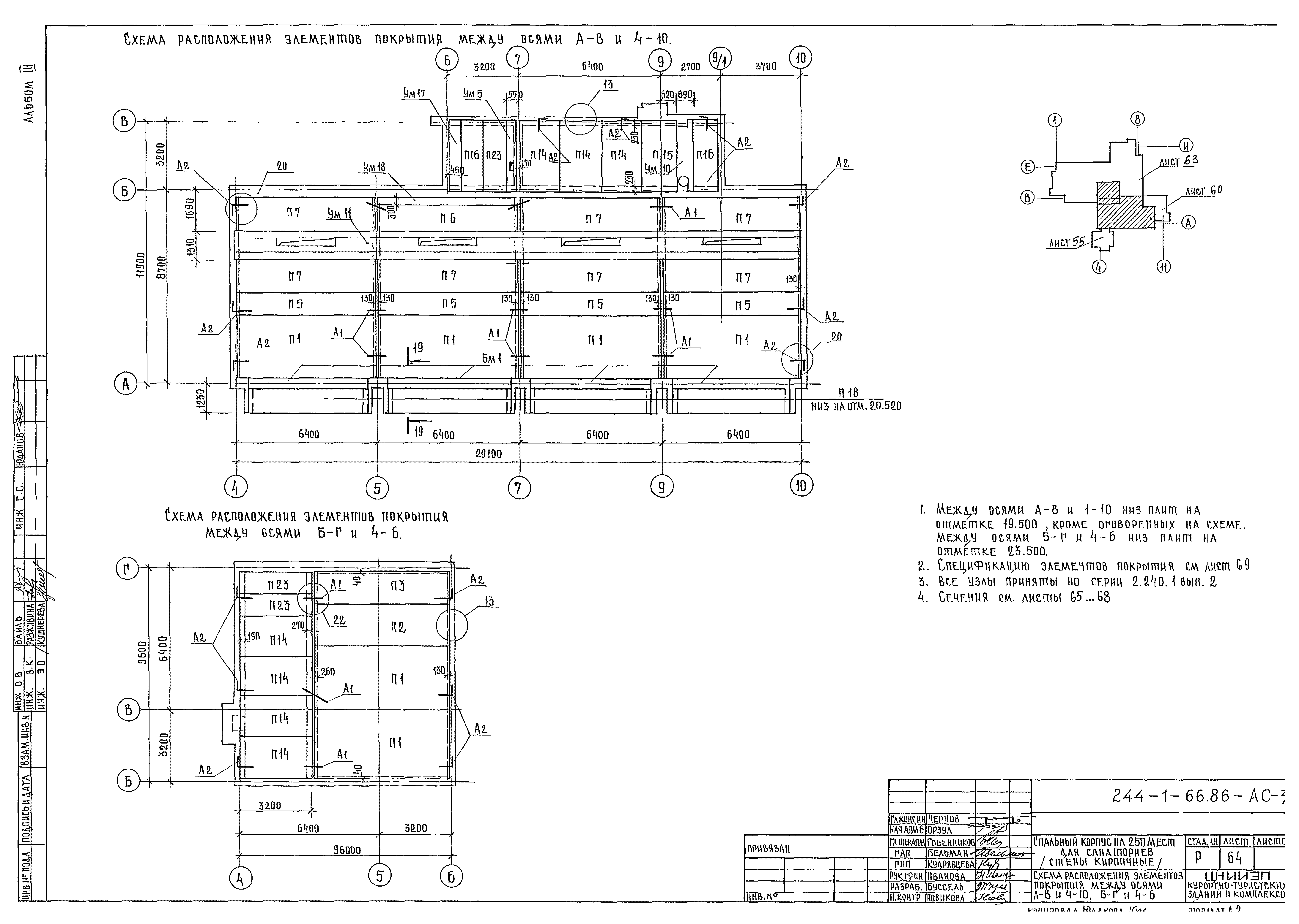
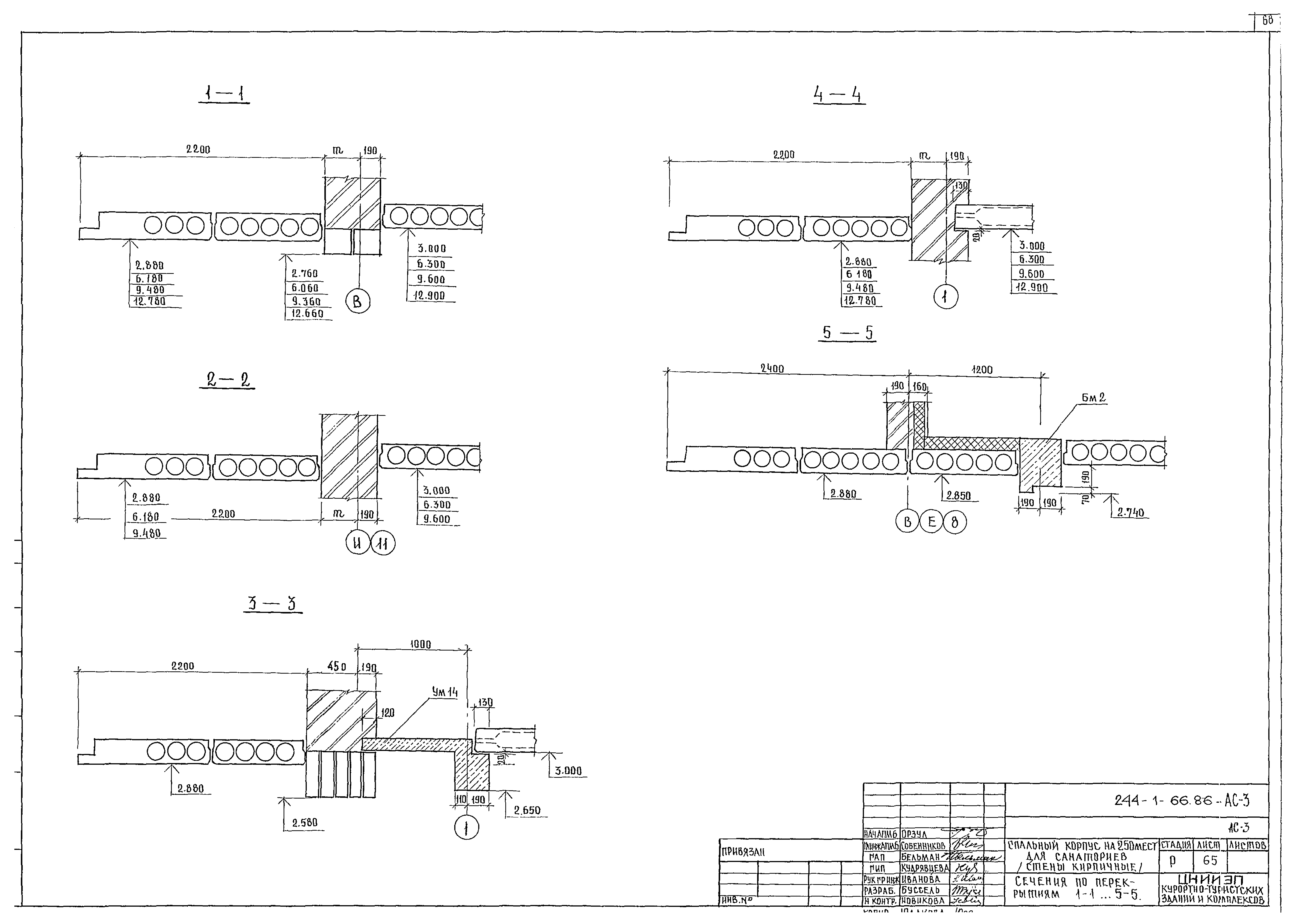
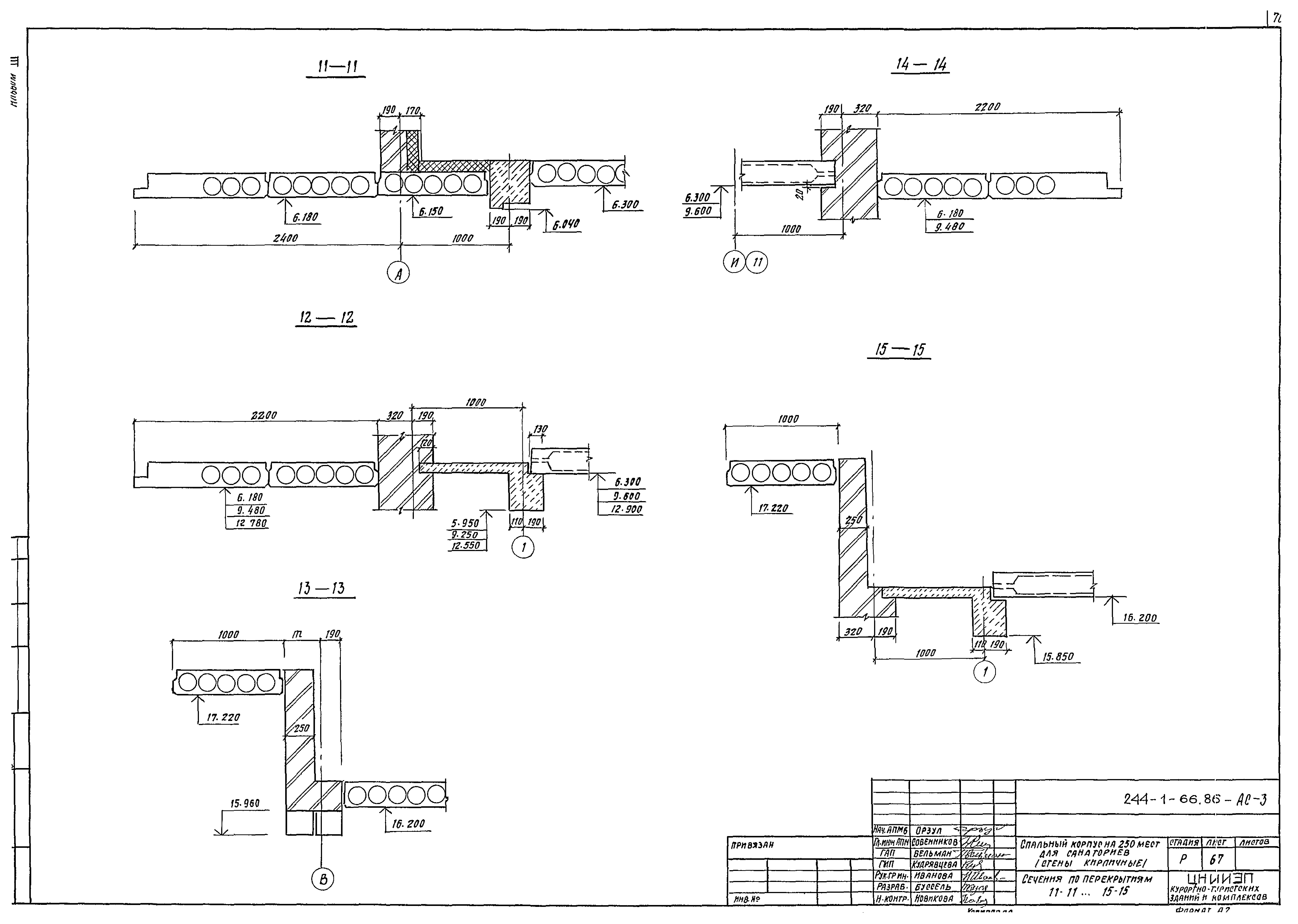
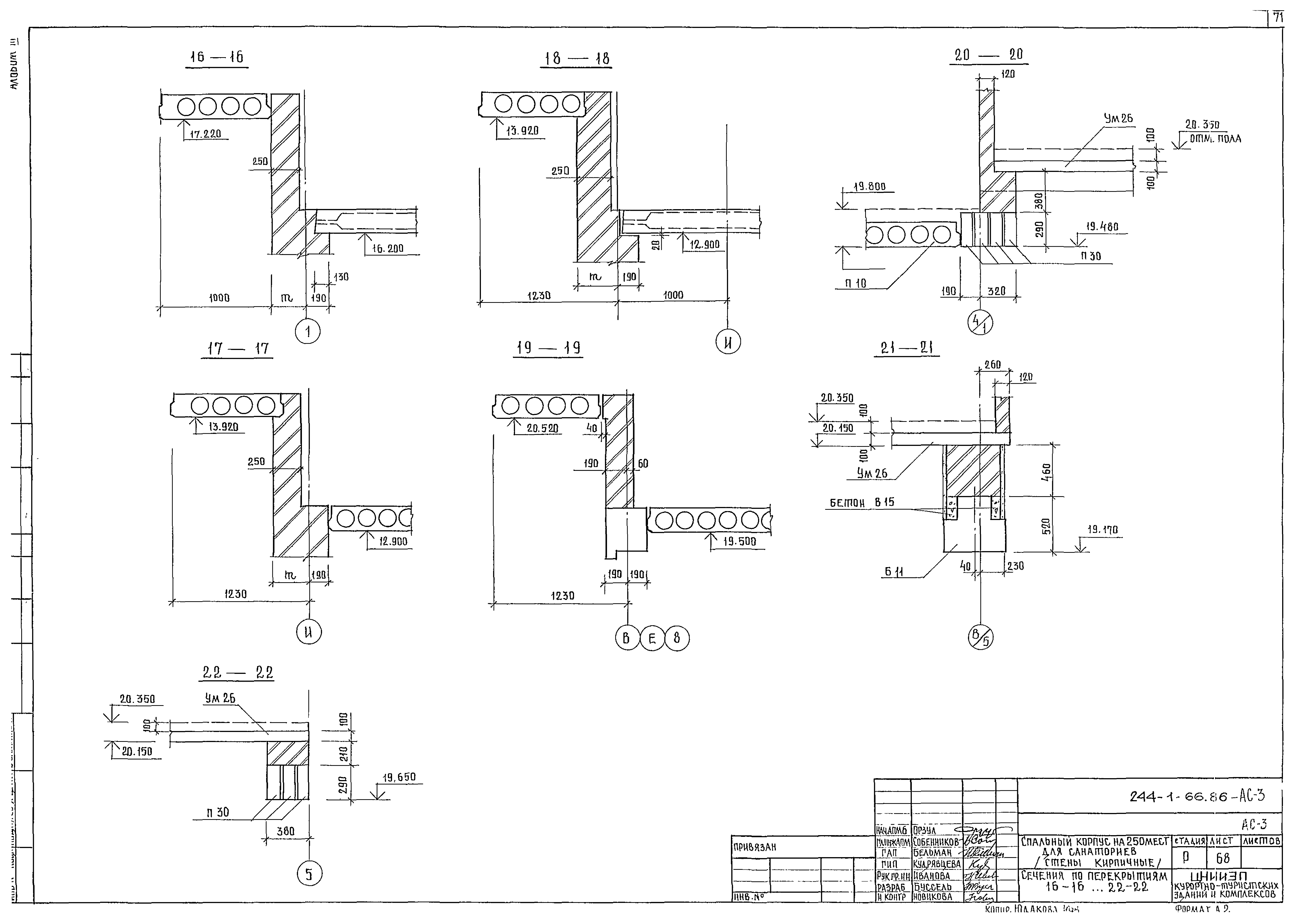
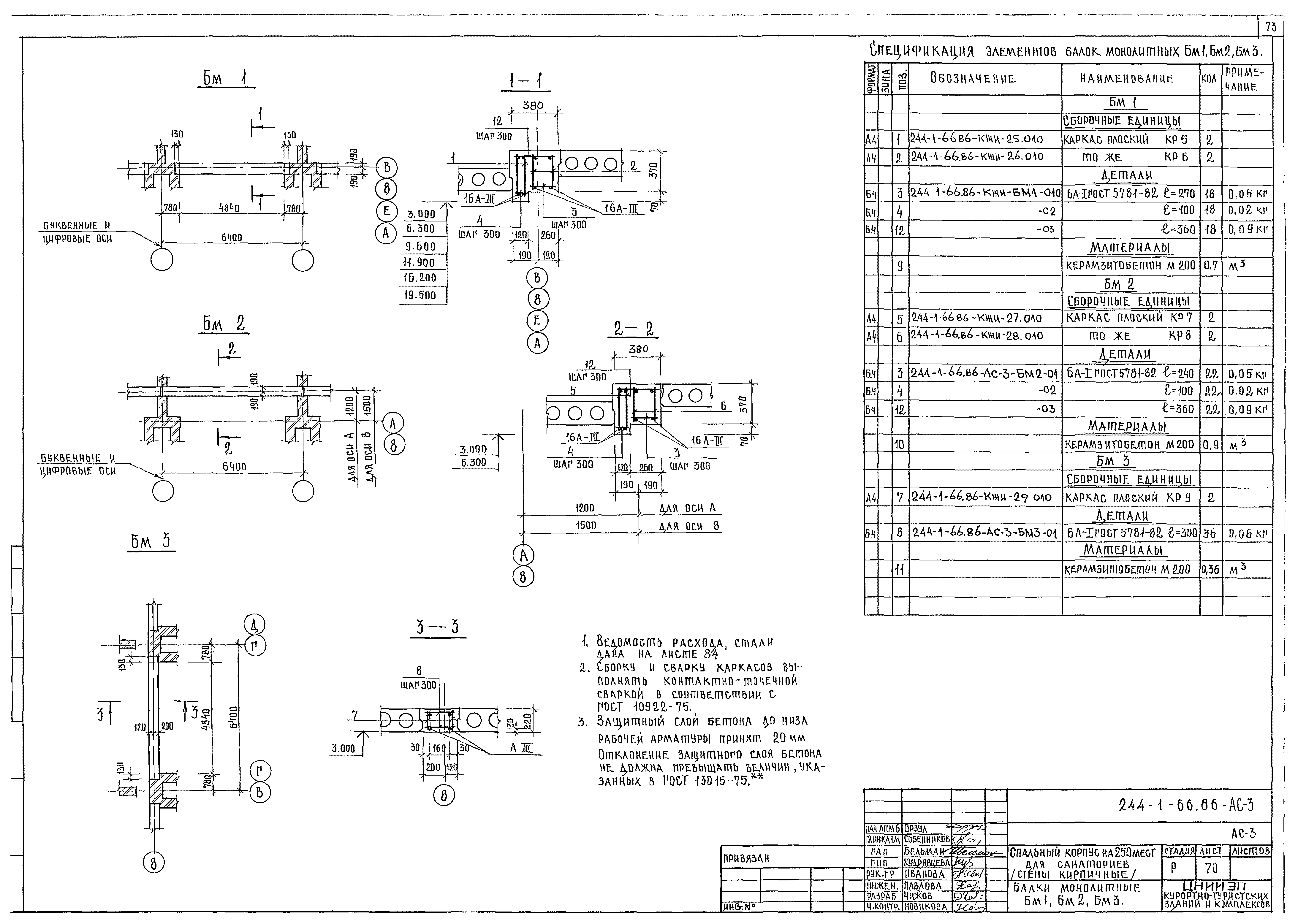
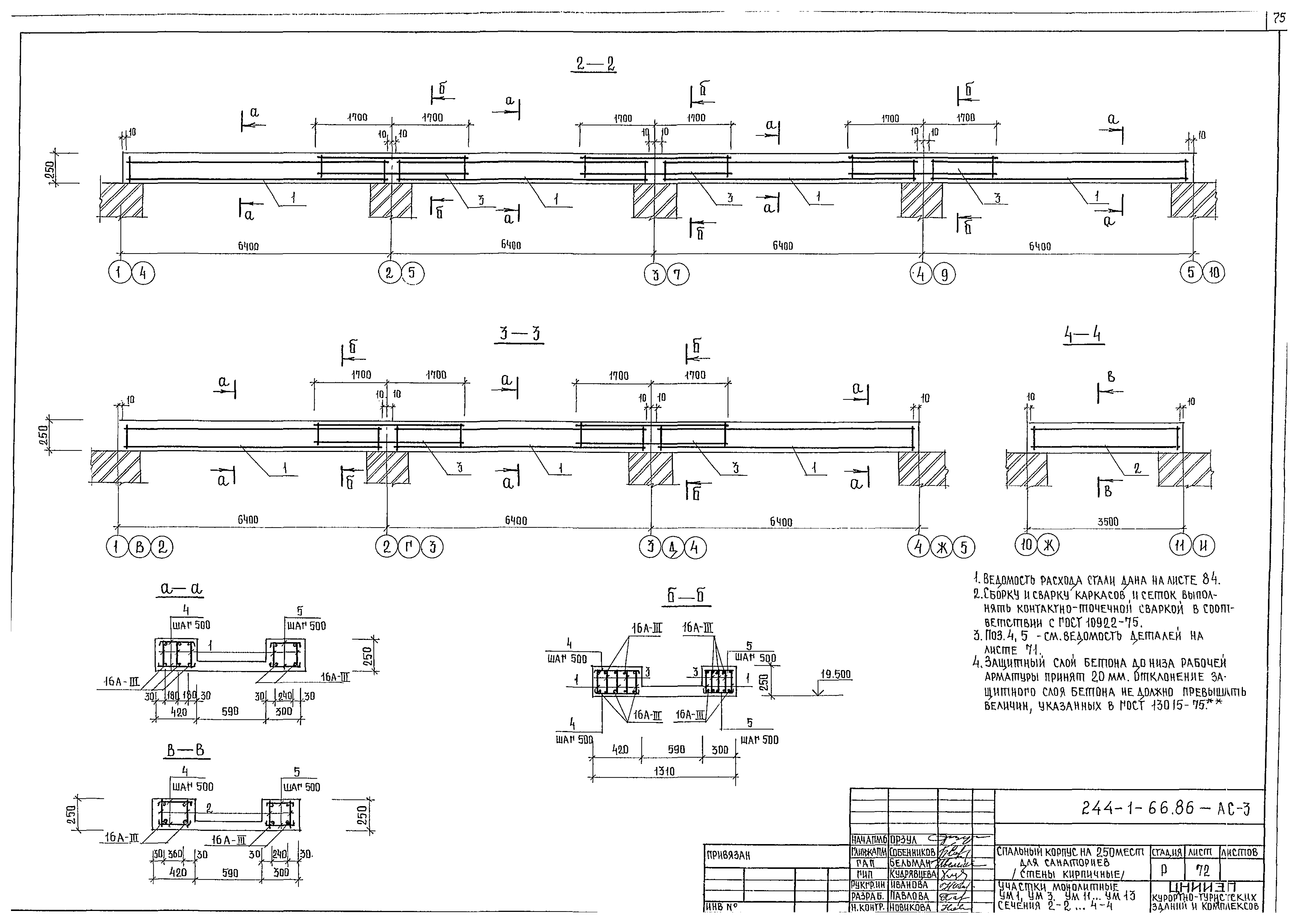
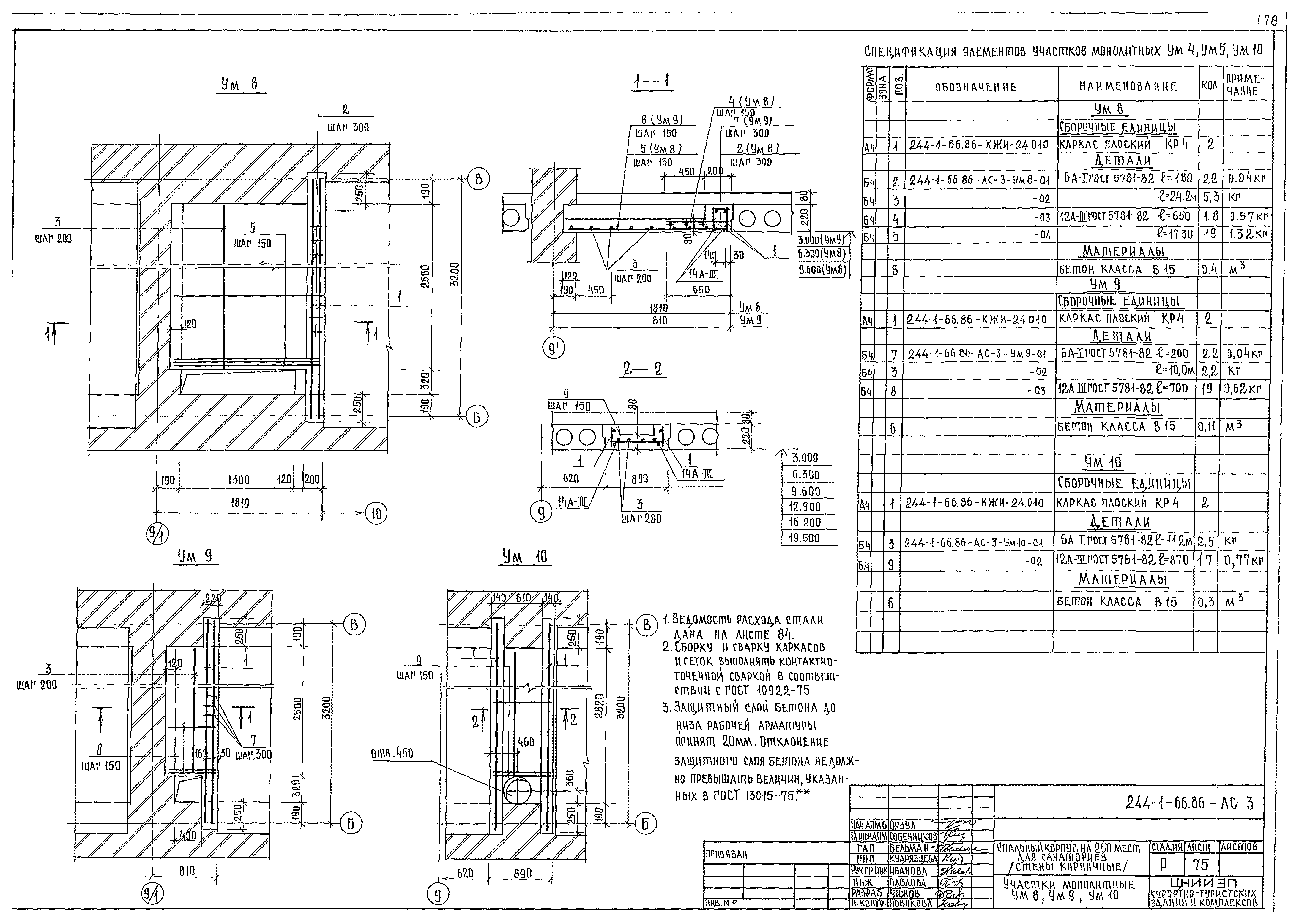
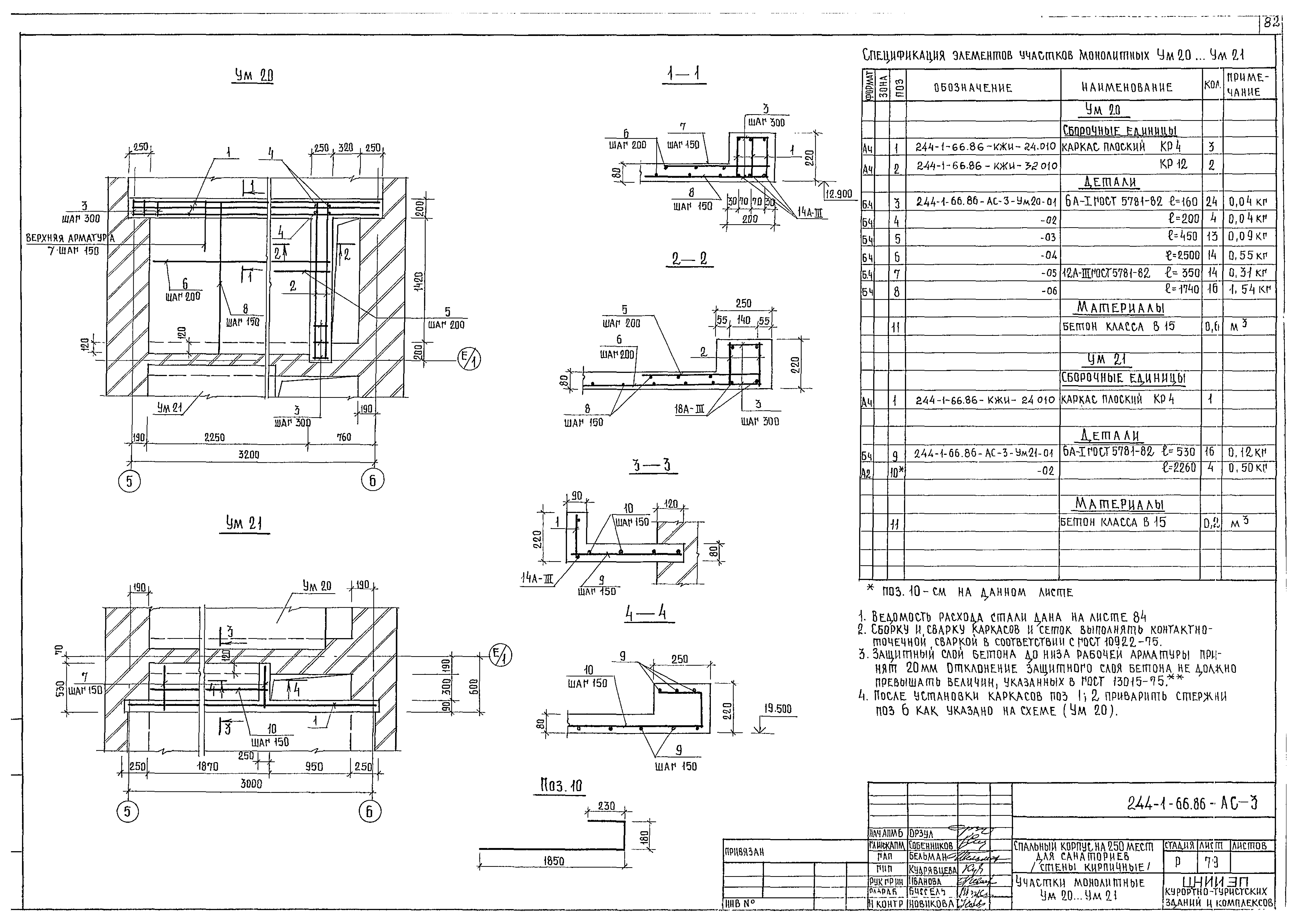
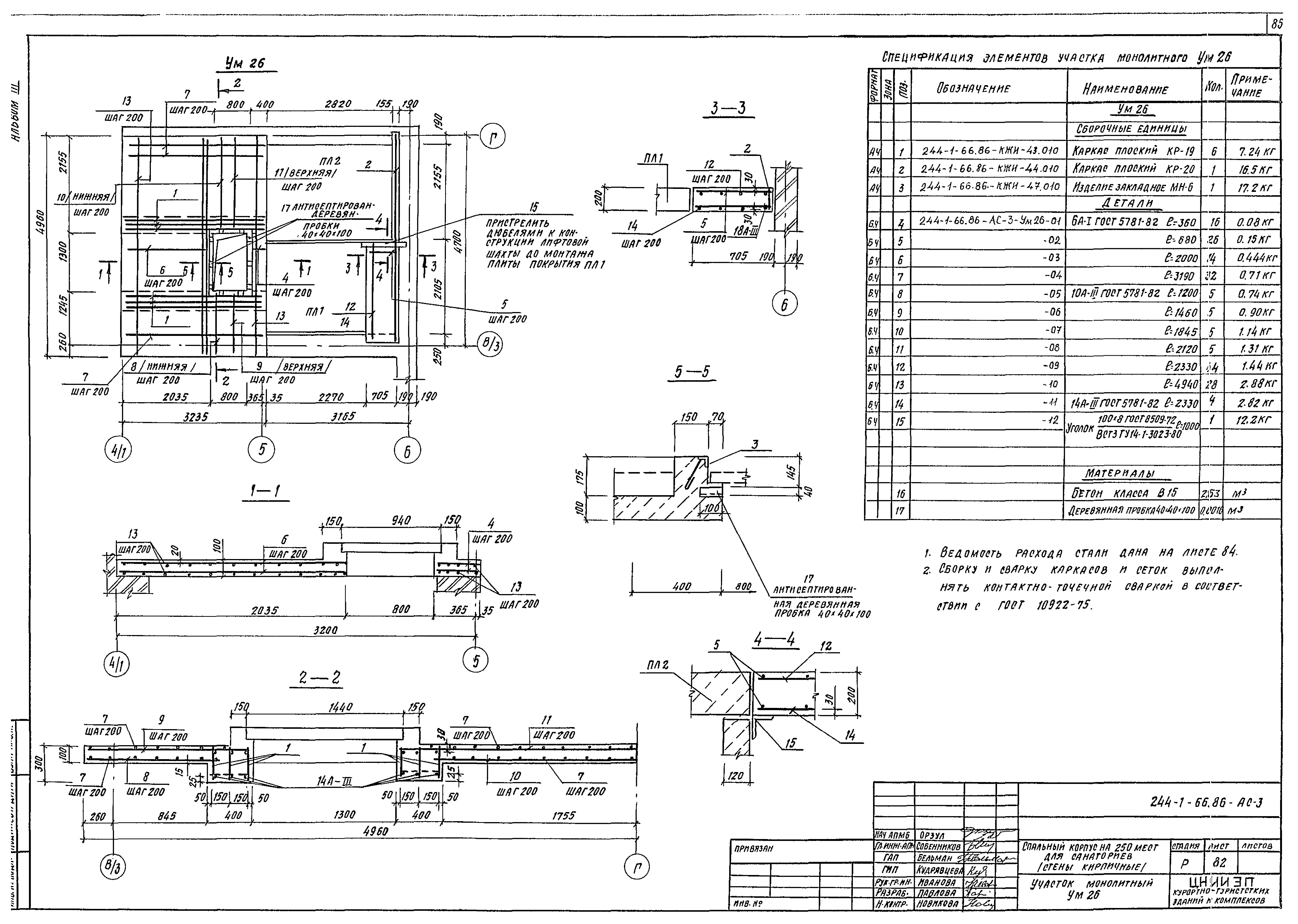
| Оглавление: | Архитектурно-строительные решения выше отм. 0.000 Общие данные План 1 этажа между осями В - И План 1 этажа между осями А - В План 1 этажа между осями В - И для варианта с подвалом План 1 этажа между осями А - В для варианта с подвалом План 2 этажа между осями В - И План 2 этажа между осями А - В План 3, 4 этажей План 5 этажа и кровли между осями В - И План 5 этажа и кровли между осями А - В План 6 этажа и кровли между осями В - И План 6 этажа между осями А - В Спецификация элементов заполнения проемов Спецификация элементов к планам Схема заполнения оконных проемов Спецификация к схемам заполнения оконных проемов Сечения и узлы установки импостов Ведомость перемычек Спецификация перемычек Разрез 1-1 Разрез 2-2 Разрез 3-3 Фасад 1 - 4; 11 - 9 Фасад 4 - 11 Фасад А - И Фасад И - А Фасад 8 - 1 Фрагмент 1, 2 Фрагмент 3, 4 Схемы расположения сантехкабин, воздуховодов, элементов лоджий План кровли между осями В - И. План на отм. 21.000 План кровли между осями А - В. Схема устройства молниезащиты Схема расположения элементов воздуховодов вид I-I Схема расположения элементов мусоропровода Узлы 1…4; 10…12 Узлы 5…9 Узлы 13…17, сечение а-а Схема расположения балок перекрытия на отм. 3.300 Схема расположения балок перекрытия на отм. 6.600 и 9.900 Схема расположения балок перекрытия на отм. 13.200 Схема расположения балок перекрытия на отм. 16.500 Схемы расположения балок перекрытия между осями 4 - 6 и В - Г и покрытия Узлы к схемам балок Схема расположения элементов перекрытия на отм. 3.300 между осями В - И и 1 - 8 Схема расположения элементов перекрытия на отм. 3.300 между осями А - В и 4 - 11 Схема расположения элементов перекрытия на отм. 6.600; 9.900 между осями Б - И и 1 - 8 Схема расположения элементов перекрытия на отм. 6.600 между осями А - В и 4 - 11 Схема расположения элементов перекрытия на отм. 9.900 между осями А - В и 4 - 11 Схема расположения элементов перекрытия на отм. 13.200 между осями Б - И и 1 - 8 Схема расположения элементов перекрытия на отм. 13.200 между осями А - В и 4 - 11 Схема расположения элементов перекрытия на отм. 16.500 между осями Б - И и 1 - 8 Схема расположения элементов перекрытия на отм. 16.500 между осями А - В и 4 - 11 Схема расположения элементов покрытия на между осями Б - И и 1 - 8 Схема расположения элементов покрытия на между осями А - В и 4 - 10, Б - Г и 4 - 6 Сечения по перекрытиям 1-1…5-5 Сечения по перекрытиям 6-6…10-10 Сечения по перекрытиям 11-11…15-15 Сечения по перекрытиям 16-16…19-19 Спецификация элементов перекрытия Балки монолитные БМ1, БМ2, БМ3 Участки монолитные УМ1, УМ2, УМ3 Участки монолитные УМ1…УМ3, УМ11…УМ13, УМ27, УМ28. Сечения 2-2…4-4 Участки монолитные УМ4, УМ5 Участки монолитные УМ6, УМ7 Участки монолитные УМ8, УМ9, УМ10 Участки монолитные УМ11…УМ13 Участки монолитные УМ14…УМ16 Участки монолитные УМ17…УМ19 Участки монолитные УМ20…УМ21 Участки монолитные УМ22…УМ24 Участки монолитные УМ25 Участки монолитные УМ26 Участки монолитные УМ27, УМ28 Ведомость расхода стали на элемент |
| Разработан: | ЦНИИЭП курортно-туристских зданий и комплексов Госгражданстроя |
| Утверждён: | 03.10.1984 Госгражданстрой (Gosgrazhdanstroy 280) |























































































