Скачать Типовой проект 244-1-66.86 Альбом IV. Инженерное оборудование ниже отм. 0.000 (основное решение)Дата актуализации: 01.01.2021
|
| Обозначение: | Типовой проект 244-1-66.86 |
| Обозначение англ: | 244-1-66.86 |
| Статус: | не определен законодательством |
| Название рус.: | Альбом IV. Инженерное оборудование ниже отм. 0.000 (основное решение) |
| Дата добавления в базу: | 01.10.2014 |
| Дата актуализации: | 01.01.2021 |
| Дата введения: | 08.12.1986 |
| Дата окончания срока действия: | 30.06.2003 |
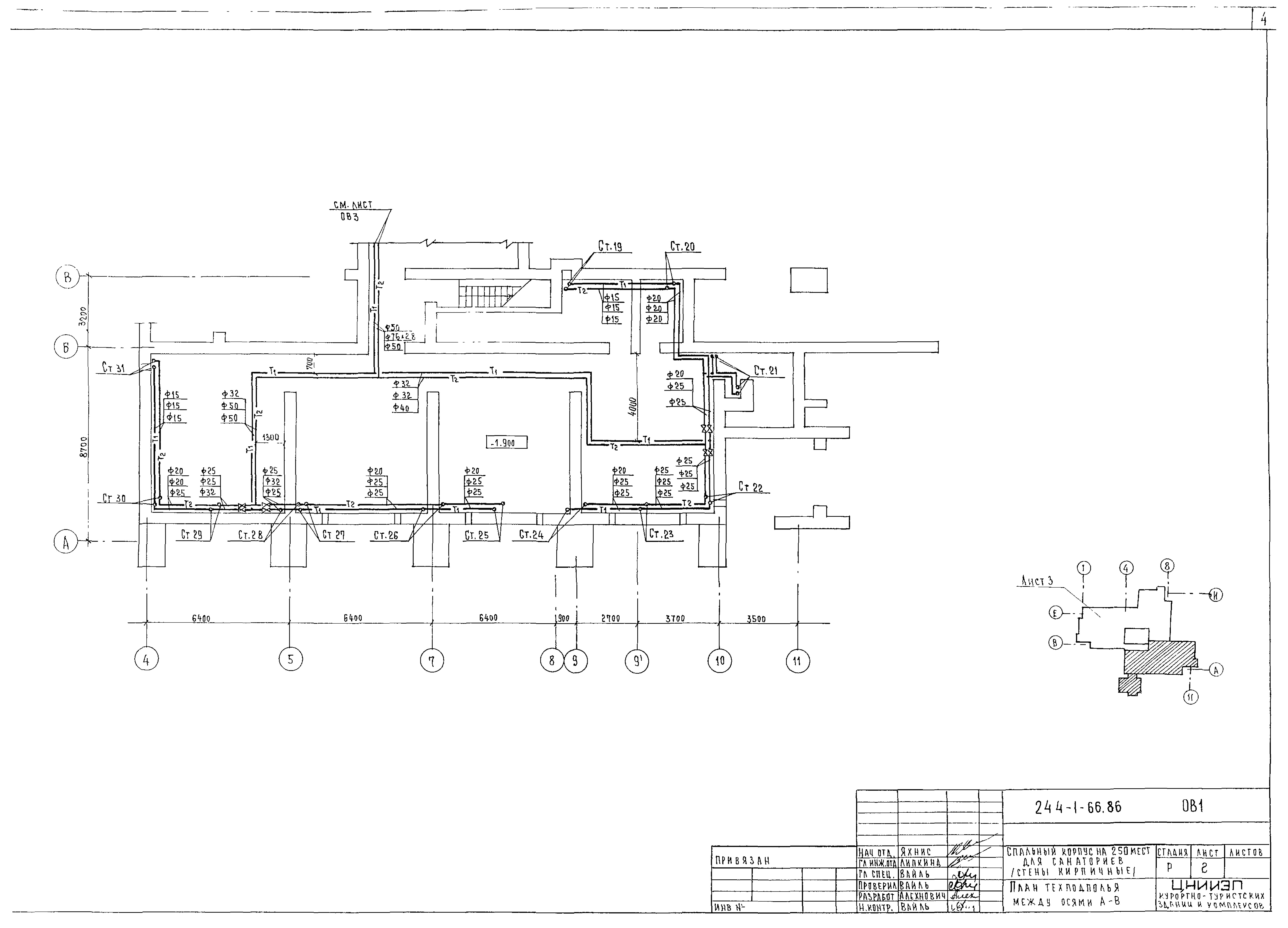
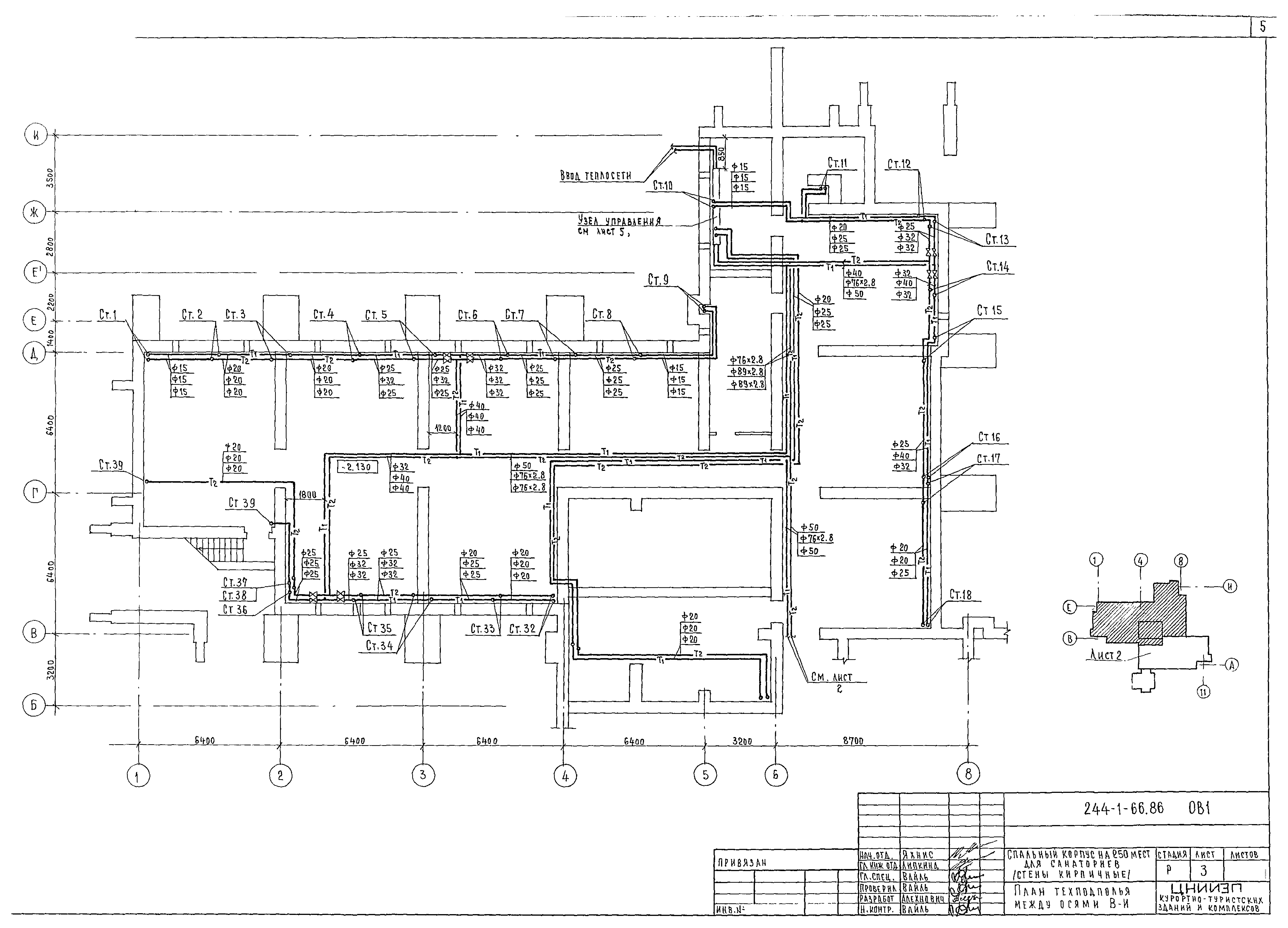
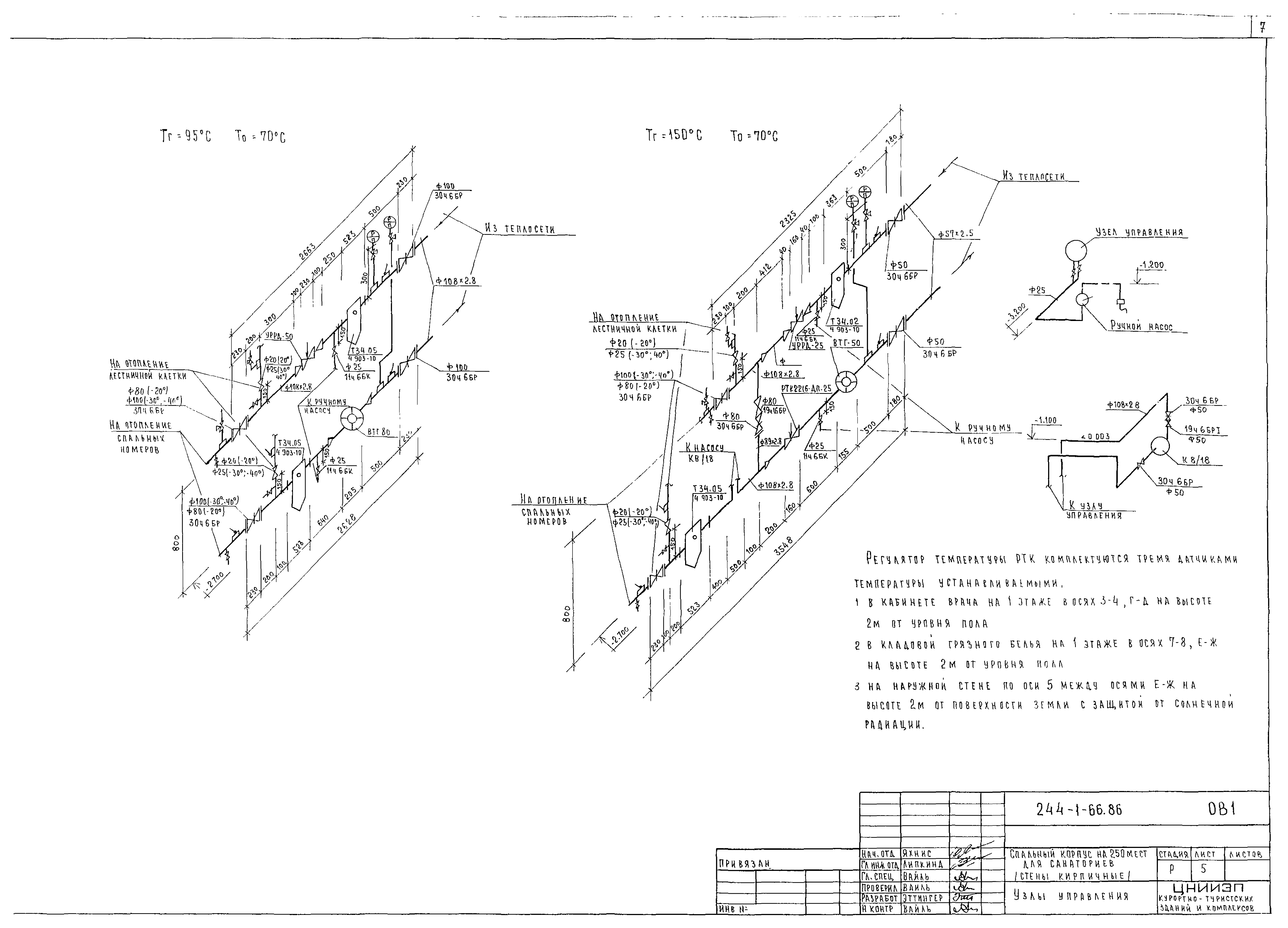
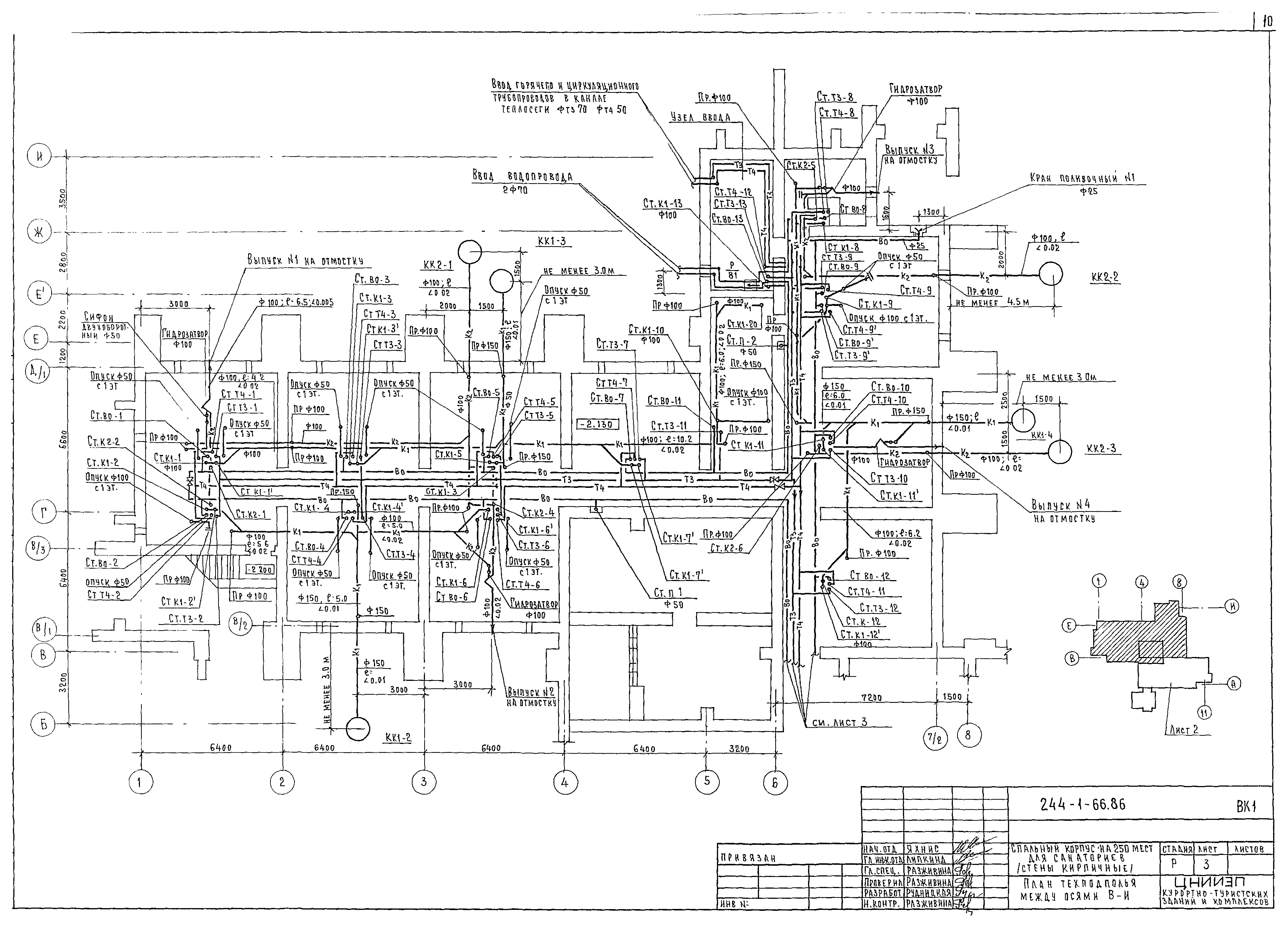
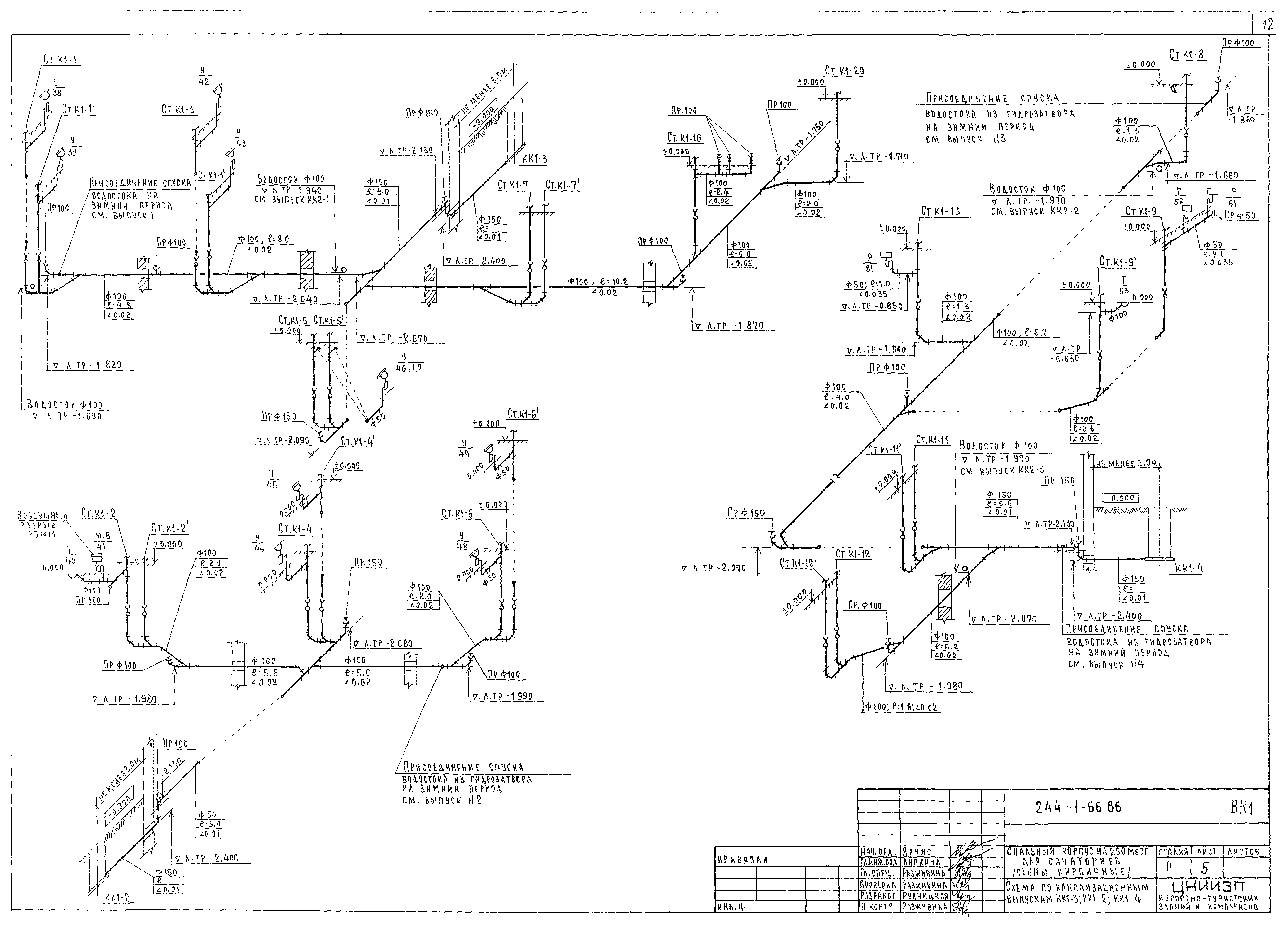
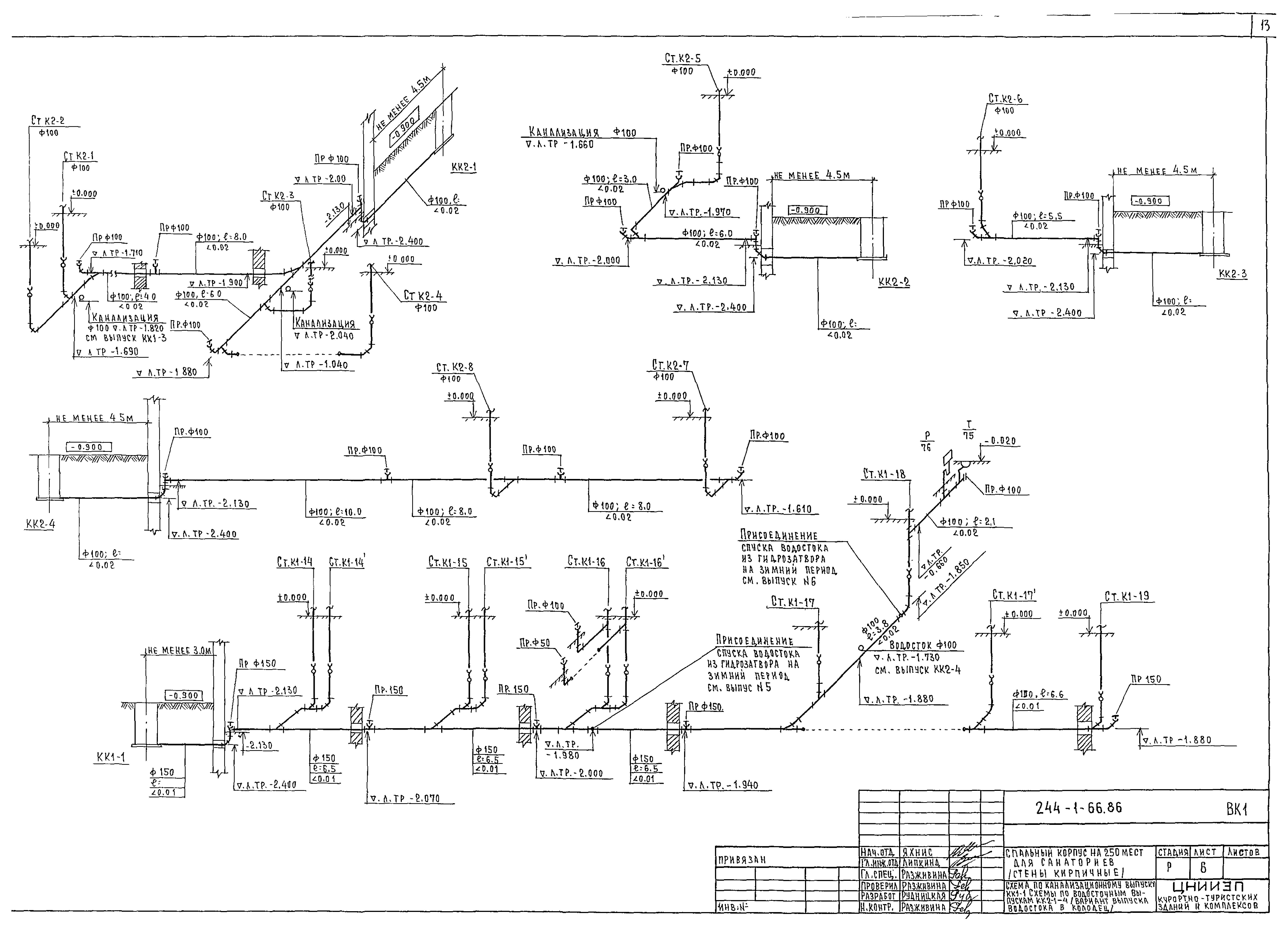
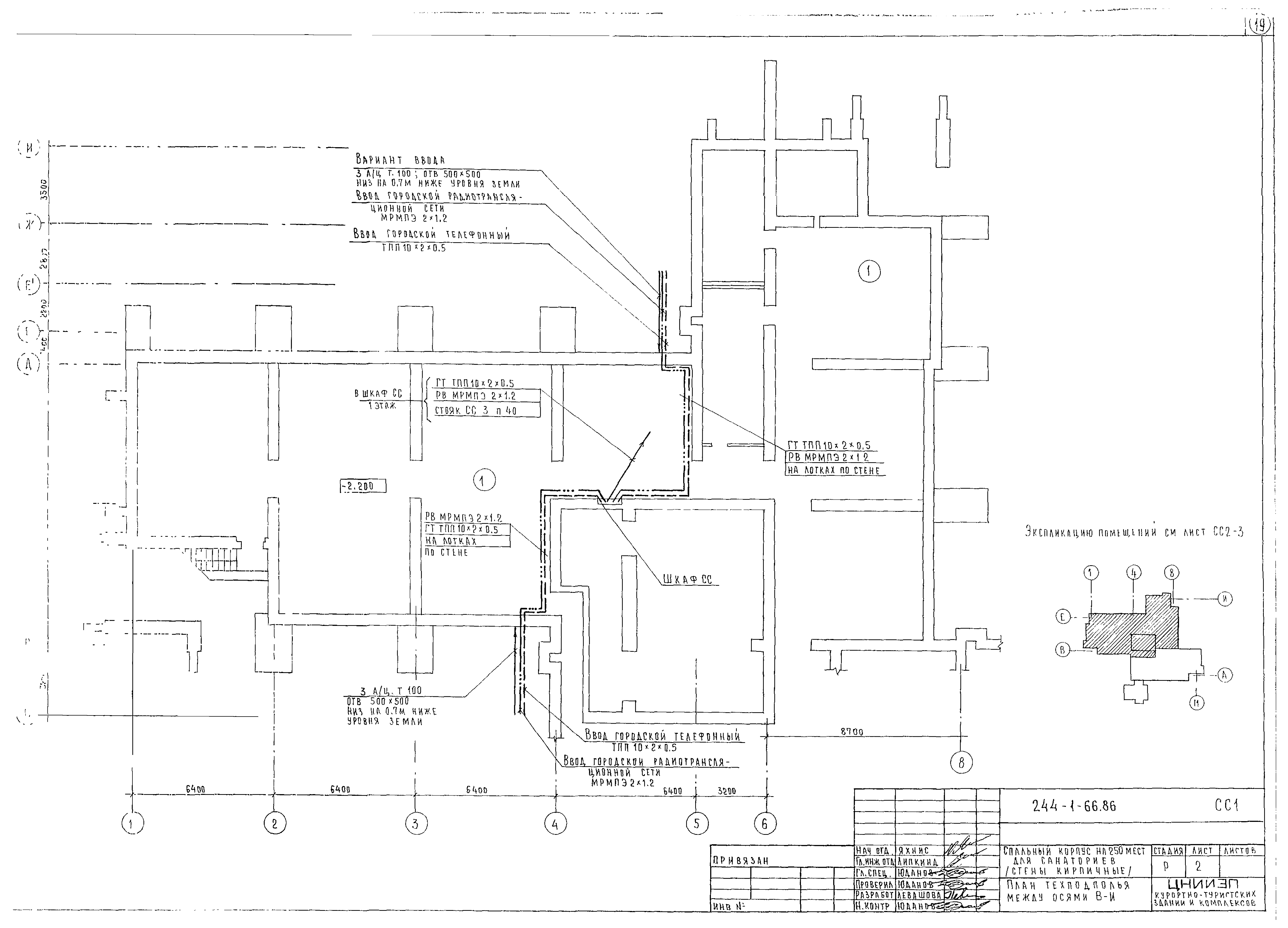
| Оглавление: | Содержание альбома Чертежи основного комплекта марки ОВ1 Общие данные План техподполья между осями А - В План техподполья между осями В - И Схемы систем отопления спальных номеров и лестничной клетки (магистраль) Узлы управления Чертежи основного комплекта марки ВК1 Общие данные План техподполья между осями А - В План техподполья между осями В - И Схема холодного, горячего и циркуляционного водоснабжения Схемы по канализационным выпускам КК1-3, КК1-2, КК1-4 Схема по канализационному выпуску КК1-1. Схемы по водосточным выпускам КК2-1 - 4 (вариант выпуска водостока в колодец) Схемы по водосточным выпускам (вариант выпуска водостока на отмостку) Чертежи основного комплекта марки ЭО1 Общие данные План техподполья между осями А - В. Электроосвещение План техподполья между осями В - И. Электроосвещение Чертежи основного комплекта марки СС1 Общие данные План техподполья между осями В - И |
| Разработан: | ЦНИИЭП курортно-туристских зданий и комплексов Госгражданстроя |
| Утверждён: | 03.10.1984 Госгражданстрой (Gosgrazhdanstroy 280) |



















