Скачать Типовой проект 244-1-66.86 Альбом XII. Проектная документация на приспособление спального корпуса под лечебное учреждениеДата актуализации: 01.01.2021
|
| Обозначение: | Типовой проект 244-1-66.86 |
| Обозначение англ: | 244-1-66.86 |
| Статус: | не определен законодательством |
| Название рус.: | Альбом XII. Проектная документация на приспособление спального корпуса под лечебное учреждение |
| Дата добавления в базу: | 01.10.2014 |
| Дата актуализации: | 01.01.2021 |
| Дата введения: | 08.12.1986 |
| Дата окончания срока действия: | 30.06.2003 |
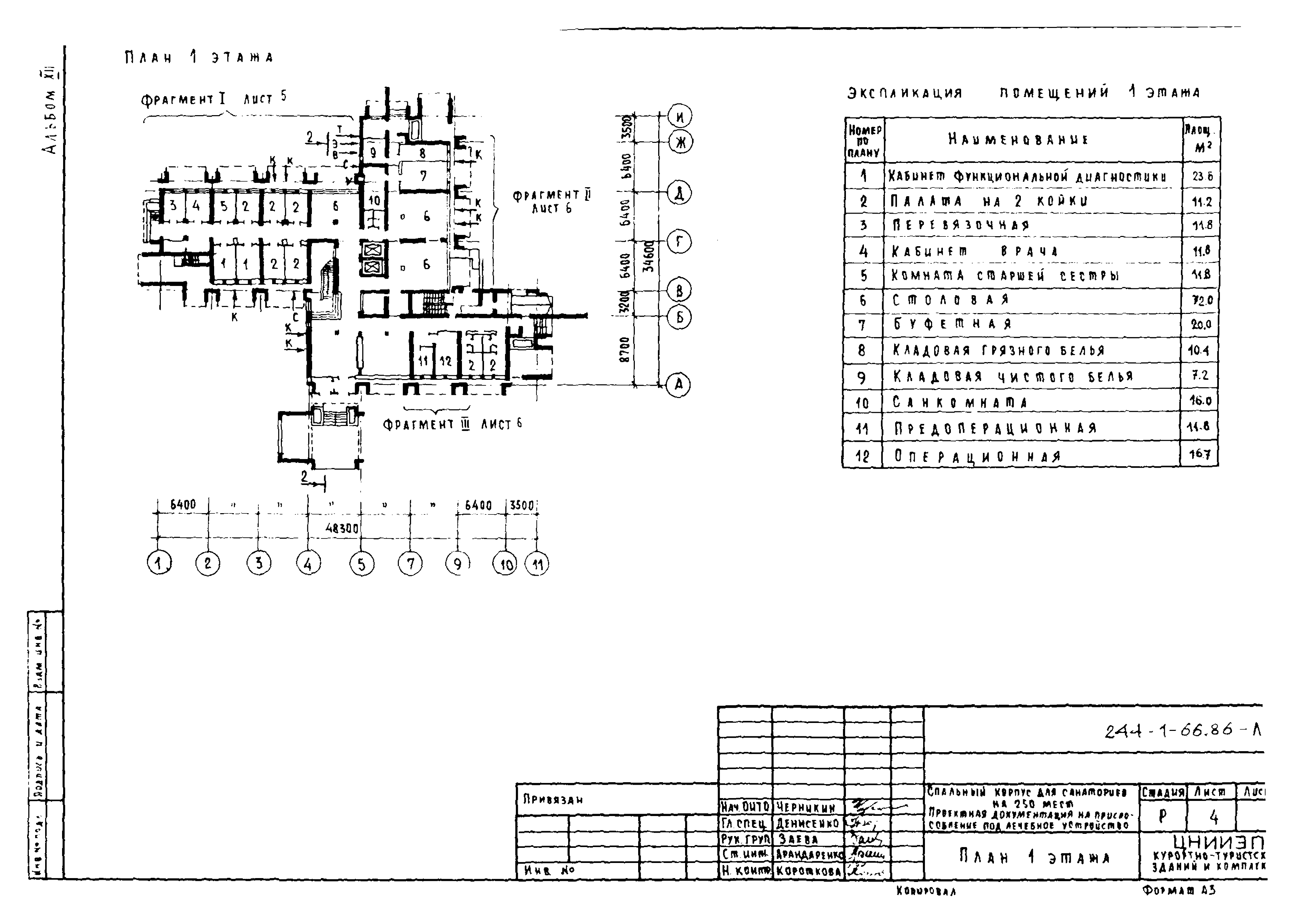
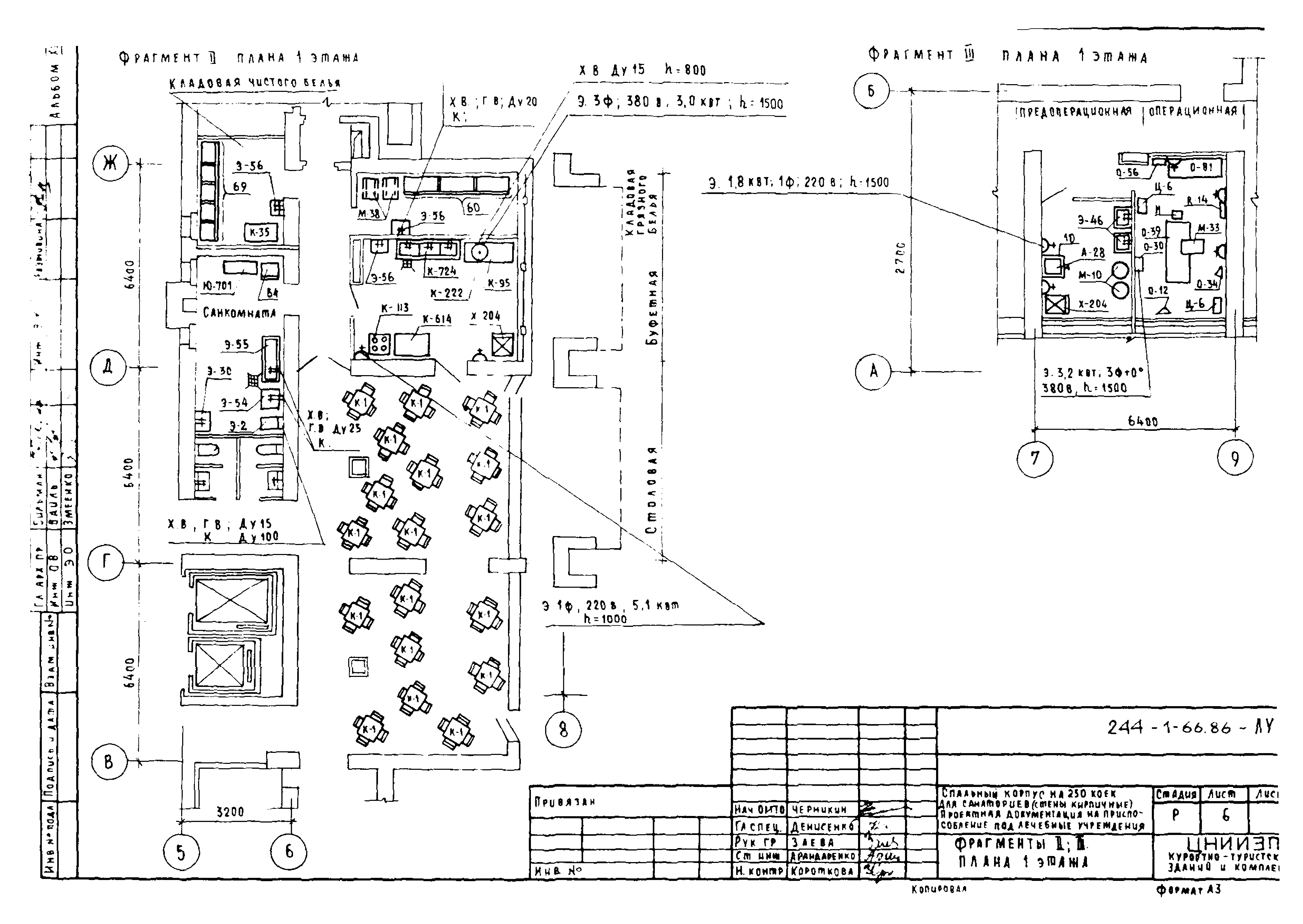
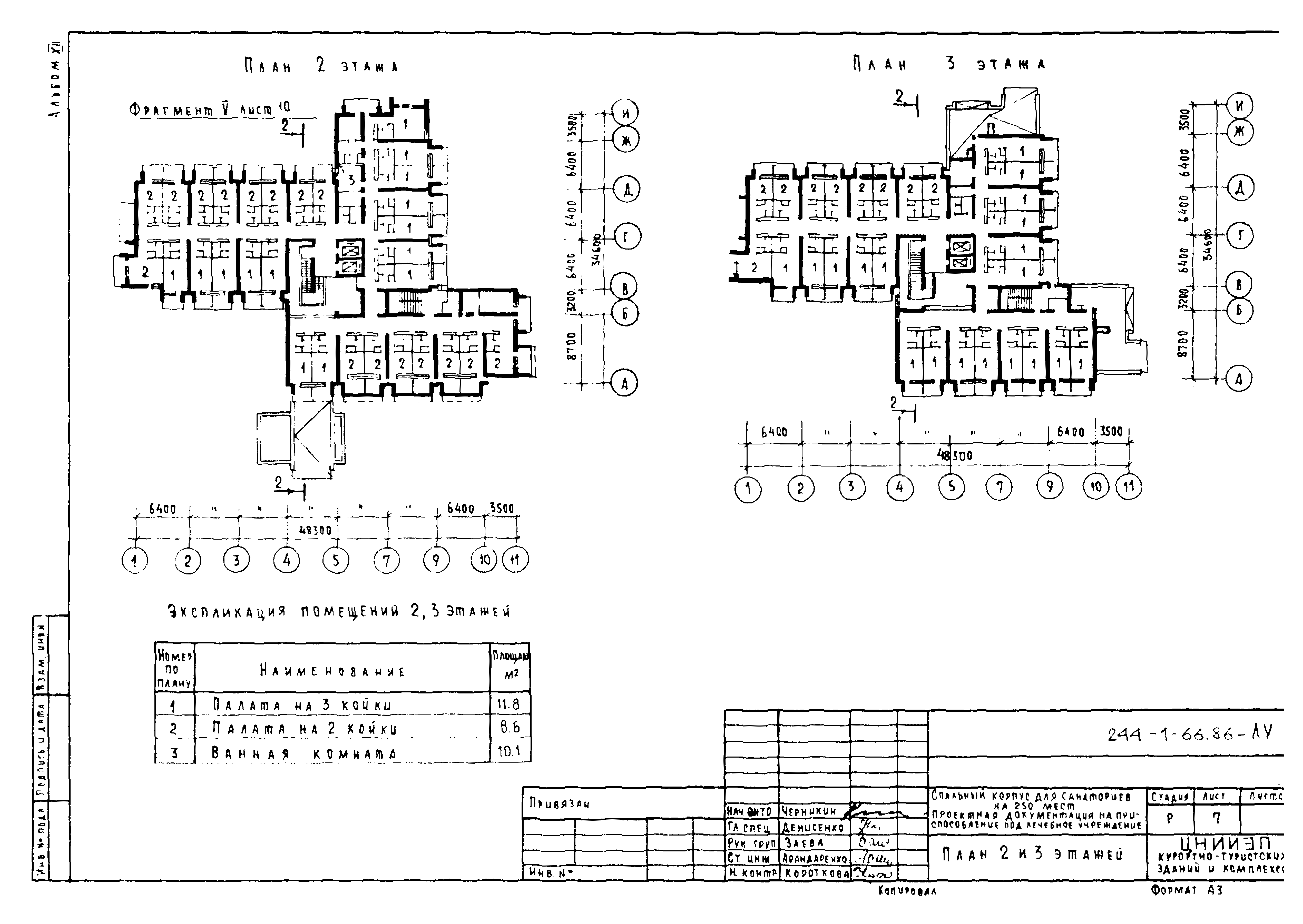
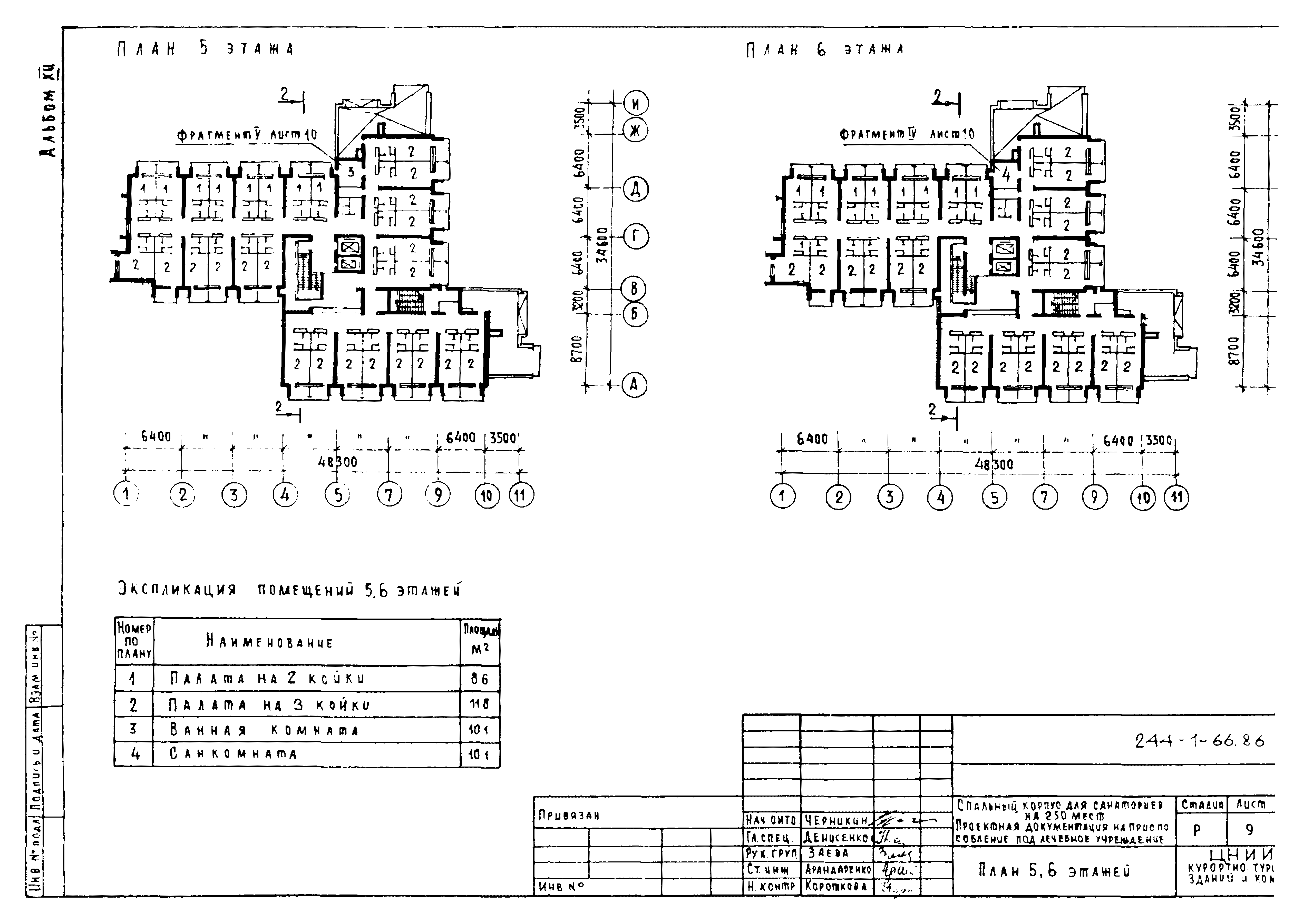
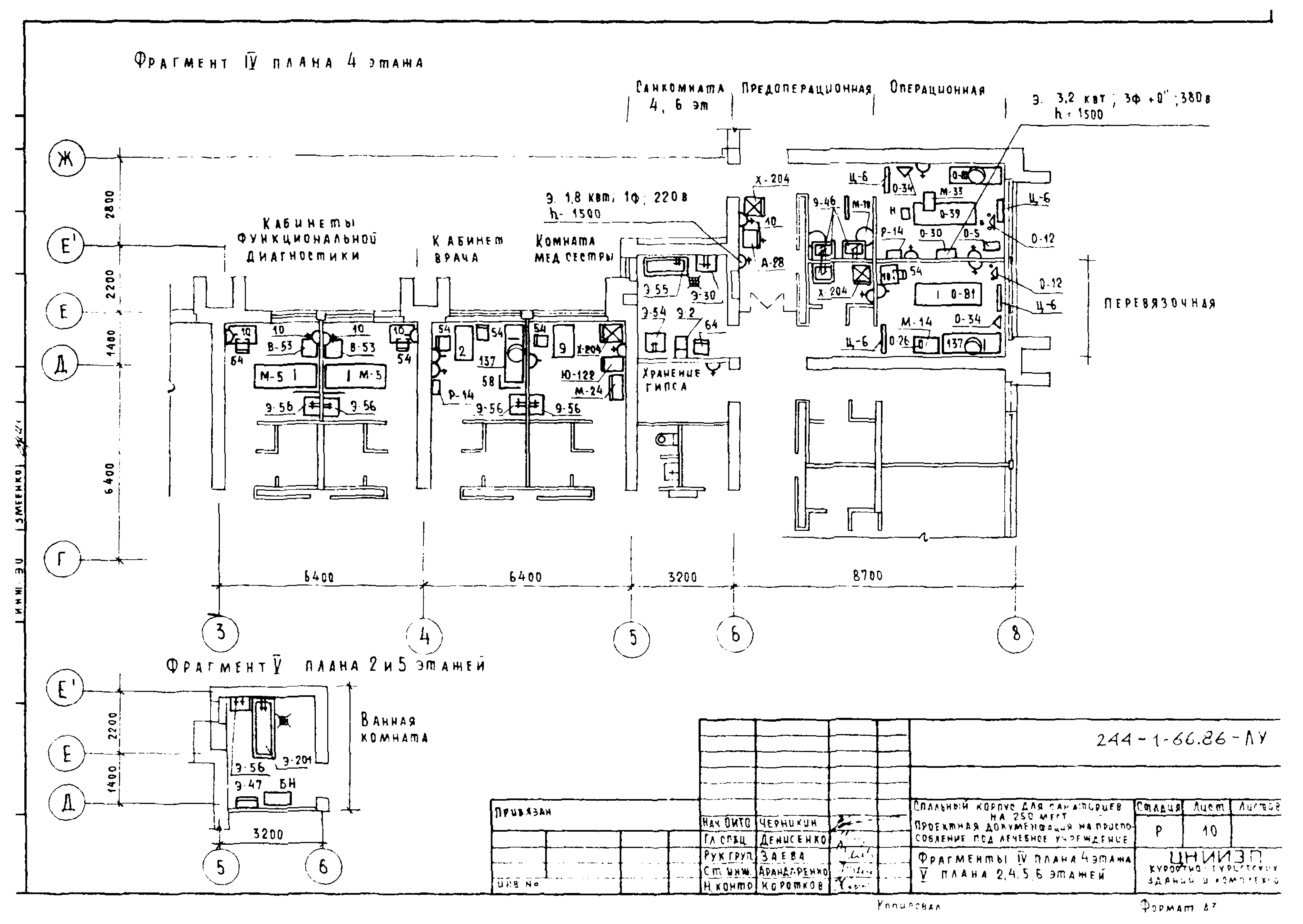
| Оглавление: | Общие данные План 1 этажа Фрагмент I. План 1 этажа Фрагмент II, III. План 1 этажа План 2, 3 этажей План 4 этажа План 5, 6 этажей Фрагмент IV, V. План 2, 4, 5, 6 этажей |
| Разработан: | ЦНИИЭП курортно-туристских зданий и комплексов Госгражданстроя |
| Утверждён: | 03.10.1984 Госгражданстрой (Gosgrazhdanstroy 280) |












