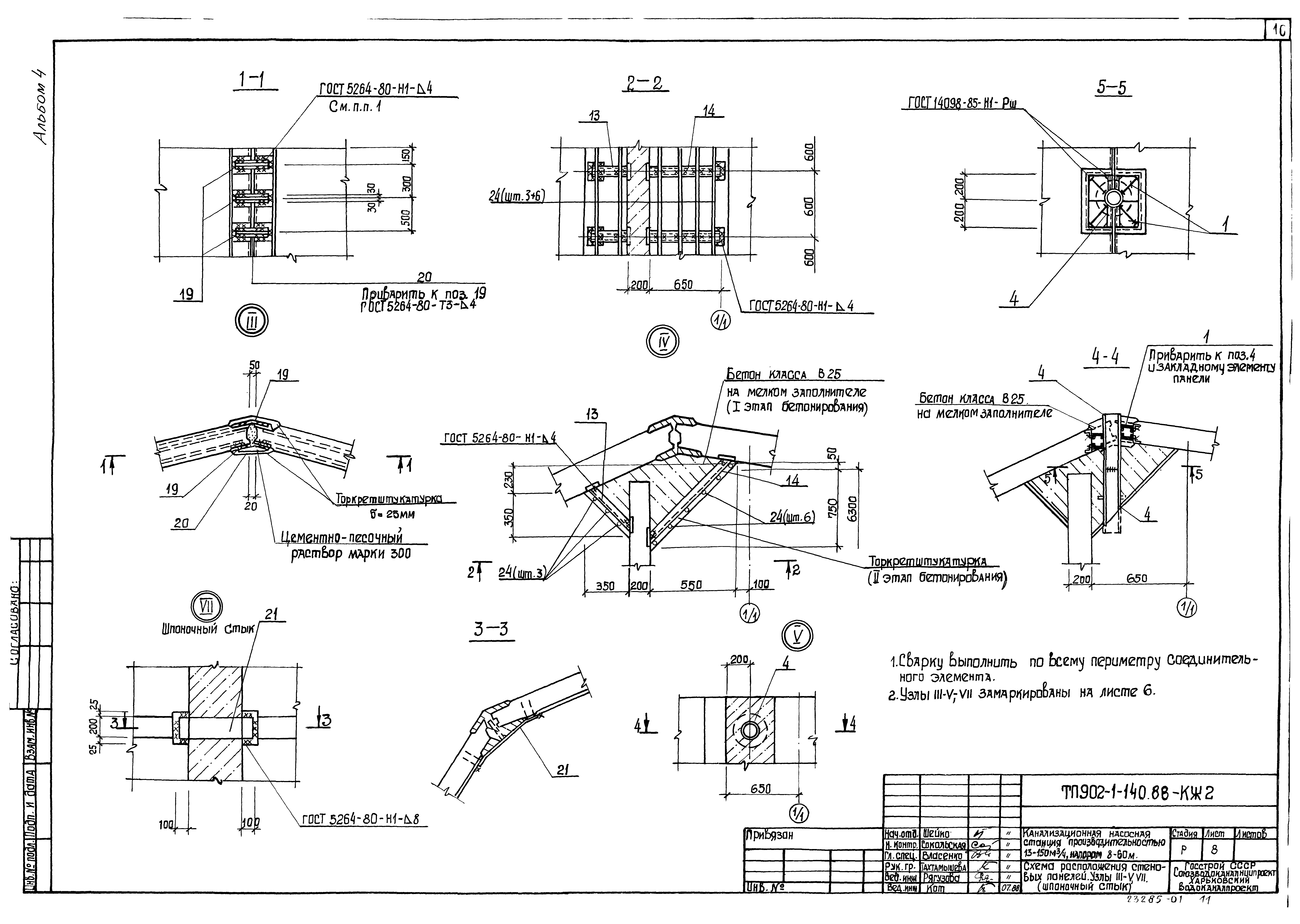
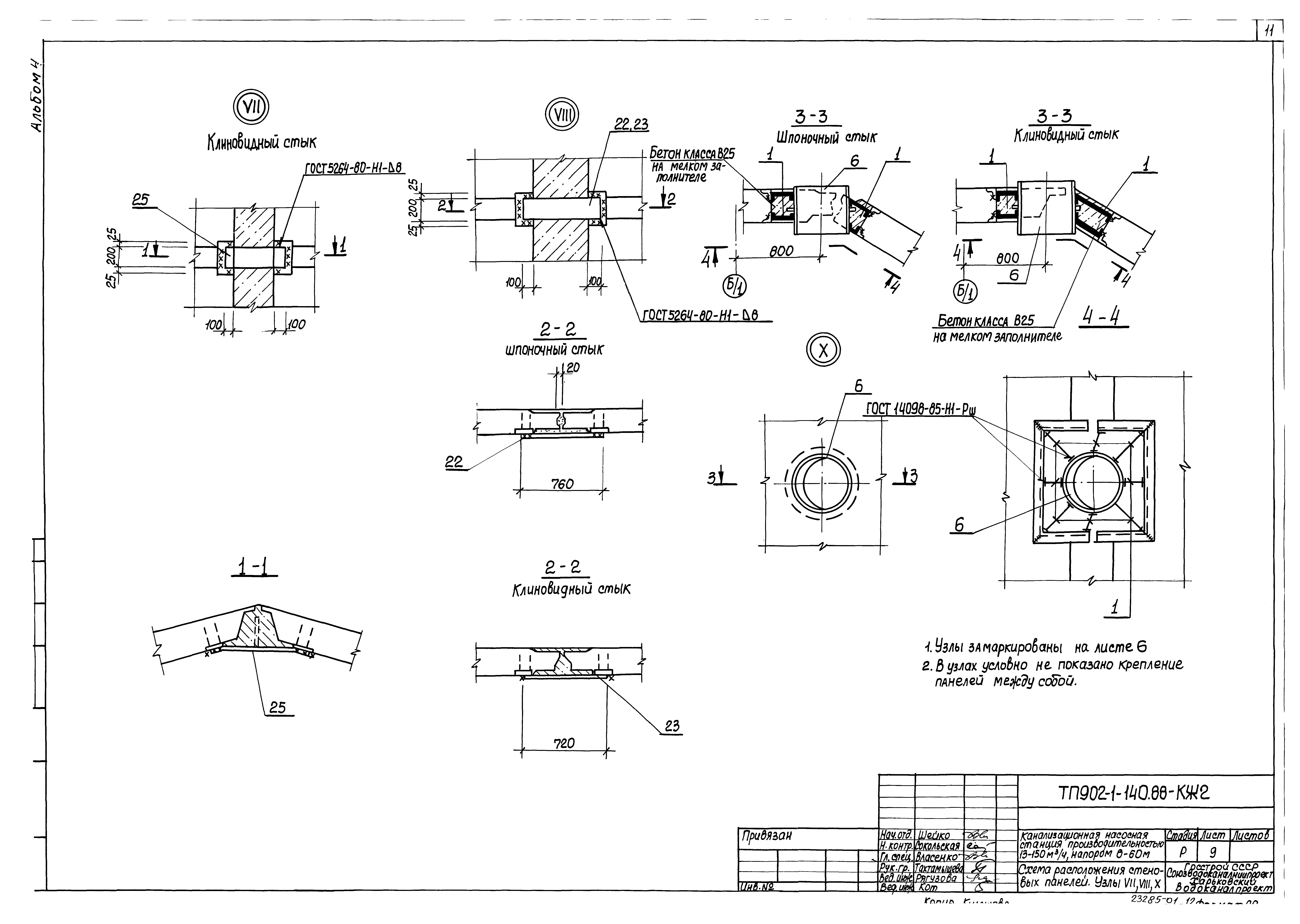
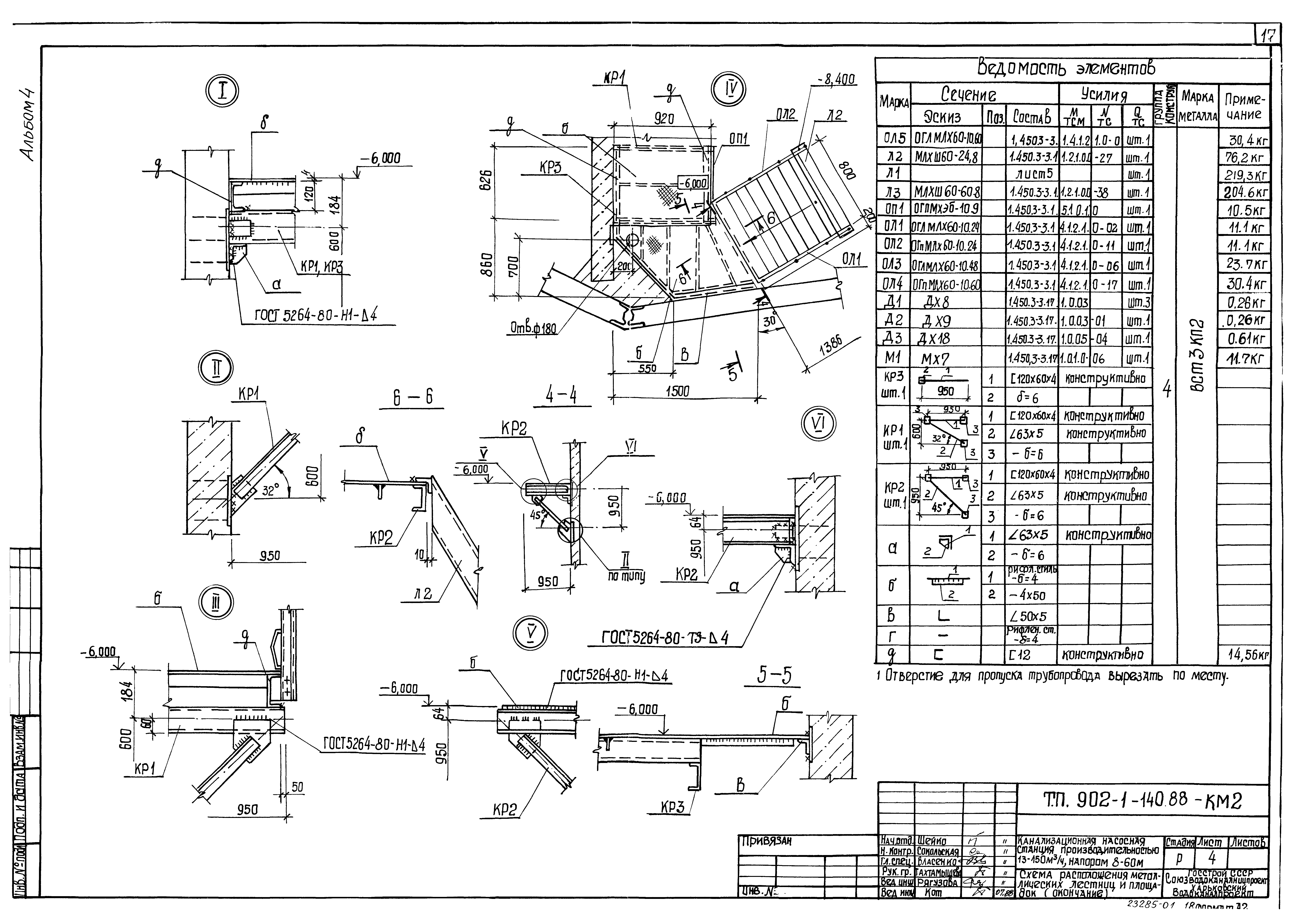
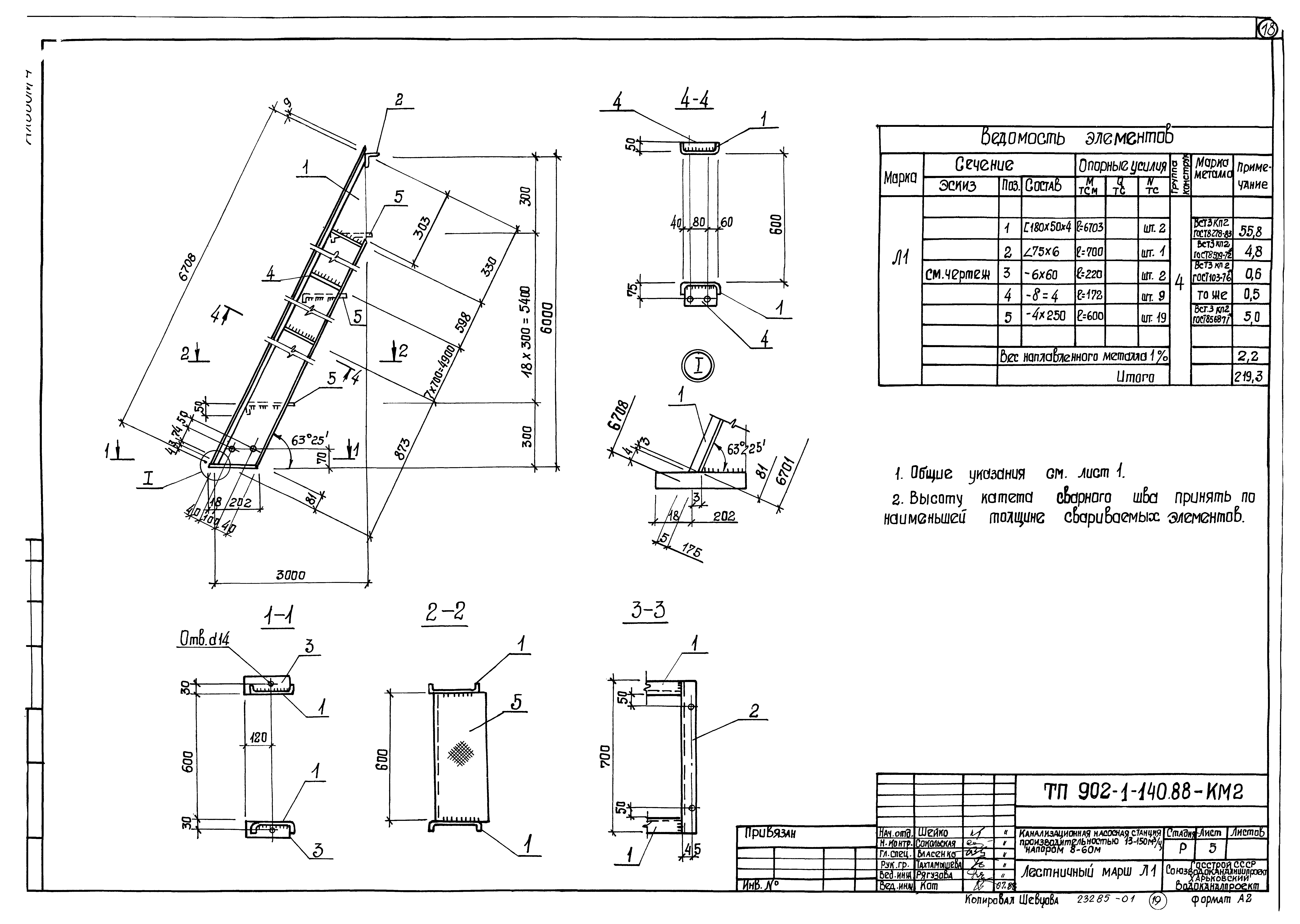
Скачать Типовой проект 902-1-140.88 Альбом 4. Подземная часть. Конструкции железобетонные. Конструкции металлическиеДата актуализации: 01.01.2021
|
| Обозначение: | Типовой проект 902-1-140.88 |
| Обозначение англ: | 902-1-140.88 |
| Статус: | не определен законодательством |
| Название рус.: | Альбом 4. Подземная часть. Конструкции железобетонные. Конструкции металлические |
| Дата добавления в базу: | 01.10.2014 |
| Дата актуализации: | 01.01.2021 |
| Дата введения: | 19.07.1988 |
| Дата окончания срока действия: | 30.06.2003 |
| Разработан: | Харьковский Водоканалпроект |
| Утверждён: | 19.07.1988 Госстрой СССР (46) |
| Издан: | ЦИТП Госстроя СССР (CITP, Gosstroy (USSR) 1988 г. ) |
| Заменяет собой: |

















