Скачать Типовой проект 903-1-23/71 Альбом IV. Воздуховоды. Тип 1, 2, 3Дата актуализации: 01.01.2021
|
| Обозначение: | Типовой проект 903-1-23/71 |
| Обозначение англ: | 903-1-23/71 |
| Статус: | отменен |
| Название рус.: | Альбом IV. Воздуховоды. Тип 1, 2, 3 |
| Дата добавления в базу: | 01.10.2014 |
| Дата актуализации: | 01.01.2021 |
| Дата введения: | 01.03.1973 |
| Дата окончания срока действия: | 01.03.1983 |
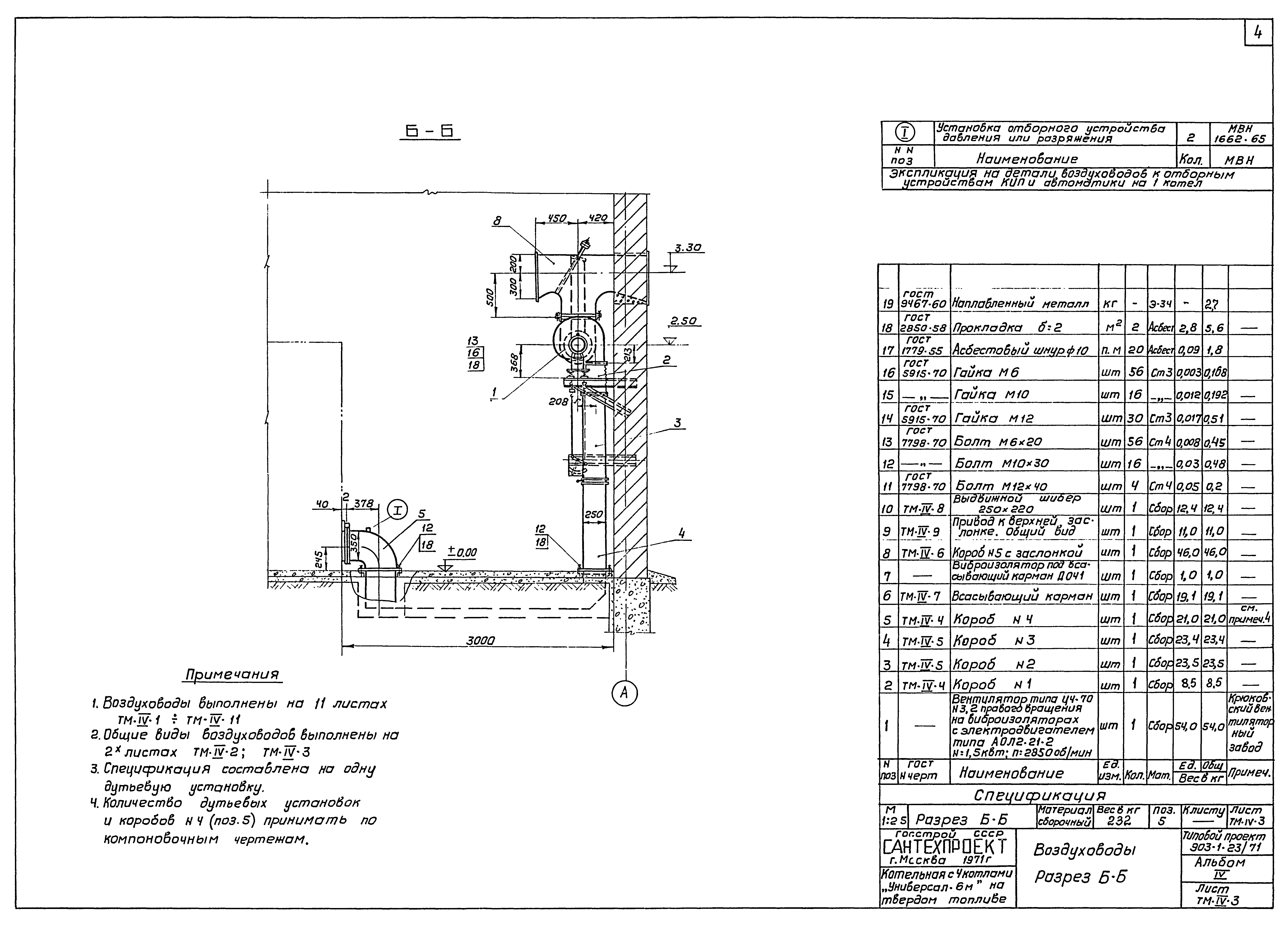
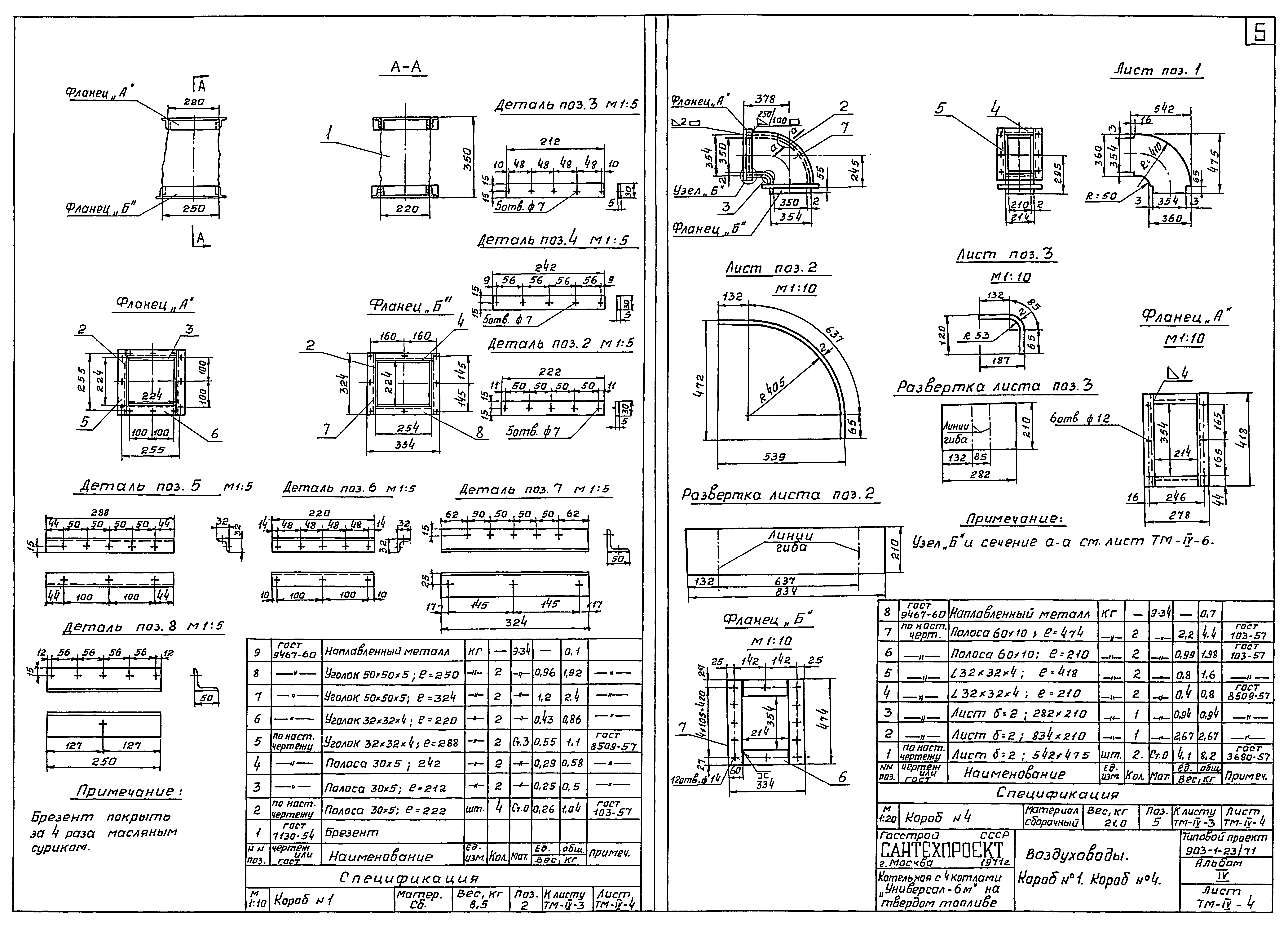
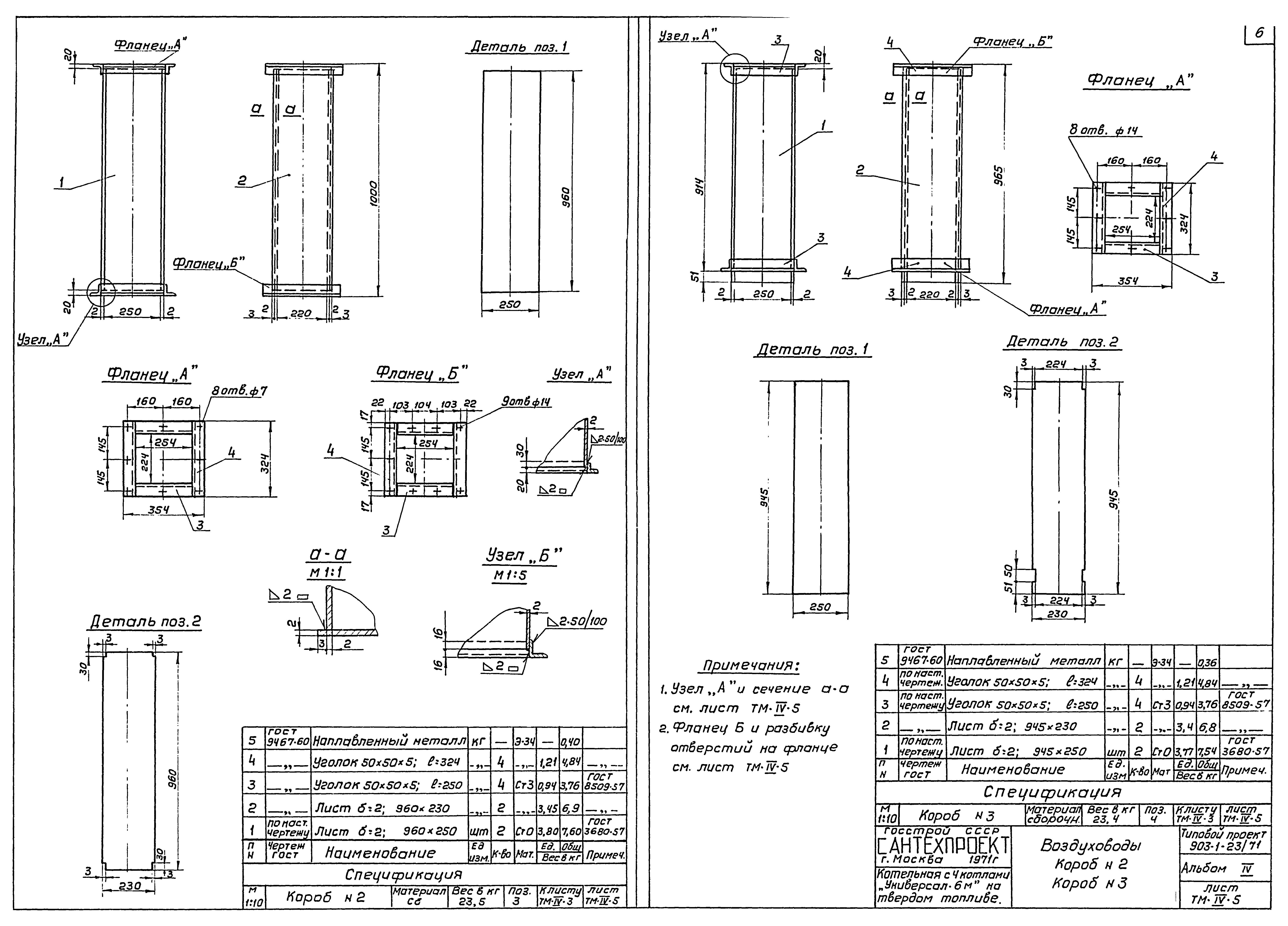
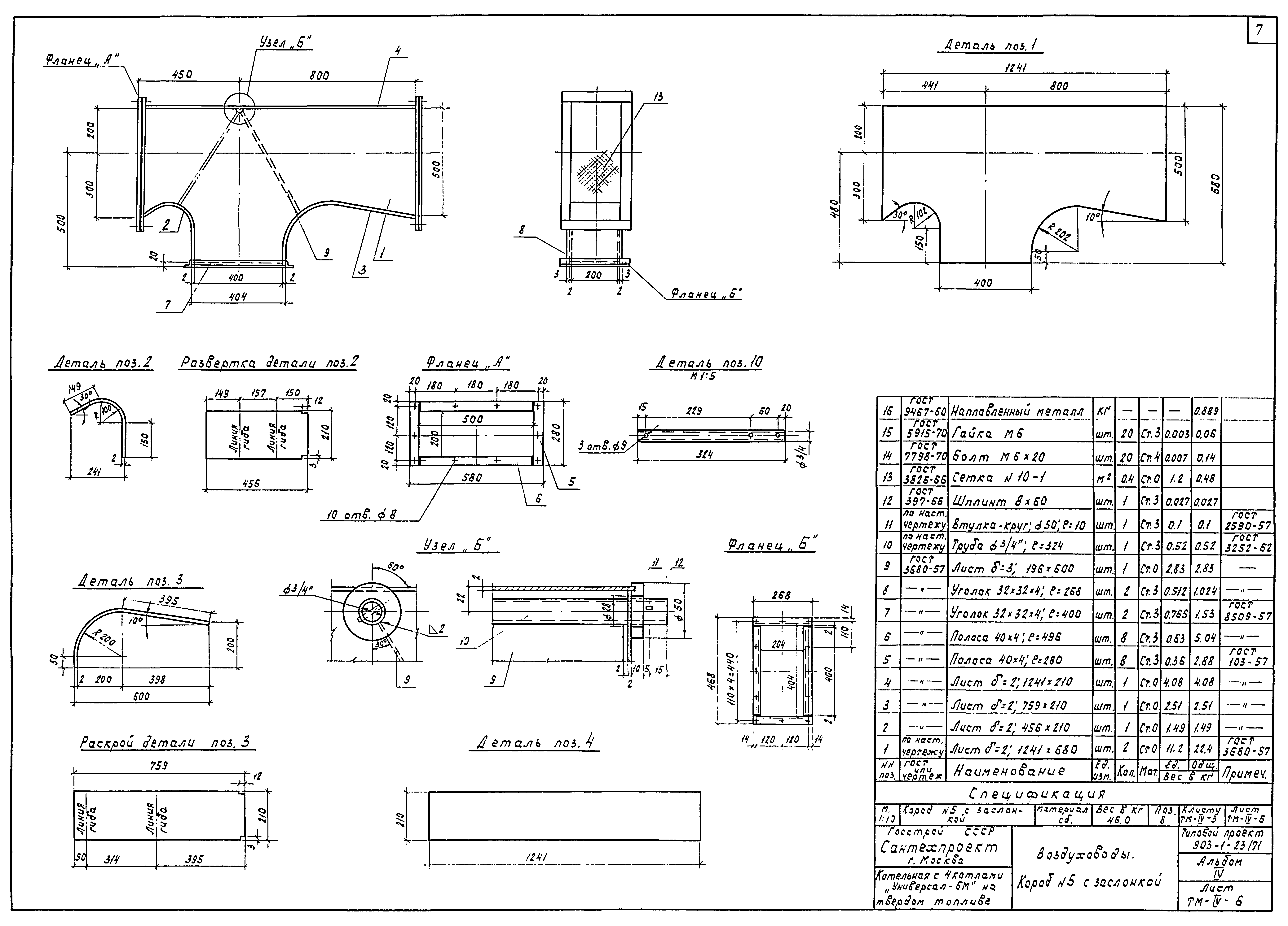
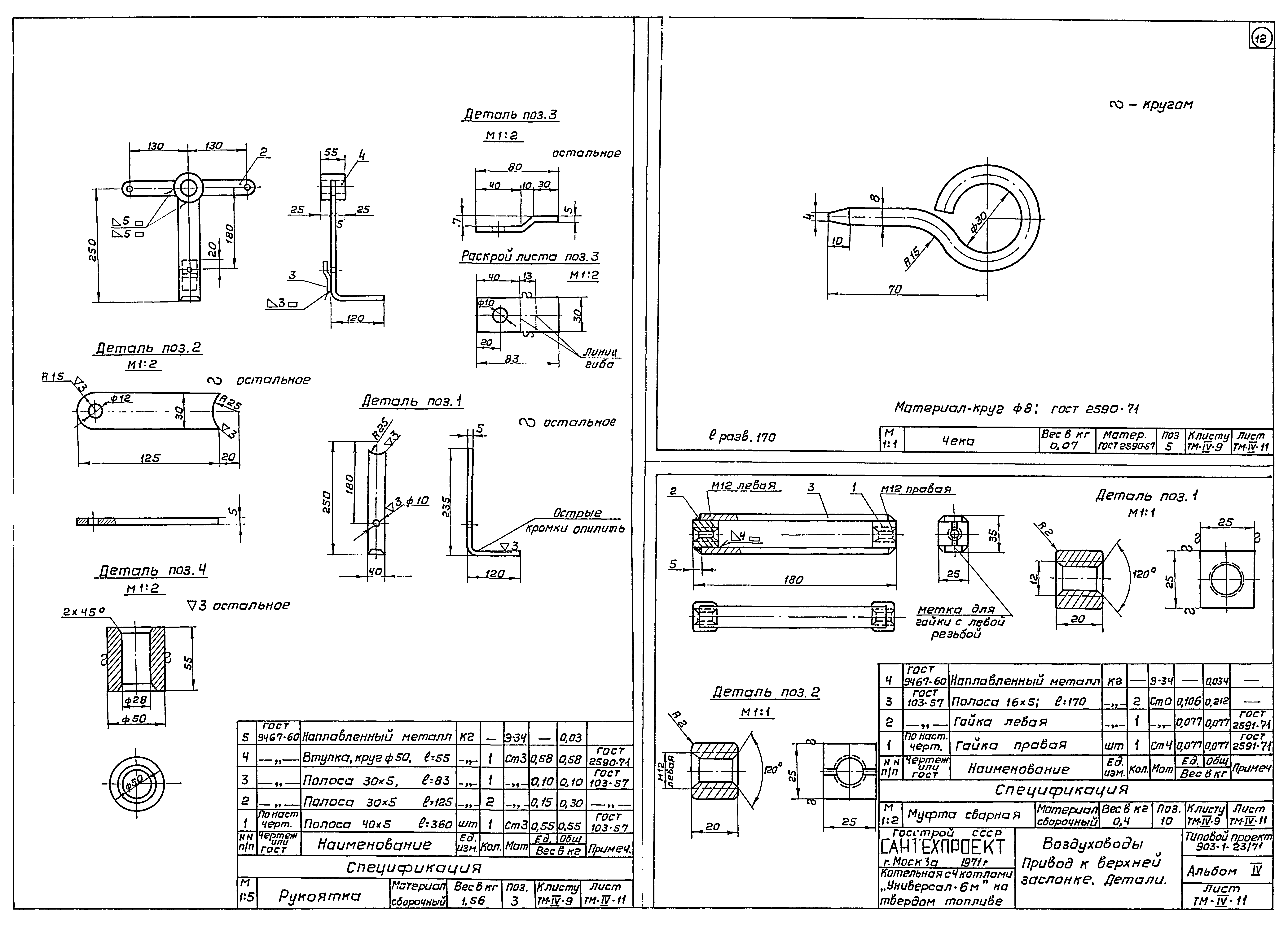
| Оглавление: | Титульный лист ТМ-IV-1 Содержание альбома. Сводная спецификация на металл воздуховодов одного котла. Опись чертежей Воздуховоды (1 котел) ТМ-IV-2 План - вид сверху. Разрез А-А ТМ-IV-3 Разрез Б-Б. Спецификация ТМ-IV-4 Короб № 1. Короб № 4 ТМ-IV-5 Короб № 2. Короб № 3 ТМ-IV-6 Короб № 5 с заслонкой ТМ-IV-7 Всасывающий карман ТМ-IV-8 Выдвижной шибер 250х220 ТМ-IV-9 Привод к верхней заслонке. Общий вид. Детали ТМ-IV-10 Привод к верхней заслонке. Детали ТМ-IV-11 Привод к верхней заслонке. Детали |
| Разработан: | ГПИ Сантехпроект Госстроя СССР |
| Утверждён: | 15.02.1973 Главпромстройпроект Госстроя СССР (7) |
| Заменяет собой: |
|













