Скачать Серия 3.501.3-189.14 Выпуск 0. Материалы для проектированияДата актуализации: 01.01.2021 Серия 3.501.3-189.14
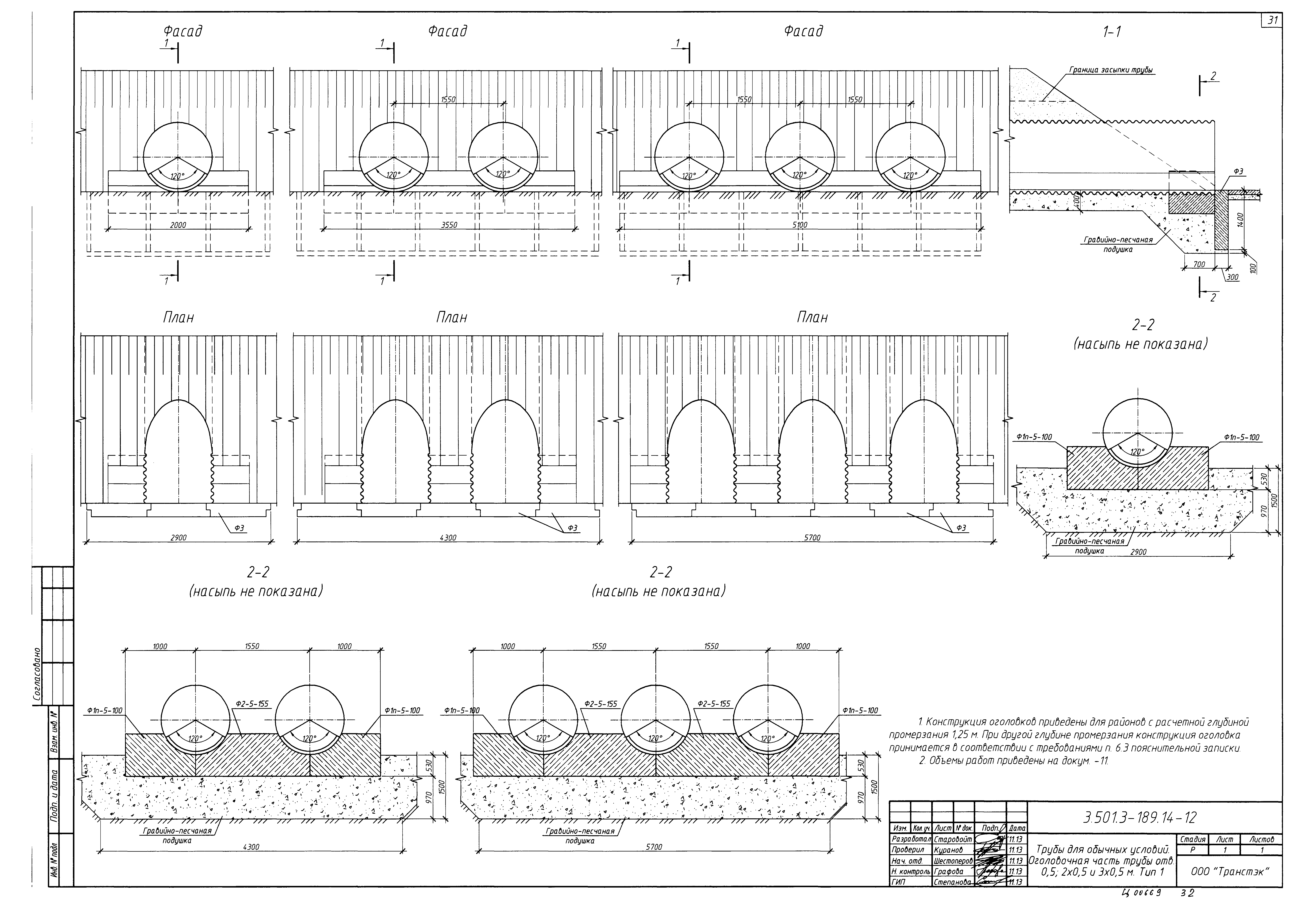
Выпуск 0. Материалы для проектирования| Обозначение: | Серия 3.501.3-189.14 | | Обозначение англ: | Series 3.501.3-189.14 | | Статус: | не определен законодательством | | Название рус.: | Выпуск 0. Материалы для проектирования | | Дата добавления в базу: | 01.02.2020 | | Дата актуализации: | 01.01.2021 | | Дата введения: | 03.03.2014 | | Разработан: | ООО СтройПроектСервис
| | Утверждён: | 23.01.2014 ООО Транстэк (8/14)
| | Издан: | Информационный бюллетень о нормативной, методической и типовой проектной документации ФГУП ЦПП (2014 г. (9))
|
                                                           
|