Скачать Организационно-технологические решения по технике безопасности в проектах производства работДата актуализации: 01.01.2021 |
| Статус: | справочные материалы, мп, тпр |
| Название рус.: | Организационно-технологические решения по технике безопасности в проектах производства работ |
| Дата добавления в базу: | 01.11.2014 |
| Дата актуализации: | 01.01.2021 |
| Область применения: | Работа содержит рекомендации и примеры проектных решений по реализации требований безопасности в организационно-технологической документации предусматриваемой проектом производства работ. Работа предназначена для инженерно-технических работников проектно-технологических институтов, трестов Оргтехстрой и строительно-монтажных организаций, занимающихся разработкой проектов производства работ. |
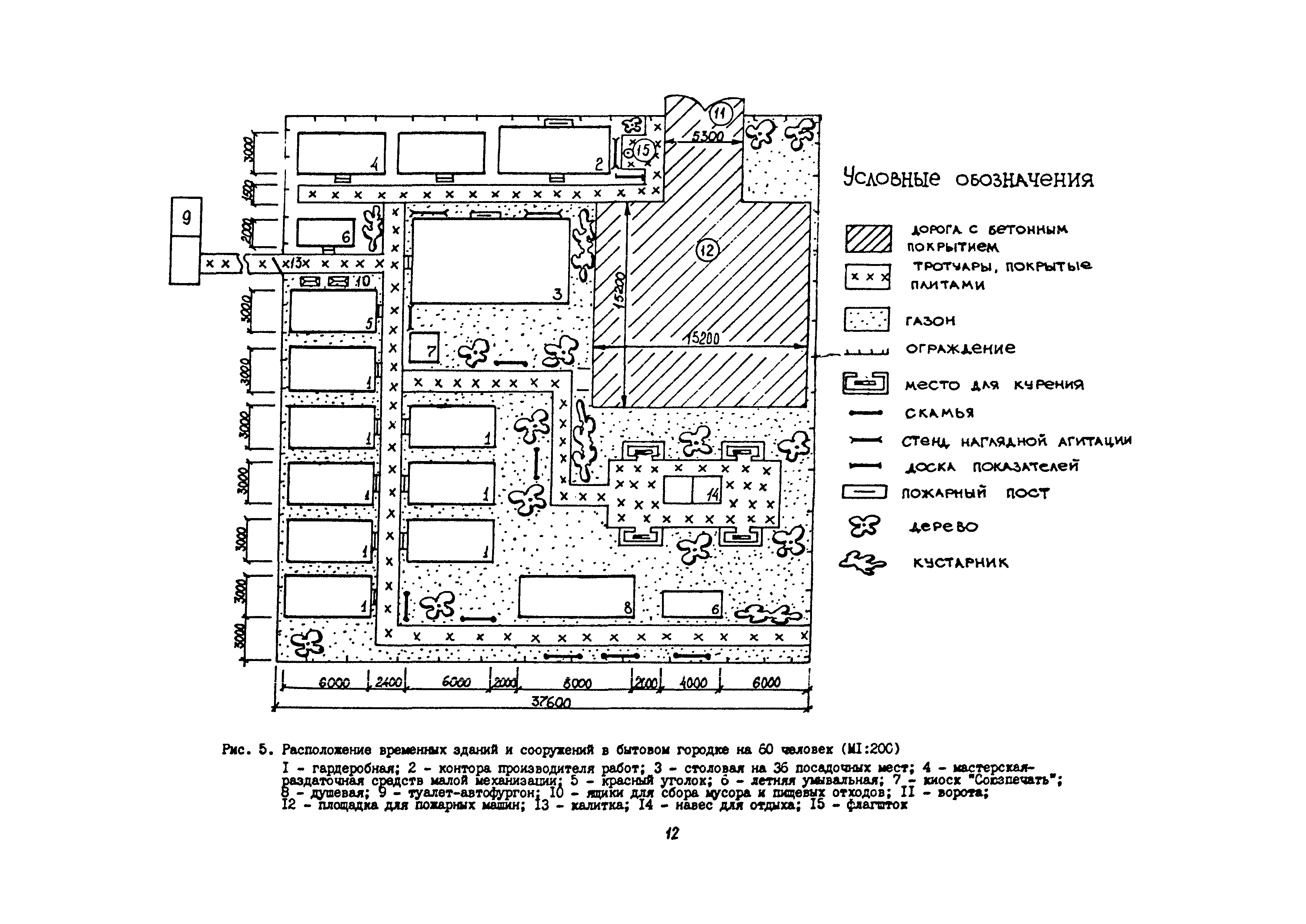
| Оглавление: | 1 Общие методические положения 2 Организация стройплощадки и рабочих мест с учетом опасных зон 3 Реализация требований техники безопасности в составе стройгенплана 4 Состав и содержание решений по технике безопасности в технологических картах 4.1 Общая характеристика решений и технических средств, предусматриваемых в технологических картах 4.2 Решения по технике безопасности в технологических картах на монтажные работы 4.3 Решения по технике безопасности в технологических картах на каменные работы 4.4 Решения по технике безопасности в технологических картах на отделочные работы 4.5 Решения по технике безопасности в технологических картах на кровельные работы 5. Решения по технике безопасности в календарных планах производства работ по возведению надземной части зданий Приложение 1. Состав и содержание проектов производства работ Приложение 2. Схемы складирования строительных материалов и элементов строительных конструкций с соблюдением требований техники безопасности Приложение 3. Номенклатура средств безопасности, предназначенных для внедрения в строительных организациях в рамках программы "Травмобезопасность" Приложение 4. Расчет годовой потребности средств безопасности для строительных организаций |
| Разработан: | ЦНИИОМТП |
| Утверждён: | ЦНИИОМТП (TsNIIOMTP ) |
| Нормативные ссылки: |
|


















































