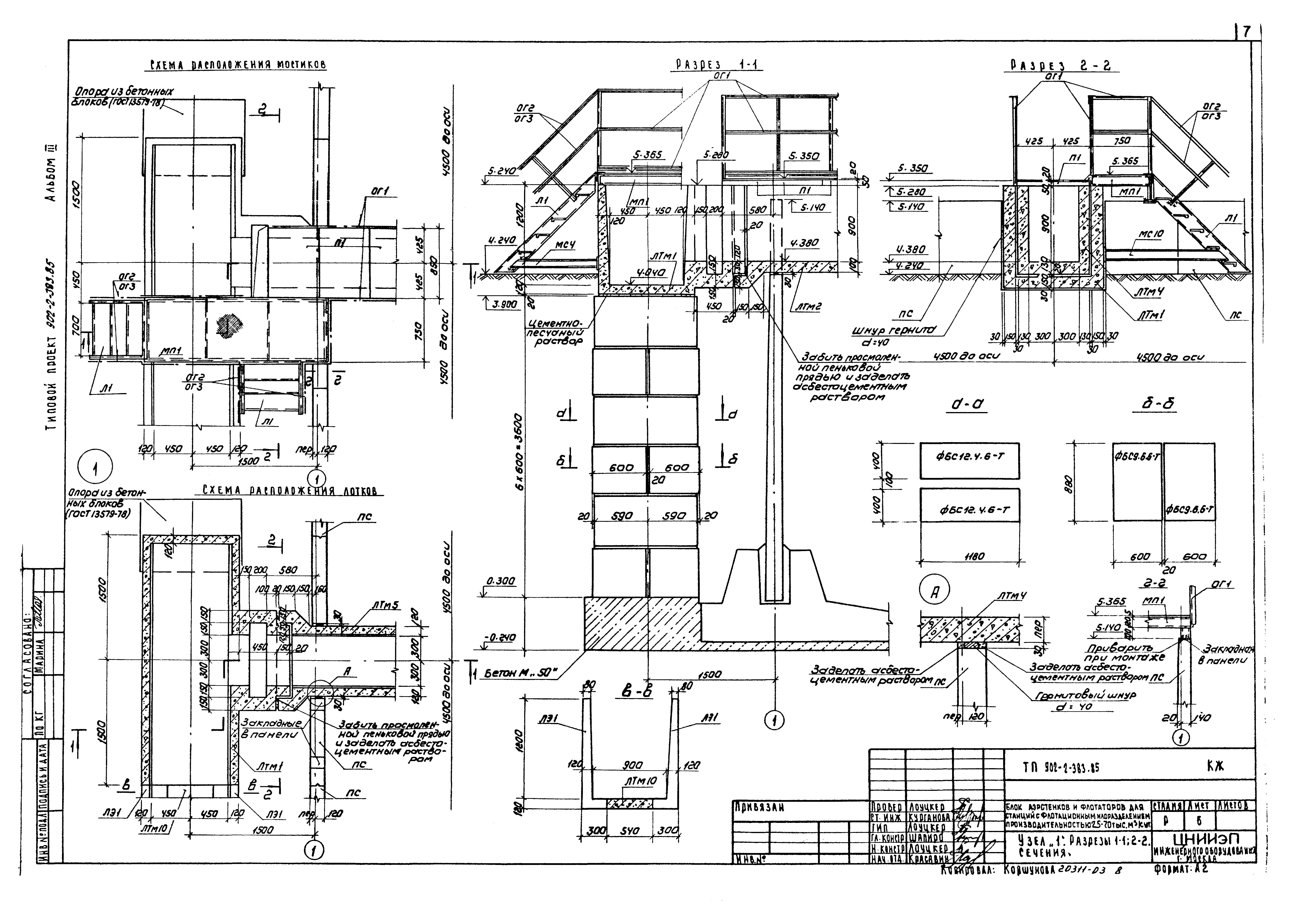
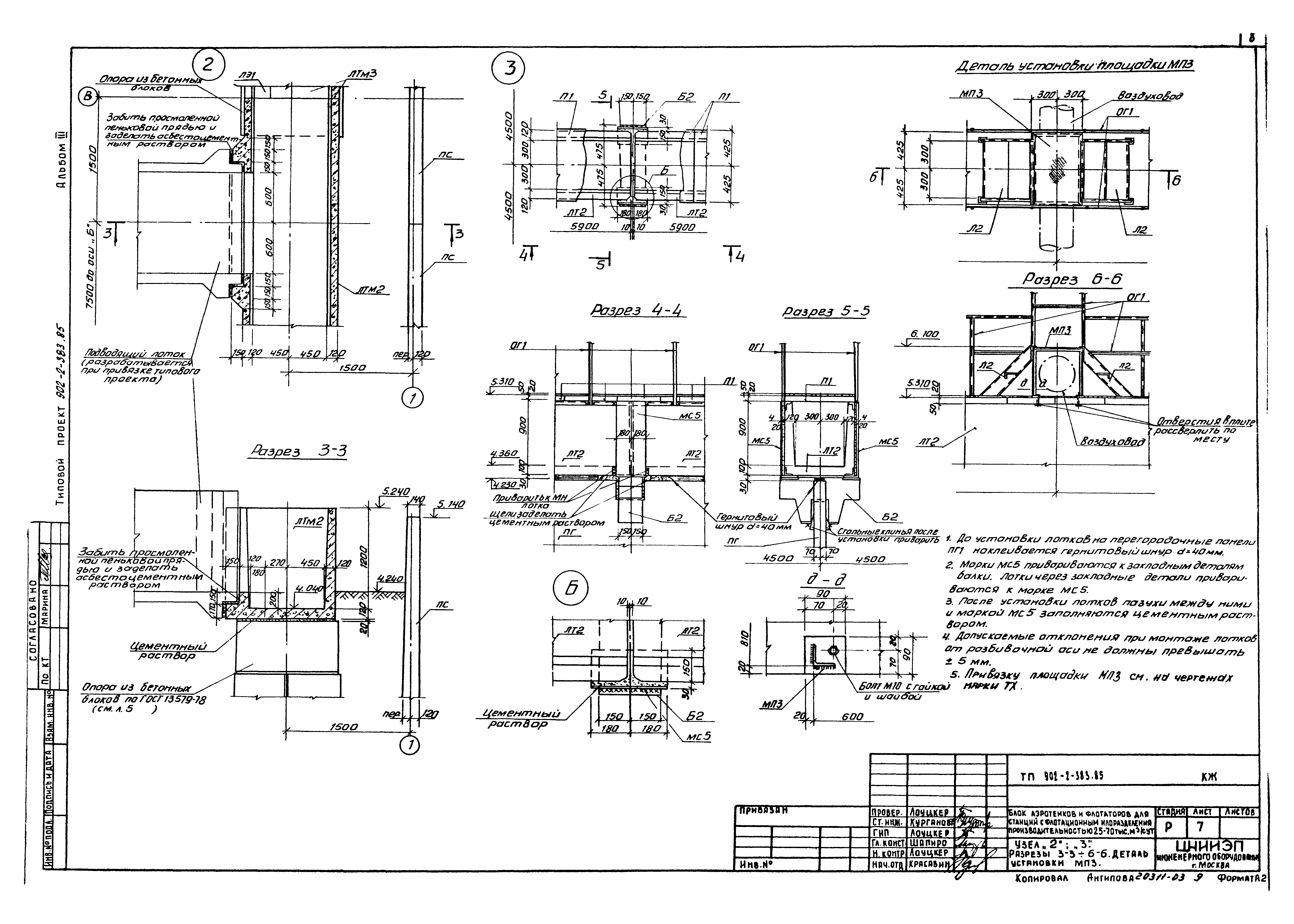
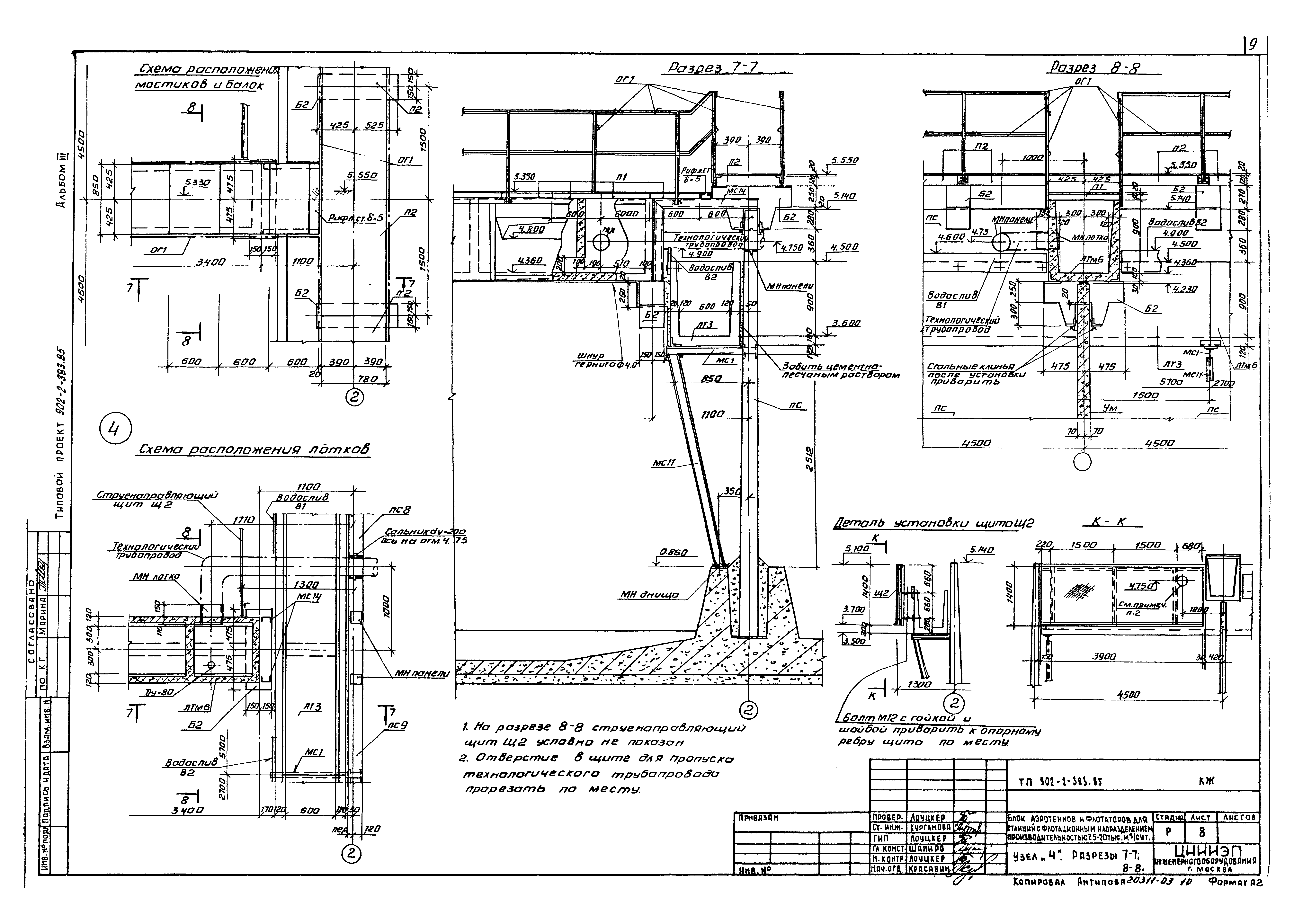
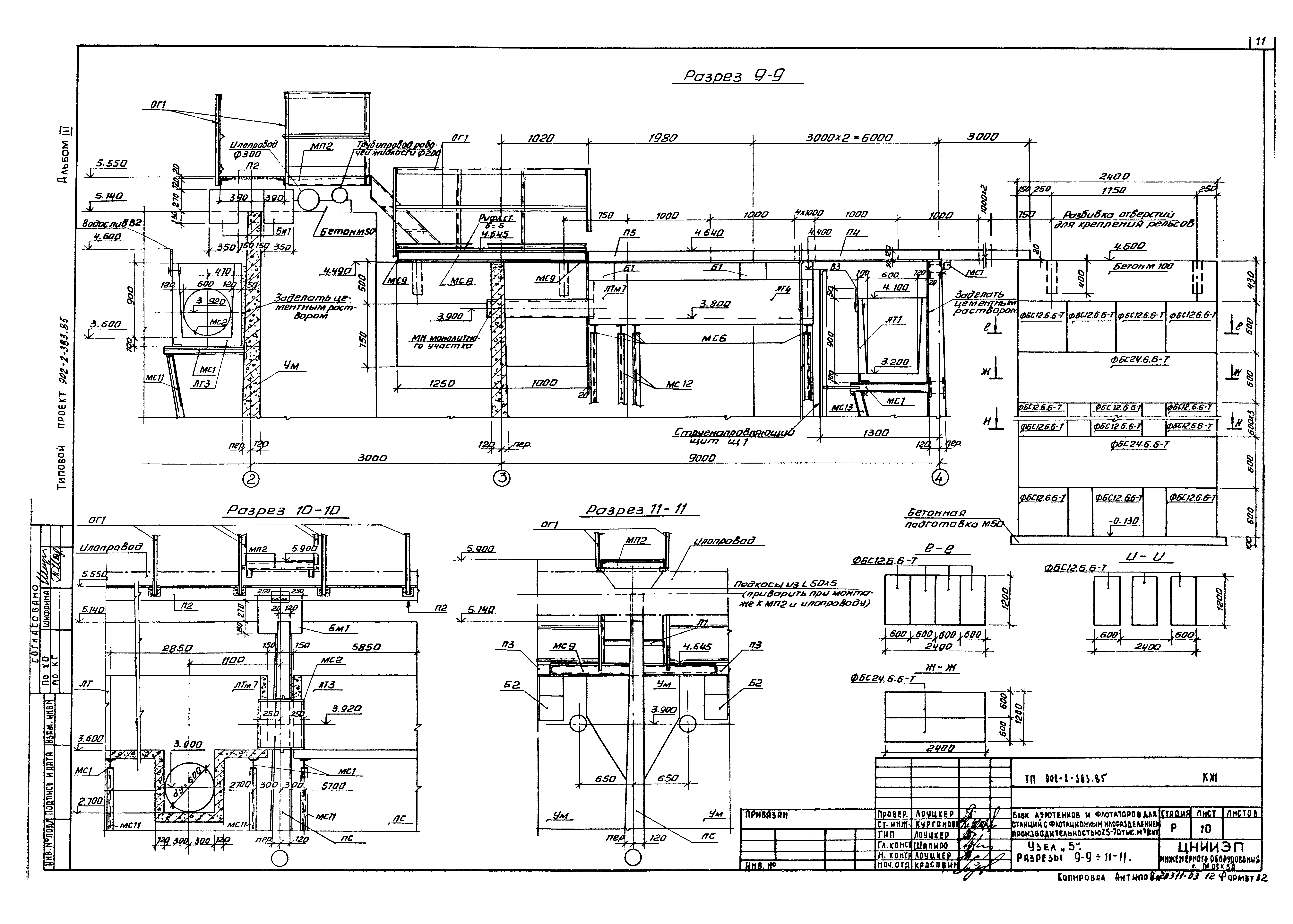
Скачать Типовой проект 902-2-383.85 Альбом III. Строительная часть. Конструкции железобетонныеДата актуализации: 01.01.2021
|
| Обозначение: | Типовой проект 902-2-383.85 |
| Обозначение англ: | 902-2-383.85 |
| Статус: | не определен законодательством |
| Название рус.: | Альбом III. Строительная часть. Конструкции железобетонные |
| Дата добавления в базу: | 21.05.2015 |
| Дата актуализации: | 01.01.2021 |
| Дата введения: | 27.12.1984 |
| Дата окончания срока действия: | 30.06.2003 |
| Разработан: | ЦНИИЭП инженерного оборудования |
| Утверждён: | 19.08.1982 Госгражданстрой (Gosgrazhdanstroy 224) |





































