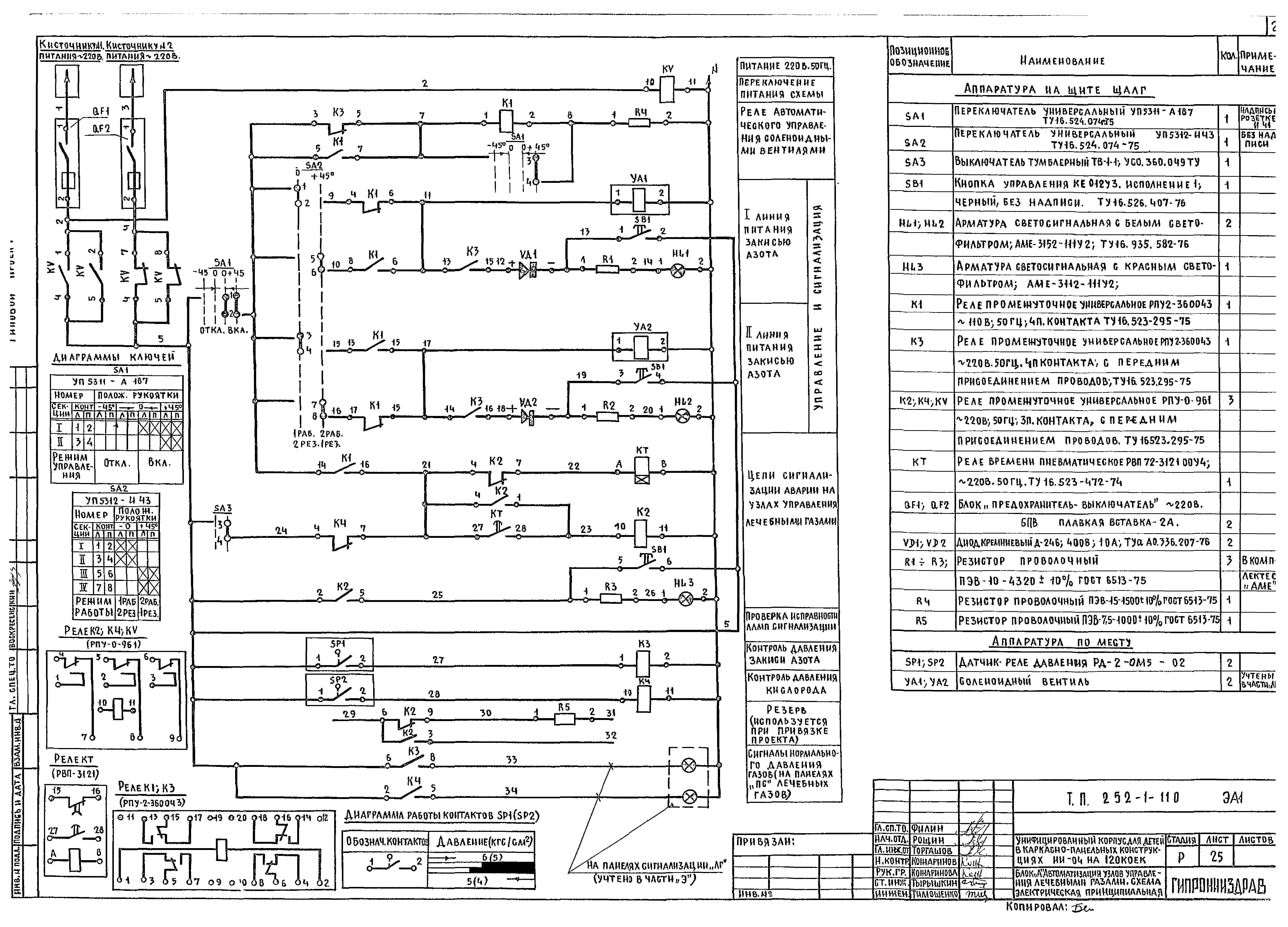
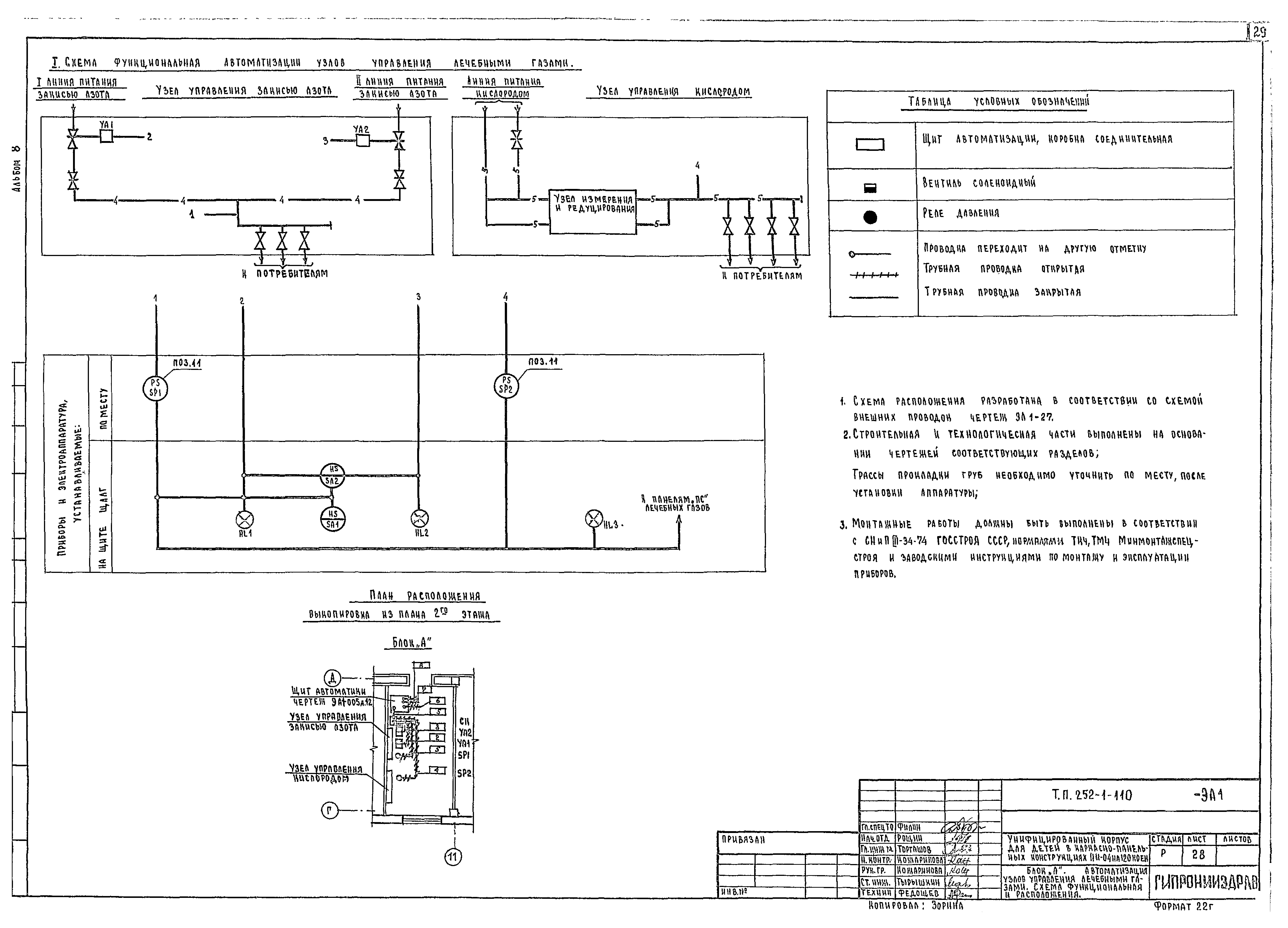
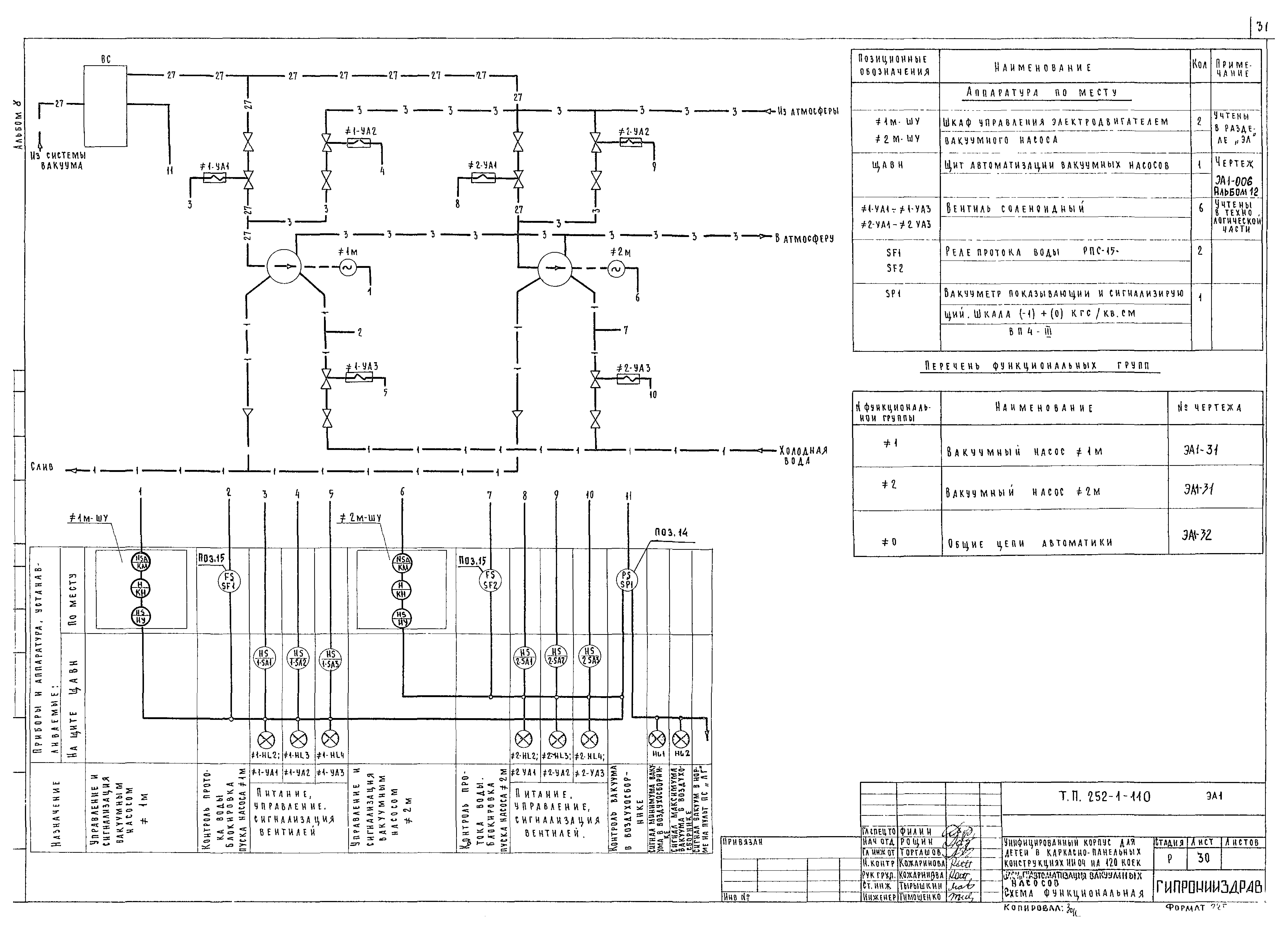
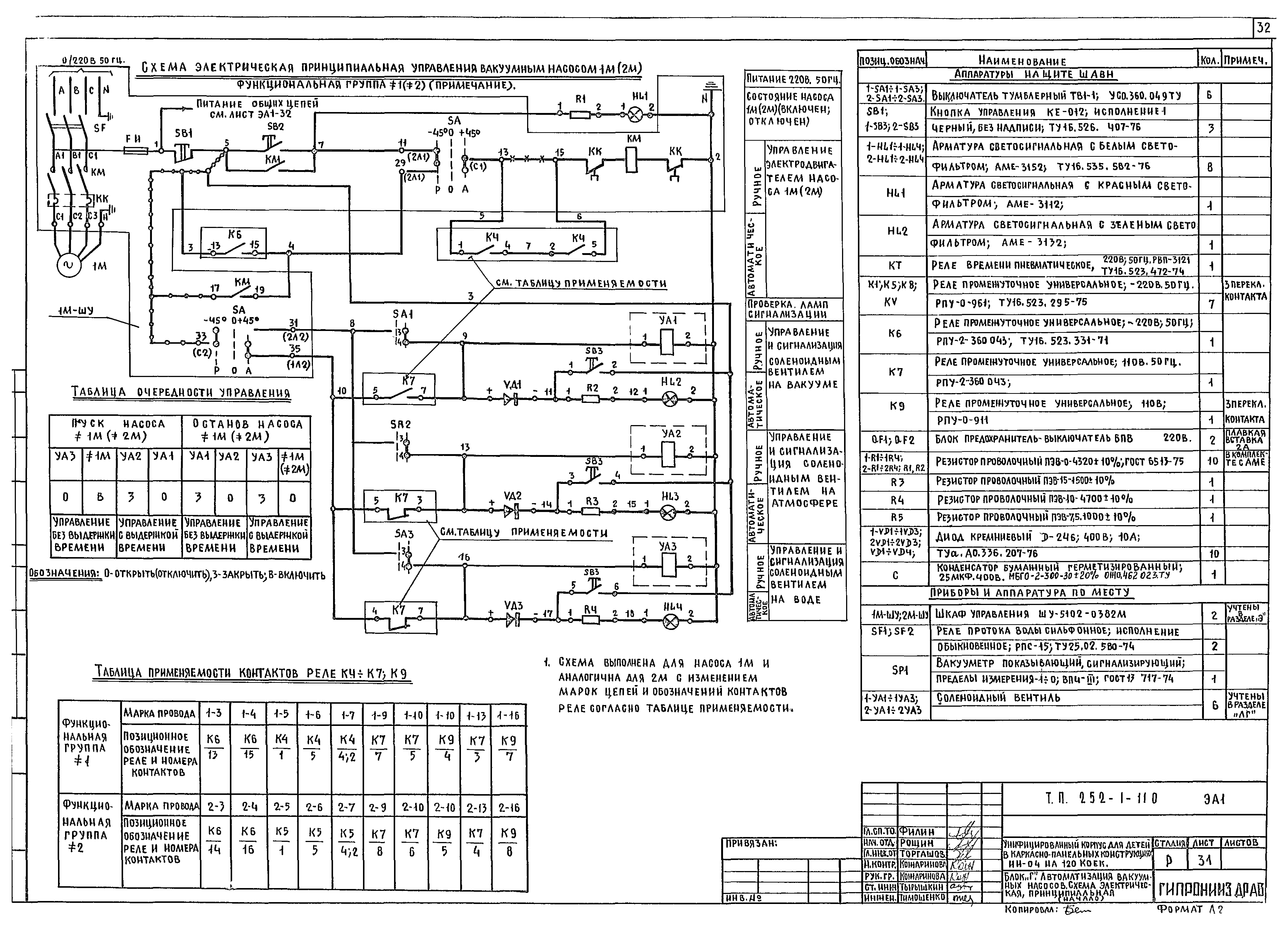
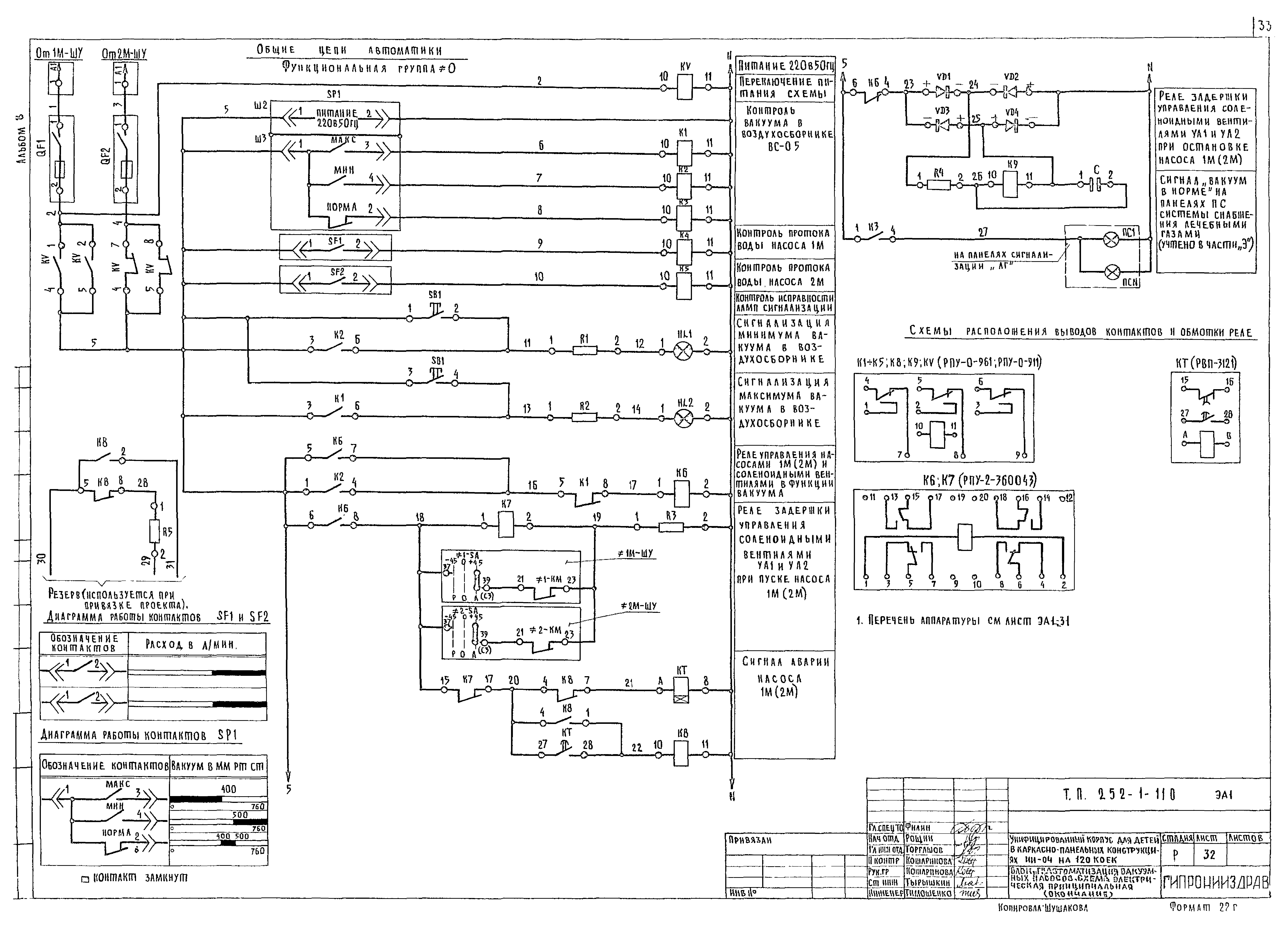
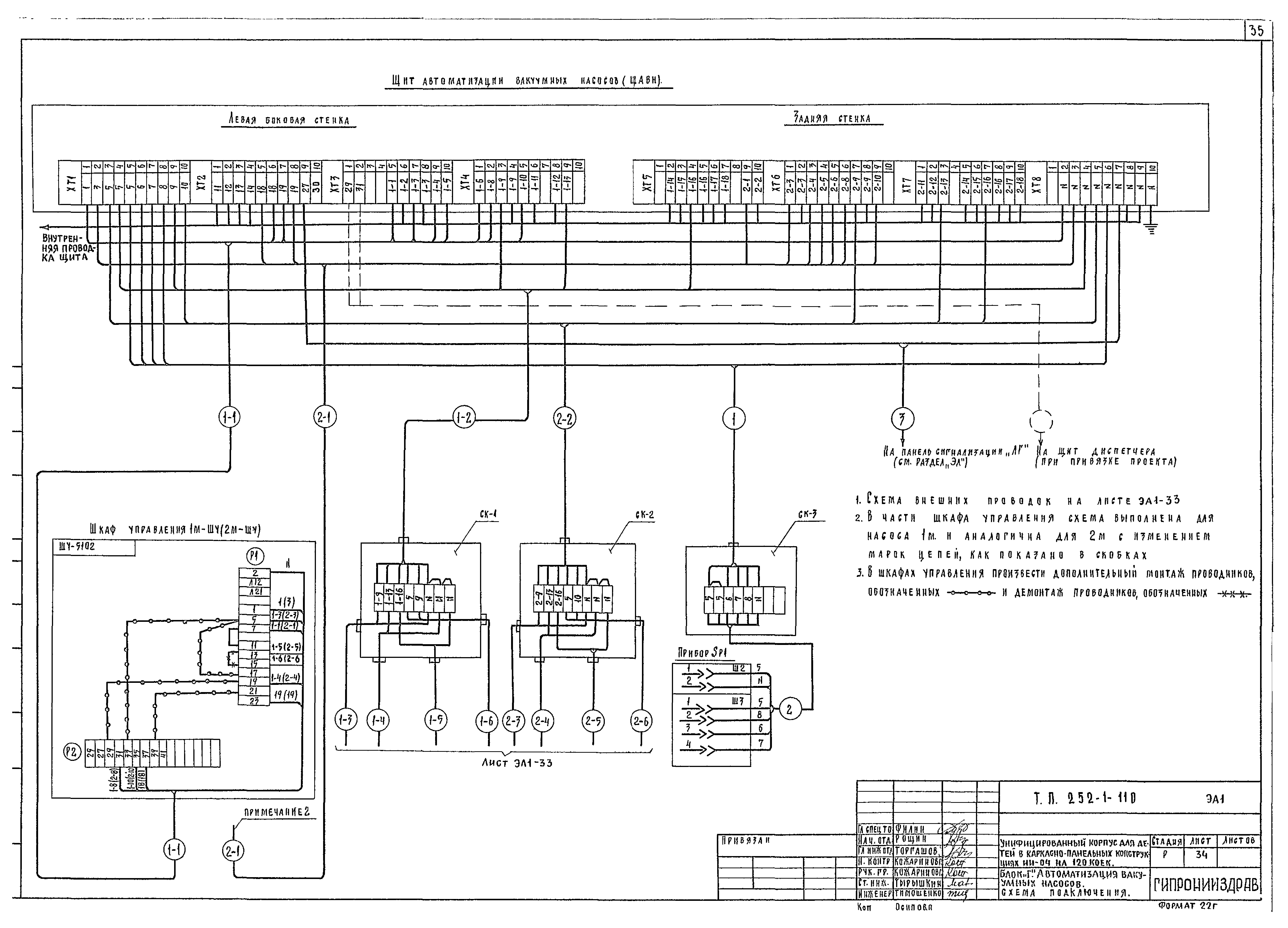
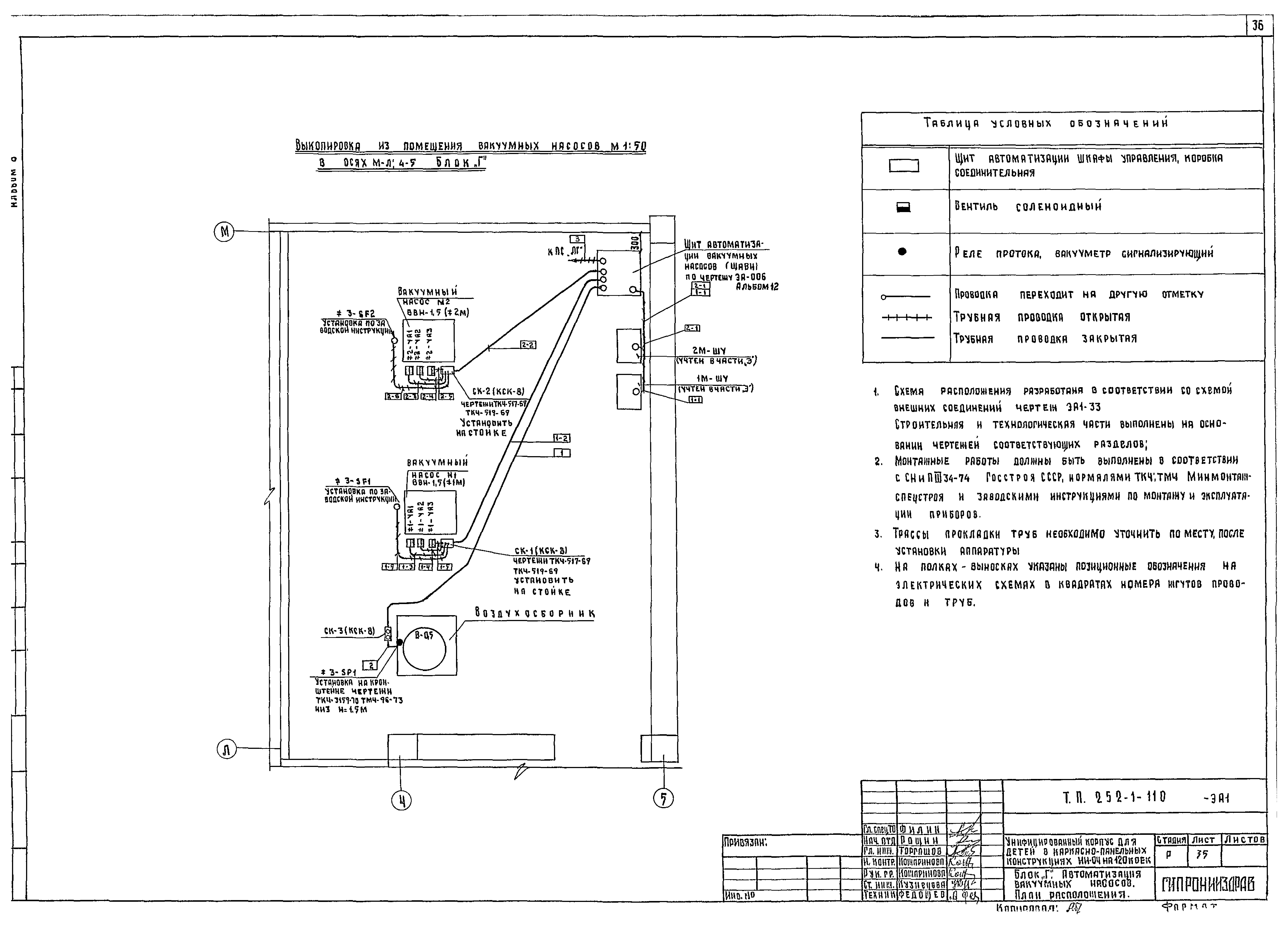
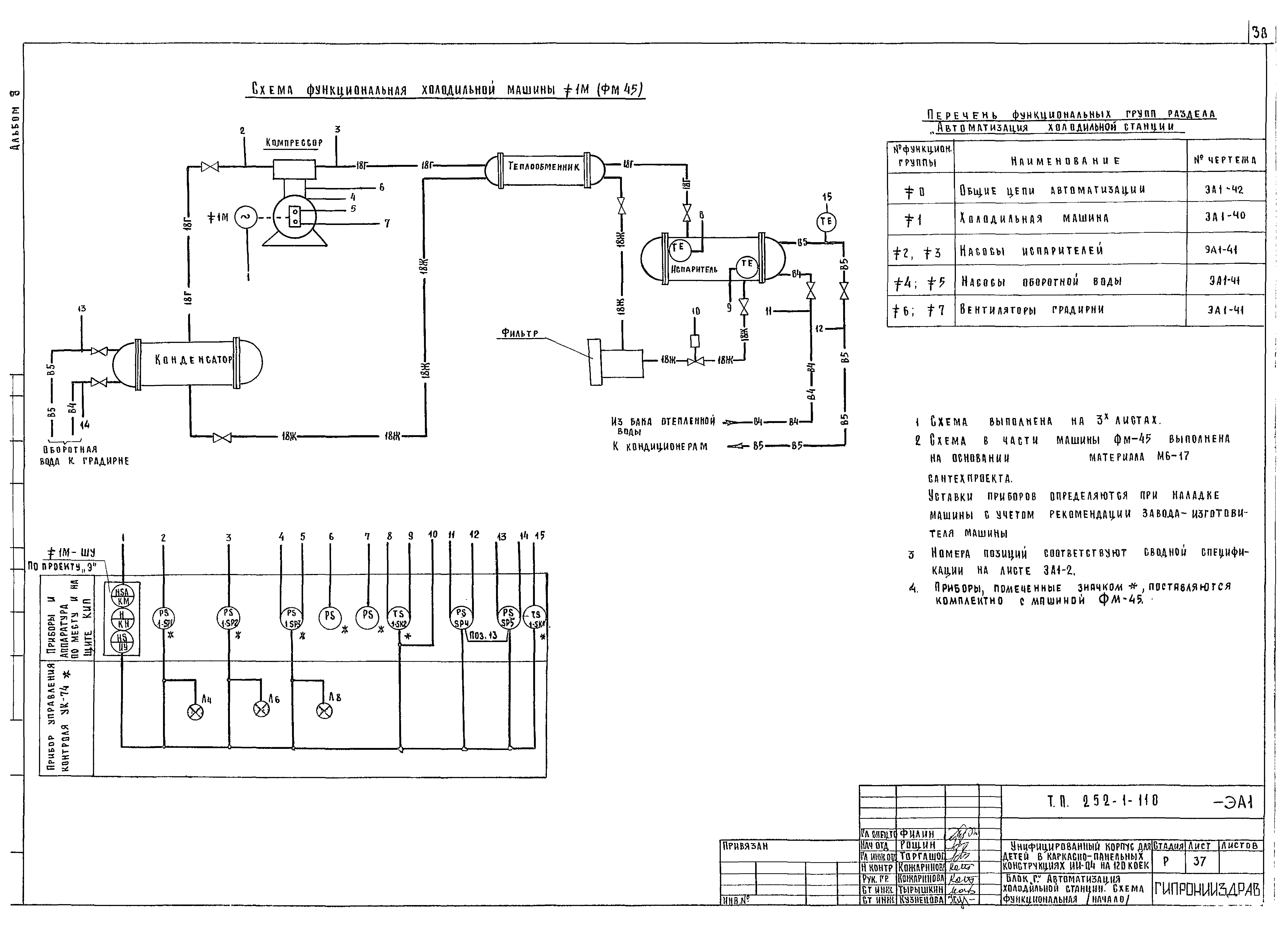
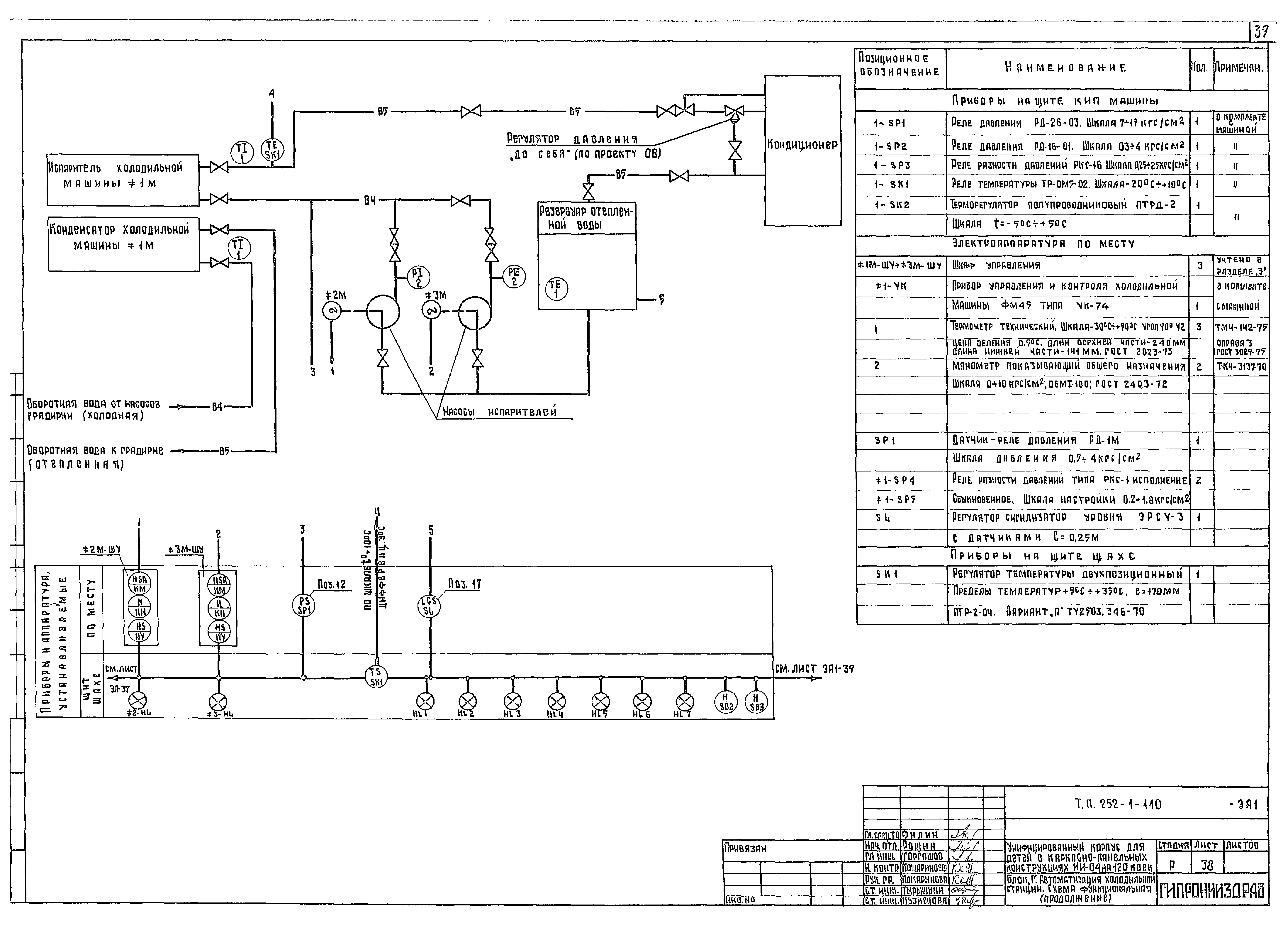
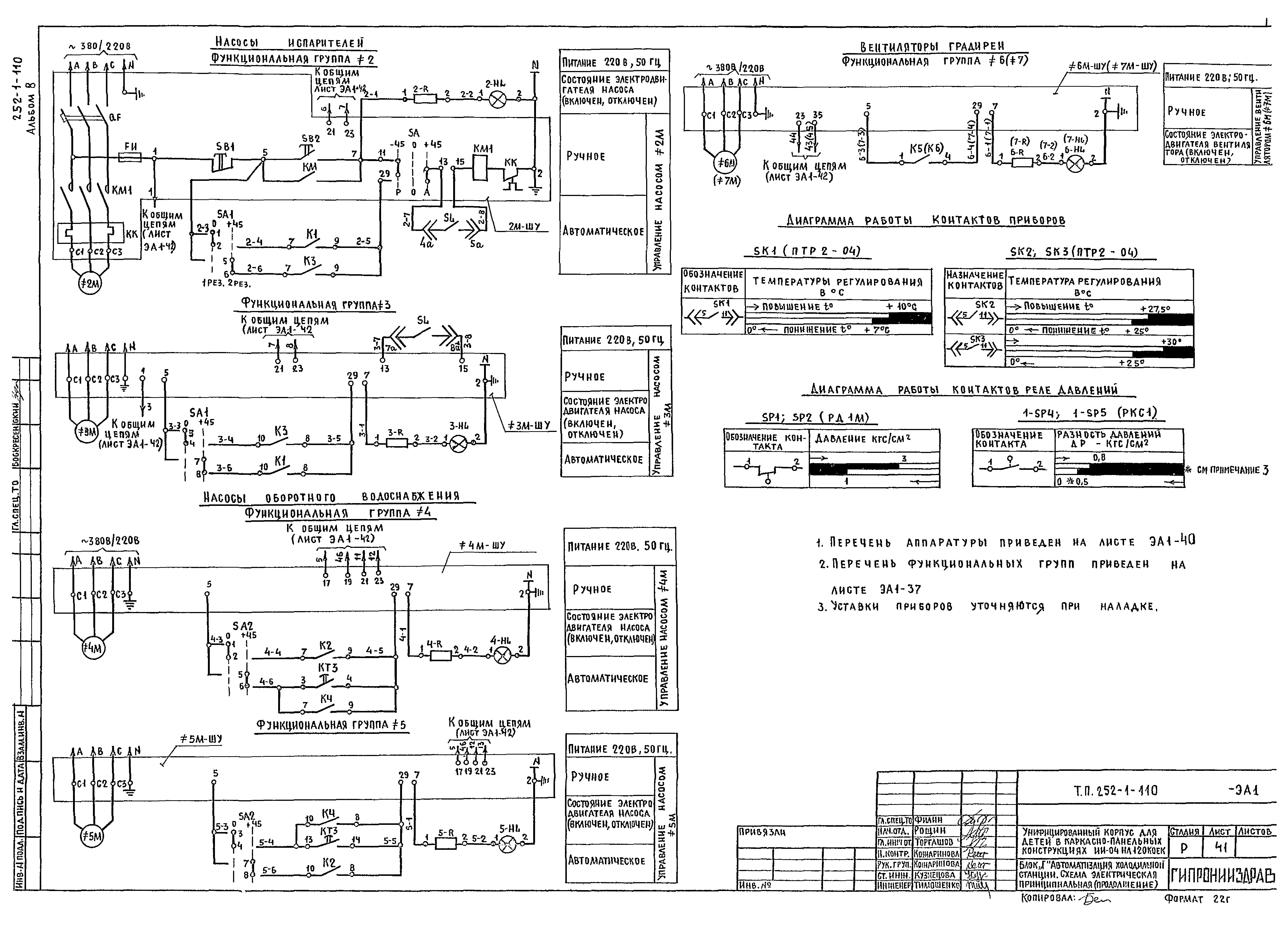
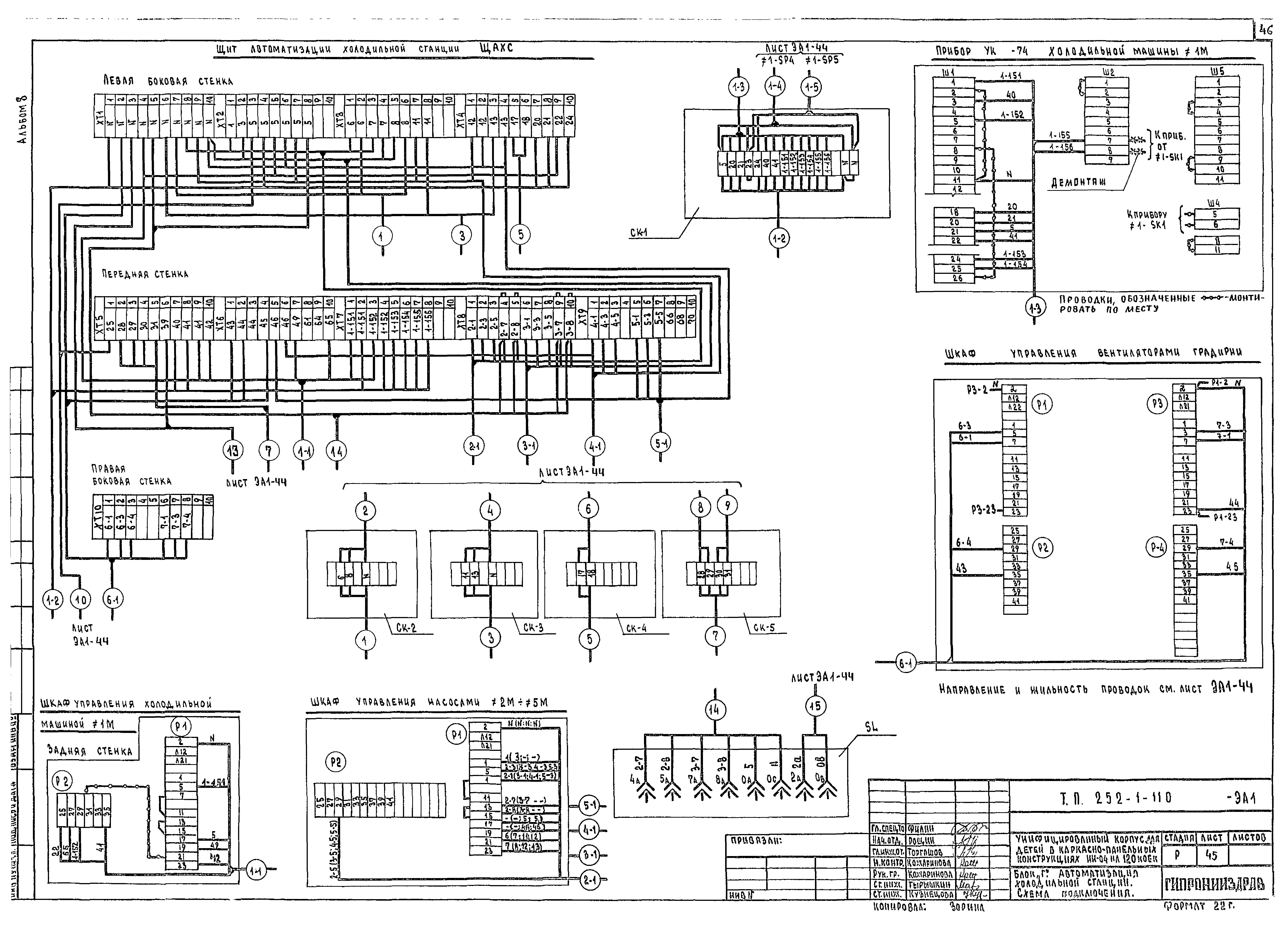
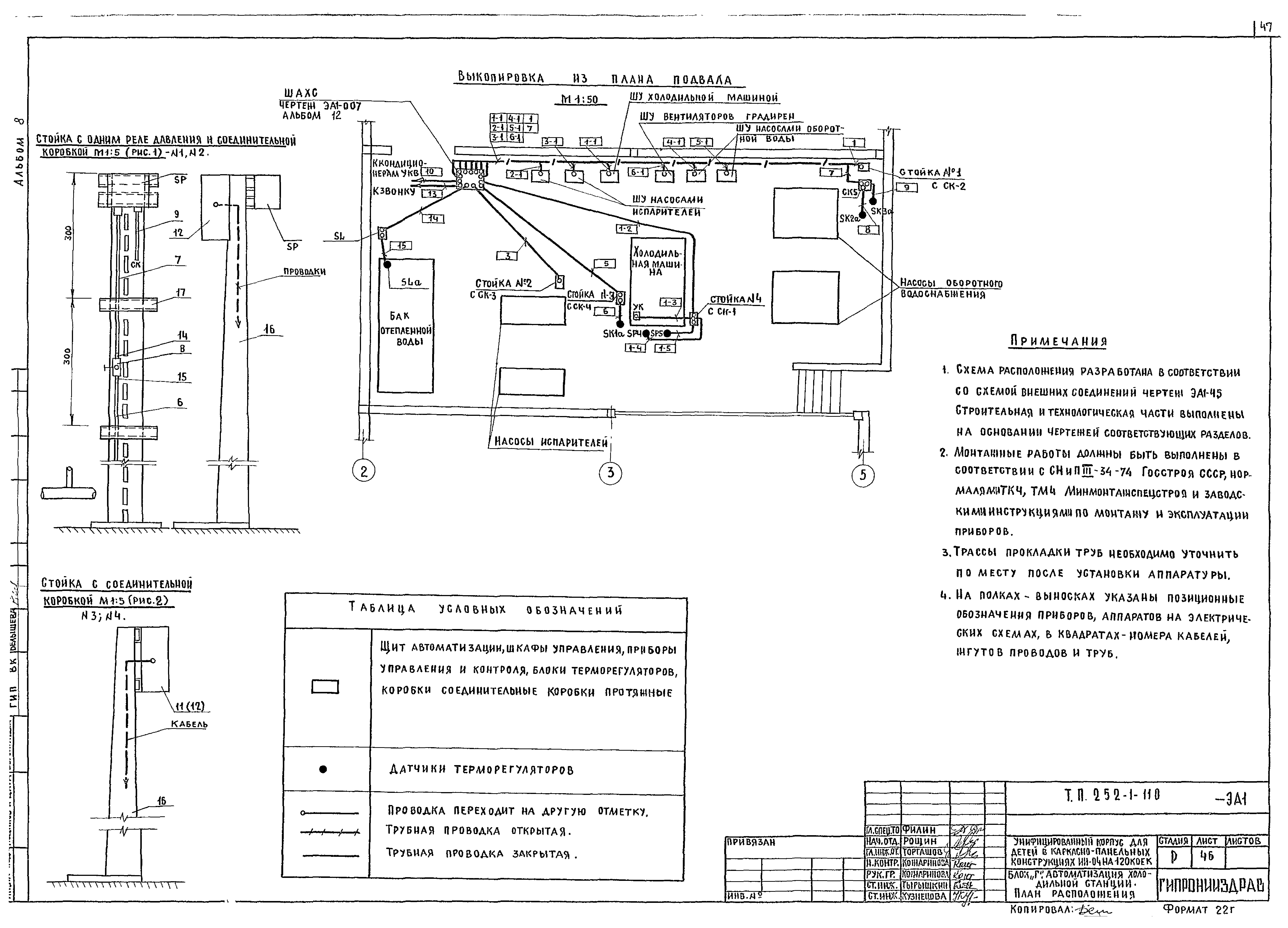
Скачать Типовой проект 252-1-110 Альбом 8. Автоматизация сантехнических устройствДата актуализации: 01.01.2021
|
| Обозначение: | Типовой проект 252-1-110 |
| Обозначение англ: | 252-1-110 |
| Статус: | не определен законодательством |
| Название рус.: | Альбом 8. Автоматизация сантехнических устройств |
| Дата добавления в базу: | 21.05.2015 |
| Дата актуализации: | 01.01.2021 |
| Дата введения: | 12.02.1982 |
| Дата окончания срока действия: | 30.06.2003 |
| Разработан: | ГипроНИИздрав Минздрава СССР |
| Утверждён: | 27.02.1980 Минздрав СССР (USSR Minzdrav 198) |


















































