Скачать ГОСТ 33068-2014 Материалы геосинтетические для дренажных систем. Общие технические требованияДата актуализации: 01.01.2021
|
| Обозначение: | ГОСТ 33068-2014 |
| Обозначение англ: | GOST 33068-2014 |
| Статус: | введен впервые |
| Название рус.: | Материалы геосинтетические для дренажных систем. Общие технические требования |
| Название англ.: | Geosynthetic materials in drainage systems. General technical requirements |
| Дата добавления в базу: | 21.05.2015 |
| Дата актуализации: | 01.01.2021 |
| Дата введения: | 01.07.2015 |
| Область применения: | Стандарт распространяется на геосинтетические материалы, используемые в дренажных системах, и устанавливает классификацию и общие технические требования к группе продукции. Стандарт не распространяется на гидроизоляционные материалы. |
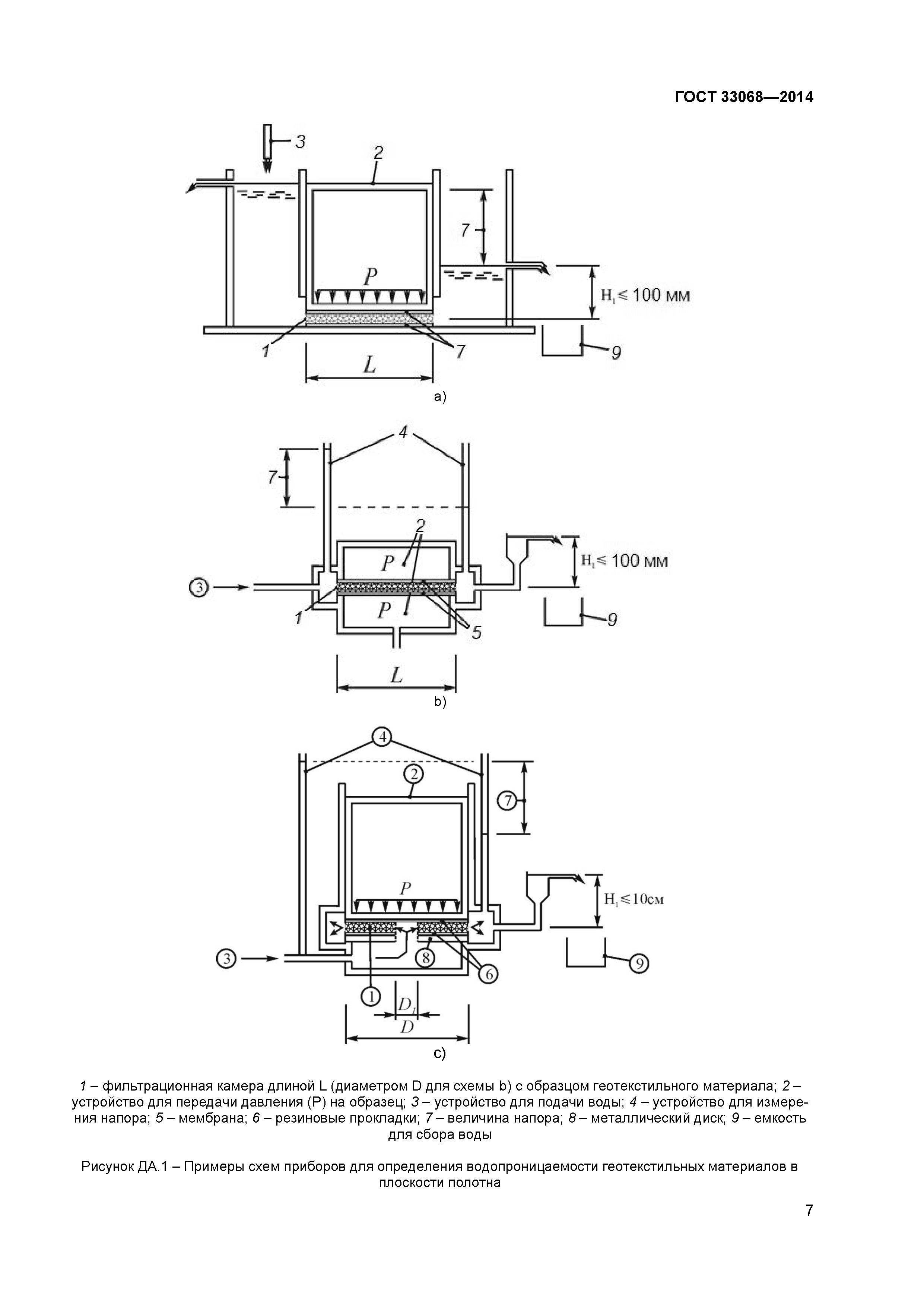
| Оглавление: | 1 Область применения 2 Нормативные ссылки 3 Термины и определения 4 Классификация 5 Технические требования Приложение ДА (обязательное) Перевод основных положений европейского регионального стандарта EN ISO 12958:2010 "Геотекстильные материалы и изделия, относящиеся к геотекстилям. Определение их пропускной способности в плоскости применительно к воде" Приложение ДБ (справочное) Положения EN 13252:2005, которые исключены в настоящем стандарте Приложение ДВ (справочное) Сравнение структуры европейского регионального стандарта со структурой межгосударственного стандарта Приложение ДГ (справочное) Информация о замене ссылок Библиография |
| Разработан: | Объединение юридических лиц Союз производителей композитов |
| Утверждён: | 14.11.2014 Межгосударственный Совет по стандартизации, метрологии и сертификации (Inter-Governmental Council on Standardization, Metrology, and Certification 72-П) 26.11.2014 Федеральное агентство по техническому регулированию и метрологии (1934-ст) |
| Издан: | Стандартинформ (2015 г. ) |
| Нормативные ссылки: |
|






































