Скачать ГОСТ Р 56297-2014 Кабины железобетонные защитные для взрывоопасных производств. Технические требования и оценка прочностиДата актуализации: 01.01.2021
|
| Обозначение: | ГОСТ Р 56297-2014 |
| Обозначение англ: | GOST R 56297-2014 |
| Статус: | введен впервые |
| Название рус.: | Кабины железобетонные защитные для взрывоопасных производств. Технические требования и оценка прочности |
| Название англ.: | Reinforced concrete blast containment chambers for explosives facility sites. Technical requirements and strength assessment |
| Дата добавления в базу: | 21.05.2015 |
| Дата актуализации: | 01.01.2021 |
| Дата введения: | 01.07.2015 |
| Область применения: | Стандарт устанавливает метод расчета кабин на импульсное действие ударной волны (УВ) в зависимости от величины, химической природы заряда взрывчатого вещества, находящегося в кабине, и его расположения. Стандарт распространяется на монолитные железобетонные кабины, имеющие одну или две вышибные поверхности и предназначенные для локализации взрыва при детонации конденсированных взрывчатых веществ (ВВ) и обеспечения безопасности обслуживающего персонала. |
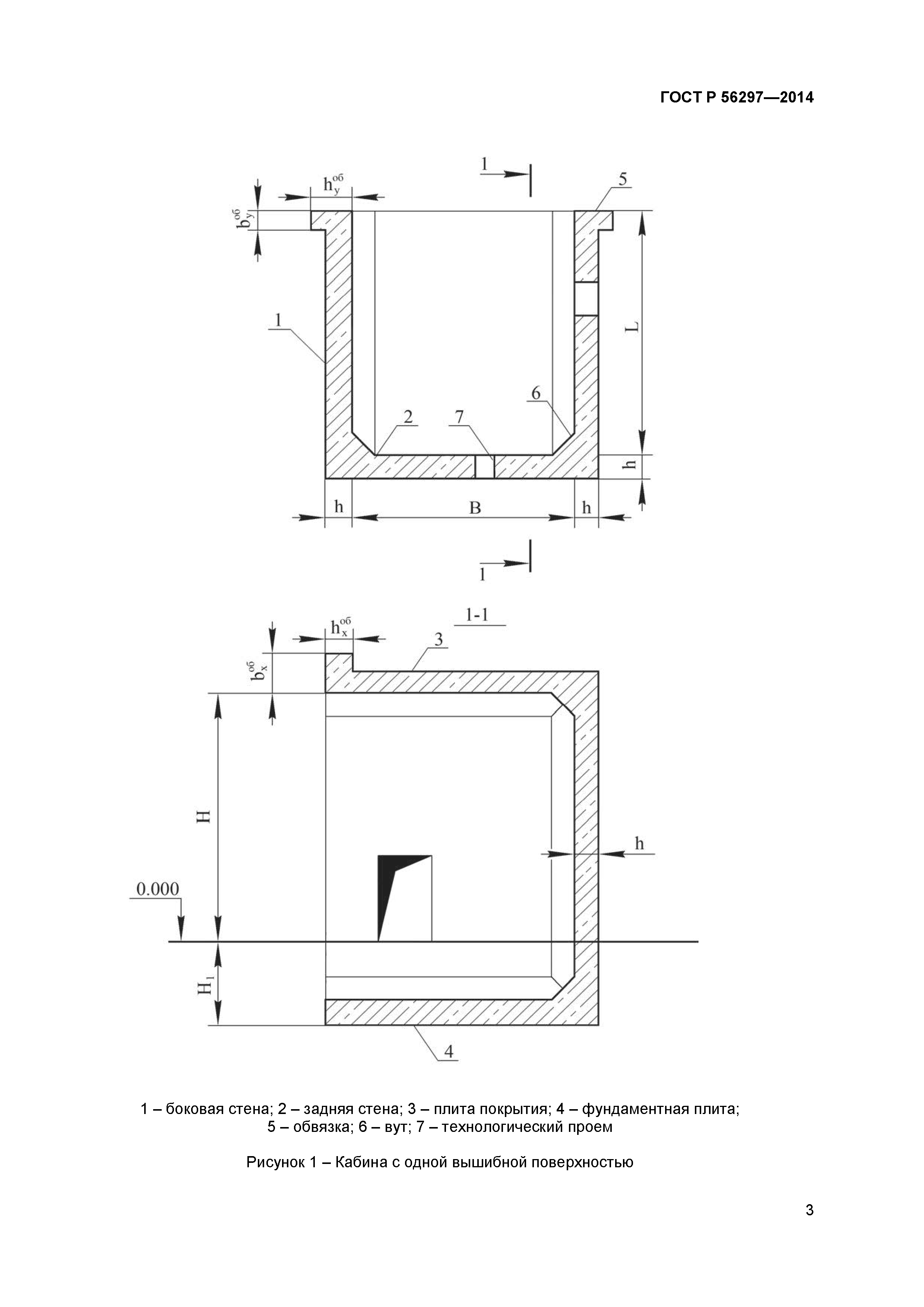
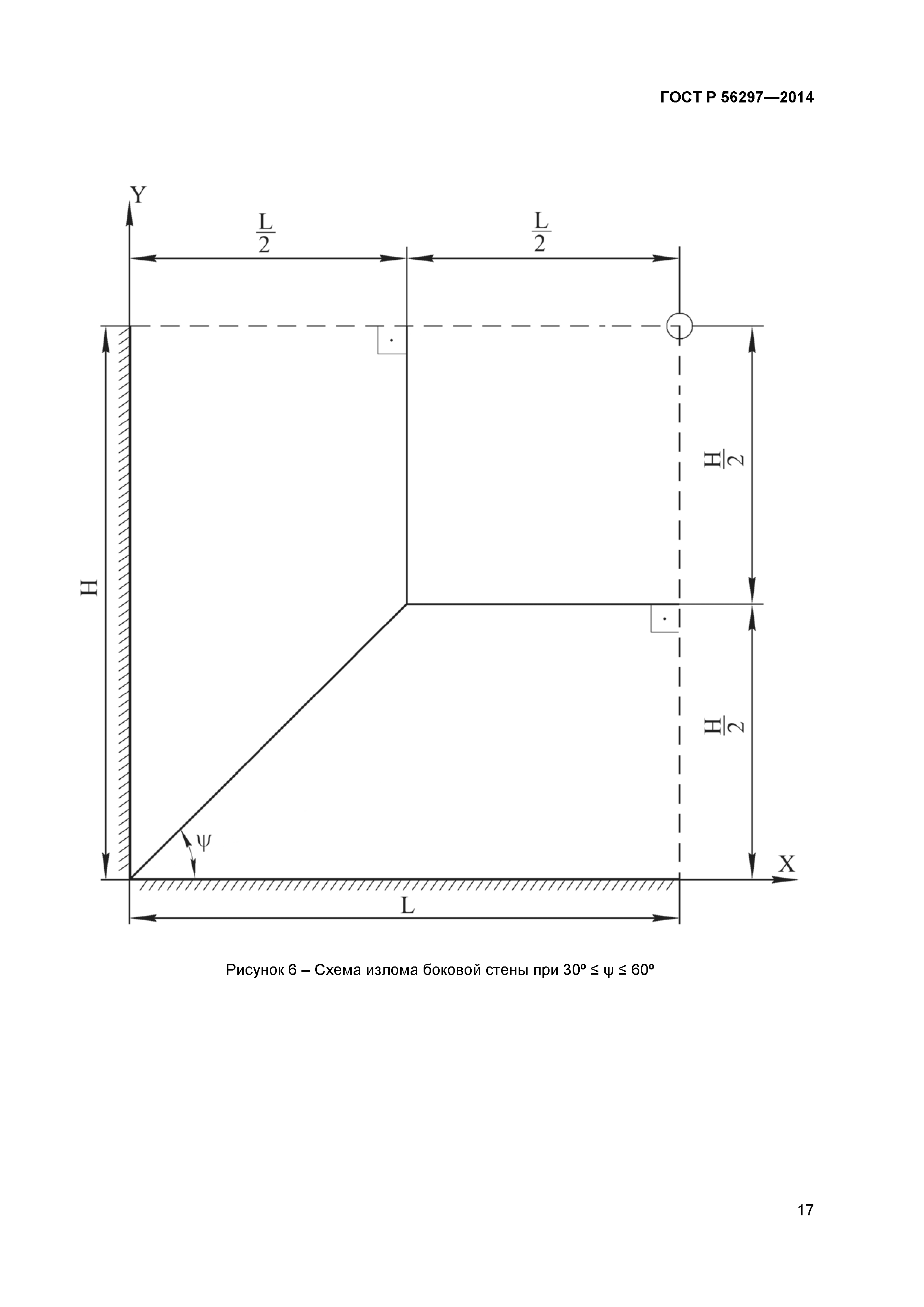
| Оглавление: | 1 Область применения 2 Нормативные ссылки 3 Термины и определения 4 Технические требования 5 Определение нагрузок, действующих на стены кабины при взрыве заряда ВВ 6 Определение допустимых импульсов для монолитной железобетонной кабины по предельным стадиям 7 Расчет жесткости стен кабины 8 Расчет стен кабины с двумя вышибными поверхностями 9 Расчет стен кабины с одной вышибной поверхностью 10 Расчет поперечной перерезывающей силы 11 Оценка прочности элементов кабины Приложение А (справочное) Пример расчета монолитной железобетонной кабины с двумя вышибными поверхностями |
| Разработан: | ОАО КНИИМ |
| Утверждён: | 11.12.2014 Федеральное агентство по техническому регулированию и метрологии (1969-ст) |
| Издан: | Стандартинформ (2015 г. ) |
| Нормативные ссылки: |


















































