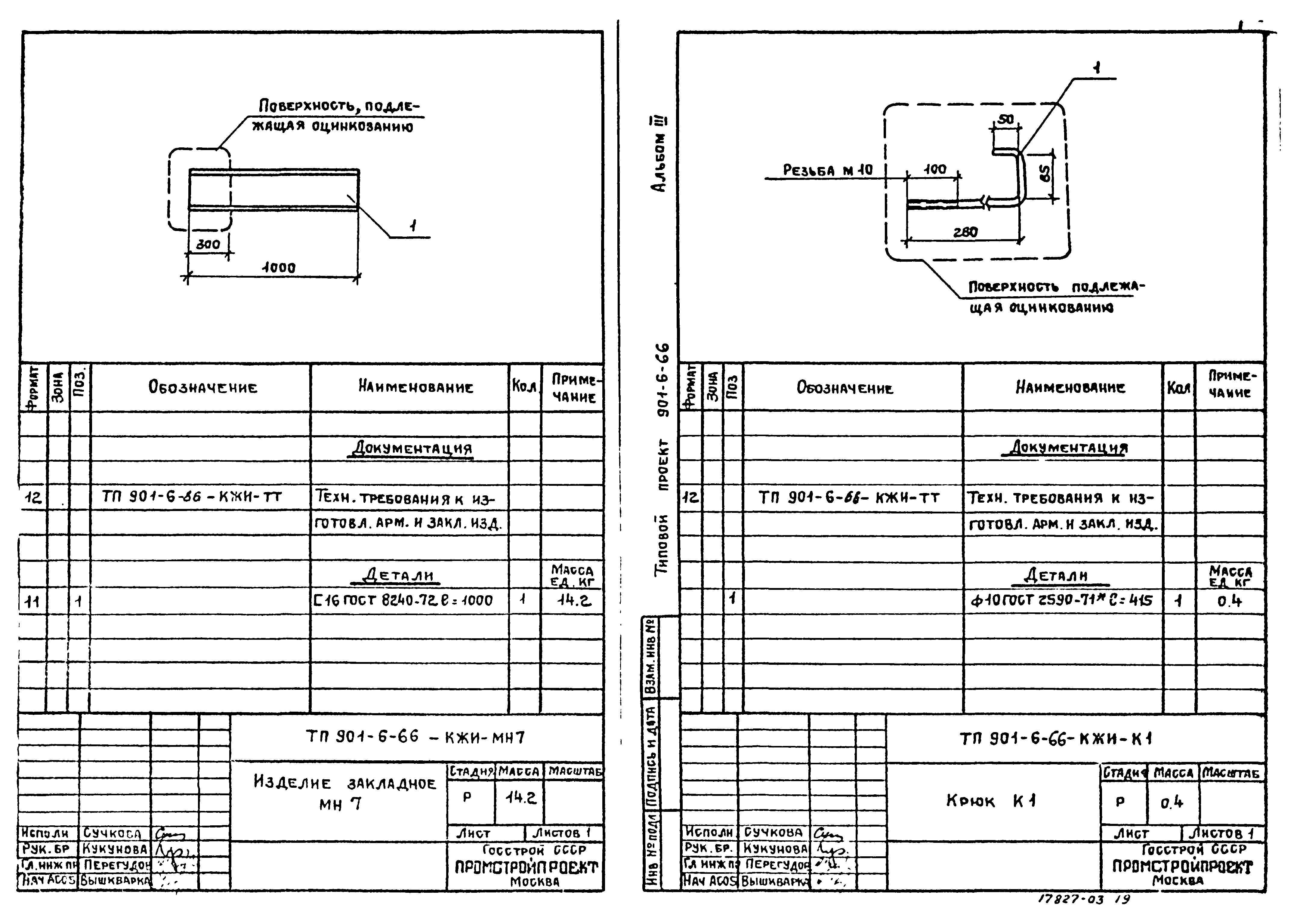
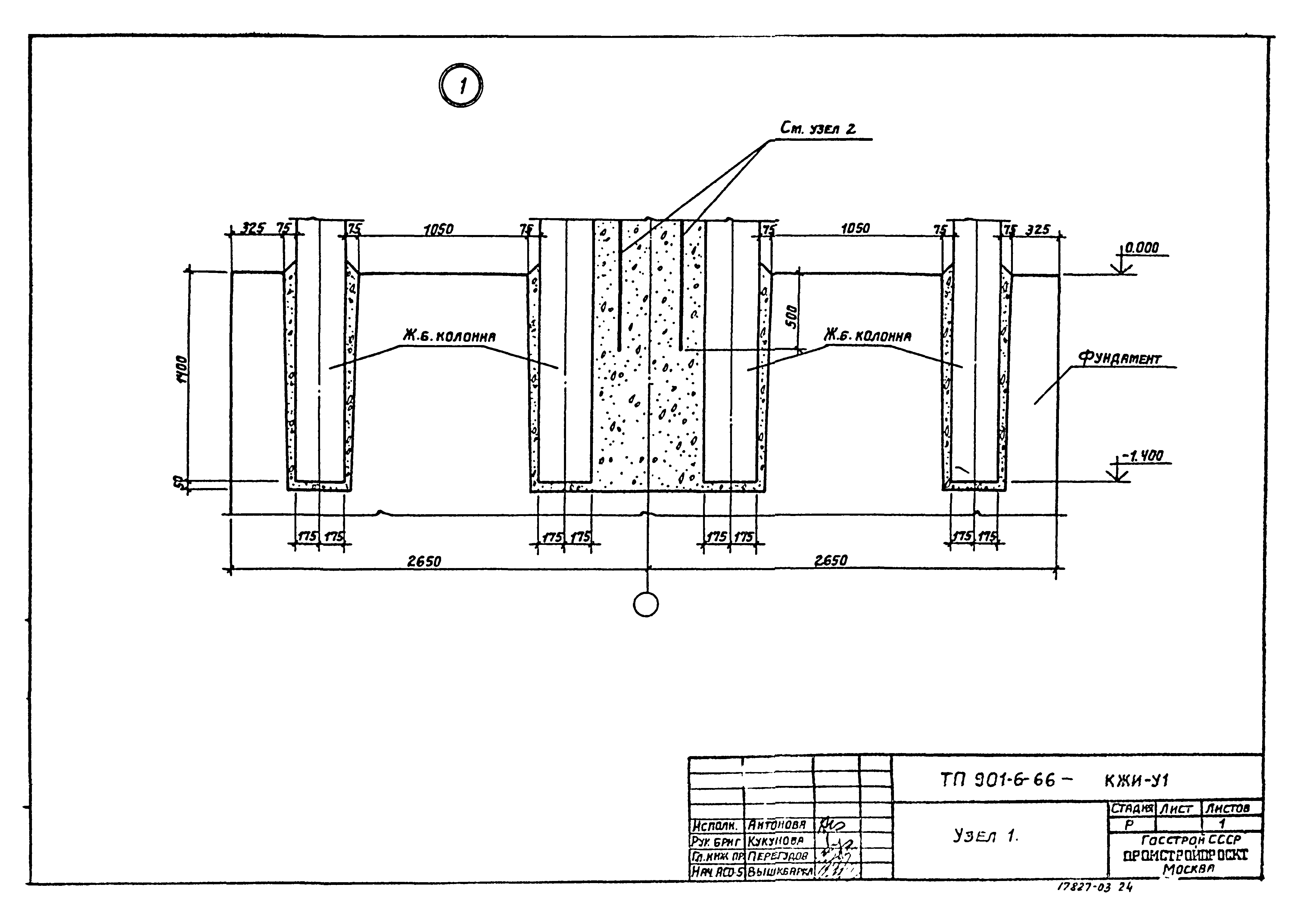
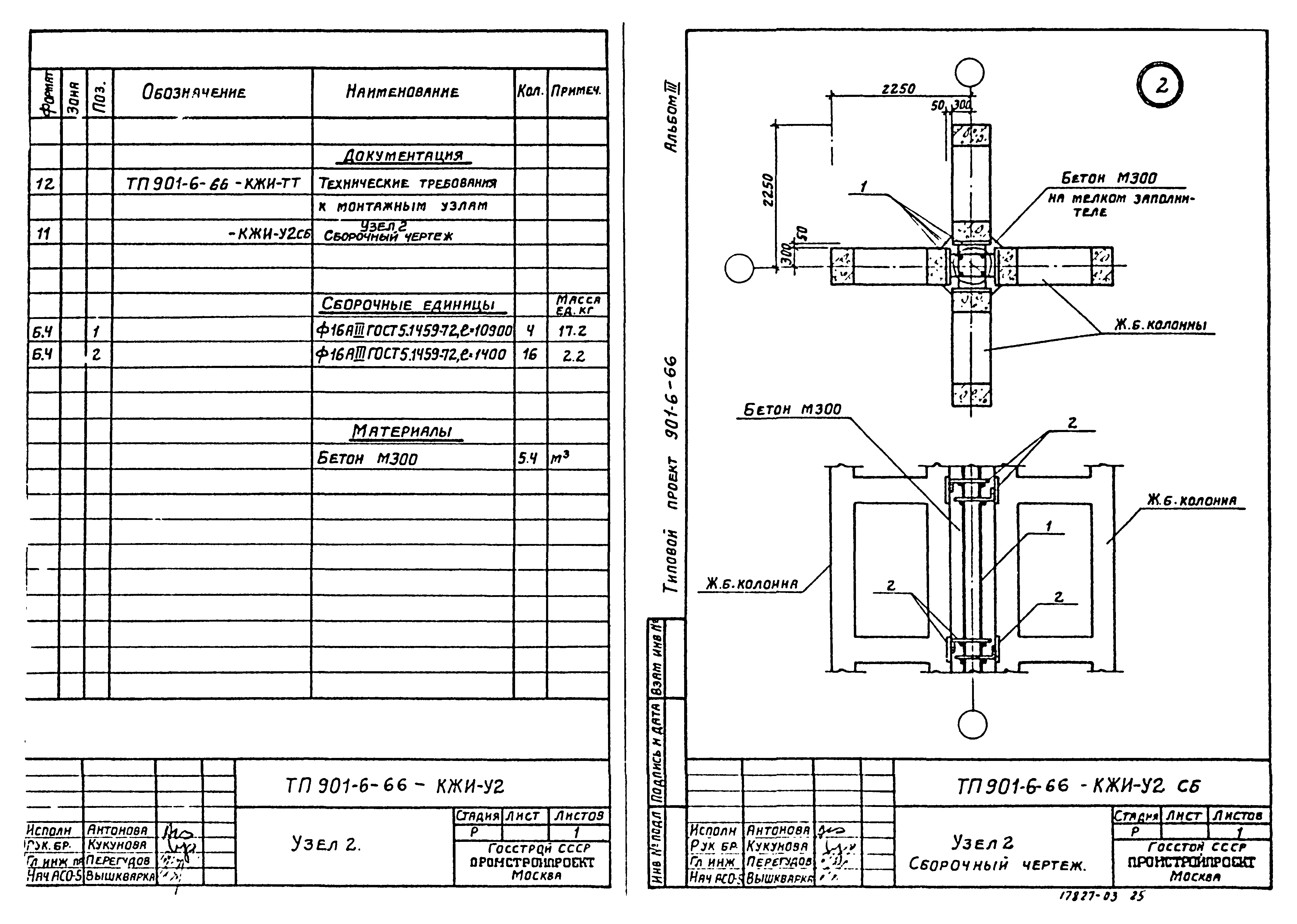
Скачать Типовой проект 901-6-66 Альбом III. Узлы, изделия и детали строительных конструкцийДата актуализации: 01.01.2021 Типовой проект 901-6-66
Альбом III. Узлы, изделия и детали строительных конструкций| Обозначение: | Типовой проект 901-6-66 | | Обозначение англ: | 901-6-66 | | Статус: | отменен | | Название рус.: | Альбом III. Узлы, изделия и детали строительных конструкций | | Дата добавления в базу: | 21.05.2015 | | Дата актуализации: | 01.01.2021 | | Дата введения: | 07.04.1982 | | Дата окончания срока действия: | 01.01.1990 | | Разработан: | Промстройпроект
| | Утверждён: | 16.11.1981 Союзводоканалпроект (Soyuzvodokanalproject 56)
| | Издан: | ЦИТП Госстроя СССР (CITP, Gosstroy (USSR) 1982 г. )
|
                            
|