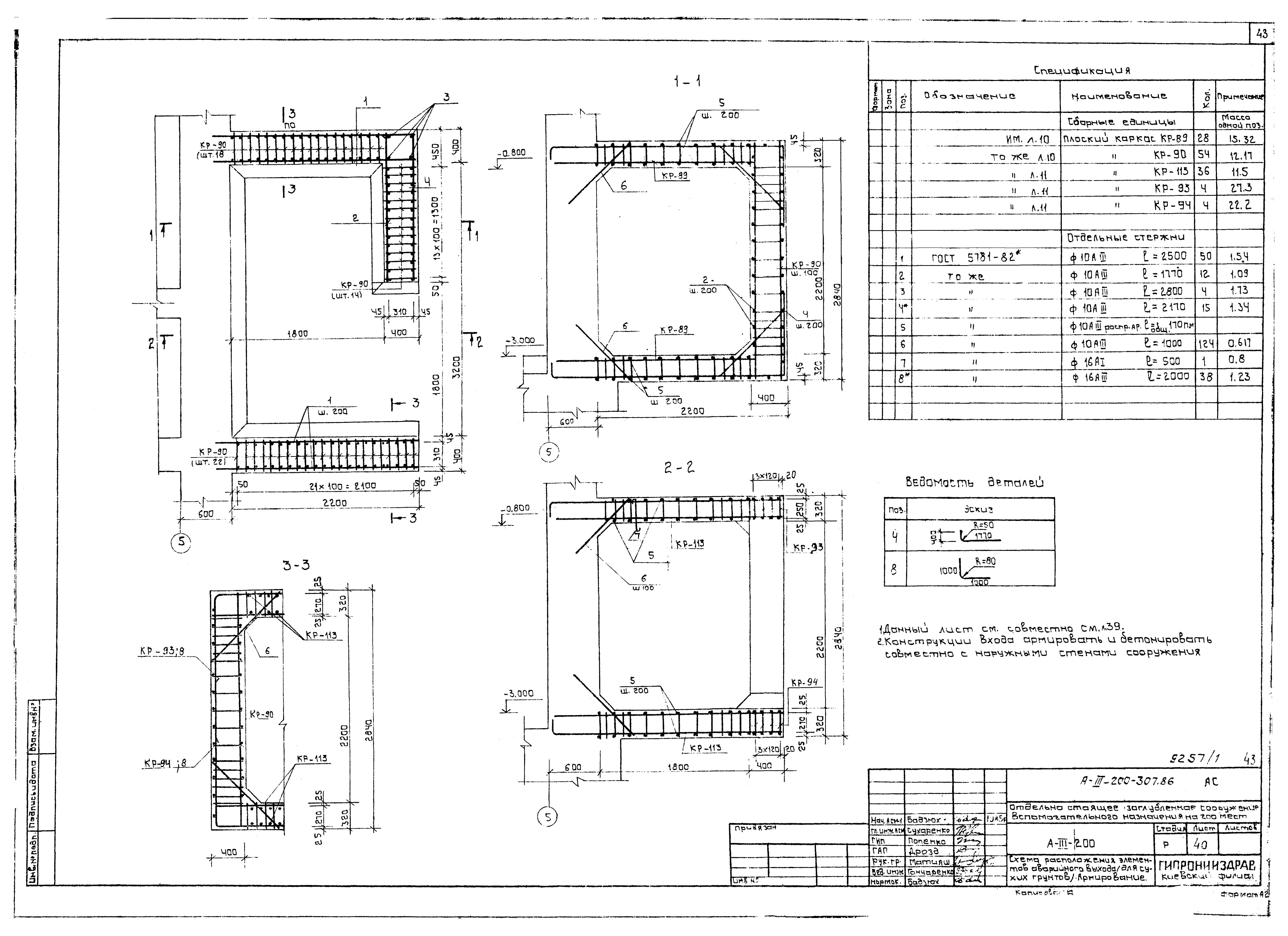
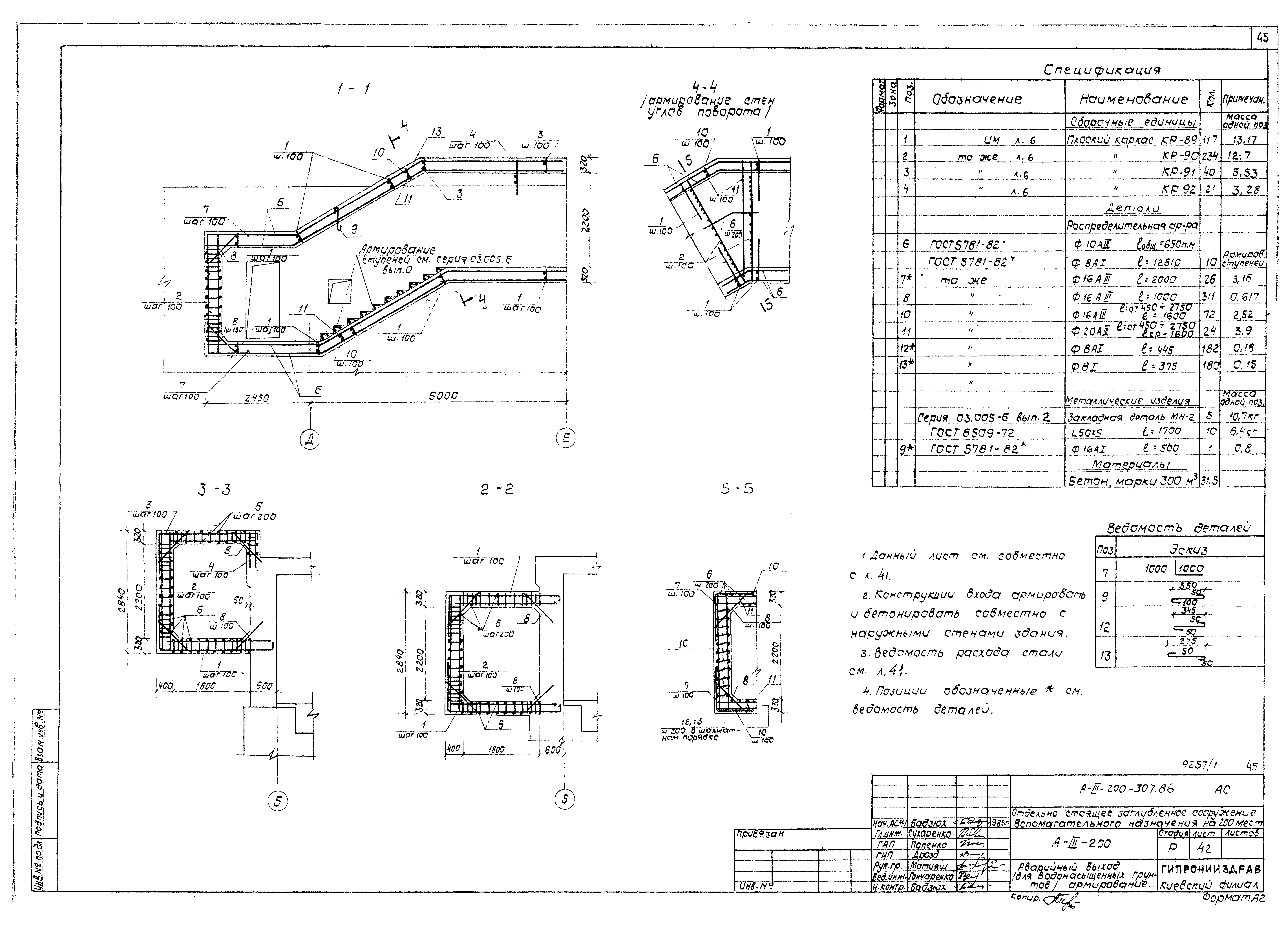
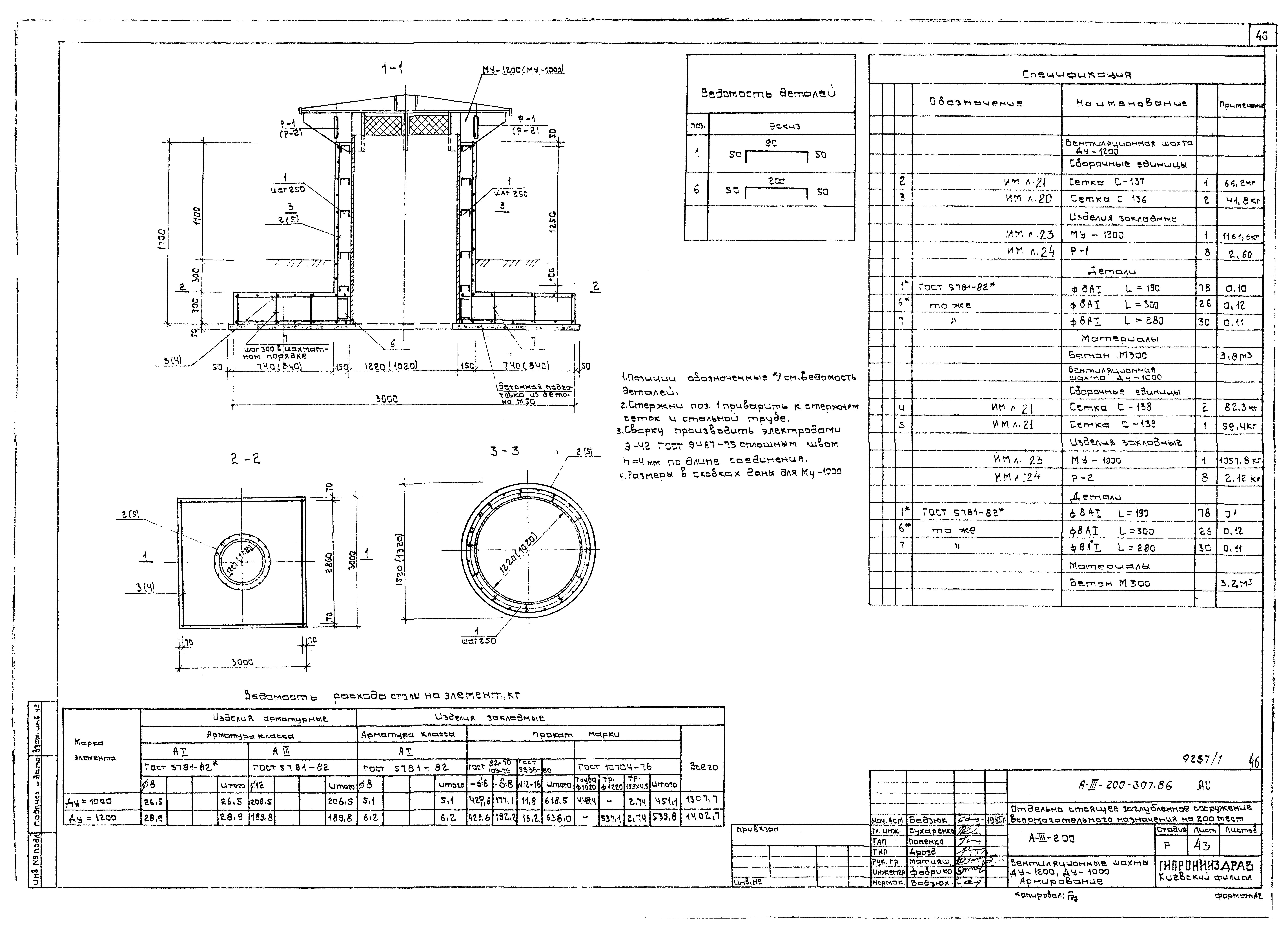
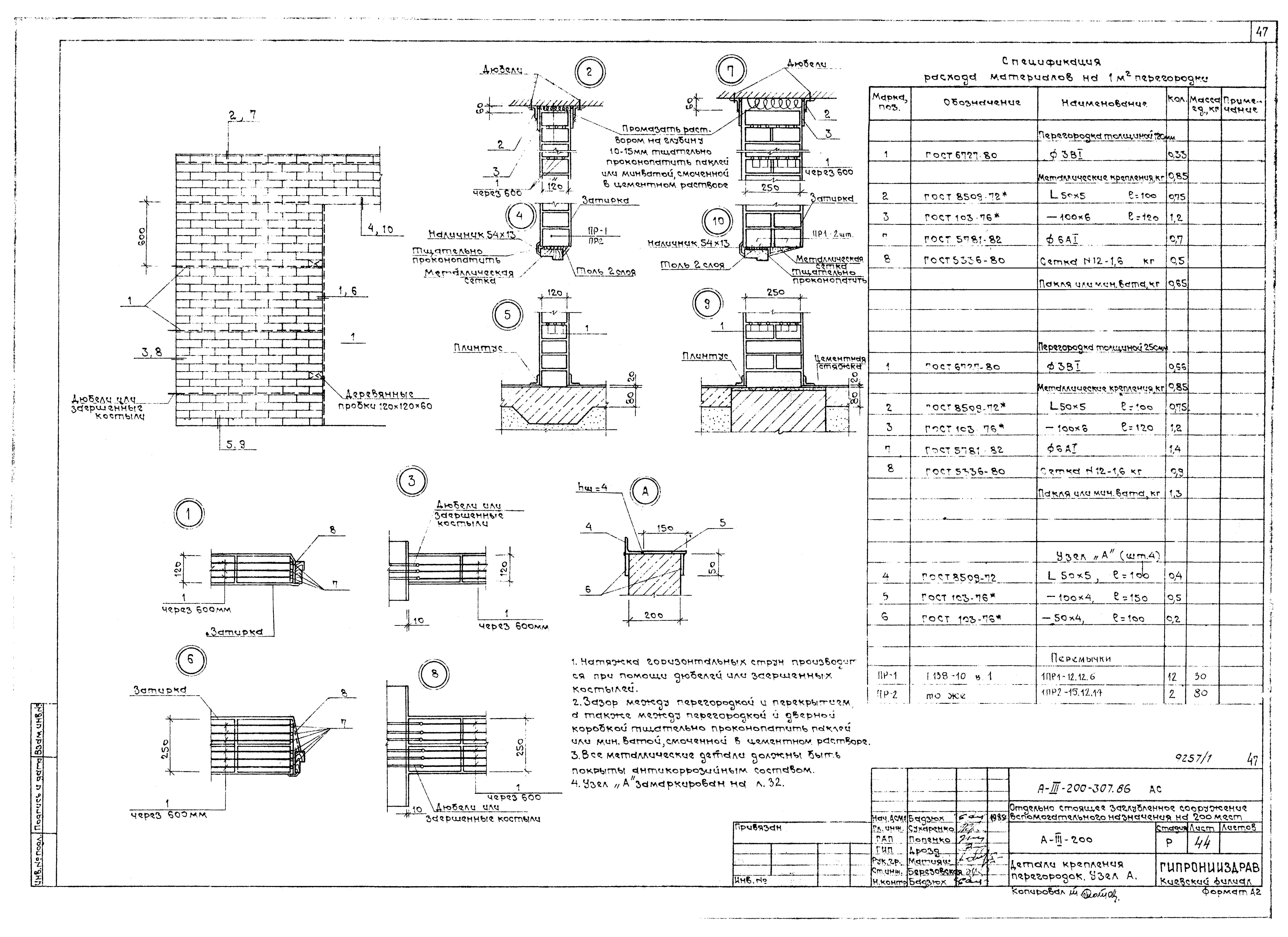
Скачать Типовой проект А-III-200-307.86 Альбом 1. Архитектурные решения. Конструкции бетонные и железобетонные. Технологическое оборудованиеДата актуализации: 01.01.2021 Типовой проект А-III-200-307.86
Альбом 1. Архитектурные решения. Конструкции бетонные и железобетонные. Технологическое оборудование| Обозначение: | Типовой проект А-III-200-307.86 | | Обозначение англ: | А-III-200-307.86 | | Статус: | действует | | Название рус.: | Альбом 1. Архитектурные решения. Конструкции бетонные и железобетонные. Технологическое оборудование | | Дата добавления в базу: | 21.05.2015 | | Дата актуализации: | 01.01.2021 | | Дата введения: | 12.12.1985 | | Утверждён: | 07.02.1985 Госгражданстрой (Gosgrazhdanstroy 36)
|
                                                    
|