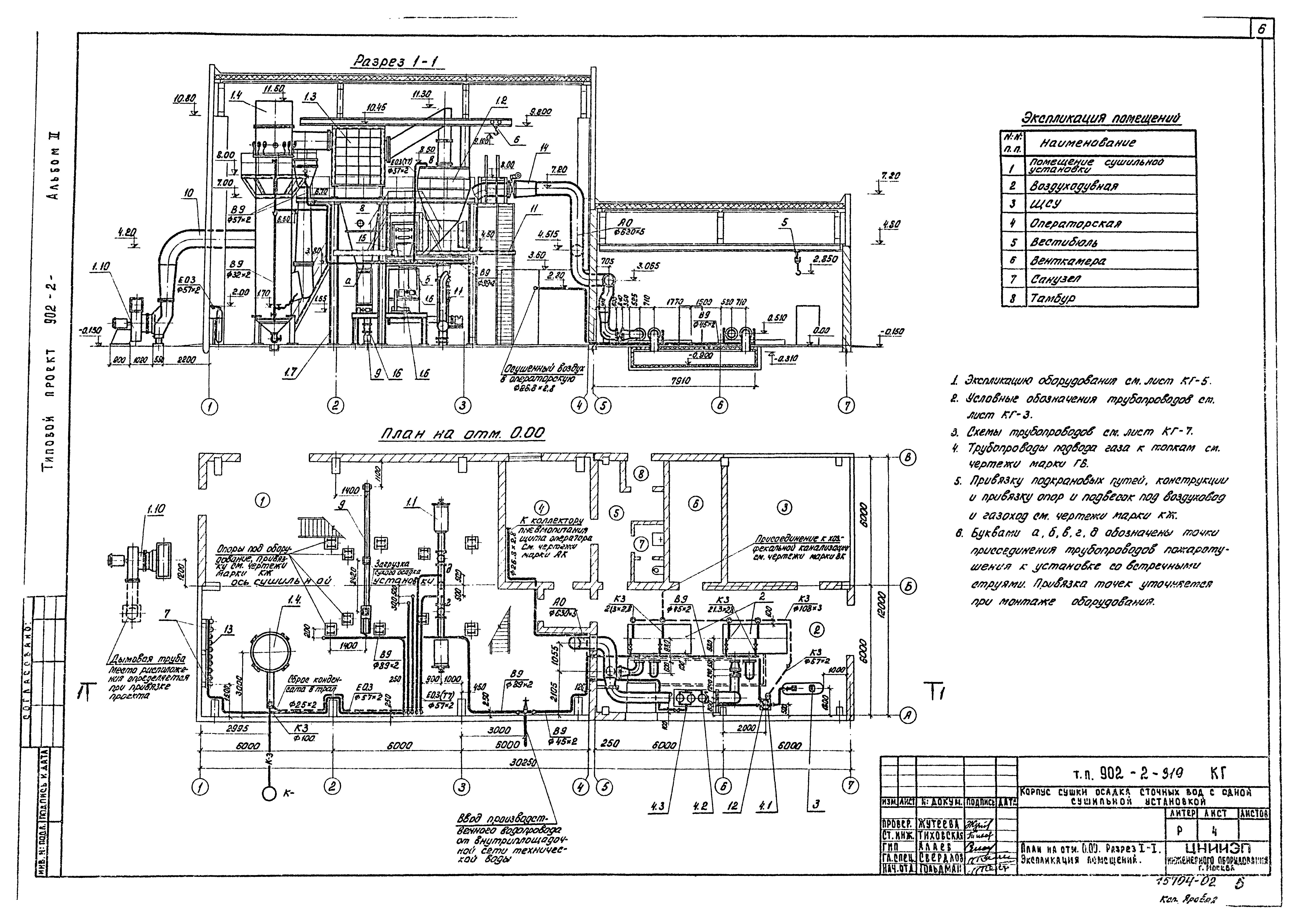
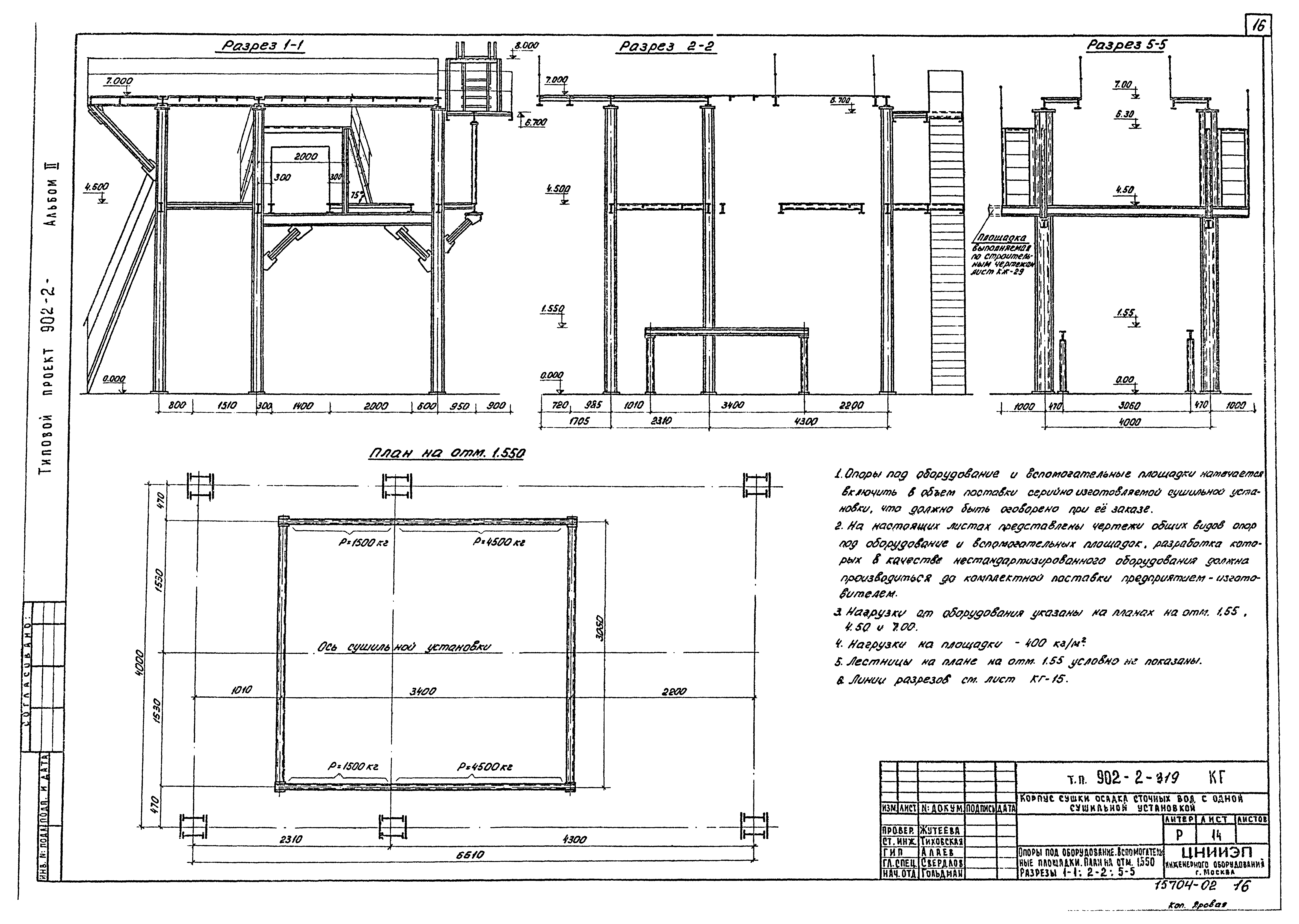
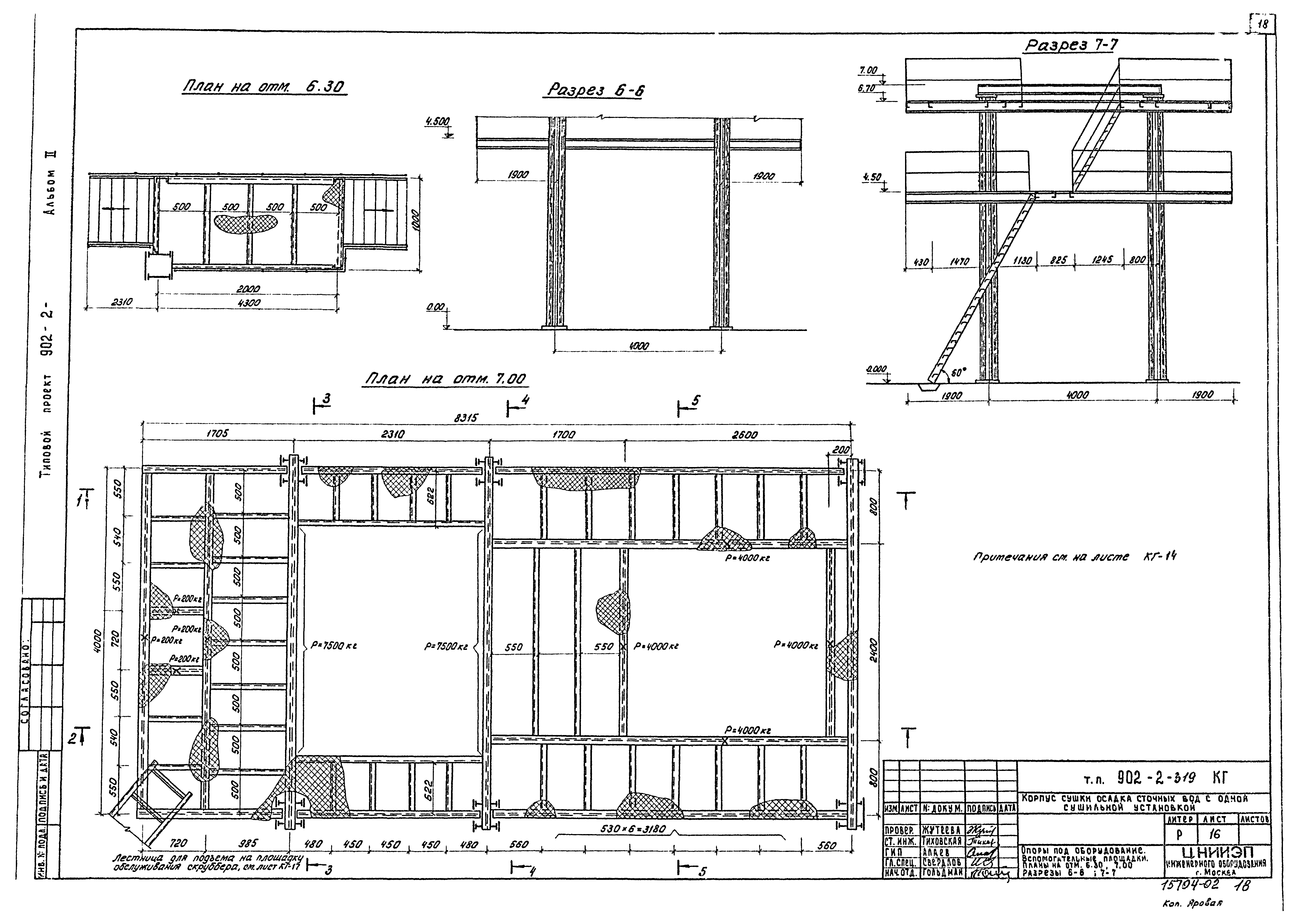
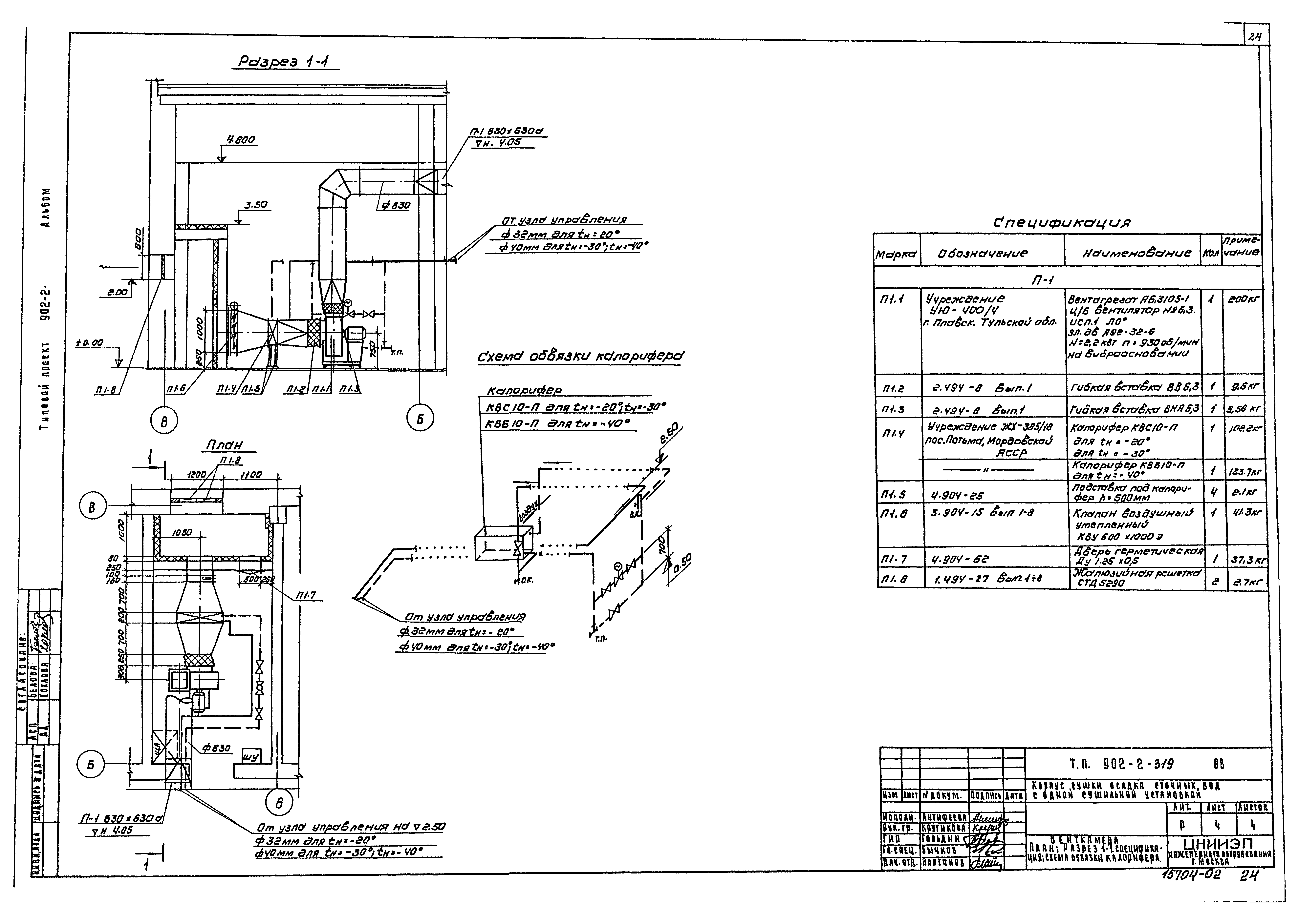
Скачать Типовой проект 902-2-319 Альбом II. Технологическая, санитарно-техническая, архитектурно-строительная части и газооборудованиеДата актуализации: 01.01.2021 Типовой проект 902-2-319
Альбом II. Технологическая, санитарно-техническая, архитектурно-строительная части и газооборудование| Обозначение: | Типовой проект 902-2-319 | | Обозначение англ: | 902-2-319 | | Статус: | заменен | | Название рус.: | Альбом II. Технологическая, санитарно-техническая, архитектурно-строительная части и газооборудование | | Дата добавления в базу: | 12.02.2016 | | Дата актуализации: | 01.01.2021 | | Дата введения: | 01.10.1978 | | Дата окончания срока действия: | 01.09.1984 | | Разработан: | ЦНИИЭП инженерного оборудования
| | Утверждён: | 22.07.1974 Госгражданстрой (Gosgrazhdanstroy 164)
| | Издан: | ЦИТП Госстроя СССР (CITP, Gosstroy (USSR) 1979 г. )
| | Чем заменён: | - Типовой проект 902-5-4.84
|
                                                                  
|