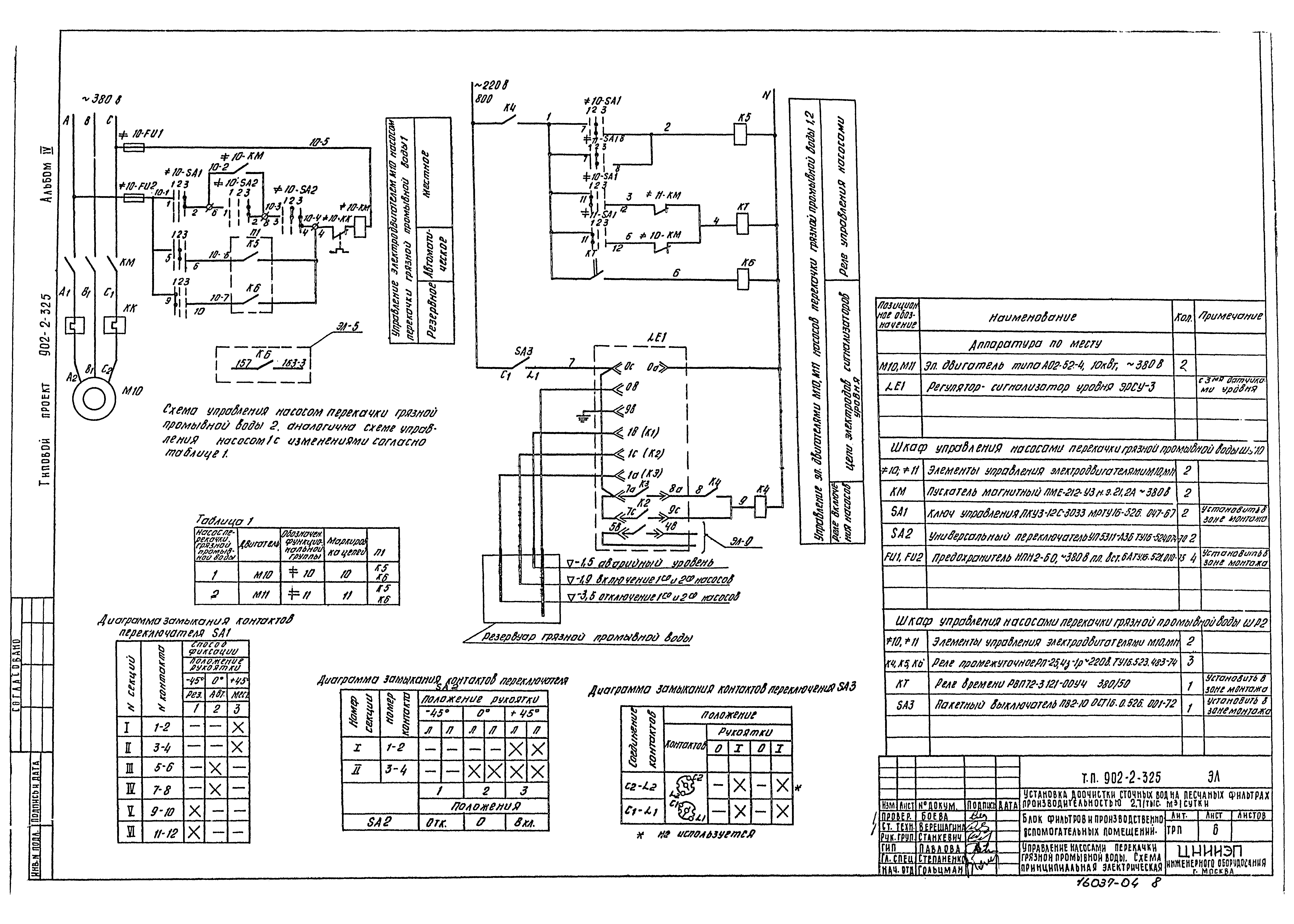
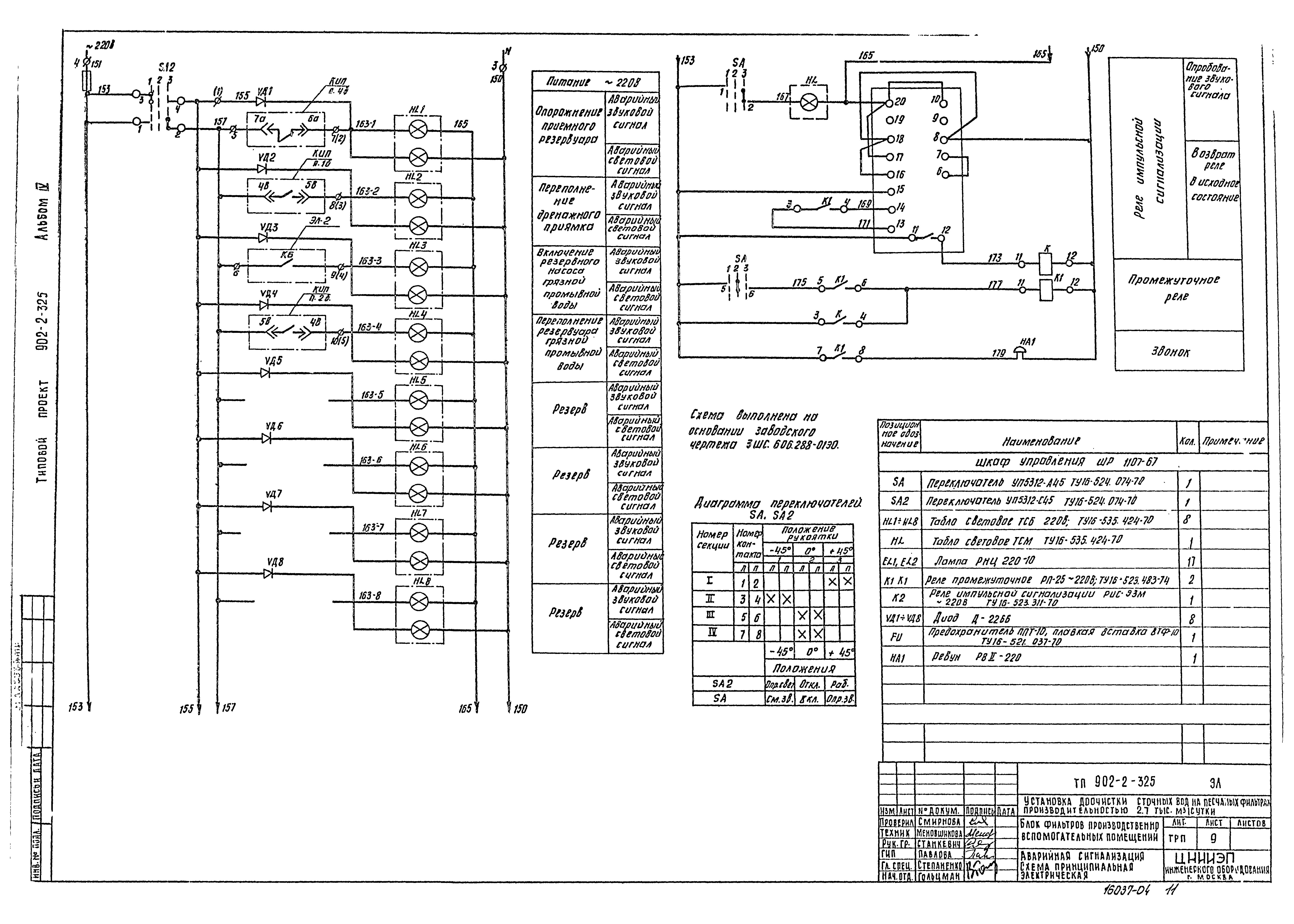
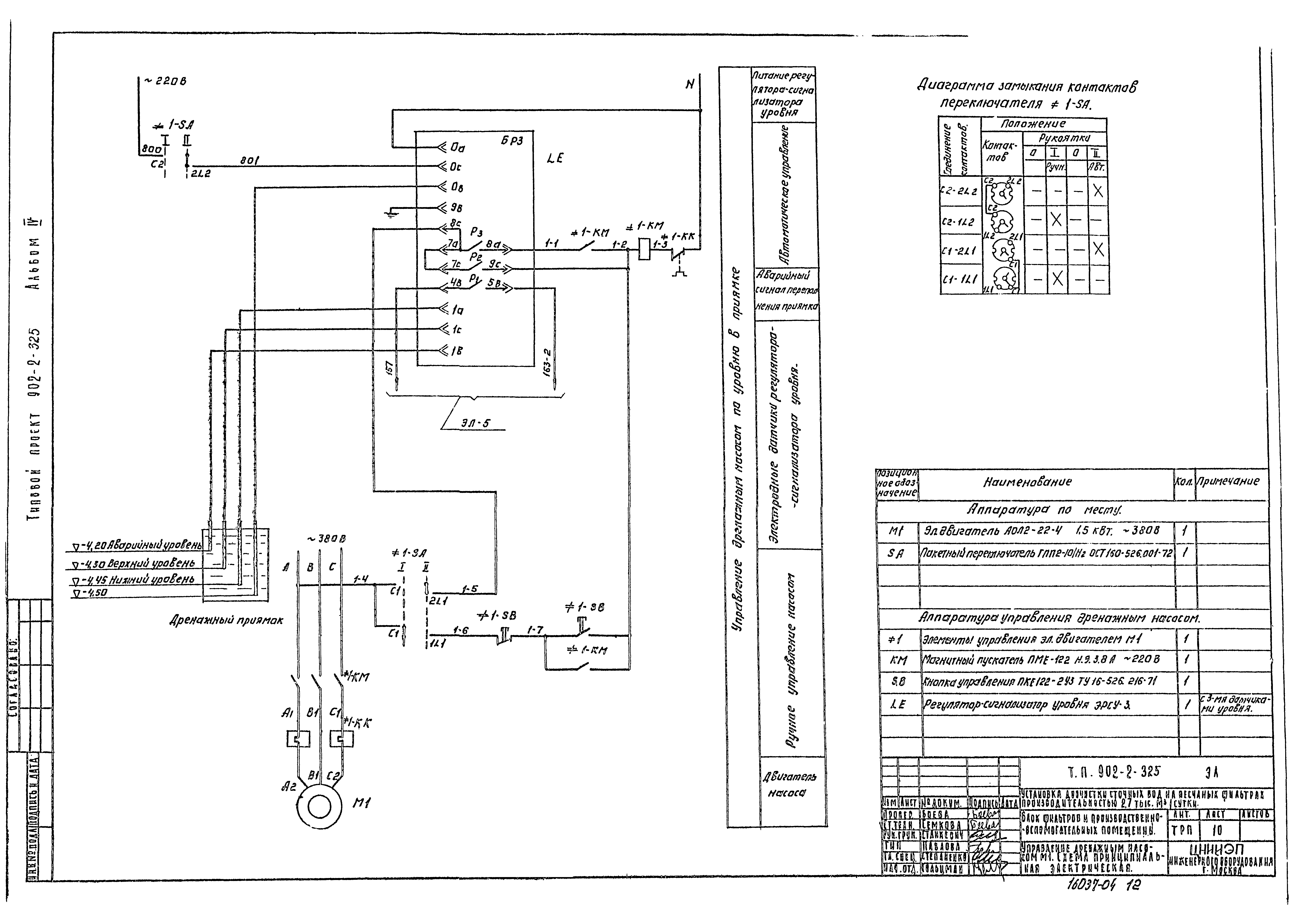
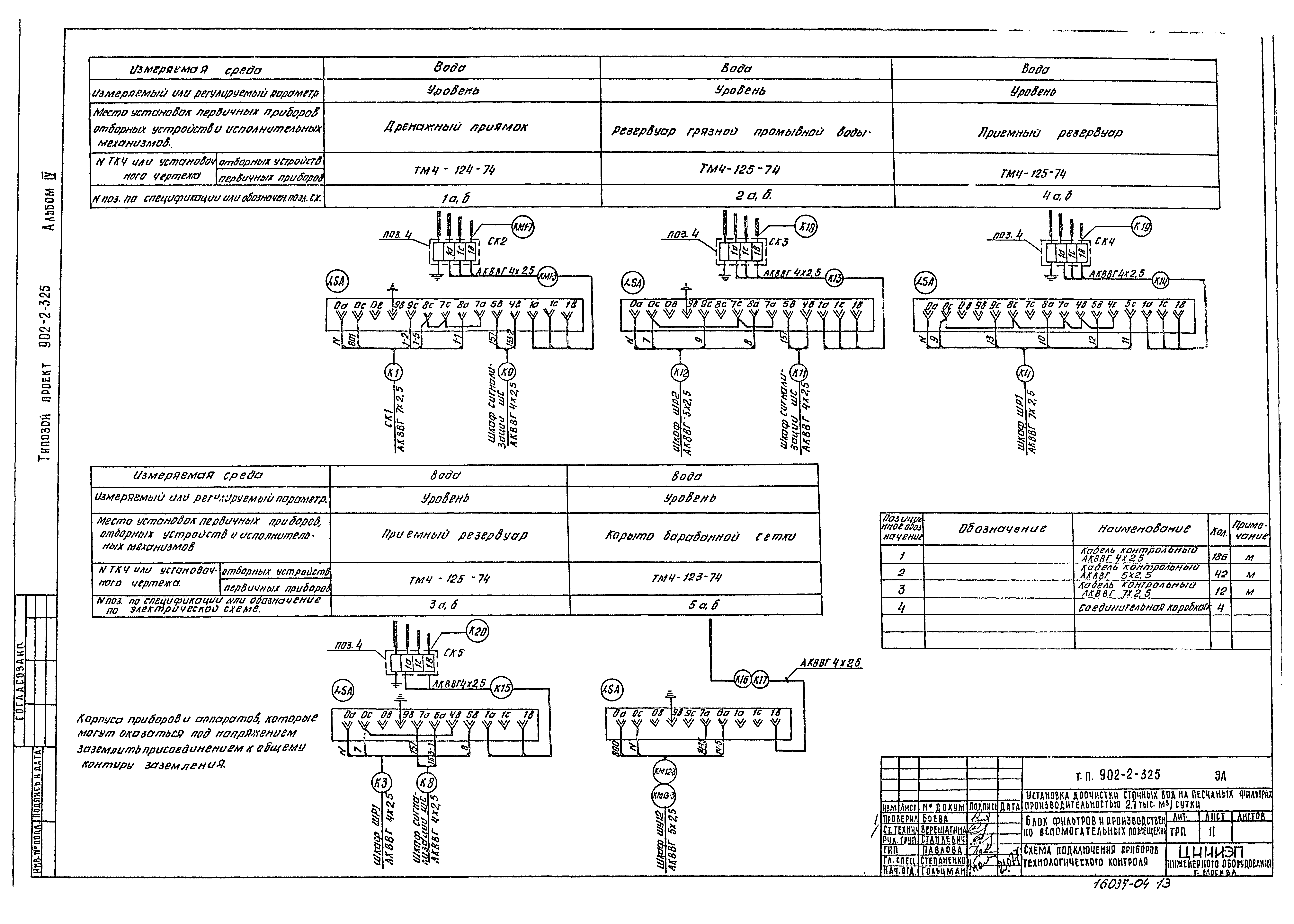
Скачать Типовой проект 902-2-325 Альбом IV. Электрооборудование и электроосвещение. Чертежи монтажной зоны. Задание заводу-изготовителюДата актуализации: 01.01.2021
|
| Обозначение: | Типовой проект 902-2-325 |
| Обозначение англ: | 902-2-325 |
| Статус: | заменен |
| Название рус.: | Альбом IV. Электрооборудование и электроосвещение. Чертежи монтажной зоны. Задание заводу-изготовителю |
| Дата добавления в базу: | 12.02.2016 |
| Дата актуализации: | 01.01.2021 |
| Дата введения: | 30.05.1979 |
| Дата окончания срока действия: | 01.03.1988 |
| Разработан: | ЦНИИЭП инженерного оборудования |
| Утверждён: | 07.08.1978 Госгражданстрой (Gosgrazhdanstroy 166) |
| Издан: | ЦИТП Госстроя СССР (CITP, Gosstroy (USSR) 1979 г. ) |
| Чем заменён: |


























