Скачать Схемы комплексной механизации устройства рулонных и мастичных кровель с применением новых строительных материалов

Дата актуализации: 01.01.2021

Схемы комплексной механизации устройства рулонных и мастичных кровель с применением новых строительных материалов

Статус:справочные материалы, мп, тпр
Название рус.:Схемы комплексной механизации устройства рулонных и мастичных кровель с применением новых строительных материалов
Дата добавления в базу:12.02.2016
Дата актуализации:01.01.2021
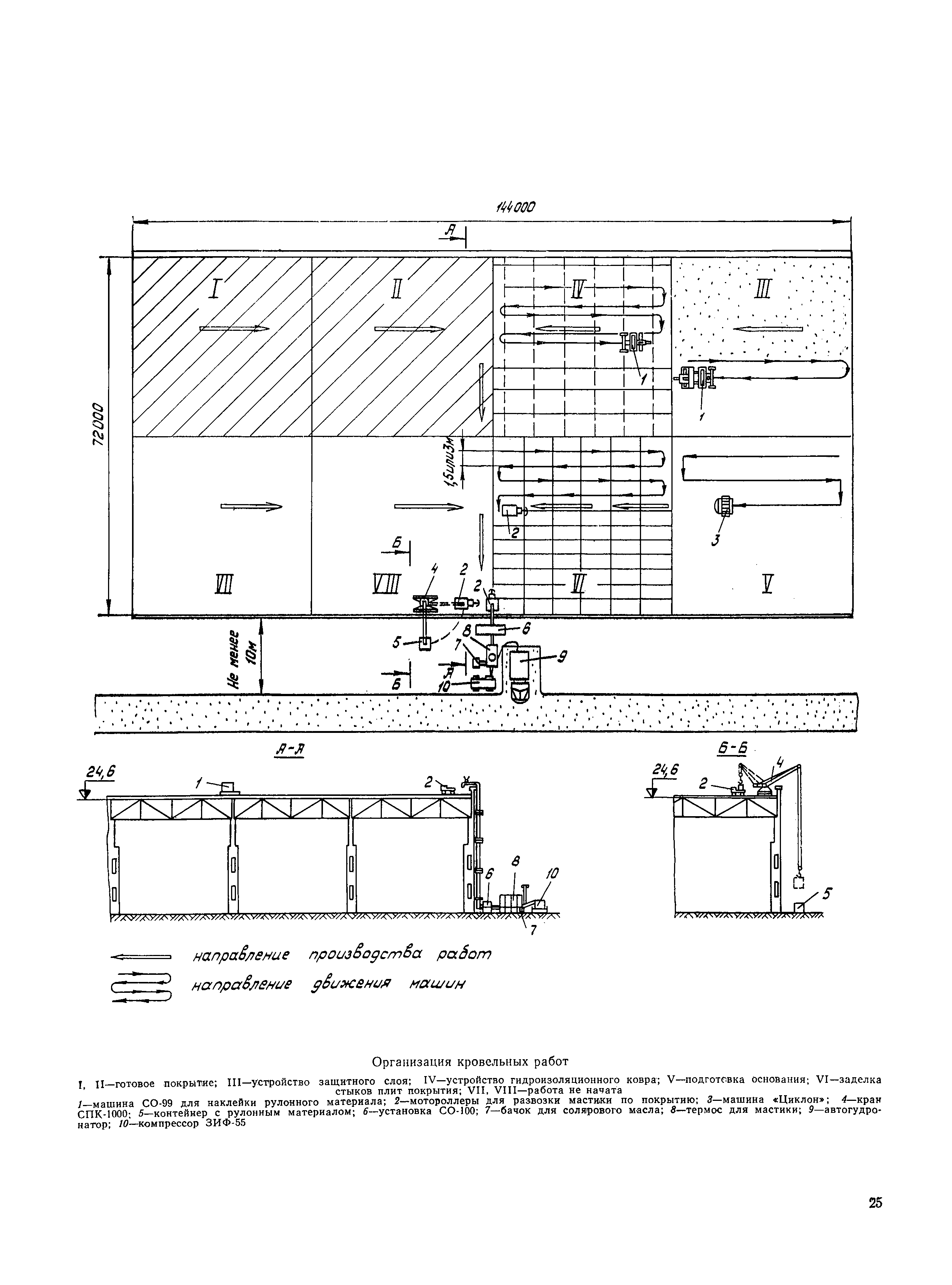
Область применения:В документе даны 14 схем комплексной механизации, в которых приведены прогрессивные технологические решения устройства рулонных и мастичных кровель с применением эффективных и высокопроизводительных машин.
Оглавление:Предисловие
Общая часть
Схема комплексной механизации 1. Устройство плоских рулонных кровель на горячих битумных мастиках
Схема комплексной механизации 2. Устройство скатных рулонных кровель на горячих битумных мастиках
Схема комплексной механизации 3. Устройство плоских рулонных кровель на горячих мастиках в районах с холодным климатом
Схема комплексной механизации 4. Устройство плоских рулонных кровель на холодных мастиках
Схема комплексной механизации 5. Устройство плоских рулонных кровель на холодных мастиках
Схема комплексной механизации 6. Устройство рулонных кровель с использованием плит покрытия повышенной заводской готовности
Схема комплексной механизации 7. Устройство рулонных кровель по плитам покрытия повышенной заводской готовности в районах с холодным климатом
Схема комплексной механизации 8. Устройство кровель из наплавляемого рубероида
Схема комплексной механизации 9. Устройство безрулонных кровель из холодных битумно-резиновых мастик
Схема комплексной механизации 10. Устройство безрулонных кровель из холодных асфальтовых мастик
Схема комплексной механизации 11. Устройство плоских безрулонных кровель из эмульсионных материалов
Схема комплексной механизации 12. Устройство безрулонных кровель из растворов полимерных материалов
Схема комплексной механизации 13. Устройство безрулонных кровель из гидроизоляционной мастики бипрекан
Схема комплексной механизации 14. Устройство безрулонных кровель из гидроизоляционной мастики по индустриальным плитам в районах с холодным климатом
Разработан: ВНИИСМИ
ЦНИИОМТП Госстроя СССР
Утверждён: ЦНИИОМТП (TsNIIOMTP )
Издан: Стройиздат (1976 г. )
Нормативные ссылки: