Скачать Рекомендации по определению нагрузок на отдельно стоящие опоры и эстакады под трубопроводы

Дата актуализации: 01.01.2021

Рекомендации по определению нагрузок на отдельно стоящие опоры и эстакады под трубопроводы

Статус:справочные материалы, мп, тпр
Название рус.:Рекомендации по определению нагрузок на отдельно стоящие опоры и эстакады под трубопроводы
Дата добавления в базу:12.02.2016
Дата актуализации:01.01.2021
Область применения:В Рекомендациях приведена методика определения нагрузок на несущие конструкции отдельно стоящих опор и эстакад под технологические трубопроводы при их надземной прокладке.
Оглавление:Предисловие
1. Общие положения
2. Вертикальные нагрузки
   Определение нагрузок
   Распределение нагрузки от веса трубопроводов при неизвестном их составе
3. Горизонтальные нагрузки от температурных воздействий и от внутреннего давления
   Исходные величины
   Нагрузки при известном составе трубопроводов
   Нагрузки при неизвестном составе трубопроводов
4. Ветровая нагрузка
5. Сейсмическая нагрузка
   Нагрузка вдоль трассы
   Нагрузка поперек трассы
Приложение I. Некоторые рекомендации по проектированию трубопроводных трасс, приводящие к снижению горизонтальных нагрузок
Приложение II. Разность температур от климатических воздействий
Приложение III. Усилия от дисковых, линзовых и волнистых компенсаторов
Приложение IV. Горизонтальные перемещения колонн
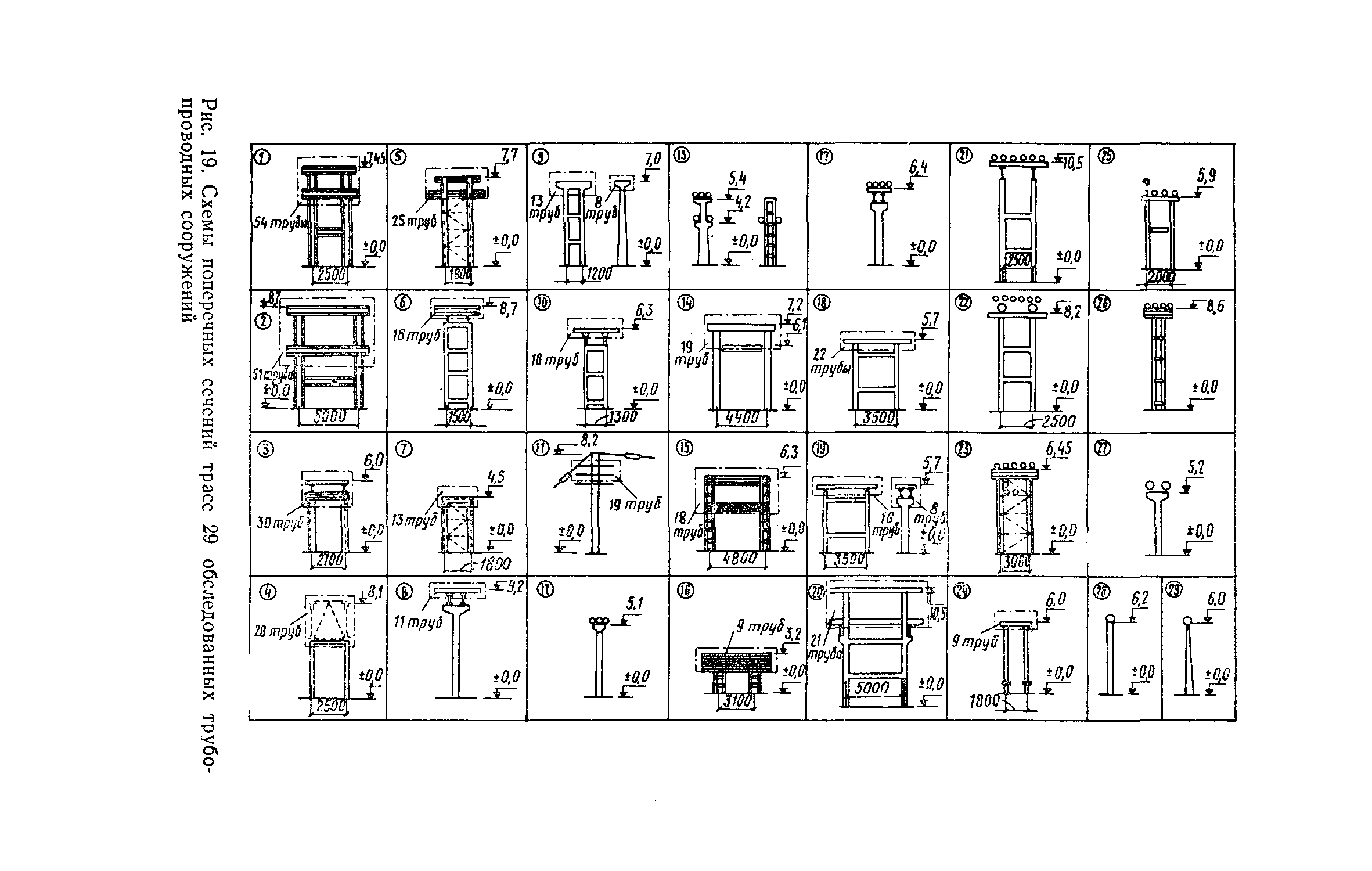
Приложение V. Пример определения нагрузок на отдельно стоящие опоры
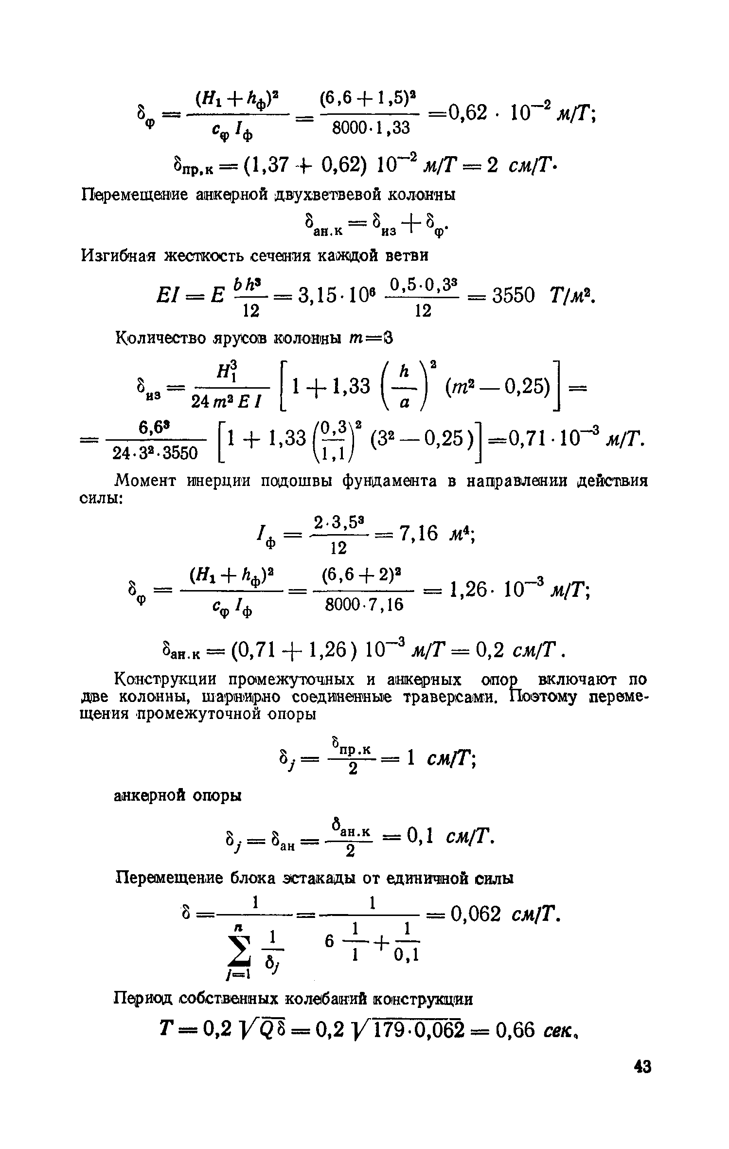
Приложение VI. Пример определения сейсмической нагрузки на эстакаду
Приложение VII. Обоснование рекомендуемых величин нагрузок
Разработан: ЦНИИСК им. В.А. Кучеренко
Утверждён: ЦНИИСК им. В.А. Кучеренко
Издан: Стройиздат (1973 г. )
Нормативные ссылки: