Скачать НД 2-090201-009 Правила изготовления контейнеровДата актуализации: 01.01.2021
|
| Обозначение: | НД 2-090201-009 |
| Обозначение англ: | ND 2-090201-009 |
| Статус: | заменен |
| Название рус.: | Правила изготовления контейнеров |
| Дата добавления в базу: | 12.02.2016 |
| Дата актуализации: | 01.01.2021 |
| Дата введения: | 01.11.2015 |
| Дата окончания срока действия: | 01.10.2019 |
| Область применения: | Требования Правил изготовления контейнеров распространяются на грузовые контейнеры массой брутто 10 т и более, предназначенные для перевозки грузов водным, железнодорожным и автомобильным транспортом и для передачи их с одного вида транспорта на другой, если в Правилах не оговорено иное. |
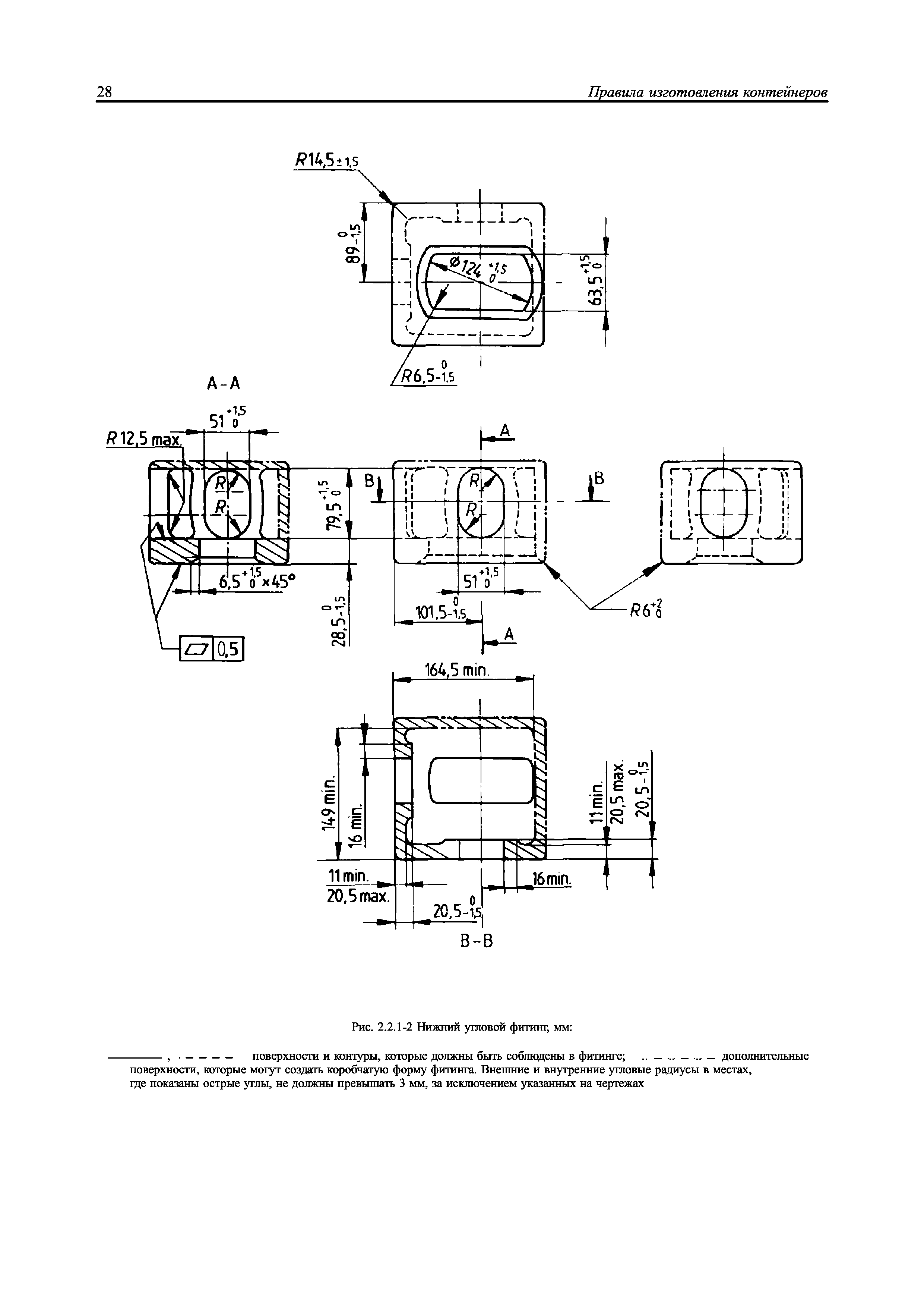
| Оглавление: | Часть 1. Основные требования 1 Общие положения 1.1 Область распространения 1.2 Определения и пояснения 1.3 Допущение контейнеров 1.4 Техническое наблюдение за изготовлением серийных контейнеров 1.5 Признание предприятий и испытательных лабораторий 2 Общие технические данные 2.1 Размеры и масса 2.2 Фитинги 2.3 Конструкция основания 2.4 Торцевая конструкция 2.5 Боковая конструкция 2.6 Необязательные конструкции 3 Материалы и сварка 3.1 Общие положения 3.2 Материалы для элементов каркаса 3.3 Материалы сосудов контейнеров- цистерн 3.4 Древесина 3.5 Пластмассы 3.6 Уплотнительные материалы 3.7 Сварка 4 Маркировка 4.1 Табличка КБК 4.2 Обязательная маркировка Часть II. Контейнеры для генеральных грузов 1 Общие положения 1.1 Область распространения 1.2 Определения и пояснения 1.3 Техническое наблюдение 1.4 Техническая документация 2 Технические требования 2.1 Внутренние размеры 2.2 Дверной проем 2.3 Двери 3 Испытания 3.1 Общие положения 3.2 Подъем за верхние угловые фитинги 3.3 Подъем за нижние угловые фитинги 3.4 Подъем за карманы для вилочных захватов 3.5 Подъем за площадки для клещевых захватов 3.6 Дополнительные методы подъема 3.7 Штабелирование 3.8 Прочность крыши 3.9 Прочность пола 3.10 Поперечный перекос 3.11 Продольный перекос 3.12 Закрепление в продольном направлении (статическое испытание) 3.13 Прочность торцевых стенок 3.14 Прочность боковых стенок 3.15 Непроницаемость при воздействии погоды 3.16 Прочность устройств для крепления груза 3.17 Проверки Часть III. Изотермические контейнеры 1 Общие положения 1.1 Область распространения 1.2 Определения и пояснения 1.3 Техническое наблюдение 1.4 Техническая документация 2 Технические требования 2.1 Внутренние размеры 2.2 Дверной проем 2.3 Двери 2.4 Теплотехнические характеристики 2.5 Средства измерения температуры 2.6 Требования к дополнительным (необязательным) устройствам 2.7 Материалы 2.8 Холодильная и отопительная установки 2.9 Электрическое оборудование 3 Испытания 3.1 Общие положения 3.2 Прочность крыши и устройств для подвешивания грузов 3.3 Непроницаемость при воздействии погоды 3.4 Воздухонепроницаемость 3.5 Теплопередача 3.6 Проверка эксплуатационных характеристик холодильной установки 3.7 Работоспособность холодильной/отопительной установки 3.8 Проверки 4 Маркировка 4.1 Обязательная маркировка 4.2 Табличка с данными по установке 4.3 Инструкции Часть IV. Контейнеры-цистерны 1 Общие положения 1.1 Область распространения 1.2 Определения и пояснения 1.3 Техническое наблюдение 1.4 Техническая документация 2 Технические требования 2.1 Конструкция основания 2.2 Цистерны 2.3 Эксплуатационное оборудование и его расположение 2.4 Теплоизоляция 2.5 Дополнительные установки 3 Испытания 3.1 Общие положения 3.2 Прочность мостков 3.3 Прочность лестниц 3.4 Продольное крепление 3.5 Поперечное крепление 3.6 Испытания контактных площадок 3.7 Динамическое испытание 3.8 Испытания цистерны на прочность и герметичность 3.9 Теплотехнические испытания контейнеров-цистерн, предназначенных для перевозки охлажденных сжиженных газов 3.10 Испытания предохранительных и вакуумных клапанов 3.11 Проверки 4 Маркировка 4.1 Обязательная маркировка 4.2 Масса тары 4.3 Табличка с данными по цистерне 4.4 Арматура 4.5 Инструкция Часть V. Контейнеры-платформы 1 Общие положения 1.1 Область распространения 1.2 Определения и пояснения 1.3 Техническое наблюдение 1.4 Техническая документация 2 Технические требования 2.1 Размеры 2.2 Торцы 2.3 Конструкция основания 3 Испытания 3.1 Общие положения 3.2 Штабелирование 3.3 Подъем 3.4 Перекос 3.5 Прочность торцов 3.6 Закрепление в продольном направлении (статическое испытание) 3.7 Прочность пола 3.8 Дополнительные испытания контейнеров-платформ с неполным верхом и складывающимися торцами 3.9 Проверки Часть VI Контейнеры для навалочных грузов без давления 1 Общие положения 1.1 Область распространения 1.2 Определения и пояснения 1.3 Техническое наблюдение 1.4 Техническая документация 2 Технические требования 2.1 Контейнер типа "бокс" 2.2 Контейнер типа "хоппер" 2.3 Дополнительные конструкции 3 Испытания 3.1 Общие положения 3.2 Испытание на воздухонепроницаемость 3.3 Проверки 4 Маркировка 4.1 Общие положения Часть VII. Оффшорные контейнеры 1 Общие положения 1.1 Область распространения 1.2 Определения и пояснения 1.3 Техническое наблюдение 1.4 Техническая документация 2 Технические требования 2.1 Общие положения 2.2 Подъемные рымы 3 Прочность конструкции 3.1 Общие положения 4 Контейнеры-цистерны, контейнеры для навалочных грузов и изотермические контейнеры 4.1 Общие положения 5 Сварка 5.1 Общие положения 6 Материалы 6.1 Общие положения 7 Маркировка 7.1 Обязательная маркировка 7.2 Таблички 7.3 Дополнительная маркировка 8 Испытания 8.1 Общие положения 8.2 Подъем 8.3 Испытание на удар 8.4 Другие испытания 9 Подъемное приспособление 9.1 Общие положения 9.2 Технические требования 9.3 Прочность 9.4 Элементы подъемных приспособлений 9.5 Материалы 9.6 Испытания 9.7 Маркировка ЧастьVIII Контейнеры-цистерны с сосудом из полимерных композиционных материалов (ПКМ) |
| Разработан: | Российский морской регистр судоходства |
| Утверждён: | 28.07.2015 Российский морской регистр судоходства |
| Издан: | Российский морской регистр судоходства (2015 г. ) |
| Список изменений: | |
| Заменяет собой: | |
| Нормативные ссылки: |






























































































































Текстовое изменение 382-08-996ц от 20.03.2017
















Текстовое изменение 382-08-1053ц от 25.10.2017





Текстовое изменение 382-08-1142ц от 20.06.2018










