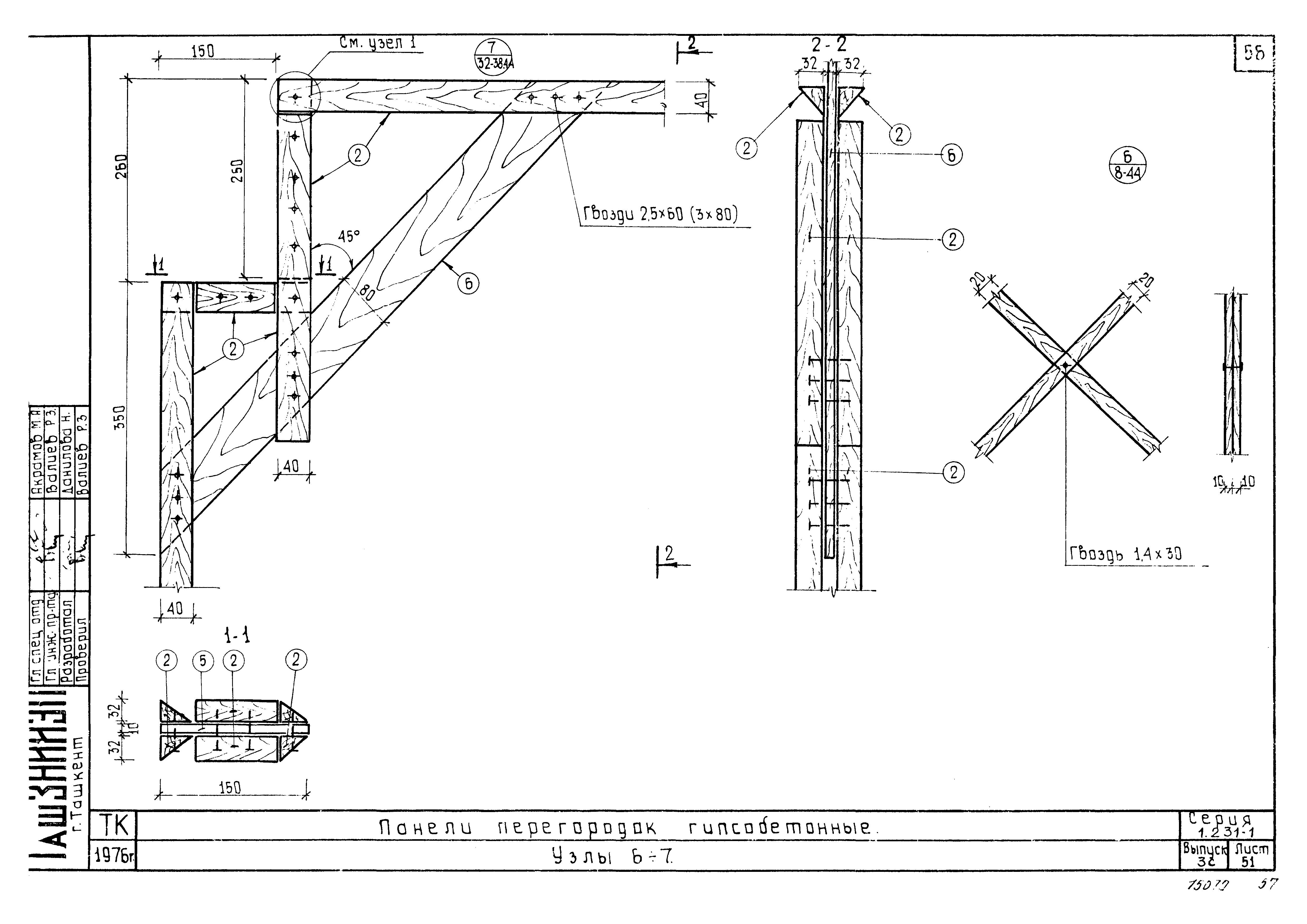
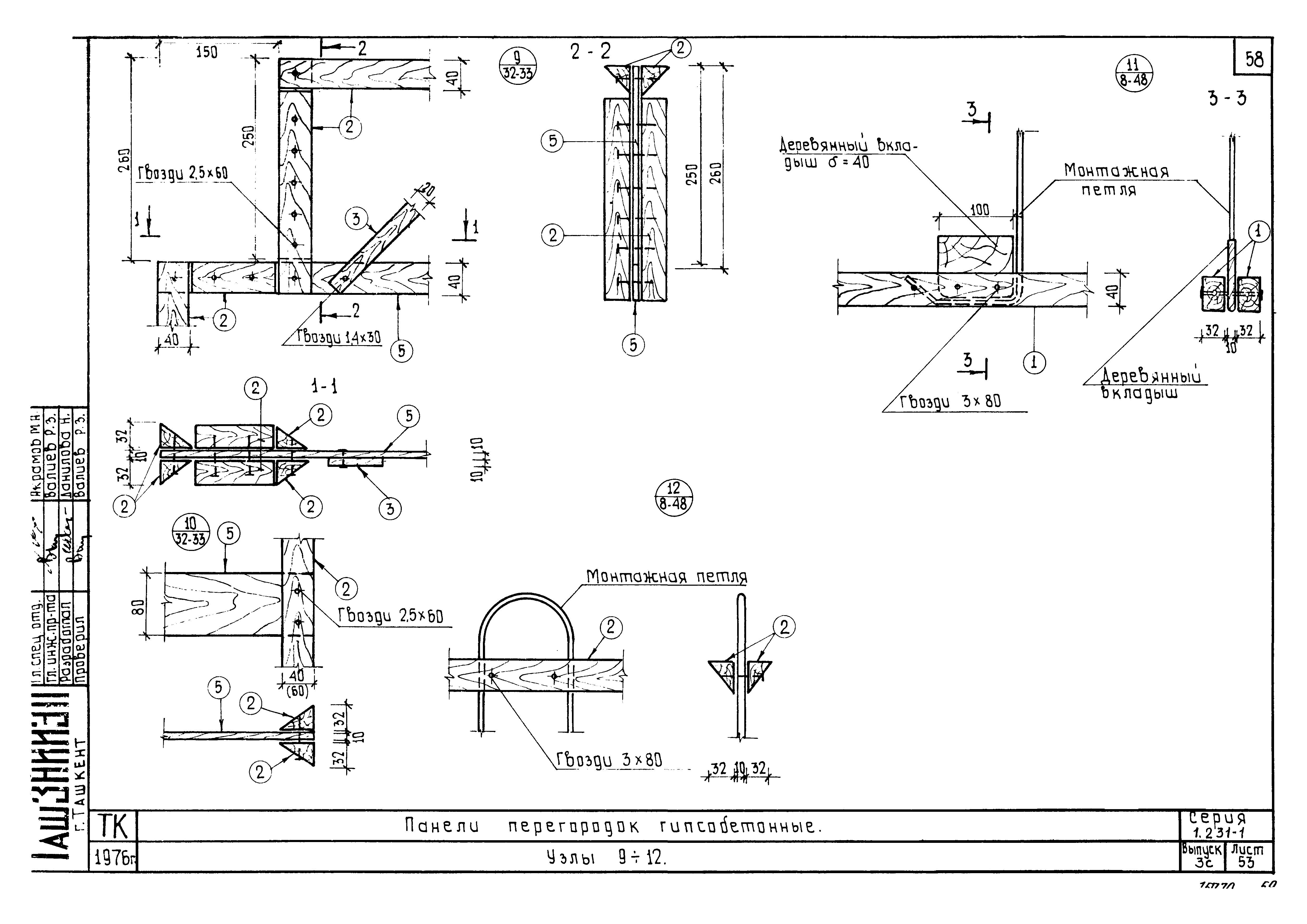
Скачать Серия 1.231-1 Выпуск 3с. Панели перегородок гипсобетонные для жилых и общественных зданий каркасной конструкции серии ИИС-04 с высотой этажа 3,0 м. Рабочие чертежиДата актуализации: 01.01.2021 Серия 1.231-1
Выпуск 3с. Панели перегородок гипсобетонные для жилых и общественных зданий каркасной конструкции серии ИИС-04 с высотой этажа 3,0 м. Рабочие чертежи| Обозначение: | Серия 1.231-1 | | Обозначение англ: | Series 1.231-1 | | Статус: | отменен | | Название рус.: | Выпуск 3с. Панели перегородок гипсобетонные для жилых и общественных зданий каркасной конструкции серии ИИС-04 с высотой этажа 3,0 м. Рабочие чертежи | | Дата добавления в базу: | 12.02.2016 | | Дата актуализации: | 01.01.2021 | | Дата введения: | 28.02.1978 | | Дата окончания срока действия: | 01.06.1987 | | Разработан: | ТашЗНИИЭП Госгражданстроя
| | Утверждён: | 07.02.1978 Государственный комитет по гражданскому строительству и архитектуре при Госстрое СССР (30)
| | Издан: | ЦИТП Госстроя СССР (CITP, Gosstroy (USSR) 1978 г. )
| | Нормативные ссылки: | |
                                                            
|