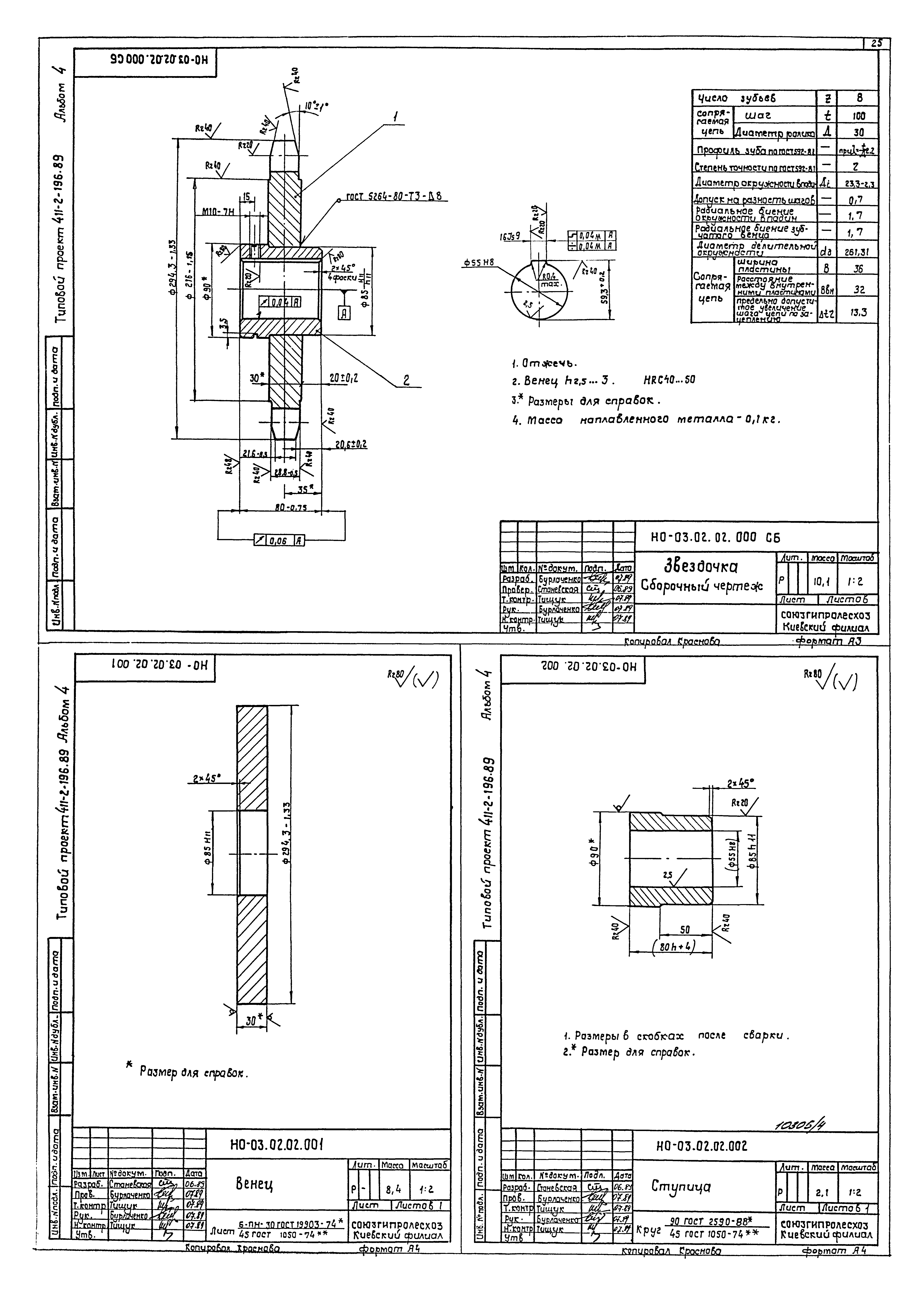
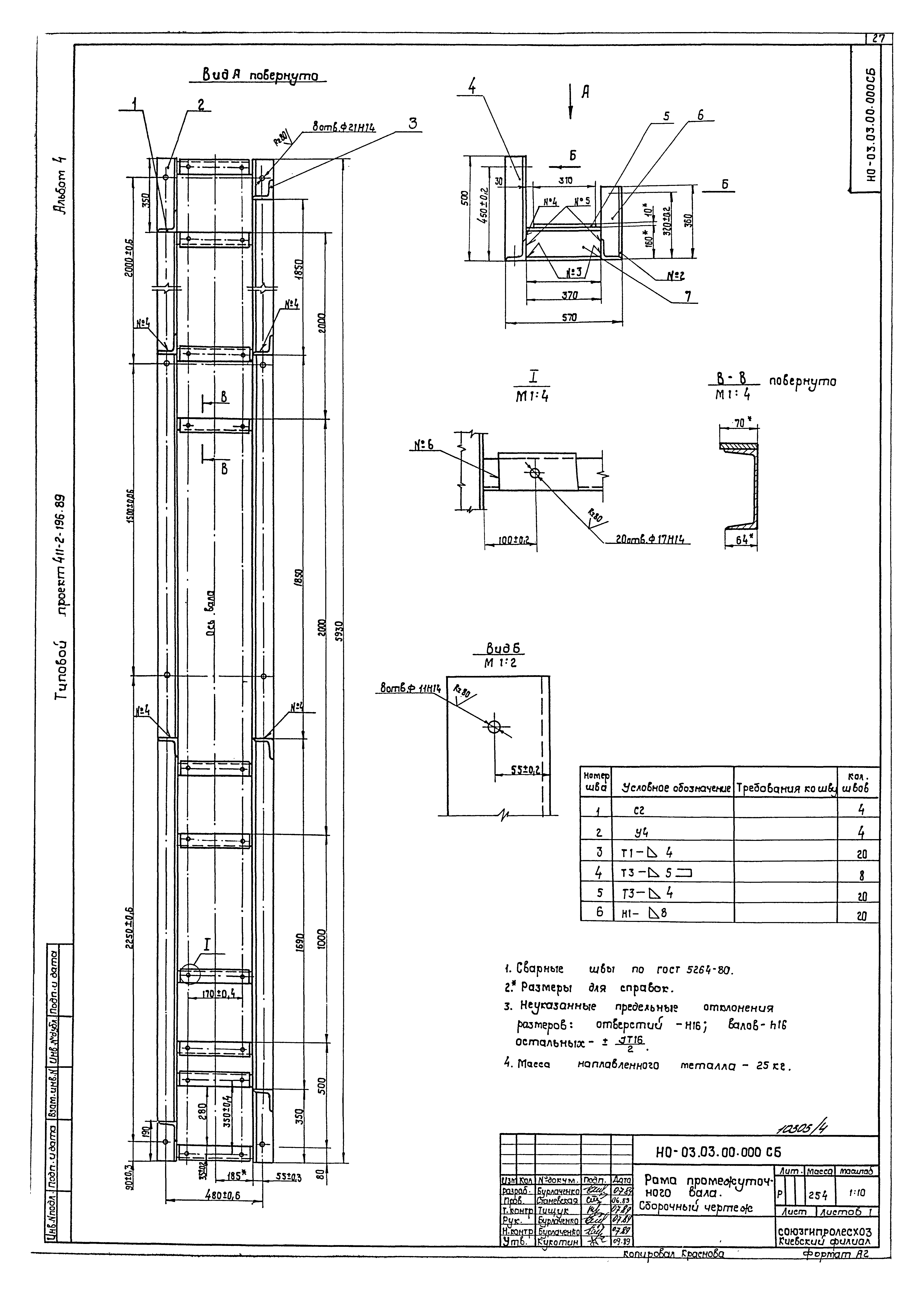
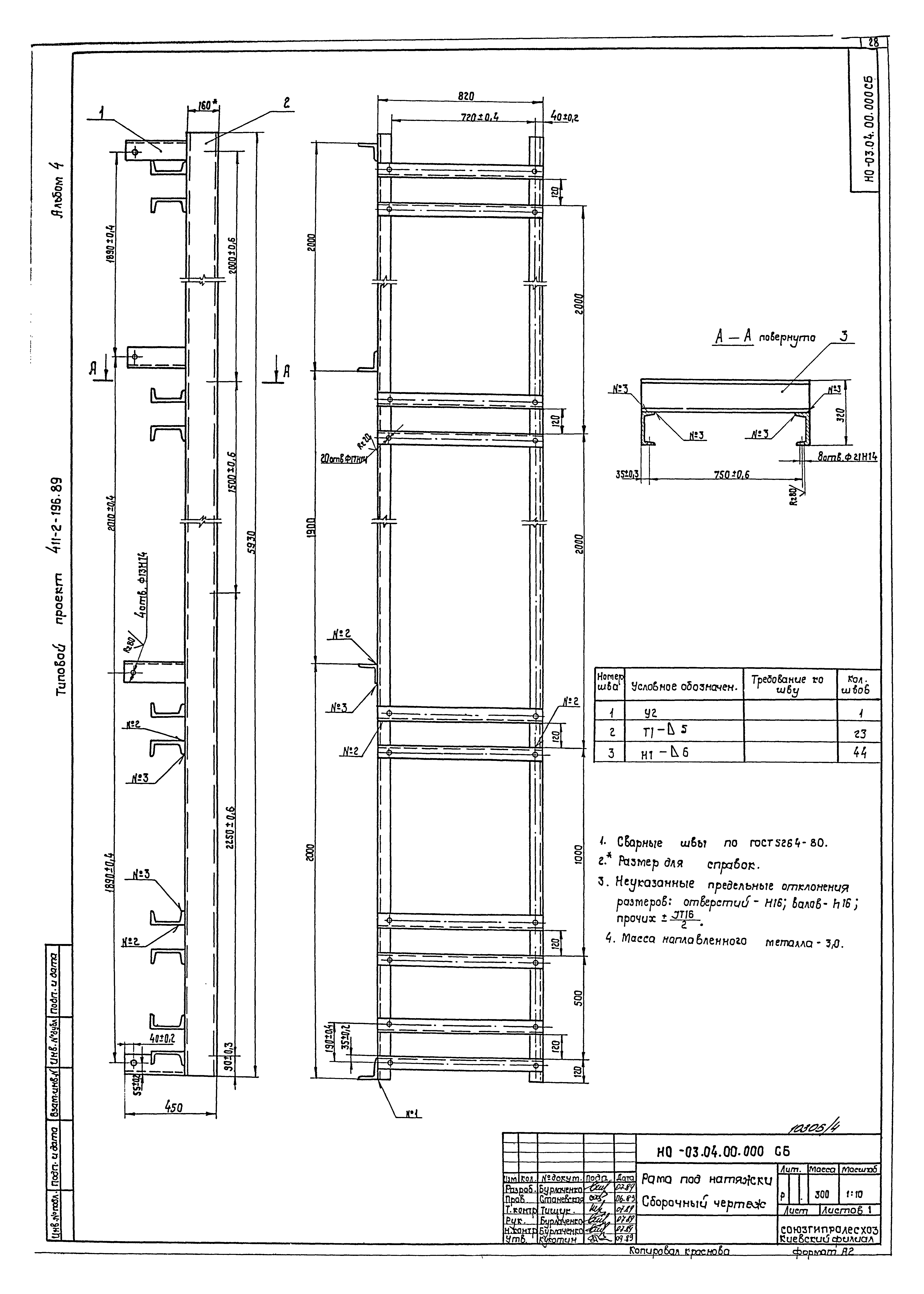
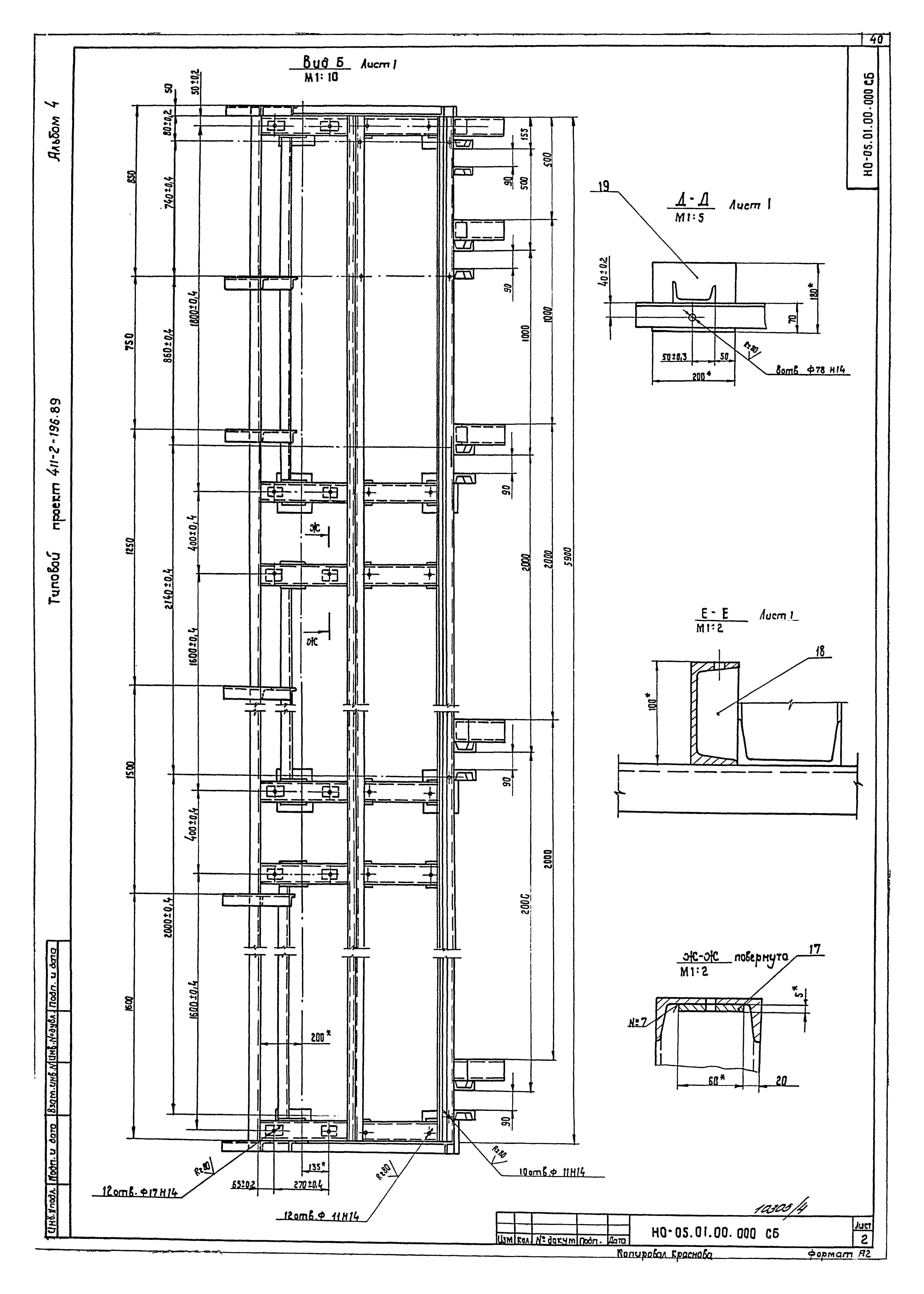
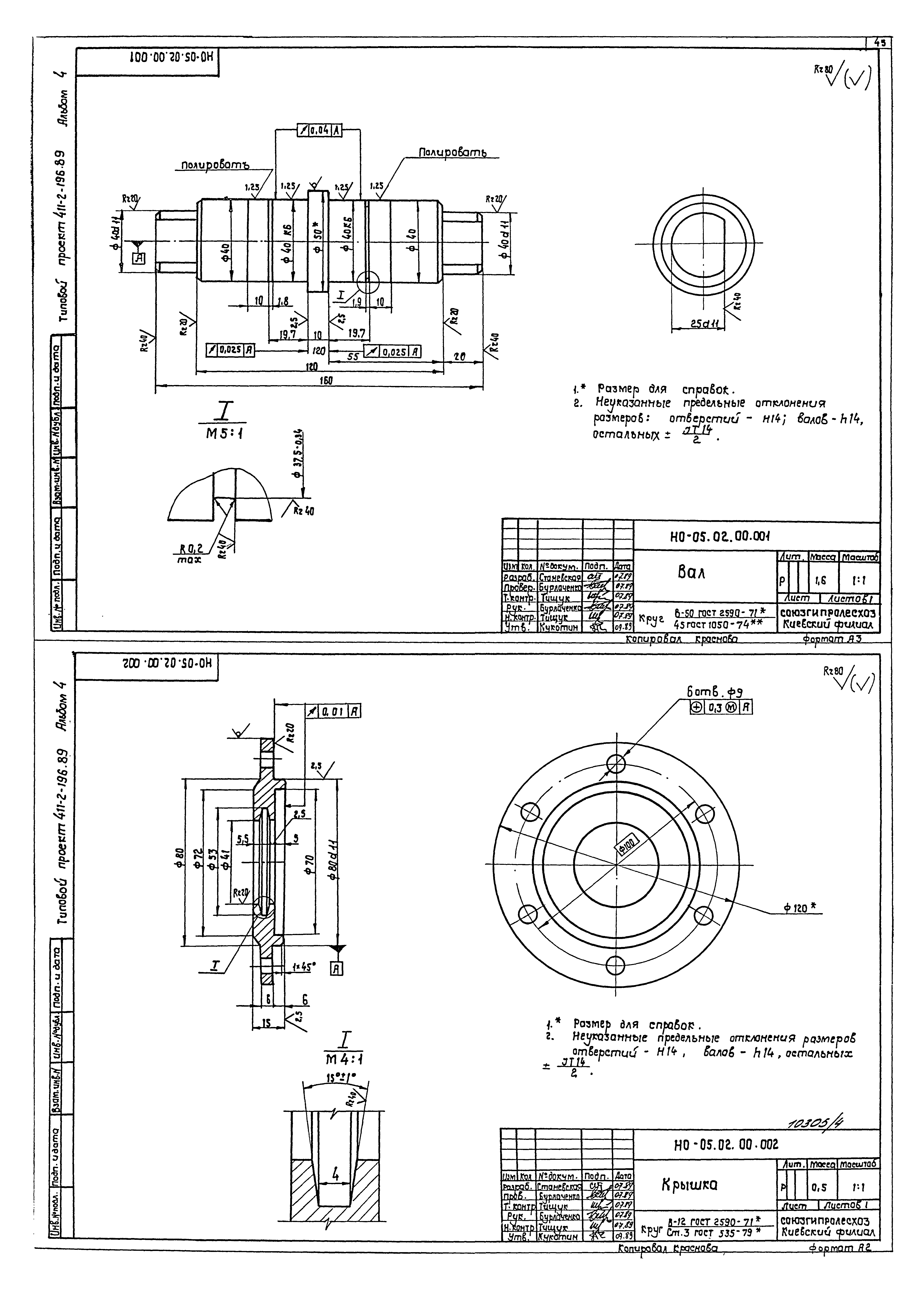
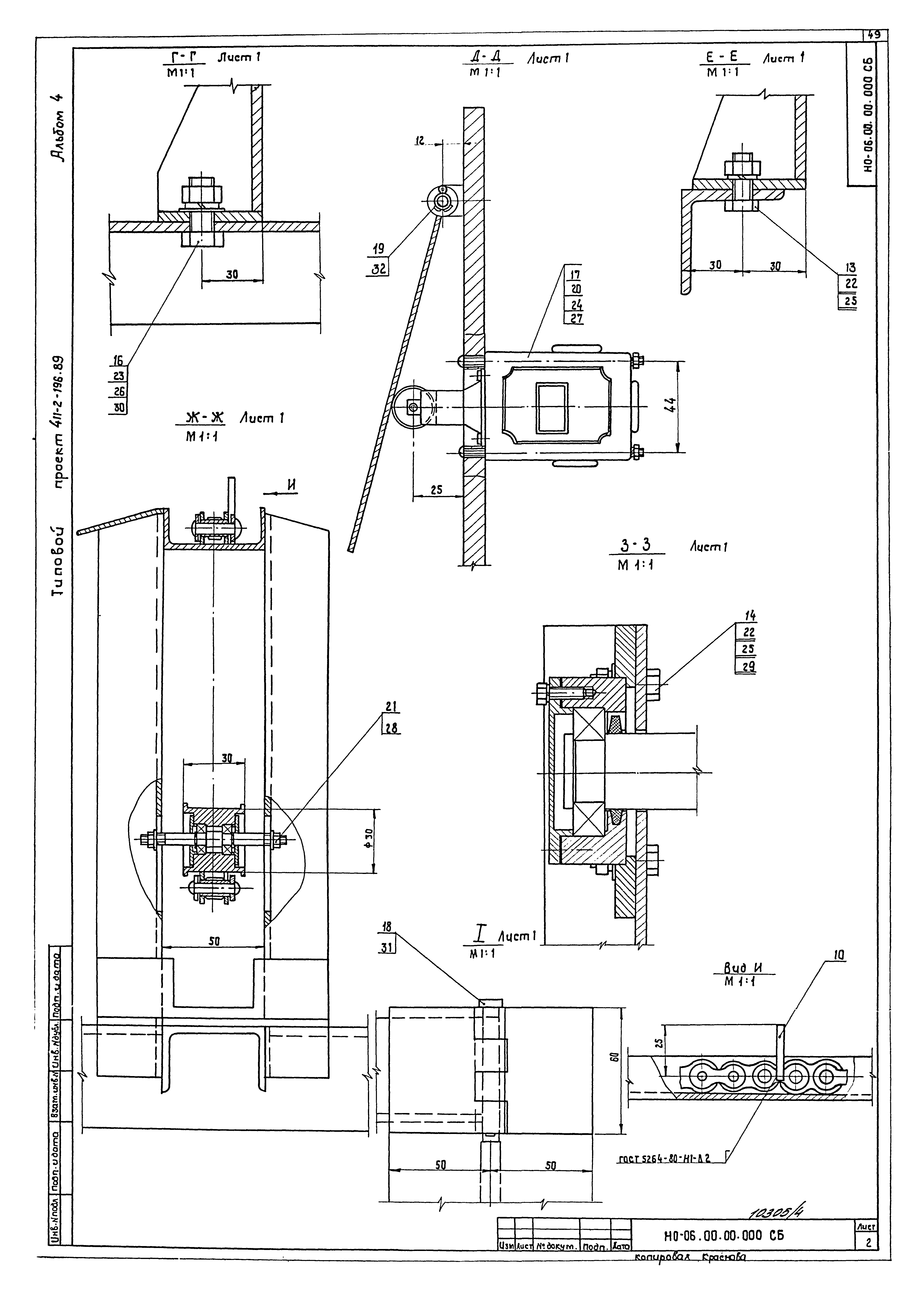
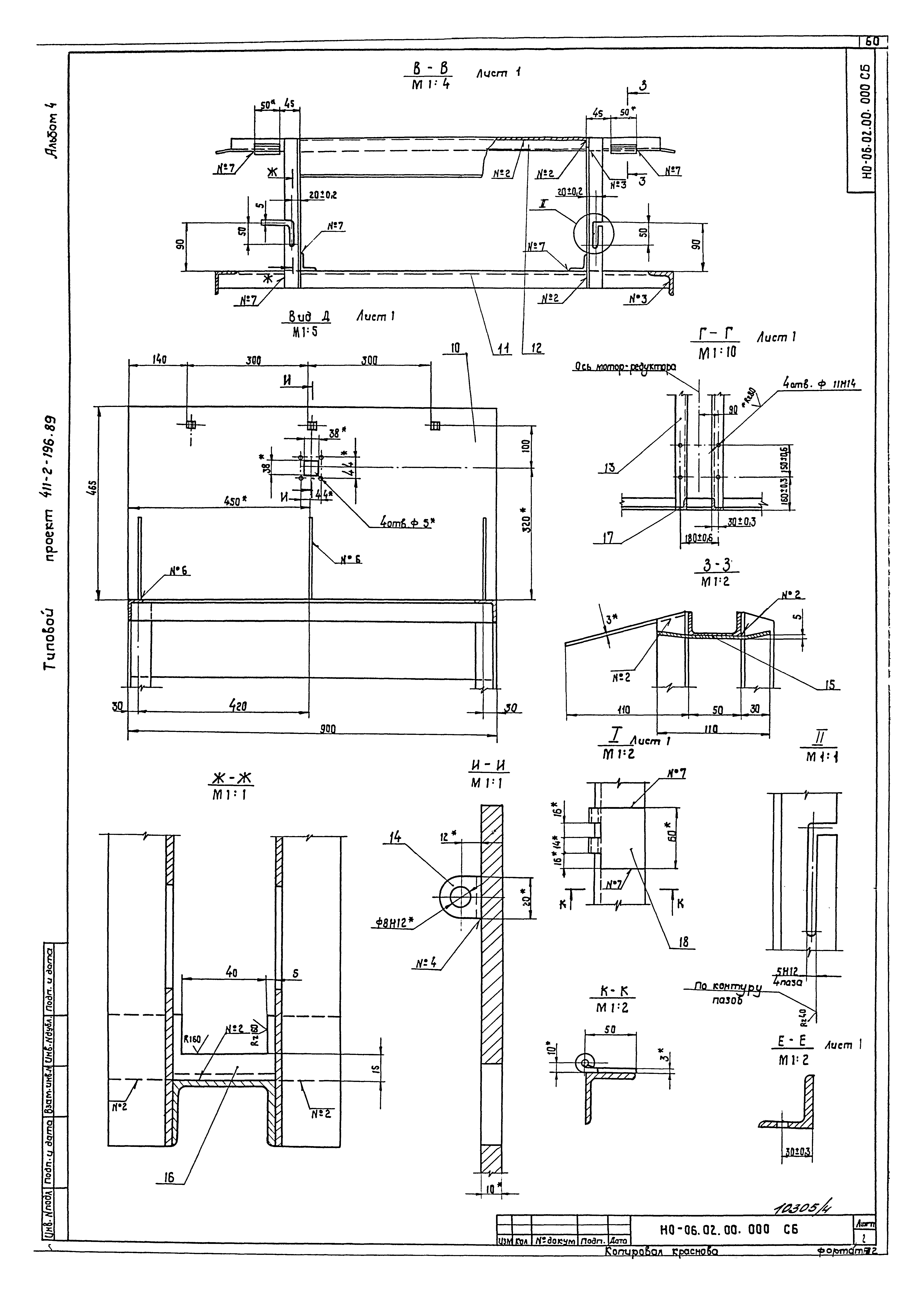
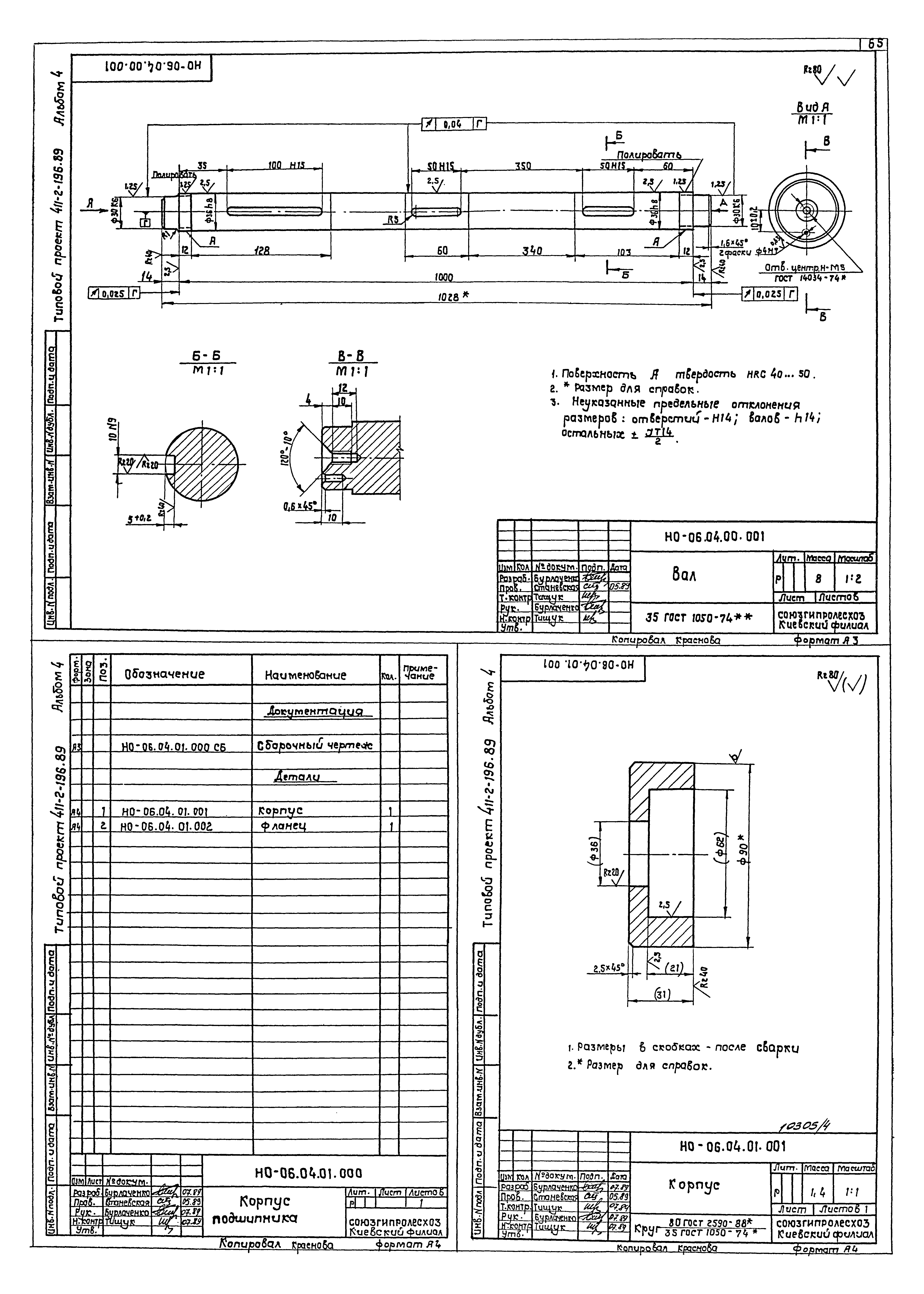
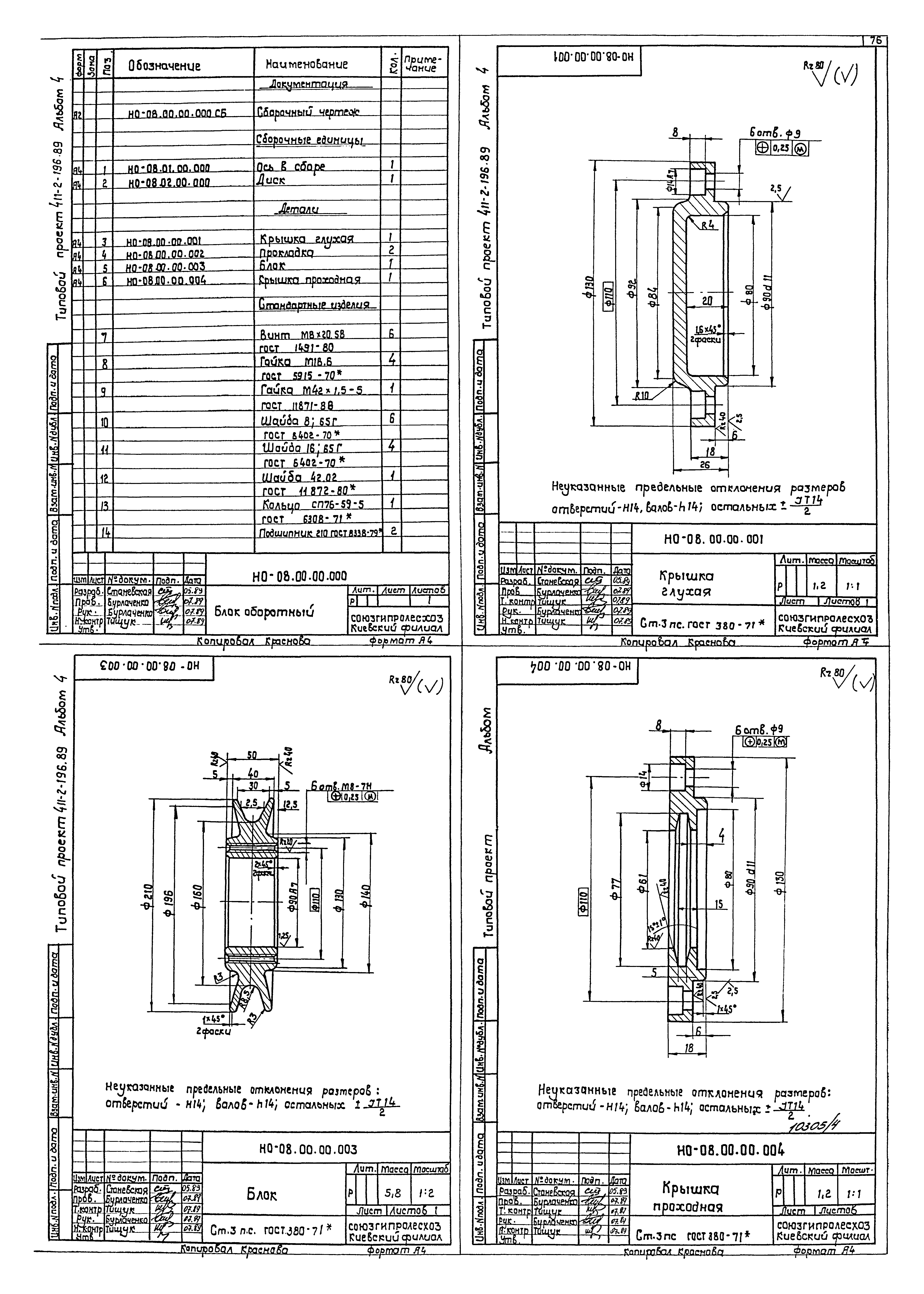
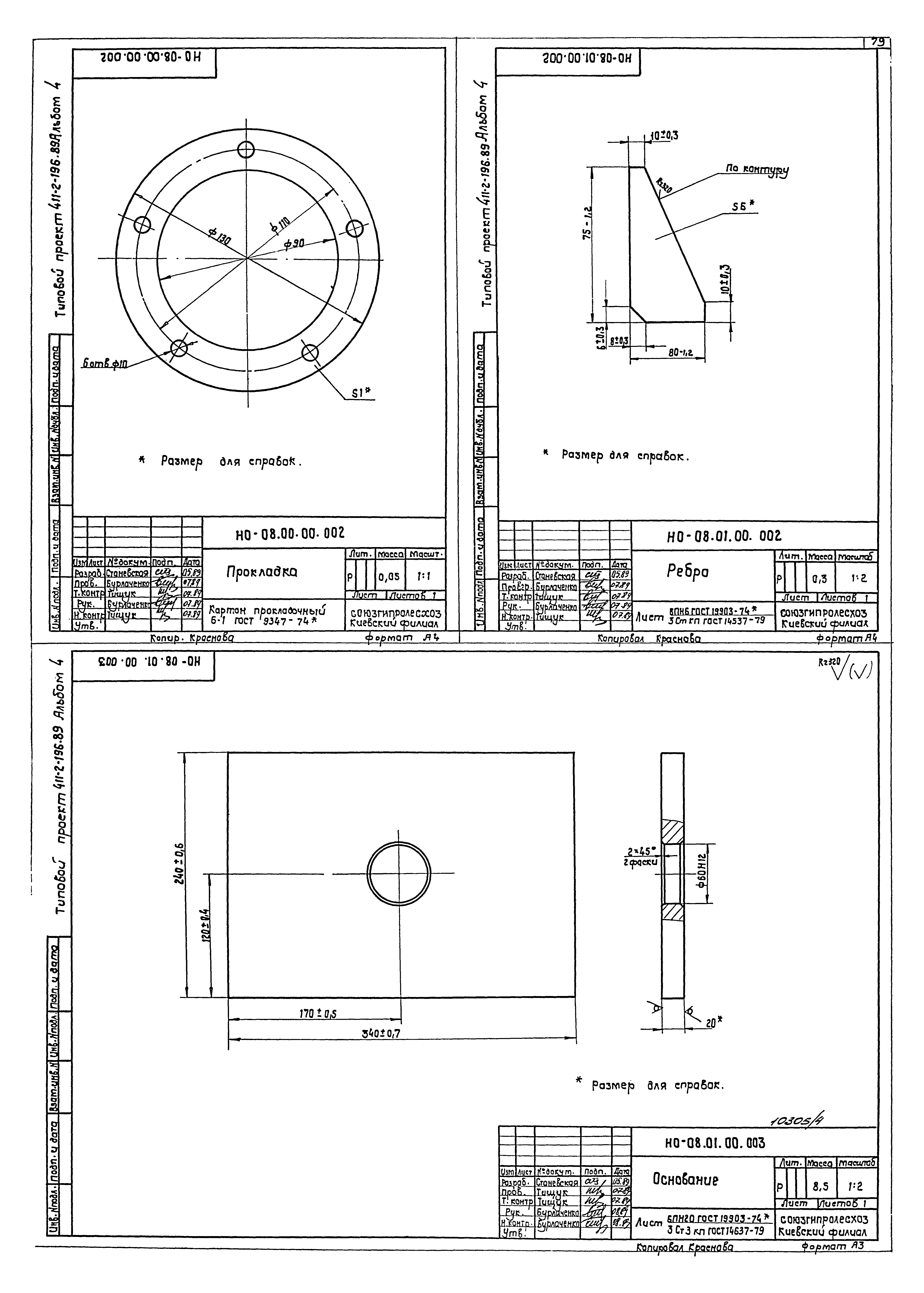
Скачать Типовой проект 411-2-196.89 Альбом 4. Часть 1. Нестандартизированное оборудованиеДата актуализации: 01.01.2021
|
| Обозначение: | Типовой проект 411-2-196.89 |
| Обозначение англ: | 411-2-196.89 |
| Статус: | не определен законодательством |
| Название рус.: | Альбом 4. Часть 1. Нестандартизированное оборудование |
| Дата добавления в базу: | 01.02.2017 |
| Дата актуализации: | 01.01.2021 |
| Дата введения: | 21.11.1989 |
| Дата окончания срока действия: | 30.06.2003 |
| Разработан: | Союзгипролесхоз |
| Утверждён: | 17.11.1989 Госкомлес СССР (USSR Goskomles 21) |
| Издан: | ЦИТП Госстроя СССР (CITP, Gosstroy (USSR) 1990 г. ) |
| Заменяет собой: |
|



























































































