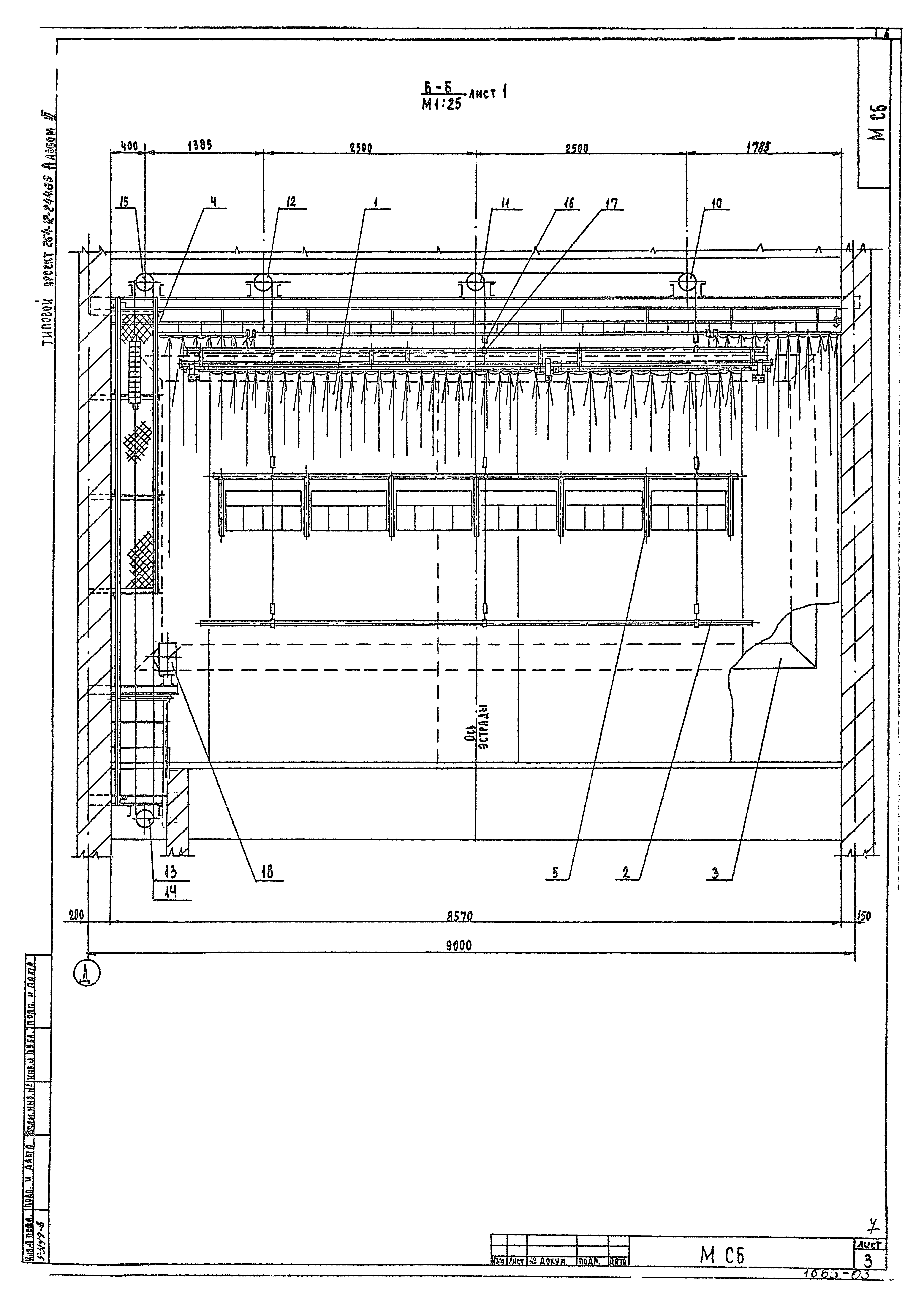
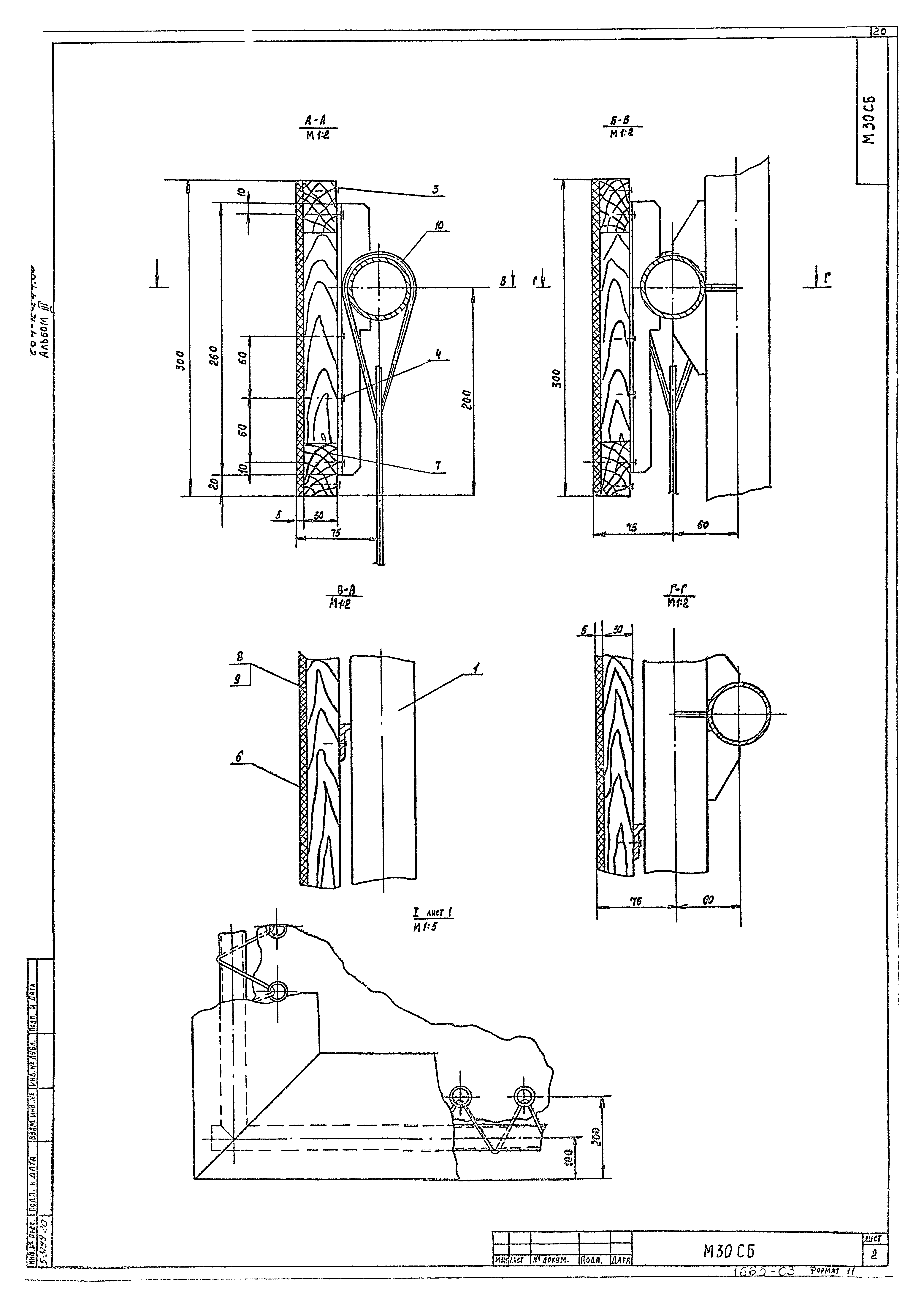
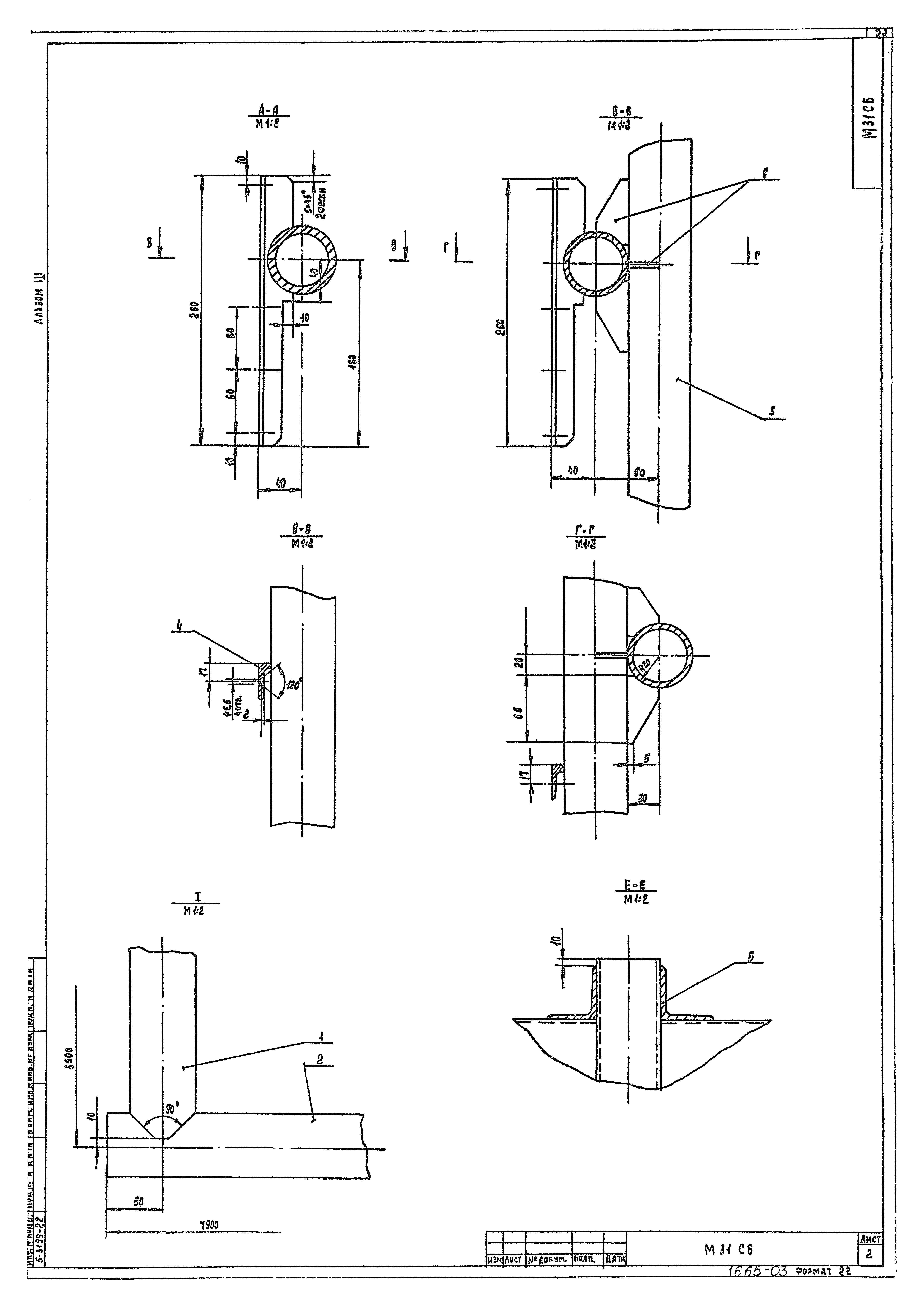
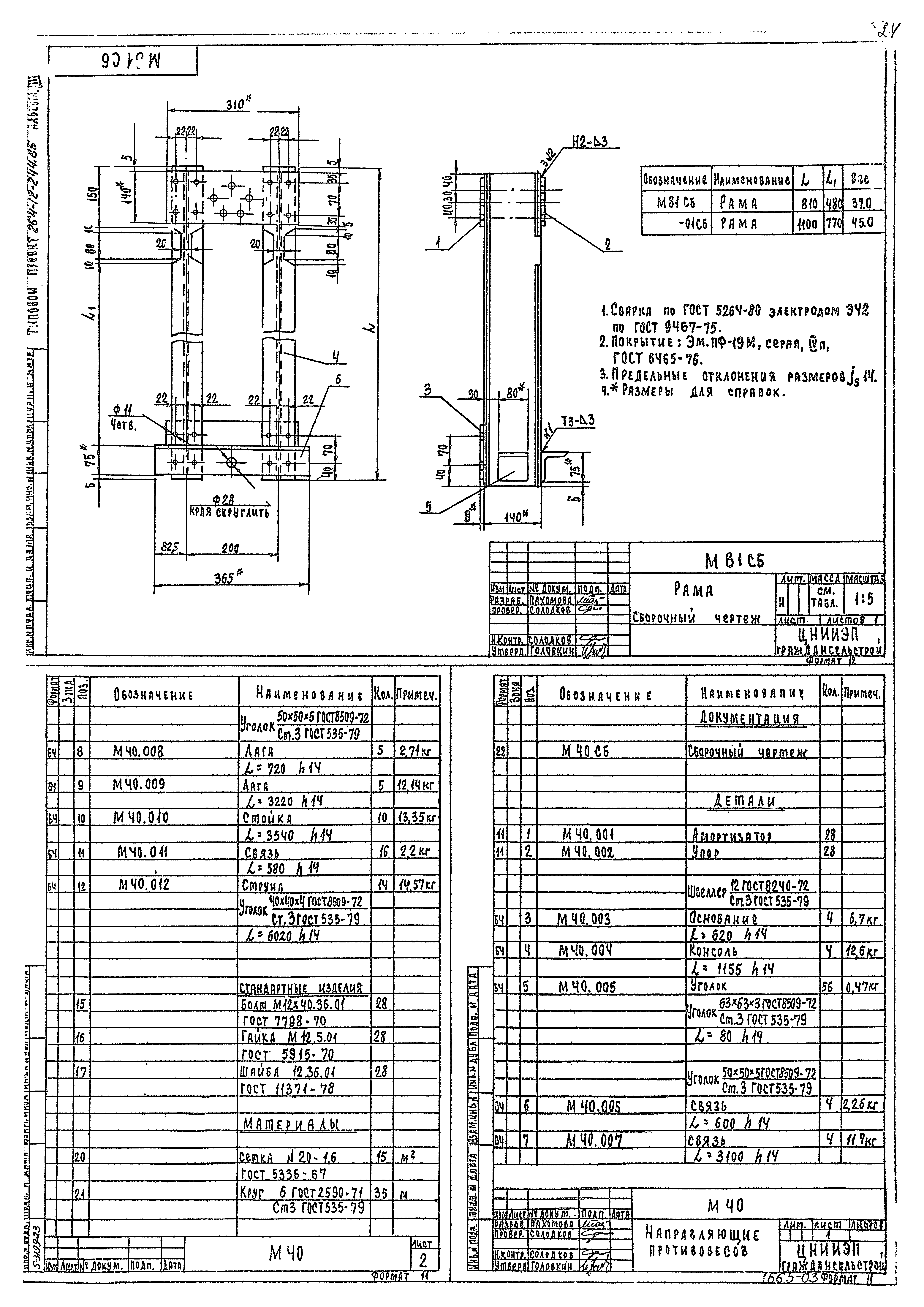
Скачать Типовой проект 264-12-244.85 Альбом III. Чертежи механического оборудования эстрадыДата актуализации: 01.01.2021 Типовой проект 264-12-244.85
Альбом III. Чертежи механического оборудования эстрады| Обозначение: | Типовой проект 264-12-244.85 | | Обозначение англ: | 264-12-244.85 | | Статус: | действует | | Название рус.: | Альбом III. Чертежи механического оборудования эстрады | | Дата добавления в базу: | 01.02.2017 | | Дата актуализации: | 01.01.2021 | | Дата введения: | 04.04.1985 | | Разработан: | ЦНИИЭП граждансельстрой
| | Утверждён: | 10.02.1984 Госгражданстрой (Gosgrazhdanstroy 43)
| | Издан: | ЦИТП Госстроя СССР (CITP, Gosstroy (USSR) 1988 г. )
|
                                          
|