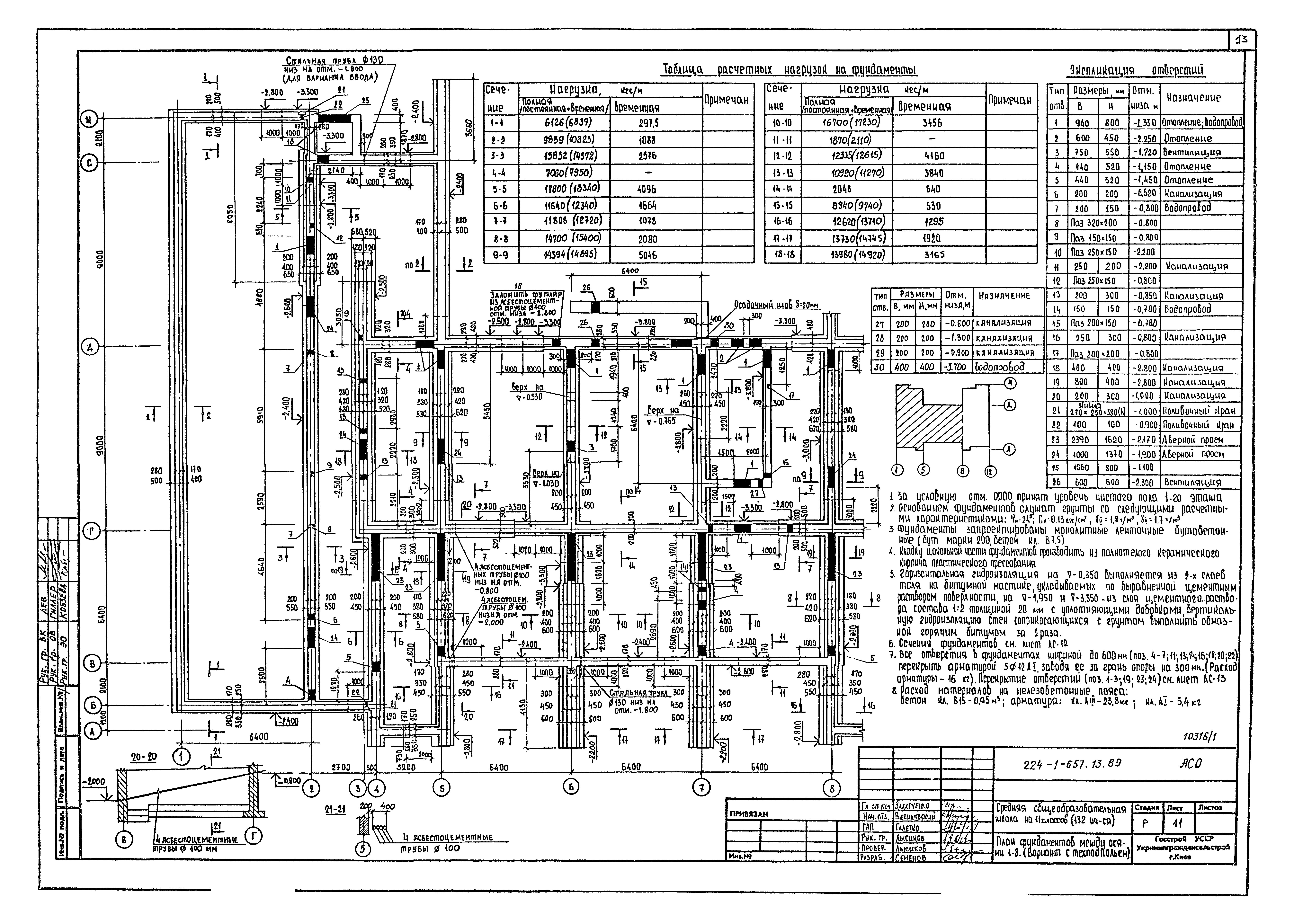
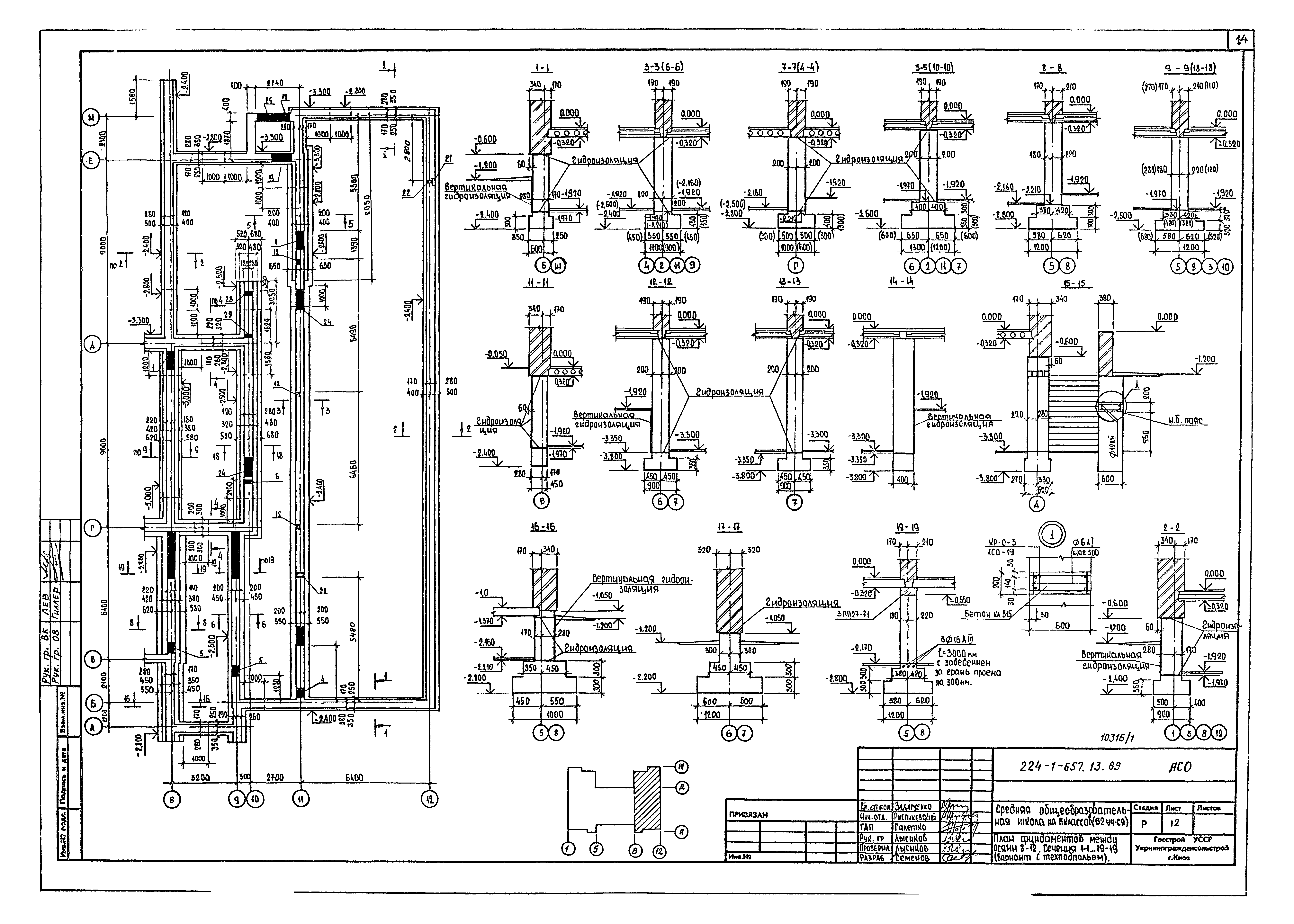
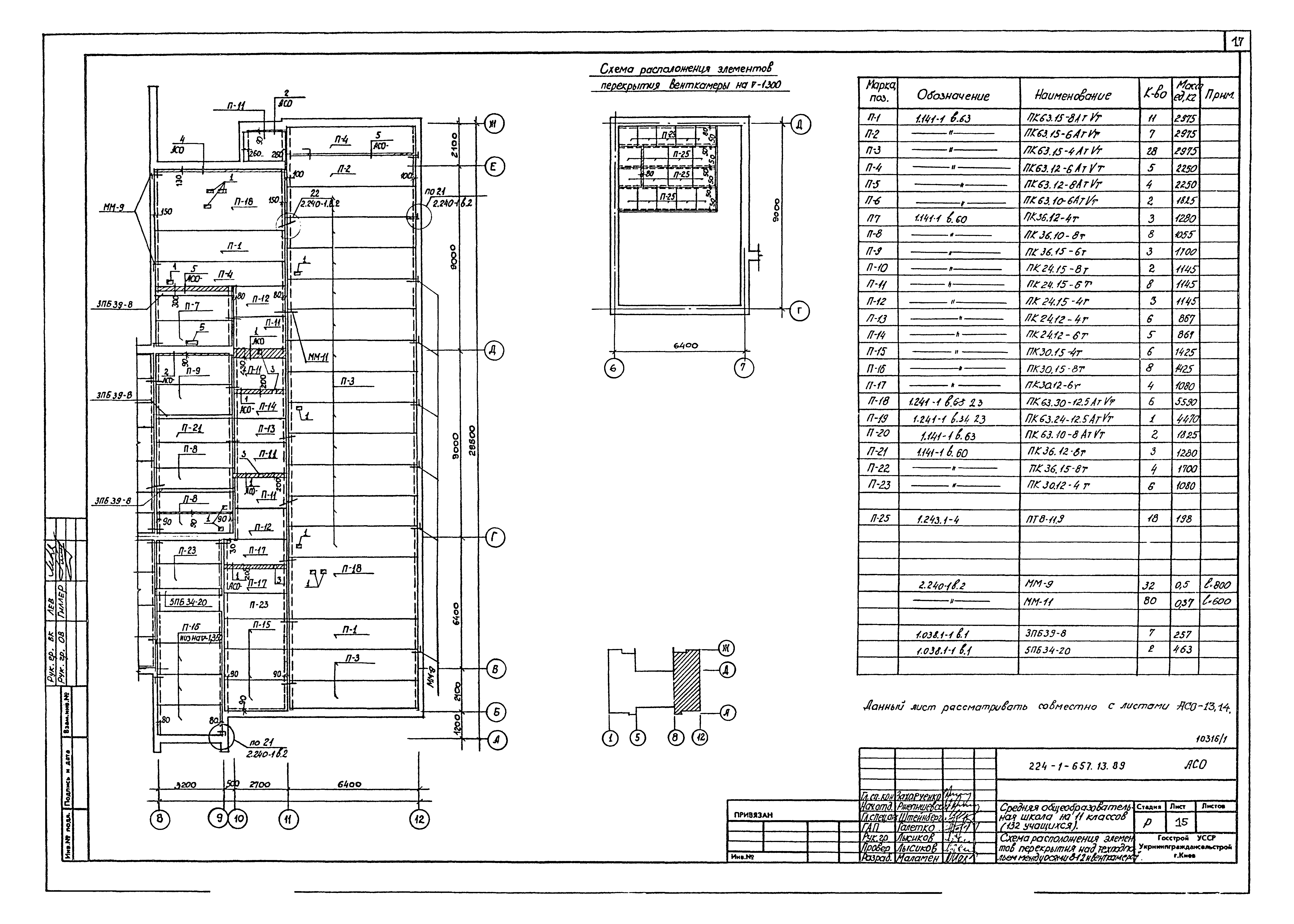
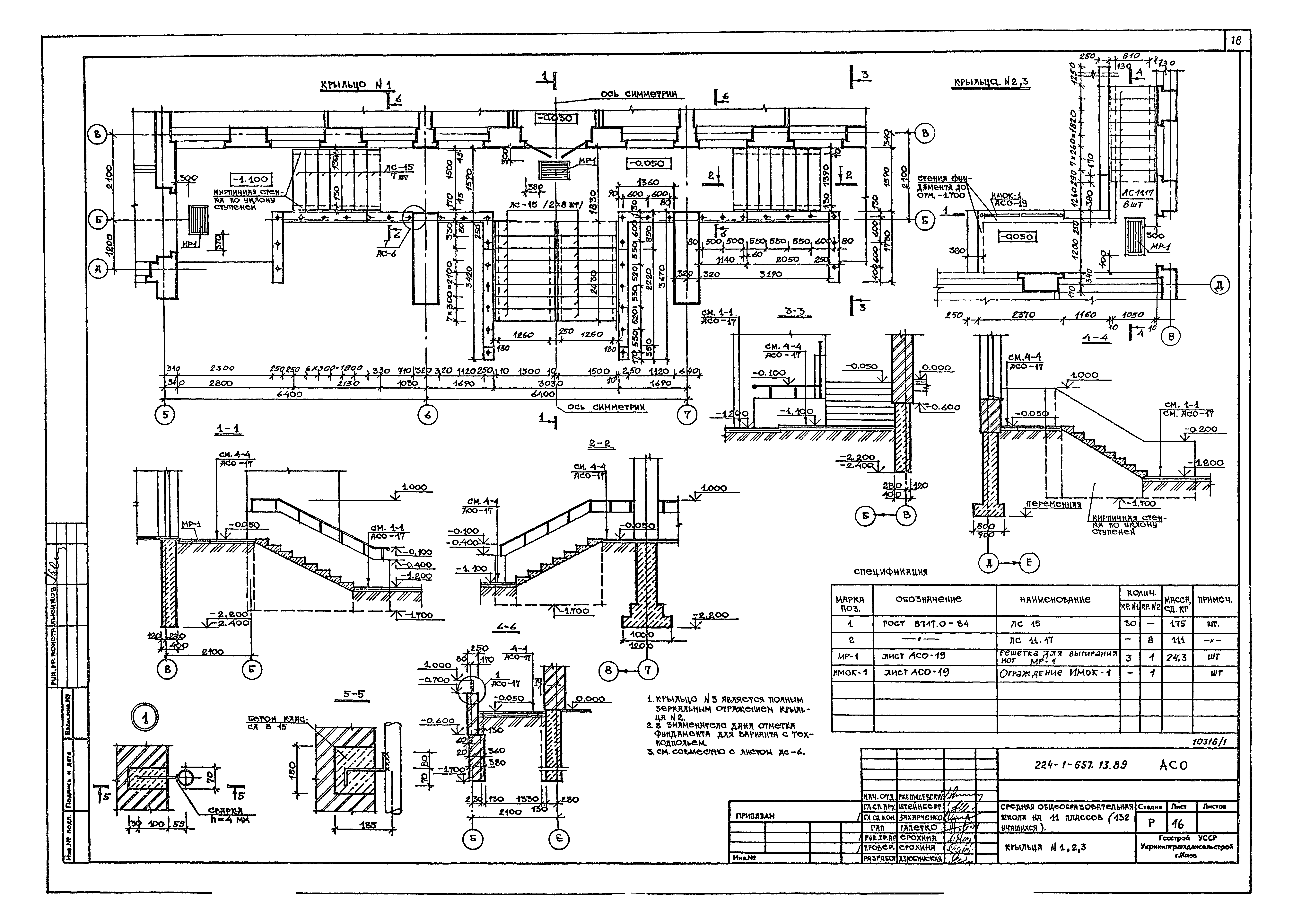
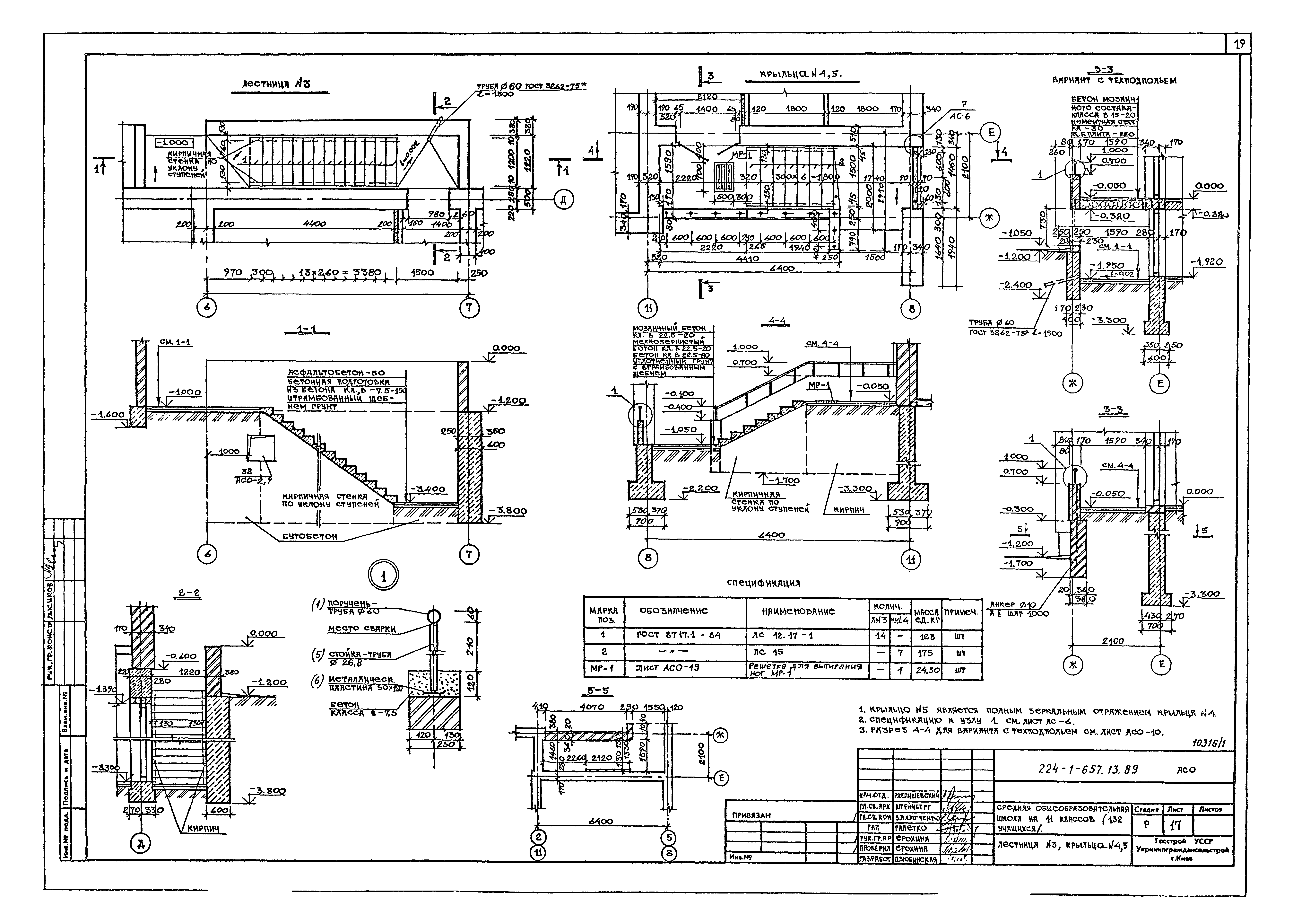
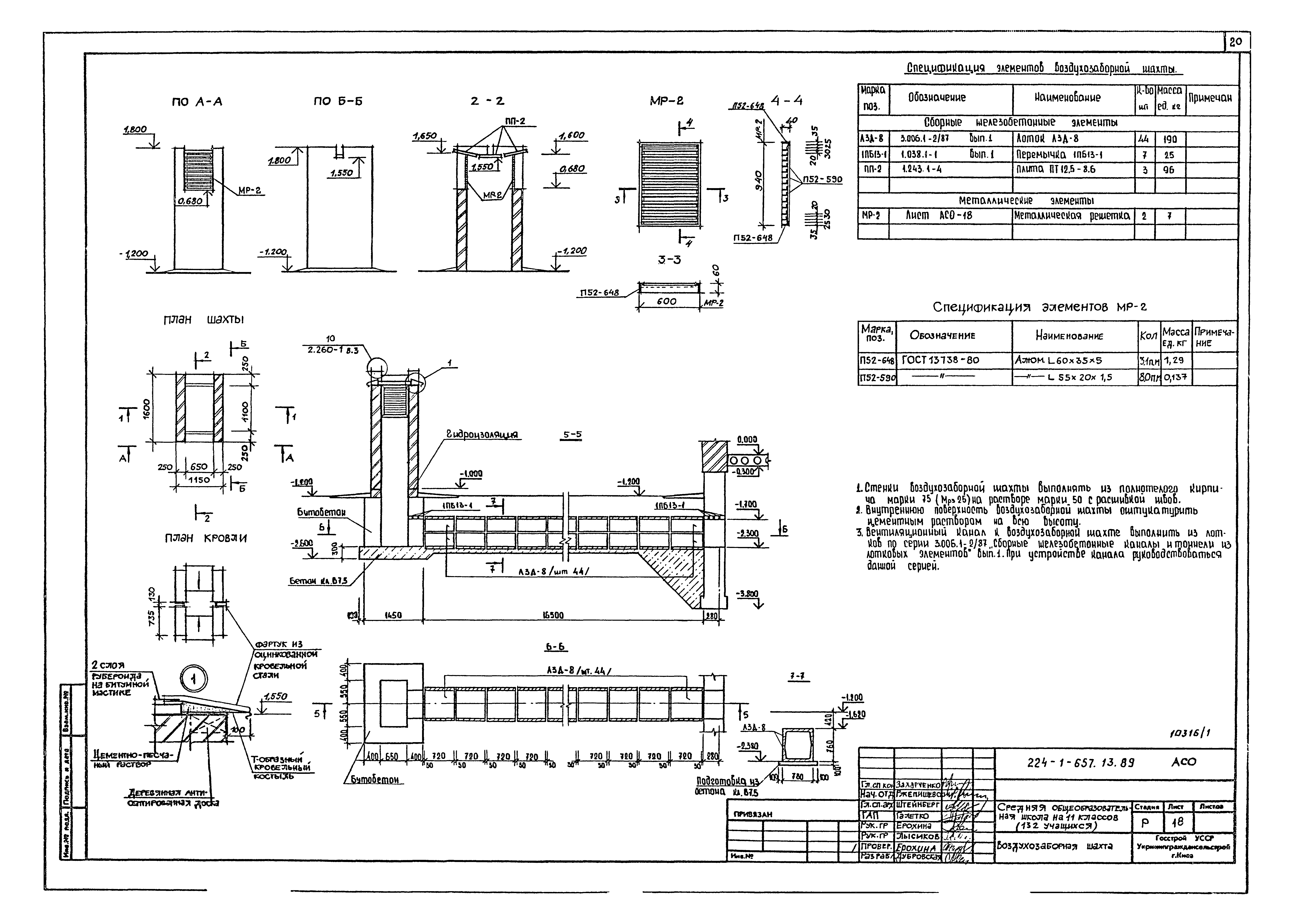
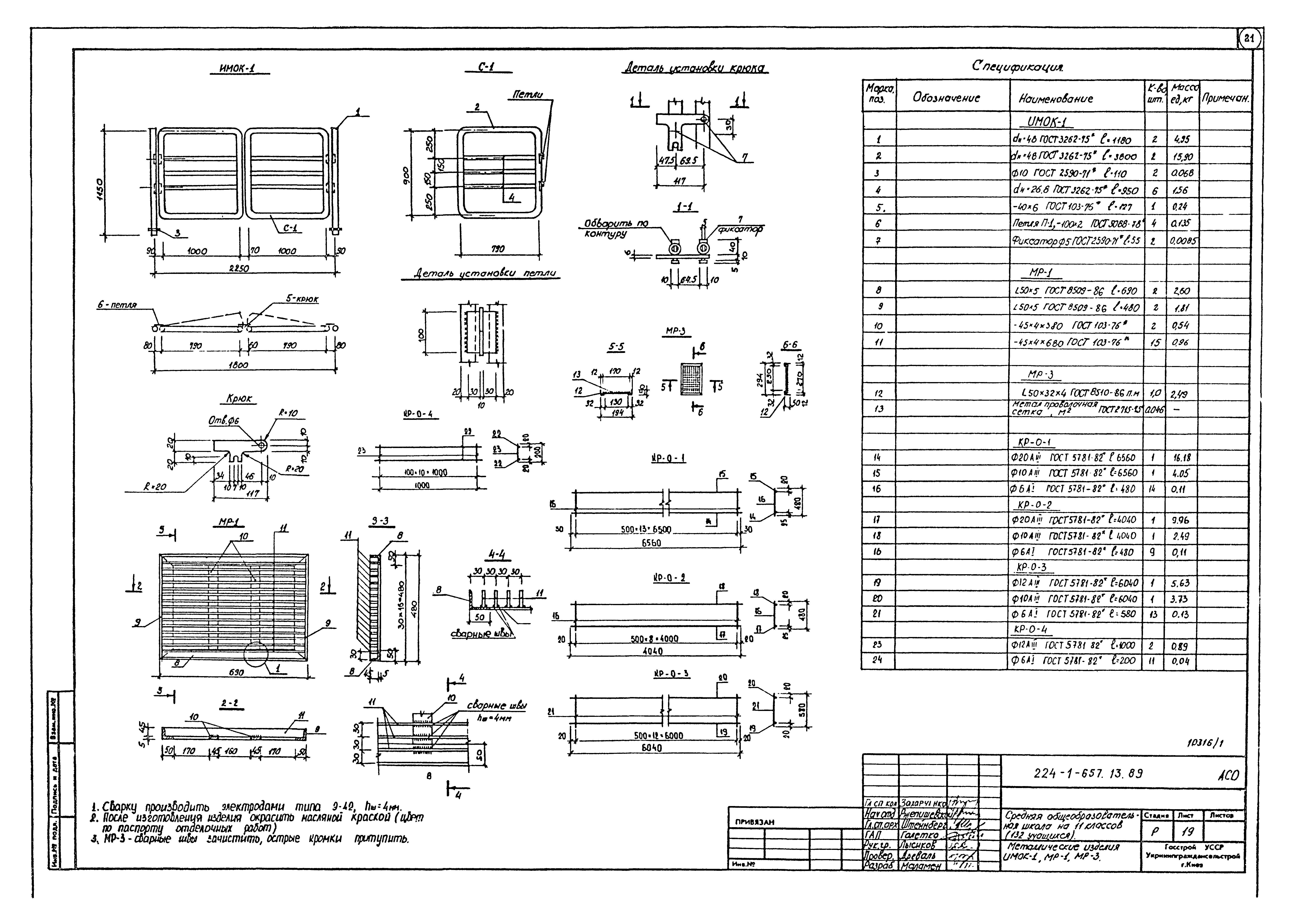
Скачать Типовой проект 224-1-657.13.89 Альбом 0. Архитектурно-строительные чертежи нулевого цикла работДата актуализации: 01.01.2021 Типовой проект 224-1-657.13.89
Альбом 0. Архитектурно-строительные чертежи нулевого цикла работ| Обозначение: | Типовой проект 224-1-657.13.89 | | Обозначение англ: | 224-1-657.13.89 | | Статус: | действует | | Название рус.: | Альбом 0. Архитектурно-строительные чертежи нулевого цикла работ | | Дата добавления в базу: | 01.02.2017 | | Дата актуализации: | 01.01.2021 | | Дата введения: | 19.07.1989 | | Разработан: | УкрНИИПграждансельстроя
| | Утверждён: | 29.12.1987 Госстрой УССР (UkrSSR Gosstroy 151)
| | Издан: | ЦИТП Госстроя СССР (CITP, Gosstroy (USSR) 1990 г. )
|
                     
|