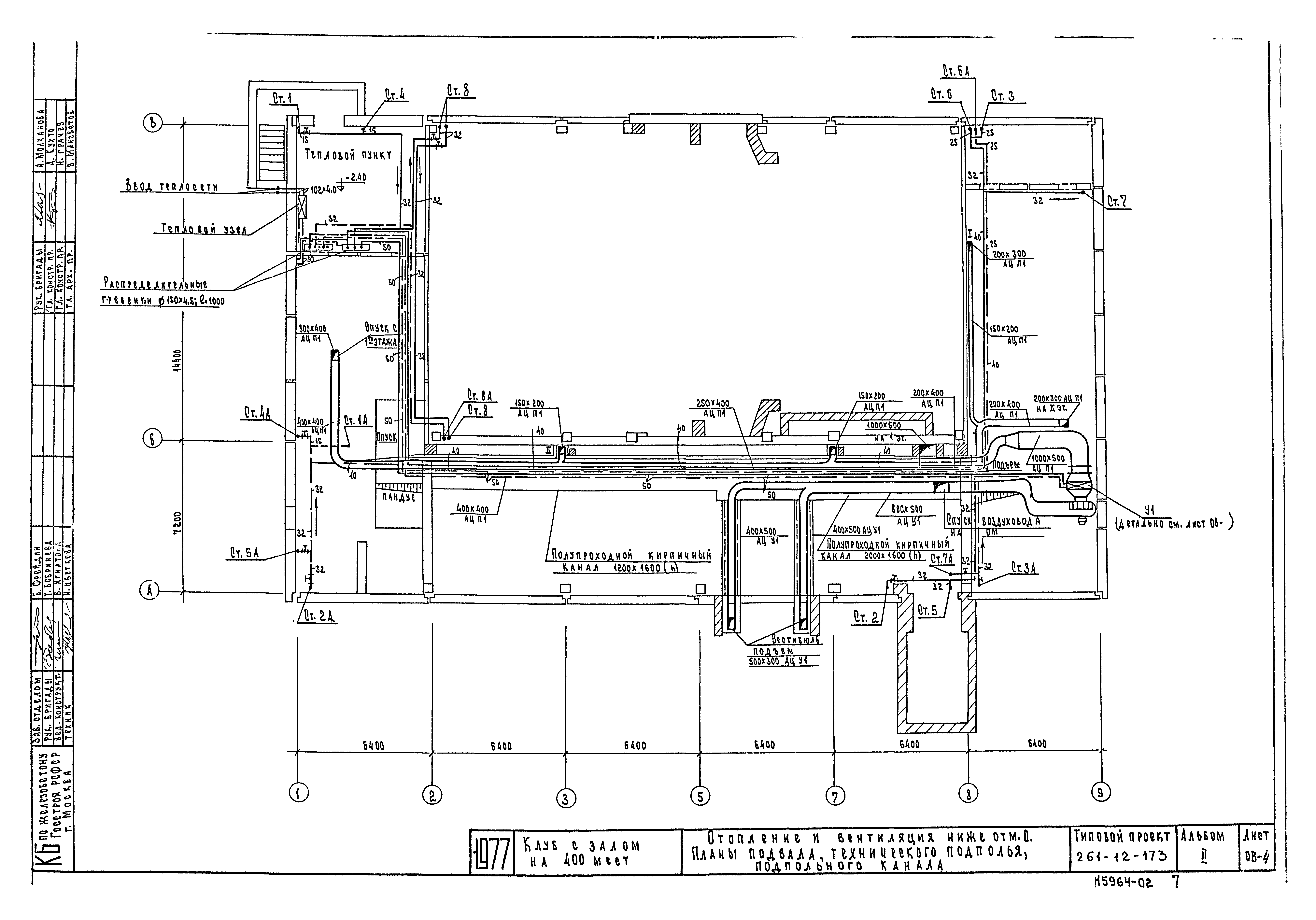
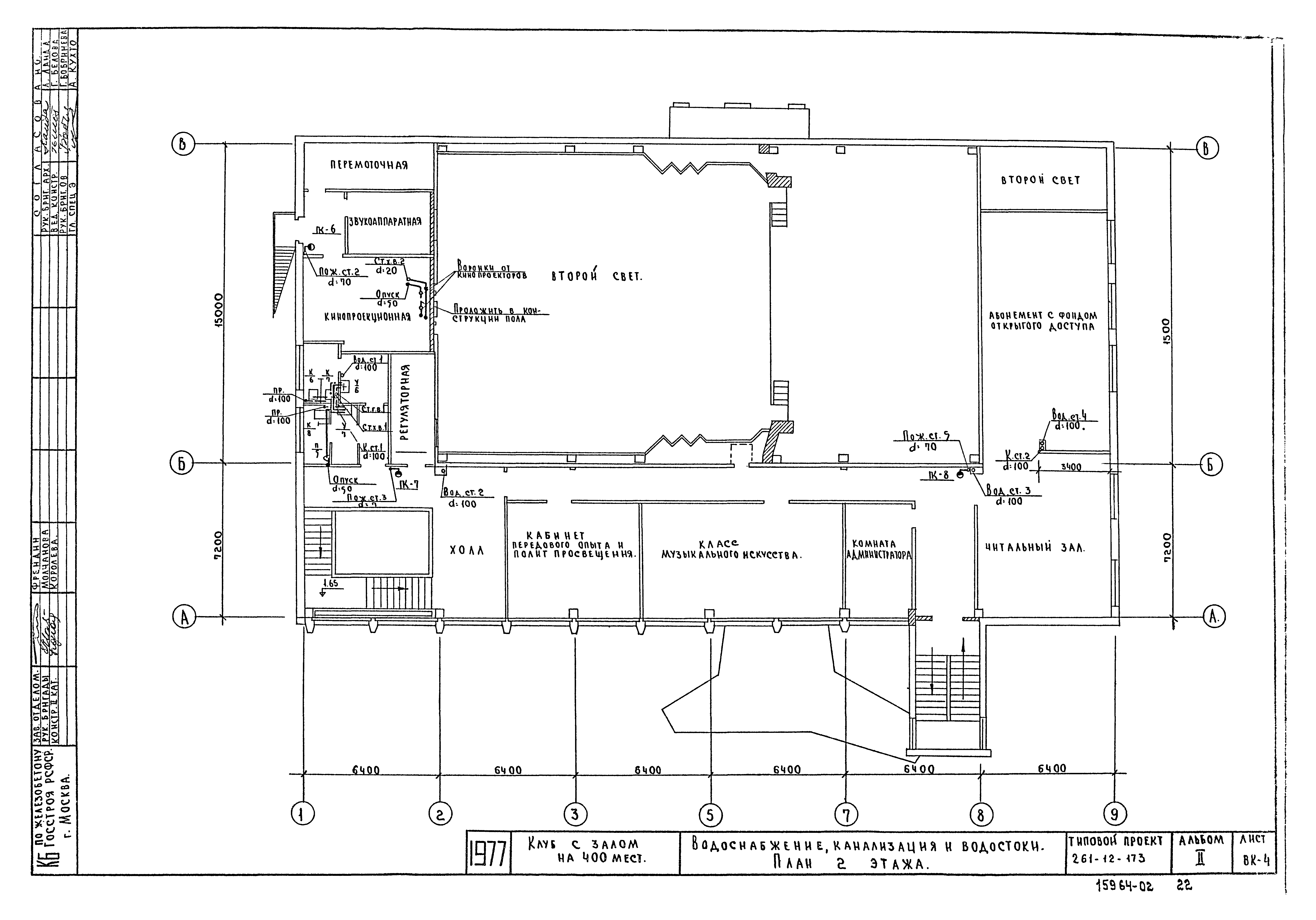
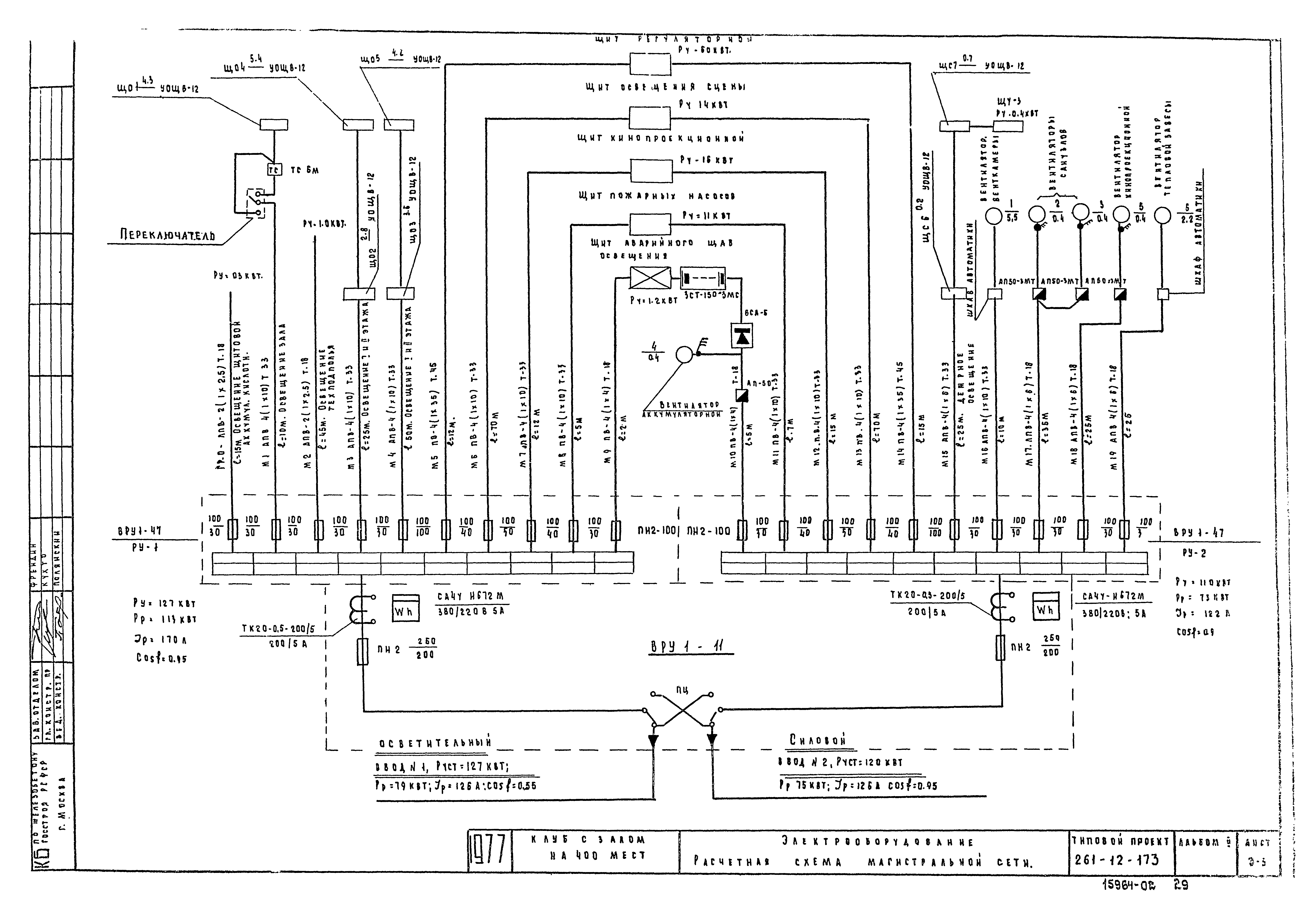
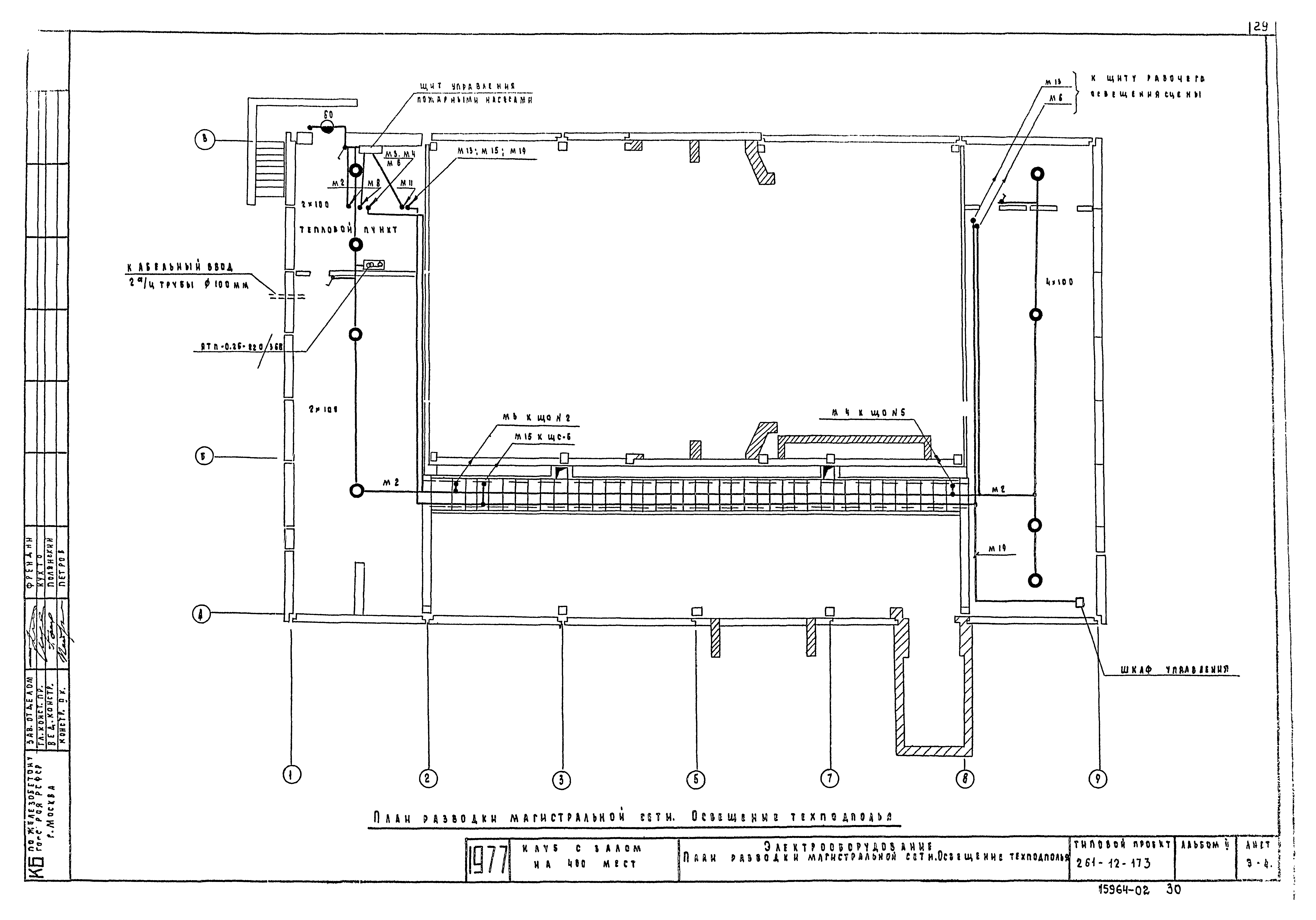
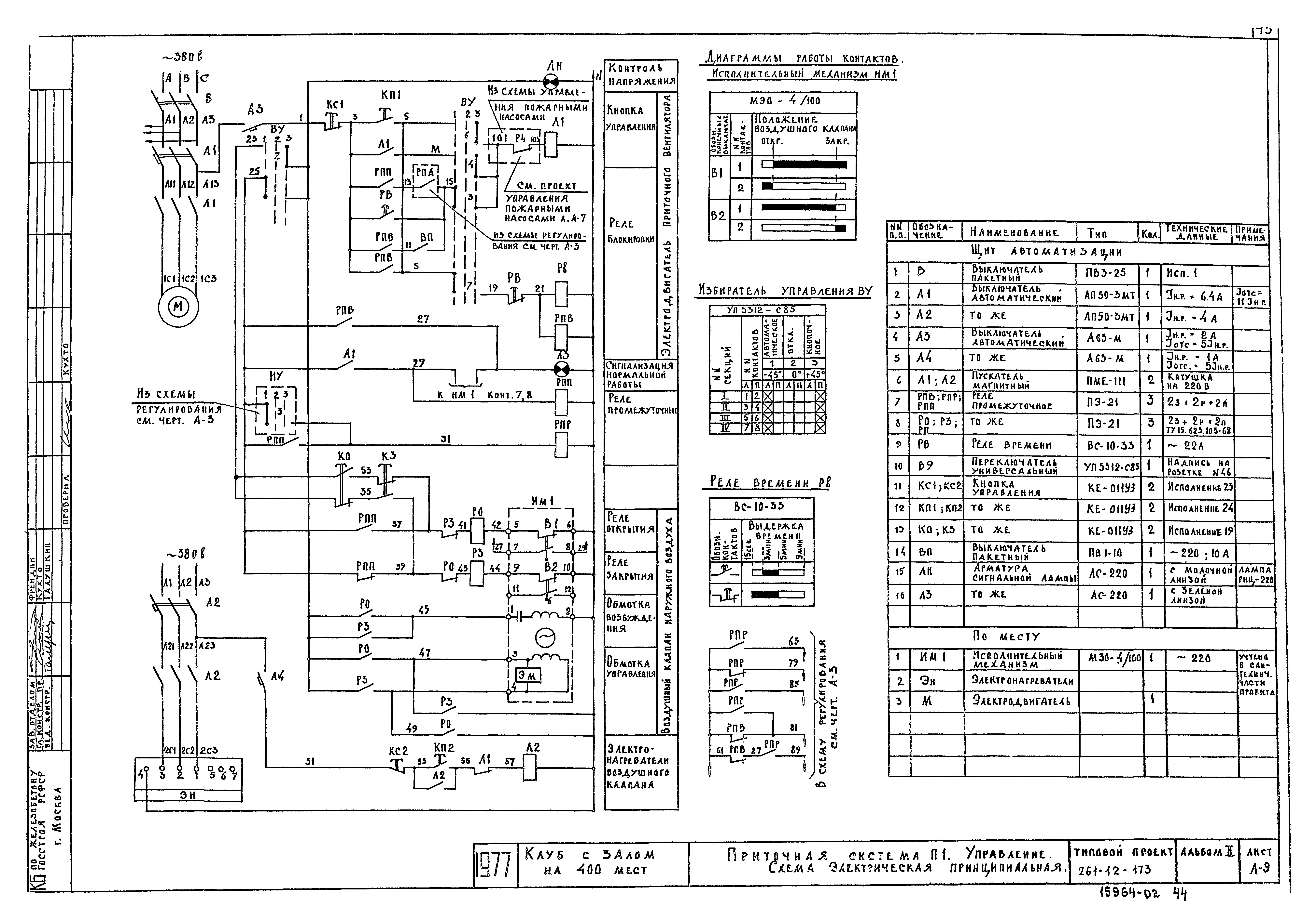
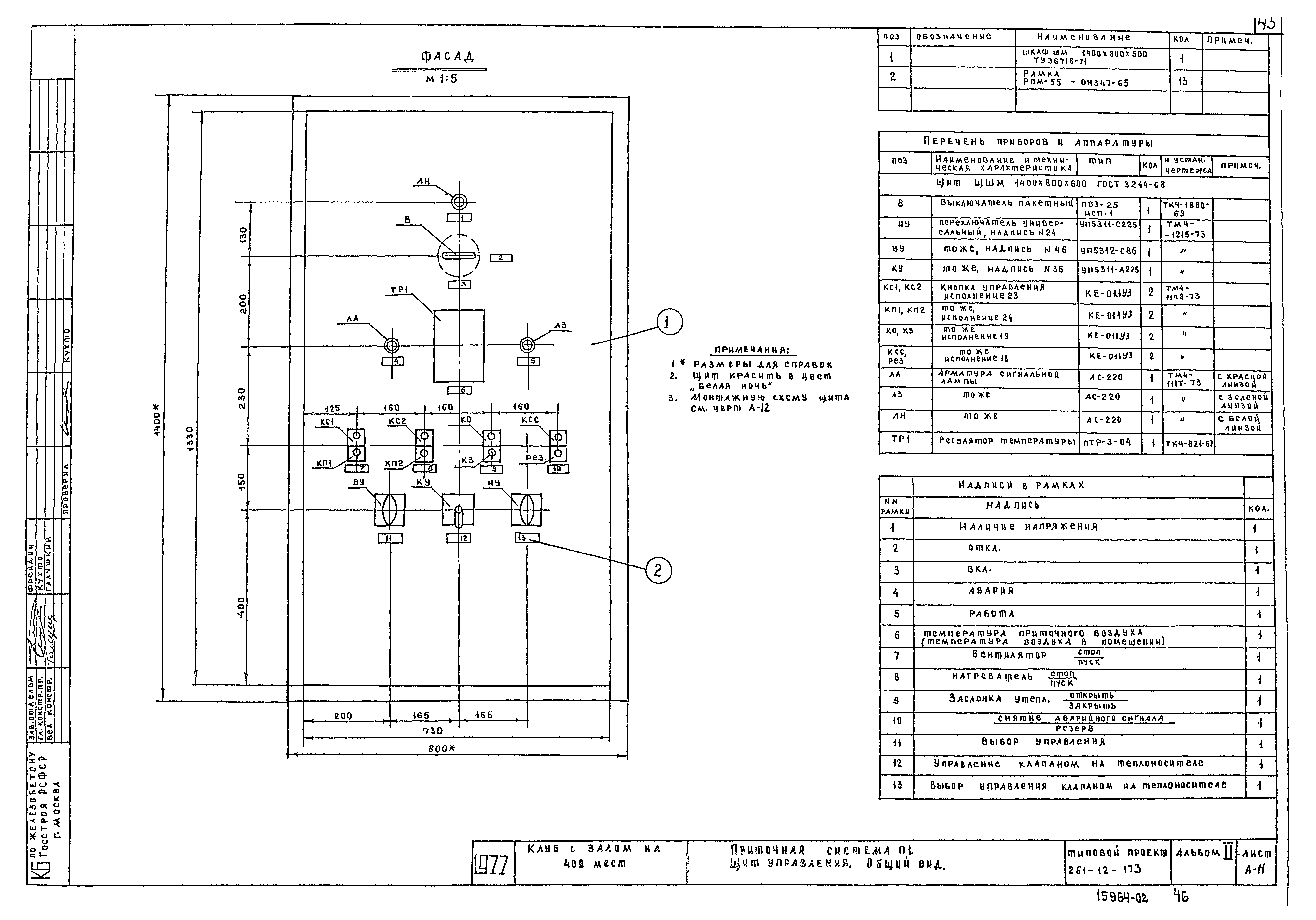
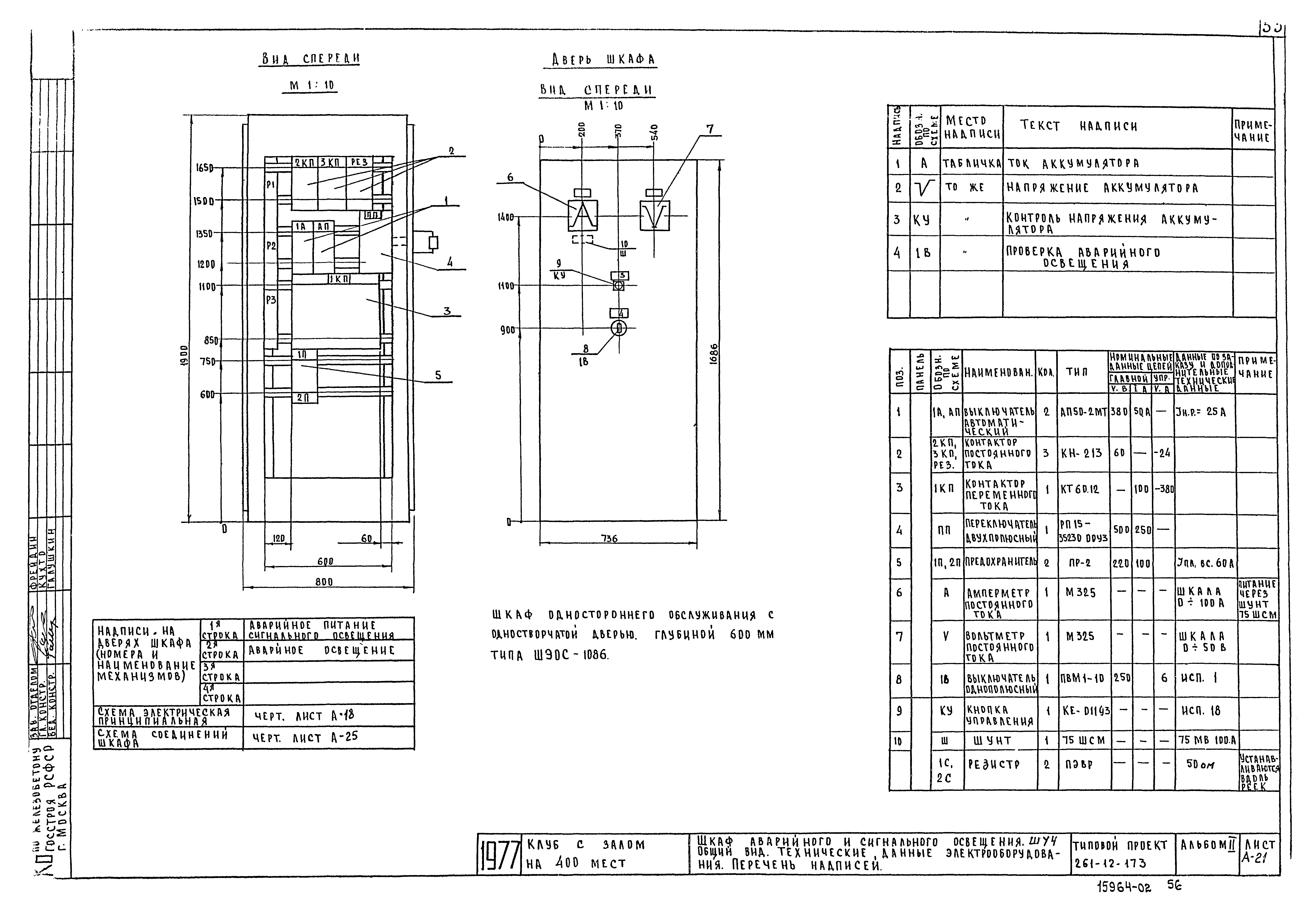
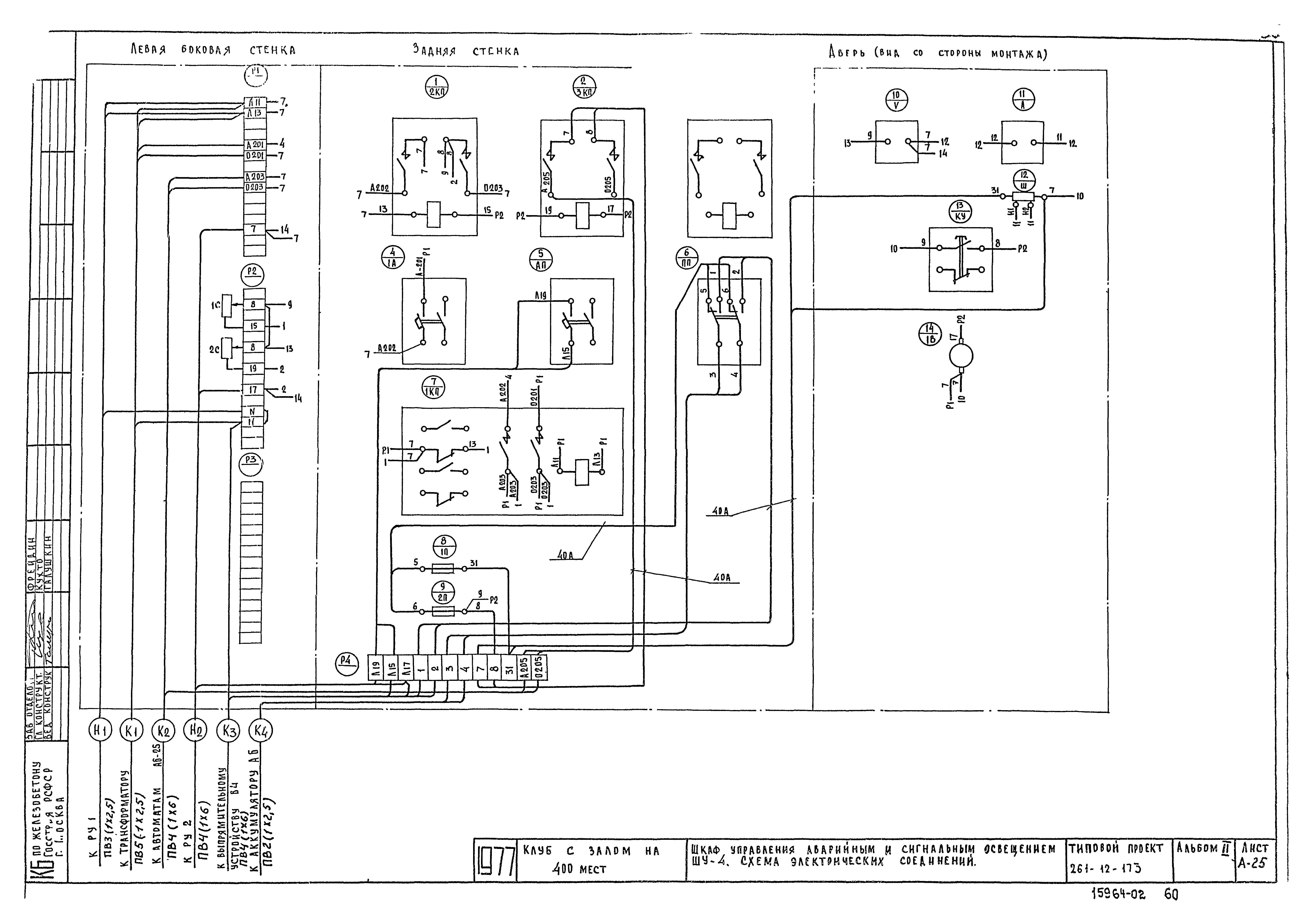
Скачать Типовой проект 261-12-173 Альбом II. Санитарно-технические и электротехнические чертежиДата актуализации: 01.01.2021 Типовой проект 261-12-173
Альбом II. Санитарно-технические и электротехнические чертежи| Обозначение: | Типовой проект 261-12-173 | | Обозначение англ: | 261-12-173 | | Статус: | действует | | Название рус.: | Альбом II. Санитарно-технические и электротехнические чертежи | | Дата добавления в базу: | 01.02.2017 | | Дата актуализации: | 01.01.2021 | | Дата введения: | 21.02.1979 | | Разработан: | КБ по железобетону Госстроя РСФСР
| | Утверждён: | 14.06.1978 Госстрой РСФСР (Russian Federation Gosstroy 36)
|
                                                                    
|