Скачать Типовые проектные решения Альбом. Приложение Б.1. Помещения общего пользования и квартиры типового этажаДата актуализации: 01.01.2021 Типовые проектные решения
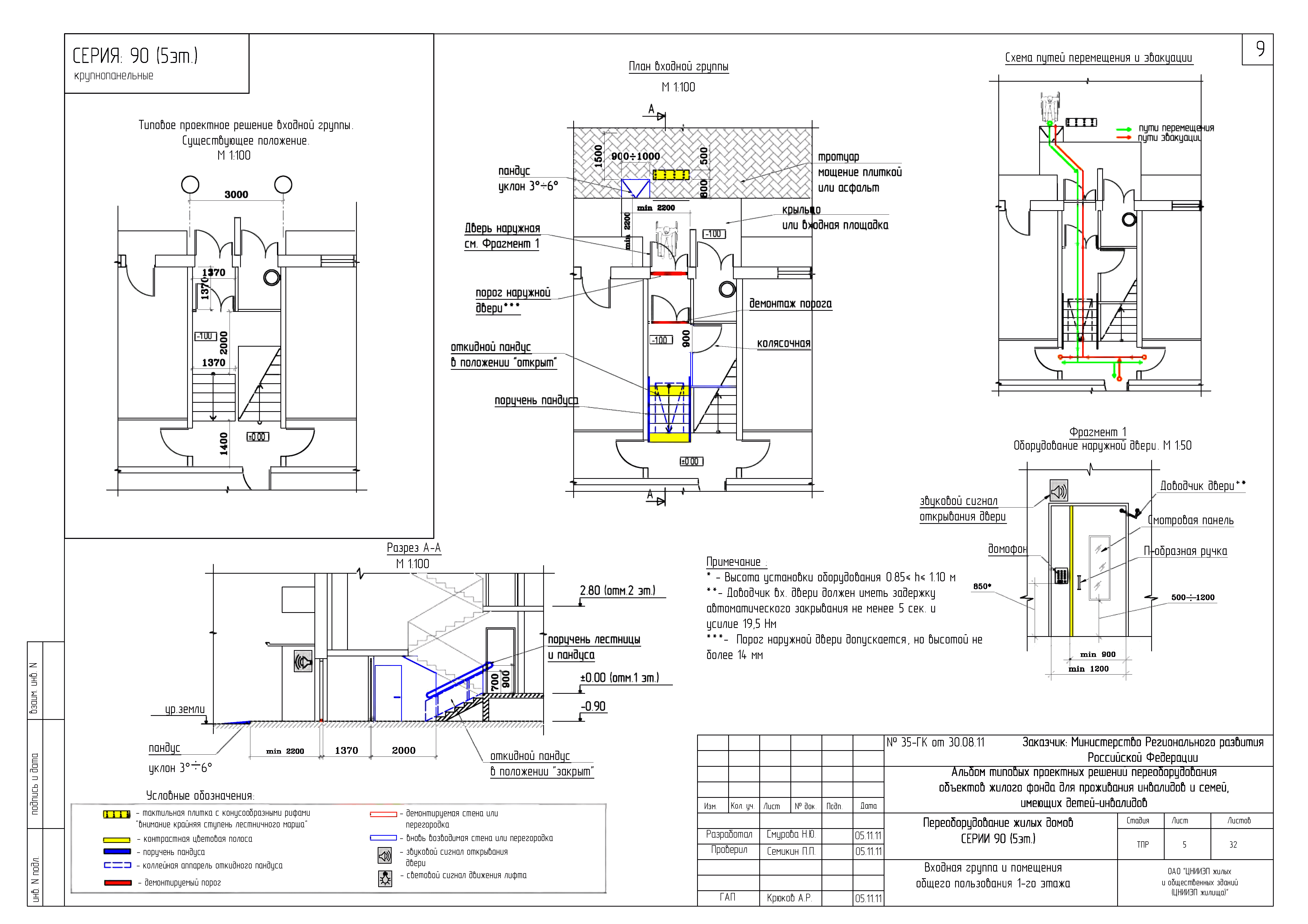
Альбом. Приложение Б.1. Помещения общего пользования и квартиры типового этажа| Обозначение: | Типовые проектные решения | | Статус: | справочные материалы, мп, тпр | | Название рус.: | Альбом. Приложение Б.1. Помещения общего пользования и квартиры типового этажа | | Дата добавления в базу: | 01.02.2017 | | Дата актуализации: | 01.01.2021 | | Дата введения: | 15.12.2011 | | Область применения: | Альбом содержит типовые проектные решения помещений квартир: жилых - общих комнат (гостиных) и спален; вспомогательных (подсобных) - прихожих, коридоров, встроенных шкафов, кладовых, кухонь, ванных, санузлов; летних - балконов, лоджий | | Разработан: | ЦНИИЭП жилища
| | Утверждён: | 15.12.2011 ЦНИИЭП жилища (TsNIIEPzhilishcha )
|
                                            
|