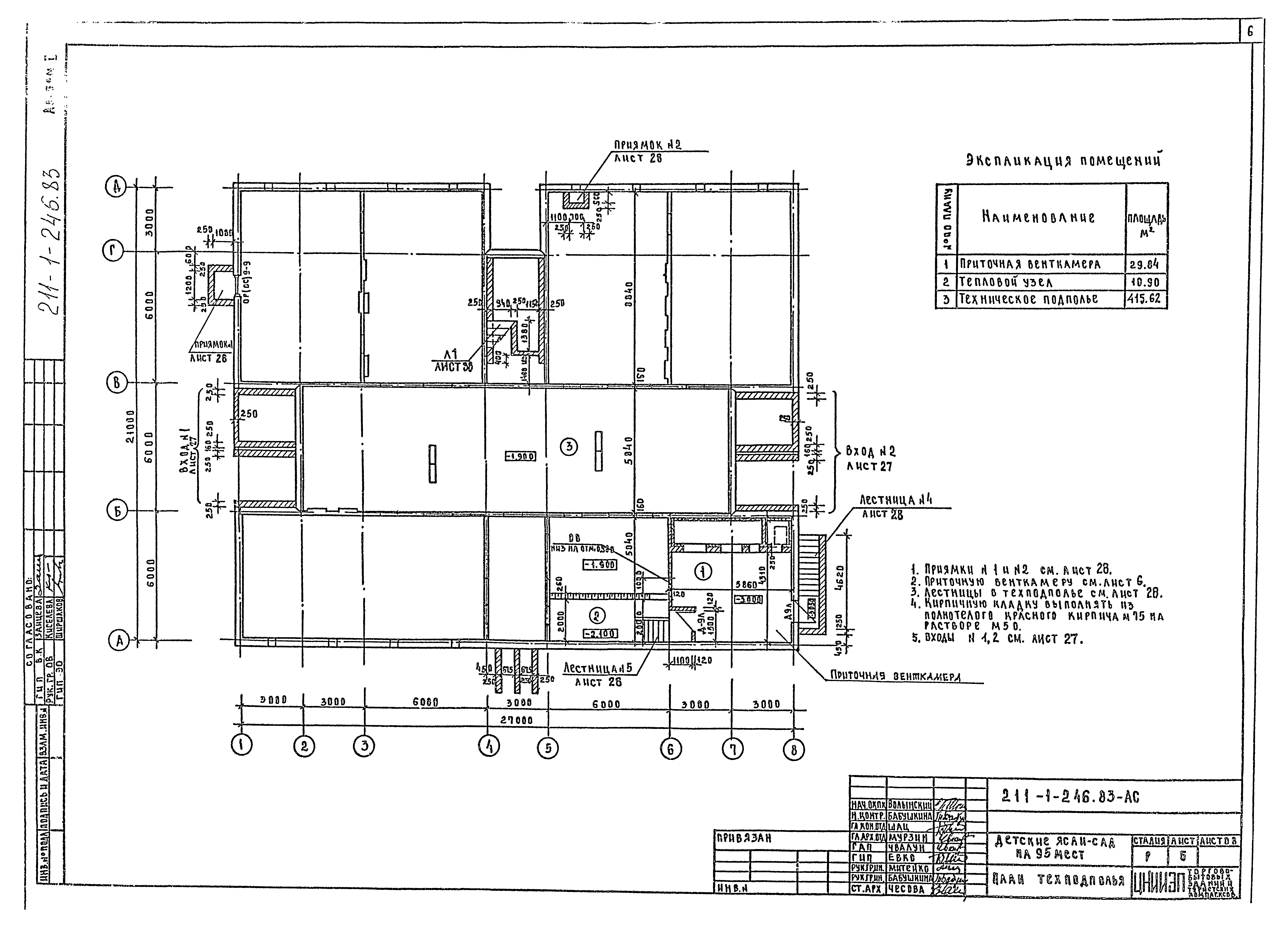
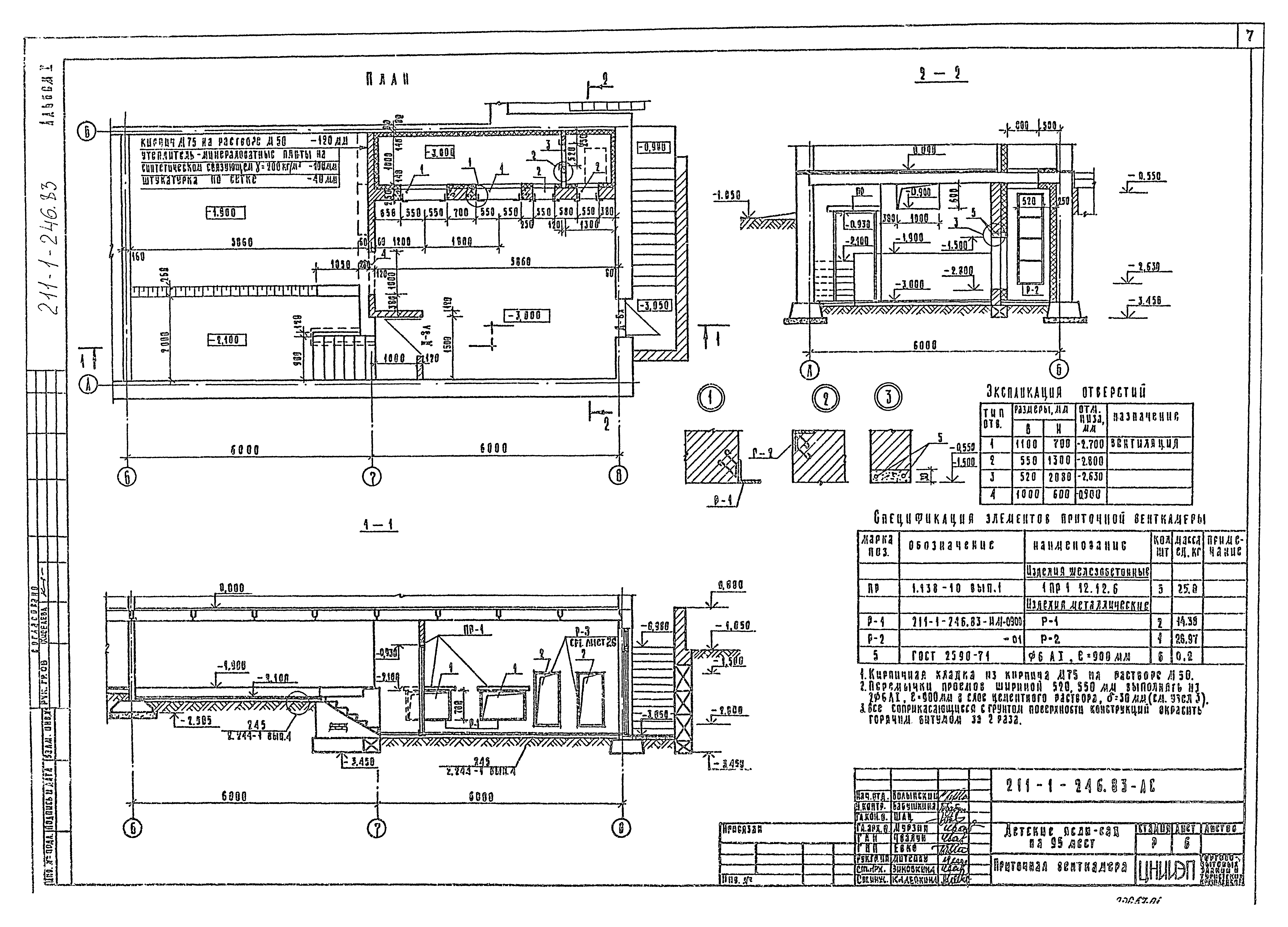
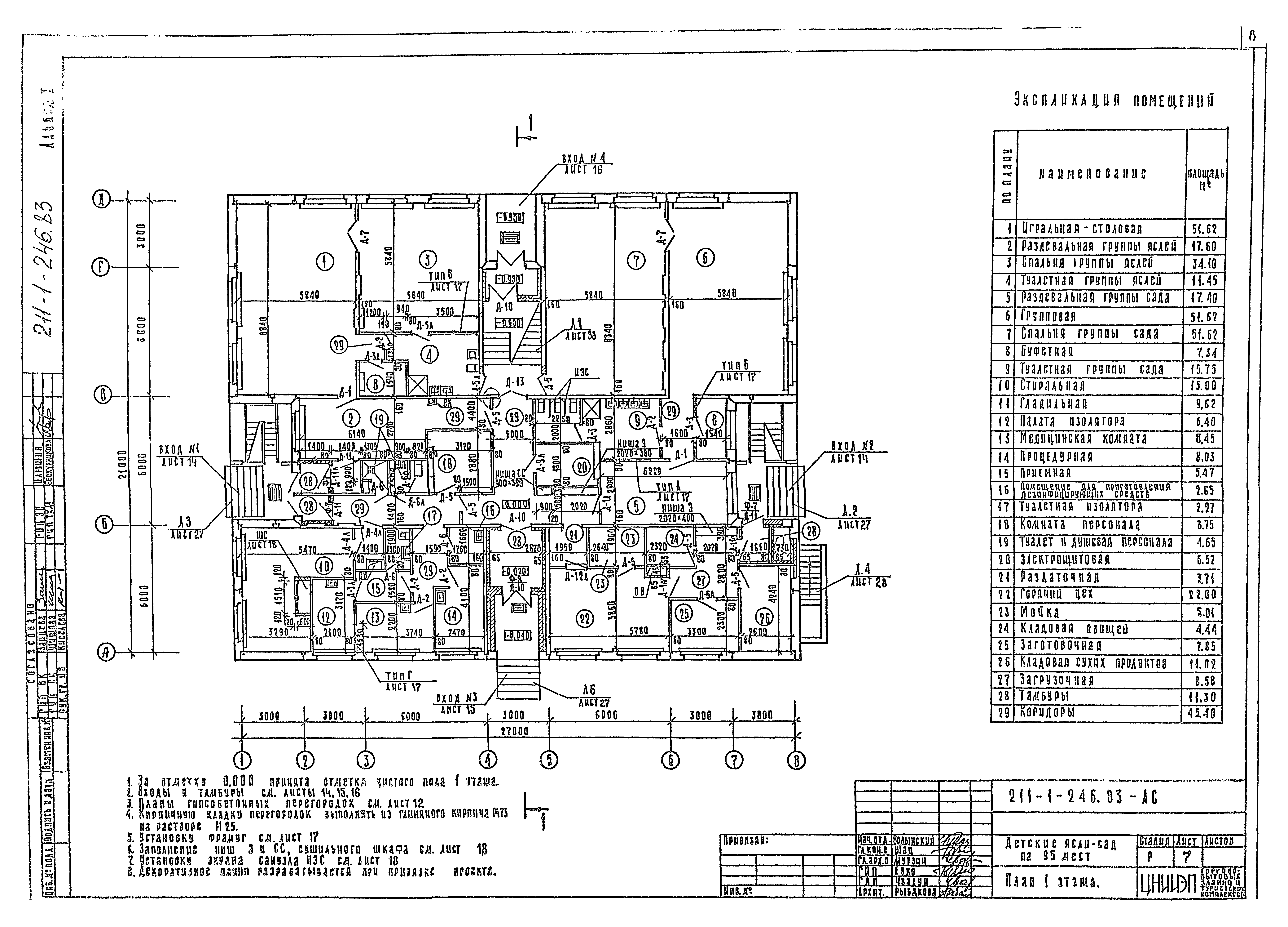
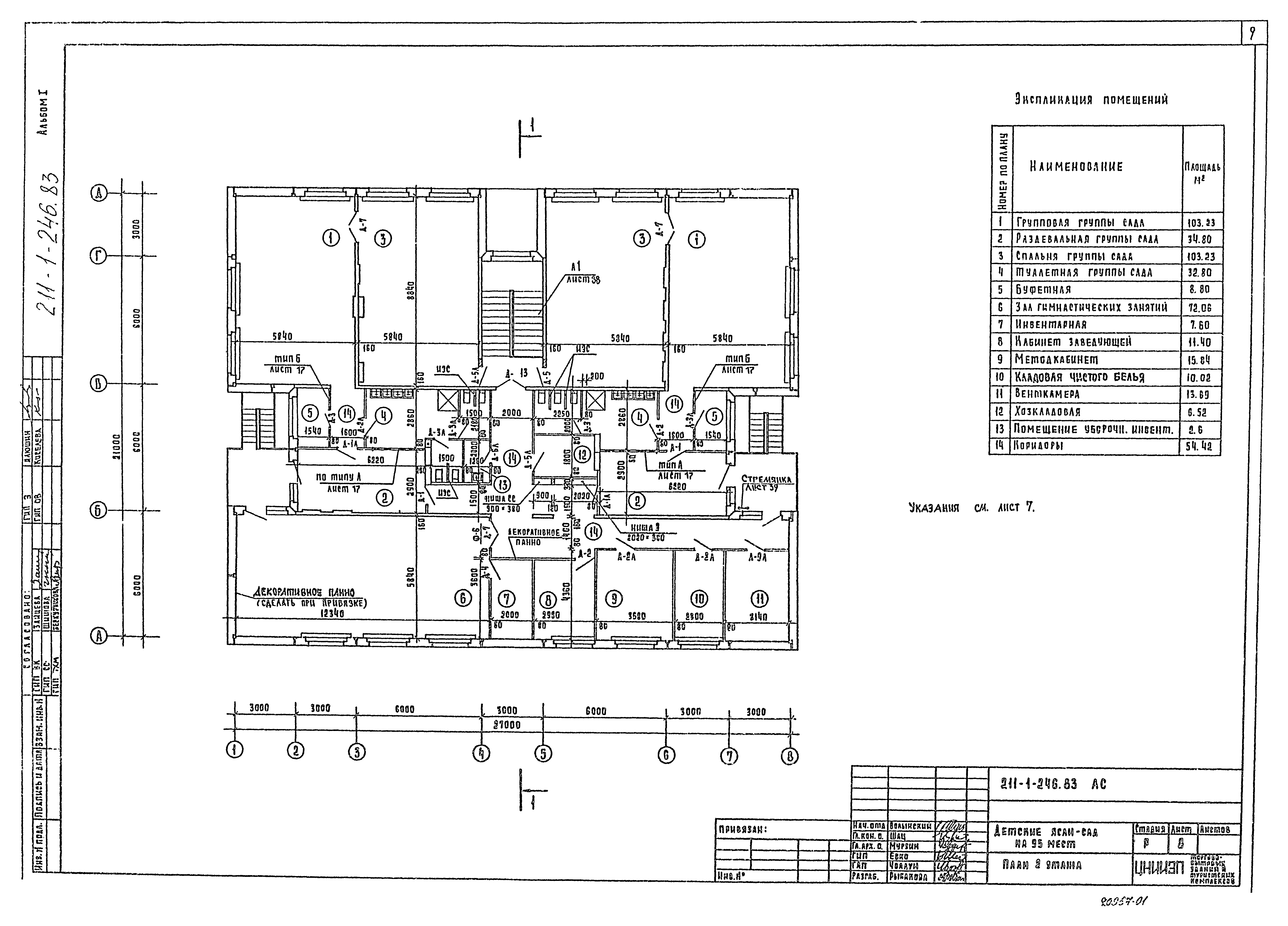
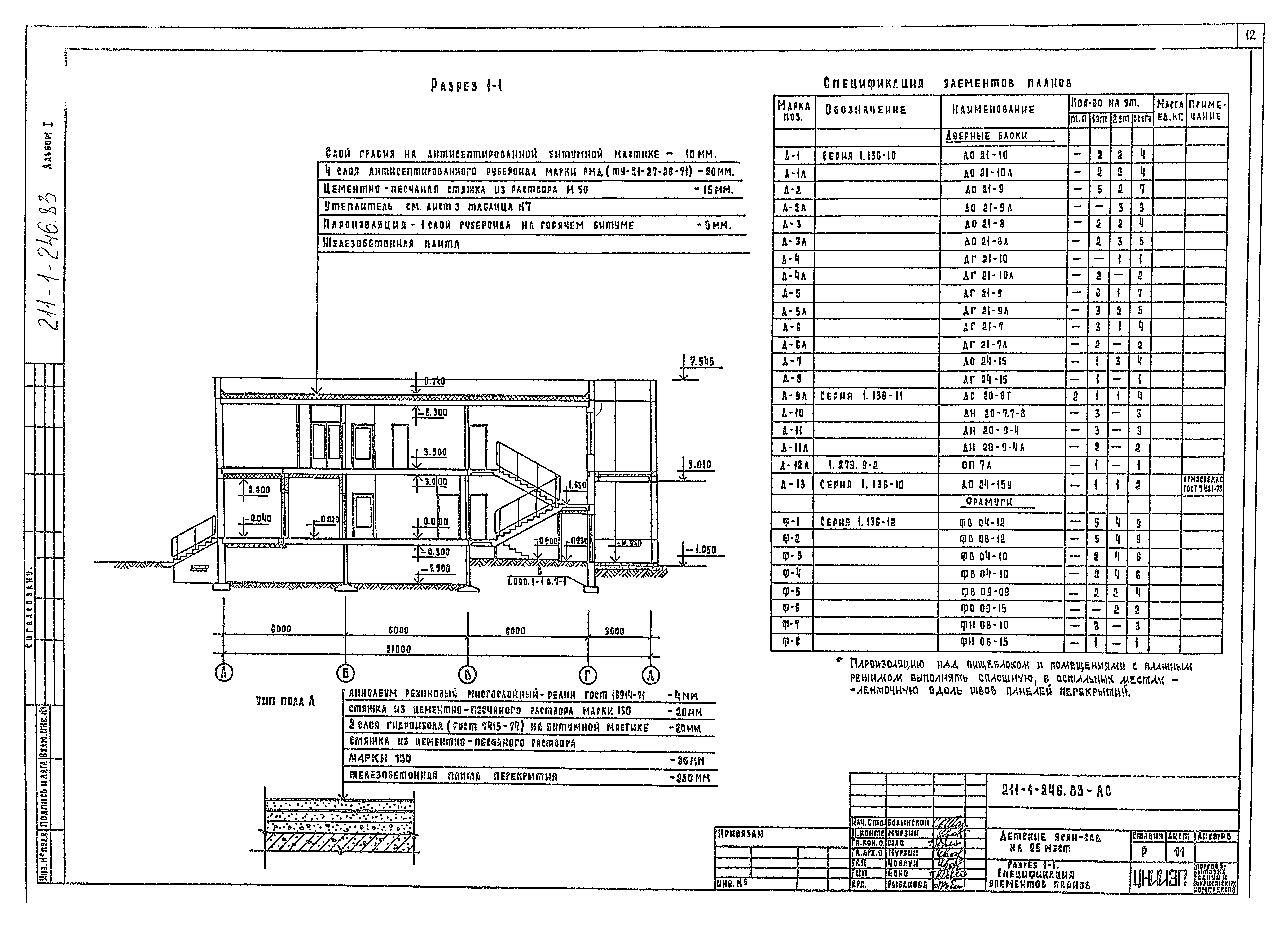
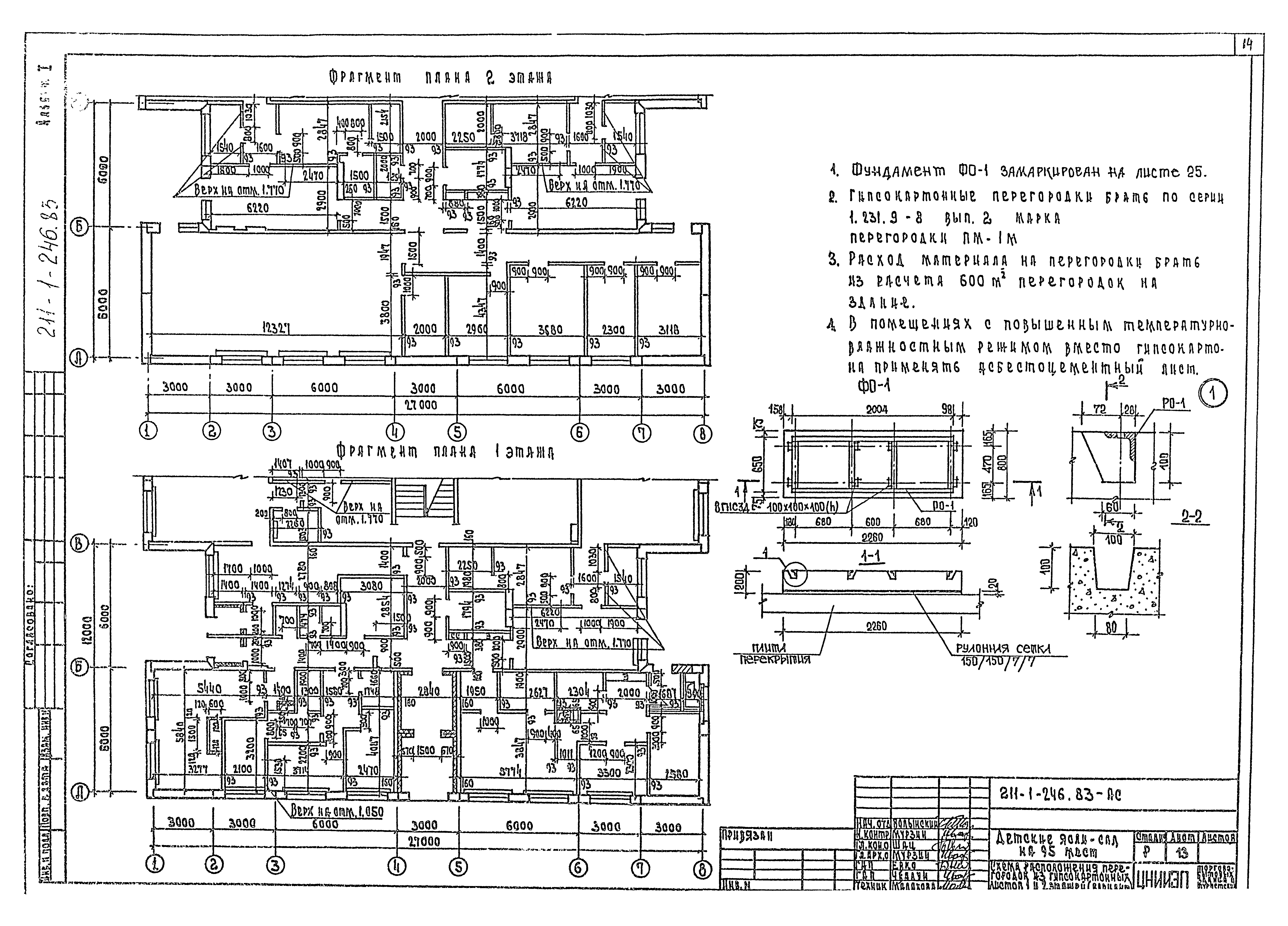
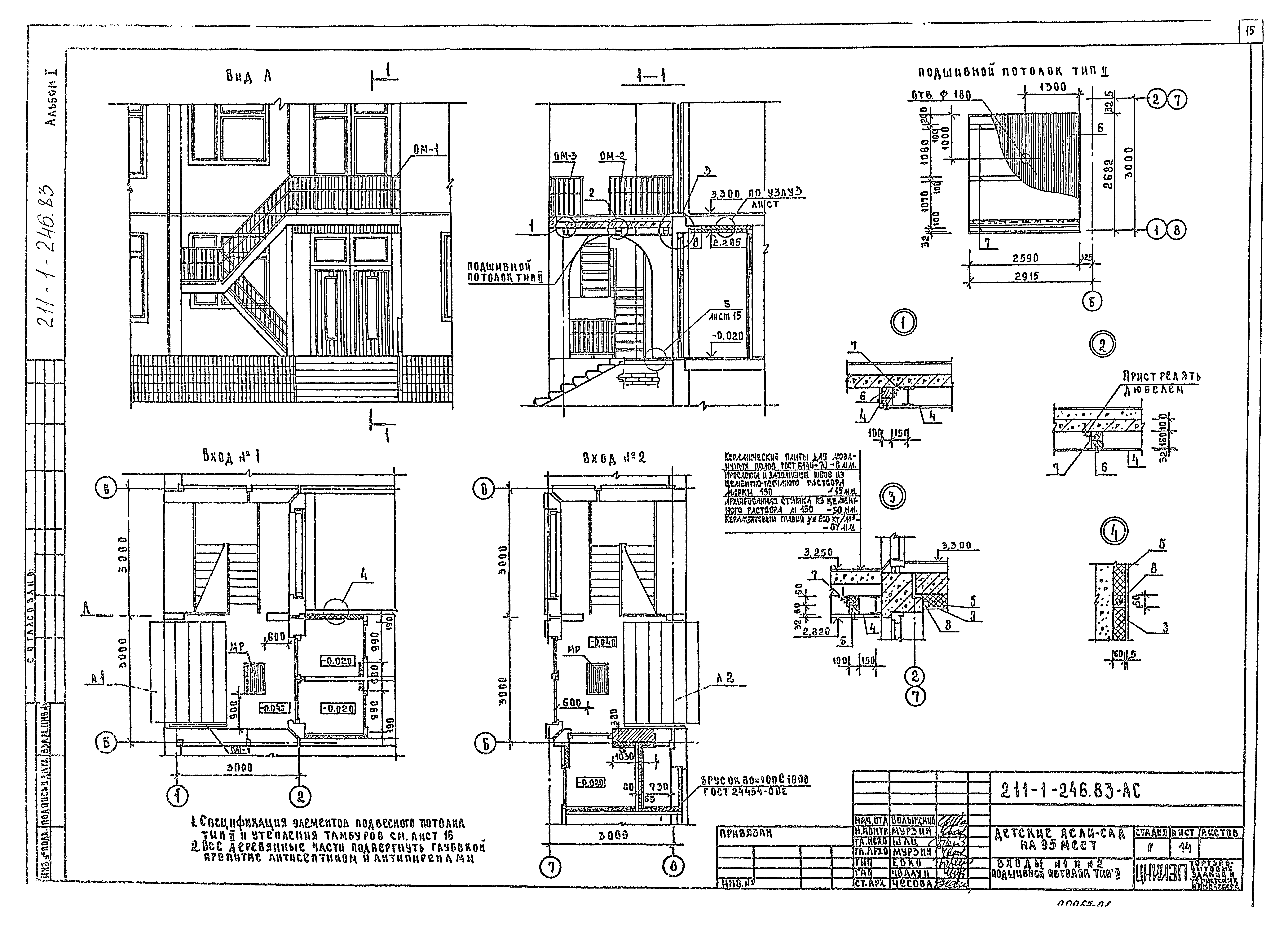
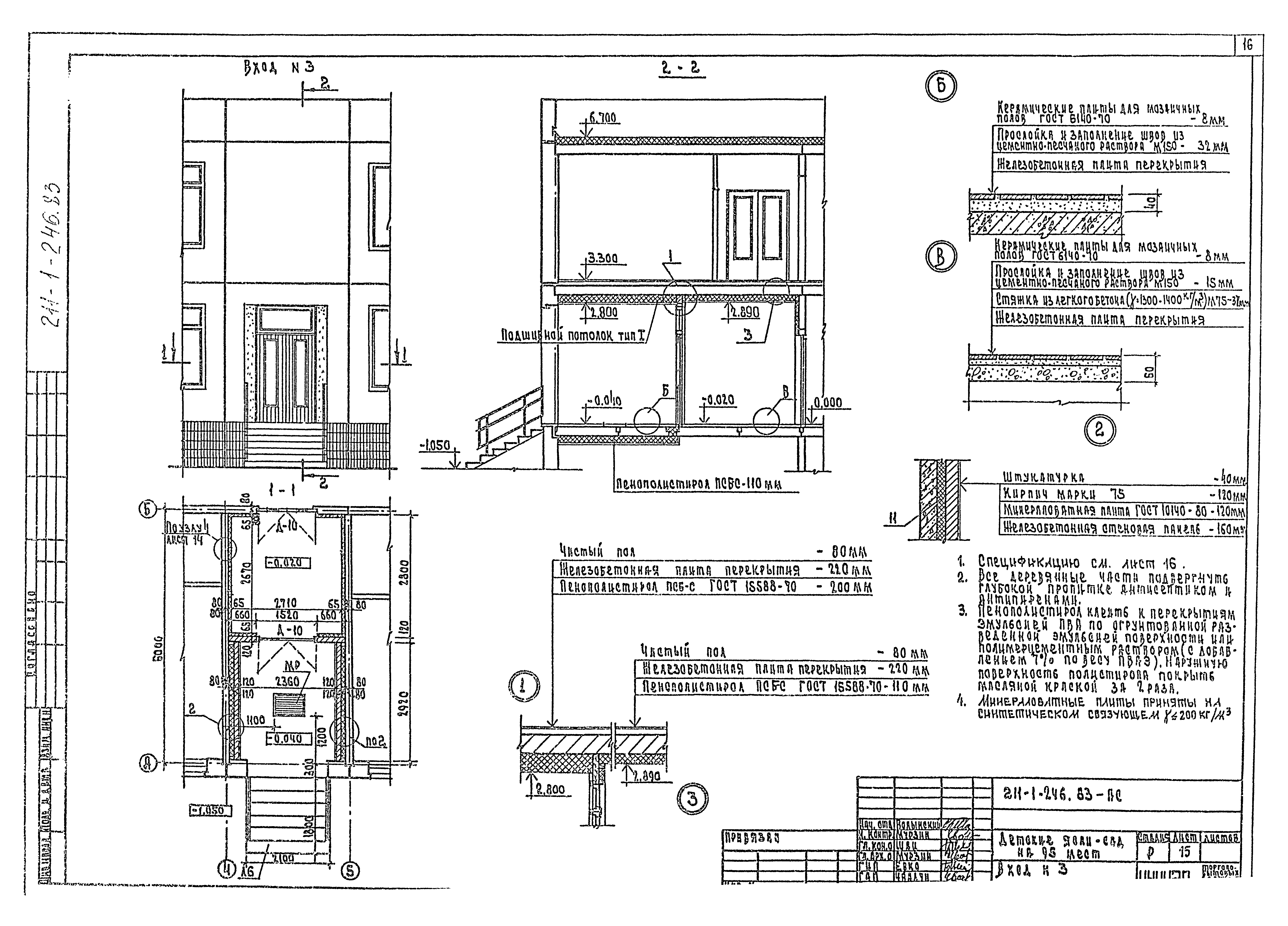
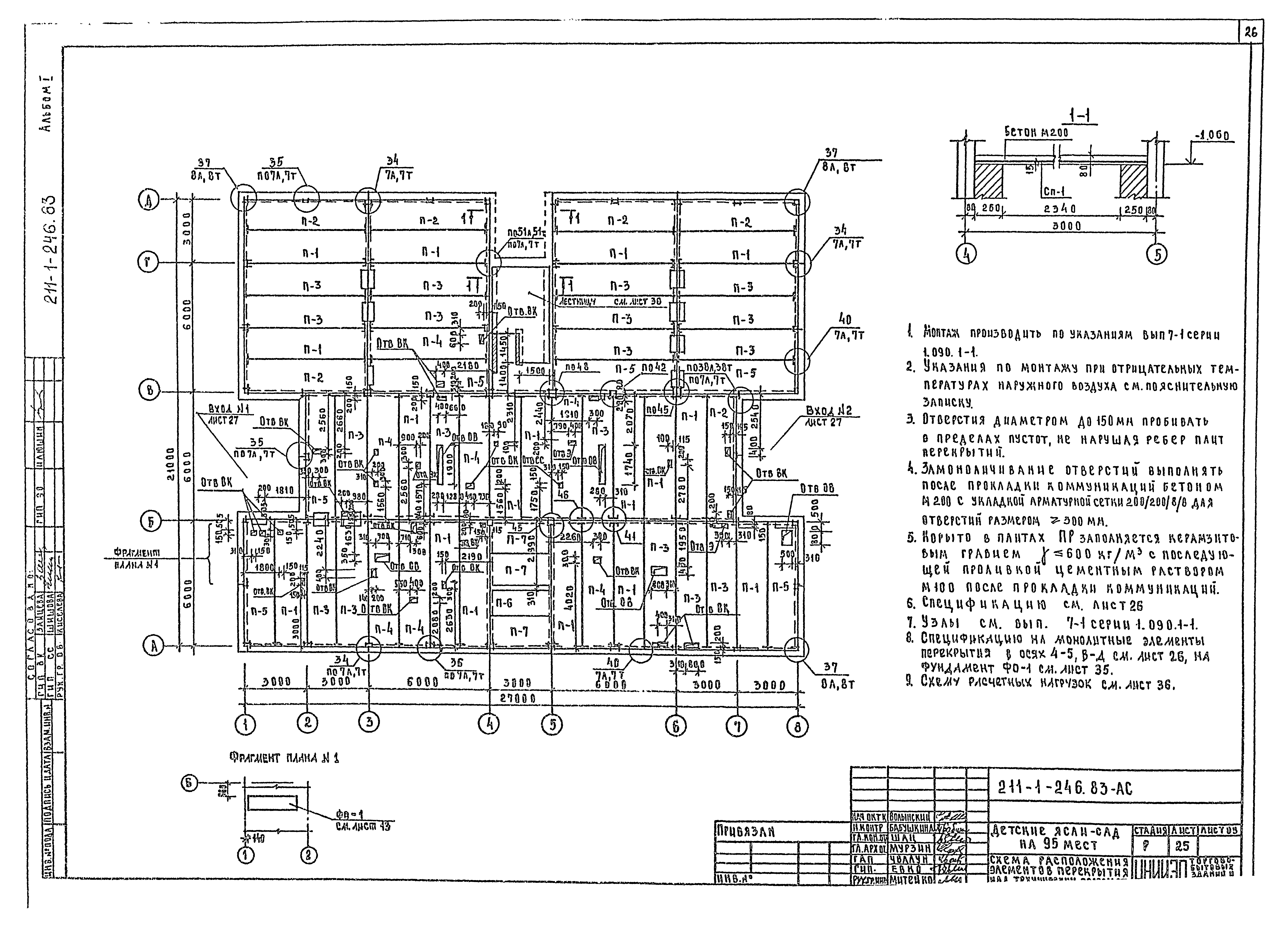
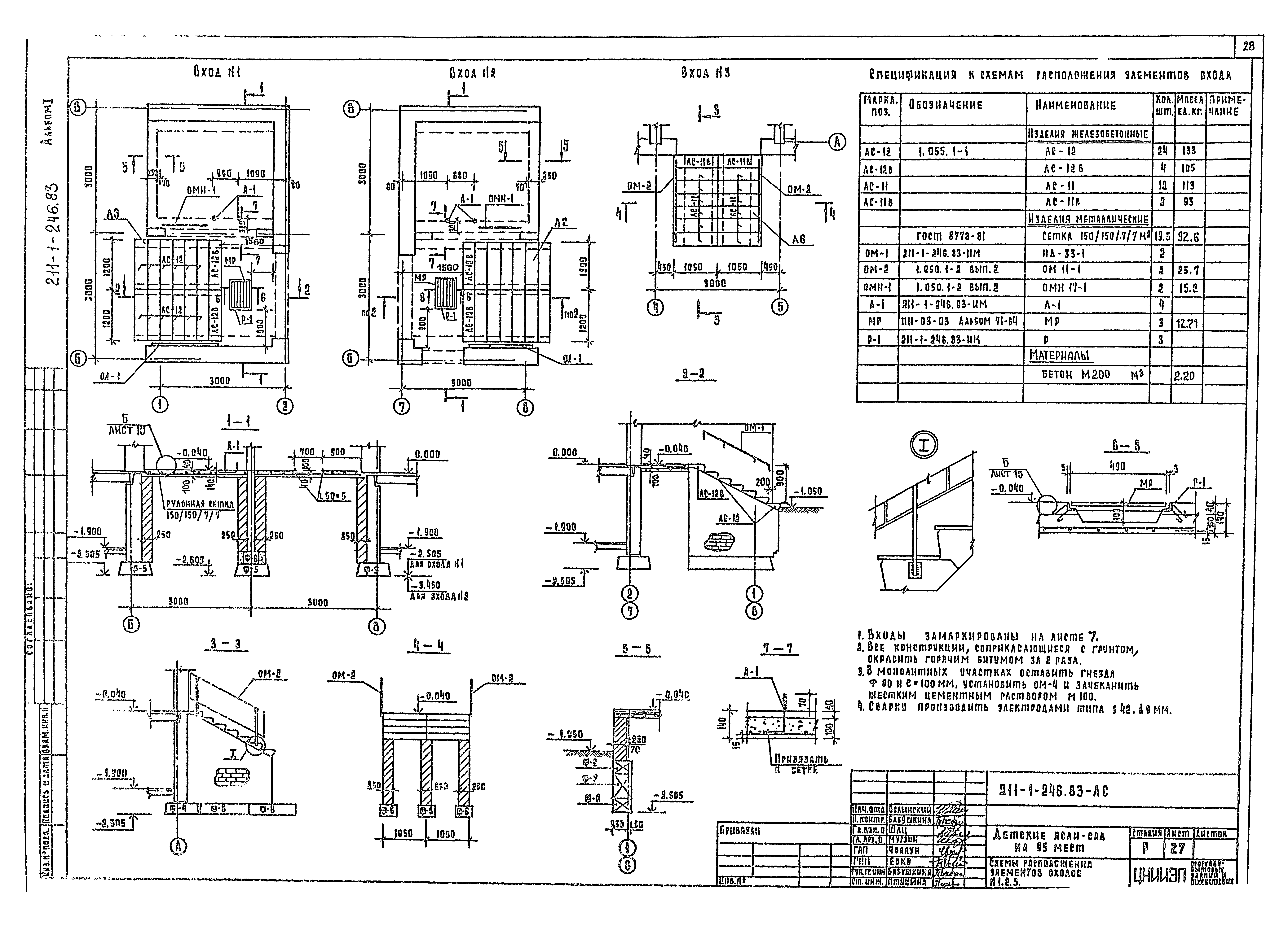
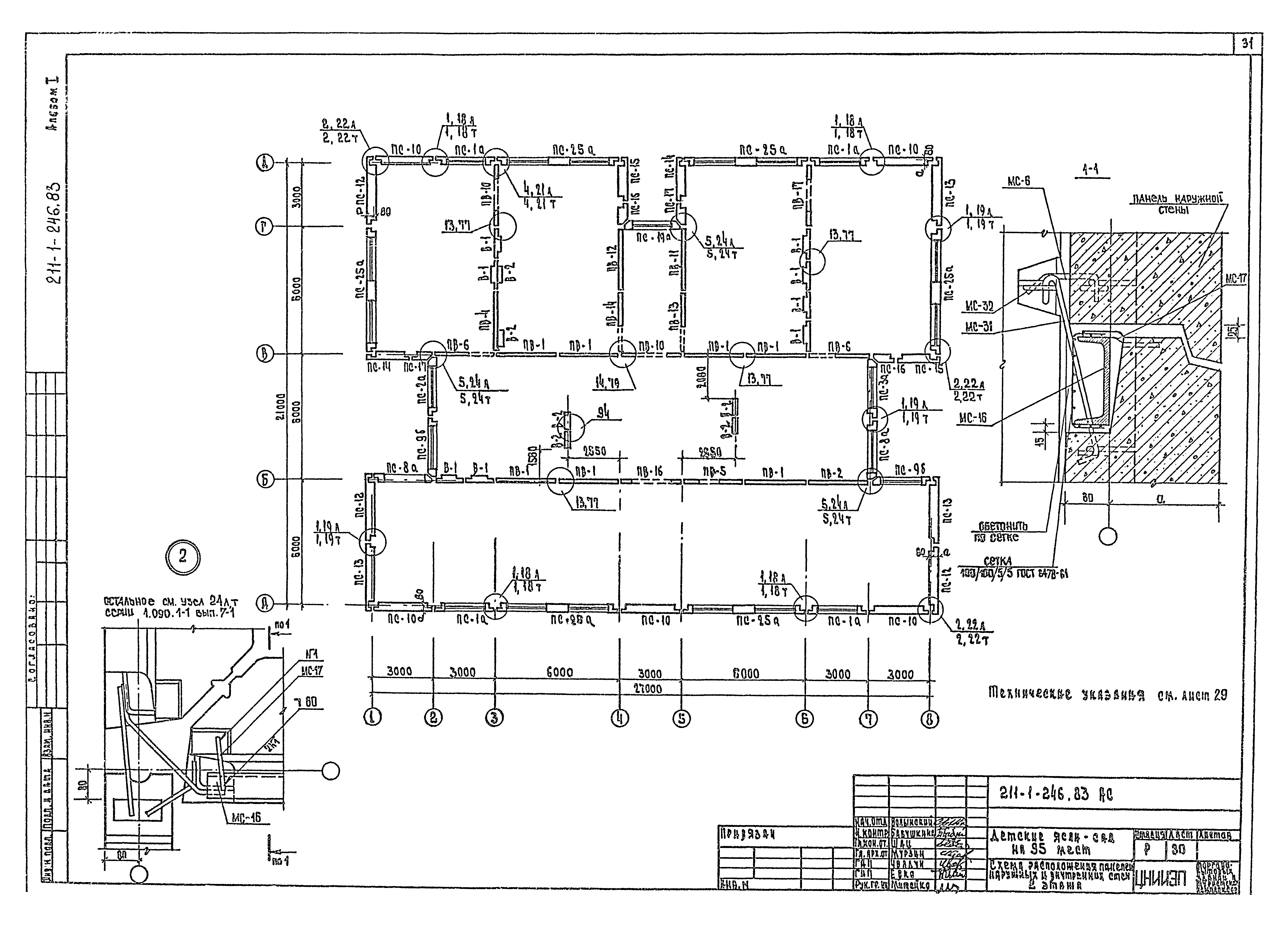
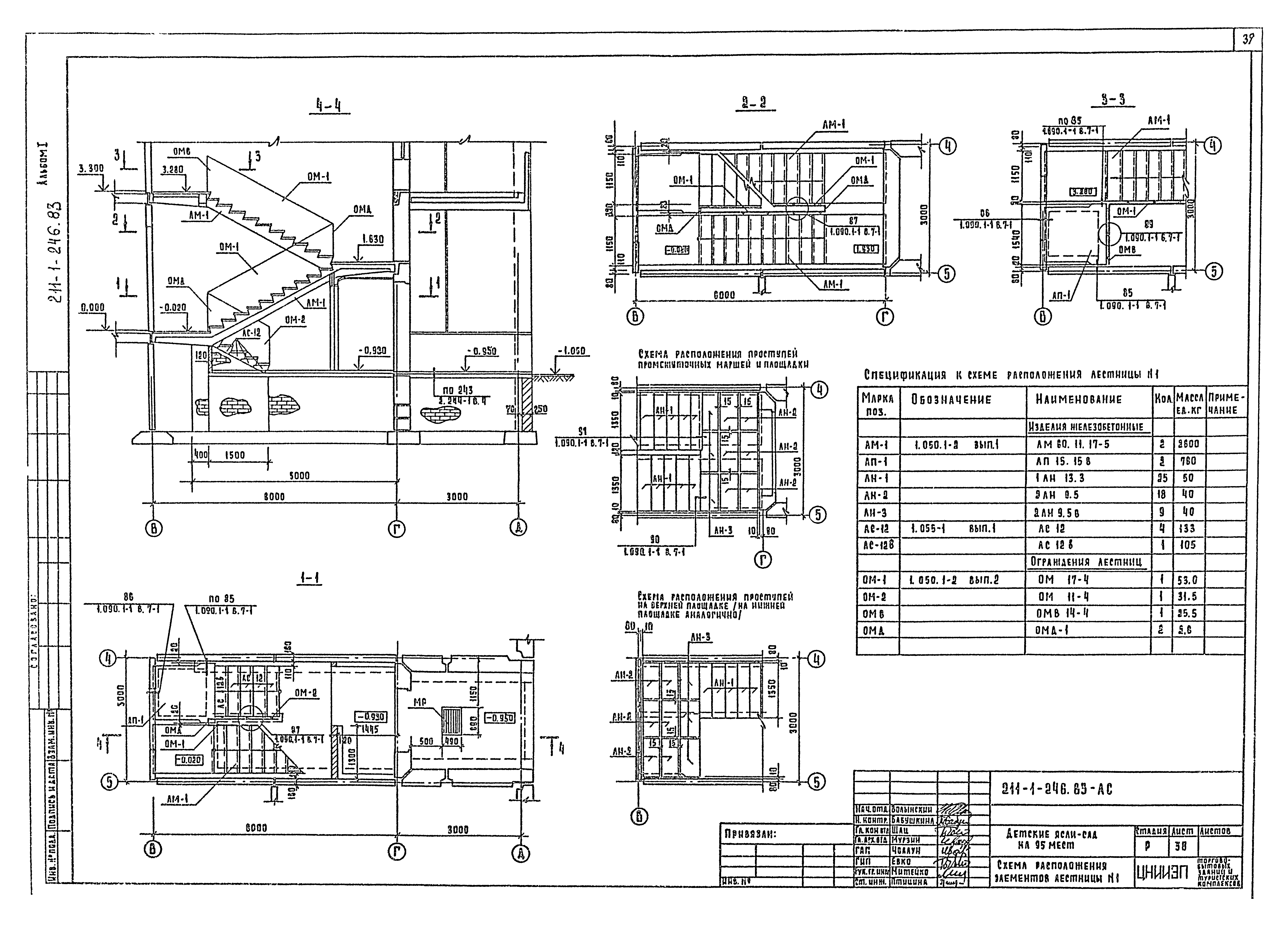
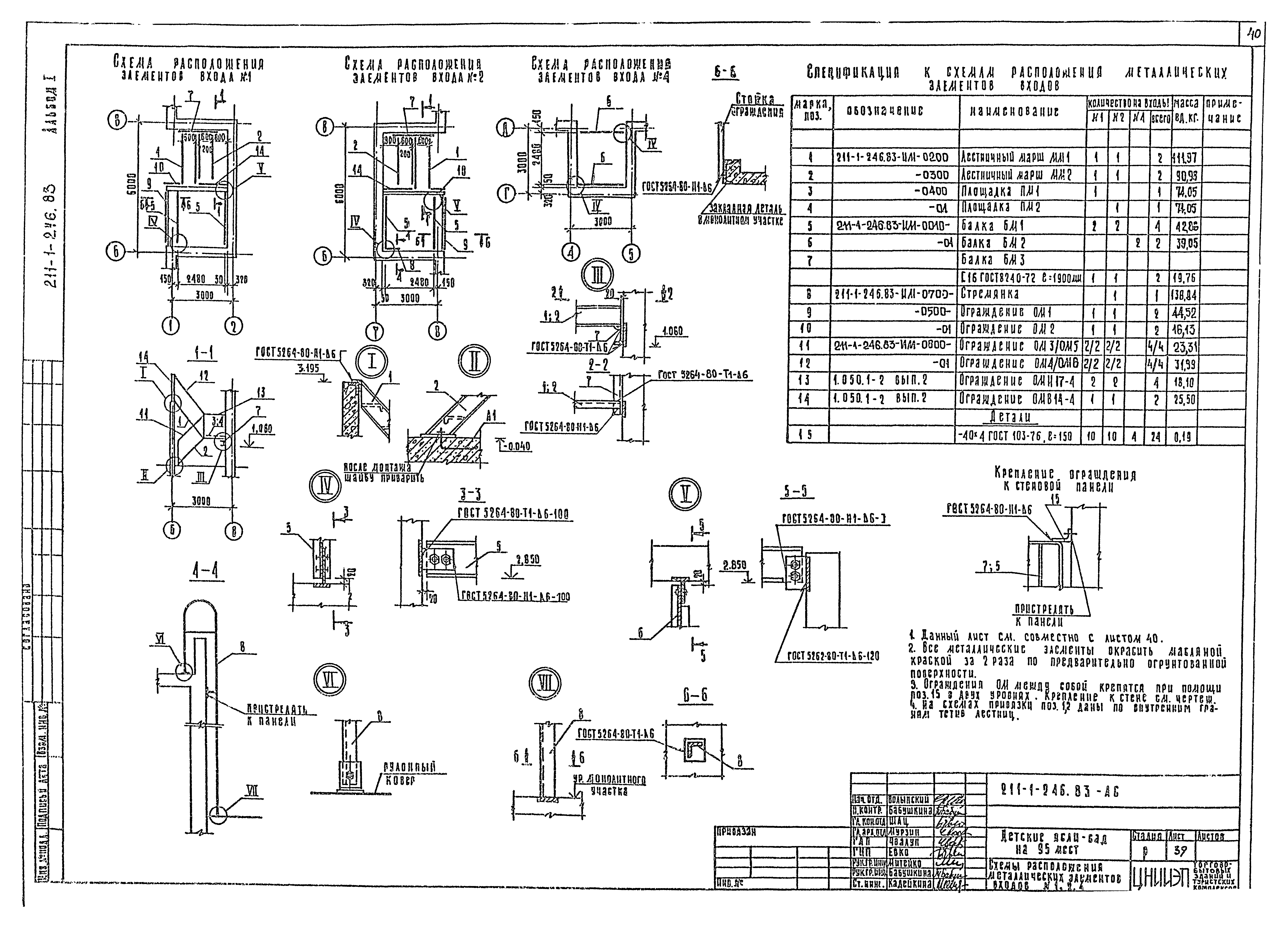
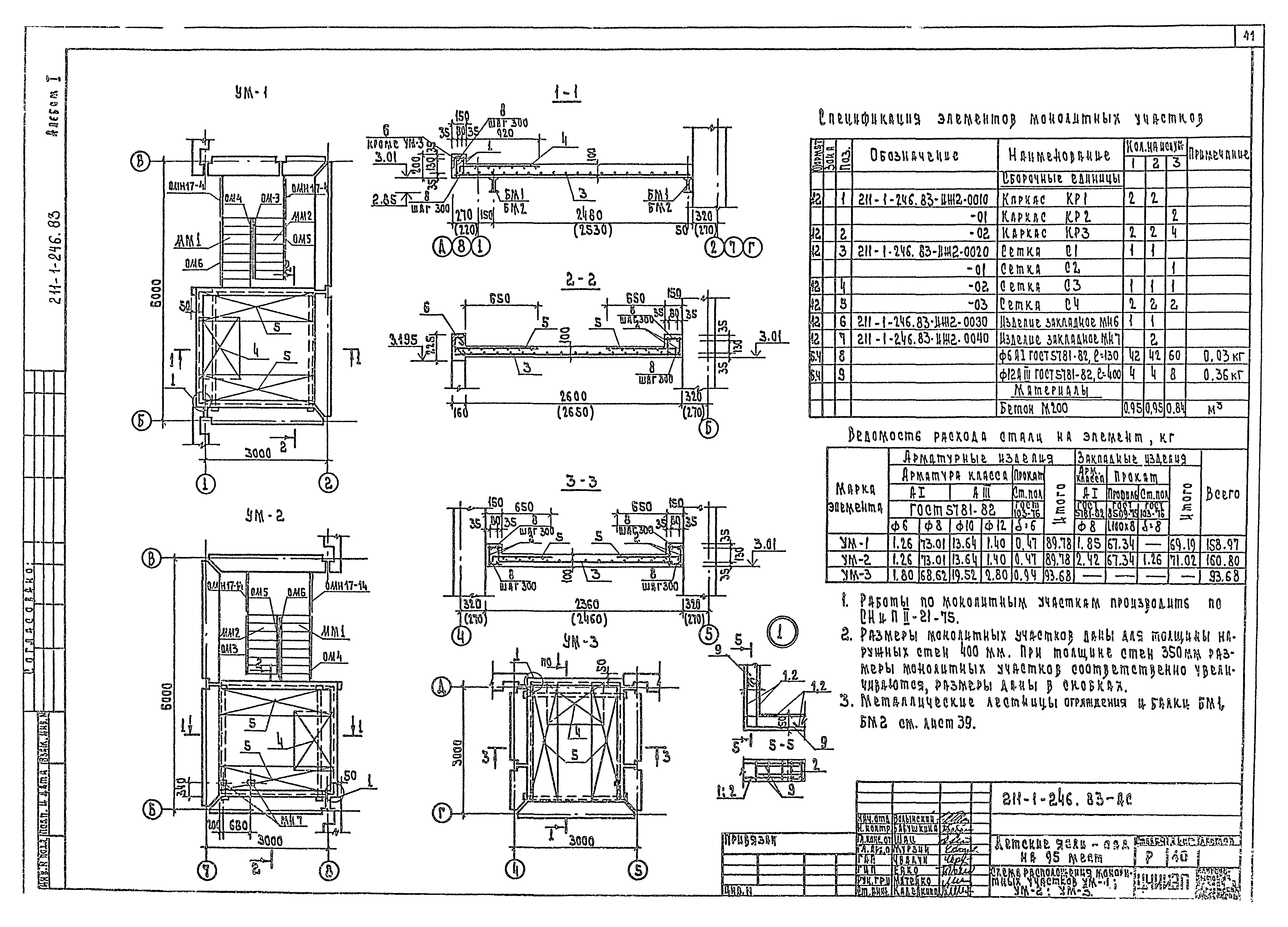
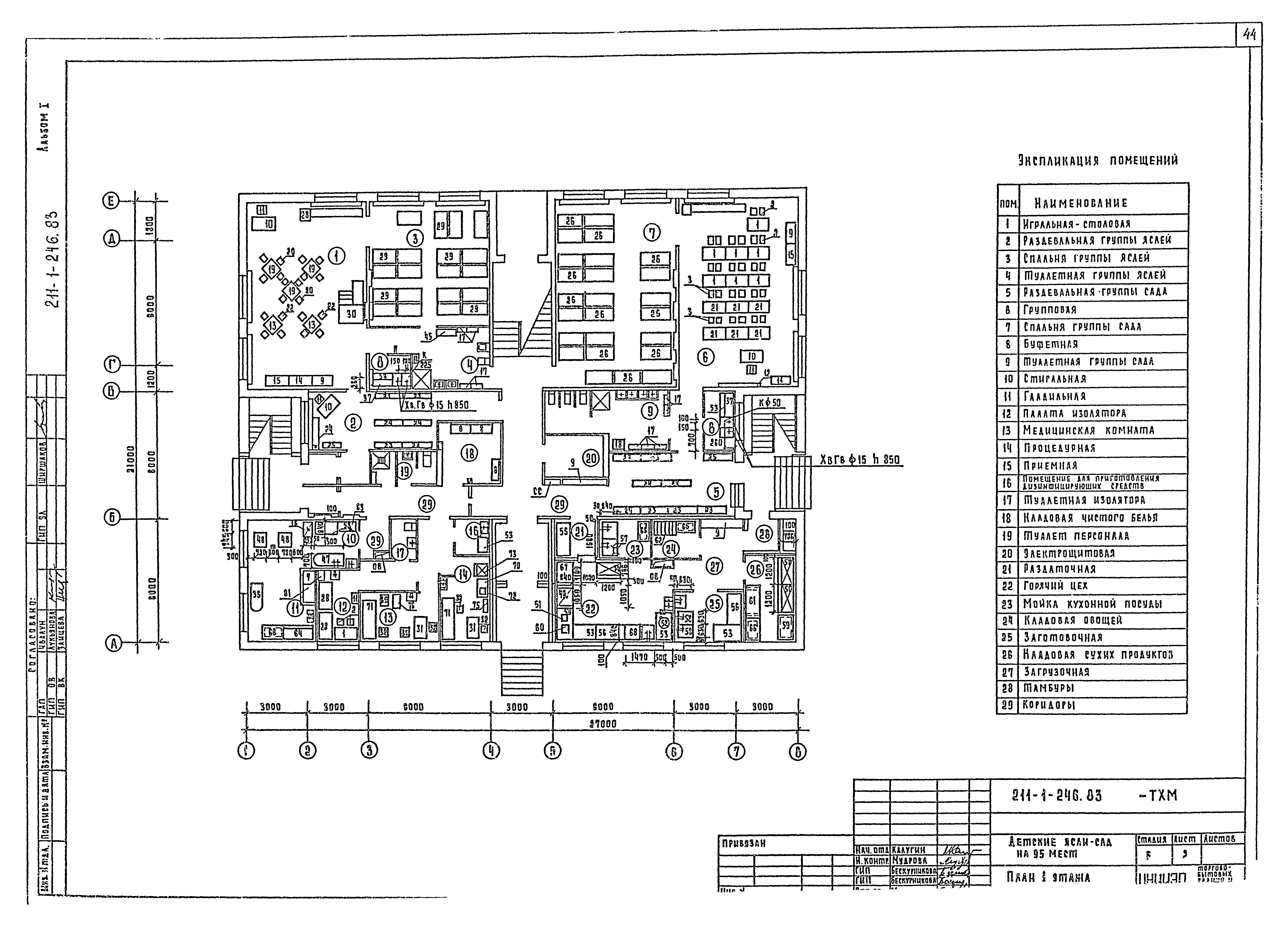
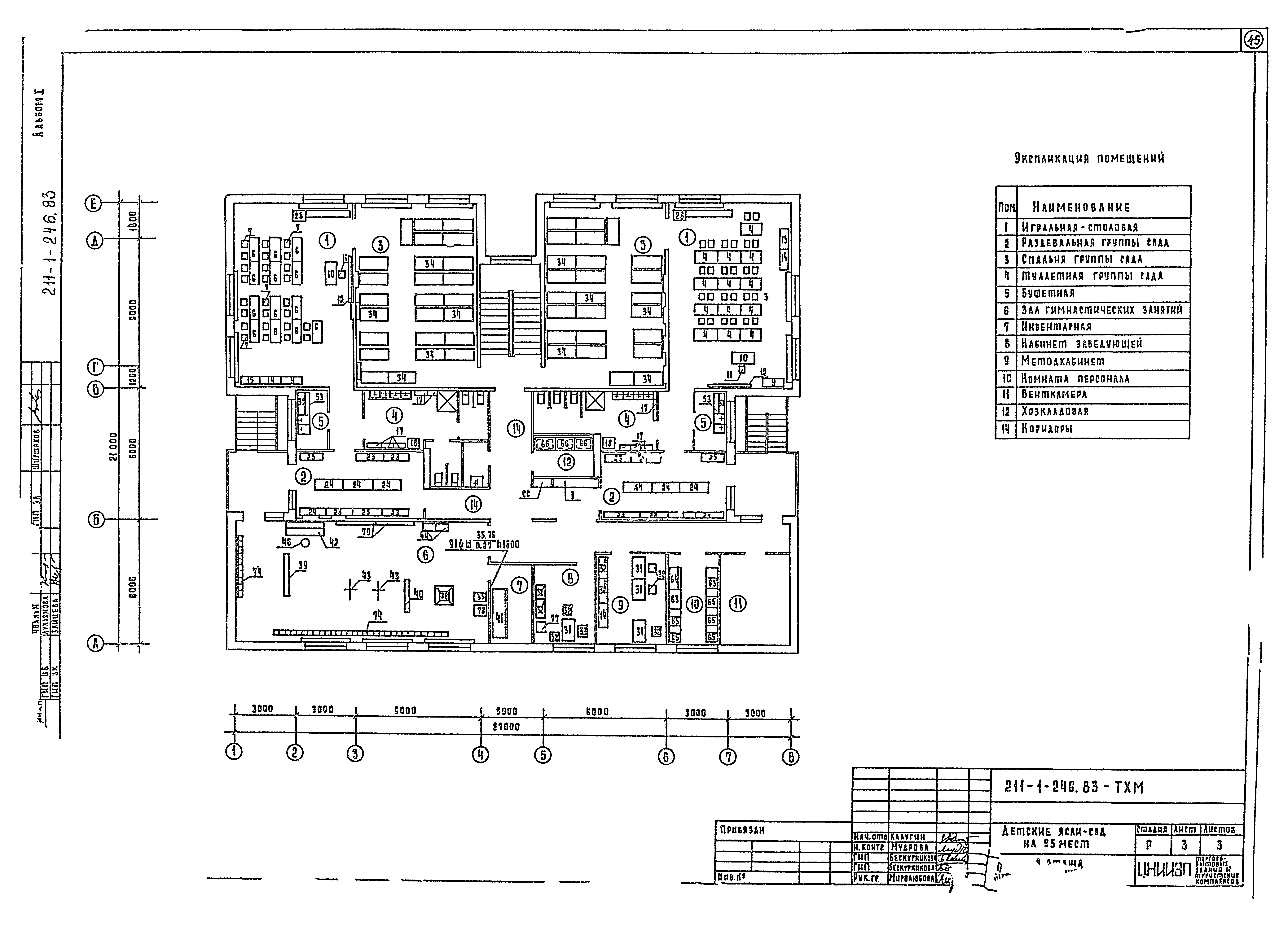
Скачать Типовой проект 211-1-246.83 Альбом I. Архитектурно-строительные решения. Технология и механизацияДата актуализации: 01.01.2021
|
| Обозначение: | Типовой проект 211-1-246.83 |
| Обозначение англ: | 211-1-246.83 |
| Статус: | не определен законодательством |
| Название рус.: | Альбом I. Архитектурно-строительные решения. Технология и механизация |
| Дата добавления в базу: | 05.05.2017 |
| Дата актуализации: | 01.01.2021 |
| Дата введения: | 20.09.1984 |
| Дата окончания срока действия: | 30.06.2003 |
| Разработан: | ЦНИИЭП торгово-бытовых зданий и торговых комплексов |
| Утверждён: | 29.11.1982 Госгражданстрой (Gosgrazhdanstroy 321) |
| Издан: | ЦИТП Госстроя СССР (CITP, Gosstroy (USSR) 1985 г. ) |














































