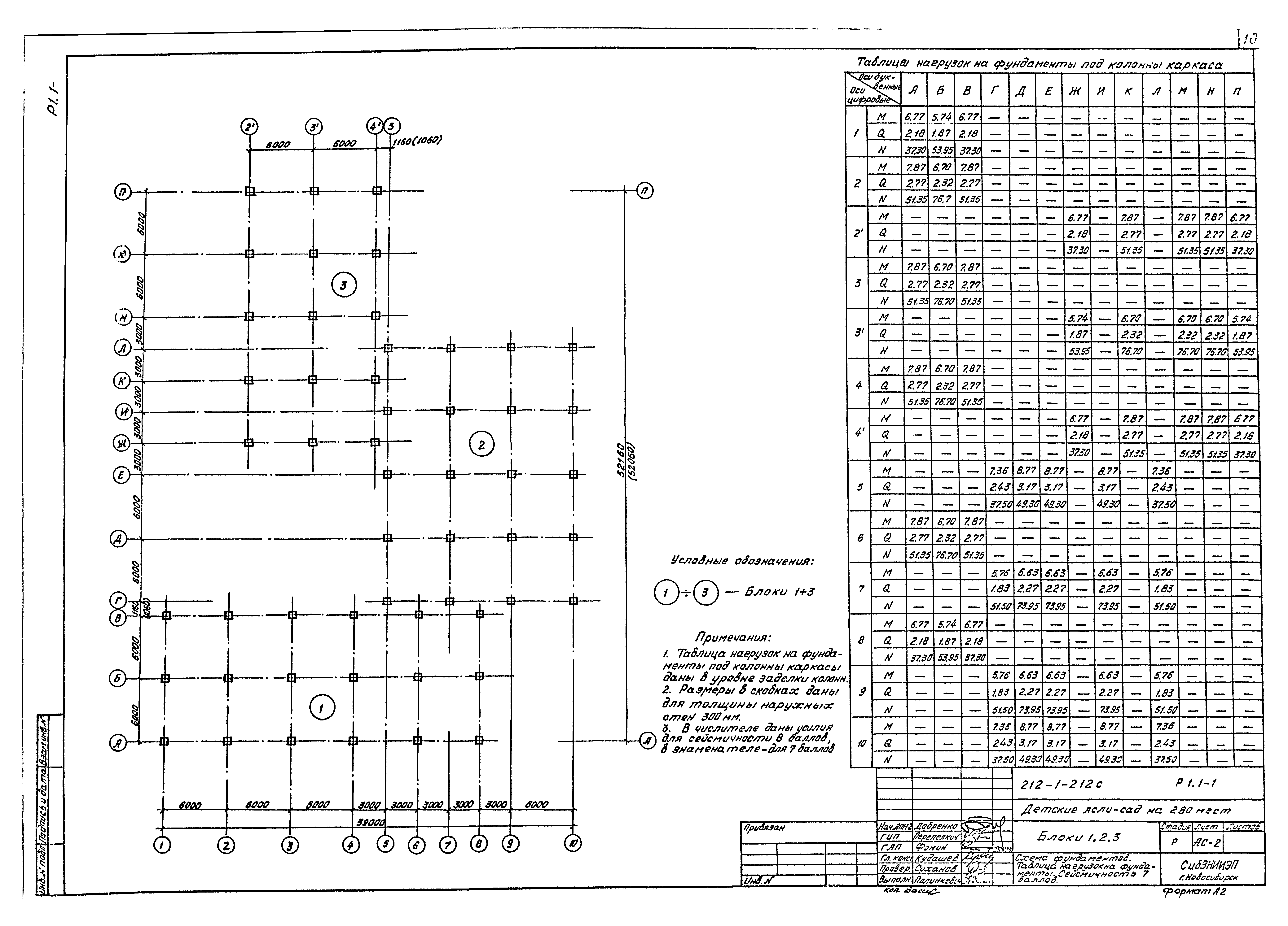
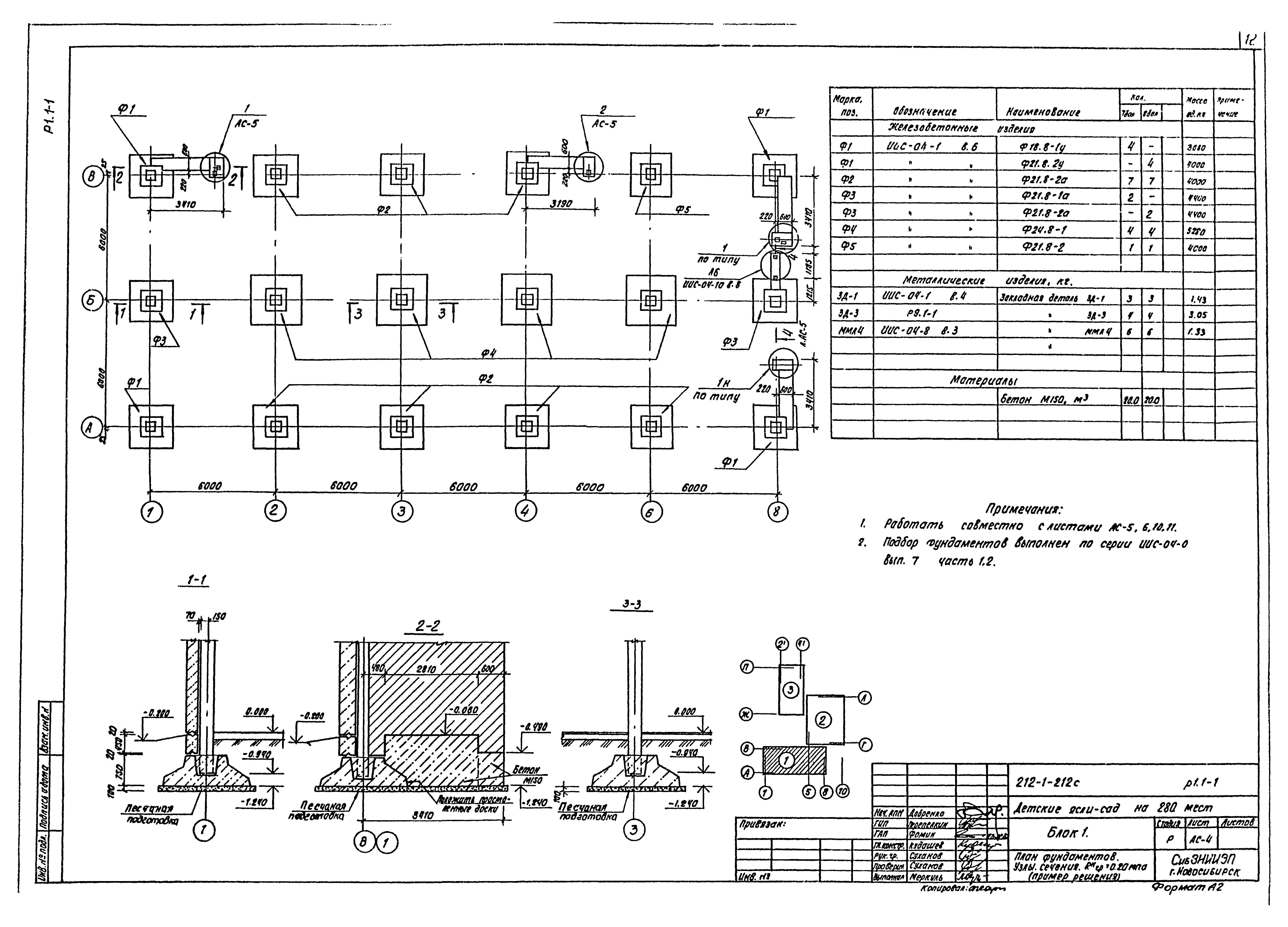
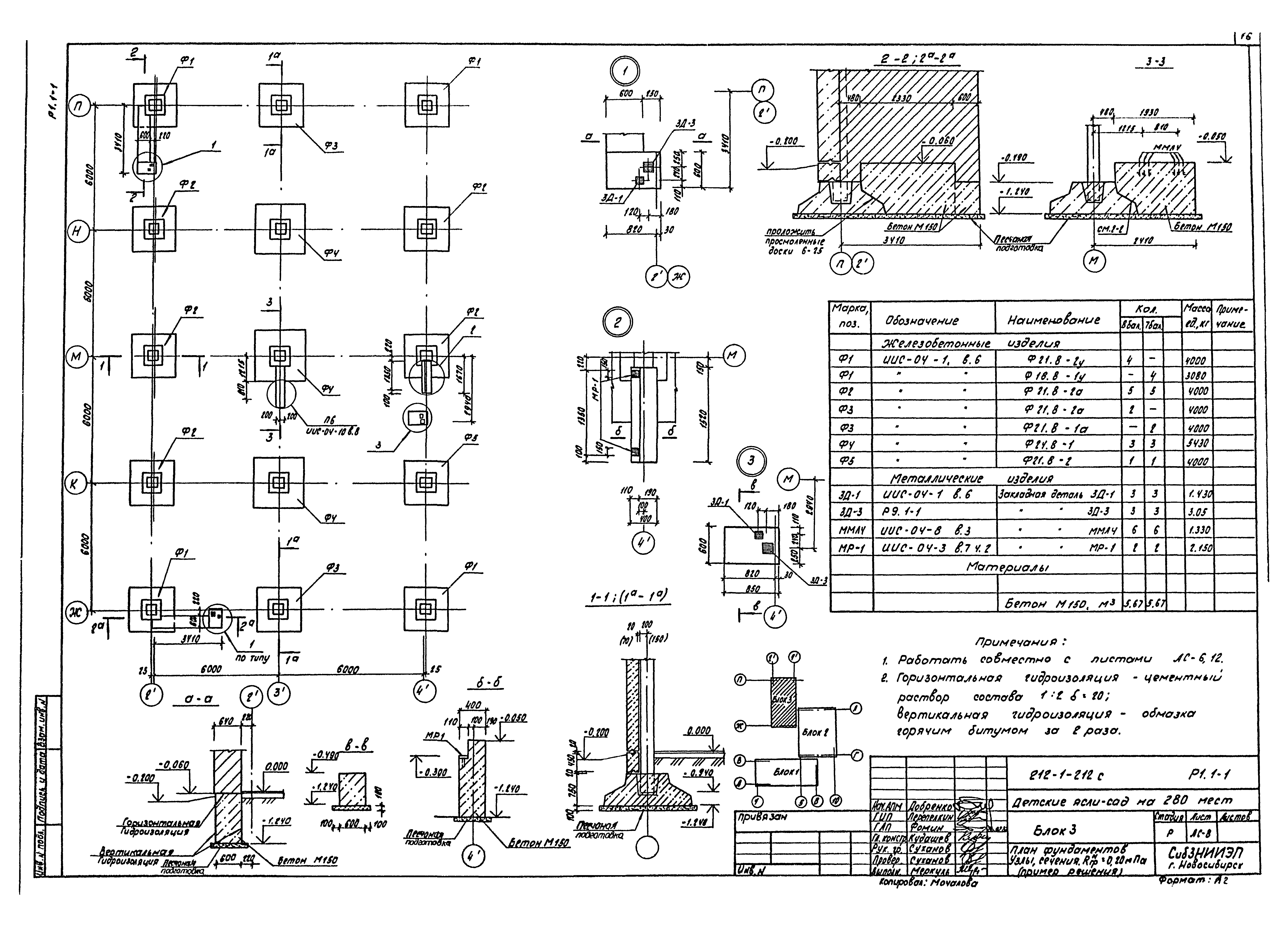
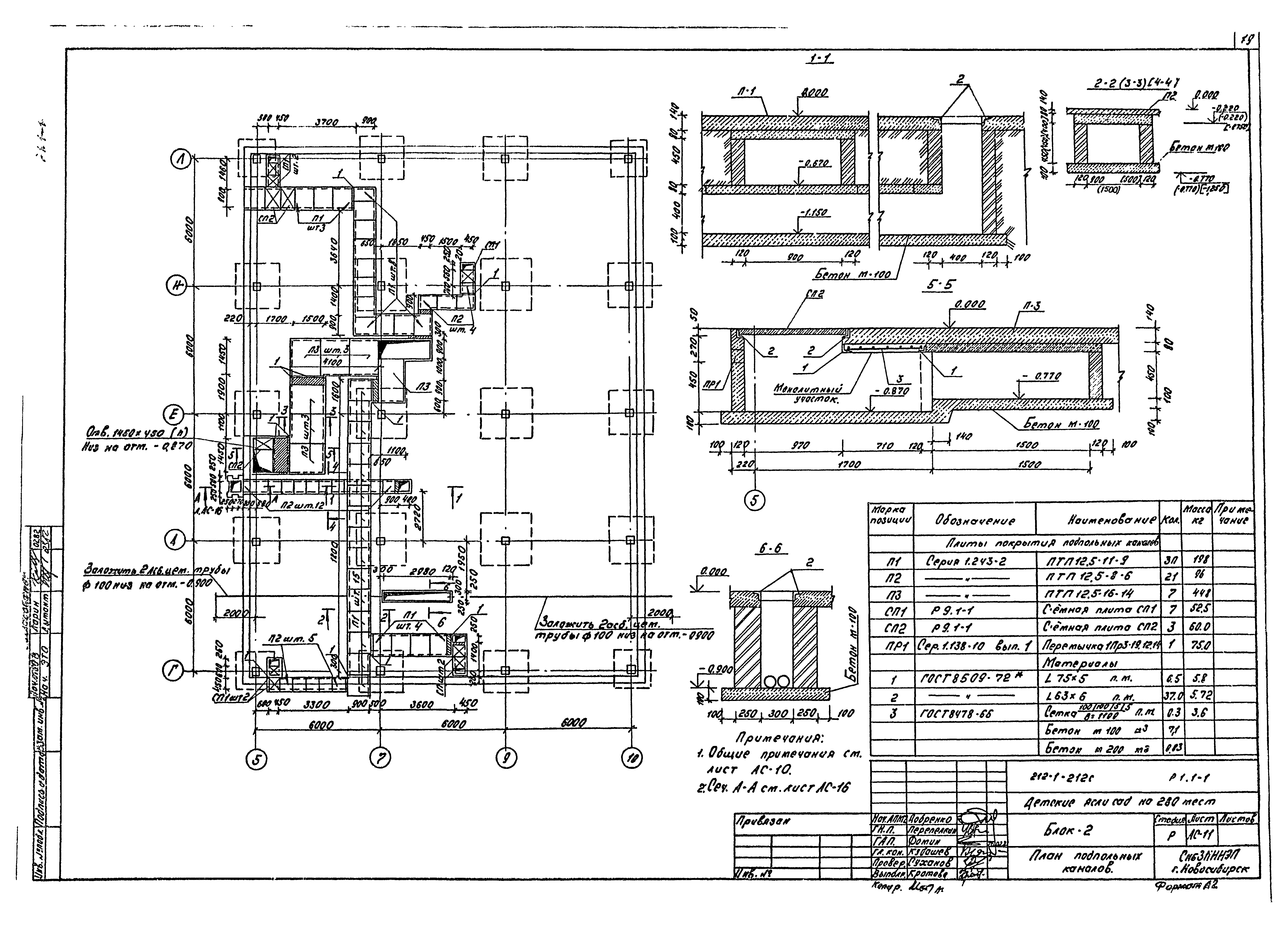
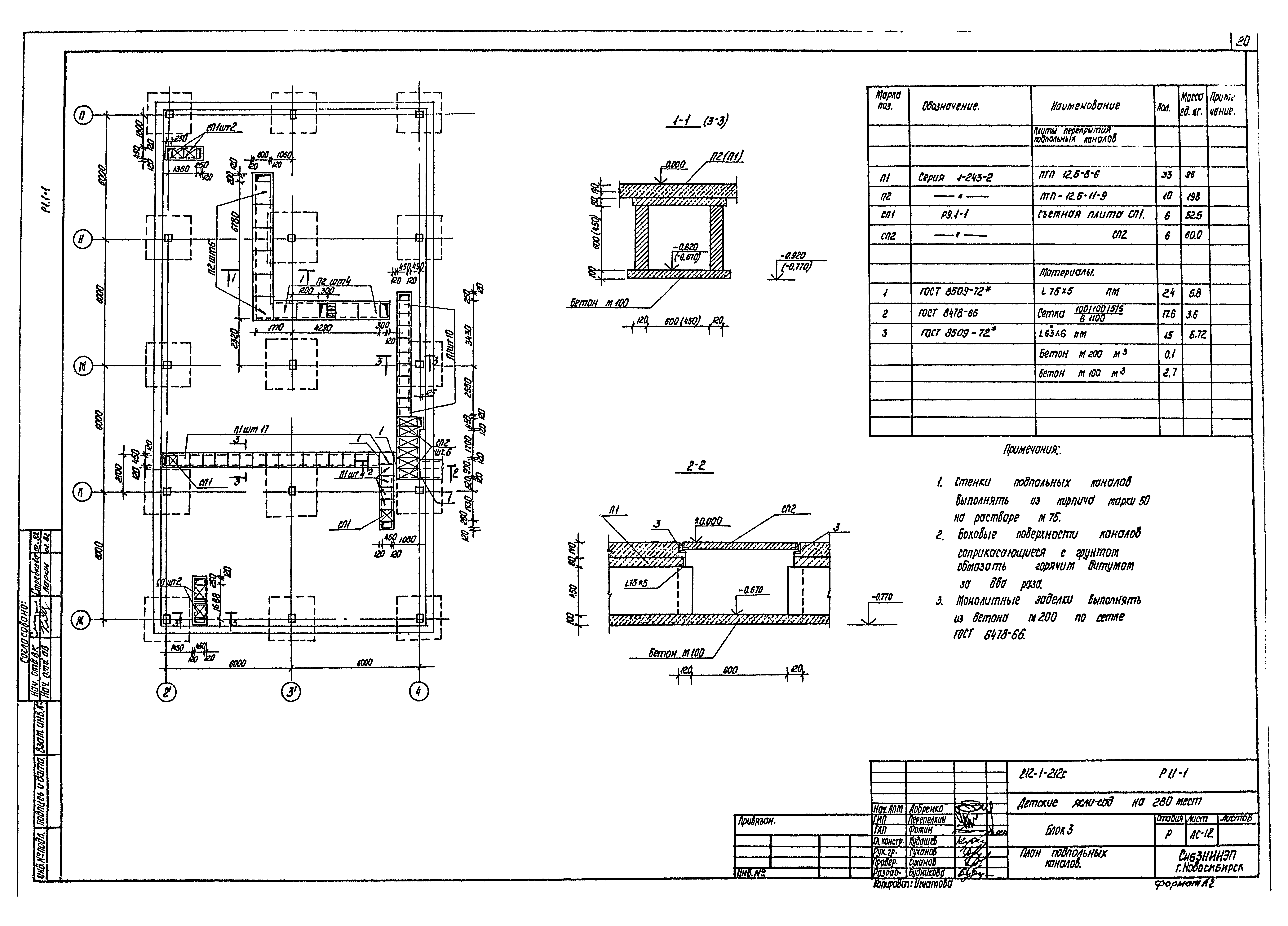
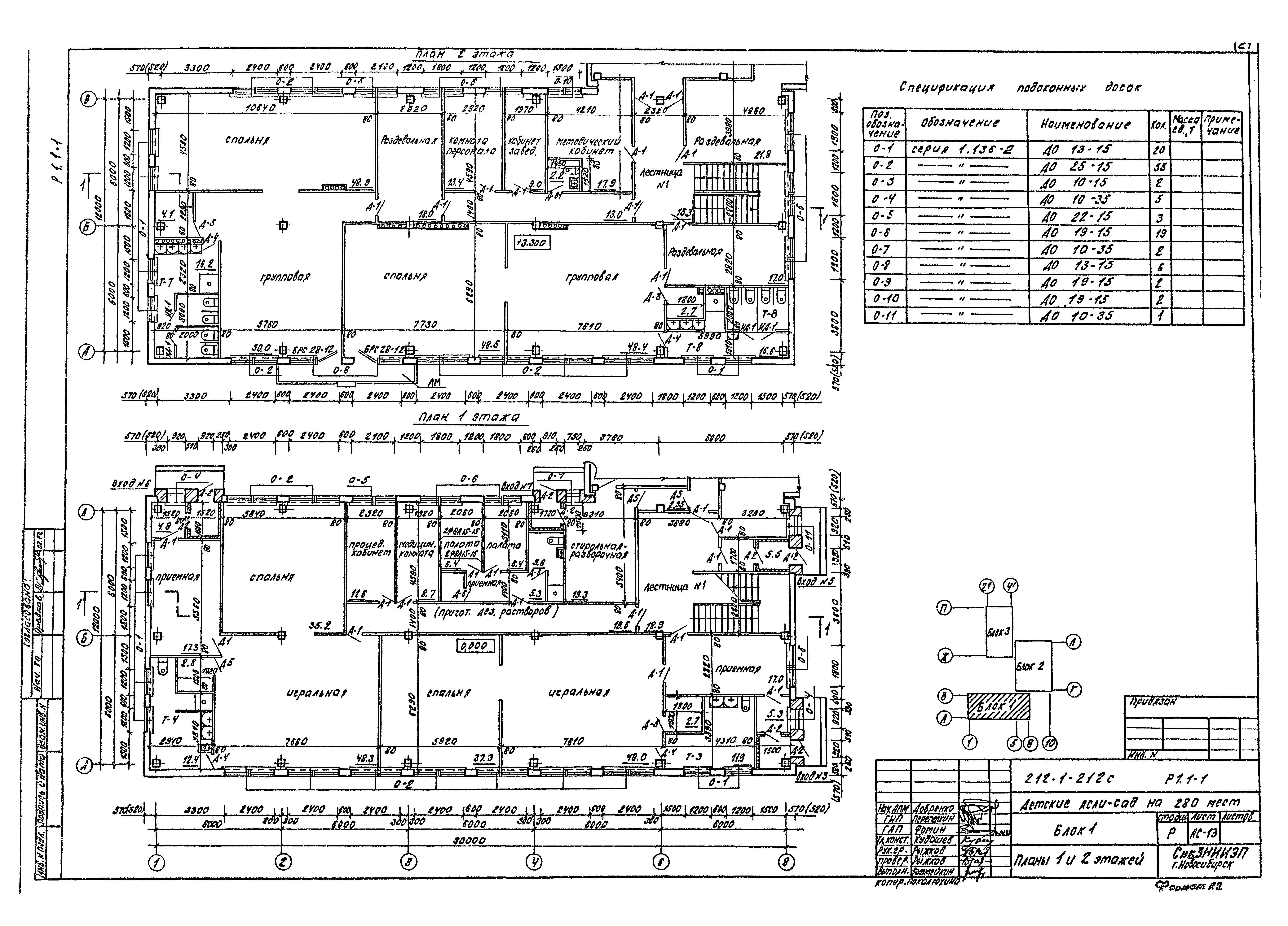
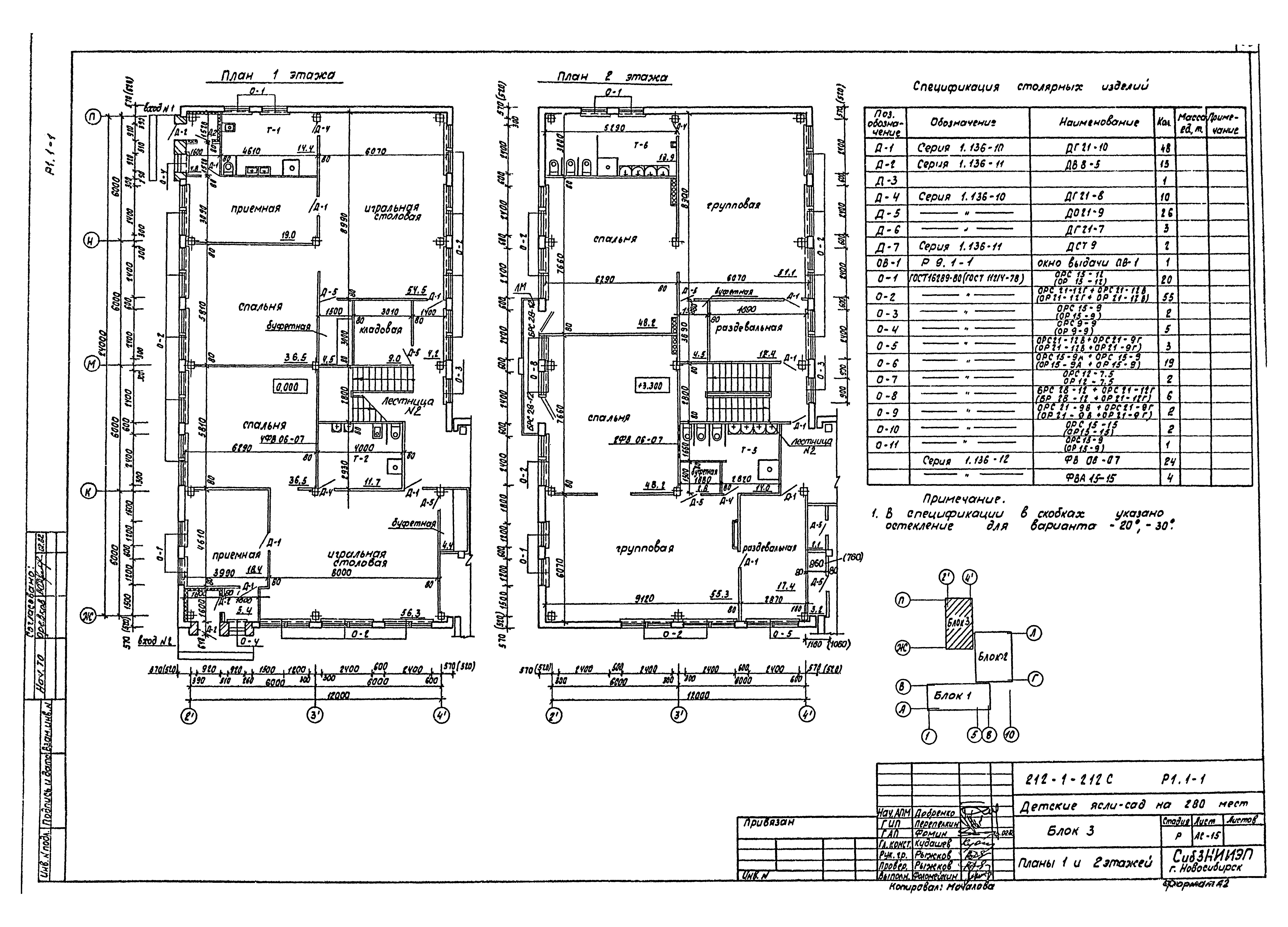
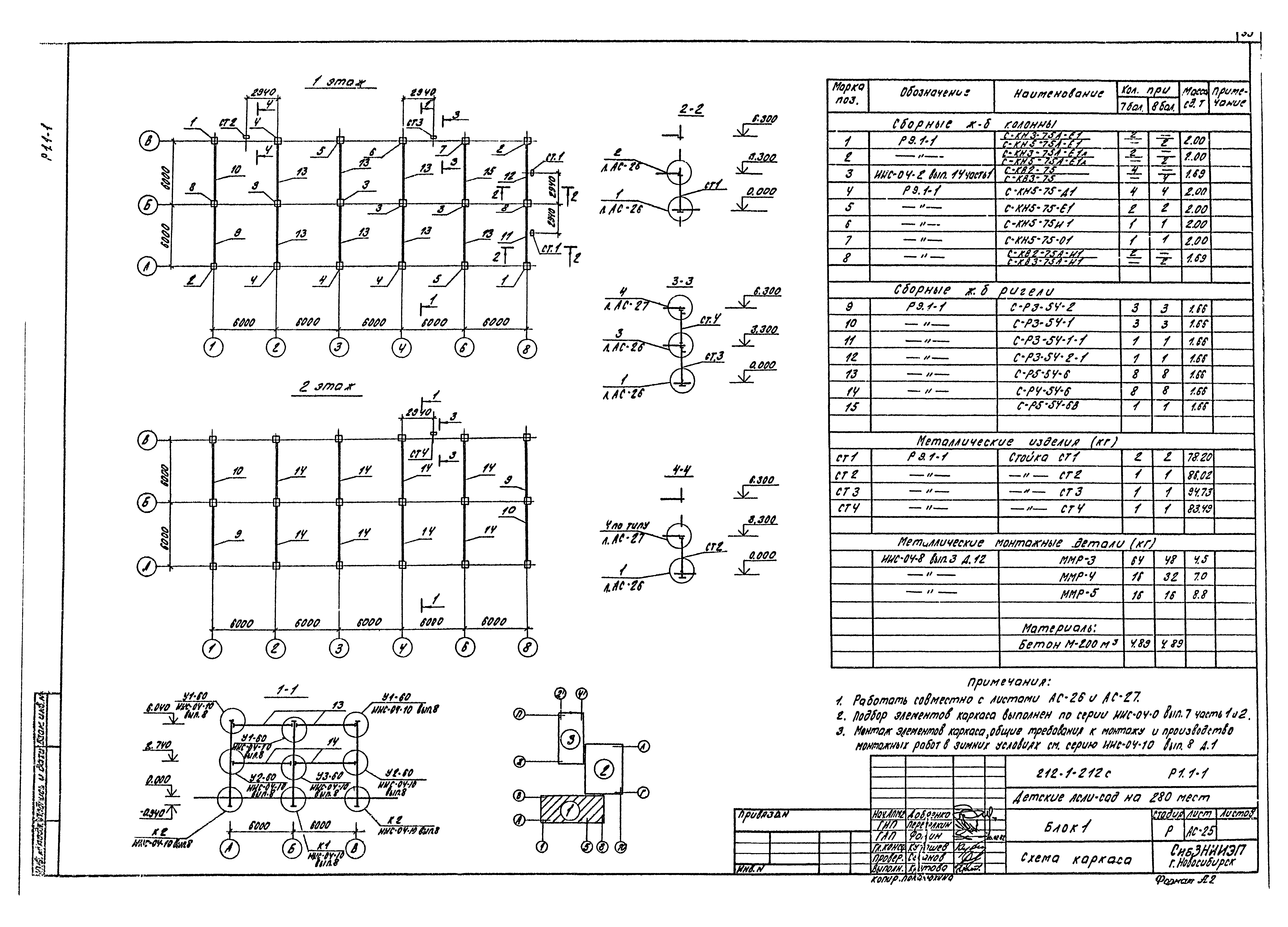
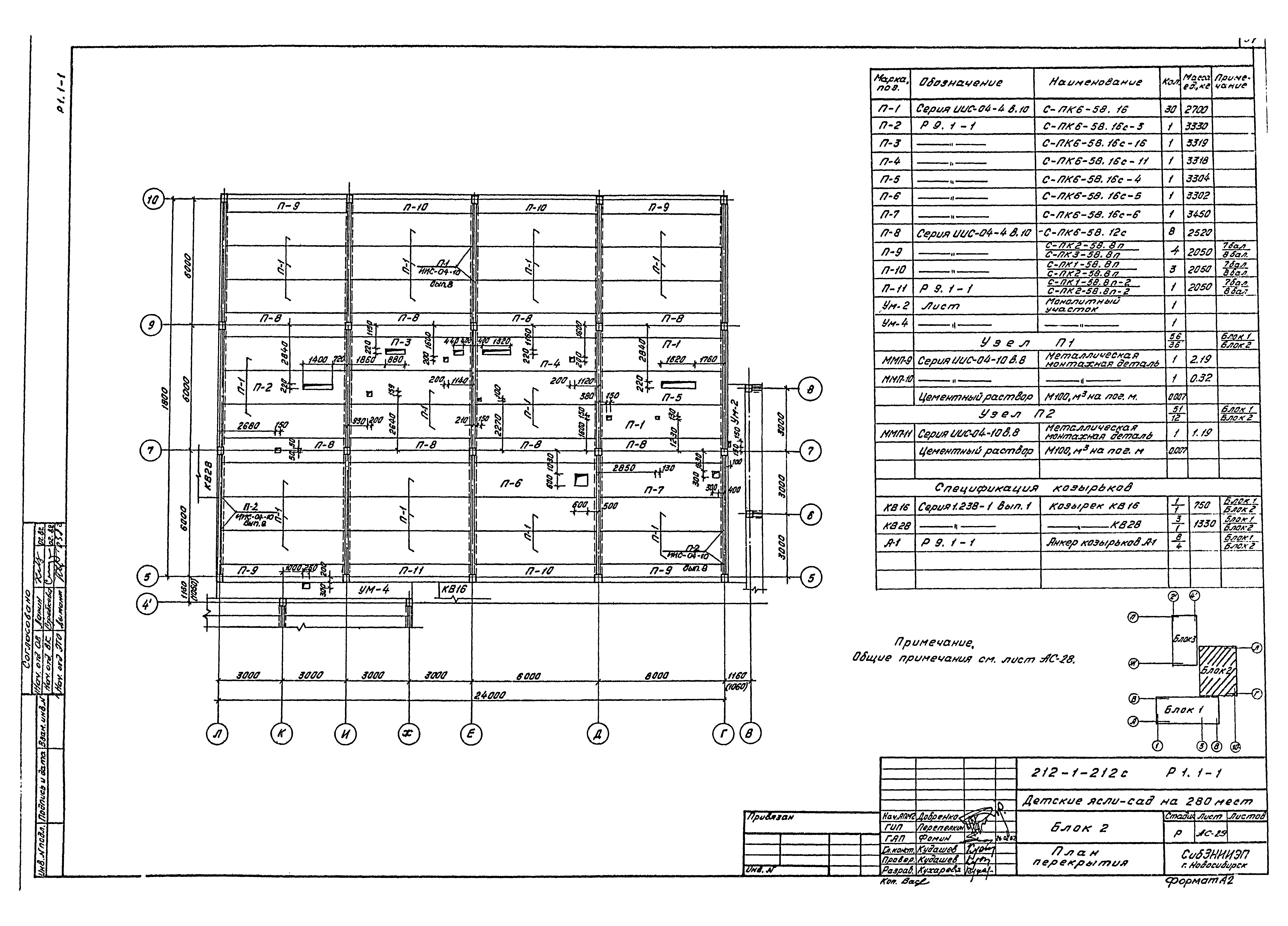
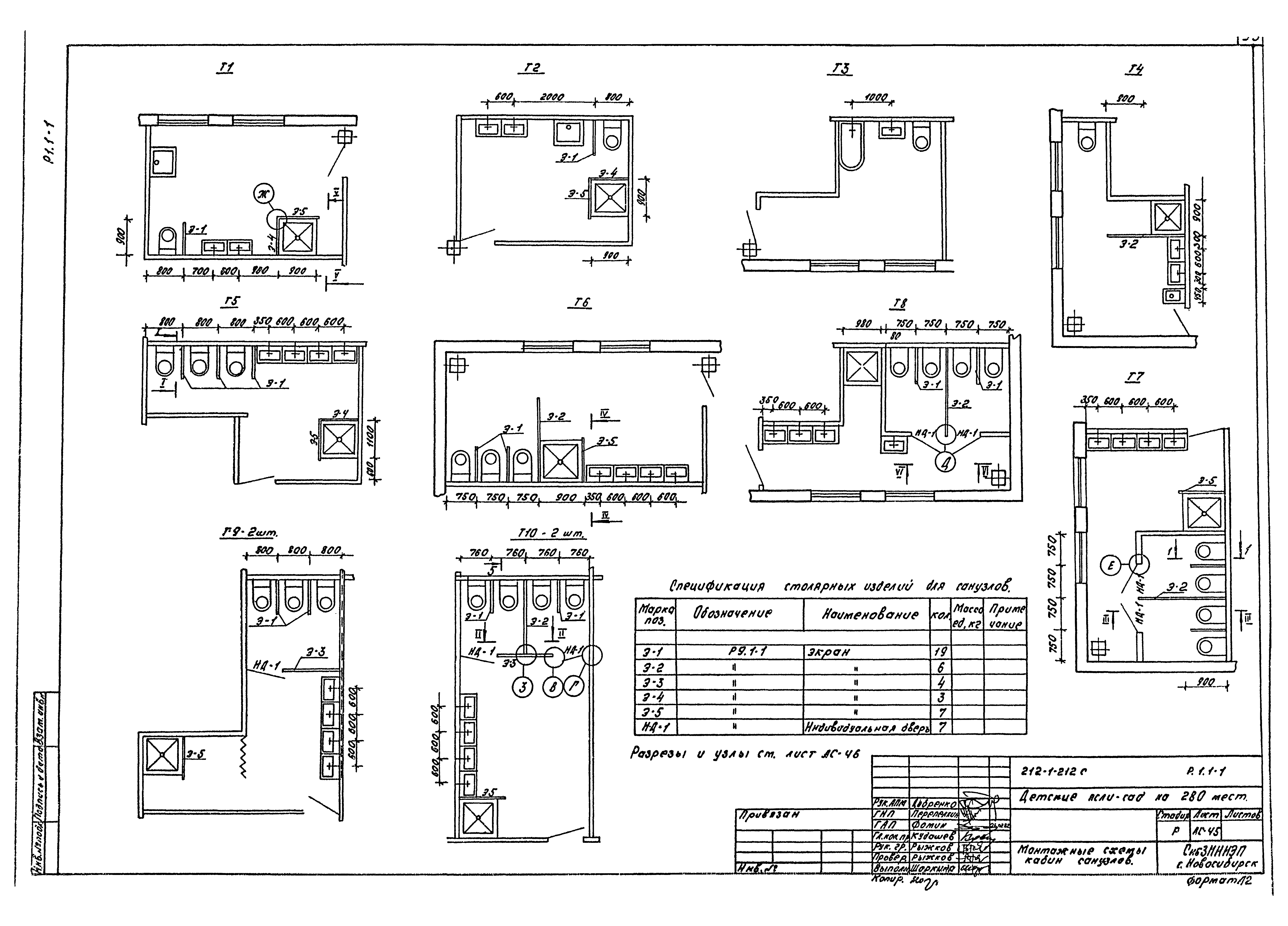
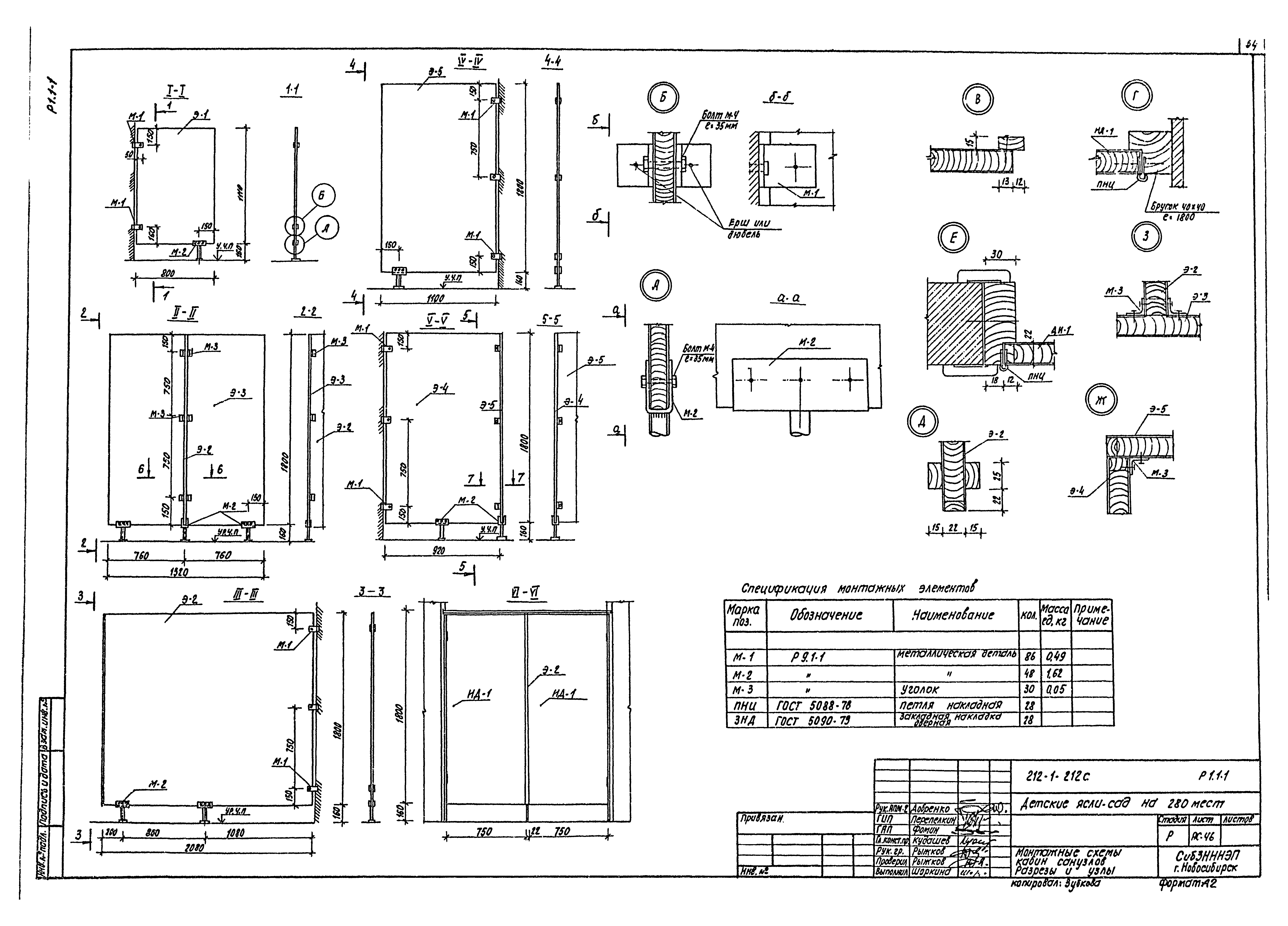
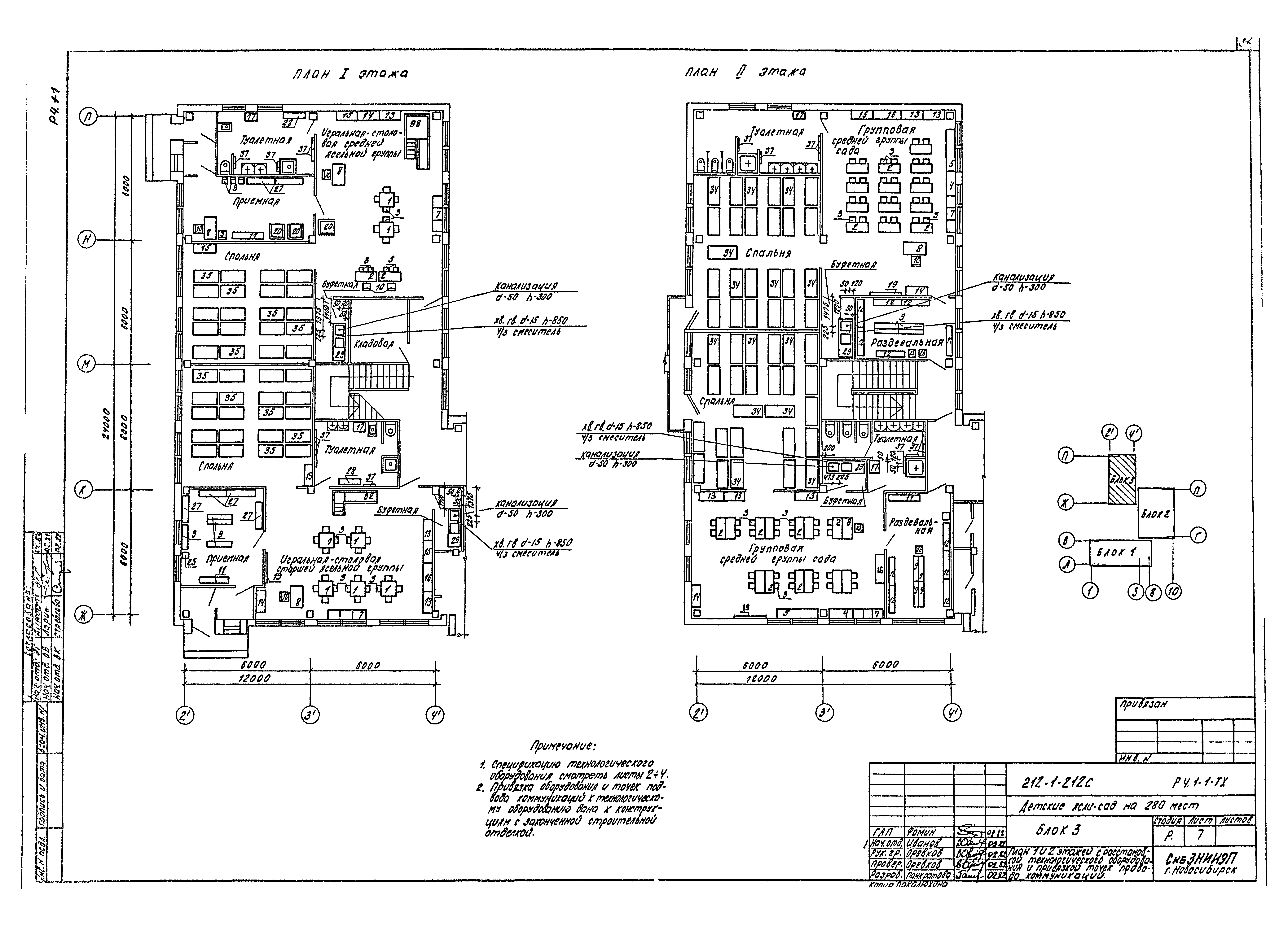
Скачать Типовой проект 212-1-212с Альбом I. Раздел 1.1-1. Архитектурно строительная часть. Радел 4.1-1. ТехнологияДата актуализации: 01.01.2021 Типовой проект 212-1-212с
Альбом I. Раздел 1.1-1. Архитектурно строительная часть. Радел 4.1-1. Технология| Обозначение: | Типовой проект 212-1-212с | | Обозначение англ: | 212-1-212с | | Статус: | действует | | Название рус.: | Альбом I. Раздел 1.1-1. Архитектурно строительная часть. Радел 4.1-1. Технология | | Дата добавления в базу: | 05.05.2017 | | Дата актуализации: | 01.01.2021 | | Дата введения: | 11.03.1982 | | Разработан: | СибЗНИИЭП
| | Утверждён: | 13.03.1981 Госгражданстрой (Gosgrazhdanstroy 109)
| | Издан: | ЦИТП Госстроя СССР (CITP, Gosstroy (USSR) 1982 г. )
|
                                                              
|