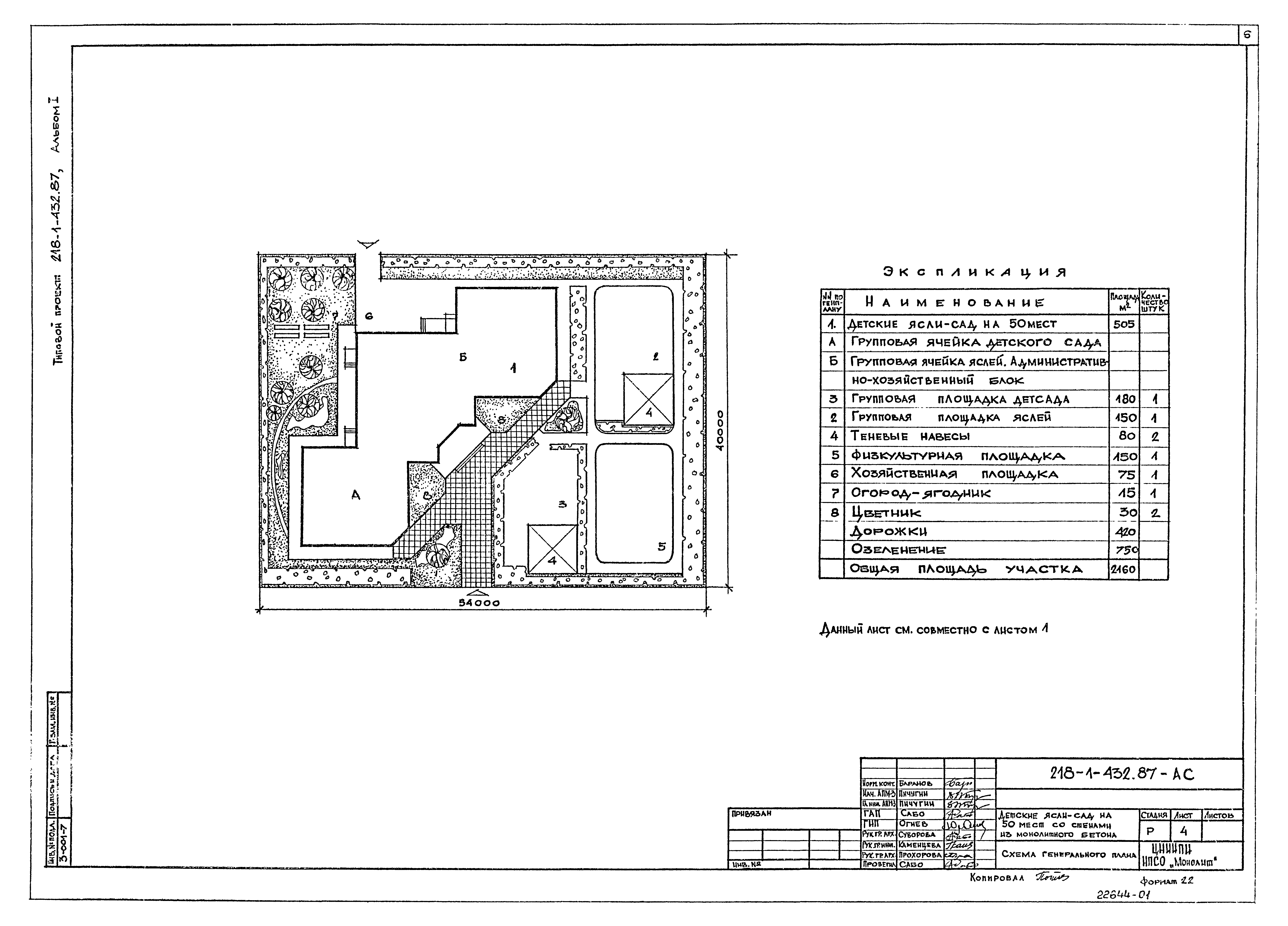
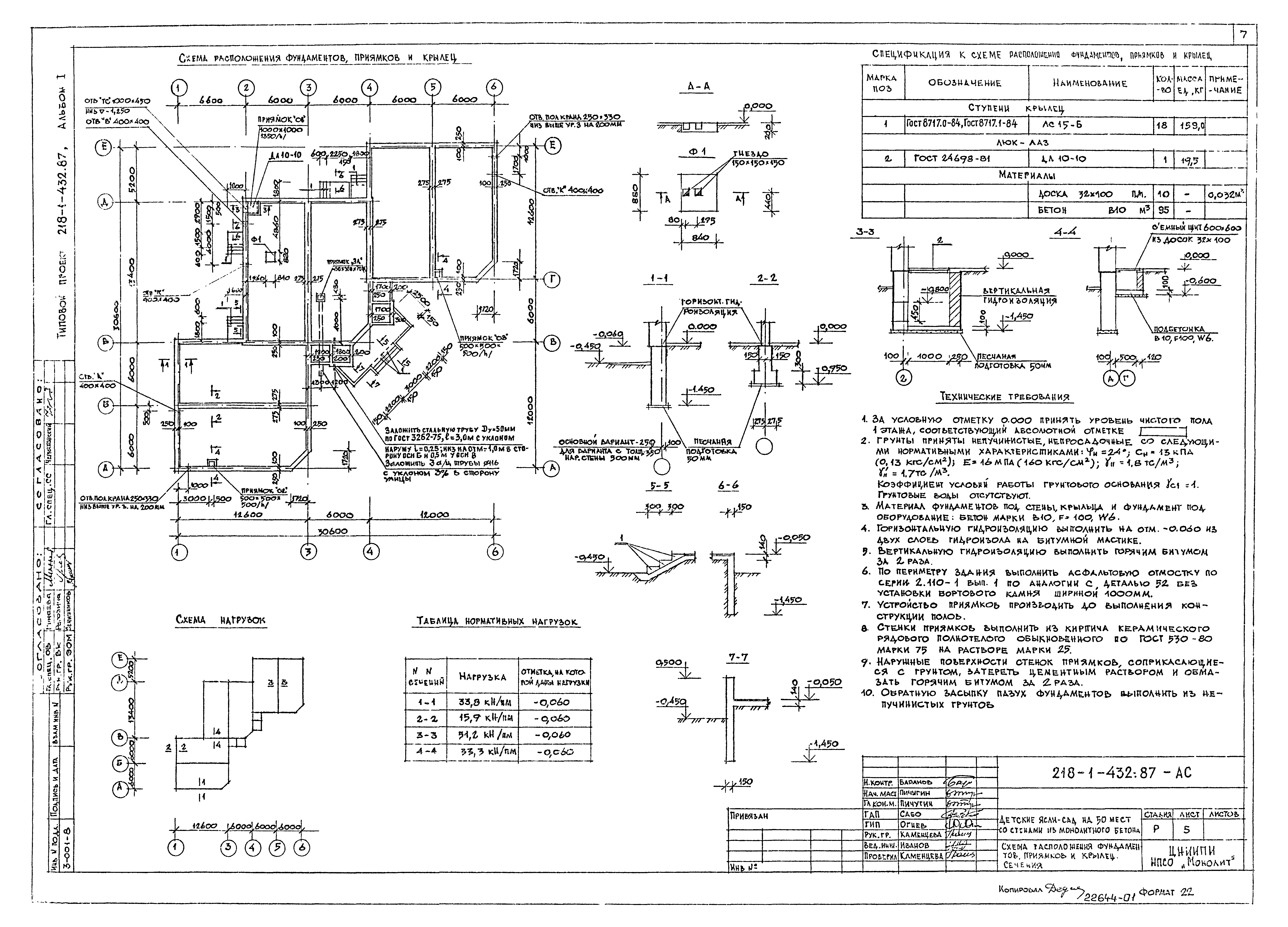
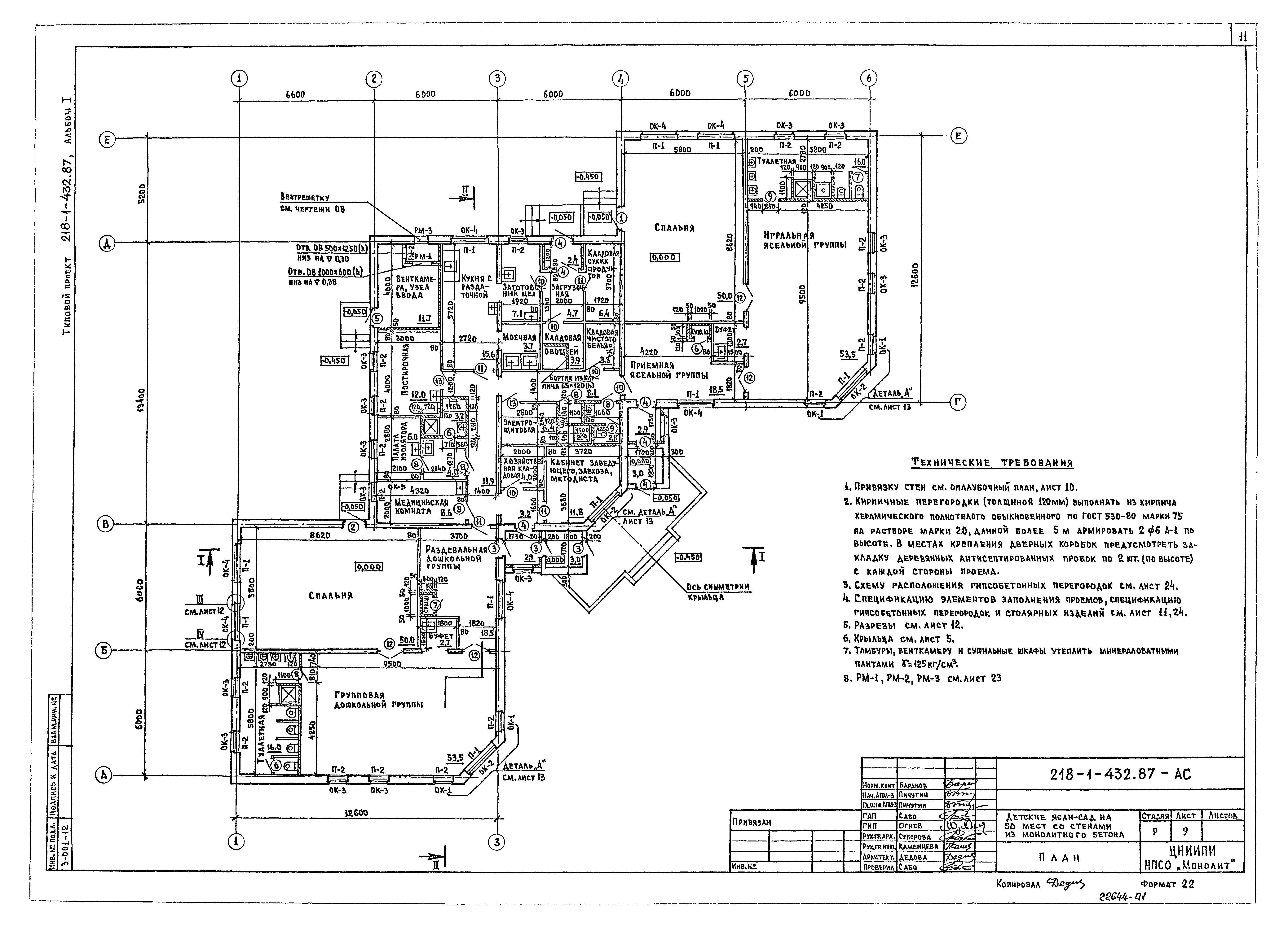
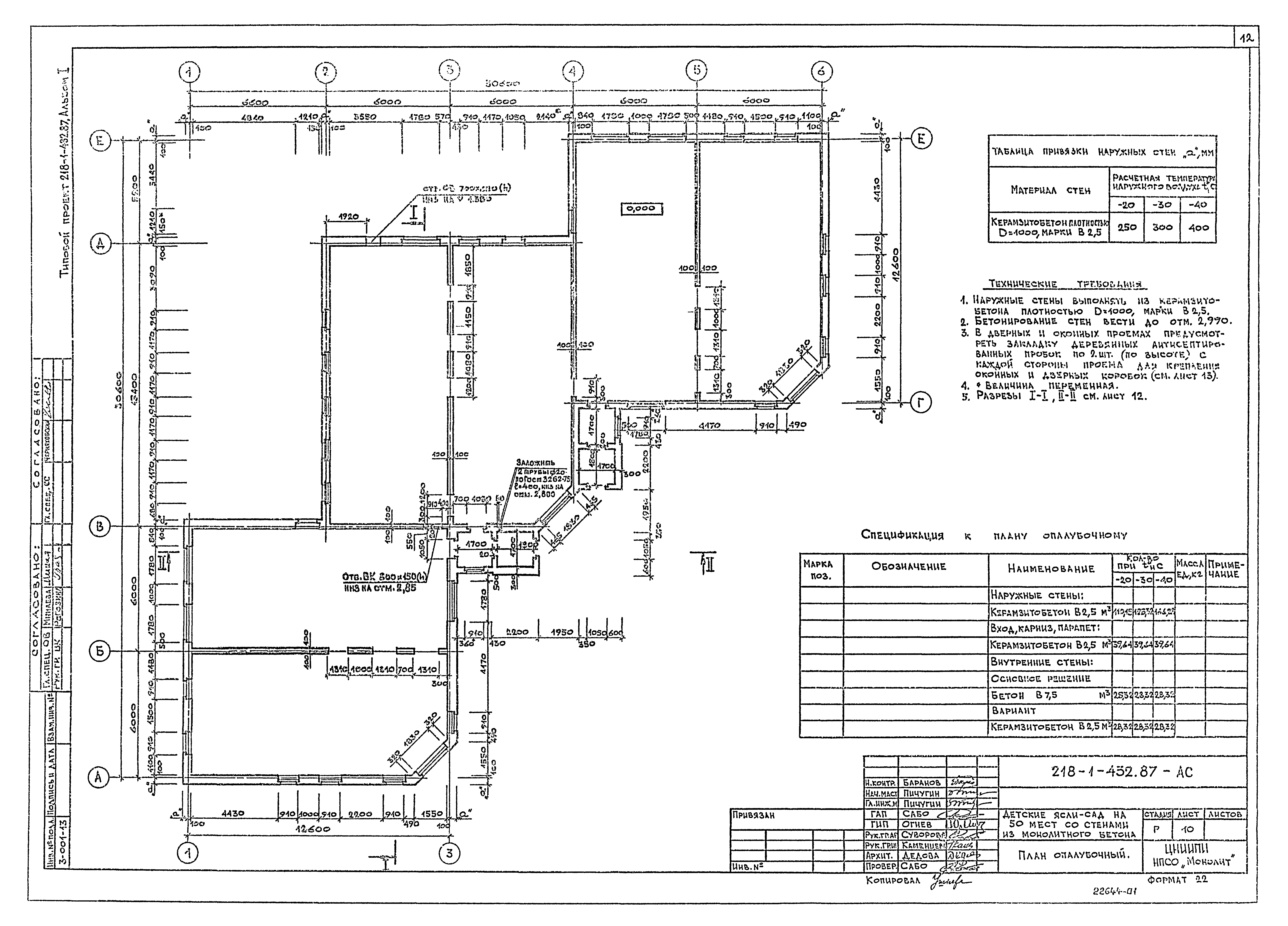
Скачать Типовой проект 218-1-432.87 Альбом I. Архитектурно-строительные, технологические чертежиДата актуализации: 01.01.2021 Типовой проект 218-1-432.87
Альбом I. Архитектурно-строительные, технологические чертежи| Обозначение: | Типовой проект 218-1-432.87 | | Обозначение англ: | 218-1-432.87 | | Статус: | не определен законодательством | | Название рус.: | Альбом I. Архитектурно-строительные, технологические чертежи | | Дата добавления в базу: | 05.05.2017 | | Дата актуализации: | 01.01.2021 | | Дата введения: | 24.10.1986 | | Дата окончания срока действия: | 30.06.2003 | | Разработан: | ПСК ЦНИИПИ Монолит
| | Утверждён: | 24.10.1986 Госгражданстрой (Gosgrazhdanstroy 346)
| | Издан: | ЦИТП Госстроя СССР (CITP, Gosstroy (USSR) 1988 г. )
|
                            
|