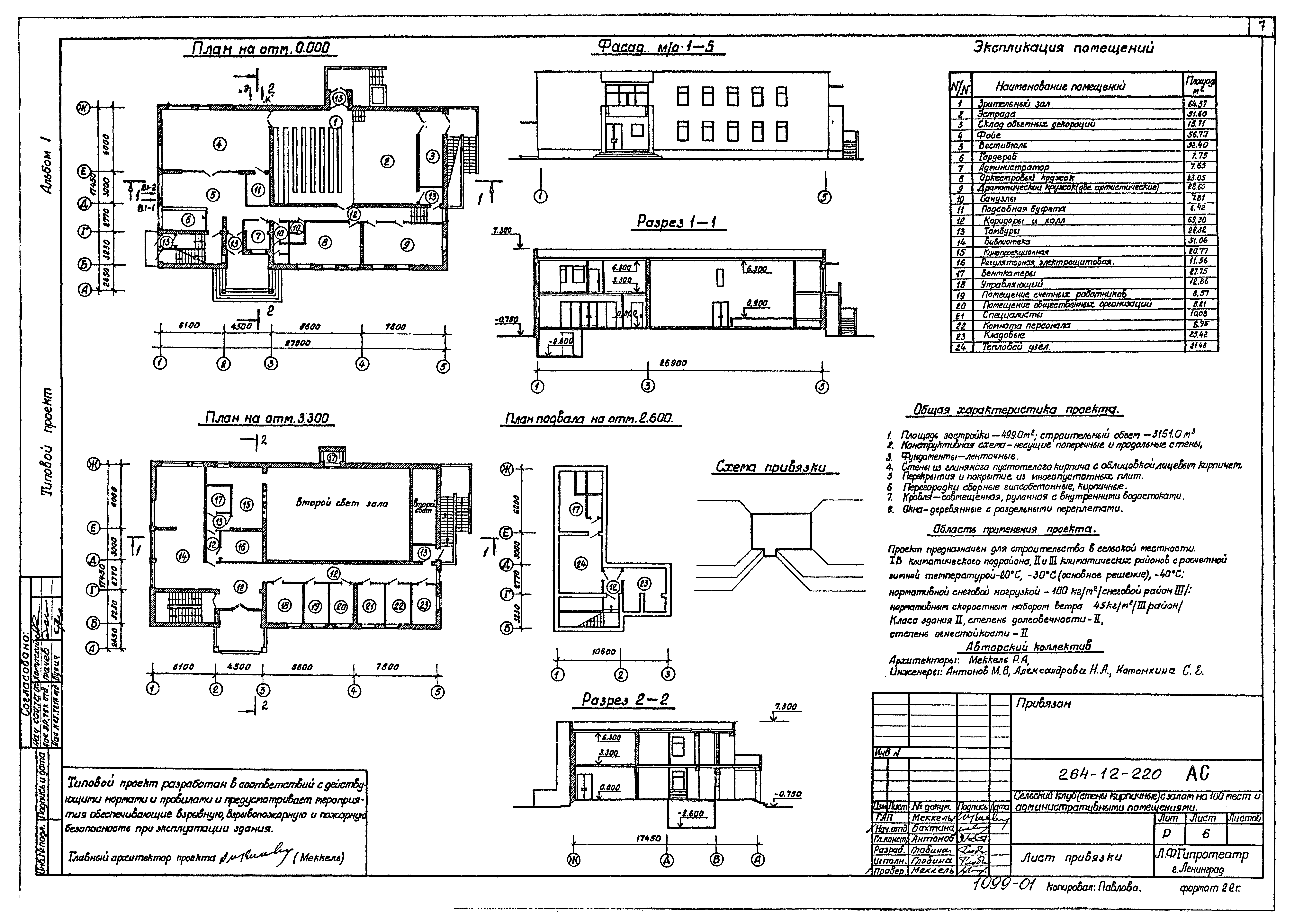
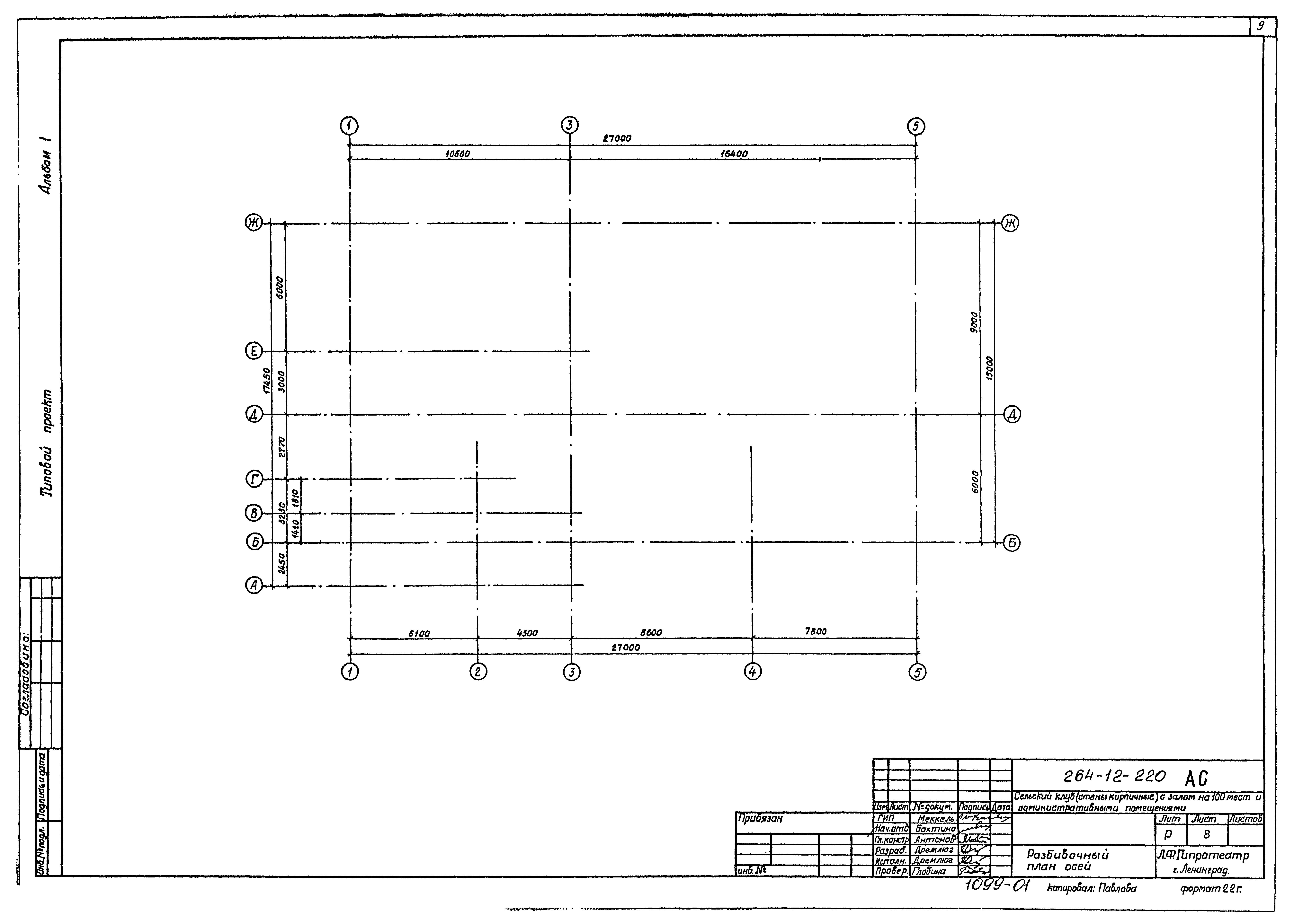
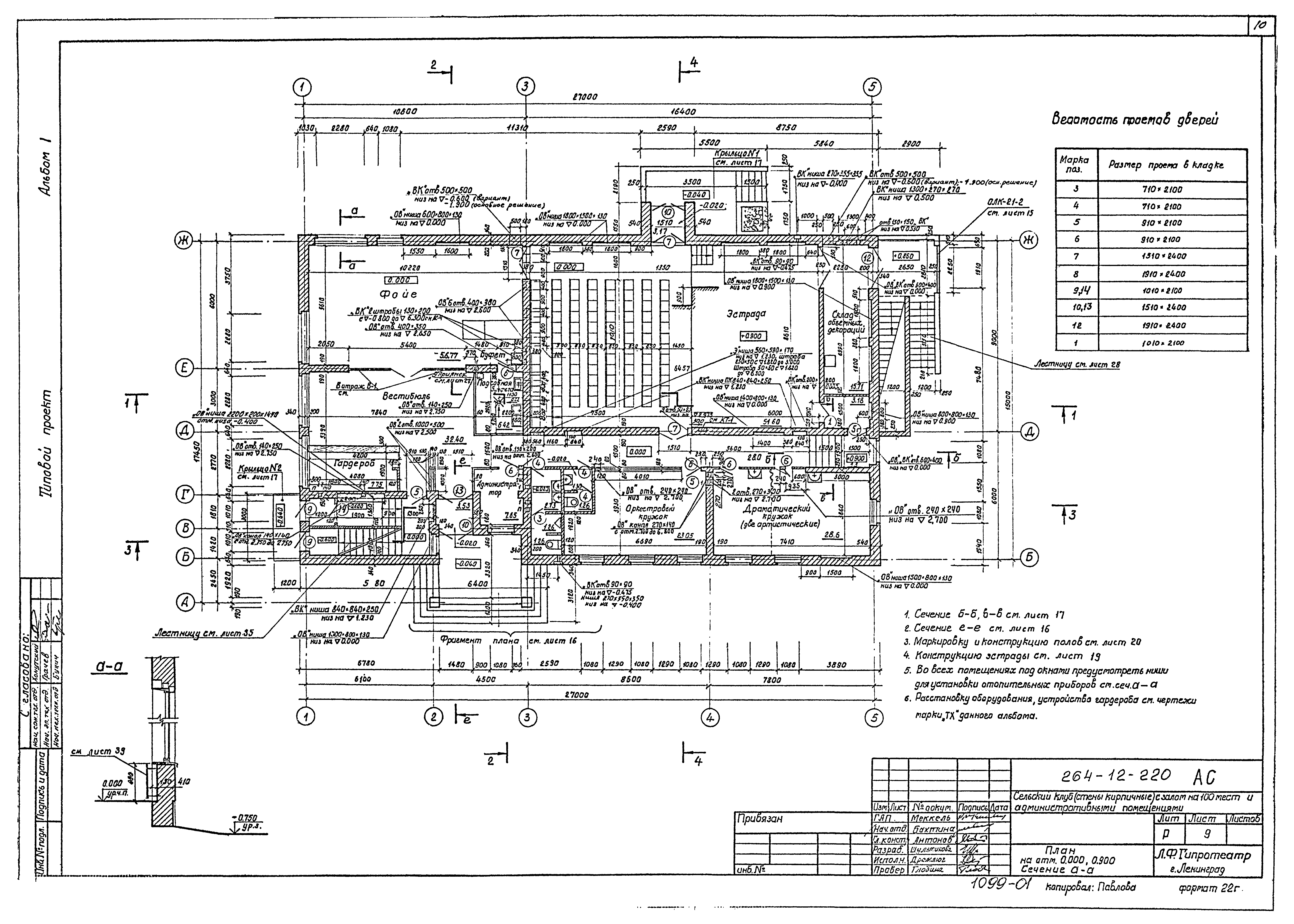
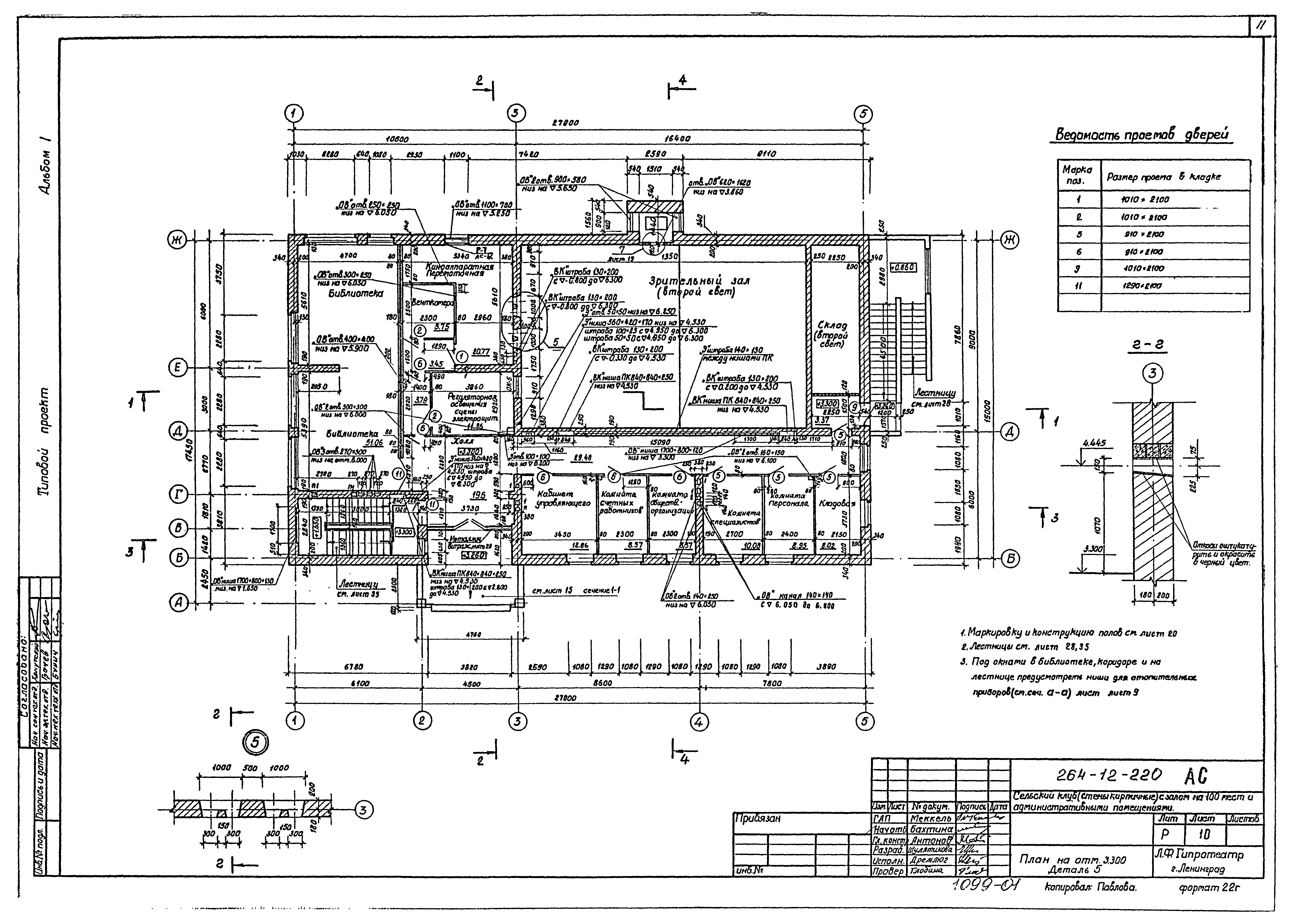
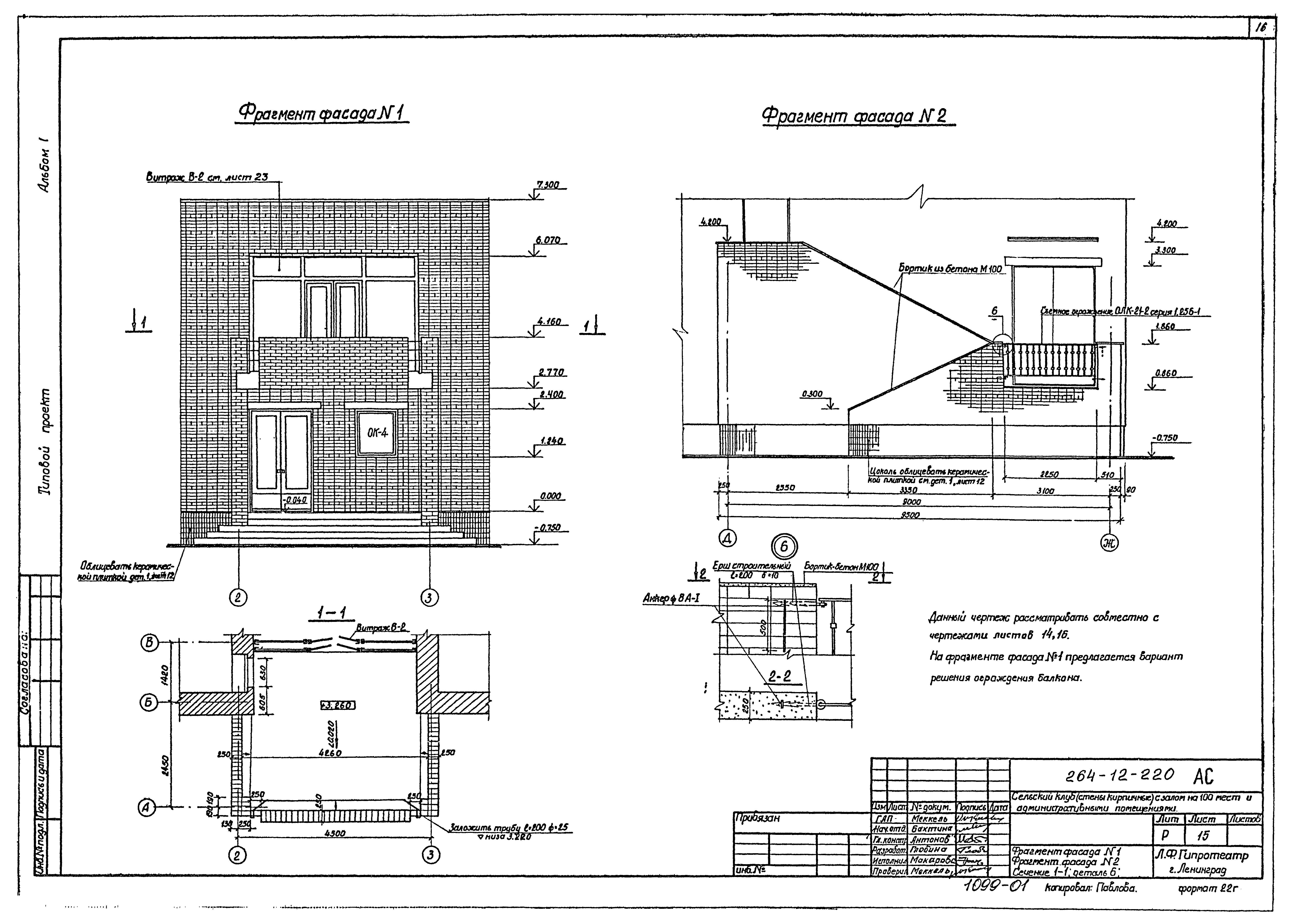
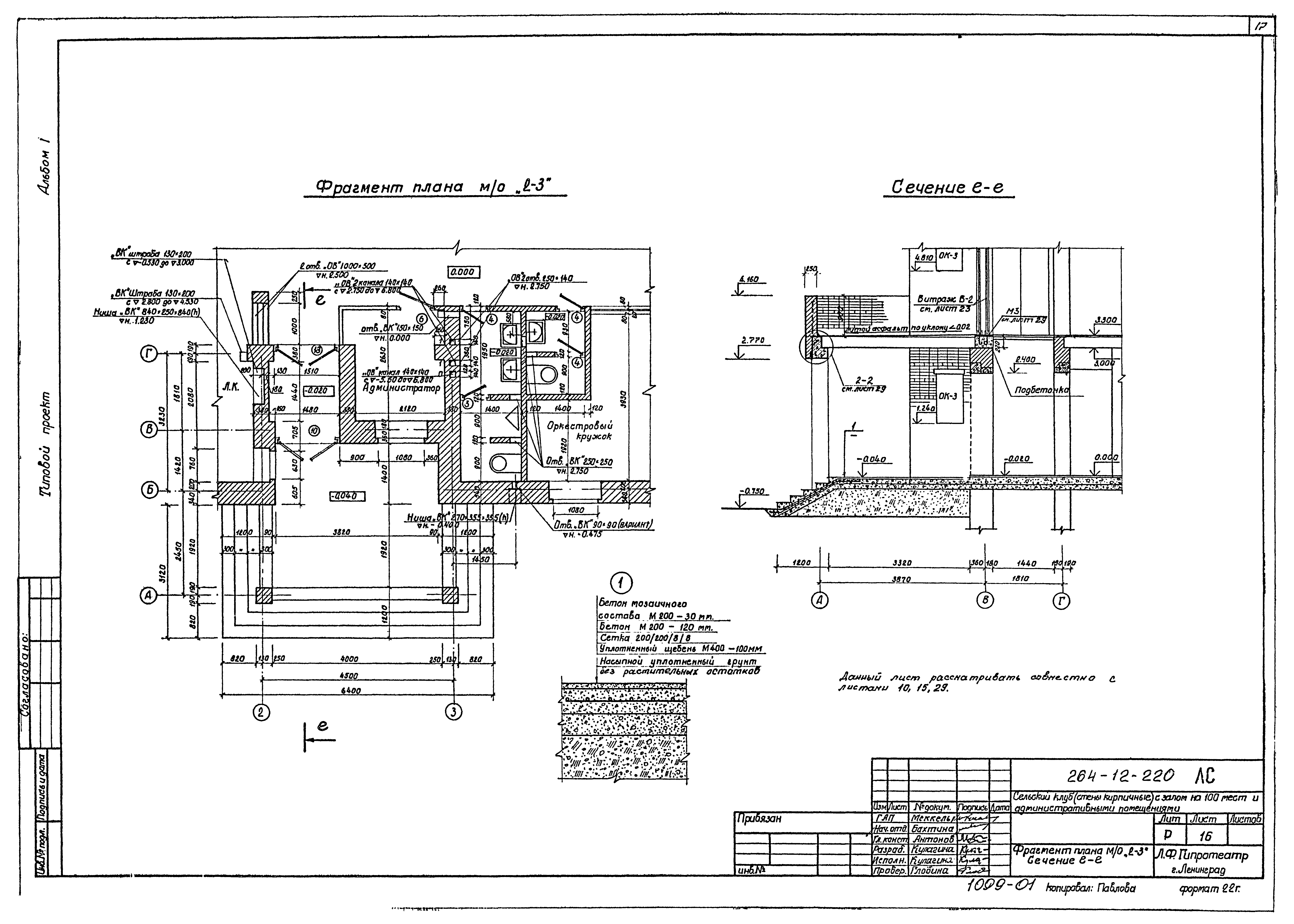
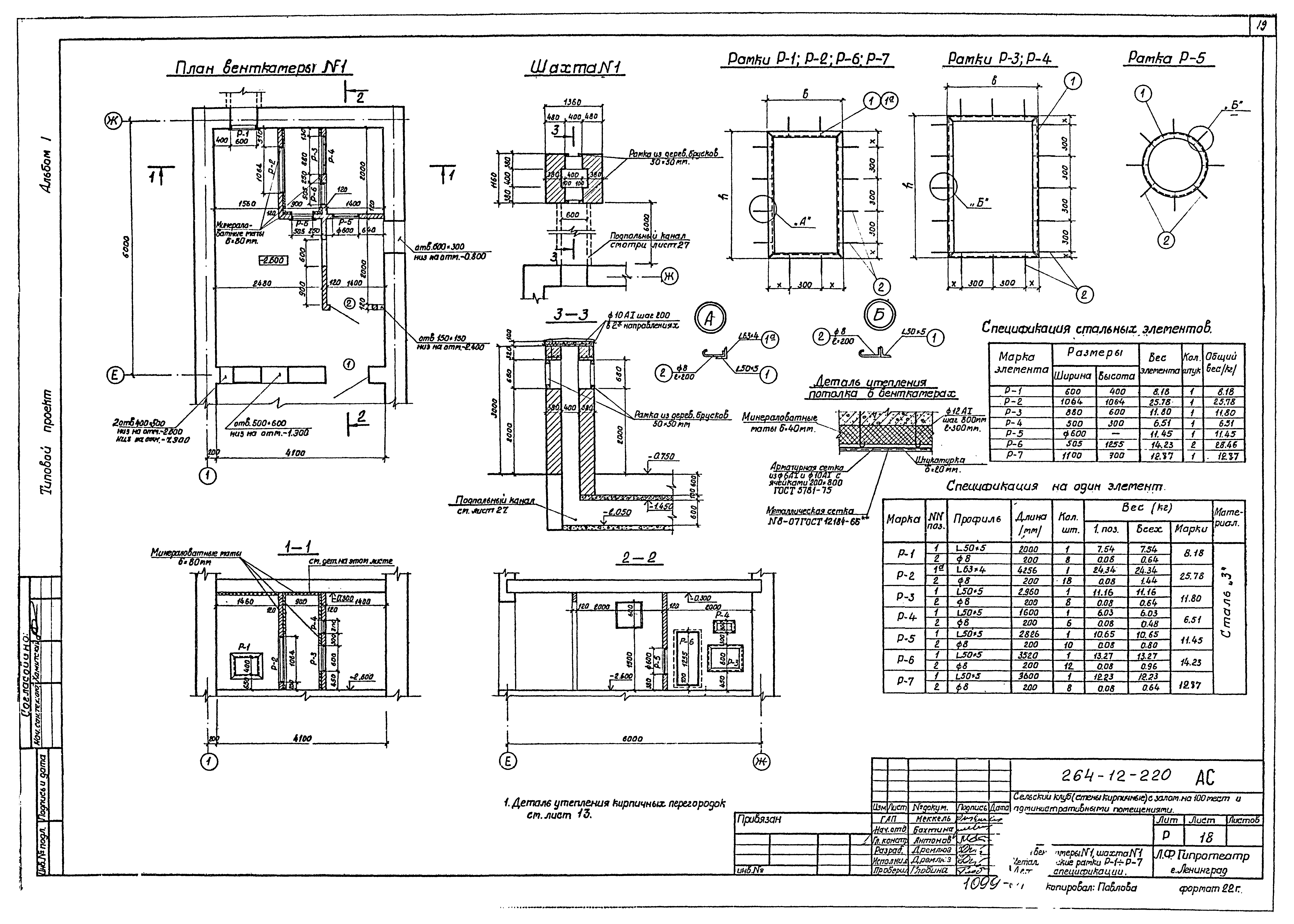
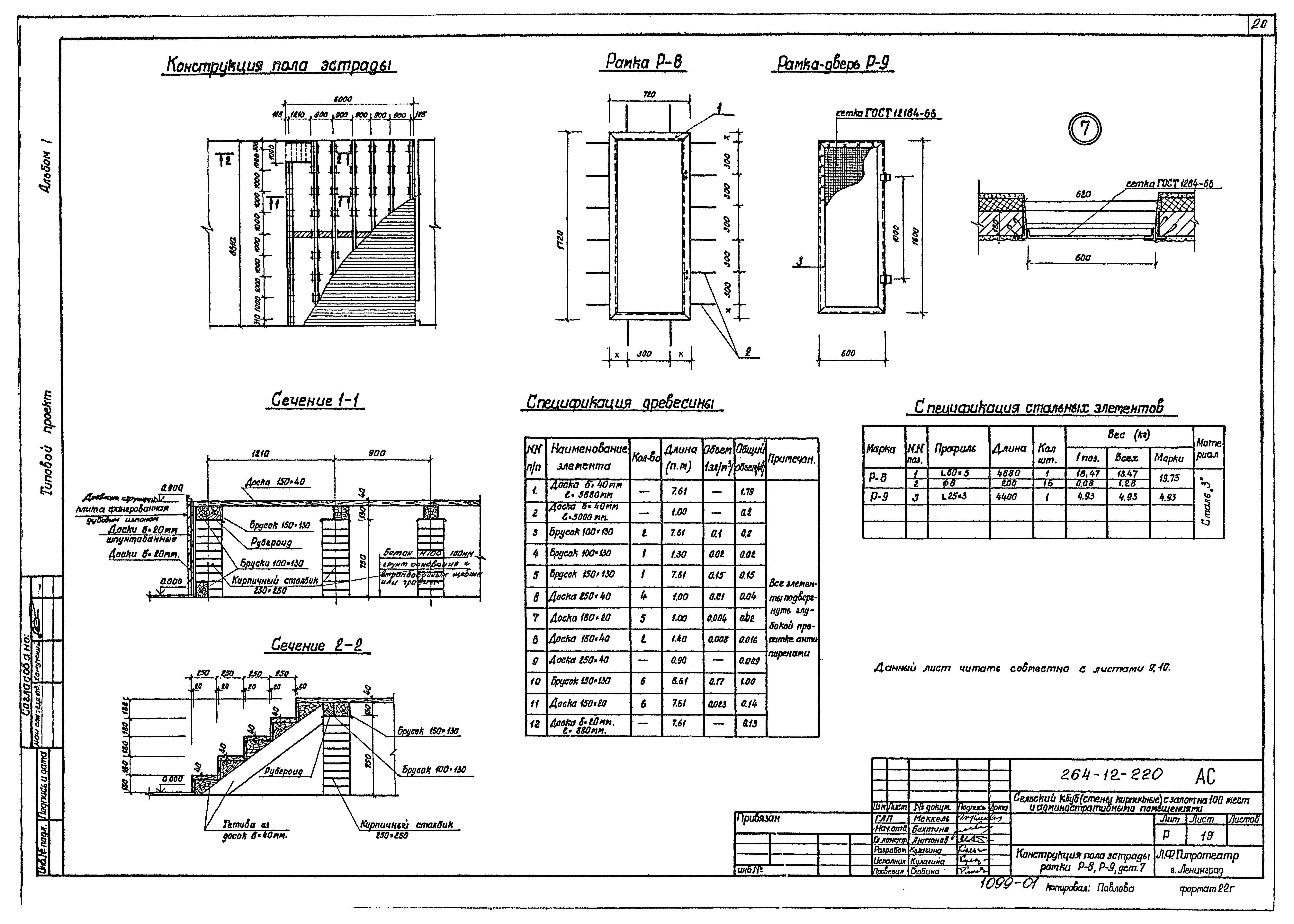
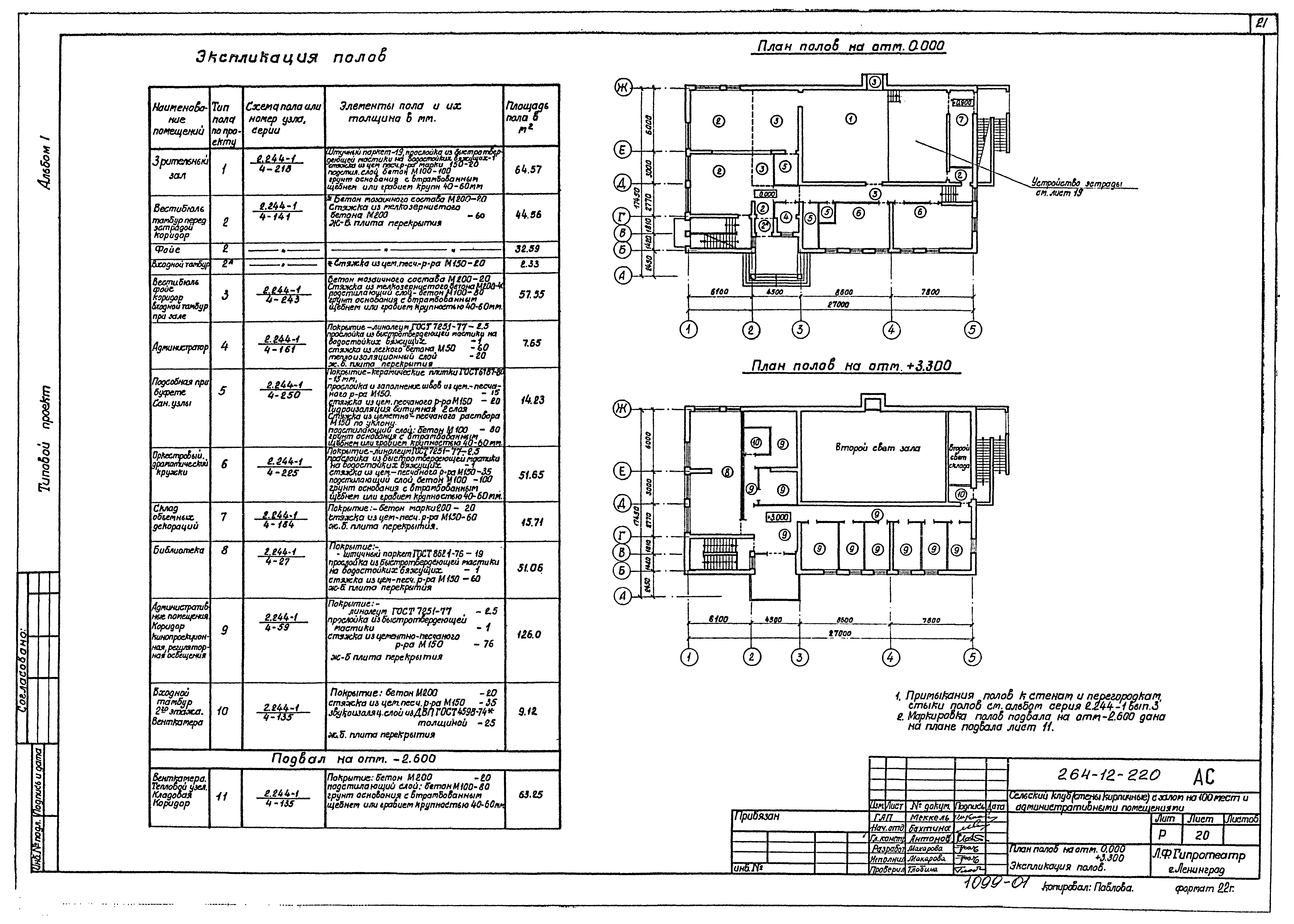
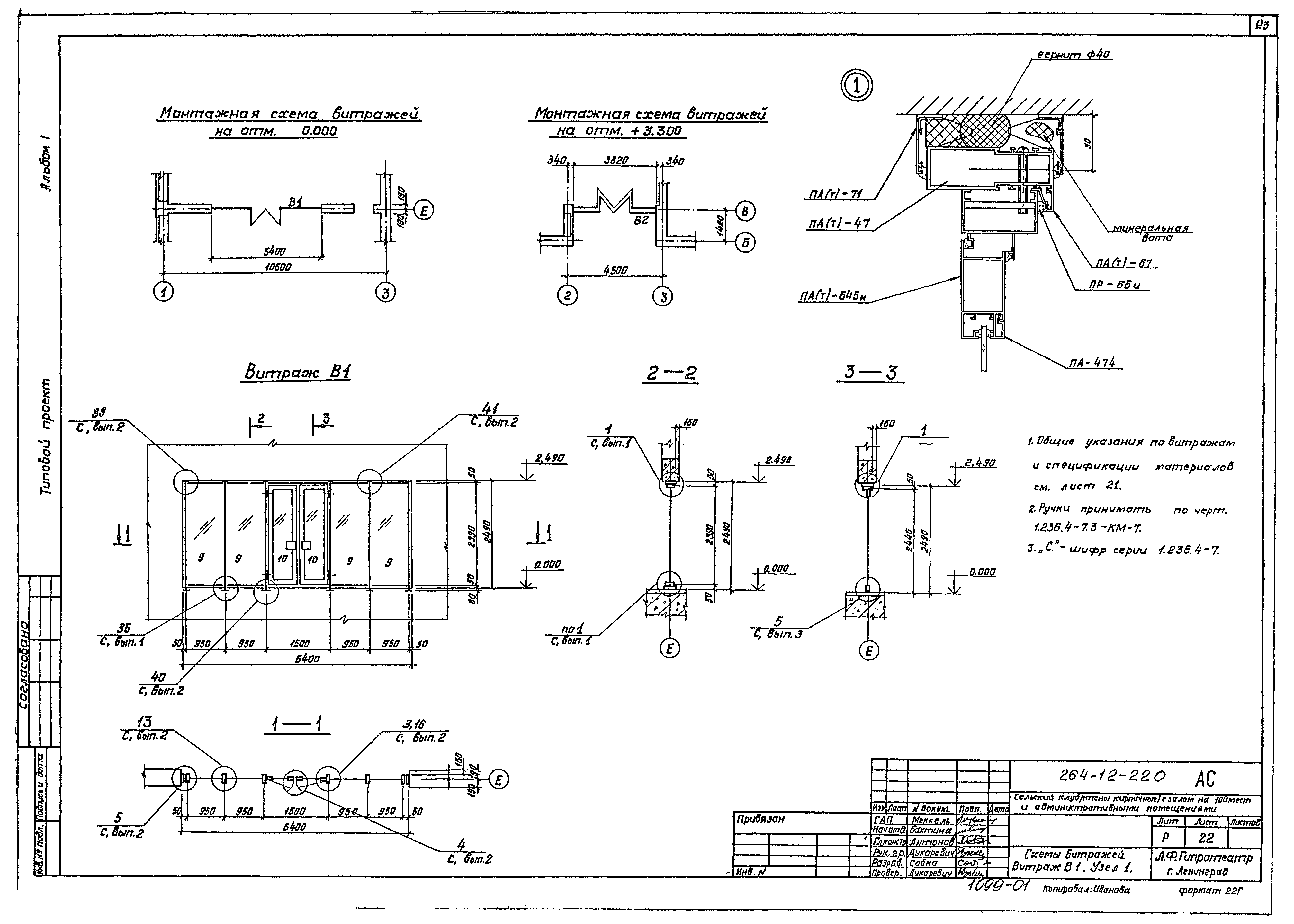
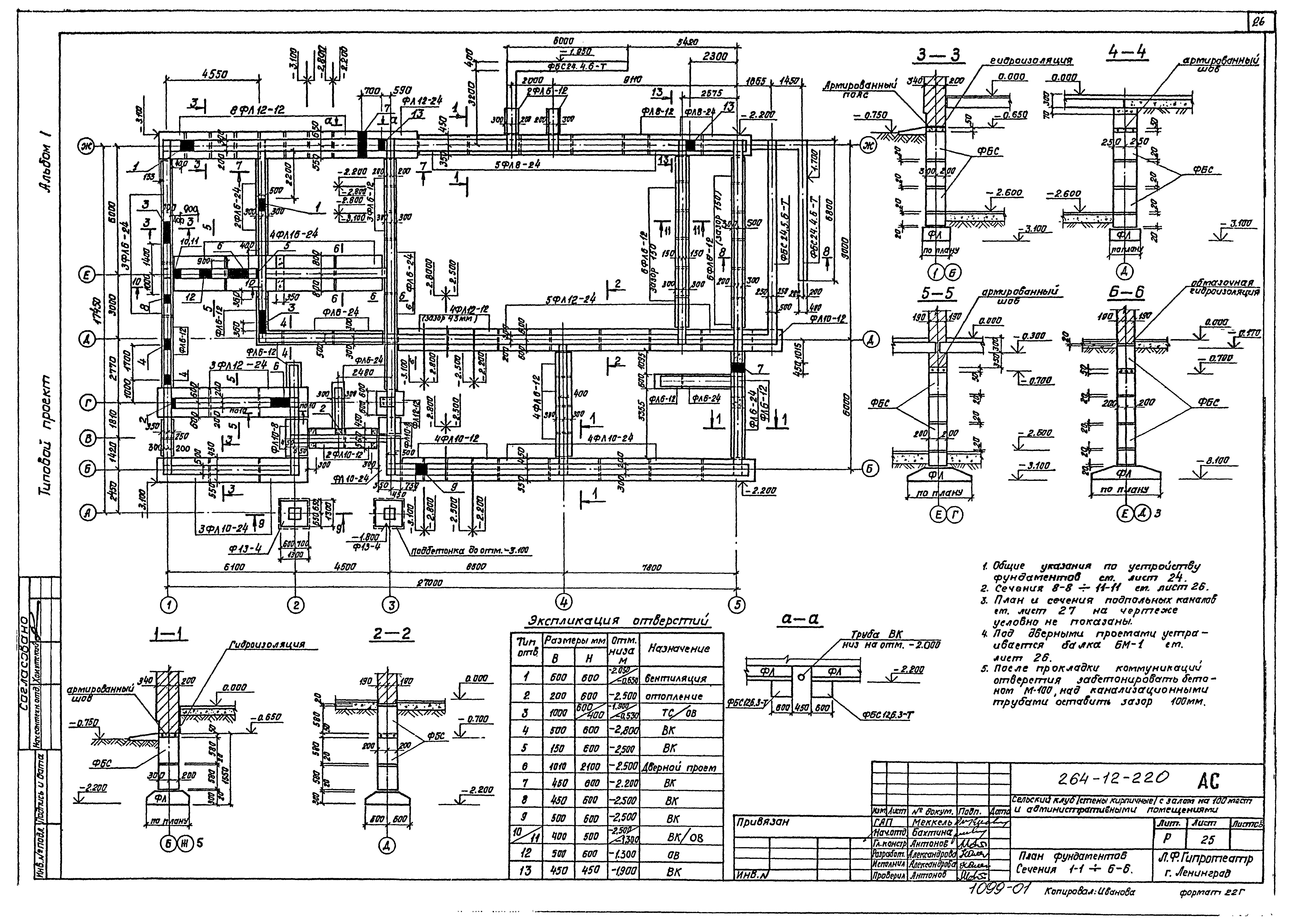
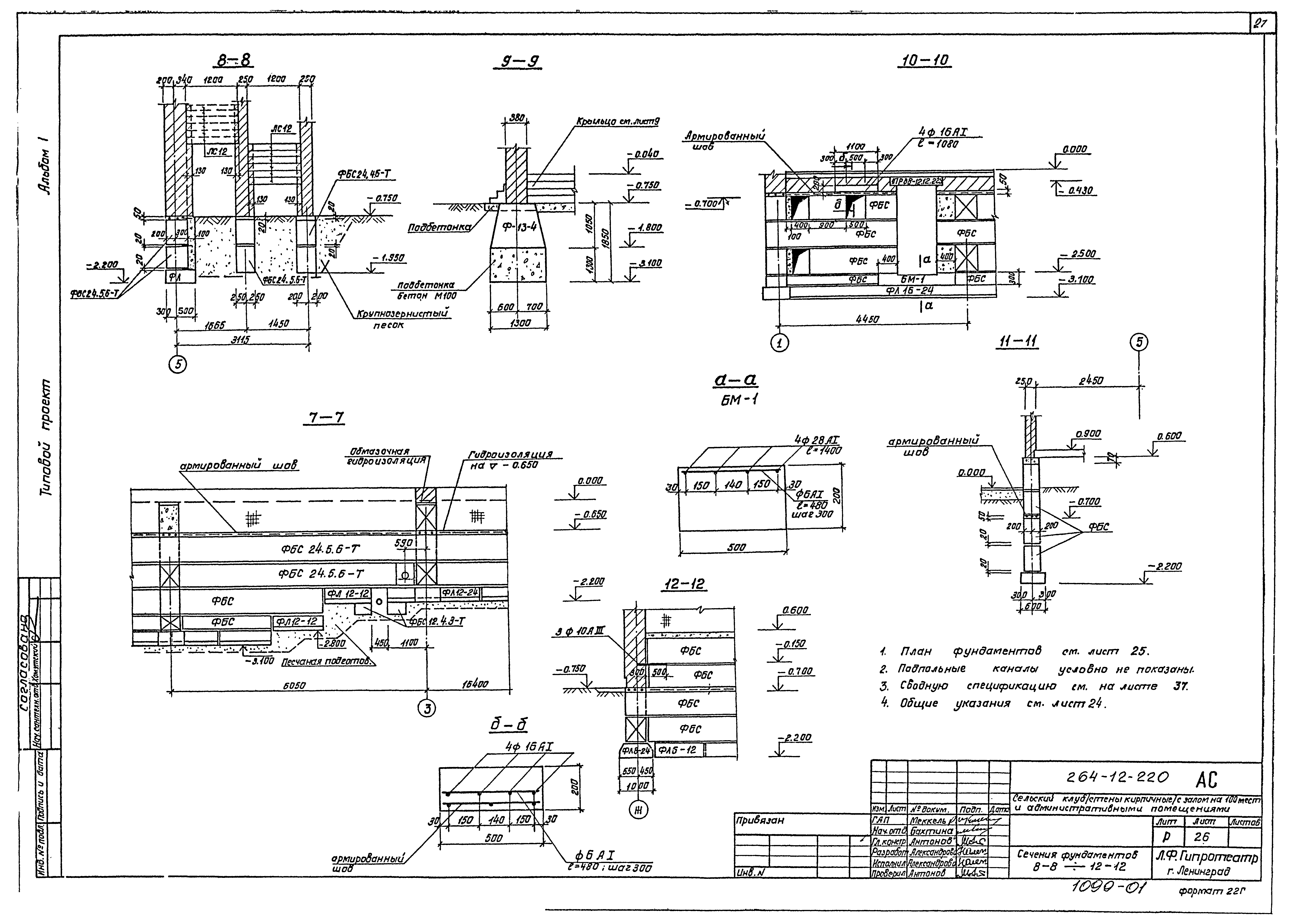
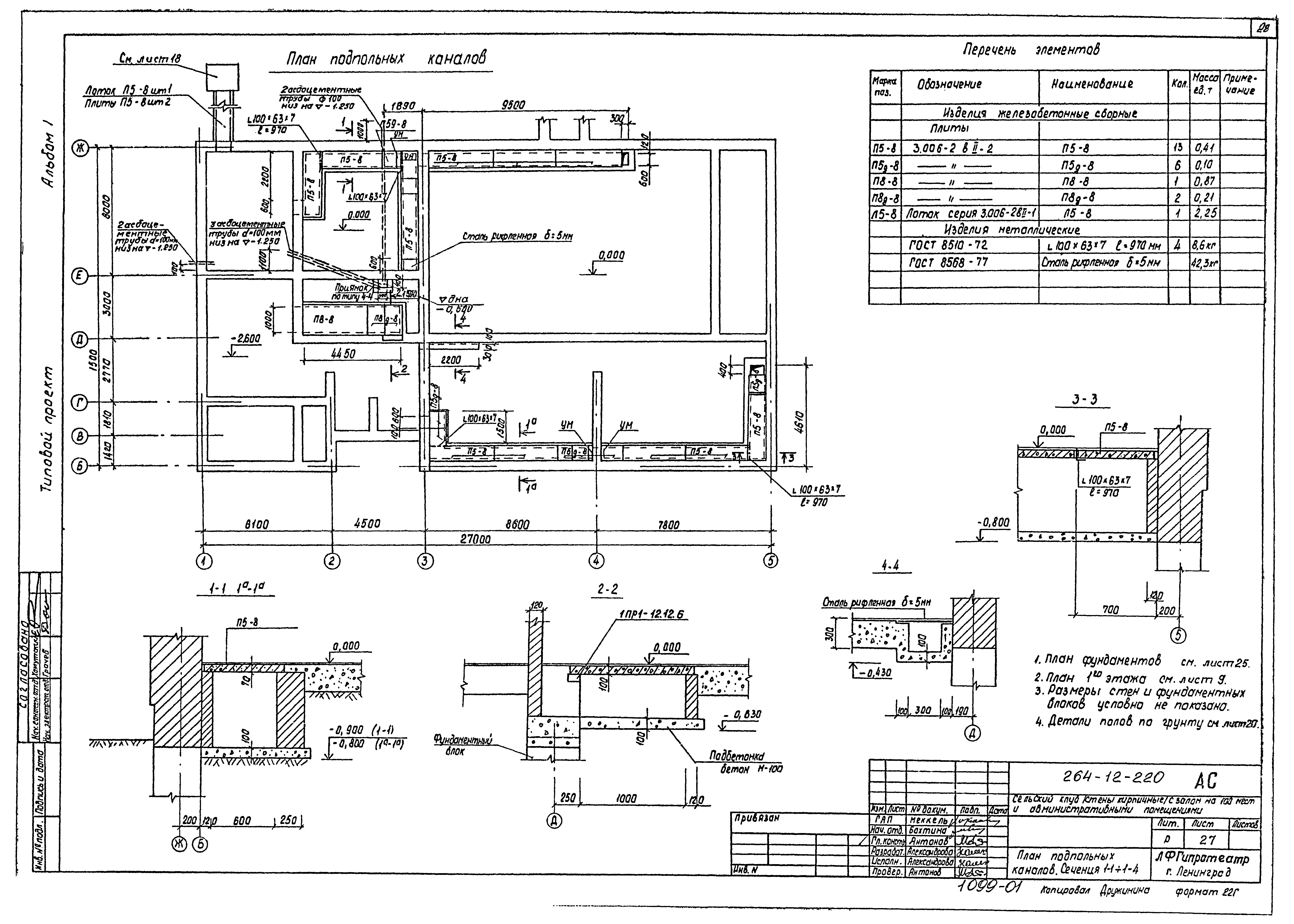
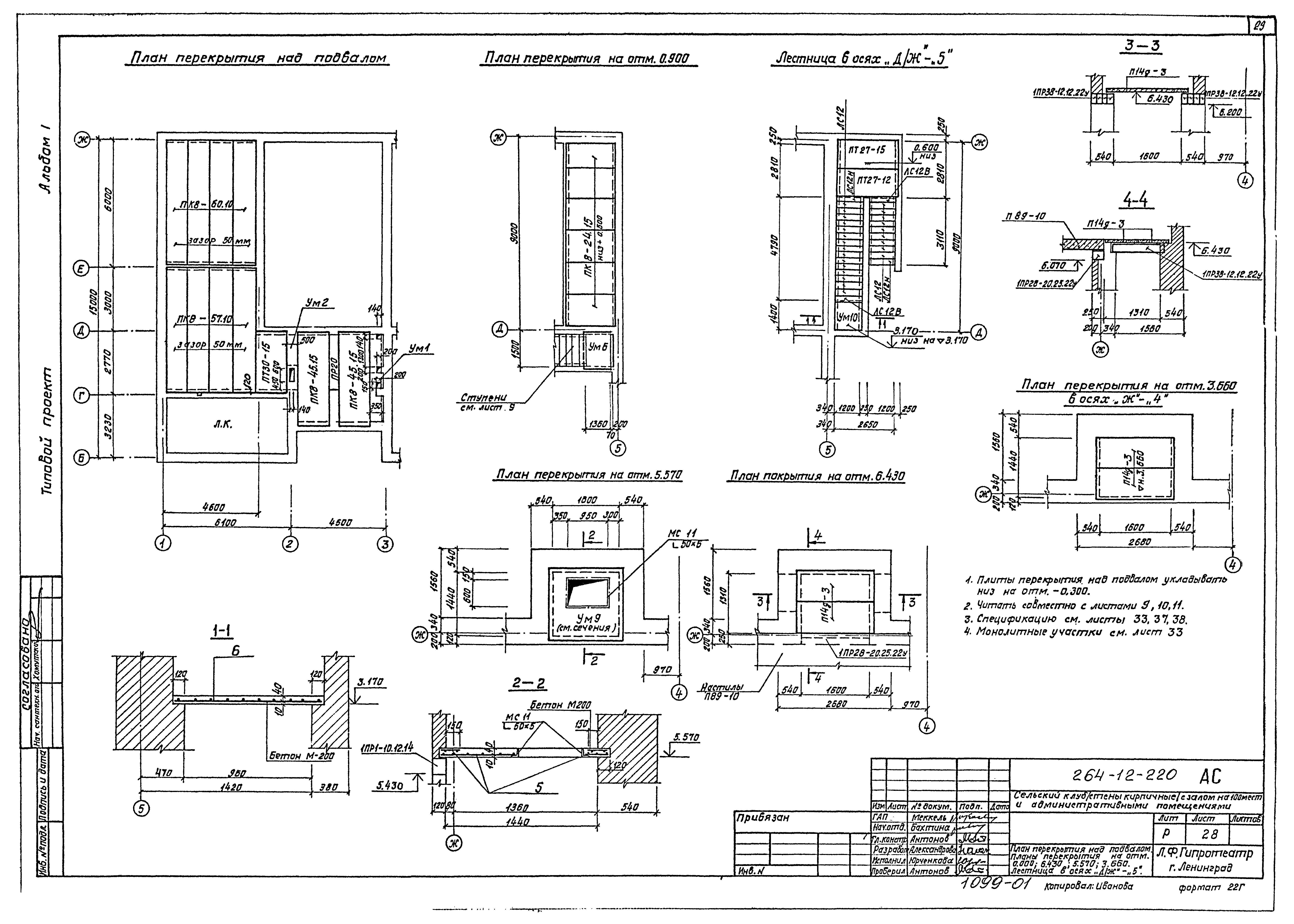
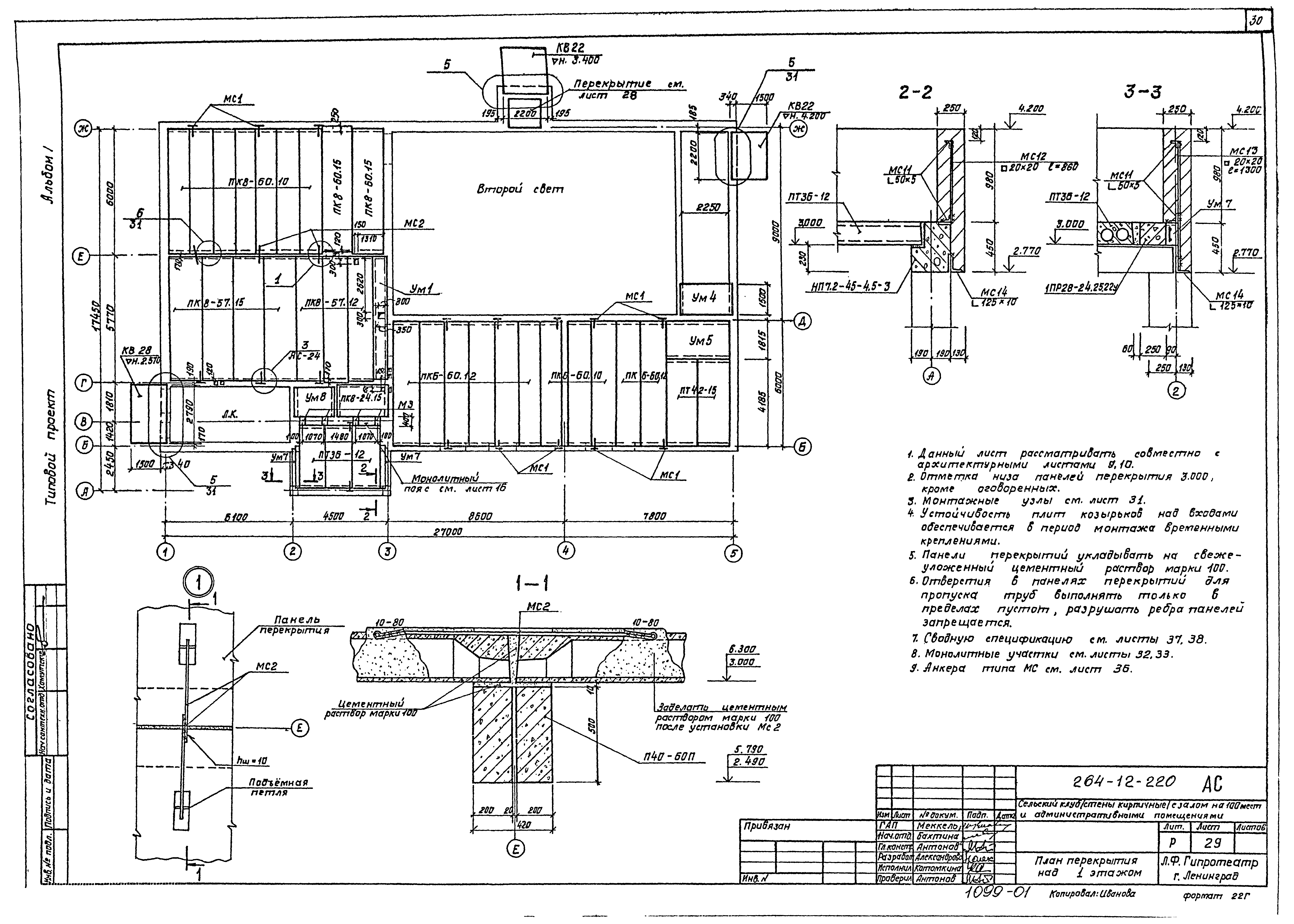
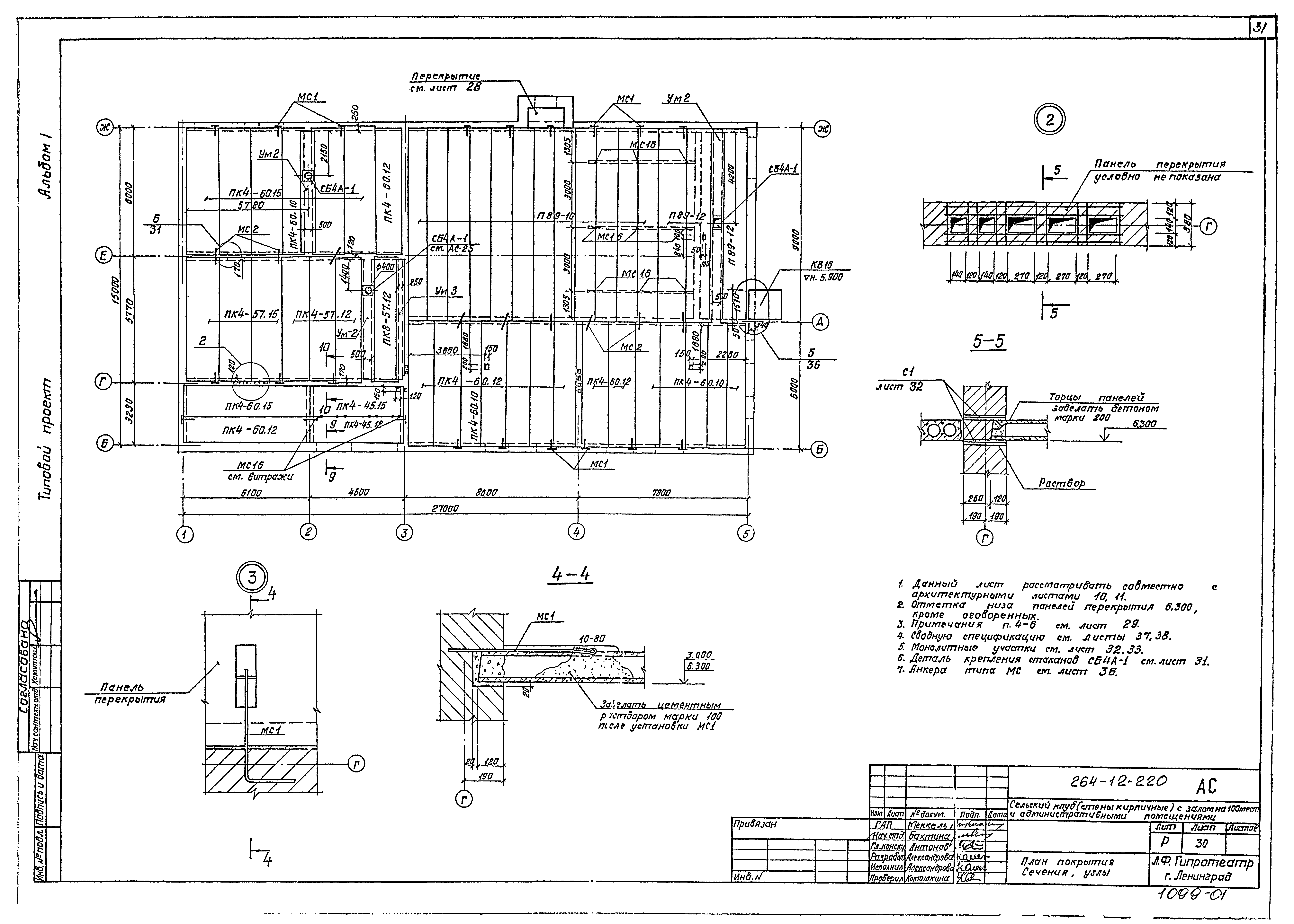
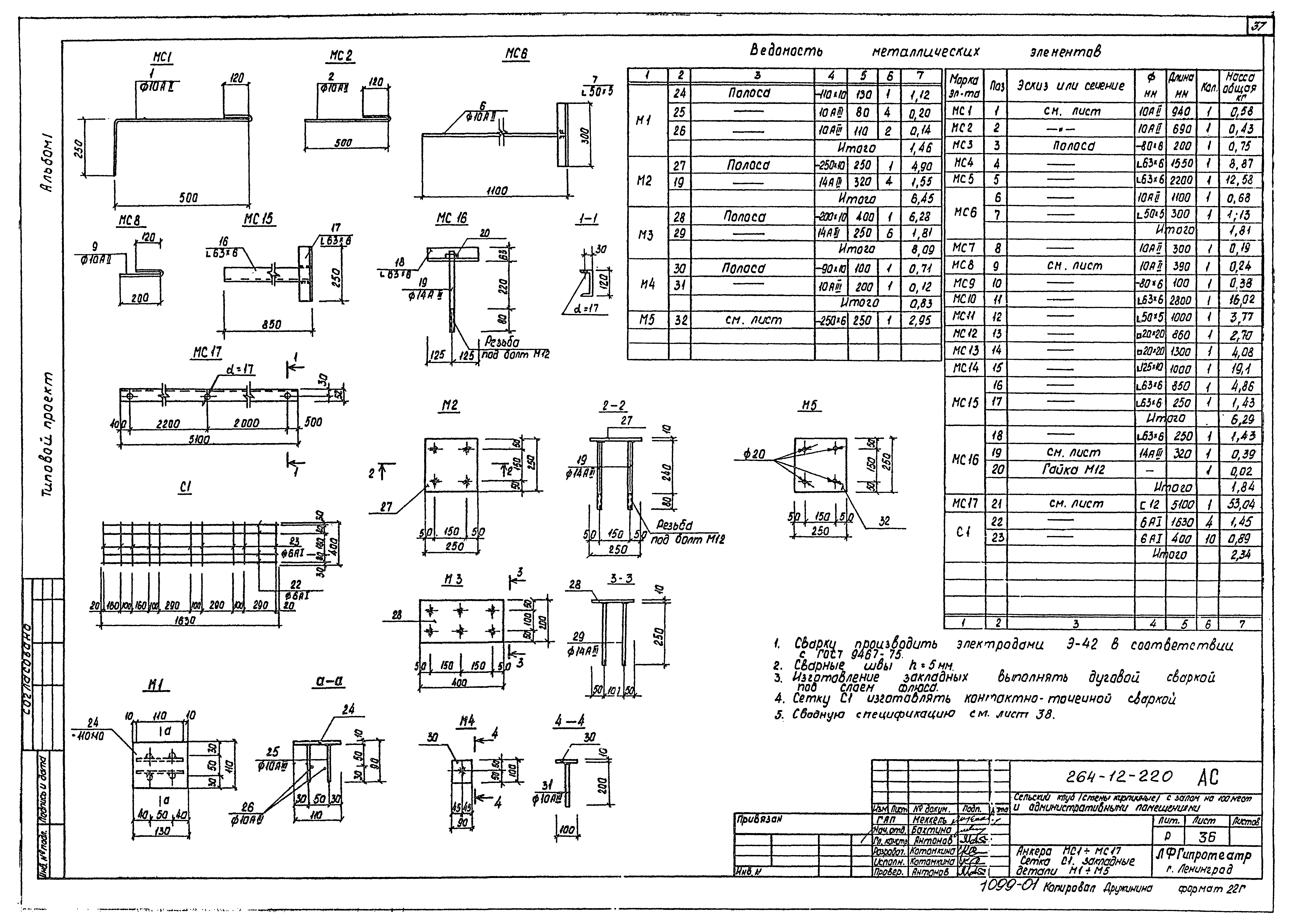
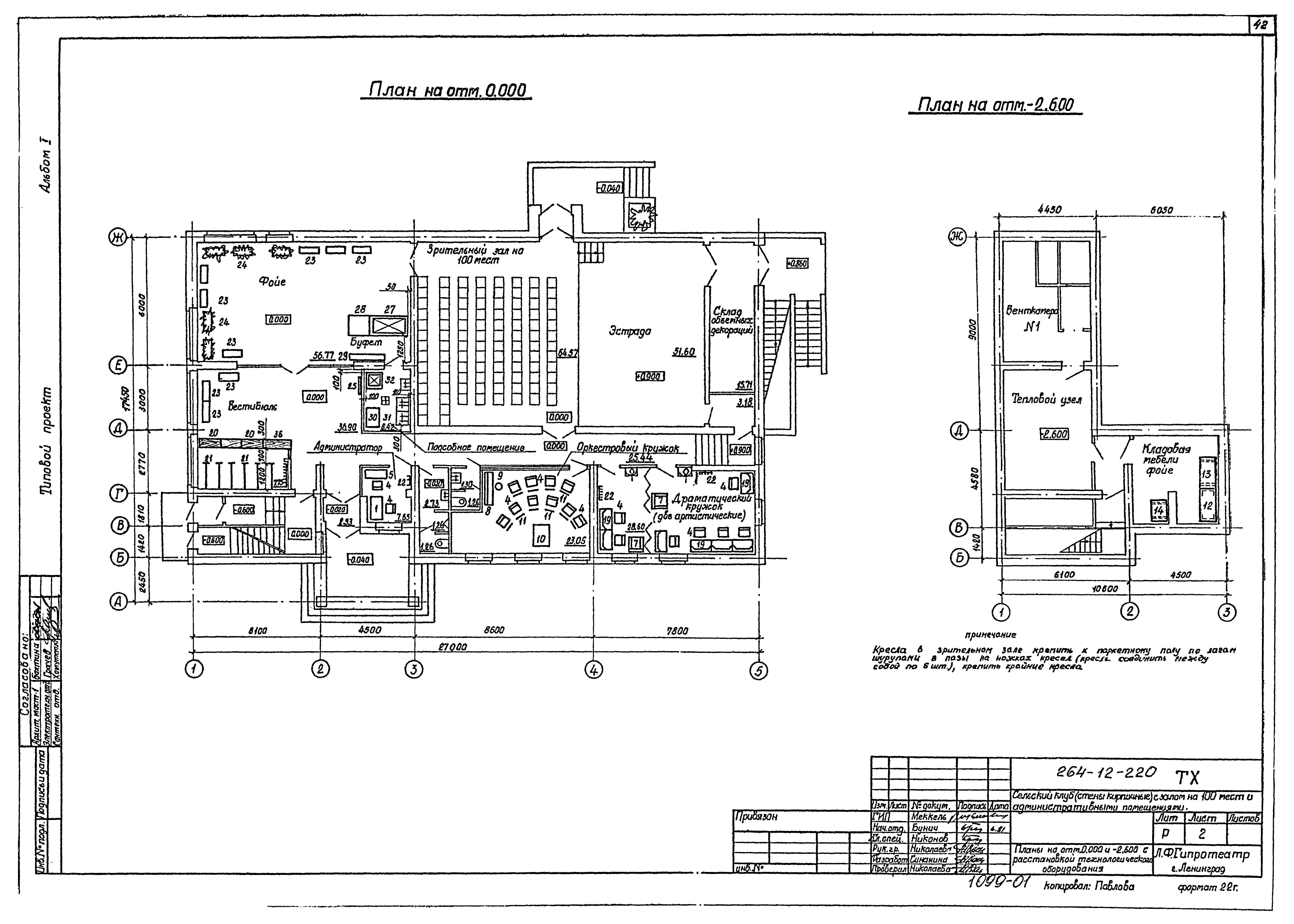
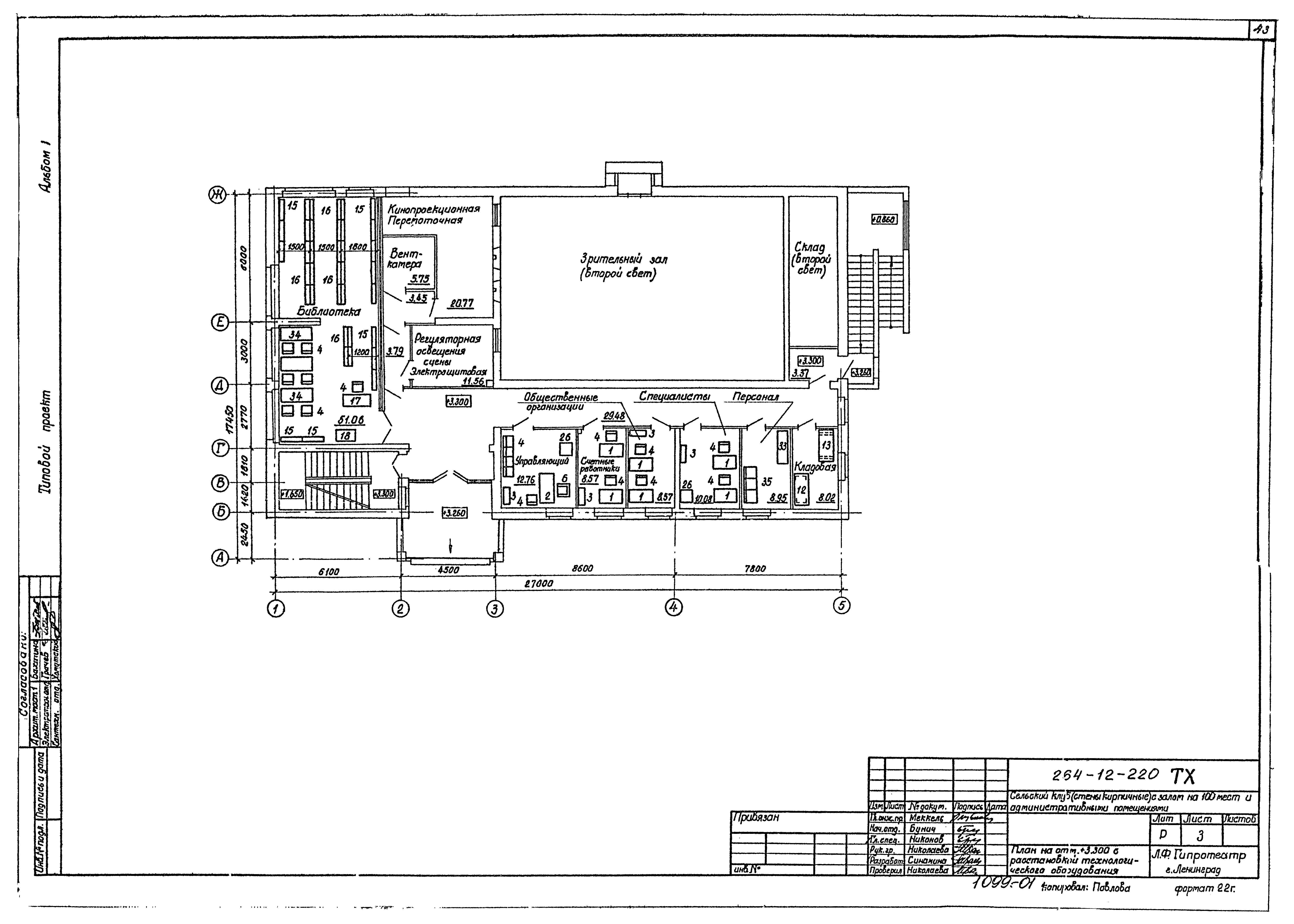
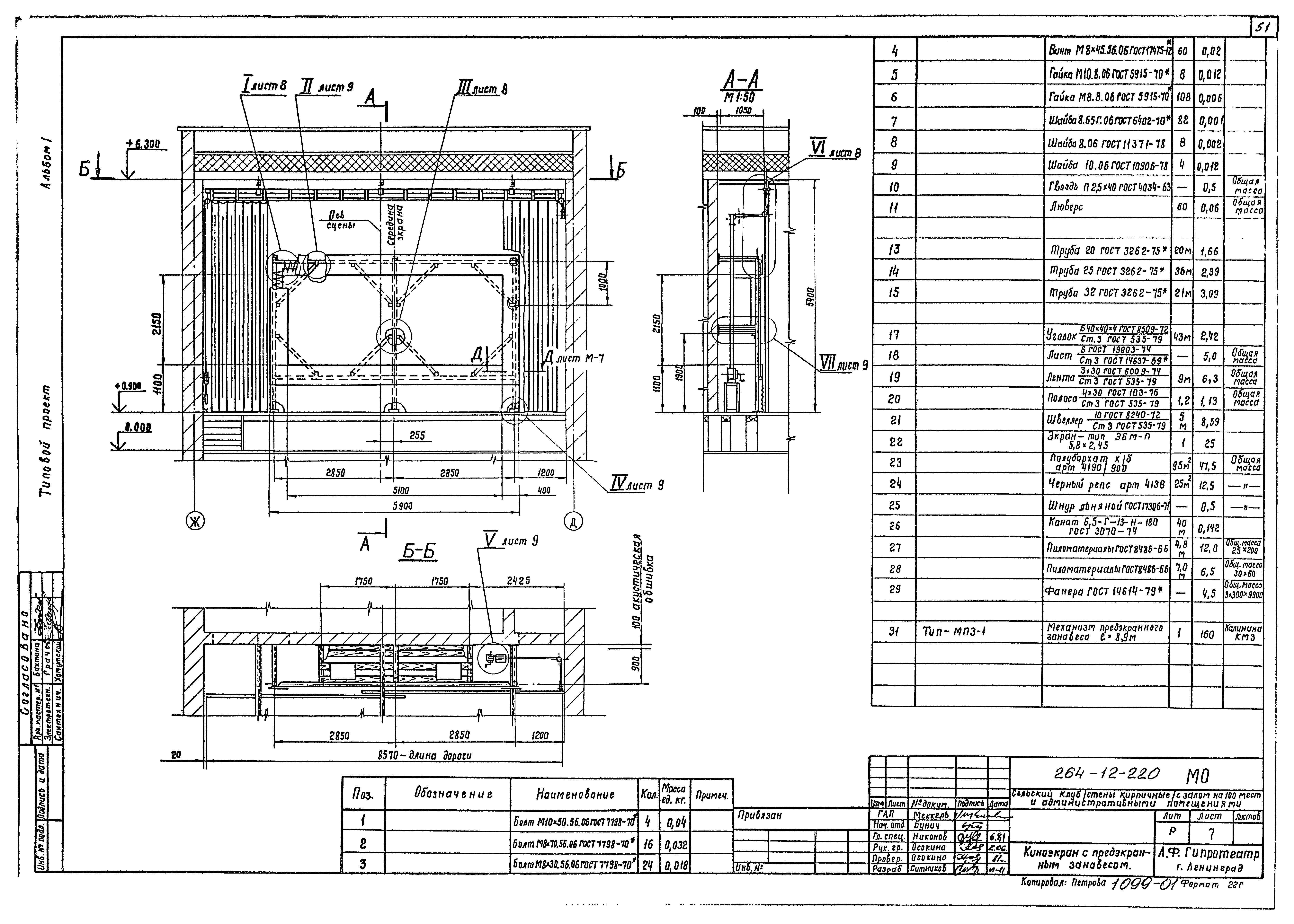
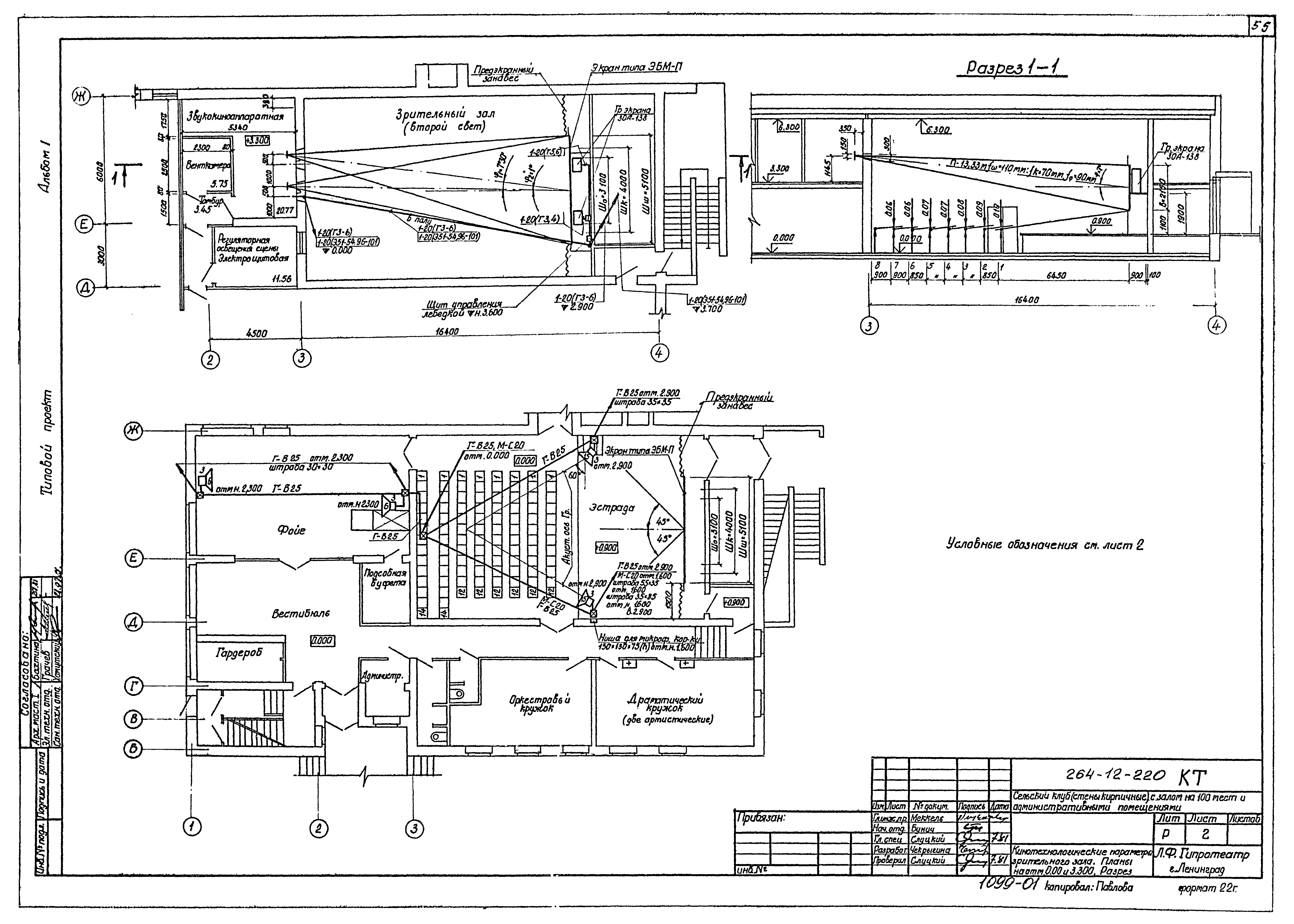
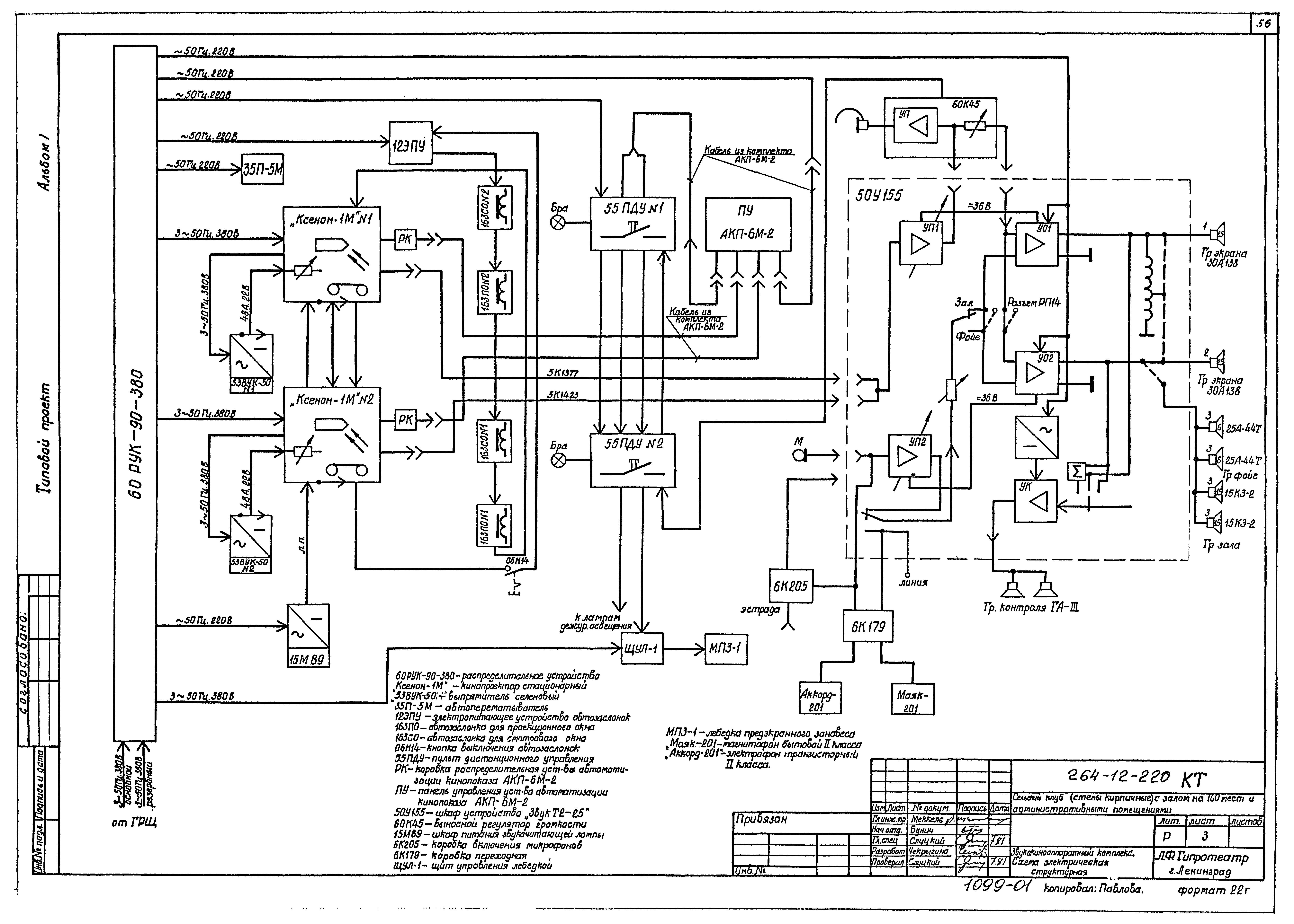
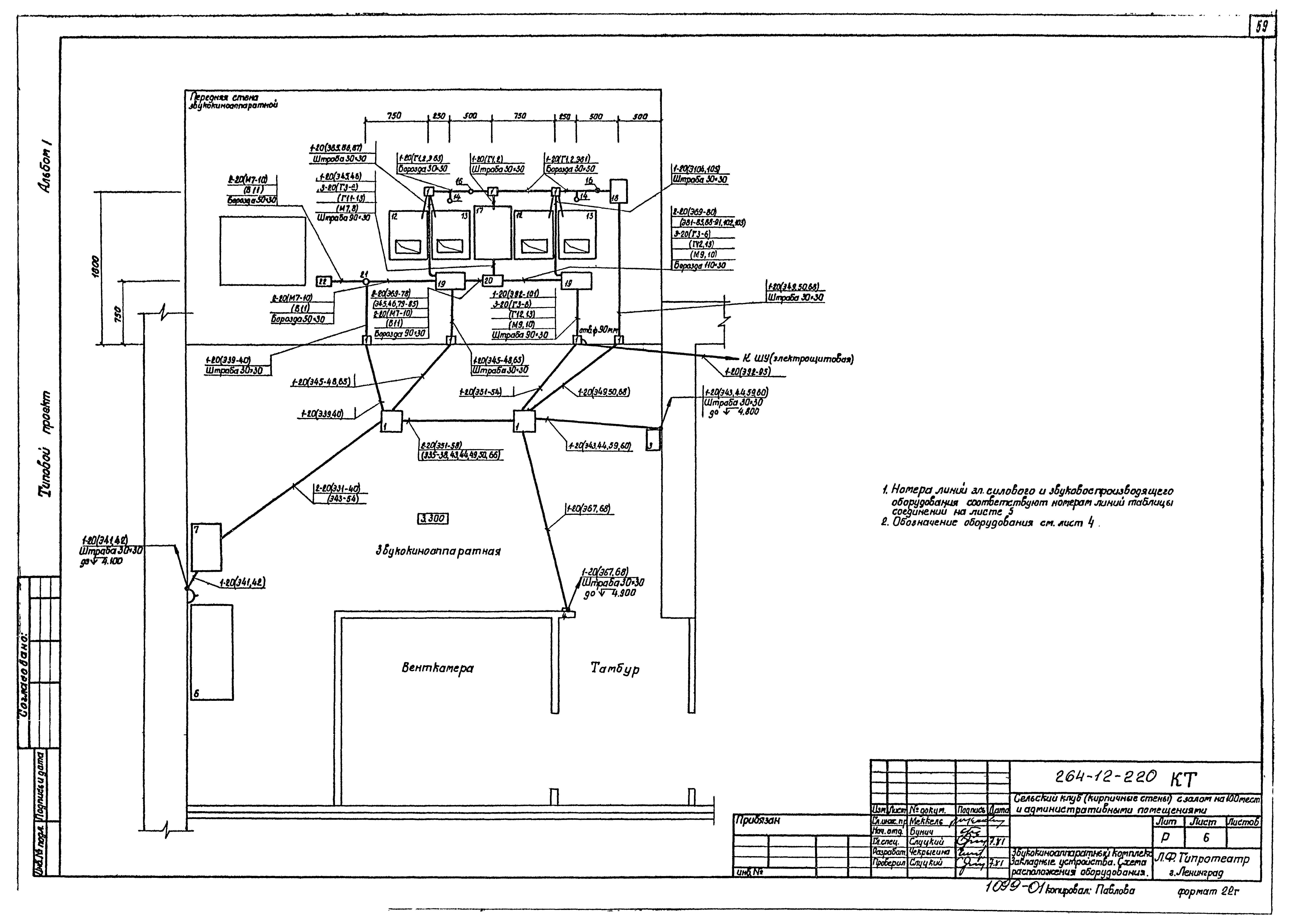
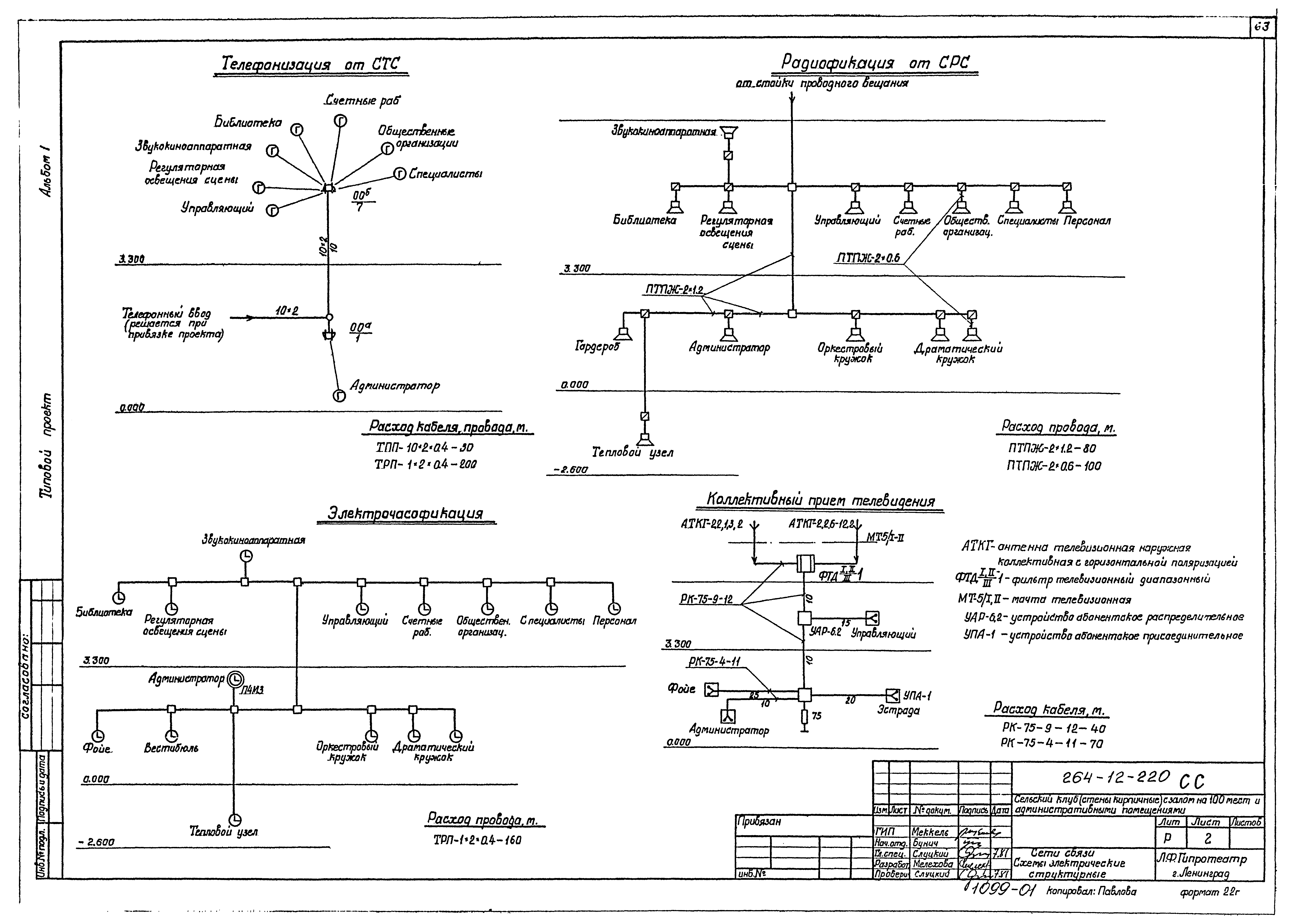
Скачать Типовой проект 264-12-220 Альбом I. Архитектурно-строительные чертежи. Технология. Механооборудование. Кинотехнология и электроакустика. Связь и сигнализацияДата актуализации: 01.01.2021 Типовой проект 264-12-220
Альбом I. Архитектурно-строительные чертежи. Технология. Механооборудование. Кинотехнология и электроакустика. Связь и сигнализация| Обозначение: | Типовой проект 264-12-220 | | Обозначение англ: | 264-12-220 | | Статус: | действует | | Название рус.: | Альбом I. Архитектурно-строительные чертежи. Технология. Механооборудование. Кинотехнология и электроакустика. Связь и сигнализация | | Дата добавления в базу: | 05.05.2017 | | Дата актуализации: | 01.01.2021 | | Дата введения: | 15.09.1981 | | Разработан: | Ленинградский филиал Гипротеатра
| | Утверждён: | 13.11.1980 Госгражданстрой (Gosgrazhdanstroy 319)
|
                                                                 
|