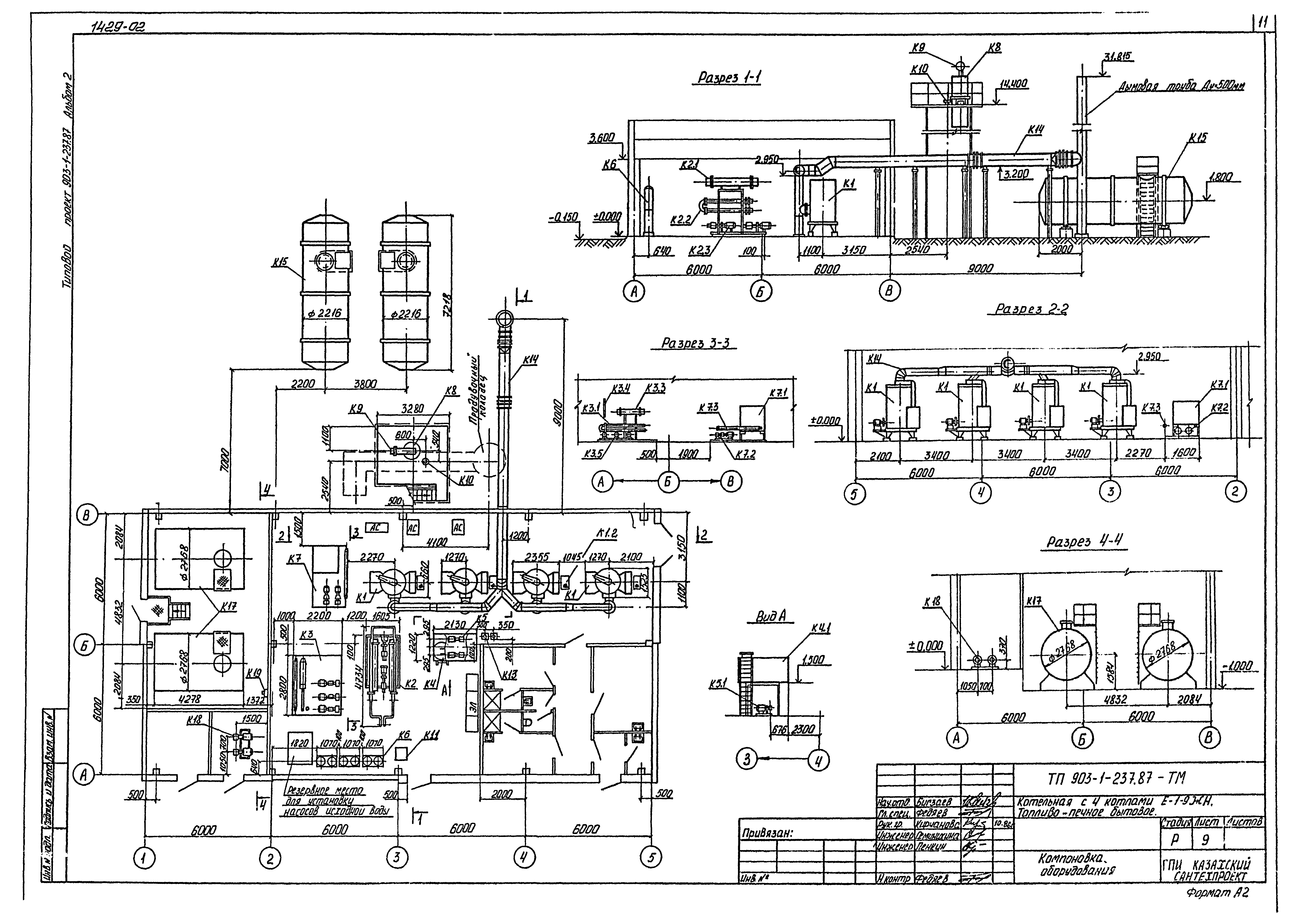
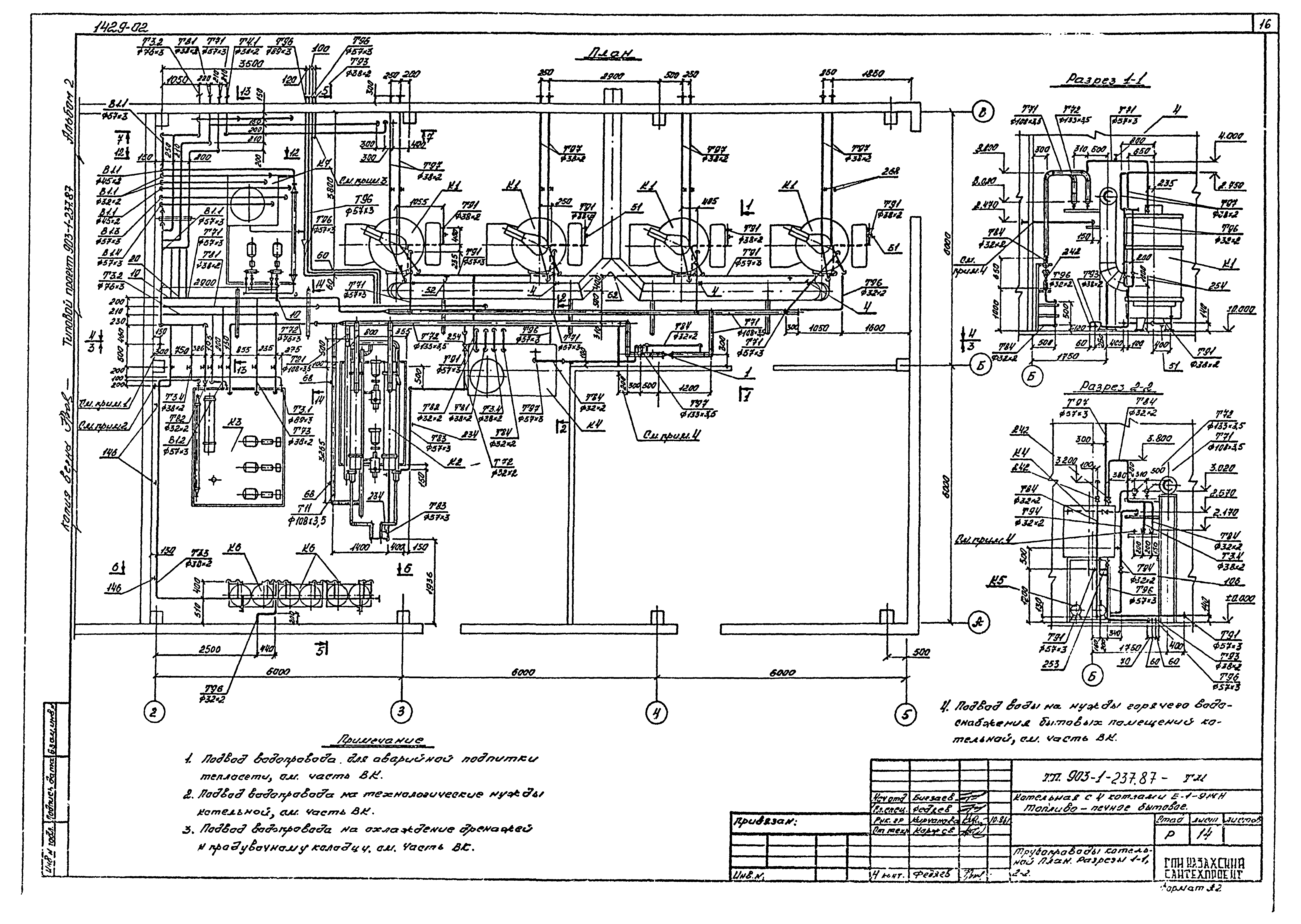
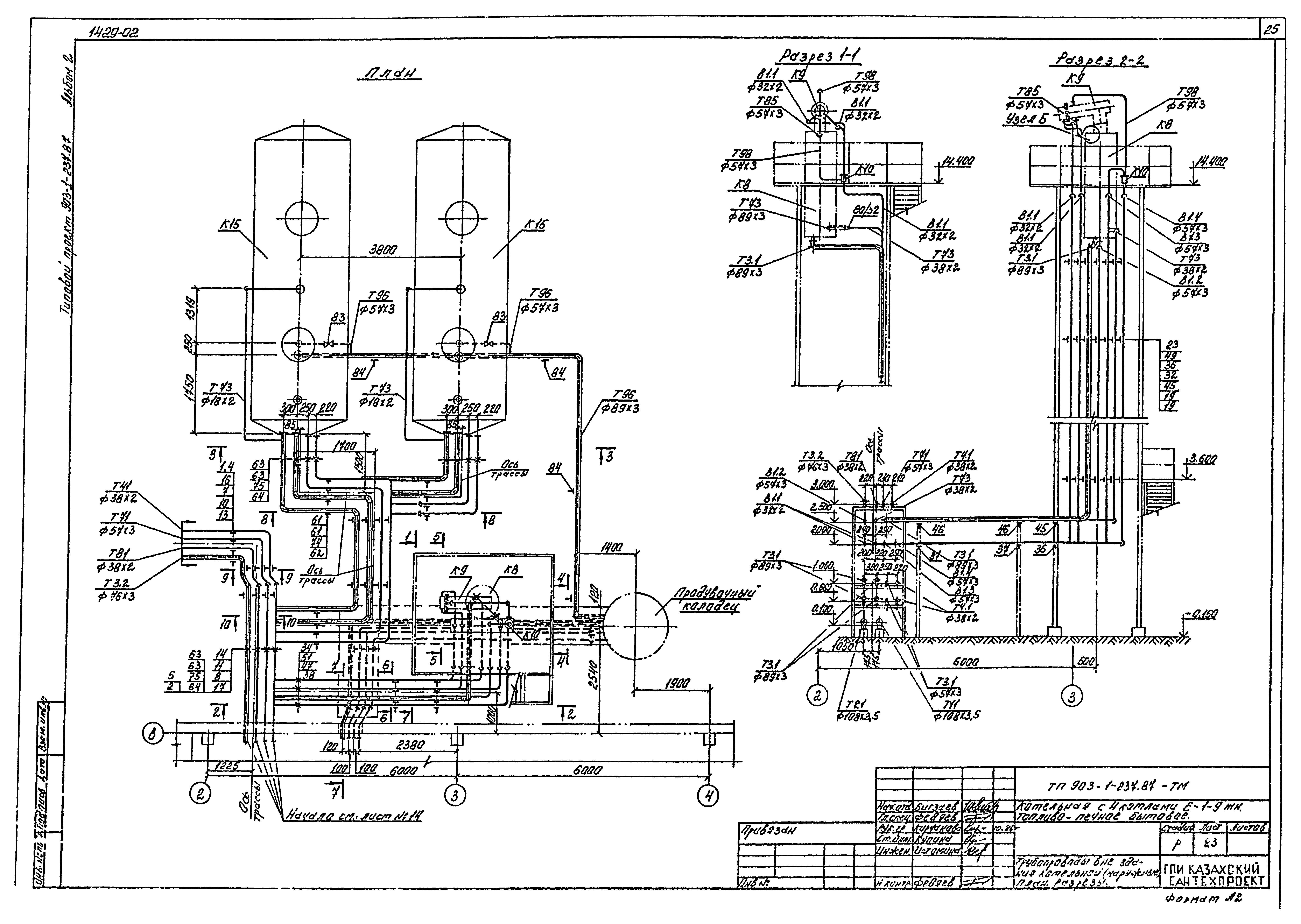
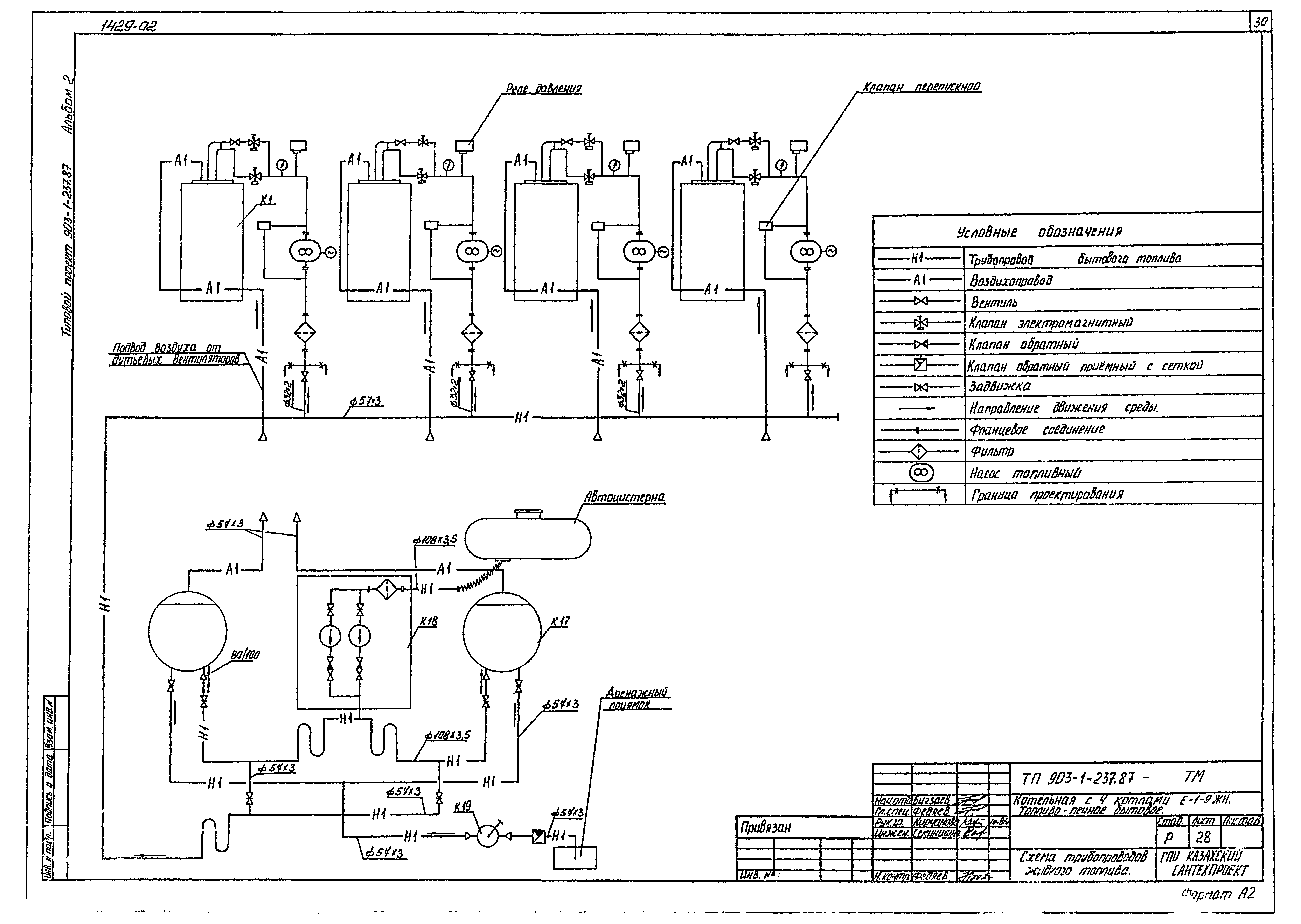
Скачать Типовой проект 903-1-237.87 Альбом 2. Тепломеханическая часть. Водопровод и канализацияДата актуализации: 01.01.2021
|
| Обозначение: | Типовой проект 903-1-237.87 |
| Обозначение англ: | 903-1-237.87 |
| Статус: | не определен законодательством |
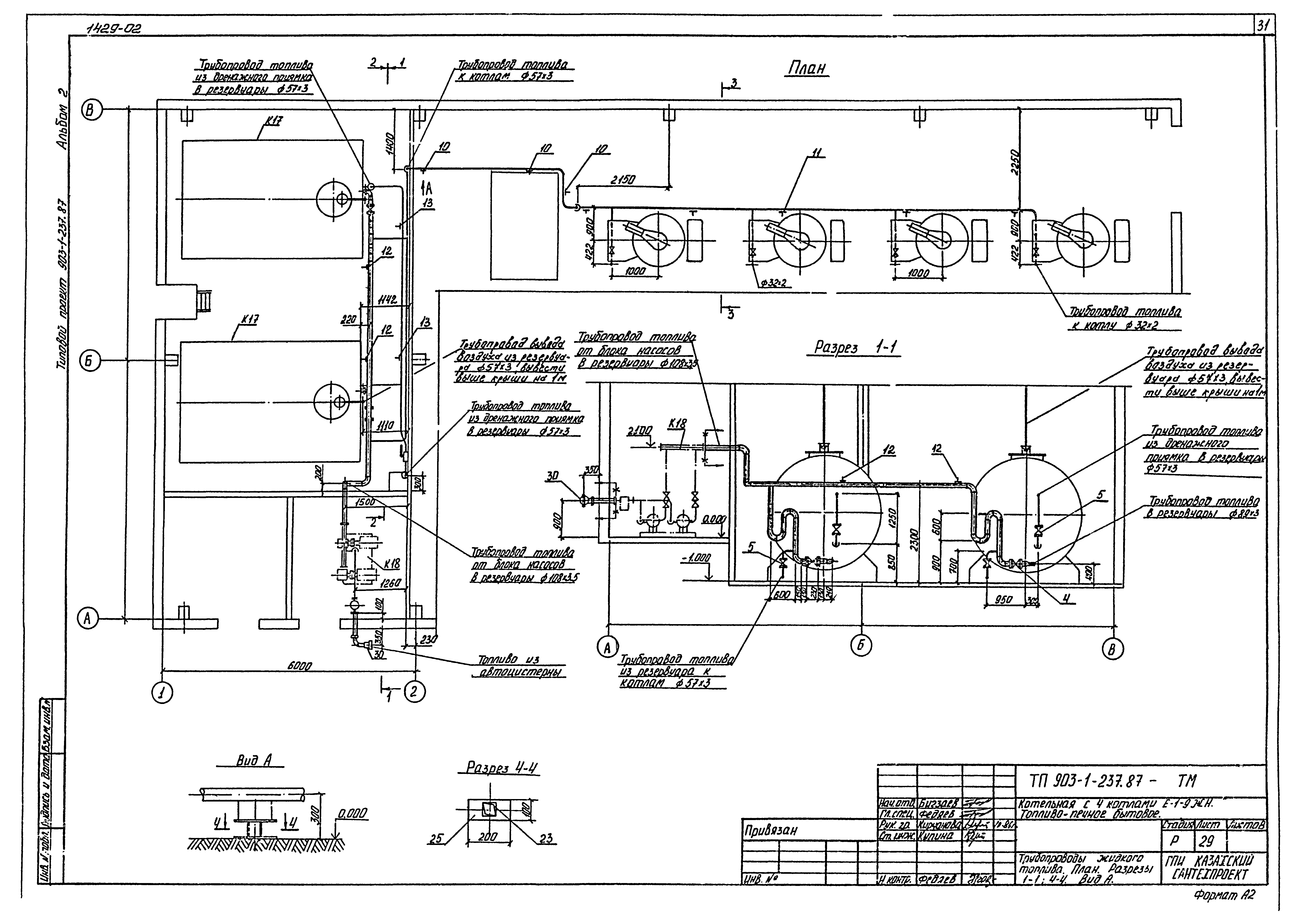
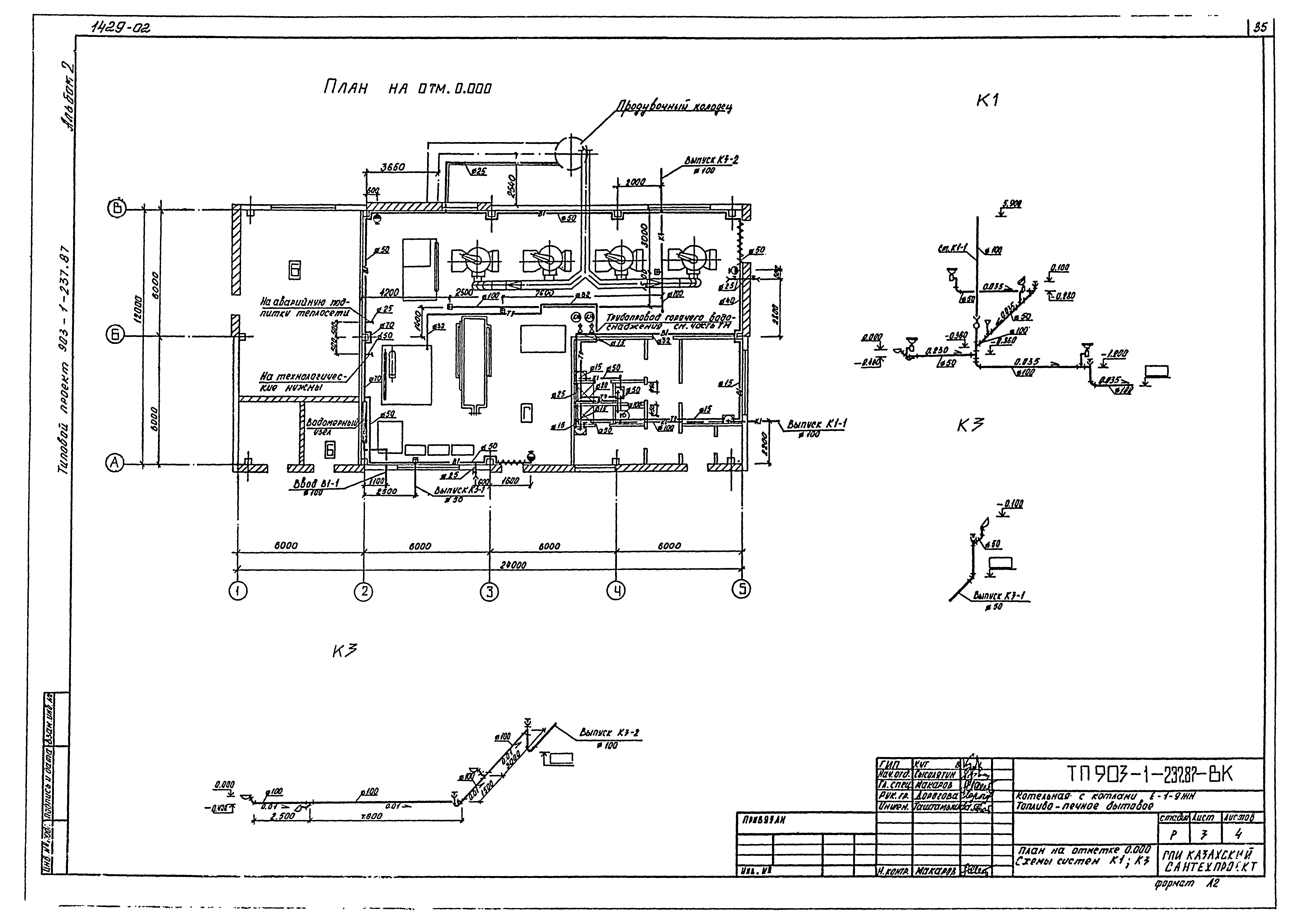
| Название рус.: | Альбом 2. Тепломеханическая часть. Водопровод и канализация |
| Дата добавления в базу: | 01.01.2018 |
| Дата актуализации: | 01.01.2021 |
| Дата введения: | 27.11.1986 |
| Дата окончания срока действия: | 30.06.2003 |
| Разработан: | Казахский Сантехпроект |
| Утверждён: | 27.11.1986 ВО Союзсантехпроект (16/КУ-86) |
| Издан: | ЦИТП Госстроя СССР (CITP, Gosstroy (USSR) 1988 г. ) |
| Заменяет собой: |
|
| Нормативные ссылки: |
|





































