Скачать Методические указания по составлению и оформлению каталожных листов на типовую проектную документацию для строительстваДата актуализации: 01.01.2021 |
| Статус: | действует |
| Название рус.: | Методические указания по составлению и оформлению каталожных листов на типовую проектную документацию для строительства |
| Дата добавления в базу: | 01.01.2018 |
| Дата актуализации: | 01.01.2021 |
| Область применения: | Методические указания устанавливают порядок составления и оформления каталожных листов на типовую проектную документацию для строительства. Они разработаны с учетом принципов Единой системы строительных каталогов стран—членов СЭВ (ЕССК СЭВ). Каталожные листы служат средством информации типовой проектной документации и являются элементами Строительного каталога СССР (СК СССР) и ЕССК СЭВ. Каталожные листы предназначены для использования внутри страны, а также для передачи странам-членам СЭВ. |
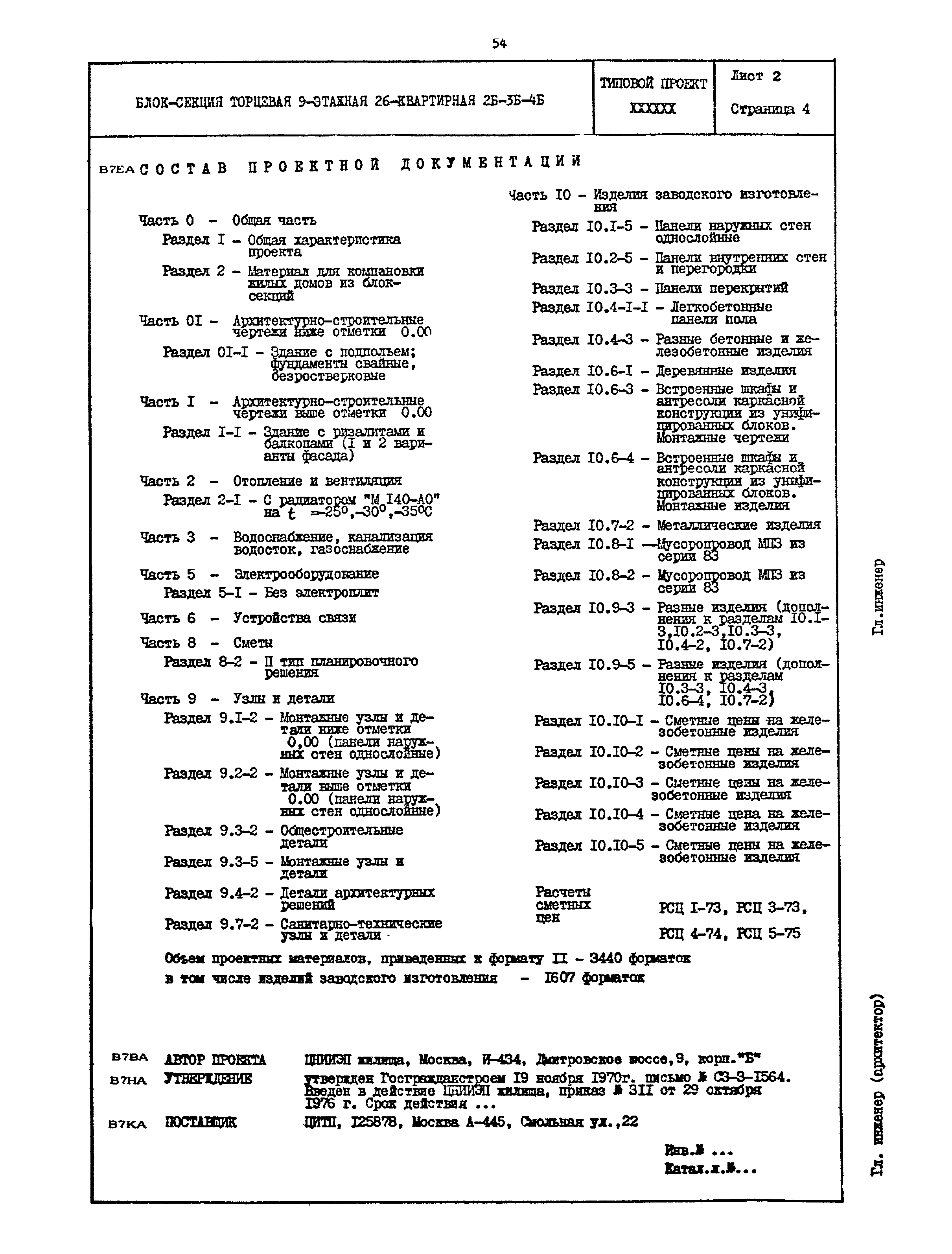
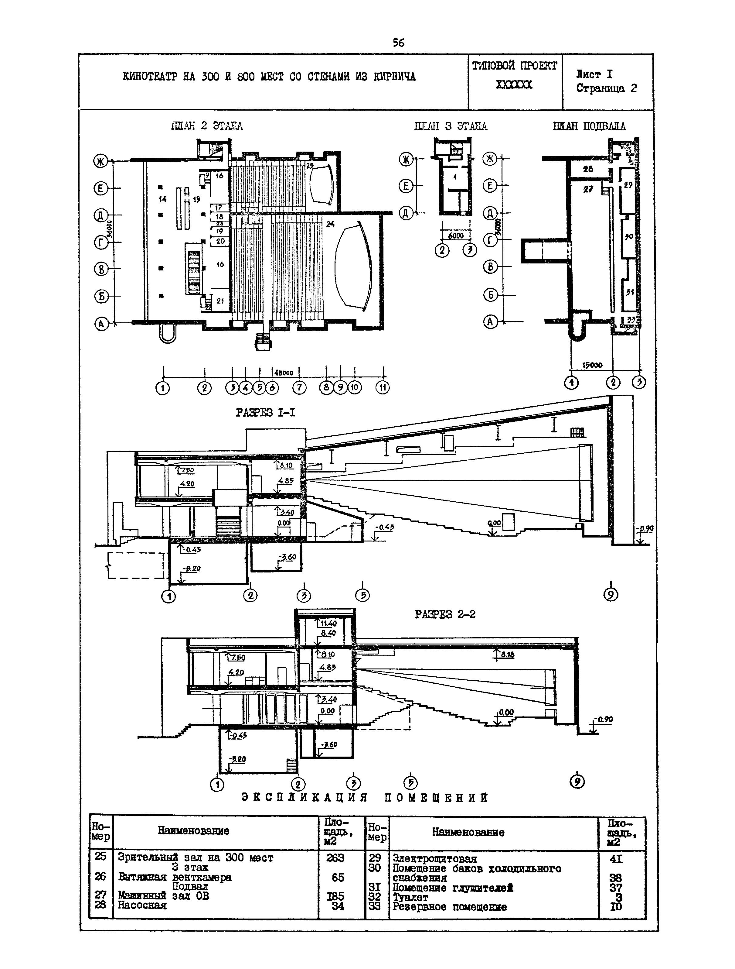
| Оглавление: | 1 Введение 2 Системы классификации в единой системе строительных каталогов стран—членов СЭВ и в Строительном каталоге СССР 3 Кодирование (присвоение обозначений) типовой проектной документации 4 Составление и оформление каталожных листов Формы для составления каталожных листов форма 1 — Каталожные листы на типовые проекты жилых зданий форма 2 — Каталожные листы на типовые проекты общественных зданий форма 3 — Каталожные листы на типовые проекты производственных, подсобных и складских зданий форма 4 — Каталожные листы на типовые проекты сооружений форма 5 — Каталожные листы на типовые проектные решения планировочных схем форма 6 — Каталожные листы на типовые проектные решения технологических линий форма 7 — Каталожные листы на типовые строительные системы и изделия зданий и сооружений Приложение 1. Ключ параметров Приложение 2. Примеры оформления каталожных листов по форме 1 по форме 2 по форме 3 по форме 4 по форме 5 по форме 6 по форме 7 |
| Разработан: | ЦНИИпромзданий ЦИТП Госстроя СССР ЦНИИЭП жилища ВНИИИС Госстроя СССР |
| Утверждён: | 18.09.1980 Госстрой СССР |
| Заменяет собой: |
|
| Нормативные ссылки: |
|




















































































