Скачать ГОСТ Р 57778-2017 Композиты полимерные. Определение характеристик при сдвиге в плоскости армирования методом перекашивания пластиныДата актуализации: 01.01.2021
|
| Обозначение: | ГОСТ Р 57778-2017 |
| Обозначение англ: | GOST R 57778-2017 |
| Статус: | введен впервые |
| Название рус.: | Композиты полимерные. Определение характеристик при сдвиге в плоскости армирования методом перекашивания пластины |
| Название англ.: | Polymer composites. Determination in-plane shear properties by the rail shear method |
| Дата добавления в базу: | 01.01.2019 |
| Дата актуализации: | 01.01.2021 |
| Дата введения: | 01.02.2018 |
| Область применения: | Стандарт распространяется на слоистые полимерные композиты, армированные однонаправленными высокомодульными волокнами, тканными наполнителями и хаотично-ориентированными рубленными волокнами, и устанавливает два метода определения характеристик при сдвиге в плоскости армирования перекашиванием пластины. |
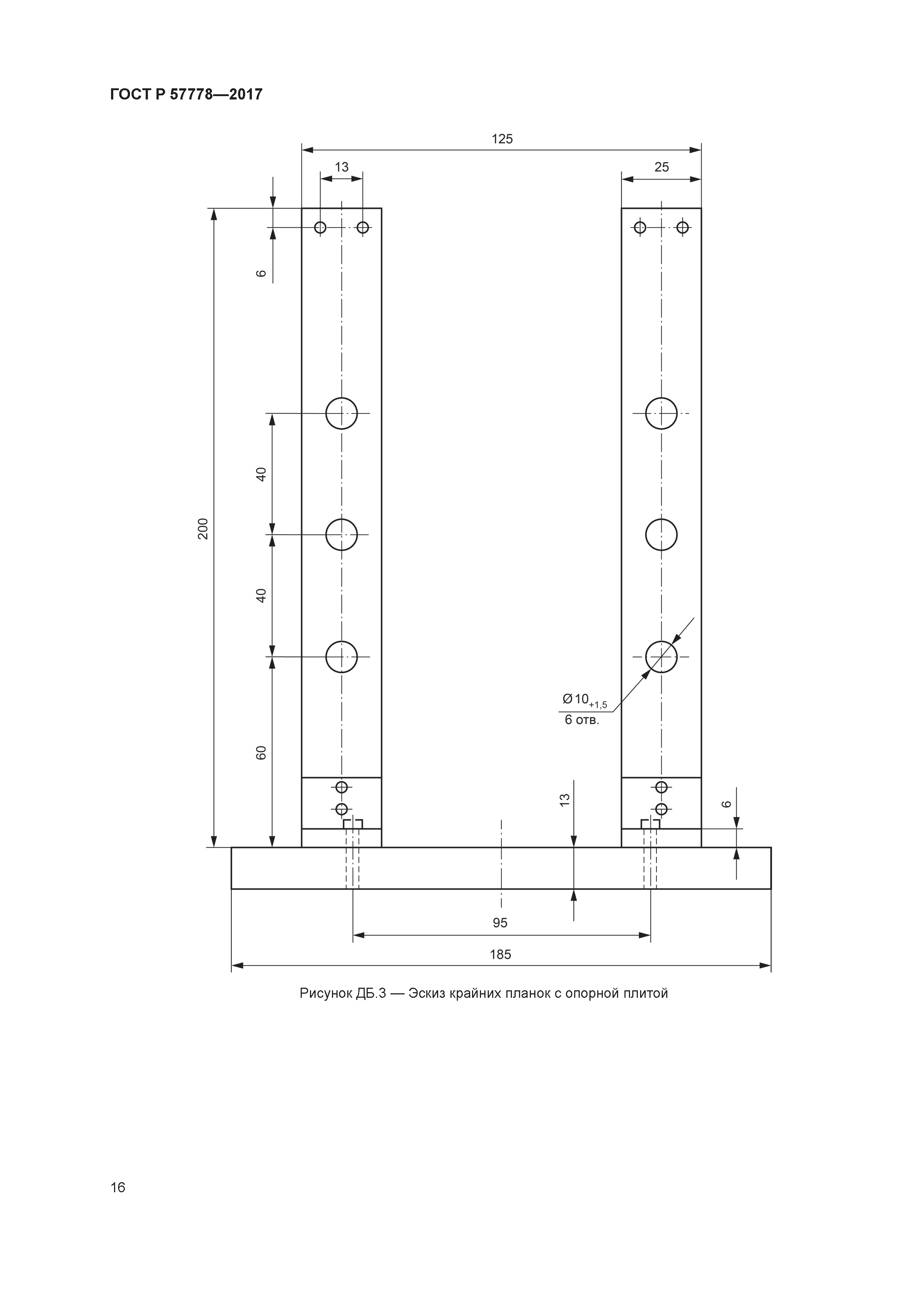
| Оглавление: | 1 Область применения 2 Нормативные ссылки 3 Термины и определения 4 Сущность метода 5 Оборудование 6 Образцы для испытаний 7 Подготовка к проведению испытания 8 Проведение испытаний 9 Обработка результатов 10 Протокол испытаний Приложение ДА (обязательное) Эскизы деталей приспособления для испытаний по методу А Приложение ДБ (обязательное) Эскизы деталей приспособления для испытаний по методу В Приложение ДВ (справочное) Оригинальный текст модифицированных структурных элементов Приложение ДГ (справочное) Оригинальный текст невключенных структурных элементов Приложение ДД (справочное) Сведения о соответствии ссылочных межгосударственных стандартов стандартам АСТМ, использованным в качестве ссылочных в примененном стандарте АСТМ Приложение ДЕ (справочное) Сопоставление структуры настоящего стандарта со структурой примененного в нем стандарта АСТМ |
| Разработан: | Объединение юридических лиц Союз производителей композитов АНО Центр нормирования, стандартизации и классификации композитов |
| Утверждён: | 10.10.2017 Федеральное агентство по техническому регулированию и метрологии (1372-ст) |
| Издан: | Стандартинформ (2017 г. ) |
| Нормативные ссылки: |
|









































